|
|
| ¼ÒÀçÁö |
ÀÎõ±¤¿ª½Ã ³²µ¿±¸ ±¸¿ùµ¿ 1139-3 ÀÌ·¹ÀÎ 2Ãþ201È£
|
|
| »ç°Ç¹øÈ£ |
2025 Ÿ°æ 511998 |
¹°°Ç¹øÈ£ |
1
|
¹°°Ç¿ëµµ |
¿ÀÇǽºÅÚ |
| °¨Á¤Æò°¡¾× |
198,000,000¿ø |
°æ¸Å´ë»ó |
ÅäÁö ¹× °Ç¹°Àϰý ¸Å°¢ |
ÁøÇà»óÅ |
À¯Âû |
| ÃÖÀúÀÔÂû°¡ |
(70%) 138,600,000¿ø
|
°Ç¹°¸éÀû |
59.87§³(18.11Æò) |
ÀÔÂû±âÀÏ |
2026.03.19(¸ñ) 10:00
(ÀÔÂû 12ÀÏÀü)
|
| ÀÔÂûº¸Áõ±Ý |
(10%) 13,860,000¿ø |
ÅäÁö¸éÀû |
9.45§³(2.86Æò)
|
À¯ÂûȽ¼ö |
1ȸ |
| ÀÔÂû¹ý¿ø |
ÀÎõÁö¹æ¹ý¿ø |
°æ¸Å¹æ¹ý |
|
¹°°ÇÁ¶È¸¼ö |
¿À´Ã: 3ȸ [´©Àû: 1142ȸ]
|
| ¸»¼Ò±âÁØ | ÃÖ¼±¼øÀ§ ¼³Á¤ : 2023.02.07. ¾Ð·ù ¼³Á¤
|
|
|
|
|
|
|
|
|
|
|
°æ¸Å´ë»ó ¸ñ·Ï
|
|
| ±¸ºÐ |
¸ñ·Ï |
ÁÖ¼Ò |
±¸Á¶/¿ëµµ/´ëÁö±Ç |
ºñ°í |
´ëÁö±Ç
|
1 |
±¸¿ùµ¿ 1139-3 |
452.9ºÐÀÇ 9.4477 |
9.4477§³ (2.86Æò)
|
°Ç¹°
|
1 |
±¸¿ùµ¿ 1139-3 |
2Ãþ201È£ ö±ÙÄÜÅ©¸®Æ®±¸Á¶ |
59.8677§³ (18.11Æò)
|
|
|
|
2026-02-04
À¯Âû
|
(100%)
198,000,000¿ø
|
|
|
|
2026-03-19
ÁøÇà
|
(70%)
138,600,000¿ø
|
|
|
|
|
|
°¨Á¤Æò°¡¼ ¿ä¾à |
|
[À§Ä¡/ÁÖÀ§È¯°æ]
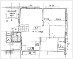
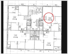
³²µ¿±¸ ±¸¿ùµ¿ ¼ÒÀç ""ÀÎõ±¤¿ª½Ãû"" ³²Ãø Àαٿ¡ À§Ä¡ÇÏ´Â ¿ÀÇǽºÅÚ ""ÀÌ·¹ÀÎ"" Á¦2Ãþ Á¦201È£·Î¼ ÀαÙÀº ¿ÀÇǽºÅÚ, ¾ÆÆÄÆ® ¹× ±Ù¸°»ýȰ½Ã¼³ µîÀÌ È¥ÀçµÈ »ó¾÷¾÷¹«Áö´ëÀÓ.
[±³Åë»óȲ]
ÀÎõ±¤¿ª½Ãû Àαٿ¡ À§Ä¡ÇÏ¸ç °æÀÎÀüö, ÀÎõÁöÇÏö1È£¼± ¹× 2È£¼±, ½Ã³»¹ö½º µî ÀÌ¿ë Æí¸®ÇÏ¿© ´ëÁß±³Åë»óȲ Æí¸®ÇÑ Áö¿ªÀÓ.
[°Ç¹°±¸Á¶]
ö±ÙÄÜÅ©¸®Æ®±¸Á¶ ÁöÇÏ 1Ãþ Áö»ó 13Ãþ ±Ô¸ðÀÇ ¿ÀÇǽºÅÚ ³» Á¦2Ãþ Á¦201È£·Î¼
¿Üº® : ÄÜÅ©¸®Æ® À§ ÆäÀÎÆÃ µî ¸¶°¨
âȣ : ¼¨½ÃâȣÀÓ.
[ÀÌ¿ë»óÅÂ]
°øºÎ»ó ¿ëµµ ¿ÀÇǽºÅÚÀÓ.
[¼³ºñ³»¿ª]
ÀϹÝÀûÀÎ »óÇϼöµµ¼³ºñ ¹× À§»ý¼³ºñ °®Ãß°í ÀÖÀ½.
[ÅäÁöÇü»ó/ÀÌ¿ë»óÅÂ]
¼¼ÀåÇü ÅäÁö·Î¼ ÀÎÁ¢ÅäÁö¿Í µî°í ÆòźÇÏ¸ç ¿ÀÇǽºÅÚ ºÎÁö·Î ÀÌ¿ëÁßÀÓ.
7)ÀÎÁ¢ µµ·Î»óŵî
¼ÃøÀ¸·Î Á߷ο¡ Á¢ÇÔ.
[ÅäÁöÀÌ¿ë°èȹ]
ÀϹݻó¾÷Áö¿ª, ¹æÈÁö±¸, Áö±¸´ÜÀ§°èȹ±¸¿ª(±¸¿ù¾÷¹«Áö±¸), °¡Ãà»çÀ°Á¦Çѱ¸¿ª(°¡ÃàºÐ´¢ÀÇ °ü¸® ¹× À̿뿡 °üÇÑ ¹ý·ü), »ó´ëº¸È£±¸¿ª(±³À°È¯°æ º¸È£¿¡ °üÇÑ ¹ý·ü), °ú¹Ð¾ïÁ¦±Ç¿ª(¼öµµ±ÇÁ¤ºñ°èȹ¹ý), ÅäÁö°Å·¡¿¡ °üÇÑ Çã°¡±¸¿ª(2925.08.26-2026.08.25) ³» ÅäÁöÀÓ.
[°øºÎ¿ÍÀÇ Â÷ÀÌ]
¾øÀ½.
[Âü°í»çÇ×]
ÀÓ´ëÂ÷°ü°è ¹Ì»óÀÓ. |
|
|
°ÇÃ๰ÇöȲ |
|
|
|
| ¼ÒÀçÁö |
ÀÎõ±¤¿ª½Ã ³²µ¿±¸ ±¸¿ùµ¿ 1139-3¹øÁö |
| ´ëÁö¸éÀû |
452.9§³(137.24Æò) |
¿¬¸éÀû |
3840.86§³(1163.9Æò) |
ÁÖ¿ëµµ |
¾÷¹«½Ã¼³ |
| °ÇÃà¸éÀû |
297.22§³(90.07Æò) |
¿ëÀû·ü»êÁ¤¿¬¸éÀû |
3569§³(1081.52Æò) |
Âø°øÀÏÀÚ |
2015.06.12 |
| °ÇÆóÀ² |
65.63% |
¿ëÀû·ü |
788.03% |
»ç¿ë½ÂÀÎÀÏÀÚ |
2016.03.11 |
| Áö»óÃþ¼ö |
13Ãþ |
ÁöÇÏÃþ¼ö |
1Ãþ |
±¸Á¶ |
ö±ÙÄÜÅ©¸®Æ®±¸Á¶ |
°ÇÃ๰Ãþº°ÇöȲ [º¸±â]| Ãþº° | ±¸Á¶ | ¿ëµµ | ¸éÀû | | 1Ãþ | ö±ÙÄÜÅ©¸®Æ®±¸Á¶ | °è´Ü½Ç | 27.2§³ (8.24Æò) | | 1Ãþ | ö±ÙÄÜÅ©¸®Æ®±¸Á¶ | ÁÖÂ÷Àå | 27.88§³ (8.45Æò) | | 2Ãþ | ö±ÙÄÜÅ©¸®Æ®±¸Á¶ | 4È£½Ç | 295.15§³ (89.44Æò) | | 3Ãþ | ö±ÙÄÜÅ©¸®Æ®±¸Á¶ | 4È£½Ç | 295.15§³ (89.44Æò) | | 4Ãþ | ö±ÙÄÜÅ©¸®Æ®±¸Á¶ | 4È£½Ç | 295.15§³ (89.44Æò) | | 5Ãþ | ö±ÙÄÜÅ©¸®Æ®±¸Á¶ | 4È£½Ç | 295.15§³ (89.44Æò) | | 6Ãþ | ö±ÙÄÜÅ©¸®Æ®±¸Á¶ | 4È£½Ç | 295.15§³ (89.44Æò) | | 7Ãþ | ö±ÙÄÜÅ©¸®Æ®±¸Á¶ | 4È£½Ç | 295.15§³ (89.44Æò) | | 8Ãþ | ö±ÙÄÜÅ©¸®Æ®±¸Á¶ | 4È£½Ç | 295.15§³ (89.44Æò) | | 9Ãþ | ö±ÙÄÜÅ©¸®Æ®±¸Á¶ | 4È£½Ç | 295.15§³ (89.44Æò) | | 10Ãþ | ö±ÙÄÜÅ©¸®Æ®±¸Á¶ | 4È£½Ç | 295.15§³ (89.44Æò) | | 11Ãþ | ö±ÙÄÜÅ©¸®Æ®±¸Á¶ | 4È£½Ç | 295.15§³ (89.44Æò) | | 12Ãþ | ö±ÙÄÜÅ©¸®Æ®±¸Á¶ | 4È£½Ç | 295.15§³ (89.44Æò) | | 13Ãþ | ö±ÙÄÜÅ©¸®Æ®±¸Á¶ | 4È£½Ç | 295.15§³ (89.44Æò) | | ¿Áž1Ãþ | ö±ÙÄÜÅ©¸®Æ®±¸Á¶ | °è´Ü½Ç | 13.23§³ (4.01Æò) | | ¿Áž2Ãþ | ö±ÙÄÜÅ©¸®Æ®±¸Á¶ | ±â°è½Ç | 24.01§³ (7.28Æò) | | Áö1Ãþ | ö±ÙÄÜÅ©¸®Æ®±¸Á¶ | ÁÖÂ÷Àå | 243.98§³ (73.93Æò) |
|
|
|
|
|
|
|
|
|
¸éÀû(§³), ±Ý¾×(¸¸¿ø)
| °è¾àÀÏ | ±âÁØ | °Ç¹°¸íĪ | Ãþ | Àü¿ë¸éÀû | °Å·¡±Ý¾× | °ÇÃà³âµµ | | °Å·¡³»¿ªÀÌ ¾ø½À´Ï´Ù. |
| °è¾àÀÏ | ±âÁØ | °Ç¹°¸íĪ | Ãþ | Àü¿ë¸éÀû | º¸Áõ±Ý | ¿ù¼¼ | °ÇÃà³âµµ | | 2025.10.30 | ¸Å¸Å | ÀÌ·¹ÀÎ | 6 | 59.8677 | 18,000 | | 2016 | | 2025.10.10 | ¿ù¼¼ | ÀÌ·¹ÀÎ | 13 | 59.71 | 2,000 | 73 | 2016 | | 2025.10.02 | Àü¼¼ | ÀÌ·¹ÀÎ | 6 | 59.87 | 17,100 | 0 | 2016 | | 2025.09.23 | Àü¼¼ | ÀÌ·¹ÀÎ | 6 | 59.87 | 17,100 | 0 | 2016 | | 2025.09.18 | ¿ù¼¼ | ÀÌ·¹ÀÎ | 13 | 59.71 | 2,000 | 73 | 2016 | | 2025.08.11 | ¿ù¼¼ | ÀÌ·¹ÀÎ | 10 | 59.71 | 3,000 | 70 | 2016 | | 2025.05.17 | Àü¼¼ | ÀÌ·¹ÀÎ | 7 | 59.87 | 17,000 | 0 | 2016 |
|
|
|
 |
ÀÓÂ÷³»¿ª |
[¹è´ç¿ä±¸Á¾±âÀÏ : 2025/11/24] |
|
|
| ÀÓÂ÷ÀÎ |
Á¡À¯°ü°è |
ÀüÀÔÀÏÀÚ |
È®Á¤ÀÏÀÚ |
¹è´ç¿ä±¸ÀÏ |
º¸Áõ±Ý/Â÷ÀÓ |
´ëÇ׿ä°Ç |
ºñ°í |
| ÁÖOOOOOOOOOOOOOOO |
ÀüºÎ |
2022.05.20. |
2022.03.25. |
2025.11.12. |
220,000,000
|
O |
2022.05.20.~2024.09.09. |
| ÇãO |
ÀüºÎ |
2022.05.20. |
2022.03.25. |
|
220,000,000
|
O |
2022.05.20. |
| ǥOO |
|
2025.01.31. |
|
|
|
X |
|
| ¸Å°¢¹°°Ç¸í¼¼ ºñ°í |
ÁÖÅõµ½Ãº¸Áõ°ø»ç(ÀÓÂ÷ÀÎ:Çã¿õ) : ÀÓÂ÷ÀÎ Çã¿õÀÇ ÀÓÂ÷º¸Áõ±Ý¹Ýȯä±Ç ¾ç¼öÀÎÀ¸·Î¼, º¸Áõ±Ý Àü¾×À» ¹è´ç¹ÞÁö ¸øÇÏ´õ¶óµµ ÀÜÁ¸
Çã¿õ : ÁÖÅÃÀÓÂ÷±Çµî±â±Ç¸®Àڷμ ÁÖÅÃÀÓÂ÷±Çµî±âÀÏÀº 2024.1.18.ÀÓ |
|
|
|
 |
Áö¿ªºÐ¼® |
|
|
|
|
| ÁöÇÏö |
|
Çб³ |
|
| °ü°ø¼ |
|
| ¹ý¿ø |
ÀÎõÁö¹æ¹ý¿ø (222-20)ÀÎõ±¤¿ª½Ã ¹ÌÃßȦ±¸ ¼Ò¼º·Î 163¹ø±æ 17(ÇÐÀ͵¿) ´ëÇ¥ : 032)860-1113~4 Áß±¸, µ¿±¸, ³²±¸, ¿¬¼ö±¸, ³²µ¿±¸, ºÎÆò±¸, °è¾ç±¸, ¼±¸, ¿ËÁø±º, °È±º |
| µî±â¼Ò |
ÀÎõÁö¹æ¹ý¿ø º»¿ø µî±â±¹ (´ëÇ¥:1544-0773, ÆÑ½º:(032)620-9099, ÀÎõ±¤¿ª½Ã ¹ÌÃßȦ±¸ °æ¿ø´ë·Î 881(Á־ȵ¿ 983)) |
| ¼¼¹«¼ |
³²ÀÎõ¼¼¹«¼ (´ëÇ¥:032-460-52, ÆÑ½º:032-463-5778, ÀÎõ±¤¿ª½Ã ³²µ¿±¸ ÀÎÇÏ·Î 548 (±¸¿ùµ¿)) |
|
|
|
 |
¹ý¿ø ¹°°ÇÀÚ·á ¿ä¾à |
|
|
|
|
| ¼Ò¸êµÇÁö ¾Ê´Â µî±âºÎ±Ç¸® |
À»±¸ ¼øÀ§ 3¹ø ÁÖÅÃÀÓÂ÷±Çµî±â(´Ù¸¸, ÁÖÅõµ½Ãº¸Áõ°ø»çÀÇ ¸»¼Òµ¿ÀÇ È®¾à¼°¡ Á¦Ãâ µÊ) |
| ¼³Á¤µÈ °ÍÀ¸·Î º¸´Â Áö»ó±Ç |
|
| ¹ý¿øÀÚ·á Æ¯ÀÌ»çÇ× |
[ÁÖ¿ä ¹®°Ç Á¢¼ö ³»¿ª]
|
[ºÎµ¿»ê ÇöȲÁ¶»ç¼ ºñ°í¶õ]
º»°ÇÀº ½Ã |
|
| ¿©ÀÇÁÖ°æ¸Å Á¶¾ð ÇѸ¶µð |
ÀÌ ºÎµ¿»êÀÇ ÀÔÂû¹ý¿øÀº ÀÎõÁö¹æ¹ý¿øÀÔ´Ï´Ù.
ÀÔÂûÀÏÀº 2026-03-19ÀÔ´Ï´Ù.
ÀÔÂû½Ã°£Àº ~11:20ÀÔ´Ï´Ù. ÀÌ ¹ý¿ø¿¡´Â KB±¹¹ÎÀºÇàÀÌ ÀÔÁ¡Çϰí ÀÖ½À´Ï´Ù.
|
¼±¼øÀ§ ÀÓÂ÷±Çµî±â°¡ µÇ¾î ÀÖ½À´Ï´Ù ´ëÇ×·ÂÀÌ ÀÖ´Â ¼±¼øÀ§ ÀÓÂ÷±Çµî±â ±Ç¸®ÀÚ°¡ ¹è´çÀ» Àü¾× ¹ÞÁö ¸øÇÒ °æ¿ì ³«ÂûÀÚ°¡ ÀÜ¿© º¸Áõ±ÝÀ» ÀμöÇØ¾ßÇÏ´Â °æ¿ìµµ ÀÖ½À´Ï´Ù. |
|
|
| Åë°è±â°£ |
³«Âû¹°°Ç¼ö |
Æò±Õ°¨Á¤°¡ |
Æò±Õ³«Âû°¡ |
³«Âû°¡À² |
À¯ÂûȽ¼ö |
|
|
|
|
|
|
 |
|