|
|
| ¼ÒÀçÁö |
¼¿ïƯº°½Ã ¿µµîÆ÷±¸ ´ë¸²µ¿ 717 ´ë¸²µ¿½Ö¿ëÇ÷¡Æ¼³Ñ-¿¡½º Á¦7Ãþ Á¦728È£
|
|
| »ç°Ç¹øÈ£ |
2025 Ÿ°æ 11750 |
¹°°Ç¹øÈ£ |
1
|
¹°°Ç¿ëµµ |
´Ù¼¼´ë,ºô¶ó |
| °¨Á¤Æò°¡¾× |
103,000,000¿ø |
°æ¸Å´ë»ó |
ÅäÁö ¹× °Ç¹°Àϰý ¸Å°¢ |
ÁøÇà»óÅ |
½Å°Ç |
| ÃÖÀúÀÔÂû°¡ |
(100%) 103,000,000¿ø
|
°Ç¹°¸éÀû |
17.48§³(5.29Æò) |
ÀÔÂû±âÀÏ |
2026.02.10(È) 10:00
(ÀÔÂû 7ÀÏÀü)
|
| ÀÔÂûº¸Áõ±Ý |
(10%) 10,300,000¿ø |
ÅäÁö¸éÀû |
5.23§³(1.58Æò)
|
À¯ÂûȽ¼ö |
0ȸ |
| ÀÔÂû¹ý¿ø |
¼¿ï³²ºÎÁö¹æ¹ý¿ø |
°æ¸Å¹æ¹ý |
|
¹°°ÇÁ¶È¸¼ö |
¿À´Ã: 1ȸ [´©Àû: 981ȸ]
|
| ¸»¼Ò±âÁØ | ÃÖ¼±¼øÀ§ ¼³Á¤ : 2025.09.01. °æ¸Å°³½Ã°áÁ¤ ¼³Á¤
|
|
|
|
|
|
|
|
|
|
|
°æ¸Å´ë»ó ¸ñ·Ï
|
|
| ±¸ºÐ |
¸ñ·Ï |
ÁÖ¼Ò |
±¸Á¶/¿ëµµ/´ëÁö±Ç |
ºñ°í |
´ëÁö±Ç
|
1 |
´ë¸²µ¿ 717 |
2314.9ºÐÀÇ 5.2323 |
5.2323§³ (1.58Æò)
|
°Ç¹°
|
1 |
´ë¸²µ¿ 717 |
Á¦7Ãþ Á¦728È£ ö±ÙÄÜÅ©¸®Æ®±¸Á¶ |
17.48§³ (5.29Æò)
|
|
|
|
2026-02-10
º¯°æ
|
(100%)
103,000,000¿ø
|
|
|
|
2026-02-10
ÁøÇà
|
(100%)
103,000,000¿ø
|
|
|
|
|
|
°¨Á¤Æò°¡¼ ¿ä¾à |
|
[À§Ä¡/ÁÖÀ§È¯°æ]
´ë»ó¹°°ÇÀº ¼¿ïƯº°½Ã ¿µµîÆ÷±¸ ´ë¸²µ¿ ¼ÒÀç ÁöÇÏö 2, 7È£¼± ""´ë¸²¿ª"" ºÏµ¿Ãø Àαٿ¡ ¼ÒÀçÇϸç, ÁÖÀ§´Â ´Ù¼¼´ëÁÖÅÃ, ±Ù¸°»ýȰ½Ã¼³ µîÀÌ ¼ÒÀçÇÏ´Â ÁÖ»óÁö´ë·Î¼ Á¦¹Ý ¿©°ÇÀº º¸Åë½ÃµÊ.
[±³Åë»óȲ]
´ë»ó¹°°Ç±îÁö Â÷·®ÃâÀÔÀÌ ¿ëÀÌÇϸç Àαٿ¡ ÁöÇÏö 2, 7È£¼± ""´ë¸²¿ª"" ¹× ³ë¼± ¹ö½ºÁ¤·ùÀåÀÌ ¼ÒÀçÇÏ´Â ¹Ù, Á¦¹Ý ±³Åë¿©°ÇÀº º¸ÅëÀÓ.
3)ÇüÅ ¹× ÀÌ¿ë»óÅÂ
-
4)ÀÎÁ¢ µµ·Î»óÅÂ
-
[ÅäÁöÀÌ¿ë°èȹ]
µµ½ÃÁö¿ª, Á¦2Á¾ÀϹÝÁÖ°ÅÁö¿ª °¡Ãà»çÀ°Á¦Çѱ¸¿ª((¿¹¿Ü : ¾Ö¿Ï ¹× ¹æ¹ü¿ë °¡Ãà)Áö¿ª°æÁ¦°ú ¹®ÀÇ)£¼°¡ÃàºÐ´¢ÀÇ °ü¸® ¹× À̿뿡 °üÇÑ ¹ý·ü£¾, Àå¾Ö¹°Á¦ÇÑÇ¥¸é±¸¿ª(ÁøÀÔ,ÀüÀÌ,¿øÃß,¼öÆòÇ¥¸éÁö¿ª)£¼°øÇ׽ü³¹ý£¾, ±³À°È¯°æº¸È£±¸¿ª(¼¼ºÎ»çÇ× : ³²ºÎ±³À°Ã»¿¡ ¹Ýµå½Ã È®ÀÎ ¿ä¸Á)£¼±³À°È¯°æ º¸È£¿¡ °üÇÑ ¹ý·ü£¾, ´ë°ø¹æ¾îÇùÁ¶±¸¿ª(À§Å¹°íµµ:ÇØ¹ß165m(Áö¹Ý+°ÇÃà+¿Áž µî),À°±º ¼öµµ¹æÀ§»ç·ÉºÎ(02-524-3146)°üÇÒ)£¼±º»ç±âÁö ¹× ±º»ç½Ã¼³ º¸È£¹ý£¾, °ú¹Ð¾ïÁ¦±Ç¿ª(¼¼ºÎ»çÇ× : ¼¿ï½Ãû µµ½Ã°èȹ°ú ¹®ÀÇ)£¼¼öµµ±ÇÁ¤ºñ°èȹ¹ý£¾ ÅäÁö°Å·¡°è¾à¿¡°üÇÑÇã°¡±¸¿ª((´ë»óÀÚ: ¿Ü±¹ÀÎ µî, ¿ëµµ: ´Üµ¶, ´Ù°¡±¸, ¾ÆÆÄÆ®, ¿¬¸³, ´Ù¼¼´ë, ÁöÁ¤±â°£: 2025.8.26.~2026.8.25.) )
6)Á¦½Ã¸ñ·Ï ¿ÜÀÇ ¹°°Ç
-
[°øºÎ¿ÍÀÇ Â÷ÀÌ]
-
[Âü°í»çÇ×]
-
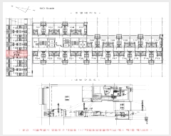
[°Ç¹°±¸Á¶]
ö±ÙÄÜÅ©¸®Æ®±¸Á¶ ö±ÙÄÜÅ©¸®Æ® ÁöºØ ÁöÇÏ4Ãþ/Áö»ó12Ãþ ³» Á¦7Ãþ Á¦728È£·Î¼,
¿Üº®: ¼®ÀçºÙÀÓ ¹× ¸ôÅ» À§ ÆäÀÎÆÃ ¸¶°¨ µî,
³»º®: ³»ºÎ ÀÎÅ׸®¾î ¸¶°¨ µî,
âȣ: ¼¦½Ãâȣ ¸¶°¨ µîÀÓ.
[ÀÌ¿ë»óÅÂ]
µµ½ÃÇü»ýȰÁÖÅÃ(¹æ1, ¿å½Ç1, Çö°ü, º¸ÀÏ·¯½Ç µî)À¸·Î ÀÌ¿ëÁßÀÓ.
[¼³ºñ³»¿ª]
±âº»ÀûÀÎ À§»ý¡¤±Þ¹è¼ö ¼³ºñ, ½Â°±â µîÀÇ ¼³ºñ°¡ µÇ¾îÀÖÀ½.
4)ºÎÇÕ¹° ¹× Á¾¹°
-
[°øºÎ¿ÍÀÇ Â÷ÀÌ]
-
[Âü°í»çÇ×]
-
[À§Ä¡/ÁÖÀ§È¯°æ]
´ë»ó¹°°ÇÀº ¼¿ïƯº°½Ã ¿µµîÆ÷±¸ ´ë¸²µ¿ ¼ÒÀç ÁöÇÏö 2, 7È£¼± ""´ë¸²¿ª"" ºÏµ¿Ãø Àαٿ¡ ¼ÒÀçÇϸç, ÁÖÀ§´Â ´Ù¼¼´ëÁÖÅÃ, ±Ù¸°»ýȰ½Ã¼³ µîÀÌ ¼ÒÀçÇÏ´Â ÁÖ»óÁö´ë·Î¼ Á¦¹Ý ¿©°ÇÀº º¸Åë½ÃµÊ.
[±³Åë»óȲ]
´ë»ó¹°°Ç±îÁö Â÷·®ÃâÀÔÀÌ ¿ëÀÌÇϸç Àαٿ¡ ÁöÇÏö 2, 7È£¼± ""´ë¸²¿ª"" ¹× ³ë¼± ¹ö½ºÁ¤·ùÀåÀÌ ¼ÒÀçÇÏ´Â ¹Ù, Á¦¹Ý ±³Åë¿©°ÇÀº º¸ÅëÀÓ.
[°Ç¹°±¸Á¶]
ö±ÙÄÜÅ©¸®Æ®±¸Á¶ ö±ÙÄÜÅ©¸®Æ® ÁöºØ ÁöÇÏ4Ãþ/Áö»ó12Ãþ ³» Á¦7Ãþ Á¦728È£·Î¼,
¿Üº®: ¼®ÀçºÙÀÓ ¹× ¸ôÅ» À§ ÆäÀÎÆÃ ¸¶°¨ µî,
³»º®: ³»ºÎ ÀÎÅ׸®¾î ¸¶°¨ µî,
âȣ: ¼¦½Ãâȣ ¸¶°¨ µîÀÓ.
[ÀÌ¿ë»óÅÂ]
µµ½ÃÇü»ýȰÁÖÅÃ(¹æ1, ¿å½Ç1, Çö°ü, º¸ÀÏ·¯½Ç µî)À¸·Î ÀÌ¿ëÁßÀÓ.
[¼³ºñ³»¿ª]
±âº»ÀûÀÎ À§»ý¡¤±Þ¹è¼ö ¼³ºñ, ½Â°±â µîÀÇ ¼³ºñ°¡ µÇ¾îÀÖÀ½.
[ÅäÁöÇü»ó/ÀÌ¿ë»óÅÂ]
-
7)ÀÎÁ¢ µµ·Î»óŵî
-
[ÅäÁöÀÌ¿ë°èȹ]
µµ½ÃÁö¿ª, Á¦2Á¾ÀϹÝÁÖ°ÅÁö¿ª °¡Ãà»çÀ°Á¦Çѱ¸¿ª((¿¹¿Ü : ¾Ö¿Ï ¹× ¹æ¹ü¿ë °¡Ãà)Áö¿ª°æÁ¦°ú ¹®ÀÇ)£¼°¡ÃàºÐ´¢ÀÇ °ü¸® ¹× À̿뿡 °üÇÑ ¹ý·ü£¾, Àå¾Ö¹°Á¦ÇÑÇ¥¸é±¸¿ª(ÁøÀÔ,ÀüÀÌ,¿øÃß,¼öÆòÇ¥¸éÁö¿ª)£¼°øÇ׽ü³¹ý£¾, ±³À°È¯°æº¸È£±¸¿ª(¼¼ºÎ»çÇ× : ³²ºÎ±³À°Ã»¿¡ ¹Ýµå½Ã È®ÀÎ ¿ä¸Á)£¼±³À°È¯°æ º¸È£¿¡ °üÇÑ ¹ý·ü£¾, ´ë°ø¹æ¾îÇùÁ¶±¸¿ª(À§Å¹°íµµ:ÇØ¹ß165m(Áö¹Ý+°ÇÃà+¿Áž µî),À°±º ¼öµµ¹æÀ§»ç·ÉºÎ(02-524-3146)°üÇÒ)£¼±º»ç±âÁö ¹× ±º»ç½Ã¼³ º¸È£¹ý£¾, °ú¹Ð¾ïÁ¦±Ç¿ª(¼¼ºÎ»çÇ× : ¼¿ï½Ãû µµ½Ã°èȹ°ú ¹®ÀÇ)£¼¼öµµ±ÇÁ¤ºñ°èȹ¹ý£¾ ÅäÁö°Å·¡°è¾à¿¡°üÇÑÇã°¡±¸¿ª((´ë»óÀÚ: ¿Ü±¹ÀÎ µî, ¿ëµµ: ´Üµ¶, ´Ù°¡±¸, ¾ÆÆÄÆ®, ¿¬¸³, ´Ù¼¼´ë, ÁöÁ¤±â°£: 2025.8.26.~2026.8.25.) )
[°øºÎ¿ÍÀÇ Â÷ÀÌ]
-
[Âü°í»çÇ×]
- |
|
|
°ÇÃ๰ÇöȲ |
|
|
|
| ¼ÒÀçÁö |
¼¿ïƯº°½Ã ¿µµîÆ÷±¸ ´ë¸²µ¿ 717¹øÁö |
| ´ëÁö¸éÀû |
2314.9§³(701.48Æò) |
¿¬¸éÀû |
17013.44§³(5155.59Æò) |
ÁÖ¿ëµµ |
°øµ¿ÁÖÅà |
| °ÇÃà¸éÀû |
1388.41§³(420.73Æò) |
¿ëÀû·ü»êÁ¤¿¬¸éÀû |
9259.18§³(2805.81Æò) |
Âø°øÀÏÀÚ |
2011.11.03 |
| °ÇÆóÀ² |
59.98% |
¿ëÀû·ü |
399.98% |
»ç¿ë½ÂÀÎÀÏÀÚ |
2013.06.28 |
| Áö»óÃþ¼ö |
12Ãþ |
ÁöÇÏÃþ¼ö |
4Ãþ |
±¸Á¶ |
ö±ÙÄÜÅ©¸®Æ®±¸Á¶ |
°ÇÃ๰Ãþº°ÇöȲ [º¸±â]| Ãþº° | ±¸Á¶ | ¿ëµµ | ¸éÀû | | 1Ãþ | ö±ÙÄÜÅ©¸®Æ®±¸Á¶ | °øµ¿ÁÖÅÃ(ELEV.Ȧ,°è´Ü½Ç) | 112.77§³ (34.17Æò) | | 1Ãþ | ö±ÙÄÜÅ©¸®Æ®±¸Á¶ | MDF,¹æÀç½Ç | 56.03§³ (16.98Æò) | | 1Ãþ | ö±ÙÄÜÅ©¸®Æ®±¸Á¶ | ÆÇ¸Å½Ã¼³ | 1174.32§³ (355.85Æò) | | 2Ãþ | ö±ÙÄÜÅ©¸®Æ®±¸Á¶ | Áֹΰøµ¿½Ã¼³ | 137.5§³ (41.67Æò) | | 2Ãþ | ö±ÙÄÜÅ©¸®Æ®±¸Á¶ | °øµ¿ÁÖÅÃ(µµ½ÃÇü»ýȰÁÖÅÃ-30¼¼´ë) | 794.29§³ (240.69Æò) | | 3Ãþ | ö±ÙÄÜÅ©¸®Æ®±¸Á¶ | °øµ¿ÁÖÅÃ(µµ½ÃÇü»ýȰÁÖÅÃ-33¼¼´ë) | 849.01§³ (257.28Æò) | | 4Ãþ | ö±ÙÄÜÅ©¸®Æ®±¸Á¶ | °øµ¿ÁÖÅÃ(µµ½ÃÇü»ýȰÁÖÅÃ-33¼¼´ë) | 849.01§³ (257.28Æò) | | 5Ãþ | ö±ÙÄÜÅ©¸®Æ®±¸Á¶ | °øµ¿ÁÖÅÃ(µµ½ÃÇü»ýȰÁÖÅÃ-33¼¼´ë) | 849.01§³ (257.28Æò) | | 6Ãþ | ö±ÙÄÜÅ©¸®Æ®±¸Á¶ | °øµ¿ÁÖÅÃ(µµ½ÃÇü»ýȰÁÖÅÃ-33¼¼´ë) | 849.01§³ (257.28Æò) | | 7Ãþ | ö±ÙÄÜÅ©¸®Æ®±¸Á¶ | °øµ¿ÁÖÅÃ(µµ½ÃÇü»ýȰÁÖÅÃ-32¼¼´ë) | 818.39§³ (248Æò) | | 8Ãþ | ö±ÙÄÜÅ©¸®Æ®±¸Á¶ | °øµ¿ÁÖÅÃ(µµ½ÃÇü»ýȰÁÖÅÃ-31¼¼´ë) | 752.57§³ (228.05Æò) | | 9Ãþ | ö±ÙÄÜÅ©¸®Æ®±¸Á¶ | °øµ¿ÁÖÅÃ(µµ½ÃÇü»ýȰÁÖÅÃ-19¼¼´ë) | 686.19§³ (207.94Æò) | | 10Ãþ | ö±ÙÄÜÅ©¸®Æ®±¸Á¶ | °øµ¿ÁÖÅÃ(µµ½ÃÇü»ýȰÁÖÅÃ-19¼¼´ë) | 500.41§³ (151.64Æò) | | 11Ãþ | ö±ÙÄÜÅ©¸®Æ®±¸Á¶ | °øµ¿ÁÖÅÃ(µµ½ÃÇü»ýȰÁÖÅÃ-19¼¼´ë) | 500.41§³ (151.64Æò) | | 12Ãþ | ö±ÙÄÜÅ©¸®Æ®±¸Á¶ | °øµ¿ÁÖÅÃ(µµ½ÃÇü»ýȰÁÖÅÃ-9¼¼´ë) | 330.26§³ (100.08Æò) | | ¿Áž1Ãþ | ö±ÙÄÜÅ©¸®Æ®±¸Á¶ | °øµ¿ÁÖÅÃ(½Â°±âž,°è´Üž) | 37.92§³ (11.49Æò) | | ¿Áž2Ãþ | ö±ÙÄÜÅ©¸®Æ®±¸Á¶ | °øµ¿ÁÖÅÃ(½Â°±âž,°è´Üž) | 62.88§³ (19.05Æò) | | Áö1 | ö±ÙÄÜÅ©¸®Æ®±¸Á¶ | ÆÇ¸Å½Ã¼³ | 1692.09§³ (512.75Æò) | | Áö1 | ö±ÙÄÜÅ©¸®Æ®±¸Á¶ | ÁÖÂ÷Àå | 124.08§³ (37.6Æò) | | Áö1 | ö±ÙÄÜÅ©¸®Æ®±¸Á¶ | °øµ¿ÁÖÅÃ(ELEV.Ȧ,°è´Ü½Ç) | 36.21§³ (10.97Æò) | | Áö2 | ö±ÙÄÜÅ©¸®Æ®±¸Á¶ | ÆÇ¸Å½Ã¼³ | 366.83§³ (111.16Æò) | | Áö2 | ö±ÙÄÜÅ©¸®Æ®±¸Á¶ | °øµ¿ÁÖÅÃ(ELEV.Ȧ,°è´Ü½Ç) | 66.11§³ (20.03Æò) | | Áö2 | ö±ÙÄÜÅ©¸®Æ®±¸Á¶ | ÁÖÂ÷Àå | 1593.7§³ (482.94Æò) | | Áö3 | ö±ÙÄÜÅ©¸®Æ®±¸Á¶ | ÁÖÂ÷Àå | 1954.42§³ (592.25Æò) | | Áö3 | ö±ÙÄÜÅ©¸®Æ®±¸Á¶ | °øµ¿ÁÖÅÃ(ELEV.Ȧ,°è´Ü½Ç) | 66.11§³ (20.03Æò) | | Áö4 | ö±ÙÄÜÅ©¸®Æ®±¸Á¶ | °øµ¿ÁÖÅÃ(ELEV.Ȧ,°è´Ü½Ç) | 66.11§³ (20.03Æò) | | Áö4 | ö±ÙÄÜÅ©¸®Æ®±¸Á¶ | ±â°è,Àü±â½Ç | 501.28§³ (151.9Æò) | | Áö4 | ö±ÙÄÜÅ©¸®Æ®±¸Á¶ | ÁÖÂ÷Àå | 1287.32§³ (390.1Æò) |
|
|
|
|
|
|
|
|
|
¸éÀû(§³), ±Ý¾×(¸¸¿ø)
| °è¾àÀÏ | ±âÁØ | °Ç¹°¸íĪ | Ãþ | ¿¬¸éÀû | ´ëÁö¸éÀû | °Å·¡±Ý¾× | °ÇÃà³âµµ | | °Å·¡³»¿ªÀÌ ¾ø½À´Ï´Ù. |
| °è¾àÀÏ | ±âÁØ | °Ç¹°¸íĪ | Ãþ | ¿¬¸éÀû | º¸Áõ±Ý | ¿ù¼¼ | °ÇÃà³âµµ | | 2026.01.18 | Àü¼¼ | À¯¼ººô¶ó°¡,³ªµ¿(863-9) | -1 | 32.64 | 4,500 | 0 | 1992 | | 2026.01.15 | ¿ù¼¼ | ¿ì¿µÇÏÀ̺ô | 5 | 46.29 | 2,000 | 100 | 2006 | | 2026.01.10 | ¿ù¼¼ | (1116-19) | 3 | 53.94 | 5,000 | 60 | 1997 | | 2026.01.09 | ¿ù¼¼ | Çϳªº§¶ó¸®¿ò | 2 | 29.66 | 1,000 | 105 | 2017 | | 2026.01.08 | ¿ù¼¼ | ½ãÇϿ콺 | 3 | 14.66 | 8,500 | 12 | 2012 | | 2026.01.07 | ¿ù¼¼ | DIALOGUE663 | 3 | 25.16 | 2,257 | 23 | 2021 | | 2026.01.06 | ¿ù¼¼ | DIALOGUE663 | 5 | 25.18 | 2,238 | 23 | 2021 | | 2026.01.06 | ¿ù¼¼ | DIALOGUE663 | 6 | 25.03 | 2,090 | 22 | 2021 | | 2026.01.05 | Àü¼¼ | Æ®À©Å¬ºô | 4 | 29.16 | 18,000 | 0 | 2023 | | 2026.01.05 | Àü¼¼ | Æ®À©Å¬ºô | 4 | 29.16 | 18,000 | 0 | 2023 | | 2026.01.03 | ¿ù¼¼ | È«Áøºôµù¿ø·ë | 3 | 19.26 | 500 | 54 | 2013 | | 2026.01.03 | Àü¼¼ | ÇØ¸¶·ç | 2 | 29.71 | 20,000 | 0 | 2016 | | 2026.01.03 | ¿ù¼¼ | È«Áøºôµù¿ø·ë | 3 | 19.26 | 500 | 54 | 2013 | | 2026.01.03 | ¿ù¼¼ | Çѽºô¶óÆ®Aµ¿(1109-8) | 3 | 43.56 | 3,000 | 80 | 1994 | | 2026.01.01 | ¿ù¼¼ | ½Ã±×´Ïó732 | 5 | 35.91 | 5,345 | 22 | 2023 | | 2025.12.22 | ¿ù¼¼ | (1111-5) | 1 | 31.84 | 500 | 70 | 1994 | | 2025.12.19 | ¿ù¼¼ | (1111-0) | 3 | 22.49 | 4,000 | 25 | 1994 | | 2025.12.17 | ¿ù¼¼ | ¹Ì·¡ÇÏÀÌÃ÷ | 3 | 25.42 | 100 | 41 | 2025 | | 2025.12.17 | ¿ù¼¼ | ¹Ì·¡ÇÏÀÌÃ÷ | 4 | 28.12 | 100 | 44 | 2025 | | 2025.12.17 | ¿ù¼¼ | ¹Ì·¡ÇÏÀÌÃ÷ | 2 | 28.59 | 100 | 44 | 2025 | | 2025.12.17 | ¿ù¼¼ | ¹Ì·¡ÇÏÀÌÃ÷ | 5 | 25.51 | 100 | 41 | 2025 | | 2025.12.17 | ¿ù¼¼ | ¹Ì·¡ÇÏÀÌÃ÷ | 2 | 25.42 | 100 | 41 | 2025 | | 2025.12.17 | ¿ù¼¼ | ¹Ì·¡ÇÏÀÌÃ÷ | 4 | 27.3 | 100 | 43 | 2025 | | 2025.12.17 | ¿ù¼¼ | ¹Ì·¡ÇÏÀÌÃ÷ | 4 | 25.42 | 100 | 41 | 2025 | | 2025.12.17 | ¿ù¼¼ | ¹Ì·¡ÇÏÀÌÃ÷ | 3 | 27.3 | 100 | 43 | 2025 | | 2025.12.17 | ¿ù¼¼ | ¹Ì·¡ÇÏÀÌÃ÷ | 3 | 28.12 | 100 | 44 | 2025 | | 2025.12.17 | ¿ù¼¼ | ¹Ì·¡ÇÏÀÌÃ÷ | 3 | 28.59 | 100 | 44 | 2025 | | 2025.12.17 | ¿ù¼¼ | ¹Ì·¡ÇÏÀÌÃ÷ | 4 | 25.51 | 100 | 41 | 2025 | | 2025.12.17 | ¿ù¼¼ | ¹Ì·¡ÇÏÀÌÃ÷ | 3 | 25.51 | 100 | 41 | 2025 | | 2025.12.17 | ¿ù¼¼ | (1111-7) | 1 | 54 | 800 | 40 | 1994 | | 2025.12.17 | ¿ù¼¼ | Ebenezer(¿¡º¥¿¡¼¿) | 3 | 13.42 | 2,000 | 42 | 2012 | | 2025.12.17 | ¿ù¼¼ | ¹Ì·¡ÇÏÀÌÃ÷ | 5 | 25.42 | 100 | 41 | 2025 | | 2025.12.17 | ¿ù¼¼ | ¹Ì·¡ÇÏÀÌÃ÷ | 2 | 28.12 | 100 | 44 | 2025 | | 2025.12.17 | ¿ù¼¼ | ¹Ì·¡ÇÏÀÌÃ÷ | 2 | 25.51 | 100 | 41 | 2025 | | 2025.12.17 | ¿ù¼¼ | ¹Ì·¡ÇÏÀÌÃ÷ | 5 | 28.12 | 100 | 44 | 2025 | | 2025.12.17 | ¿ù¼¼ | ¹Ì·¡ÇÏÀÌÃ÷ | 5 | 28.59 | 100 | 44 | 2025 | | 2025.12.17 | ¿ù¼¼ | ¹Ì·¡ÇÏÀÌÃ÷ | 5 | 27.3 | 100 | 43 | 2025 | | 2025.12.16 | Àü¼¼ | ¸Þ¸£ÇîÇϿ콺 | 2 | 42.54 | 26,000 | 0 | 2017 | | 2025.12.13 | Àü¼¼ | »þÀκô | 5 | 26.73 | 25,000 | 0 | 2025 | | 2025.12.12 | ¿ù¼¼ | Çϳªºô¶ó(1116-4) | 4 | 59.16 | 13,000 | 30 | 1997 | | 2025.12.11 | Àü¼¼ | Çö´ë±×¸°ºô¶óA,Bµ¿ | 1 | 68.94 | 19,000 | 0 | 1986 | | 2025.12.11 | Àü¼¼ | (1087-40) | 1 | 61.49 | 17,000 | 0 | 1986 | | 2025.12.10 | ¸Å¸Å | (990-25) | 2 | 41.58 | 33,000 | | 2015 | | 2025.12.10 | Àü¼¼ | SKEij½½ | 4 | 29.91 | 24,800 | 0 | 2019 | | 2025.12.10 | ¿ù¼¼ | żºÆÄũŸ¿î | 3 | 29.92 | 4,095 | 42 | 2025 | | 2025.12.10 | ¿ù¼¼ | żºÆÄũŸ¿î | 3 | 42.087 | 100 | 36 | 2025 | | 2025.12.09 | ¸Å¸Å | ±Ý°ºô¶ó16µ¿ | 2 | 49.37 | 32,000 | | 1987 | | 2025.12.09 | ¿ù¼¼ | ´ë¸²ÇÏÀÌÃ÷(1081-84) | 2 | 37.1 | 2,729 | 28 | 2023 | | 2025.12.09 | ¿ù¼¼ | żºÆÄũŸ¿î | 2 | 38.003 | 2,709 | 28 | 2025 | | 2025.12.09 | ¿ù¼¼ | ´ë¸²ÇÏÀÌÃ÷(1081-84) | 2 | 37.1 | 1,091 | 32 | 2023 | | 2025.12.09 | ¿ù¼¼ | Çöµµºô¸®ÁöVII | 2 | 37.52 | 5,613 | 58 | 2023 | | 2025.12.09 | ¿ù¼¼ | żºÆÄũŸ¿î | 4 | 29.757 | 100 | 30 | 2025 | | 2025.12.09 | ¿ù¼¼ | żºÆÄũŸ¿î | 6 | 29.92 | 4,140 | 43 | 2025 | | 2025.12.09 | ¿ù¼¼ | żºÆÄũŸ¿î | 2 | 38.003 | 1,083 | 31 | 2025 | | 2025.12.08 | ¿ù¼¼ | Çöµµºô¸®Áö¥· | 2 | 37.26 | 5,383 | 55 | 2023 | | 2025.12.08 | ¿ù¼¼ | µ¥¿¡ÀÌÄ¡´ë¸²4Â÷ | 6 | 29.97 | 100 | 49 | 2020 | | 2025.12.08 | ¿ù¼¼ | żºÆÄũŸ¿î | 5 | 36.95 | 2,826 | 29 | 2025 | | 2025.12.08 | ¿ù¼¼ | żºÆÄũŸ¿î | 2 | 29.92 | 2,412 | 25 | 2025 | | 2025.12.08 | ¿ù¼¼ | żºÆÄũŸ¿î | 4 | 35.31 | 100 | 32 | 2025 | | 2025.12.08 | ¿ù¼¼ | żºÆÄũŸ¿î | 3 | 35.31 | 2,538 | 26 | 2025 | | 2025.12.08 | ¿ù¼¼ | żºÆÄũŸ¿î | 2 | 35.31 | 100 | 31 | 2025 | | 2025.12.08 | ¿ù¼¼ | żºÆÄũŸ¿î | 4 | 38.003 | 100 | 34 | 2025 | | 2025.12.08 | ¿ù¼¼ | żºÆÄũŸ¿î | 5 | 28.118 | 3,690 | 38 | 2025 | | 2025.12.08 | ¿ù¼¼ | żºÆÄũŸ¿î | 3 | 38.003 | 2,763 | 28 | 2025 | | 2025.12.08 | ¿ù¼¼ | żºÆÄũŸ¿î | 2 | 29.757 | 200 | 49 | 2025 | | 2025.12.06 | ¸Å¸Å | ¹Ì·¡½ºÀ§Æ®ÇϿ콺µðµ¿ | 4 | 29.58 | 30,500 | | 2015 | | 2025.12.06 | Àü¼¼ | (851-76) | 2 | 48.46 | 12,000 | 0 | 1976 | | 2025.12.05 | ¿ù¼¼ | µ¿¾ç½ºÀ§Æ®ºô | 2 | 18.96 | 500 | 51 | 2011 | | 2025.12.05 | ¸Å¸Å | ¿ì¼º¾ÆÆ®ºô | 5 | 23.82 | 28,000 | | 2016 | | 2025.12.05 | Àü¼¼ | (990-25) | 2 | 41.58 | 17,000 | 0 | 2015 | | 2025.12.05 | ¿ù¼¼ | ·¹À̳ª | 2 | 29.84 | 3,000 | 70 | 2014 | | 2025.12.03 | Àü¼¼ | ´ë¼ºÆÓ¸®½º | 2 | 20.33 | 6,000 | 0 | 2012 | | 2025.11.30 | ¿ù¼¼ | ½ãÇϿ콺 | 3 | 14.66 | 8,500 | 14 | 2012 | | 2025.11.30 | ¸Å¸Å | ´ë¸²Çϳª¾ÆÆ®ºô103µ¿(1117-2) | 4 | 56.89 | 28,200 | | 2000 | | 2025.11.28 | ¸Å¸Å | ÆÓ¸®½ºÄ«¿îƼ | 4 | 36.4 | 36,000 | | 2013 | | 2025.11.28 | ¿ù¼¼ | º¸¿øºô¶ó(733-0) | 3 | 74.965 | 4,000 | 110 | 2002 | | 2025.11.26 | ¿ù¼¼ | ½ãÇϿ콺 | 2 | 14.22 | 5,000 | 26 | 2012 | | 2025.11.24 | Àü¼¼ | Çý·æºôµù | 3 | 29.25 | 18,400 | 0 | 2013 | | 2025.11.24 | ¿ù¼¼ | ½º¸¶Æ®ºô | 2 | 17.01 | 500 | 49 | 2012 | | 2025.11.21 | ¸Å¸Å | ¼±»þÀθ®Ä¡ºô | 2 | 29.73 | 36,000 | | 2023 | | 2025.11.20 | Àü¼¼ | ´ë¸²ÆÓ¸®½º | 2 | 28.28 | 20,000 | 0 | 2019 | | 2025.11.19 | ¿ù¼¼ | ½Ã±×´Ïó732 | 3 | 32.4 | 4,685 | 20 | 2023 | | 2025.11.17 | Àü¼¼ | ÇѴٿøíÁø | 5 | 24.15 | 9,950 | 0 | 2014 | | 2025.11.16 | Àü¼¼ | Çö´ë±×¸°ºô¶óA,Bµ¿ | 2 | 68.94 | 20,000 | 0 | 1986 | | 2025.11.16 | Àü¼¼ | Çö´ë±×¸°ºô¶óA,Bµ¿ | 2 | 68.94 | 20,000 | 0 | 1986 | | 2025.11.15 | ¿ù¼¼ | °Ç¿µÅ¸¿ö | 5 | 19.125 | 2,000 | 55 | 2012 | | 2025.11.15 | ¿ù¼¼ | °Ç¿µÅ¸¿ö | 5 | 19.125 | 2,000 | 49 | 2012 | | 2025.11.14 | ¸Å¸Å | Çö´ë±×¸°ºô¶óA,Bµ¿ | 1 | 68.94 | 58,000 | | 1986 | | 2025.11.14 | ¿ù¼¼ | ½ÃƼÇϿ콺ºôµù | 4 | 26.93 | 5,000 | 83 | 2022 | | 2025.11.13 | Àü¼¼ | SKEij½½ | 3 | 27.01 | 22,000 | 0 | 2019 | | 2025.11.13 | ¿ù¼¼ | ÇüÁöÇÏÀÌÃ÷ | 2 | 38.59 | 3,168 | 33 | 2022 | | 2025.11.12 | ¿ù¼¼ | ½Å¿ë | 4 | 17.76 | 1,000 | 46 | 2012 | | 2025.11.12 | ¿ù¼¼ | ¹Ì½ÂÇÏÀÌÃ÷Cµ¿(1116-33) | 4 | 52.32 | 17,000 | 8 | 1998 | | 2025.11.10 | Àü¼¼ | ³¾ÆÆ®ºô(1075-67) | 2 | 52.36 | 17,800 | 0 | 2003 | | 2025.11.08 | Àü¼¼ | (1116-24) | 2 | 56.47 | 20,000 | 0 | 1997 | | 2025.11.08 | ¿ù¼¼ | ½Å¿ë | 3 | 13.76 | 1,000 | 43 | 2012 | | 2025.11.07 | Àü¼¼ | ³¾ÆÆ®ºô(1075-67) | 3 | 52.36 | 18,000 | 0 | 2003 | | 2025.11.07 | Àü¼¼ | SKEij½½ | 4 | 27.19 | 20,610 | 0 | 2019 | | 2025.11.06 | Àü¼¼ | ¼ºÁÖºô¶óBµ¿(704-6) | 3 | 69.63 | 25,000 | 0 | 2000 | | 2025.11.05 | ¿ù¼¼ | ´ë¸²ºô¶ó | -1 | 35.66 | 1,000 | 50 | 1986 | | 2025.11.05 | ¿ù¼¼ | ½Ö¿ëÇÁ¶óÀÓ | 4 | 32.64 | 20,000 | 20 | 2015 | | 2025.11.03 | ¸Å¸Å | Çϳªº§¶ó¸®¿ò | 3 | 29.66 | 23,000 | | 2017 | | 2025.11.03 | ¿ù¼¼ | (1118-8) | 3 | 32.94 | 3,000 | 60 | 2000 | | 2025.11.03 | ¿ù¼¼ | ½Ã±×´Ïó732 | 2 | 28.18 | 3,965 | 17 | 2023 | | 2025.11.02 | Àü¼¼ | ½Å´ë¸²¾ÆÆ®ºô(976-3) | 5 | 75.66 | 24,000 | 0 | 2003 | | 2025.11.01 | ¿ù¼¼ | (1111-0) | 1 | 22.49 | 1,000 | 50 | 1994 | | 2025.11.01 | Àü¼¼ | (1116-19) | -1 | 50.16 | 10,000 | 0 | 1997 | | 2025.10.31 | ¿ù¼¼ | Çý·æºôµù | 4 | 29.25 | 13,000 | 27 | 2013 | | 2025.10.31 | ¿ù¼¼ | Çϳª¼¼ÀνºÅæ | 4 | 29.53 | 3,000 | 95 | 2016 | | 2025.10.30 | Àü¼¼ | º¸¶÷ÇÏÀ̺ô | 5 | 42.66 | 17,000 | 0 | 2011 | | 2025.10.30 | Àü¼¼ | º¸¶÷ÇÏÀ̺ô | 5 | 42.66 | 17,000 | 0 | 2011 | | 2025.10.30 | ¸Å¸Å | ¼º°ÄÉ·»½Ã¾Æ | 5 | 29.97 | 29,500 | | 2020 | | 2025.10.30 | ¿ù¼¼ | ÇÁ·ÒÇÏ¿ì¡ | 3 | 49.99 | 4,482 | 46 | 2022 | | 2025.10.29 | ¿ù¼¼ | ´ë¸²¸ÞÆ®·ÎÅ¥ºê | 3 | 12.48 | 6,000 | 10 | 2012 | | 2025.10.29 | ¿ù¼¼ | Çϳªº§¶ó¸®¿ò | 2 | 26.92 | 1,000 | 100 | 2017 | | 2025.10.27 | Àü¼¼ | µµ¿¬ºô¶ó | 3 | 50.14 | 25,000 | 0 | 2008 | | 2025.10.27 | Àü¼¼ | ¹é»êº£½ºÆ®ºô | 5 | 29.98 | 15,000 | 0 | 2012 | | 2025.10.26 | ¿ù¼¼ | º¦¿¤ºô¶ó(1055-8) | 1 | 36.72 | 3,000 | 60 | 1986 | | 2025.10.24 | Àü¼¼ | ÇØÇÇÀ£Áîºô | 5 | 31.905 | 15,750 | 0 | 2013 | | 2025.10.24 | Àü¼¼ | ¼º¿øÇÏÀÌÃ÷ | 4 | 35.03 | 20,000 | 0 | 2011 | | 2025.10.24 | Àü¼¼ | ÇØÇÇÀ£Áîºô | 5 | 31.905 | 16,000 | 0 | 2013 | | 2025.10.24 | Àü¼¼ | ÇØÇÇÀ£Áîºô | 5 | 31.905 | 16,000 | 0 | 2013 | | 2025.10.23 | ¿ù¼¼ | ¼±¸°ºô | 2 | 14.05 | 500 | 47 | 2015 | | 2025.10.23 | ¸Å¸Å | ´õÇູÇÑÁý2 | 3 | 53.93 | 32,000 | | 2015 | | 2025.10.23 | ¿ù¼¼ | µå¸²Ä³½½ | 3 | 26.46 | 300 | 48 | 2017 | | 2025.10.21 | ¿ù¼¼ | BKºô¶óÆ® | 4 | 49.72 | 3,838 | 40 | 2023 | | 2025.10.19 | ¿ù¼¼ | ¼º¿ìºô¶ó(682-10) | 2 | 47.01 | 6,000 | 60 | 1986 | | 2025.10.18 | ¸Å¸Å | ¿ì¿µÃ¤¿òºô | 4 | 45.45 | 44,200 | | 2013 | | 2025.10.18 | ¸Å¸Å | ´ë¸²ÆÓ¸®½º | 2 | 28.28 | 23,000 | | 2019 | | 2025.10.18 | ¸Å¸Å | Æ®À©Å¬ºô | 3 | 42.33 | 42,000 | | 2023 | | 2025.10.17 | ¿ù¼¼ | Ȳ±Ýº½ | 2 | 19.59 | 500 | 50 | 2015 | | 2025.10.17 | ¸Å¸Å | (993-29) | -1 | 40.6 | 27,000 | | 1986 | | 2025.10.16 | Àü¼¼ | ´ëµ¿¸Ç¼ð(832-2) | 1 | 79.48 | 25,000 | 0 | 1984 | | 2025.10.16 | Àü¼¼ | ½Å´ë¸²¾ÆÆ®ºô(976-3) | 5 | 75.66 | 23,000 | 0 | 2003 | | 2025.10.15 | Àü¼¼ | ³¾ÆÆ®ºô(1075-67) | 3 | 41.73 | 14,900 | 0 | 2003 | | 2025.10.15 | Àü¼¼ | ÆÓ¸®½ºÄ«¿îƼ | 4 | 34.72 | 19,300 | 0 | 2013 | | 2025.10.15 | ¿ù¼¼ | °Ç¿µÅ¸¿ö | 7 | 19.125 | 2,500 | 60 | 2012 | | 2025.10.14 | ¸Å¸Å | (1116-8) | 2 | 36.81 | 20,000 | | 1997 | | 2025.10.14 | ¿ù¼¼ | Çϳªºô¸®Áö(1116-1) | 4 | 58.3 | 1,000 | 85 | 2001 | | 2025.10.14 | ¿ù¼¼ | ¼¼¿îºôµù(´ë¸²°í½ÃÅÚ) | 5 | 46.06 | 9,900 | 30 | 2002 | | 2025.10.14 | Àü¼¼ | Çϳª¼¼ÀνºÅæ | 5 | 35.04 | 24,000 | 0 | 2016 | | 2025.10.11 | ¿ù¼¼ | (906-40) | 2 | 15.19 | 7,000 | 3 | 2013 | | 2025.10.11 | ¿ù¼¼ | ´ë¸²Çϳª¾ÆÆ®ºô101µ¿(1117-0) | 2 | 57.21 | 3,000 | 90 | 2000 | | 2025.10.11 | Àü¼¼ | (906-40) | 2 | 16.8 | 8,000 | 0 | 2013 | | 2025.10.11 | Àü¼¼ | (906-40) | 2 | 16.8 | 8,000 | 0 | 2013 | | 2025.10.11 | ¸Å¸Å | ÆÄÅ©¿¡ºñ´ººñµ¿ | 4 | 36.79 | 35,500 | | 2018 | | 2025.10.10 | ¿ù¼¼ | °Ç¿µÅ¸¿ö | 7 | 19.125 | 2,500 | 60 | 2012 | | 2025.10.10 | ¸Å¸Å | (906-61) | 1 | 31.05 | 19,270 | | 1987 | | 2025.10.08 | Àü¼¼ | ½Å´ë¸²¾ÆÆ®ºô(976-3) | 5 | 75.66 | 23,000 | 0 | 2003 | | 2025.10.04 | Àü¼¼ | (1111-8) | 1 | 40.05 | 14,000 | 0 | 1994 | | 2025.10.02 | ¸Å¸Å | µµ½Å¿¬¸³´Ùµ¿(685-17) | 1 | 41.28 | 13,500 | | 1986 | | 2025.10.01 | Àü¼¼ | (605-33) | -1 | 26.91 | 3,300 | 0 | 1991 | | 2025.10.01 | ¿ù¼¼ | µå¸²Å¸¿îB | 5 | 27.37 | 2,000 | 100 | 2018 | | 2025.09.30 | Àü¼¼ | ¿¡µ§Å¸¿ö | 5 | 43.45 | 18,000 | 0 | 2018 | | 2025.09.30 | ¿ù¼¼ | ´Ù¿Âij½½ | 4 | 34.03 | 3,000 | 125 | 2023 | | 2025.09.30 | ¿ù¼¼ | ´ÙÀ̾ó·Î±×737 | 5 | 22.23 | 100 | 41 | 2022 | | 2025.09.28 | ¸Å¸Å | ´Ù¼Øºô | 4 | 28.05 | 38,000 | | 2023 | | 2025.09.28 | ¸Å¸Å | ¿ì¿µÃ¤¿òºô(101µ¿) | 4 | 46.01 | 35,400 | | 2015 | | 2025.09.27 | ¿ù¼¼ | õ¿ëºô¶ó | 2 | 65.1 | 5,000 | 75 | 2006 | | 2025.09.27 | ¿ù¼¼ | õ¿ëºô¶ó | 2 | 65.1 | 5,000 | 75 | 2006 | | 2025.09.26 | ¿ù¼¼ | ¿¡½ºÄÉÀÌÀ̱׶ûºô | 5 | 26.51 | 3,000 | 120 | 2022 | | 2025.09.25 | ¿ù¼¼ | (992-21) | 1 | 33.94 | 5,500 | 20 | 1986 | | 2025.09.24 | ¿ù¼¼ | ÁÖ¿ëºôµù | 4 | 19.17 | 500 | 46 | 2013 | | 2025.09.23 | ¿ù¼¼ | ÇØ¸¶·ç | 5 | 23.58 | 500 | 60 | 2016 | | 2025.09.23 | ¿ù¼¼ | (1116-11) | 3 | 47.31 | 12,000 | 10 | 1997 | | 2025.09.23 | Àü¼¼ | ·¹À̳ª | 5 | 29.84 | 18,000 | 0 | 2014 | | 2025.09.23 | Àü¼¼ | Ebenezer(¿¡º¥¿¡¼¿) | 3 | 13.12 | 5,500 | 0 | 2012 | | 2025.09.22 | ¿ù¼¼ | Çϳª¼¼ÀνºÅæ | 4 | 64.24 | 5,000 | 85 | 2016 | | 2025.09.21 | Àü¼¼ | Çö´ë±×¸°ºô¶óA,Bµ¿ | 2 | 68.94 | 15,000 | 0 | 1986 | | 2025.09.19 | ¸Å¸Å | µµ½Å¿¬¸³(842-1) | 2 | 53.55 | 18,000 | | 1977 | | 2025.09.15 | Àü¼¼ | º¸·Éºô¶ó¹Ùµ¿ | 2 | 44.99 | 15,000 | 0 | 1987 | | 2025.09.14 | ¿ù¼¼ | (1116-45) | 1 | 56.95 | 3,000 | 80 | 1998 | | 2025.09.13 | ¿ù¼¼ | (1111-0) | 1 | 22.49 | 1,000 | 50 | 1994 | | 2025.09.13 | Àü¼¼ | ¹Ì·¡½ºÀ§Æ®ÇϿ콺¾¾µ¿ | 5 | 55.14 | 26,400 | 0 | 2015 | | 2025.09.13 | ¿ù¼¼ | È«Áøºôµù¿ø·ë | 3 | 19.26 | 500 | 55 | 2013 | | 2025.09.13 | ¿ù¼¼ | SKEij½½ | 2 | 27.19 | 21,500 | 4 | 2019 | | 2025.09.12 | Àü¼¼ | ½Ö¿ëÇÁ¶óÀÓA | 2 | 34.88 | 24,300 | 0 | 2014 | | 2025.09.12 | ¿ù¼¼ | Æç¸®Ã¼ | 2 | 25.18 | 1,000 | 50 | 2012 | | 2025.09.12 | ¿ù¼¼ | ÇØÇÇÀ£Áîºô | 3 | 17.05 | 1,000 | 55 | 2013 | | 2025.09.10 | Àü¼¼ | ¾ç¸í¾ÆÆ®ºô(858-27) | 2 | 43.71 | 17,500 | 0 | 2002 | | 2025.09.09 | ¿ù¼¼ | À¯¼ººô¶ó°¡,³ªµ¿(863-9) | 3 | 32.64 | 12,500 | 15 | 1992 | | 2025.09.09 | Àü¼¼ | Çö´ë±×¸°ºô¶óA,Bµ¿ | 2 | 68.94 | 21,000 | 0 | 1986 | | 2025.09.09 | ¿ù¼¼ | µå¸²Ä³½½ | 4 | 26.85 | 1,000 | 65 | 2017 | | 2025.09.09 | Àü¼¼ | Çö´ë±×¸°ºô¶óA,Bµ¿ | 2 | 68.94 | 21,000 | 0 | 1986 | | 2025.09.09 | Àü¼¼ | ´õÇູÇÑÁý | 3 | 45.16 | 23,000 | 0 | 2013 | | 2025.09.06 | ¿ù¼¼ | µ¿¾ç½ºÀ§Æ®ºô | 4 | 14.42 | 500 | 46 | 2011 | | 2025.09.05 | ¿ù¼¼ | µ¿¾ç½ºÀ§Æ®ºô | 3 | 18.5 | 500 | 46 | 2011 | | 2025.09.05 | Àü¼¼ | (1116-19) | 2 | 49.56 | 17,000 | 0 | 1997 | | 2025.09.04 | ¿ù¼¼ | ÇØÇÇÀ£Áîºô | 6 | 17.05 | 1,000 | 55 | 2013 | | 2025.09.03 | Àü¼¼ | ÁÖ¿µÆÄÅ©ºô | 2 | 23.968 | 17,800 | 0 | 2015 | | 2025.09.03 | ¿ù¼¼ | À¯¼ººô¶ó°¡,³ªµ¿(863-9) | 2 | 32.64 | 3,000 | 55 | 1992 | | 2025.09.03 | Àü¼¼ | (1116-18) | 2 | 46.64 | 16,000 | 0 | 1997 | | 2025.09.02 | ¸Å¸Å | ½Ö¿ëÇÁ¶óÀÓB | 2 | 34.76 | 23,800 | | 2014 | | 2025.09.02 | ¿ù¼¼ | ¿¡ÄÚºô | 2 | 28.66 | 500 | 42 | 2011 | | 2025.09.02 | ¿ù¼¼ | û´ãºô | 3 | 47.9 | 4,000 | 90 | 2016 | | 2025.09.01 | ¿ù¼¼ | ¿¡½ºÄÉÀÌÀ̱׶ûºô | 3 | 26.51 | 3,000 | 120 | 2022 | | 2025.08.30 | Àü¼¼ | ½Å´ëºô¶ó | 4 | 44.52 | 15,000 | 0 | 1997 | | 2025.08.25 | ¿ù¼¼ | ¼¼¿îºôµù(´ë¸²°í½ÃÅÚ) | 6 | 46.06 | 10,000 | 26 | 2002 | | 2025.08.25 | ¿ù¼¼ | (704-13) | 3 | 24.99 | 1,000 | 47 | 2002 | | 2025.08.24 | Àü¼¼ | ÆÄÅ©¿¡ºñ´ºÁ¦¿¡À̵¿ | 5 | 29.85 | 23,100 | 0 | 2018 | | 2025.08.24 | ¿ù¼¼ | (976-41) | 3 | 40.29 | 2,000 | 70 | 2004 | | 2025.08.22 | ¿ù¼¼ | ¹Ì·¡ÆÄũŸ¿î | 4 | 45.29 | 14,511 | 12 | 2024 | | 2025.08.22 | ¿ù¼¼ | ¿øÇÁ¶óÀÓ | 2 | 13.71 | 500 | 45 | 2013 | | 2025.08.22 | ¿ù¼¼ | ¹Ì·¡ÆÄũŸ¿î | 4 | 45.29 | 5,859 | 60 | 2024 | | 2025.08.21 | ¿ù¼¼ | ¹Ì·¡ÆÄũŸ¿î | 2 | 49.32 | 6,237 | 64 | 2024 | | 2025.08.21 | ¿ù¼¼ | ¹Ì·¡ÆÄũŸ¿î | 2 | 49.32 | 15,446 | 13 | 2024 | | 2025.08.21 | ¸Å¸Å | Çϳªº§¶ó¸®¿ò | 3 | 29.66 | 25,300 | | 2017 | | 2025.08.21 | ¸Å¸Å | (1116-25) | 1 | 57.69 | 32,500 | | 1998 | | 2025.08.20 | ¿ù¼¼ | µ¥¿¡ÀÌÄ¡´ë¸²4Â÷ | 4 | 29.04 | 5,596 | 59 | 2020 | | 2025.08.18 | ¿ù¼¼ | ¿¡ÄÚºô | 4 | 42.4 | 1,000 | 52 | 2011 | | 2025.08.18 | ¿ù¼¼ | ¿À¸§Ã¤ | 4 | 29.43 | 500 | 80 | 2016 | | 2025.08.18 | Àü¼¼ | Çö´ë±×¸°ºô¶óA,Bµ¿ | 2 | 68.94 | 18,000 | 0 | 1986 | | 2025.08.18 | Àü¼¼ | Çö´ë±×¸°ºô¶óA,Bµ¿ | 2 | 68.94 | 18,000 | 0 | 1986 | | 2025.08.16 | ¸Å¸Å | À¯ÀϺô¶ó(694-0) | 2 | 77.52 | 47,000 | | 2002 | | 2025.08.16 | Àü¼¼ | ¾Öµå¿Âºô | 5 | 27.34 | 24,000 | 0 | 2019 | | 2025.08.15 | ¿ù¼¼ | ¿øÇÁ¶óÀÓ | 4 | 17.27 | 1,000 | 45 | 2013 | | 2025.08.14 | ¿ù¼¼ | (1111-5) | 1 | 31.72 | 500 | 70 | 1994 | | 2025.08.13 | ¿ù¼¼ | ¹ÎÇϿ콺´ë¸²1 | 3 | 25.61 | 3,067 | 10 | 2021 | | 2025.08.12 | ¿ù¼¼ | ½ÃƼÇϿ콺ºôµù | 3 | 26.93 | 1,000 | 92 | 2022 | | 2025.08.12 | ¿ù¼¼ | ½ÃƼÇϿ콺ºôµù | 3 | 26.93 | 1,000 | 92 | 2022 | | 2025.08.12 | ¿ù¼¼ | ´ë¸²ÇÏÀÌÃ÷(1025-20) | 2 | 30.11 | 5,538 | 12 | 2022 | | 2025.08.11 | ¸Å¸Å | (1116-31) | -1 | 59.66 | 24,000 | | 1999 | | 2025.08.09 | ¸Å¸Å | (1111-6) | 4 | 36.91 | 20,000 | | 1994 | | 2025.08.09 | ¿ù¼¼ | °Ç¿µÅ¸¿ö | 5 | 19.125 | 2,000 | 60 | 2012 | | 2025.08.08 | Àü¼¼ | ¿ì¼º¾ÆÆ®ºô | 2 | 29.48 | 20,000 | 0 | 2016 | | 2025.08.07 | ¿ù¼¼ | (1051-25) | 5 | 19.84 | 12,000 | 5 | 2014 | | 2025.08.07 | Àü¼¼ | (906-40) | 3 | 16.8 | 7,500 | 0 | 2013 | | 2025.08.07 | Àü¼¼ | (906-40) | 3 | 16.8 | 7,500 | 0 | 2013 | | 2025.08.07 | Àü¼¼ | (906-40) | 3 | 16.8 | 7,500 | 0 | 2013 | | 2025.08.05 | ¿ù¼¼ | ¸Ó¹³ºô | 3 | 29.57 | 2,000 | 105 | 2022 | | 2025.08.05 | ¿ù¼¼ | ÇØ¿ï¿¡ºñ´º730 | 4 | 26.2 | 2,000 | 115 | 2016 | | 2025.08.04 | ¿ù¼¼ | ¿¡ÄÚºô | 2 | 36.14 | 500 | 40 | 2011 | | 2025.08.03 | ¸Å¸Å | ÆÄÅ©¿¡ºñ´ºÁ¦¿¡À̵¿ | 4 | 30.74 | 30,000 | | 2018 | | 2025.08.02 | ¸Å¸Å | (1118-11) | 3 | 54.16 | 32,500 | | 2000 | | 2025.07.31 | ¿ù¼¼ | ¸Ó¹³ºô | 2 | 28.91 | 3,000 | 100 | 2022 | | 2025.07.30 | ¿ù¼¼ | SKEij½½ | 5 | 27.01 | 25,500 | 18 | 2019 | | 2025.07.30 | ¿ù¼¼ | ¸íÁöÆÄÅ©ºô | 3 | 44.49 | 3,769 | 39 | 2022 | | 2025.07.30 | ¿ù¼¼ | SKEij½½ | 5 | 27.01 | 25,500 | 18 | 2019 | | 2025.07.30 | ¿ù¼¼ | ¿øÇÁ¶óÀÓ | 2 | 12.57 | 500 | 42 | 2013 | | 2025.07.29 | Àü¼¼ | ´ë¸²ºô¶ó | 1 | 35.66 | 11,600 | 0 | 1986 | | 2025.07.29 | ¿ù¼¼ | OaktreevilDR2 | 4 | 27.62 | 1,675 | 48 | 2022 | | 2025.07.29 | ¿ù¼¼ | ´ë¸²Çϳª¾ÆÆ®ºô104µ¿(1117-3) | 1 | 57.36 | 6,000 | 50 | 2000 | | 2025.07.29 | ¿ù¼¼ | OaktreevilDR2 | 4 | 27.62 | 4,189 | 43 | 2022 | | 2025.07.28 | ¿ù¼¼ | ³²¾çÆÄÅ©ºô | 2 | 30.02 | 2,428 | 25 | 2022 | | 2025.07.28 | ¿ù¼¼ | OaktreevilDR2 | 6 | 27.62 | 200 | 53 | 2022 | | 2025.07.25 | ¿ù¼¼ | ´ë¸²Çϳª¾ÆÆ®ºô101µ¿(1117-0) | 3 | 57.21 | 1,500 | 120 | 2000 | | 2025.07.24 | Àü¼¼ | ¶Ñ¸®ºô | 4 | 22.04 | 16,000 | 0 | 2013 | | 2025.07.24 | Àü¼¼ | ¶Ñ¸®ºô | 4 | 22.04 | 16,000 | 0 | 2013 | | 2025.07.24 | Àü¼¼ | Çà¿îºô¶ó | 1 | 50.81 | 19,000 | 0 | 2002 | | 2025.07.22 | ¸Å¸Å | Çϳªº§¶ó¸®¿ò | 3 | 26.92 | 23,000 | | 2017 | | 2025.07.21 | ¿ù¼¼ | Çѽºô¶óÆ®Bµ¿(1109-9) | -1 | 43.56 | 3,000 | 30 | 1994 | | 2025.07.21 | ¸Å¸Å | ¸Þ¸£ÇîÇϿ콺 | 4 | 29.94 | 32,000 | | 2017 | | 2025.07.20 | ¿ù¼¼ | (787-1) | 3 | 31.31 | 8,000 | 35 | 2002 | | 2025.07.18 | Àü¼¼ | À¯¼ººô¶ó°¡,³ªµ¿(863-9) | 4 | 31.68 | 7,000 | 0 | 1992 | | 2025.07.17 | ¸Å¸Å | Æ®À©Å¬ºô | 3 | 42.33 | 42,500 | | 2023 | | 2025.07.17 | ¸Å¸Å | ¿ì¼º¾ÆÆ®ºô | 2 | 29.94 | 30,000 | | 2016 | | 2025.07.16 | Àü¼¼ | ¸ñȺô¶ó(1055-4) | 5 | 33.06 | 11,500 | 0 | 2003 | | 2025.07.15 | ¿ù¼¼ | ´ëÈï¹Ì¼Ò°¡ | 2 | 33.24 | 20,000 | 14 | 2013 | | 2025.07.14 | ¸Å¸Å | (1116-18) | 2 | 46.64 | 20,000 | | 1997 | | 2025.07.13 | ¸Å¸Å | ¼º¿øÇÏÀÌÃ÷ | 4 | 35.03 | 24,300 | | 2011 | | 2025.07.13 | ¸Å¸Å | ÁÖ¿µÆÄÅ©ºô | 2 | 23.968 | 22,100 | | 2015 | | 2025.07.12 | Àü¼¼ | (1118-5) | 1 | 59.94 | 22,000 | 0 | 1999 | | 2025.07.10 | ¸Å¸Å | ¾ç¸í¾ÆÆ®ºô(858-27) | 2 | 43.71 | 35,500 | | 2002 | | 2025.07.10 | ¿ù¼¼ | ½Â¿ì¿¡¹öºô(1095-33) | 2 | 60.6 | 22,000 | 25 | 2004 | | 2025.07.09 | Àü¼¼ | ´ë¸²¾ÆÆ®ºô(877-14) | 1 | 42.34 | 13,000 | 0 | 2004 | | 2025.07.09 | Àü¼¼ | ´õ½ºÄ«À̺ä | 8 | 28.83 | 25,000 | 0 | 2021 | | 2025.07.09 | ¿ù¼¼ | µå¸²Ä³½½ | 3 | 27.8 | 1,000 | 65 | 2017 | | 2025.07.09 | Àü¼¼ | À¯¼ººô¶ó°¡,³ªµ¿(863-9) | 1 | 32.64 | 12,000 | 0 | 1992 | | 2025.07.08 | ¸Å¸Å | Çö´ëÇÏÀ̺ô | 4 | 44.93 | 36,000 | | 2012 | | 2025.07.08 | Àü¼¼ | ¹Ì½ÂÇÏÀÌÃ÷Aµ¿ | 2 | 45.54 | 9,000 | 0 | 1998 | | 2025.07.07 | Àü¼¼ | ½Å¿µºô¶ó | 3 | 40.755 | 16,000 | 0 | 2002 | | 2025.07.07 | ¸Å¸Å | ´ë¸²Çϳª¾ÆÆ®ºô104µ¿(1117-3) | 4 | 57.36 | 30,000 | | 2000 | | 2025.07.06 | ¸Å¸Å | (1118-8) | 5 | 32.94 | 19,500 | | 2000 | | 2025.07.05 | ¿ù¼¼ | ÇѴٿøíÁø | 3 | 21.36 | 3,000 | 50 | 2014 | | 2025.07.03 | ¸Å¸Å | (1116-16) | 3 | 51.02 | 22,000 | | 1998 | | 2025.07.03 | ¿ù¼¼ | Áø¼º¿¡ÄÚºô | 4 | 50.46 | 27,517 | 27 | 2022 | | 2025.07.03 | Àü¼¼ | ´ë¸²ºô¶ó(1116-5) | 2 | 58.74 | 20,000 | 0 | 1997 | | 2025.07.03 | ¿ù¼¼ | ¼º¾Ïºô¶ó1µ¿ | 3 | 38.37 | 1,000 | 60 | 1987 | | 2025.07.02 | ¿ù¼¼ | È«Áøºôµù¿ø·ë | 3 | 19.26 | 500 | 50 | 2013 | | 2025.07.02 | ¿ù¼¼ | ÀÌȺô¶ó(751-19) | 2 | 43.83 | 1,000 | 70 | 2002 | | 2025.07.01 | ¿ù¼¼ | ½Å´ëºô¶ó | 1 | 44.52 | 3,500 | 60 | 1997 | | 2025.07.01 | ¿ù¼¼ | µµ¿¬ºô¶ó | 5 | 50.14 | 7,000 | 80 | 2008 | | 2025.07.01 | Àü¼¼ | SKEij½½ | 2 | 29.49 | 26,180 | 0 | 2019 | | 2025.06.29 | ¿ù¼¼ | ¼¼¿îºôµù(´ë¸²°í½ÃÅÚ) | 4 | 46.06 | 9,800 | 26 | 2002 | | 2025.06.28 | ¿ù¼¼ | (906-40) | 4 | 38 | 5,500 | 46 | 2013 | | 2025.06.28 | Àü¼¼ | û±â¿ÍŸ¿î(878-5) | 2 | 55.7 | 22,400 | 0 | 2000 | | 2025.06.27 | ¿ù¼¼ | ´ë¸²ºô¶ó°¡µ¿ | 3 | 41.55 | 1,000 | 65 | 1993 | | 2025.06.26 | ¸Å¸Å | (1116-16) | 2 | 51.02 | 22,200 | | 1998 | | 2025.06.25 | ¿ù¼¼ | Çö´ë¾ÆÆ®ºô(942-6) | 2 | 42.63 | 2,000 | 80 | 2003 | | 2025.06.25 | ¿ù¼¼ | Çý·æºôµù | 6 | 29.82 | 16,000 | 17 | 2013 | | 2025.06.25 | ¸Å¸Å | ´ë¸²ºô¶ó(1116-5) | 2 | 58.74 | 31,700 | | 1997 | | 2025.06.25 | ¿ù¼¼ | ½º¸¶Æ®ºô | 4 | 22.91 | 500 | 60 | 2012 | | 2025.06.24 | ¸Å¸Å | º¸¶÷ÇÏÀ̺ô | 5 | 42.66 | 20,250 | | 2011 | | 2025.06.23 | ¸Å¸Å | SKEij½½ | 5 | 27.01 | 26,500 | | 2019 | | 2025.06.21 | ¿ù¼¼ | ÀÏ¿ìºô¶ó | 5 | 22.26 | 3,000 | 50 | 2021 | | 2025.06.21 | ¿ù¼¼ | (1109-3) | -1 | 31.2 | 2,000 | 29 | 1994 | | 2025.06.21 | ¿ù¼¼ | ´ëÈï¹Ì¼Ò°¡ | 2 | 33.24 | 5,000 | 40 | 2013 | | 2025.06.20 | ¸Å¸Å | ¹é»êº£½ºÆ®ºô | 5 | 29.98 | 20,000 | | 2012 | | 2025.06.19 | ¿ù¼¼ | ÇØ¿ï¿¡ºñ´º730 | 3 | 26.88 | 5,000 | 125 | 2016 | | 2025.06.19 | ¿ù¼¼ | ½Ã±×´Ïó732 | 4 | 35.96 | 5,440 | 21 | 2023 | | 2025.06.19 | ¸Å¸Å | ¹Ì½ÂÇÏÀÌÃ÷Fµ¿ | 4 | 59.11 | 27,000 | | 1998 | | 2025.06.19 | ¸Å¸Å | ´õ½ºÄ«À̺ä | 10 | 28.83 | 36,000 | | 2021 | | 2025.06.19 | ¸Å¸Å | Çϳªº§¶ó¸®¿ò | 5 | 21.83 | 11,025 | | 2017 | | 2025.06.19 | ¸Å¸Å | Çϳªº§¶ó¸®¿ò | 5 | 19.06 | 10,500 | | 2017 | | 2025.06.19 | ¿ù¼¼ | Çý·æºôµù | 5 | 29.82 | 10,000 | 47 | 2013 | | 2025.06.17 | ¿ù¼¼ | ´Ùû¸² | 4 | 42.26 | 5,000 | 80 | 2013 | | 2025.06.17 | Àü¼¼ | ´ë¸²°ñµåºô(976-65) | 3 | 61.92 | 22,000 | 0 | 2004 | | 2025.06.17 | Àü¼¼ | Çϳª¼¼ÀνºÅæ | 2 | 29.53 | 20,000 | 0 | 2016 | | 2025.06.16 | ¿ù¼¼ | ´ë¸²Çϳª¾ÆÆ®ºô104µ¿(1117-3) | 3 | 57.37 | 2,000 | 120 | 2000 | | 2025.06.16 | ¸Å¸Å | ¼±»þÀθ®Ä¡ºô | 5 | 29.56 | 38,000 | | 2023 | | 2025.06.14 | ¸Å¸Å | ½Ö¿ëÇÁ¶óÀÓ | 4 | 32.64 | 34,800 | | 2015 | | 2025.06.14 | ¸Å¸Å | ´ë¸²ºô¶ó | 1 | 35.66 | 19,400 | | 1986 | | 2025.06.14 | Àü¼¼ | (1111-8) | 1 | 40.05 | 14,000 | 0 | 1994 | | 2025.06.14 | Àü¼¼ | (1111-8) | 1 | 40.05 | 14,000 | 0 | 1994 | | 2025.06.13 | ¿ù¼¼ | ´ÙÀ̾ó·Î±×737 | 4 | 22.23 | 4,280 | 16 | 2022 | | 2025.06.13 | ¸Å¸Å | ¿ì¼º¾ÆÆ®ºô | 3 | 29.94 | 29,500 | | 2016 | | 2025.06.12 | ¸Å¸Å | º¸¼º¾ÆÆ®ºô(737-16) | 3 | 63.38 | 38,900 | | 2002 | | 2025.06.11 | Àü¼¼ | ´ë¸²ºô¶ó°¡µ¿ | 2 | 41.55 | 12,000 | 0 | 1993 | | 2025.06.10 | ¸Å¸Å | ÇØ´ãä | 3 | 35.42 | 36,000 | | 2017 | | 2025.06.10 | ¿ù¼¼ | ¼ö¸ñ¾ÆÆ®ºô | 3 | 74.96 | 13,500 | 65 | 2009 | | 2025.06.10 | ¿ù¼¼ | ½ã±×¸°ÆÄÅ© | 6 | 28.83 | 7,000 | 50 | 2015 | | 2025.06.09 | ¿ù¼¼ | °æµ¿ÆÄÅ©ºô | 5 | 27.56 | 9,891 | 10 | 2022 | | 2025.06.08 | ¿ù¼¼ | õ¿ëºô¶ó | 3 | 65.1 | 10,000 | 60 | 2006 | | 2025.06.08 | ¸Å¸Å | µå¸²Å¸¿îB | 2 | 29.81 | 26,900 | | 2018 | | 2025.06.07 | ¸Å¸Å | ´õ½ºÄ«À̺ä | 10 | 29.95 | 38,000 | | 2021 | | 2025.06.07 | ¿ù¼¼ | Ȳ±Ýº½ | 3 | 16.99 | 500 | 50 | 2015 | | 2025.06.07 | ¸Å¸Å | ¼öµµºô¶ó(1084-7) | 1 | 63.55 | 37,800 | | 1998 | | 2025.06.05 | ¸Å¸Å | ¸ñȺô¶ó(1055-4) | 5 | 33.06 | 16,000 | | 2003 | | 2025.06.05 | ¿ù¼¼ | (824-53) | 2 | 28.97 | 5,000 | 55 | 2015 | | 2025.06.05 | ¿ù¼¼ | (824-53) | 2 | 28.97 | 5,000 | 55 | 2015 | | 2025.06.04 | ¸Å¸Å | Çà¿îºô¶ó | 1 | 50.81 | 27,000 | | 2002 | | 2025.06.04 | ¸Å¸Å | (1112-2) | 1 | 46.41 | 19,800 | | 1994 | | 2025.06.04 | ¸Å¸Å | (1112-2) | 1 | 46.41 | 19,800 | | 1994 | | 2025.06.04 | ¿ù¼¼ | ¿øÇÁ¶óÀÓ | 4 | 21.76 | 500 | 50 | 2013 | | 2025.06.04 | ¿ù¼¼ | ¸®Ã÷ºô | 4 | 45.74 | 886 | 14 | 2013 | | 2025.06.03 | ¿ù¼¼ | ½ãÇϿ콺 | 2 | 13.2 | 1,500 | 44 | 2012 | | 2025.06.03 | ¸Å¸Å | ¿ì¼º¾ÆÆ®ºô | 2 | 29.48 | 33,000 | | 2016 | | 2025.06.02 | ¿ù¼¼ | ¼ºÁÖºô¶óAµ¿(704-5) | 3 | 70.69 | 3,000 | 100 | 2000 | | 2025.06.02 | ¿ù¼¼ | Çý·æºôµù | 4 | 29.25 | 17,000 | 6 | 2013 | | 2025.05.31 | ¿ù¼¼ | ¼ö¸ñ¾ÆÆ®ºô | 2 | 79.94 | 15,000 | 54 | 2009 | | 2025.05.29 | ¿ù¼¼ | Çö´ëµðÀÚÀÎÆÄÅ©ºô | 4 | 61.27 | 2,000 | 110 | 2015 | | 2025.05.28 | ¸Å¸Å | ÇØ´ãä | 3 | 35.42 | 36,000 | | 2017 | | 2025.05.27 | ¿ù¼¼ | º¸¶÷ºô¶ó | 4 | 29.89 | 2,000 | 60 | 2011 | | 2025.05.26 | Àü¼¼ | (824-53) | 4 | 14.64 | 8,000 | 0 | 2015 | | 2025.05.25 | ¸Å¸Å | ÆÄÅ©¿¡ºñ´ºÁ¦¿¡À̵¿ | 4 | 44.3 | 39,000 | | 2018 | | 2025.05.24 | ¿ù¼¼ | Çö´ë±×¸°ºô¶óA,Bµ¿ | 3 | 68.94 | 1,000 | 70 | 1986 | | 2025.05.22 | Àü¼¼ | º¸¶÷ºô¶ó | 3 | 51.99 | 18,000 | 0 | 2011 | | 2025.05.22 | ¸Å¸Å | (1111-8) | 1 | 40.05 | 20,000 | | 1994 | | 2025.05.21 | Àü¼¼ | ¹Ì½ÂÇÏÀÌÃ÷Bµ¿(1116-38) | 4 | 52.84 | 14,000 | 0 | 1998 | | 2025.05.21 | ¿ù¼¼ | ÇØ¿ï¿¡ºñ´º730 | 3 | 26.14 | 1,000 | 120 | 2016 | | 2025.05.20 | Àü¼¼ | ÁÖ¿µÆÄÅ©ºô¥± | 3 | 29.71 | 18,000 | 0 | 2017 | | 2025.05.19 | ¿ù¼¼ | ÇÑ¿ïºô | 5 | 15.82 | 1,000 | 46 | 2016 | | 2025.05.17 | ¿ù¼¼ | È«Çöºô¶óAµ¿(1116-39) | 1 | 54.72 | 3,000 | 100 | 1998 | | 2025.05.17 | ¸Å¸Å | ÁÖ¿µÆÄÅ©ºô | 3 | 47.196 | 33,900 | | 2015 | | 2025.05.14 | ¿ù¼¼ | DIALOGUE663 | 2 | 25.16 | 5,115 | 5 | 2021 | | 2025.05.13 | ¸Å¸Å | ´ëµ¿ºô | 1 | 64.89 | 24,000 | | 2002 | | 2025.05.12 | ¿ù¼¼ | ´ÙÀ̾ó·Î±×737 | 4 | 28.45 | 100 | 49 | 2022 | | 2025.05.12 | ¿ù¼¼ | ÅÂÈïºô¶ó(1066-74) | 5 | 63.48 | 5,000 | 90 | 2002 | | 2025.05.09 | ¸Å¸Å | ´ë¸²°ñµåºô(976-65) | 3 | 61.92 | 39,500 | | 2004 | | 2025.05.08 | Àü¼¼ | ¹Ì·¡½ºÀ§Æ®ÇϿ콺ºñµ¿ | 4 | 45.57 | 27,450 | 0 | 2015 | | 2025.05.08 | Àü¼¼ | ¹Ì·¡½ºÀ§Æ®ÇϿ콺ºñµ¿ | 4 | 45.57 | 27,450 | 0 | 2015 | | 2025.05.07 | ¿ù¼¼ | Çý·æºôµù | 4 | 29.82 | 18,375 | 4 | 2013 | | 2025.05.07 | Àü¼¼ | ´ë¸²°ñµåºô(976-65) | 3 | 61.92 | 22,000 | 0 | 2004 | | 2025.05.07 | ¸Å¸Å | ¹Ì·¡ÇÏÀÌÃ÷ | 3 | 28.59 | 35,060 | | 2025 | | 2025.05.07 | ¿ù¼¼ | È«Áøºôµù¿ø·ë | 4 | 19.26 | 500 | 54 | 2013 | | 2025.05.07 | ¸Å¸Å | ¹Ì·¡ÇÏÀÌÃ÷ | 2 | 27.3 | 32,885 | | 2025 | | 2025.05.07 | ¸Å¸Å | ¹Ì·¡ÇÏÀÌÃ÷ | 5 | 25.51 | 32,130 | | 2025 | | 2025.05.07 | ¸Å¸Å | ¹Ì·¡ÇÏÀÌÃ÷ | 5 | 28.59 | 35,060 | | 2025 | | 2025.05.07 | ¸Å¸Å | ¹Ì·¡ÇÏÀÌÃ÷ | 5 | 27.3 | 33,215 | | 2025 | | 2025.05.07 | ¸Å¸Å | ¹Ì·¡ÇÏÀÌÃ÷ | 5 | 28.12 | 34,685 | | 2025 | | 2025.05.07 | ¸Å¸Å | ¹Ì·¡ÇÏÀÌÃ÷ | 5 | 25.42 | 32,020 | | 2025 | | 2025.05.07 | ¸Å¸Å | ¹Ì·¡ÇÏÀÌÃ÷ | 4 | 25.51 | 32,130 | | 2025 | | 2025.05.07 | ¸Å¸Å | ¹Ì·¡ÇÏÀÌÃ÷ | 4 | 28.59 | 35,060 | | 2025 | | 2025.05.07 | ¸Å¸Å | ¹Ì·¡ÇÏÀÌÃ÷ | 4 | 27.3 | 33,215 | | 2025 | | 2025.05.07 | ¸Å¸Å | ¹Ì·¡ÇÏÀÌÃ÷ | 4 | 28.12 | 34,685 | | 2025 | | 2025.05.07 | ¸Å¸Å | ¹Ì·¡ÇÏÀÌÃ÷ | 3 | 25.51 | 32,130 | | 2025 | | 2025.05.07 | ¸Å¸Å | ¹Ì·¡ÇÏÀÌÃ÷ | 2 | 25.42 | 31,685 | | 2025 | | 2025.05.07 | ¸Å¸Å | ¹Ì·¡ÇÏÀÌÃ÷ | 2 | 28.12 | 34,345 | | 2025 | | 2025.05.07 | ¸Å¸Å | ¹Ì·¡ÇÏÀÌÃ÷ | 2 | 28.59 | 34,715 | | 2025 | | 2025.05.07 | ¸Å¸Å | ¹Ì·¡ÇÏÀÌÃ÷ | 2 | 25.51 | 31,795 | | 2025 | | 2025.05.07 | ¸Å¸Å | ¹Ì·¡ÇÏÀÌÃ÷ | 3 | 25.42 | 32,020 | | 2025 | | 2025.05.07 | ¸Å¸Å | ¹Ì·¡ÇÏÀÌÃ÷ | 3 | 28.12 | 34,685 | | 2025 | | 2025.05.07 | ¸Å¸Å | ¹Ì·¡ÇÏÀÌÃ÷ | 3 | 27.3 | 33,215 | | 2025 | | 2025.05.06 | ¿ù¼¼ | ¼±¸°ºô | 2 | 15.6 | 500 | 47 | 2015 | | 2025.05.03 | Àü¼¼ | µµ½Å¿¬¸³°¡µ¿(685-0) | 1 | 41.56 | 10,000 | 0 | 1986 | | 2025.05.02 | ¿ù¼¼ | ´ë¸²ÆÓ¸®½º | 2 | 28.28 | 21,100 | 10 | 2019 | | 2025.05.02 | Àü¼¼ | (1116-28) | -1 | 59.6 | 19,000 | 0 | 1997 | | 2025.05.01 | ¿ù¼¼ | È«Çöºô¶óBµ¿(1116-41) | 4 | 55.36 | 18,000 | 20 | 1999 | | 2025.05.01 | ¿ù¼¼ | ´ë¸²ÆÓ¸®½º | 5 | 29.72 | 5,000 | 90 | 2019 | | 2025.05.01 | ¿ù¼¼ | (1109-3) | 3 | 31.2 | 9,800 | 5 | 1994 | | 2025.04.30 | ¿ù¼¼ | Çö´ë3Â÷ | 16 | 59.83 | 23,000 | 65 | 1997 | | 2025.04.30 | Àü¼¼ | ¼º¿ø(1115-1) | 2 | 73.14 | 30,000 | 0 | 1997 | | 2025.04.30 | Àü¼¼ | ¿µµîÆ÷ÀÚÀ̸£³× | 20 | 49.08 | 48,000 | 0 | 2022 | | 2025.04.30 | Àü¼¼ | Çö´ë2 | 5 | 84.74 | 40,000 | 0 | 1992 | | 2025.04.30 | Àü¼¼ | ÇѽÅÈÞ1Â÷ | 8 | 99.92 | 55,000 | 0 | 1998 | | 2025.04.29 | Àü¼¼ | ½Åµ¿¾Æ | 8 | 67.41 | 35,000 | 0 | 1987 | | 2025.04.29 | Àü¼¼ | º¸¶ó¸Å ½Åµ¿¾Æ ÆÄ¹Ð¸®¿¡ | 3 | 59.95 | 44,000 | 0 | 2016 | | 2025.04.28 | Àü¼¼ | ÄÚ¿À·Õ | 24 | 84.93 | 50,000 | 0 | 1998 | | 2025.04.26 | ¿ù¼¼ | G¹ë¸®¼ÒȨ | 12 | 16.1 | 11,000 | 25 | 2018 | | 2025.04.26 | Àü¼¼ | ¿ì¼º2 | 4 | 79.91 | 43,000 | 0 | 1992 | | 2025.04.26 | Àü¼¼ | ¼º¿ø(650) | 18 | 84.66 | 46,000 | 0 | 1995 | | 2025.04.26 | ¿ù¼¼ | G¹ë¸®¼ÒȨ | 12 | 16.1 | 12,000 | 20 | 2018 | | 2025.04.25 | ¿ù¼¼ | ½Ö¿ëÇ÷¡Æ¼³ÑS | 4 | 18.24 | 500 | 50 | 2013 | | 2025.04.25 | Àü¼¼ | eÆíÇѼ¼»ó¿µµîÆ÷¾Æµ¨Æ÷·¹ | 11 | 59.968 | 60,000 | 0 | 2020 | | 2025.04.23 | Àü¼¼ | Çö´ë3Â÷ | 7 | 43.92 | 30,000 | 0 | 1997 | | 2025.04.23 | ¸Å¸Å | ÁÖ¿µÆÄÅ©ºô | 4 | 47.196 | 32,500 | | 2015 | | 2025.04.23 | Àü¼¼ | ½Å´ë¸²ÀÚÀÌ1´ÜÁö | 6 | 84.41 | 55,000 | 0 | 2007 | | 2025.04.23 | Àü¼¼ | ¼º¿ø(650) | 23 | 59.63 | 41,000 | 0 | 1995 | | 2025.04.22 | ¸Å¸Å | (1109-3) | 2 | 27.6 | 13,000 | | 1994 | | 2025.04.21 | Àü¼¼ | eÆíÇѼ¼»ó¿µµîÆ÷¾Æµ¨Æ÷·¹ | 2 | 59.968 | 59,000 | 0 | 2020 | | 2025.04.21 | ¸Å¸Å | ÀϰøÄ¥¿À(1075) | 1 | 47.13 | 20,000 | | 2002 | | 2025.04.20 | ¿ù¼¼ | ½Ö¿ëÇ÷¡Æ¼³ÑS | 12 | 22.68 | 5,000 | 55 | 2013 | | 2025.04.19 | Àü¼¼ | eÆíÇѼ¼»ó¿µµîÆ÷¾Æµ¨Æ÷·¹ | 16 | 84.9948 | 74,000 | 0 | 2020 | | 2025.04.19 | Àü¼¼ | Çö´ë3Â÷ | 12 | 84.89 | 51,000 | 0 | 1997 | | 2025.04.19 | Àü¼¼ | eÆíÇѼ¼»ó¿µµîÆ÷¾Æµ¨Æ÷·¹ | 16 | 84.9948 | 74,000 | 0 | 2020 | | 2025.04.19 | ¿ù¼¼ | ÇÑ¼Ö¼ÖÆÄÅ© | 4 | 84.89 | 42,000 | 52 | 2008 | | 2025.04.19 | Àü¼¼ | ´ë¸²µ¿°©À»¸í°¡¾ÆÆÄÆ® | 13 | 84.87 | 42,000 | 0 | 2005 | | 2025.04.19 | Àü¼¼ | ÄÚ¿À·Õ | 14 | 59.94 | 42,000 | 0 | 1998 | | 2025.04.19 | Àü¼¼ | ÄÚ¿À·Õ | 14 | 59.94 | 47,000 | 0 | 1998 | | 2025.04.19 | ¿ù¼¼ | ¿µµîÆ÷ÀÚÀ̸£³× | 11 | 49.01 | 5,000 | 165 | 2022 | | 2025.04.18 | Àü¼¼ | eÆíÇѼ¼»ó¿µµîÆ÷¾Æµ¨Æ÷·¹ | 9 | 84.9948 | 58,800 | 0 | 2020 | | 2025.04.18 | ¿ù¼¼ | ½Å´ë¸²½Åµ¿¾ÆÆÄ¹Ð¸®¿¡ | 3 | 84.9563 | 5,000 | 158 | 2013 | | 2025.04.18 | ¿ù¼¼ | ¹®¿µÄŸºô·¹ | 18 | 84.89 | 30,000 | 85 | 2001 | | 2025.04.18 | ¿ù¼¼ | ½Å´ë¸²½Åµ¿¾ÆÆÄ¹Ð¸®¿¡ | 4 | 84.949 | 5,000 | 150 | 2013 | | 2025.04.18 | ¿ù¼¼ | ´ë¸²Çö´ë | 10 | 84.96 | 10,000 | 100 | 1999 | | 2025.04.18 | ¿ù¼¼ | ´ë¸²Çö´ë | 10 | 84.96 | 100,000 | 100 | 1999 | | 2025.04.17 | Àü¼¼ | Çö´ë3Â÷ | 16 | 140.54 | 70,000 | 0 | 1998 | | 2025.04.16 | Àü¼¼ | ½Åµ¿¾Æ | 6 | 67.41 | 35,500 | 0 | 1987 | | 2025.04.15 | Àü¼¼ | ÇÑ¼Ö¼ÖÆÄÅ© | 15 | 84.89 | 49,000 | 0 | 2008 | | 2025.04.15 | ¿ù¼¼ | ÄÚ¿À·Õ | 15 | 59.94 | 38,000 | 40 | 1998 | | 2025.04.15 | Àü¼¼ | ¿ì¼º2 | 9 | 79.91 | 37,000 | 0 | 1992 | | 2025.04.15 | ¿ù¼¼ | Çö´ë3Â÷ | 16 | 43.92 | 5,000 | 120 | 1997 | | 2025.04.14 | Àü¼¼ | ¹«¸² | 2 | 69.98 | 24,300 | 0 | 1981 | | 2025.04.14 | ¿ù¼¼ | Çö´ë3Â÷ | 20 | 59.83 | 8,000 | 130 | 1997 | | 2025.04.13 | Àü¼¼ | ¼º¿ø(650) | 18 | 84.66 | 46,000 | 0 | 1995 | | 2025.04.13 | Àü¼¼ | ¼º¿ø(650) | 18 | 84.66 | 46,000 | 0 | 1995 | | 2025.04.13 | Àü¼¼ | ¼º¿ø(650) | 18 | 84.66 | 46,000 | 0 | 1995 | | 2025.04.12 | ¿ù¼¼ | G¹ë¸®¼ÒȨ | 15 | 16.1 | 12,800 | 10 | 2018 | | 2025.04.12 | Àü¼¼ | eÆíÇѼ¼»ó¿µµîÆ÷¾Æµ¨Æ÷·¹ | 19 | 84.9571 | 60,900 | 0 | 2020 | | 2025.04.12 | ¿ù¼¼ | ÇѽÅÈÞ2Â÷ | 10 | 59.89 | 7,000 | 100 | 1999 | | 2025.04.12 | Àü¼¼ | Çö´ë1 | 5 | 84.75 | 42,500 | 0 | 1992 | | 2025.04.12 | Àü¼¼ | ÇÑ¼Ö¼ÖÆÄÅ© | 4 | 84.89 | 55,000 | 0 | 2008 | | 2025.04.12 | Àü¼¼ | º¸¶ó¸Å ½Åµ¿¾Æ ÆÄ¹Ð¸®¿¡ | 12 | 84.88 | 58,000 | 0 | 2016 | | 2025.04.11 | Àü¼¼ | ´ë¸²Çö´ë | 3 | 59.76 | 43,000 | 0 | 1999 | | 2025.04.11 | Àü¼¼ | ¿µµîÆ÷ÀÚÀ̸£³× | 7 | 49.01 | 42,000 | 0 | 2022 | | 2025.04.11 | ¿ù¼¼ | G¹ë¸®¼ÒȨ | 9 | 16.1 | 1,000 | 65 | 2018 | | 2025.04.11 | ¿ù¼¼ | G¹ë¸®¼ÒȨ | 8 | 16.1 | 3,500 | 47 | 2018 | | 2025.04.11 | Àü¼¼ | Çö´ë3Â÷ | 13 | 84.89 | 56,000 | 0 | 1997 | | 2025.04.11 | Àü¼¼ | ¿µµîÆ÷ÀÚÀ̸£³× | 7 | 49.01 | 42,000 | 0 | 2022 | | 2025.04.11 | Àü¼¼ | ¿ì¼º2 | 10 | 79.91 | 42,500 | 0 | 1992 | | 2025.04.11 | Àü¼¼ | Çö´ë3Â÷ | 6 | 84.89 | 55,000 | 0 | 1997 | | 2025.04.11 | Àü¼¼ | Çö´ë3Â÷ | 17 | 43.92 | 31,000 | 0 | 1997 | | 2025.04.11 | Àü¼¼ | Çö´ë3Â÷ | 17 | 43.92 | 31,000 | 0 | 1997 | | 2025.04.10 | Àü¼¼ | ½Å´ë¸²ÀÚÀÌ2´ÜÁö | 19 | 84.63 | 52,200 | 0 | 2007 | | 2025.04.10 | ¸Å¸Å | ½ã±×¸°ÆÄÅ© | 3 | 29.91 | 27,500 | | 2015 | | 2025.04.09 | ¿ù¼¼ | Çö´ë1 | 6 | 84.75 | 5,000 | 150 | 1992 | | 2025.04.09 | Àü¼¼ | eÆíÇѼ¼»ó¿µµîÆ÷¾Æµ¨Æ÷·¹ | 7 | 84.9948 | 63,000 | 0 | 2020 | | 2025.04.09 | Àü¼¼ | ÄÚ¿À·Õ | 7 | 84.93 | 54,600 | 0 | 1998 | | 2025.04.08 | ¿ù¼¼ | ´ë¸²Çö´ë | 5 | 84.96 | 32,000 | 60 | 1999 | | 2025.04.08 | ¿ù¼¼ | ´ë¸²Çö´ë | 5 | 84.96 | 32,000 | 60 | 1999 | | 2025.04.07 | ¿ù¼¼ | (1101-1) | 6 | 14.46 | 1,000 | 53 | 2012 | | 2025.04.07 | ¿ù¼¼ | HHouse´ë¸²´º½ºÅ×ÀÌ | 20 | 25.976 | 1,000 | 76 | 2017 | | 2025.04.07 | Àü¼¼ | ´ë¸²Çö´ë | 12 | 59.76 | 37,800 | 0 | 1999 | | 2025.04.05 | Àü¼¼ | ¿µµîÆ÷ÀÚÀ̸£³× | 3 | 49.01 | 37,800 | 0 | 2022 | | 2025.04.05 | ¿ù¼¼ | G¹ë¸®¼ÒȨ | 14 | 16.1 | 1,000 | 58 | 2018 | | 2025.04.05 | Àü¼¼ | ÇÑ¼Ö¼ÖÆÄÅ© | 13 | 84.89 | 45,150 | 0 | 2008 | | 2025.04.05 | Àü¼¼ | ½Åµ¿¾Æ | 1 | 53.37 | 27,000 | 0 | 1987 | | 2025.04.05 | Àü¼¼ | ¿µµîÆ÷ÀÚÀ̸£³× | 7 | 49.01 | 45,000 | 0 | 2022 | | 2025.04.05 | ¿ù¼¼ | ½Åµ¿¾Æ | 15 | 67.41 | 8,000 | 85 | 1987 | | 2025.04.05 | ¸Å¸Å | ¼¼Á¾ºô¸®Áö(678-3) | 4 | 48.91 | 30,300 | | 2003 | | 2025.04.05 | ¿ù¼¼ | ½Å´ë¸²ÀÚÀÌ2´ÜÁö | 20 | 84.83 | 45,000 | 40 | 2007 | | 2025.04.03 | Àü¼¼ | ½Ö¿ëÇ÷¡Æ¼³ÑS | 8 | 18.24 | 8,500 | 0 | 2013 | | 2025.04.03 | Àü¼¼ | ¿µµîÆ÷ÀÚÀ̸£³× | 13 | 49.01 | 40,950 | 0 | 2022 | | 2025.04.03 | ¿ù¼¼ | G¹ë¸®¼ÒȨ | 9 | 16.1 | 1,000 | 65 | 2018 | | 2025.04.03 | ¿ù¼¼ | ¹«¸² | 1 | 69.95 | 2,000 | 100 | 1981 | | 2025.04.01 | Àü¼¼ | eÆíÇѼ¼»ó¿µµîÆ÷¾Æµ¨Æ÷·¹ | 3 | 84.9948 | 54,500 | 0 | 2020 | | 2025.04.01 | ¿ù¼¼ | Çö´ë1 | 3 | 84.75 | 25,000 | 60 | 1992 | | 2025.04.01 | Àü¼¼ | eÆíÇѼ¼»ó¿µµîÆ÷¾Æµ¨Æ÷·¹ | 9 | 84.9571 | 63,000 | 0 | 2020 | | 2025.04.01 | Àü¼¼ | Çö´ë3Â÷ | 19 | 43.92 | 31,000 | 0 | 1997 | | 2025.04.01 | ¿ù¼¼ | Çö´ë1 | 3 | 84.75 | 25,000 | 60 | 1992 | | 2025.02.28 | ¸Å¸Å | À¯¼ººô¶ó°¡,³ªµ¿(863-9) | 1 | 32.64 | 21,500 | | 1992 | | 2025.02.28 | ¿ù¼¼ | dz»êºô¶ó(1109-6) | 1 | 49.22 | 3,000 | 70 | 1994 | | 2025.02.28 | ¿ù¼¼ | ÁÖ¿ëºôµù | 3 | 50.37 | 19,000 | 4 | 2013 | | 2025.02.27 | ¿ù¼¼ | Çϳªºô¶ó(1116-2) | 3 | 59.97 | 1,000 | 100 | 1997 | | 2025.02.27 | ¿ù¼¼ | ´ëÁ¤ÀÌ¿À½º | 3 | 46.84 | 10,293 | 15 | 2022 | | 2025.02.27 | ¿ù¼¼ | ´ëÁ¤ÀÌ¿À½º | 3 | 34.61 | 8,303 | 12 | 2022 | | 2025.02.26 | ¿ù¼¼ | ±Ý±¤¹éÇüºô | 2 | 39.98 | 500 | 45 | 2012 | | 2025.02.26 | Àü¼¼ | ±Ý±¤¹éÇüºô | 2 | 28.65 | 8,400 | 0 | 2012 | | 2025.02.26 | ¿ù¼¼ | ´ÙÀ̾ó·Î±×737 | 4 | 26.53 | 110 | 46 | 2022 | | 2025.02.25 | ¿ù¼¼ | ÇØÇÇÀ£Áîºô | 4 | 17.05 | 1,000 | 53 | 2013 | | 2025.02.24 | ¿ù¼¼ | ´ë¸²¸®Ä¡ºô | 3 | 45.32 | 7,000 | 55 | 2016 | | 2025.02.24 | ¿ù¼¼ | Çö´ë±×¸°ºô¶óA,Bµ¿ | 3 | 68.94 | 5,000 | 65 | 1986 | | 2025.02.24 | ¿ù¼¼ | Çö´ë±×¸°ºô¶óA,Bµ¿ | 3 | 68.94 | 5,000 | 65 | 1986 | | 2025.02.24 | ¿ù¼¼ | Çö´ë±×¸°ºô¶óA,Bµ¿ | 3 | 68.94 | 5,000 | 65 | 1986 | | 2025.02.24 | ¿ù¼¼ | Çö´ë±×¸°ºô¶óA,Bµ¿ | 3 | 68.94 | 5,000 | 65 | 1986 | | 2025.02.24 | ¿ù¼¼ | °Ç¿µÅ¸¿ö | 6 | 19.125 | 2,000 | 60 | 2012 | | 2025.02.22 | Àü¼¼ | ¿ì¿µÃ¤¿òºô | 4 | 42.75 | 23,800 | 0 | 2013 | | 2025.02.22 | Àü¼¼ | ¿ì¿µÃ¤¿òºô | 4 | 42.75 | 27,000 | 0 | 2013 | | 2025.02.21 | ¿ù¼¼ | DIALOGUE663 | 5 | 25.18 | 5,184 | 5 | 2021 | | 2025.02.21 | ¿ù¼¼ | DIALOGUE663 | 2 | 25.26 | 5,138 | 5 | 2021 | | 2025.02.20 | ¿ù¼¼ | ¹Ì·¡ÆÄũŸ¿î | 2 | 49.24 | 13,641 | 11 | 2024 | | 2025.02.19 | ¿ù¼¼ | (1110-3) | -1 | 50.14 | 449 | 14 | 1994 | | 2025.02.18 | ¿ù¼¼ | DIALOGUE663 | 2 | 25.26 | 5,287 | 4 | 2021 | | 2025.02.18 | ¿ù¼¼ | DIALOGUE663 | 4 | 25.26 | 5,251 | 5 | 2021 | | 2025.02.18 | ¿ù¼¼ | °æµ¿ÆÄÅ©ºô | 2 | 35.48 | 100 | 38 | 2022 | | 2025.02.17 | ¸Å¸Å | °Çûºô¶ó | 3 | 73.71 | 40,000 | | 2004 | | 2025.02.17 | Àü¼¼ | Çϳªºô¶ó(1116-2) | -1 | 59.97 | 15,000 | 0 | 1997 | | 2025.02.17 | Àü¼¼ | Çϳªºô¶ó(1116-2) | -1 | 59.97 | 15,000 | 0 | 1997 | | 2025.02.17 | Àü¼¼ | (1006-9) | 2 | 33.36 | 15,000 | 0 | 1987 | | 2025.02.16 | Àü¼¼ | µµ¿¬ºô¶ó | 2 | 50.14 | 25,000 | 0 | 2008 | | 2025.02.16 | ¿ù¼¼ | (1116-45) | 4 | 53.75 | 2,000 | 80 | 1998 | | 2025.02.15 | ¿ù¼¼ | ¸®Ä¡ºô(778-20) | 6 | 32.52 | 10,000 | 70 | 2012 | | 2025.02.14 | ¿ù¼¼ | °Ç¿µÅ¸¿ö | 7 | 19.125 | 2,000 | 56 | 2012 | | 2025.02.14 | ¿ù¼¼ | ¿¡½ºÄÉÀÌÀ̱׶ûºô | 3 | 26.51 | 3,000 | 115 | 2022 | | 2025.02.13 | ¸Å¸Å | º¸·Éºô¶ó°¡µ¿ | -1 | 48.12 | 14,500 | | 1987 | | 2025.02.12 | ¿ù¼¼ | Ebenezer(¿¡º¥¿¡¼¿) | 4 | 19.52 | 2,000 | 35 | 2012 | | 2025.02.11 | ¿ù¼¼ | µ¿¾ç½ºÀ§Æ®ºô | 3 | 17.62 | 500 | 50 | 2011 | | 2025.02.11 | ¿ù¼¼ | Ȳ±Ýº½ | 2 | 16.99 | 500 | 45 | 2015 | | 2025.02.10 | ¿ù¼¼ | ÀÏ¿ìºô¶ó | 2 | 14.62 | 500 | 45 | 2021 | | 2025.02.08 | ¿ù¼¼ | (704-13) | 3 | 49.55 | 500 | 60 | 2002 | | 2025.02.08 | ¿ù¼¼ | µå¸²ÇϿ콺 | 2 | 36.89 | 5,000 | 80 | 2016 | | 2025.02.08 | ¿ù¼¼ | ¿ì¼º¾ÆÆ®ºô | 5 | 20.32 | 3,000 | 60 | 2016 | | 2025.02.07 | ¿ù¼¼ | ÇØÇÇÀ£Áîºô | 6 | 17.05 | 1,000 | 54 | 2013 | | 2025.02.05 | Àü¼¼ | ¼¼Á¾ºô¸®ÁöDµ¿ | 3 | 53.14 | 23,000 | 0 | 2004 | | 2025.02.03 | ¿ù¼¼ | (1111-0) | 4 | 43.94 | 6,000 | 55 | 1994 | | 2025.01.31 | Àü¼¼ | ½Å¿µºô¶ó | 2 | 40.755 | 16,170 | 0 | 2002 | | 2025.01.26 | Àü¼¼ | ÇѼÖȨŸ¿î | 3 | 27.99 | 13,000 | 0 | 2008 | | 2025.01.22 | ¸Å¸Å | (988-12) | 2 | 43.17 | 25,500 | | 1976 | | 2025.01.22 | ¿ù¼¼ | ½º¸¶Æ®ºô | 2 | 17.01 | 500 | 49 | 2012 | | 2025.01.21 | ¿ù¼¼ | ÈÆÇϿ콺 | 3 | 35.08 | 2,617 | 27 | 2022 | | 2025.01.21 | ¿ù¼¼ | ´ÙÀ̾ó·Î±×737 | 3 | 21.28 | 103 | 40 | 2022 | | 2025.01.21 | ¿ù¼¼ | ÈÆÇϿ콺 | 3 | 32.89 | 2,513 | 26 | 2022 | | 2025.01.21 | ¿ù¼¼ | ½ãÇϿ콺 | 3 | 13.3 | 2,000 | 46 | 2012 | | 2025.01.20 | ¿ù¼¼ | ¿¡½ºÄÉÀÌÀ̱׶ûºô | 3 | 26.58 | 3,000 | 110 | 2022 | | 2025.01.20 | ¿ù¼¼ | (824-53) | 2 | 28.97 | 11,000 | 20 | 2015 | | 2025.01.19 | ¿ù¼¼ | (993-29) | 1 | 42 | 1,000 | 70 | 1986 | | 2025.01.18 | Àü¼¼ | Å×¶óÆç¸®Ã¼´ë¸² | 4 | 46.02 | 33,000 | 0 | 2024 | | 2025.01.16 | ¿ù¼¼ | ´ë±¤ºô¶ó(877-41) | 3 | 46.38 | 5,000 | 60 | 2002 | | 2025.01.15 | ¿ù¼¼ | ¼ºÁöÇϿ콺 | 3 | 56.46 | 300 | 34 | 2017 | | 2025.01.15 | ¿ù¼¼ | (1112-1) | 1 | 34.74 | 2,000 | 50 | 1994 | | 2025.01.14 | Àü¼¼ | (1116-25) | 4 | 57.69 | 17,000 | 0 | 1998 | | 2025.01.11 | Àü¼¼ | ´ë¸²±×¸°ºô(987-21) | 1 | 18.62 | 5,400 | 0 | 2001 | | 2025.01.09 | ¸Å¸Å | Çϳªº§¶ó¸®¿ò | 2 | 29.66 | 22,000 | | 2017 | | 2025.01.09 | ¿ù¼¼ | ´ÙÀ̾ó·Î±×737 | 3 | 22.26 | 4,000 | 18 | 2022 | | 2025.01.09 | ¸Å¸Å | Çϳªº§¶ó¸®¿ò | 3 | 29.66 | 21,012 | | 2017 | | 2025.01.08 | ¸Å¸Å | Çϳªº§¶ó¸®¿ò | 2 | 26.92 | 17,365 | | 2017 | | 2025.01.08 | ¸Å¸Å | Çϳªº§¶ó¸®¿ò | 3 | 29.66 | 19,365 | | 2017 | | 2025.01.07 | ¸Å¸Å | Çϳªº§¶ó¸®¿ò | 3 | 26.92 | 19,010 | | 2017 | | 2025.01.06 | ¸Å¸Å | Çϳªº§¶ó¸®¿ò | 5 | 19.06 | 11,466 | | 2017 | | 2025.01.06 | ¸Å¸Å | Çϳªº§¶ó¸®¿ò | 5 | 21.83 | 13,110 | | 2017 | | 2025.01.05 | ¸Å¸Å | µ¿¾çÆÄÅ©ºä | 5 | 22.53 | 24,900 | | 2018 | | 2025.01.05 | ¿ù¼¼ | (1111-5) | -1 | 31.84 | 1,000 | 45 | 1994 | | 2025.01.04 | ¿ù¼¼ | ´ë¸²±×¸°ºô(987-21) | 3 | 50.52 | 14,000 | 15 | 2001 | | 2025.01.02 | ¿ù¼¼ | ´ë¸²Çϳª¾ÆÆ®ºô106µ¿(1117-5) | 1 | 58.4 | 100 | 30 | 2000 |
|
|
|
 |
ÀÓÂ÷³»¿ª |
[¹è´ç¿ä±¸Á¾±âÀÏ : 2025/12/02] |
|
|
| ÀÓÂ÷ÀÎ |
Á¡À¯°ü°è |
ÀüÀÔÀÏÀÚ |
È®Á¤ÀÏÀÚ |
¹è´ç¿ä±¸ÀÏ |
º¸Áõ±Ý/Â÷ÀÓ |
´ëÇ׿ä°Ç |
ºñ°í |
| ¸Å°¢±âÀÏ 7ÀÏÀü¿¡ ¸Å°¢¹°°Ç¸í¼¼¼°¡ °ø°íµÇ¿À´Ï È®ÀÎÇϽñ⠹ٶø´Ï´Ù. |
| ÇÑOOOOOOO |
728È£ÀüºÎ |
2021.06.28. |
2021.06.07. |
|
119,000,000
|
O |
2021.07.01.~ |
| ¸Å°¢¹°°Ç¸í¼¼ ºñ°í |
¼¿ïº¸Áõº¸Çè : ½Åûä±ÇÀÚ °â Çѱ¹ÅäÁöÁÖÅðø»çÀÇ ÀÓÂ÷º¸Áõ±Ý¹Ýȯä±Ç ½Â°èÀÎÀÓ |
|
|
|
 |
Áö¿ªºÐ¼® |
|
|
|
|
| ÁöÇÏö |
|
Çб³ |
|
| °ü°ø¼ |
|
| ¹ý¿ø |
¼¿ï³²ºÎÁö¹æ¹ý¿ø (080-88)¼¿ïƯº°½Ã ¾çõ±¸ ½Å¿ù·Î 386(½ÅÁ¤µ¿) ´ëÇ¥ : 02)2192-1114 ¿µµîÆ÷±¸, °¼±¸, ¾çõ±¸, ±¸·Î±¸, ±Ýõ±¸ |
| µî±â¼Ò |
¼¿ï³²ºÎÁö¹æ¹ý¿ø º»¿ø µî±â±¹ (´ëÇ¥:1544-0773, ÆÑ½º:(02)2629-7307, ¼¿ïƯº°½Ã ¿µµîÆ÷±¸ °æÀηΠ772 (¹®·¡µ¿ 1°¡)) |
| ¼¼¹«¼ |
µ¿ÀÛ¼¼¹«¼ (´ëÇ¥:02-840-920, ÆÑ½º:02-831-4137, ¼¿ïƯº°½Ã ¿µµîÆ÷±¸ ´ë¹æÃµ·Î 259 (½Å±æµ¿)) |
|
|
|
 |
¹ý¿ø ¹°°ÇÀÚ·á ¿ä¾à |
|
|
|
|
| ¼Ò¸êµÇÁö ¾Ê´Â µî±âºÎ±Ç¸® |
|
| ¼³Á¤µÈ °ÍÀ¸·Î º¸´Â Áö»ó±Ç |
|
| ¹ý¿øÀÚ·á Æ¯ÀÌ»çÇ× |
[ÁÖ¿ä ¹®°Ç Á¢¼ö ³»¿ª]
|
[¸Å°¢¹°°Ç¸í¼¼¼ ºñ°í¶õ]
½Åûä±ÇÀÚ °â ÁÖÅÃÀÓÂ÷±ÇÀÚÀÇ ½Â°èÀÎÀÎ ¼¿ïº¸Áõº¸Çè ÁÖ½Äȸ»ç´Â 2026.01.21.ÀÚ·Î 'ÀÌ »ç°Ç ¸Å¼öÀο¡ ´ëÇÑ ´ëÇ×·ÂÀ» Æ÷±âÇϰí
¿ì¼±º¯Á¦±Ç¸¸ Çà»çÇϸç, ÀÓÂ÷±Çµî±âÀÇ ¸»¼Ò¿¡ µ¿ÀÇÇÑ´Ù'´Â ÃëÁöÀÇ È®¾à¼¸¦ Á¦ÃâÇÏ¿´À½ |
|
| ¿©ÀÇÁÖ°æ¸Å Á¶¾ð ÇѸ¶µð |
ÀÌ ºÎµ¿»êÀÇ ÀÔÂû¹ý¿øÀº ¼¿ï³²ºÎÁö¹æ¹ý¿øÀÔ´Ï´Ù.
ÀÔÂûÀÏÀº 2026-02-10ÀÔ´Ï´Ù.
ÀÔÂû½Ã°£Àº ~11:20ÀÔ´Ï´Ù. ÀÌ ¹ý¿ø¿¡´Â ½ÅÇÑÀºÇàÀÌ ÀÔÁ¡Çϰí ÀÖ½À´Ï´Ù.
|
¼±¼øÀ§ ÀÓÂ÷±Çµî±â°¡ µÇ¾î ÀÖ½À´Ï´Ù ´ëÇ×·ÂÀÌ ÀÖ´Â ¼±¼øÀ§ ÀÓÂ÷±Çµî±â ±Ç¸®ÀÚ°¡ ¹è´çÀ» Àü¾× ¹ÞÁö ¸øÇÒ °æ¿ì ³«ÂûÀÚ°¡ ÀÜ¿© º¸Áõ±ÝÀ» ÀμöÇØ¾ßÇÏ´Â °æ¿ìµµ ÀÖ½À´Ï´Ù. |
|
|
| Åë°è±â°£ |
³«Âû¹°°Ç¼ö |
Æò±Õ°¨Á¤°¡ |
Æò±Õ³«Âû°¡ |
³«Âû°¡À² |
À¯ÂûȽ¼ö |
| 3°³¿ù |
13°Ç |
243,000,000¿ø |
194,367,569¿ø |
80% |
2.1ȸ |
| 6°³¿ù |
32°Ç |
271,534,500¿ø |
217,623,381¿ø |
81% |
2ȸ |
| 12°³¿ù |
67°Ç |
283,717,970¿ø |
224,471,083¿ø |
79% |
2.2ȸ |
|
|
|
|
|
|
 |
|