|
|
| ¼ÒÀçÁö |
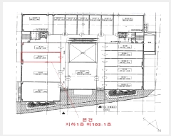
ºÎ»ê±¤¿ª½Ã ±âÀ屺 Àå¾ÈÀ¾ ÁÂõ¸® 436-16 ÈúžÇÁ¸®¹Ì¾ö¾Æ¿ï·¿ ¿¡À̵¿ Áö1Ãþºñ103-1È£
|
|
| »ç°Ç¹øÈ£ |
2025 Ÿ°æ 4982 |
¹°°Ç¹øÈ£ |
1
|
¹°°Ç¿ëµµ |
»ó°¡,»ç¹«½Ç |
| °¨Á¤Æò°¡¾× |
806,000,000¿ø |
°æ¸Å´ë»ó |
ÅäÁö ¹× °Ç¹°Àϰý ¸Å°¢ |
ÁøÇà»óÅ |
½Å°Ç |
| ÃÖÀúÀÔÂû°¡ |
(100%) 806,000,000¿ø
|
°Ç¹°¸éÀû |
80.31§³(24.29Æò) |
ÀÔÂû±âÀÏ |
2026.02.10(È) 10:00
(ÀÔÂû 12ÀÏÀü)
|
| ÀÔÂûº¸Áõ±Ý |
(10%) 80,600,000¿ø |
ÅäÁö¸éÀû |
71.20§³(21.54Æò)
|
À¯ÂûȽ¼ö |
0ȸ |
| ÀÔÂû¹ý¿ø |
ºÎ»êÁö¹æ¹ý¿ø ºÎ»êµ¿ºÎÁö¿ø |
°æ¸Å¹æ¹ý |
|
¹°°ÇÁ¶È¸¼ö |
¿À´Ã: 2ȸ [´©Àû: 18ȸ]
|
| ¸»¼Ò±âÁØ | ÃÖ¼±¼øÀ§ ¼³Á¤ : 2020. 5. 4. ±ÙÀú´ç ¼³Á¤
|
|
|
|
|
|
|
|
|
|
|
°æ¸Å´ë»ó ¸ñ·Ï
|
|
| ±¸ºÐ |
¸ñ·Ï |
ÁÖ¼Ò |
±¸Á¶/¿ëµµ/´ëÁö±Ç |
ºñ°í |
´ëÁö±Ç
|
1 |
ÁÂõ¸® 436-16 |
6066ºÐÀÇ 71.2 |
71.2§³ (21.54Æò)
|
°Ç¹°
|
1 |
ÁÂõ¸® 436-16 |
¿¡À̵¿ Áö1Ãþºñ103-1È£ ö±ÙÄÜÅ©¸®Æ®±¸Á¶ |
80.31§³ (24.29Æò)
|
|
|
|
2026-02-10
ÁøÇà
|
(100%)
806,000,000¿ø
|
|
|
|
|
|
°¨Á¤Æò°¡¼ ¿ä¾à |
|
[À§Ä¡/ÁÖÀ§È¯°æ]
º»°ÇÀº ºÎ»ê±¤¿ª½Ã ±âÀ屺 Àå¾ÈÀ¾ ÁÂõ¸® ¼ÒÀç ºÎ»êÀå¾È°íµîÇб³ ºÏ¼Ãø Àαٿ¡ À§Ä¡ÇÏ´Â
ÈúžÇÁ¸®¹Ì¾ö¾Æ¿ï·¿ ¿¡À̵¿ ÁöÇÏ1Ãþ ºñ103-1È£À̰í, ÁÖº¯Àº ½Å¼¼°è¾Æ¿ï·¿ ÁÖº¯ÀÇ °¢Á¾ ÆÇ¸Å
½Ã¼³ µîÀ¸·Î Çü¼ºµÇ¾î ÀÖ½À´Ï´Ù.
[±³Åë»óȲ]
º»°Ç±îÁö Á¦¹Ý Â÷·® Á¢±Ù °¡´ÉÇϰí Àαٿ¡ ½Ã³»¹ö½ºÁ¤·ùÀåÀÌ ¼ÒÀçÇÏ¿© ÀϹÝÀûÀÎ ´ëÁß±³Åë
»çÁ¤Àº º¸Åë Á¤µµÀÔ´Ï´Ù.
[°Ç¹°±¸Á¶]
ö±ÙÄÜÅ©¸®Æ®±¸Á¶ ½½·¡ºêÁöºØ 4Ãþ °Ç¹° Áß ÁöÇÏ1ÃþÀ̸ç,
- ¿Üº®: ÀÎÁ¶¼® ¹× º¹ÇÕ ÆÇ³Ú ¸¶°¨.(Àüü °Ç¹°)
- ³»º®: °ñÇÁ¾ÆÄ«µ¥¹Ì ÀÎÅ׸®¾î ¸¶°¨.
[ÀÌ¿ë»óÅÂ]
ÀÎÁ¢ ºñ101È£, ºñ102¿Í °æ°è ±¸ºÐ¾øÀÌ ÀÏü·Î °ñÇÁ¾ÆÄ«µ¥¹Ì(FRIENDS ACADEMY)·Î ÀÌ¿ëÁßÀÔ
´Ï´Ù.
[¼³ºñ³»¿ª]
±Þ¼ö ¹× ¹è¼ö¼³ºñ, À§»ý¼³ºñ, ÈÀçŽÁö ¹× ¼Òȼ³ºñ, ½Â°±â¼³ºñ, ¿¡½ºÄ÷¹ÀÌÅÍ ¼³ºñ µîÀÌ
µÇ¾î ÀÖ½À´Ï´Ù.
[ÅäÁöÇü»ó/ÀÌ¿ë»óÅÂ]
2ÇÊÁö 1´ÜÁöÀÎ »ç´Ù¸®Çü°ú À¯»çÇÑ Çü»óÀÇ ÅäÁöÀÌ¸ç »ó¾÷¿ë°Ç¹°ÀÇ ºÎÁö·Î ÀÌ¿ëÁßÀÔ´Ï´Ù.
7)ÀÎÁ¢ µµ·Î»óŵî
ºÏµ¿ÃøÀ¸·Î ¿Õº¹8Â÷¼±ÀÇ Á¤°ü·Î¿Í Á¢Çϰí, ºÏ¼ÃøÀ¸·Î ¿Õº¹2Â÷¼±ÀÇ µµ·Î¿Í Á¢ÇÕ´Ï´Ù.
º»°ÇÀº ÁöÇÏ1ÃþÀ̳ª Á¤°ü·Î¿¡¼´Â ¿Ü°ü»ó 1ÃþÀ¸·Î º¸À̸ç ÇöÁö ȣεµ 1ÃþÀ¸·Î »ç¿ëµÇ°í
ÀÖ½À´Ï´Ù.
[ÅäÁöÀÌ¿ë°èȹ]
¿ëµµÁö¿ªÀº ÀÚ¿¬³ìÁöÁö¿ª ÀÔ´Ï´Ù.
[°øºÎ¿ÍÀÇ Â÷ÀÌ]
¾ø½À´Ï´Ù.
[Âü°í»çÇ×]
°¡.ÀÓ´ë°ü°è: ¹Ì»óÀÔ´Ï´Ù.
³ª.±âŸ: ¾ø½À´Ï´Ù. |
|
|
°ÇÃ๰ÇöȲ |
|
|
|
| ¼ÒÀçÁö |
ºÎ»ê±¤¿ª½Ã ±âÀ屺 Àå¾ÈÀ¾ ÁÂõ¸® 436-16¹øÁö |
| ´ëÁö¸éÀû |
6066§³(1838.18Æò) |
¿¬¸éÀû |
8819.7§³(2672.64Æò) |
ÁÖ¿ëµµ |
ÆÇ¸Å½Ã¼³ |
| °ÇÃà¸éÀû |
1174.98§³(356.05Æò) |
¿ëÀû·ü»êÁ¤¿¬¸éÀû |
4585.14§³(1389.44Æò) |
Âø°øÀÏÀÚ |
2010.02.14 |
| °ÇÆóÀ² |
19.37% |
¿ëÀû·ü |
75.59% |
»ç¿ë½ÂÀÎÀÏÀÚ |
2015.10.15 |
| Áö»óÃþ¼ö |
4Ãþ |
ÁöÇÏÃþ¼ö |
2Ãþ |
±¸Á¶ |
ö±ÙÄÜÅ©¸®Æ®±¸Á¶ |
°ÇÃ๰Ãþº°ÇöȲ [º¸±â]| Ãþº° | ±¸Á¶ | ¿ëµµ | ¸éÀû | | 1Ãþ | ö±ÙÄÜÅ©¸®Æ®±¸Á¶ | º¹µµ | 375.38§³ (113.75Æò) | | 1Ãþ | ö±ÙÄÜÅ©¸®Æ®±¸Á¶ | °è´Ü½Ç | 112.28§³ (34.02Æò) | | 1Ãþ | ö±ÙÄÜÅ©¸®Æ®±¸Á¶ | ÆÇ¸Å½Ã¼³(¼Ò¸ÅÁ¡) | 595.58§³ (180.48Æò) | | 1Ãþ | ö±ÙÄÜÅ©¸®Æ®±¸Á¶ | Á¦2Á¾±Ù¸°»ýȰ½Ã¼³(ÀϹÝÀ½½ÄÁ¡) | 56.7§³ (17.18Æò) | | 2Ãþ | ö±ÙÄÜÅ©¸®Æ®±¸Á¶ | Á¦2Á¾±Ù¸°»ýȰ½Ã¼³(ÀϹÝÀ½½ÄÁ¡) | 216§³ (65.45Æò) | | 2Ãþ | ö±ÙÄÜÅ©¸®Æ®±¸Á¶ | ÆÇ¸Å½Ã¼³(¼Ò¸ÅÁ¡) | 488.28§³ (147.96Æò) | | 2Ãþ | ö±ÙÄÜÅ©¸®Æ®±¸Á¶ | º¹µµ | 331.84§³ (100.56Æò) | | 2Ãþ | ö±ÙÄÜÅ©¸®Æ®±¸Á¶ | °è´Ü½Ç | 112.28§³ (34.02Æò) | | 3Ãþ | ö±ÙÄÜÅ©¸®Æ®±¸Á¶ | º¹µµ | 331.84§³ (100.56Æò) | | 3Ãþ | ö±ÙÄÜÅ©¸®Æ®±¸Á¶ | °è´Ü½Ç | 112.28§³ (34.02Æò) | | 3Ãþ | ö±ÙÄÜÅ©¸®Æ®±¸Á¶ | ÆÇ¸Å½Ã¼³(¼Ò¸ÅÁ¡) | 513.03§³ (155.46Æò) | | 3Ãþ | ö±ÙÄÜÅ©¸®Æ®±¸Á¶ | Á¦2Á¾±Ù¸°»ýȰ½Ã¼³(Á¦Á¶¾÷¼Ò) | 191.25§³ (57.95Æò) | | 4Ãþ | ö±ÙÄÜÅ©¸®Æ®±¸Á¶ | ÆÇ¸Å½Ã¼³(¼Ò¸ÅÁ¡) | 449.28§³ (136.15Æò) | | 4Ãþ | ö±ÙÄÜÅ©¸®Æ®±¸Á¶ | ±Ù¸°»ýȰ½Ã¼³(»ç¹«¼Ò) | 255§³ (77.27Æò) | | 4Ãþ | ö±ÙÄÜÅ©¸®Æ®±¸Á¶ | º¹µµ | 331.84§³ (100.56Æò) | | 4Ãþ | ö±ÙÄÜÅ©¸®Æ®±¸Á¶ | °è´Ü½Ç | 112.28§³ (34.02Æò) | | Áö1Ãþ | ö±ÙÄÜÅ©¸®Æ®±¸Á¶ | °è´Ü½Ç | 110.75§³ (33.56Æò) | | Áö1Ãþ | ö±ÙÄÜÅ©¸®Æ®±¸Á¶ | º¹µµ | 275.32§³ (83.43Æò) | | Áö1Ãþ | ö±ÙÄÜÅ©¸®Æ®±¸Á¶ | ¼³ºñ½Ç | 40.5§³ (12.27Æò) | | Áö1Ãþ | ö±ÙÄÜÅ©¸®Æ®±¸Á¶ | ÆÇ¸Å½Ã¼³(¼Ò¸ÅÁ¡) | 1505.47§³ (456.2Æò) | | Áö2Ãþ | ö±ÙÄÜÅ©¸®Æ®±¸Á¶ | ÁÖÂ÷Àå | 1478§³ (447.88Æò) | | Áö2Ãþ | ö±ÙÄÜÅ©¸®Æ®±¸Á¶ | °è´Ü½Ç | 110.75§³ (33.56Æò) | | Áö2Ãþ | ö±ÙÄÜÅ©¸®Æ®±¸Á¶ | ÆÇ¸Å½Ã¼³(¼Ò¸ÅÁ¡) | 1245.95§³ (377.56Æò) | | Áö2Ãþ | ö±ÙÄÜÅ©¸®Æ®±¸Á¶ | ±Ù¸°»ýȰ½Ã¼³(ÀϹÝÀ½½ÄÁ¡) | 485§³ (146.97Æò) | | Áö2Ãþ | ö±ÙÄÜÅ©¸®Æ®±¸Á¶ | ¼³ºñ½Ç | 40.5§³ (12.27Æò) | | Áö2Ãþ | ö±ÙÄÜÅ©¸®Æ®±¸Á¶ | º¹µµ | 301.52§³ (91.37Æò) | | Áö2Ãþ | ö±ÙÄÜÅ©¸®Æ®±¸Á¶ | ±Ù¸°»ýȰ½Ã¼³(ÈÞ°ÔÀ½½ÄÁ¡) | 118.8§³ (36Æò) | | Áö3Ãþ | ö±ÙÄÜÅ©¸®Æ®±¸Á¶ | ¼³ºñ½Ç | 105.21§³ (31.88Æò) | | Áö3Ãþ | ö±ÙÄÜÅ©¸®Æ®±¸Á¶ | ÁÖÂ÷Àå | 839.36§³ (254.35Æò) | | Áö4Ãþ | ö±ÙÄÜÅ©¸®Æ®±¸Á¶ | º¹µµ | 79.8§³ (24.18Æò) |
|
|
|
|
|
|
 |
ÀÓÂ÷³»¿ª |
[¹è´ç¿ä±¸Á¾±âÀÏ : 2025/05/02] |
|
|
| ÀÓÂ÷ÀÎ |
Á¡À¯°ü°è |
ÀüÀÔÀÏÀÚ |
È®Á¤ÀÏÀÚ |
¹è´ç¿ä±¸ÀÏ |
º¸Áõ±Ý/Â÷ÀÓ |
´ëÇ׿ä°Ç |
ºñ°í |
| ¸Å°¢±âÀÏ 7ÀÏÀü¿¡ °ø°íµÇ¿À´Ï È®ÀÎÇϽñ⠹ٶø´Ï´Ù. |
|
|
|
 |
Áö¿ªºÐ¼® |
|
|
|
|
| ÁöÇÏö |
|
Çб³ |
|
| °ü°ø¼ |
|
| ¹ý¿ø |
ºÎ»êÁö¹æ¹ý¿ø µ¿ºÎÁö¿ø (480-53)ºÎ»ê±¤¿ª½Ã ÇØ¿î´ë±¸ Àç¹Ý·Î 112¹ø±æ 20¹ø (Àç¼Ûµ¿1133) ´ëÇ¥ : 051)780-1114, ¹Î¿ø : 051)780-1351, µî±â : 1544-0773 ÇØ¿î´ë±¸, ³²±¸, ¼ö¿µ±¸, ±âÀ屺 |
| µî±â¼Ò |
ºÎ»êÁö¹æ¹ý¿ø µ¿ºÎÁö¿ø µî±â°ú (´ëÇ¥:1544-0773, ÆÑ½º:(051)781-6292, ºÎ»ê±¤¿ª½Ã ÇØ¿î´ë±¸ Àç¹Ý·Î112¹ø±æ 20 (Àç¼Ûµ¿ 1133)) |
| ¼¼¹«¼ |
±ÝÁ¤¼¼¹«¼ (´ëÇ¥:051-580-62, ÆÑ½º:051-516-8272, ºÎ»ê±¤¿ª½Ã ±ÝÁ¤±¸ Áß¾Ó´ë·Î 1636 (ºÎ°îµ¿)) |
|
|
|
 |
¹ý¿ø ¹°°ÇÀÚ·á ¿ä¾à |
|
|
|
|
| ¼Ò¸êµÇÁö ¾Ê´Â µî±âºÎ±Ç¸® |
|
| ¼³Á¤µÈ °ÍÀ¸·Î º¸´Â Áö»ó±Ç |
|
| ¹ý¿øÀÚ·á Æ¯ÀÌ»çÇ× |
[ÁÖ¿ä ¹®°Ç Á¢¼ö ³»¿ª]
|
[¸Å°¢¹°°Ç¸í¼¼¼ ºñ°í¶õ]
ÇöȲÁ¶»ç¼¿¡ ¹× °¨Á¤Æò°¡¼¿¡ ÀÇÇÏ¸é ºñ103-1È£´Â ÀÎÁ¢ ºñ101È£, ºñ102È£¿Í °æ°è ±¸ºÐ¾øÀÌ ½ºÅ©¸°°ñÇÁ¿¬½ÀÀå ³»ÀÇ °ø°£À» ÅÍ
¼ ÀÏü·Î °ñÇÁ¾ÆÄ«µ¥¹Ì·Î ÀÌ¿ëÁßÀ̳ª, º»°Ç °Ç¹°ÀÇ °ÇÃ๰ ÇöȲµµ(°³º°È£)¿¡´Â º»°ÇÀÇ °æ°èÀÇ À§Ä¡ ¹× ¸ð¾ç, °¢ °æ°èºÎºÐÀÇ
±æÀ̰¡ ¸íÈ®ÇÏ°Ô ±âÀçµÇ¾î ÀÖÀ¸¹Ç·Î °æ°èÀÇ º¹¿øÀÌ ¿ëÀÌÇϰí, °æ°è º¹¿øÀº 1¸éÀÇ º®Ã¼¸¦ ¼³Ä¡ÇÏ´Â Á¤µµ·Î ºñ¿ëµµ Å©Áö ¾ÊÀ»
°ÍÀ¸·Î ÆÇ´ÜµÈ´Ù°í ÇÔ. |
[ºÎµ¿»ê ÇöȲÁ¶»ç¼ ºñ°í¶õ]
1. À§ ½ºÅ©¸°°ñÇÁ¿¬½ÀÀå¿¡¼ °°ÀÌ ¿î¿µÇÏ´Â Ä¿ÇǼóÀÇ Á÷¿øÀ» ÅëÇÏ¿© ½ºÅ©¸°°ñÇÁ¿¬½ÀÀå ¾÷ÁÖ¿Í ÅëÈÇÒ ¼ö ÀÖ¾ú´Âµ¥ ±×ÀÇ Áø¼ú¿¡ ÀÇÇϸé `ºñ103-1`È£´Â ½ºÅ©¸°°ñÇÁ¿¬½ÀÀå ³»¿¡ °ø°£À» Åͼ ½ºÅ©¸°°ñÇÁÀåÀ» ¸¸µé¾ú´Âµ¥ °°Àº Ãþ¿¡ ÀÖ´Â ºñ103È£(°ø½Ç) Á¤µµÀÇ Å©±â¶ó°í ÇÏ¸é¼ ÀÔÂûÀÌ µÇ¸é ÀÚ½ÅÀÌ À§ ¹°°ÇÀ» ¹Ù·Î °æ¶ô¹ÞÀ» ¿¹Á¤À̶ó°í ÇÔ.(*»çÁøÂüÁ¶)
2. À§ ½ºÅ©¸°°ñÇÁÀå¿¡¼ °°ÀÌ ¿î¿µÇÏ´Â Ä¿ÇǼó Á÷¿ø¿¡°Ô ¾È³»¹®À» ±³ºÎÇÏ¿´À½. |
|
| ¿©ÀÇÁÖ°æ¸Å Á¶¾ð ÇѸ¶µð |
ÀÌ ºÎµ¿»êÀÇ ÀÔÂû¹ý¿øÀº ºÎ»êÁö¹æ¹ý¿ø ºÎ»êµ¿ºÎÁö¿øÀÔ´Ï´Ù.
ÀÔÂûÀÏÀº 2026-02-10ÀÔ´Ï´Ù.
ÀÔÂû½Ã°£Àº ~11:20ÀÔ´Ï´Ù. ÀÌ ¹ý¿ø¿¡´Â ½ÅÇÑÀºÇàÀÌ ÀÔÁ¡Çϰí ÀÖ½À´Ï´Ù.
|
|
|
| Åë°è±â°£ |
³«Âû¹°°Ç¼ö |
Æò±Õ°¨Á¤°¡ |
Æò±Õ³«Âû°¡ |
³«Âû°¡À² |
À¯ÂûȽ¼ö |
| 3°³¿ù |
18°Ç |
812,598,493¿ø |
378,395,125¿ø |
29% |
6.3ȸ |
| 6°³¿ù |
34°Ç |
610,552,144¿ø |
254,588,856¿ø |
29% |
5.6ȸ |
| 12°³¿ù |
53°Ç |
590,905,403¿ø |
267,312,117¿ø |
35% |
5.2ȸ |
|
|
|
|
|
|
 |
|