|
|
| ¼ÒÀçÁö |
ÀÎõ±¤¿ª½Ã ³²µ¿±¸ ±¸¿ùµ¿ 1508 ±¸¿ùÀ¯½ÂÇѳ»µéÆÛ½ºÆ¼Áö 104µ¿ 25Ãþ2502È£
|
|
| »ç°Ç¹øÈ£ |
2025 Ÿ°æ 508561 |
¹°°Ç¹øÈ£ |
1
|
¹°°Ç¿ëµµ |
¾ÆÆÄÆ® |
| °¨Á¤Æò°¡¾× |
610,000,000¿ø |
°æ¸Å´ë»ó |
ÅäÁö ¹× °Ç¹°Àϰý ¸Å°¢ |
ÁøÇà»óÅ |
À¯Âû |
| ÃÖÀúÀÔÂû°¡ |
(70%) 427,000,000¿ø
|
°Ç¹°¸éÀû |
94.03§³(28.44Æò) |
ÀÔÂû±âÀÏ |
2026.03.26(¸ñ) 10:00
(ÀÔÂû 6ÀÏÀü)
|
| ÀÔÂûº¸Áõ±Ý |
(10%) 42,700,000¿ø |
ÅäÁö¸éÀû |
60.77§³(18.38Æò)
|
À¯ÂûȽ¼ö |
1ȸ |
| ÀÔÂû¹ý¿ø |
ÀÎõÁö¹æ¹ý¿ø |
°æ¸Å¹æ¹ý |
|
¹°°ÇÁ¶È¸¼ö |
¿À´Ã: 2ȸ [´©Àû: 1193ȸ]
|
| ¸»¼Ò±âÁØ | ÃÖ¼±¼øÀ§ ¼³Á¤ : 2022.11.3. ±ÙÀú´ç±Ç ¼³Á¤
|
|
|
|
|
|
|
|
|
|
|
°æ¸Å´ë»ó ¸ñ·Ï
|
|
| ±¸ºÐ |
¸ñ·Ï |
ÁÖ¼Ò |
±¸Á¶/¿ëµµ/´ëÁö±Ç |
ºñ°í |
´ëÁö±Ç
|
1 |
±¸¿ùµ¿ 1508 |
48587.9ºÐÀÇ 60.7708 |
60.7708§³ (18.38Æò)
|
°Ç¹°
|
1 |
±¸¿ùµ¿ 1508 |
104µ¿ 25Ãþ2502È£ ö±ÙÄÜÅ©¸®Æ®±¸Á¶ |
94.0260§³ (28.44Æò)
|
|
|
|
2026-02-11
À¯Âû
|
(100%)
610,000,000¿ø
|
|
|
|
2026-03-26
ÁøÇà
|
(70%)
427,000,000¿ø
|
|
|
|
|
|
°¨Á¤Æò°¡¼ ¿ä¾à |
|
[À§Ä¡/ÁÖÀ§È¯°æ]
º»°ÇÀº ÀÎõ±¤¿ª½Ã ³²µ¿±¸ ±¸¿ùµ¿ ¼ÒÀç 'ÀÎõ¸¸¿ùÃʵîÇб³' ºÏÃø Àαٿ¡ À§Ä¡Çϸç, ÁÖÀ§´Â ´ë´ÜÀ§ ¾ÆÆÄÆ®´ÜÁö, ±â¹Ý»ó¾÷½Ã¼³, °ø¿ø, ±Ù¸°»ýȰ½Ã¼³ ¹× Çб³ µîÀÌ ¼ÒÀçÇÏ¿© Á¦¹Ý ÁÖÀ§È¯°æÀº º¸ÅëÀÓ.
[±³Åë»óȲ]
º»°Ç±îÁö Â÷·®Á¢±ÙÀÌ °¡´ÉÇϸç, Àαٿ¡ ¹ö½ºÁ¤·ùÀåÀÌ ¼ÒÀçÇÏ¿© ´ëÁß±³Åë»çÁ¤Àº º¸ÅëÀÓ.
[°Ç¹°±¸Á¶]
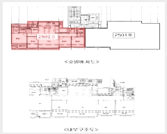
ö±ÙÄÜÅ©¸®Æ®±¸Á¶ ÆòÁöºØ Á¦28Ãþ °Ç¹° ³» Á¦25Ãþ Á¦2502È£·Î¼,
(»ç¿ë½ÂÀÎÀÏ : 2016.12.01)
¿Üº® : ¸ôÅ»À§ ÆäÀÎÆ® ¹× ¼®À縶°¨ µî,
³»º® : º®Áö ¹× ÀϺΠŸÀÏ ¸¶°¨ µî,
âȣ : »þ½Ã âȣ µîÀÓ.
[ÀÌ¿ë»óÅÂ]
¾ÆÆÄÆ®·Î ÀÌ¿ëÁßÀÓ.
[¼³ºñ³»¿ª]
±Þ¡¤¹è¼ö¼³ºñ ¹× À§»ý¼³ºñ, °¡½º¼³ºñ, ³¹æ¼³ºñ, ½Â°±â ¼³ºñ ¹× ÈÀç°æº¸ ¹× ¼ÒÈÀü¼³ºñ µîÀÌ µÇ¾îÀÖÀ½.
[ÅäÁöÇü»ó/ÀÌ¿ë»óÅÂ]
ÀÎÁ¢ÇÊÁö´ëÁö µî°íÆòźÇÑ ºÎÁ¤ÇüÀÇ ÅäÁö·Î¼, °øµ¿ÁÖÅÃ(¾ÆÆÄÆ®) °ÇºÎÁö·Î ÀÌ¿ëÁßÀÓ.
7)ÀÎÁ¢ µµ·Î»óŵî
³²ÃøÀ¸·Î Áß·Î¿Í Á¢ÇÔ.
[ÅäÁöÀÌ¿ë°èȹ]
Á¦3Á¾ÀϹÝÁÖ°ÅÁö¿ª, Á¦1Á¾Áö±¸´ÜÀ§°èȹ±¸¿ª(±¸¿ù °ø°øÁÖÅÃ), Áß·Î1·ù(Æø 20m~25m)(Á¢ÇÕ), °¡Ãà»çÀ°Á¦Çѱ¸¿ª(2013-03-08)((¹®ÀÇ:³²µ¿±¸È¯°æº¸Àü°ú 032-453-2343))£¼°¡ÃàºÐ´¢ÀÇ °ü¸® ¹× À̿뿡 °üÇÑ ¹ý·ü£¾, °ú¹Ð¾ïÁ¦±Ç¿ª£¼¼öµµ±ÇÁ¤ºñ°èȹ¹ý£¾ÀÓ.
[°øºÎ¿ÍÀÇ Â÷ÀÌ]
¾øÀ½.
[Âü°í»çÇ×]
ÀÓ´ë°ü°è ¹Ì»óÀÓ.
|
|
|
°ÇÃ๰ÇöȲ |
|
|
|
| ¼ÒÀçÁö |
ÀÎõ±¤¿ª½Ã ³²µ¿±¸ ±¸¿ùµ¿ 1508¹øÁö |
| ´ëÁö¸éÀû |
|
¿¬¸éÀû |
14235.3282§³(4313.74Æò) |
ÁÖ¿ëµµ |
°øµ¿ÁÖÅà |
| °ÇÃà¸éÀû |
813.9875§³(246.66Æò) |
¿ëÀû·ü»êÁ¤¿¬¸éÀû |
14235.3282§³(4313.74Æò) |
Âø°øÀÏÀÚ |
2014.03.28 |
| °ÇÆóÀ² |
|
¿ëÀû·ü |
|
»ç¿ë½ÂÀÎÀÏÀÚ |
2016.12.01 |
| Áö»óÃþ¼ö |
28Ãþ |
ÁöÇÏÃþ¼ö |
|
±¸Á¶ |
ö±ÙÄÜÅ©¸®Æ®±¸Á¶ |
°ÇÃ๰Ãþº°ÇöȲ [º¸±â]| Ãþº° | ±¸Á¶ | ¿ëµµ | ¸éÀû | | 1Ãþ | ö±ÙÄÜÅ©¸®Æ®±¸Á¶ | °øµ¿ÁÖÅÃ(¾ÆÆÄÆ®) | 540.6378§³ (163.83Æò) | | 1Ãþ | ö±ÙÄÜÅ©¸®Æ®±¸Á¶ | ¿Á¿Ü¿¤¸®º£ÀÌÅÍ | 6.625§³ (2.01Æò) | | 2Ãþ | ö±ÙÄÜÅ©¸®Æ®±¸Á¶ | °øµ¿ÁÖÅÃ(¾ÆÆÄÆ®) | 540.6378§³ (163.83Æò) | | 3Ãþ | ö±ÙÄÜÅ©¸®Æ®±¸Á¶ | °øµ¿ÁÖÅÃ(¾ÆÆÄÆ®) | 540.6378§³ (163.83Æò) | | 4Ãþ | ö±ÙÄÜÅ©¸®Æ®±¸Á¶ | °øµ¿ÁÖÅÃ(¾ÆÆÄÆ®) | 540.6378§³ (163.83Æò) | | 7Ãþ | ö±ÙÄÜÅ©¸®Æ®±¸Á¶ | °øµ¿ÁÖÅÃ(¾ÆÆÄÆ®) | 540.6378§³ (163.83Æò) | | 9Ãþ | ö±ÙÄÜÅ©¸®Æ®±¸Á¶ | °øµ¿ÁÖÅÃ(¾ÆÆÄÆ®) | 540.6378§³ (163.83Æò) | | 10Ãþ | ö±ÙÄÜÅ©¸®Æ®±¸Á¶ | °øµ¿ÁÖÅÃ(¾ÆÆÄÆ®) | 540.6378§³ (163.83Æò) | | 11Ãþ | ö±ÙÄÜÅ©¸®Æ®±¸Á¶ | °øµ¿ÁÖÅÃ(¾ÆÆÄÆ®) | 540.6378§³ (163.83Æò) | | 12Ãþ | ö±ÙÄÜÅ©¸®Æ®±¸Á¶ | °øµ¿ÁÖÅÃ(¾ÆÆÄÆ®) | 540.6378§³ (163.83Æò) | | 16Ãþ | ö±ÙÄÜÅ©¸®Æ®±¸Á¶ | °øµ¿ÁÖÅÃ(¾ÆÆÄÆ®) | 540.6378§³ (163.83Æò) | | 17Ãþ | ö±ÙÄÜÅ©¸®Æ®±¸Á¶ | °øµ¿ÁÖÅÃ(¾ÆÆÄÆ®) | 540.6378§³ (163.83Æò) | | 18Ãþ | ö±ÙÄÜÅ©¸®Æ®±¸Á¶ | °øµ¿ÁÖÅÃ(¾ÆÆÄÆ®) | 540.6378§³ (163.83Æò) | | 19Ãþ | ö±ÙÄÜÅ©¸®Æ®±¸Á¶ | °øµ¿ÁÖÅÃ(¾ÆÆÄÆ®) | 540.6378§³ (163.83Æò) | | 20Ãþ | ö±ÙÄÜÅ©¸®Æ®±¸Á¶ | °øµ¿ÁÖÅÃ(¾ÆÆÄÆ®) | 540.6378§³ (163.83Æò) | | 21Ãþ | ö±ÙÄÜÅ©¸®Æ®±¸Á¶ | °øµ¿ÁÖÅÃ(¾ÆÆÄÆ®) | 540.6378§³ (163.83Æò) | | 23Ãþ | ö±ÙÄÜÅ©¸®Æ®±¸Á¶ | °øµ¿ÁÖÅÃ(¾ÆÆÄÆ®) | 540.6378§³ (163.83Æò) | | 24Ãþ | ö±ÙÄÜÅ©¸®Æ®±¸Á¶ | °øµ¿ÁÖÅÃ(¾ÆÆÄÆ®) | 540.6378§³ (163.83Æò) | | 26Ãþ | ö±ÙÄÜÅ©¸®Æ®±¸Á¶ | °øµ¿ÁÖÅÃ(¾ÆÆÄÆ®) | 540.6378§³ (163.83Æò) | | 27Ãþ | ö±ÙÄÜÅ©¸®Æ®±¸Á¶ | °øµ¿ÁÖÅÃ(¾ÆÆÄÆ®) | 540.6378§³ (163.83Æò) | | 28Ãþ | ö±ÙÄÜÅ©¸®Æ®±¸Á¶ | °øµ¿ÁÖÅÃ(¾ÆÆÄÆ®) | 490.3525§³ (148.59Æò) | | Áö1Ãþ | ö±ÙÄÜÅ©¸®Æ®±¸Á¶ | ÈÖÆ®´Ï½º¼¾ÅÍ,°ñÇÁ¿¬½ÀÀå | 760.5703§³ (230.48Æò) | | Áö1Ãþ | ö±ÙÄÜÅ©¸®Æ®±¸Á¶ | ¹«ÀÎÅùè½Ç,¸¾½ºÅ×ÀÌ¼Ç | 68.0635§³ (20.63Æò) | | Áö1Ãþ | ö±ÙÄÜÅ©¸®Æ®±¸Á¶ | Áֹΰøµ¿½Ã¼³ | 209.4528§³ (63.47Æò) | | Áö1Ãþ | ö±ÙÄÜÅ©¸®Æ®±¸Á¶ | ÁöÇÏÁÖÂ÷Àå | 451.1895§³ (136.72Æò) | | Áö1Ãþ | ö±ÙÄÜÅ©¸®Æ®±¸Á¶ | ±â°è,Àü±â½Ç | 123.9653§³ (37.57Æò) | | Áö2Ãþ | ö±ÙÄÜÅ©¸®Æ®±¸Á¶ | ±â°è,Àü±â½Ç | 660.9976§³ (200.3Æò) | | Áö2Ãþ | ö±ÙÄÜÅ©¸®Æ®±¸Á¶ | ÁöÇÏÁÖÂ÷Àå | 27330.893§³ (8282.09Æò) | | Áö2Ãþ | ö±ÙÄÜÅ©¸®Æ®±¸Á¶ | ¹«ÀÎÅùè½Ç,ÀçȰ¿ëº¸°ü¼Ò,¿Á¿Ü¿¤¸®º£ÀÌÅÍ | 90.0578§³ (27.29Æò) | | Áö2Ãþ | ö±ÙÄÜÅ©¸®Æ®±¸Á¶ | °ü¸®»ç¹«¼Ò,¹æÀç½Ç,MDF | 264.8942§³ (80.27Æò) |
|
|
|
|
|
|
 |
ÀÓÂ÷³»¿ª |
[¹è´ç¿ä±¸Á¾±âÀÏ : 2025/06/26] |
|
|
| ÀÓÂ÷ÀÎ |
Á¡À¯°ü°è |
ÀüÀÔÀÏÀÚ |
È®Á¤ÀÏÀÚ |
¹è´ç¿ä±¸ÀÏ |
º¸Áõ±Ý/Â÷ÀÓ |
´ëÇ׿ä°Ç |
ºñ°í |
| Á¶»çµÈ ÀÓÂ÷³»¿ªÀÌ ¾ø½À´Ï´Ù. |
|
|
|
 |
Áö¿ªºÐ¼® |
|
|
|
|
| ÁöÇÏö |
|
Çб³ |
|
| °ü°ø¼ |
|
| ¹ý¿ø |
ÀÎõÁö¹æ¹ý¿ø (222-20)ÀÎõ±¤¿ª½Ã ¹ÌÃßȦ±¸ ¼Ò¼º·Î 163¹ø±æ 17(ÇÐÀ͵¿) ´ëÇ¥ : 032)860-1113~4 Áß±¸, µ¿±¸, ³²±¸, ¿¬¼ö±¸, ³²µ¿±¸, ºÎÆò±¸, °è¾ç±¸, ¼±¸, ¿ËÁø±º, °È±º |
| µî±â¼Ò |
ÀÎõÁö¹æ¹ý¿ø º»¿ø µî±â±¹ (´ëÇ¥:1544-0773, ÆÑ½º:(032)620-9099, ÀÎõ±¤¿ª½Ã ¹ÌÃßȦ±¸ °æ¿ø´ë·Î 881(Á־ȵ¿ 983)) |
| ¼¼¹«¼ |
³²ÀÎõ¼¼¹«¼ (´ëÇ¥:032-460-52, ÆÑ½º:032-463-5778, ÀÎõ±¤¿ª½Ã ³²µ¿±¸ ÀÎÇÏ·Î 548 (±¸¿ùµ¿)) |
|
|
|
 |
¹ý¿ø ¹°°ÇÀÚ·á ¿ä¾à |
|
|
|
|
| ¼Ò¸êµÇÁö ¾Ê´Â µî±âºÎ±Ç¸® |
|
| ¼³Á¤µÈ °ÍÀ¸·Î º¸´Â Áö»ó±Ç |
|
| ¹ý¿øÀÚ·á Æ¯ÀÌ»çÇ× |
|
| ¿©ÀÇÁÖ°æ¸Å Á¶¾ð ÇѸ¶µð |
ÀÌ ºÎµ¿»êÀÇ ÀÔÂû¹ý¿øÀº ÀÎõÁö¹æ¹ý¿øÀÔ´Ï´Ù.
ÀÔÂûÀÏÀº 2026-03-26ÀÔ´Ï´Ù.
ÀÔÂû½Ã°£Àº ~11:20ÀÔ´Ï´Ù. ÀÌ ¹ý¿ø¿¡´Â KB±¹¹ÎÀºÇàÀÌ ÀÔÁ¡Çϰí ÀÖ½À´Ï´Ù.
|
ÃëÇÏ ¶Ç´Â Ãë¼ÒµÉ °¡´É¼º ÀÖ½À´Ï´Ù
ÀÌ ¹°°ÇÀÇ °¨Á¤°¡°ÝÀº 610,000,000¿øÀÔ´Ï´Ù. °æ¸Å¸¦ ½ÅûÇÑ Ã¤±ÇÀÚ°¡ ¹è´ç ¹Þ¾Æ¾ß ÇÒ ±Ý¾×Àº 200,000,000¿ø À¸·Î °¨Á¤°¡°Ý ´ëºñ »ó´çÈ÷ ÀûÀº ±Ý¾×ÀÔ´Ï´Ù.
ÀÌ·± °æ¿ì, 乫°¡°¡ º¯Á¦ÇÏ¿© °æ¸Å¸¦ ÃëÇϽÃŰ°Å³ª °æ¸Å½Åûä±ÇÀÚ°¡ ¹è´ç¹ÞÀ» ±Ý¿øÀÌ ¾ø°ÔµÇ¾î À̸¥ ¹Ù "¹«À׿©¿¡ ÀÇÇÑ Ãë¼Ò"°¡ µÉ °¡´É¼ºÀÌ ÀÖ½À´Ï´Ù.
|
|
|
| Åë°è±â°£ |
³«Âû¹°°Ç¼ö |
Æò±Õ°¨Á¤°¡ |
Æò±Õ³«Âû°¡ |
³«Âû°¡À² |
À¯ÂûȽ¼ö |
| 3°³¿ù |
34°Ç |
378,558,824¿ø |
313,926,965¿ø |
81% |
1.5ȸ |
| 6°³¿ù |
83°Ç |
376,855,422¿ø |
314,132,681¿ø |
81% |
1.6ȸ |
| 12°³¿ù |
169°Ç |
375,254,438¿ø |
312,740,019¿ø |
82% |
1.5ȸ |
|
|
|
|
|
|
 |
|