|
|
| ¼ÒÀçÁö |
°æ±âµµ ¿ëÀνà ±âÈﱸ °ø¼¼·Î82¹ø±æ 30-1, ºñµ¿ 3Ãþ301È£ (°ø¼¼µ¿,»ï¼ºÆÓ¸®½º)
±¸)°æ±âµµ ¿ëÀνà ±âÈﱸ °ø¼¼µ¿ 177-2
|
|
| »ç°Ç¹øÈ£ |
2025 Ÿ°æ 52518 |
¹°°Ç¹øÈ£ |
1
|
¹°°Ç¿ëµµ |
´Ù¼¼´ë,ºô¶ó |
| °¨Á¤Æò°¡¾× |
210,000,000¿ø |
°æ¸Å´ë»ó |
ÅäÁö ¹× °Ç¹°Àϰý ¸Å°¢ |
ÁøÇà»óÅ |
À¯Âû |
| ÃÖÀúÀÔÂû°¡ |
(34%) 72,030,000¿ø
|
°Ç¹°¸éÀû |
55.64§³(16.83Æò) |
ÀÔÂû±âÀÏ |
2026.06.08(¿ù) 10:00
(ÀÔÂû 8ÀÏÀü)
|
| ÀÔÂûº¸Áõ±Ý |
(10%) 7,203,000¿ø |
ÅäÁö¸éÀû |
36.90§³(11.16Æò)
|
À¯ÂûȽ¼ö |
3ȸ |
| ÀÔÂû¹ý¿ø |
¼ö¿øÁö¹æ¹ý¿ø |
°æ¸Å¹æ¹ý |
|
¹°°ÇÁ¶È¸¼ö |
¿À´Ã: 1ȸ [´©Àû: 363ȸ]
|
| ¸»¼Ò±âÁØ | ÃÖ¼±¼øÀ§ ¼³Á¤ : 2021. 10. 8. °¡¾Ð·ù ¼³Á¤
|
|
|
|
|
|
|
|
|
|
|
°æ¸Å´ë»ó ¸ñ·Ï
|
|
| ±¸ºÐ |
¸ñ·Ï |
ÁÖ¼Ò |
±¸Á¶/¿ëµµ/´ëÁö±Ç |
ºñ°í |
´ëÁö±Ç
|
1 |
°ø¼¼µ¿ 177-2 |
294ºÐÀÇ 36.9 |
36.9§³ (11.16Æò)
|
°Ç¹°
|
1 |
°ø¼¼µ¿ 177-2 |
ºñµ¿ 3Ãþ301È£ ö±ÙÄÜÅ©¸®Æ®±¸Á¶ |
55.64§³ (16.83Æò)
|
|
|
|
2026-02-24
À¯Âû
|
(100%)
210,000,000¿ø
|
|
|
|
2026-03-30
À¯Âû
|
(70%)
147,000,000¿ø
|
|
|
|
2026-04-29
À¯Âû
|
(49%)
102,900,000¿ø
|
|
|
|
2026-06-08
ÁøÇà
|
(34%)
72,030,000¿ø
|
|
|
|
|
|
°¨Á¤Æò°¡¼ ¿ä¾à |
|
[À§Ä¡/ÁÖÀ§È¯°æ]
º»°ÇÀº °æ±âµµ ¿ëÀνà ±âÈﱸ °ø¼¼µ¿ ¼ÒÀç "±âÈïÃʵîÇб³" µ¿Ãø Àαٿ¡ À§Ä¡Çϸç,
ÁÖÀ§´Â ¾ÆÆÄÆ®´ÜÁö, ´Ù¼¼´ëÁÖÅÃ, ´Üµ¶ÁÖÅÃ, ±Ù¸°»ýȰ½Ã¼³, Çб³ µîÀÌ ¼ÒÀçÇϰí ÀÖ¾î,
Á¦¹Ý ÁÖÀ§È¯°æÀº º¸ÅëÀÓ
[±³Åë»óȲ]
º»°Ç±îÁö Â÷·®ÃâÀÔ °¡´ÉÇϰí, Àαٿ¡ ¹ö½ºÁ¤·ùÀåÀÌ ¼ÒÀçÇÏ´Â µî Á¦¹Ý ±³Åë»óȲÀº º¸ÅëÀÓ
[°Ç¹°±¸Á¶]
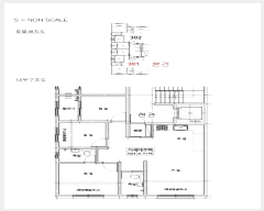
ö±ÙÄÜÅ©¸®Æ®±¸Á¶ Æò½½¶óºêÁöºØ 5Ãþ °Ç¹°³» 3Ãþ 301È£·Î¼,
»ç¿ë½ÂÀÎÀÏÀº 2018.01.12ÀÏÀÓ
- ¿Üº® : ¼®Àç ¹× µå¶óÀ̺ñÆ® ¸¶°¨ µî,
- âȣ : ¼¦½Ã âȣÀÓ.
[ÀÌ¿ë»óÅÂ]
´Ù¼¼´ëÁÖÅÃÀ¸·Î ÀÌ¿ëÁßÀÓ.
[¼³ºñ³»¿ª]
À§»ý/±Þ¹è¼ö¼³ºñ, ³¹æ¼³ºñ, µµ½Ã°¡½º¼³ºñ, ½Â°±â¼³ºñ µîÀÌ ±¸ºñµÇ¾î ÀÖÀ½.
[ÅäÁöÇü»ó/ÀÌ¿ë»óÅÂ]
3ÇÊÁö ÀÏ´ÜÀÇ »ç´Ù¸®ÇüÀÇ ÅäÁö·Î¼, ´Ù¼¼´ëÁÖÅà °ÇºÎÁö·Î ÀÌ¿ëÁß
7)ÀÎÁ¢ µµ·Î»óŵî
º»°Ç ºÏÃø ¹× ³²ÃøÀ¸·Î ³ëÆø ¾à 4¹ÌÅÍ ³»¿ÜÀÇ Æ÷Àåµµ·Î¿¡ Á¢ÇÔ.
[ÅäÁöÀÌ¿ë°èȹ]
3ÇÊÁö °øÈ÷
µµ½ÃÁö¿ª, Á¦1Á¾ÀϹÝÁÖ°ÅÁö¿ª, °¡Ãà»çÀ°Á¦Çѱ¸¿ª, »ó´ëº¸È£±¸¿ª, ¼ºÀå°ü¸®±Ç¿ªÀÓ
[°øºÎ¿ÍÀÇ Â÷ÀÌ]
¾øÀ½
[Âü°í»çÇ×]
ÀÓ´ë°ü°è´Â ¹Ì»óÀÓ. |
|
|
°ÇÃ๰ÇöȲ |
|
|
|
| ¼ÒÀçÁö |
°æ±âµµ ¿ëÀνà ±âÈﱸ °ø¼¼µ¿ 177-2¹øÁö |
| ´ëÁö¸éÀû |
294§³(89.09Æò) |
¿¬¸éÀû |
582.43§³(176.49Æò) |
ÁÖ¿ëµµ |
°øµ¿ÁÖÅà |
| °ÇÃà¸éÀû |
171.16§³(51.87Æò) |
¿ëÀû·ü»êÁ¤¿¬¸éÀû |
582.43§³(176.49Æò) |
Âø°øÀÏÀÚ |
2017.06.05 |
| °ÇÆóÀ² |
58.22% |
¿ëÀû·ü |
198.11% |
»ç¿ë½ÂÀÎÀÏÀÚ |
2018.01.12 |
| Áö»óÃþ¼ö |
5Ãþ |
ÁöÇÏÃþ¼ö |
|
±¸Á¶ |
ö±ÙÄÜÅ©¸®Æ®±¸Á¶ |
|
|
|
|
|
 |
ÀÓÂ÷³»¿ª |
[¹è´ç¿ä±¸Á¾±âÀÏ : 2025/04/02] |
|
|
| ÀÓÂ÷ÀÎ |
Á¡À¯°ü°è |
ÀüÀÔÀÏÀÚ |
È®Á¤ÀÏÀÚ |
¹è´ç¿ä±¸ÀÏ |
º¸Áõ±Ý/Â÷ÀÓ |
´ëÇ׿ä°Ç |
ºñ°í |
| À¯OO |
301È£ |
2024.11.19. |
|
|
|
X |
|
| ÃÖOO |
301È£ |
2021.7.9. |
2021.5.26. |
|
200,000,000
|
O |
2021.7.9. |
| ¸Å°¢¹°°Ç¸í¼¼ ºñ°í |
ÁÖÅõµ½Ãº¸Áõ°ø»ç:°æ¸Å½Åûä±ÇÀÚ·Î ÀÓÂ÷ÀÎ ÃÖ¼ö¿¬ÀÇ ÀÓÂ÷º¸Áõ±Ý¹Ýȯä±Ç ¾ç¼öÀÎÀÓ(´ëÇ׷¹׿켱º¯Á¦±Ç ½Â°è) |
|
|
|
 |
Áö¿ªºÐ¼® |
|
|
|
|
| ÁöÇÏö |
|
Çб³ |
|
| °ü°ø¼ |
|
| ¹ý¿ø |
¼ö¿øÁö¹æ¹ý¿ø (165-12)°æ±âµµ ¼ö¿ø½Ã ¿µÅ뱸 ¹ýÁ¶·Î 105, Çϵ¿, ¼ö¿ø¹ý¿øÁ¾ÇÕû»ç ´ëÇ¥ : 031)210-1114, ¾ß°£ : 031)210-1111 ¼ö¿ø½Ã, ¿À»ê½Ã, ȼº½Ã, ¿ëÀνà |
| µî±â¼Ò |
¼ö¿øÁö¹æ¹ý¿ø º»¿ø ¿ëÀεî±â¼Ò (´ëÇ¥:1544-0773, ÆÑ½º:(031)321-3919, °æ±âµµ ¿ëÀνà óÀα¸ ¼º»ê·Î 7 (¿ªºÏµ¿ 391-28)) |
| ¼¼¹«¼ |
±âÈï¼¼¹«¼ (´ëÇ¥:031-8007-1, ÆÑ½º:031-895-4902, °æ±âµµ ¿ëÀνà ±âÈﱸ Èï´ö2·Î117¹ø±æ 15(¿µ´öµ¿)) |
|
|
|
 |
¹ý¿ø ¹°°ÇÀÚ·á ¿ä¾à |
|
|
|
|
| ¼Ò¸êµÇÁö ¾Ê´Â µî±âºÎ±Ç¸® |
¸Å¼öÀο¡°Ô ´ëÇ×ÇÒ ¼ö ÀÖ´Â À»±¸ 10¹ø ÀÓÂ÷±Çµî±â(ÀÓ´ëÂ÷º¸Áõ±Ý 200,000,000¿ø, ÀüÀÔÀÏÀÚ 2021.7.9. È®Á¤ÀÏÀÚ 2021.5.26.)°¡ ÀÖ
À¸¹Ç·Î ¹è´ç¿¡¼ Àü¾× º¯Á¦µÇÁö ¾Æ´ÏÇϸé Àܾ×À» ¸Å¼öÀÎÀÌ ÀμöÇÔ |
| ¼³Á¤µÈ °ÍÀ¸·Î º¸´Â Áö»ó±Ç |
|
| ¹ý¿øÀÚ·á Æ¯ÀÌ»çÇ× |
[ÁÖ¿ä ¹®°Ç Á¢¼ö ³»¿ª]
|
[ºÎµ¿»ê ÇöȲÁ¶»ç¼ ºñ°í¶õ]
º»°Ç ºÎµ¿»êÀÇ ÇöȲÀº ¿Ü°ü»ó °øºÎÀÇ ³»¿ë°ú ÀÏÄ¡ÇÏ´Â °ÍÀ¸·Î º¸ÀÓ. |
|
| ¿©ÀÇÁÖ°æ¸Å Á¶¾ð ÇѸ¶µð |
ÀÌ ºÎµ¿»êÀÇ ÀÔÂû¹ý¿øÀº ¼ö¿øÁö¹æ¹ý¿øÀÔ´Ï´Ù.
ÀÔÂûÀÏÀº 2026-06-08ÀÔ´Ï´Ù.
ÀÔÂû½Ã°£Àº ~11:10ÀÔ´Ï´Ù. ÀÌ ¹ý¿ø¿¡´Â KB±¹¹ÎÀºÇàÀÌ ÀÔÁ¡Çϰí ÀÖ½À´Ï´Ù.
|
¼±¼øÀ§ ÀÓÂ÷±Çµî±â°¡ µÇ¾î ÀÖ½À´Ï´Ù ´ëÇ×·ÂÀÌ ÀÖ´Â ¼±¼øÀ§ ÀÓÂ÷±Çµî±â ±Ç¸®ÀÚ°¡ ¹è´çÀ» Àü¾× ¹ÞÁö ¸øÇÒ °æ¿ì ³«ÂûÀÚ°¡ ÀÜ¿© º¸Áõ±ÝÀ» ÀμöÇØ¾ßÇÏ´Â °æ¿ìµµ ÀÖ½À´Ï´Ù. |
|
|
| Åë°è±â°£ |
³«Âû¹°°Ç¼ö |
Æò±Õ°¨Á¤°¡ |
Æò±Õ³«Âû°¡ |
³«Âû°¡À² |
À¯ÂûȽ¼ö |
| 3°³¿ù |
6°Ç |
418,100,503¿ø |
296,805,370¿ø |
69% |
1.7ȸ |
| 6°³¿ù |
13°Ç |
408,200,232¿ø |
272,617,094¿ø |
68% |
1.8ȸ |
| 12°³¿ù |
19°Ç |
368,400,159¿ø |
263,217,268¿ø |
73% |
1.5ȸ |
|
|
|
|
|
|
 |
|