Warning: mysql_result() [function.mysql-result]: Unable to jump to row 0 on MySQL result index 20 in /home/auction/www/auction/detail_view_detail_pop_h.php on line 147
°­¼­±¸ ´ëÀú2µ¿ 2033-1 ¿ÀÇǽºÅÚ °æ¸Å | 2024Ÿ°æ112118

[°øÇ×¾Õ±æ13¹ø±æ ¿ÀÇǽºÅÚ ºÎµ¿»ê°æ¸Å] °­¼­±¸ 53, 2024Ÿ°æ112118

¢Ï ¹®ÀÇ : 1566-3370
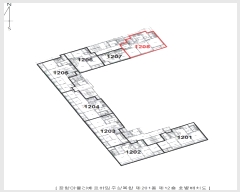
¼ÒÀçÁö ºÎ»ê±¤¿ª½Ã °­¼­±¸ °øÇ×¾Õ±æ13¹ø±æ 53, 201µ¿ 12Ãþ1208È£ (´ëÀú2µ¿,°øÇ׸¶À»¸®º£¸£ÇÏÀÓÁÖ»óº¹ÇÕ)
±¸)ºÎ»ê±¤¿ª½Ã °­¼­±¸ ´ëÀú2µ¿ 2033-1
ºÎµ¿»ê°æ¸Å ÀμâÇϱâ
¹ý¿ø°æ¸ÅÁ¤º¸ °ü½É¹°°Çµî·Ï
´ë¹ý¿ø°æ¸ÅÁ¤º¸ ¹Ù·Î°¡±â
¹ý¿ø°æ¸Å °üÇÒ¹ý¿ø
»ç°Ç¹øÈ£ 2024 Ÿ°æ 112118

¹°°Ç¹øÈ£

1 ¹°°Ç¿ëµµ ¿ÀÇǽºÅÚ
°¨Á¤Æò°¡¾× 250,000,000¿ø  °æ¸Å´ë»ó ÅäÁö ¹× °Ç¹°Àϰý ¸Å°¢ ÁøÇà»óÅ ½Å°Ç
ÃÖÀúÀÔÂû°¡ (100%) 250,000,000¿ø 

°Ç¹°¸éÀû

73.45§³(22.22Æò) ÀÔÂû±âÀÏ 2026.02.24(È­) 10:00
(ÀÔÂû 14ÀÏÀü)
ÀÔÂûº¸Áõ±Ý (10%) 25,000,000¿ø  ÅäÁö¸éÀû 24.65§³(7.46Æò) À¯ÂûȽ¼ö 0ȸ
ÀÔÂû¹ý¿ø ºÎ»êÁö¹æ¹ý¿ø ºÎ»ê¼­ºÎÁö¿ø  °æ¸Å¹æ¹ý ¹°°ÇÁ¶È¸¼ö ¿À´Ã: 3ȸ [´©Àû: 3ȸ]
¸»¼Ò±âÁØ
  °æ¸Å´ë»ó ¸ñ·Ï
±¸ºÐ ¸ñ·Ï ÁÖ¼Ò ±¸Á¶/¿ëµµ/´ëÁö±Ç ºñ°í
´ëÁö±Ç
1 ´ëÀú2µ¿ 2033-1 4737ºÐÀÇ 24.6467 24.6467§³ (7.46Æò)
°Ç¹°
1 ´ëÀú2µ¿ 2033-1 201µ¿ 12Ãþ1208È£ ö±ÙÄÜÅ©¸®Æ®±¸Á¶ 73.4473§³ (22.22Æò)
ÁøÇà (ÀÔÂû14ÀÏÀü)    
 2026-02-24 ÁøÇà (100%) 250,000,000¿ø 

  °¨Á¤Æò°¡¼­ ¿ä¾à
[À§Ä¡/ÁÖÀ§È¯°æ] º»°ÇÀº ºÎ»ê±¤¿ª½Ã °­¼­±¸ ´ëÀú2µ¿ ¼ÒÀç "ºÎ»ê´ëÀú°íµîÇб³" ºÏ¼­Ãø Àαٿ¡ À§Ä¡ÇÏ´Â °øÇ׸¶ À»¸®º£¸£ÇÏÀÓÁÖ»óº¹ÇÕ Á¦201µ¿ Á¦12Ãþ Á¦1208È£·Î¼­, ÁÖº¯Àº Á¦Á¶¾÷¼Ò, ÁÖ»ó¿ë°Ç¹° ¹× ±Ù¸° »ýȰ½Ã¼³ µîÀ¸·Î Çü¼ºµÇ¾î ÀÖÀ½.
[±³Åë»óȲ] º»°Ç±îÁö Â÷·®Á¢±Ù °¡´ÉÇϸç, Àαٿ¡ ½Ã³»¹ö½º Á¤·ùÀå ¹× ºÎ»ê.±èÇØ °æÀüö "´öµÎ¿ª"ÀÌ ¼ÒÀç ÇÏ¿© Á¦¹Ý ±³Åë»çÁ¤Àº º¸ÅëÀÓ.
[°Ç¹°±¸Á¶] ö±ÙÄÜÅ©¸®Æ®±¸Á¶ Æò½º¶óºêÁöºØ ÁöÇÏ2Ãþ, Áö»ó15Ãþ °Ç¹°³» Á¦12Ãþ Á¦1208È£·Î¼­, ¿Üº® : ¸ôÅ»À§ÆäÀÎÆÃ ¸¶°¨ µî, âȣ : ÇÏÀÌ»õ½Ãâ ±¸Á¶ÀÓ.
[ÀÌ¿ë»óÅÂ] ¿ÀÇǽºÅÚ( Æó¹®ºÎÀç)·Î ÀÌ¿ëÁßÀÓ.
[¼³ºñ³»¿ª] À§»ý ¹× ±Þ¡¤¹è¼ö½Ã¼³, ½Â°­±â¼³ºñ, ¼ÒÈ­Àü¼³ºñ, È­Àç°æº¸±â¼³ºñ, È­ÀçŽÁö±â, µµ½Ã°¡½º¿¡ ÀÇÇÑ °³º°³­¹æ¼³ºñ µîÀÌ µÇ¾î ÀÖÀ½.
[ÅäÁöÇü»ó/ÀÌ¿ë»óÅÂ] »ç´Ù¸®ÇüÀÇ ÅäÁö·Î¼­ ÀÎÁ¢Áö¿Í µî°íÆòźÇÏ°Ô Á¶¼ºµÇ¾î ÀÖÀ¸¸ç, °øµ¿ÁÖÅà °ÇºÎÁö·Î ÀÌ¿ëÁßÀÓ.
7)ÀÎÁ¢ µµ·Î»óÅÂµî ³²¼­ÃøÀ¸·Î Æø ¾à 6m-10m ³»¿ÜÀÇ Æ÷Àåµµ·Î¿¡ Á¢Çϰí ÀÖÀ½.
[ÅäÁöÀÌ¿ë°èȹ] µµ½ÃÁö¿ª, ÁØÁÖ°ÅÁö¿ª(2017-08-09), ±â¹Ý½Ã¼³ºÎ´ã±¸¿ª(2017-11-15), Á¦1Á¾Áö±¸´ÜÀ§°èȹ±¸¿ª (°øÇ׸¶À»), ¼Ò·Î1·ù(Æø 10m-12m)(Á¢ÇÕ), ¼Ò·Î2·ù(Æø 8m-10m)(Á¢ÇÕ), »ó´ëº¸È£±¸¿ª(2016 -12-30)£¼±³À°È¯°æ º¸È£¿¡ °üÇÑ ¹ý·ü£¾, ºñÇà¾ÈÀüÁ¦5±¸¿ª(Àü¼ú)£¼±º»ç±âÁö ¹× ±º»ç½Ã¼³ º¸È£ ¹ý£¾, ¿ª»ç¹®È­È¯°æº¸Á¸Áö¿ª£¼ºÎ»ê±¤¿ª½ÃÁöÁ¤¹®È­À纸ȣÁ¶·Ê£¾ÀÓ.
[°øºÎ¿ÍÀÇ Â÷ÀÌ] ¾ø À½.
[Âü°í»çÇ×] (1) ÀÓ´ë°ü°è : ¹Ì »ó. (2) ±â Ÿ : ¾ø À½.
±¹ÅäºÎ½Ç°Å·¡°¡ (ºÎ»ê±¤¿ª½Ã °­¼­±¸ ´ëÀú2µ¿) ½Ç°Å·¡°¡È®ÀÎ

¸éÀû(§³), ±Ý¾×(¸¸¿ø)

°è¾àÀϱâÁذǹ°¸íĪÃþÀü¿ë¸éÀû°Å·¡±Ý¾×°ÇÃà³âµµ
°Å·¡³»¿ªÀÌ ¾ø½À´Ï´Ù.
°è¾àÀϱâÁذǹ°¸íĪÃþÀü¿ë¸éÀûº¸Áõ±Ý¿ù¼¼°ÇÃà³âµµ
2025.10.02Àü¼¼°øÇ׸¶À» ¸®º£¸£ÇÏÀÓ ÁÖ»óº¹ÇÕ1528.9310,00002021
ÀÓÂ÷³»¿ª [¹è´ç¿ä±¸Á¾±âÀÏ : 2025/02/10]
ÀÓÂ÷ÀÎ Á¡À¯°ü°è ÀüÀÔÀÏÀÚ È®Á¤ÀÏÀÚ ¹è´ç¿ä±¸ÀÏ º¸Áõ±Ý/Â÷ÀÓ ´ëÇ׿ä°Ç ºñ°í
¸Å°¢±âÀÏ 7ÀÏÀü¿¡ °ø°íµÇ¿À´Ï È®ÀÎÇϽñ⠹ٶø´Ï´Ù.
Áö¿ªºÐ¼®    
ÁöÇÏö Çб³
°ü°ø¼­
¹ý¿ø ºÎ»êÁö¹æ¹ý¿ø ¼­ºÎÁö¿ø (467-26)ºÎ»ê±¤¿ª½Ã °­¼­±¸ ¸íÁö±¹Á¦7·Î 77 (¸íÁöµ¿)
´ëÇ¥ : 051)812-1114~5
¼­±¸, ºÏ±¸, »ç»ó±¸, »çÇϱ¸, °­¼­±¸
µî±â¼Ò ºÎ»êÁö¹æ¹ý¿ø ¼­ºÎÁö¿ø µî±â°ú (´ëÇ¥:1544-0773, ÆÑ½º:(051)812-1350, ºÎ»ê °­¼­±¸ ¸íÁö±¹Á¦ 7·Î 77 (¸íÁöµ¿ 2261))
¼¼¹«¼­ ºÏºÎ»ê¼¼¹«¼­ (´ëÇ¥:051-310-62, ÆÑ½º:051-310-6549, ºÎ»ê±¤¿ª½Ã »ç»ó±¸ Çа¨´ë·Î 263(°¨Àüµ¿))
¹ý¿ø ¹°°ÇÀÚ·á ¿ä¾à    
¼Ò¸êµÇÁö ¾Ê´Â µî±âºÎ±Ç¸®
¼³Á¤µÈ °ÍÀ¸·Î º¸´Â Áö»ó±Ç
¹ý¿øÀÚ·á Æ¯ÀÌ»çÇ×
[ÁÖ¿ä ¹®°Ç Á¢¼ö ³»¿ª]
¿©ÀÇÁÖ°æ¸Å Á¶¾ð ÇѸ¶µð
ÀÌ ºÎµ¿»êÀÇ ÀÔÂû¹ý¿øÀº ºÎ»êÁö¹æ¹ý¿ø ºÎ»ê¼­ºÎÁö¿øÀÔ´Ï´Ù.
ÀÔÂûÀÏÀº 2026-02-24ÀÔ´Ï´Ù. ÀÔÂû½Ã°£Àº ~11:20ÀÔ´Ï´Ù. ÀÌ ¹ý¿ø¿¡´Â ºÎ»êÀºÇàÀÌ ÀÔÁ¡Çϰí ÀÖ½À´Ï´Ù.
Àα٠ºÎµ¿»ê°æ¸Å ³«ÂûÅë°è
Åë°è±â°£ ³«Âû¹°°Ç¼ö Æò±Õ°¨Á¤°¡ Æò±Õ³«Âû°¡ ³«Âû°¡À² À¯ÂûȽ¼ö
¹«·á »ó´ãÀüÈ­ 1566-3370 ===> »ç°Ç¹øÈ£ : 2024 Ÿ°æ 112118 (ºÎ»êÁö¹æ¹ý¿ø ºÎ»ê¼­ºÎÁö¿ø)¸¦ ¸»¾¸ÇØ ÁÖ¼¼¿ä.
[¾È³»] Ȥ½Ã ÀÌ¿ëÀÌ ºÒÆíÇϽðųª »èÁ¦ÇÒ ³»¿ëÀÌ ÀÖ´Ù¸é ÃÖ´ëÇÑ ³ë·ÂÇØ¼­ °³¼±ÇØ ³ª°¡µµ·Ï ÇϰڽÀ´Ï´Ù.

ÀÌ »çÀÌÆ®¿¡¼­ Á¦°øµÇ´Â ºÎµ¿»ê°æ¸Å ÀÚ·á´Â ¹ý¿ø °æ¸Å°è¿¡¼­ ó¸®Çϰí ÀÖ´Â ½ÇÁ¦ ¹°°ÇÀÇ Á¤º¸¿Í ÀÏÄ¡ÇÏÁö ¾ÊÀ» ¼öµµ ÀÖ½À´Ï´Ù.
´ç»ç´Â º» ÀÚ·á¿¡ °üÇÏ¿© Á¤½Ä ÄÁ¼³ÆÃ ÀÇ·Ú°¡ ¾Æ´Ñ ÀÌ»ó ¾î¶°ÇÑ º¸Áõµµ ÇÏÁö ¾ÊÀ¸¸ç ¹ýÀû Ã¥ÀÓÀ» ÁöÁö ¾Ê½À´Ï´Ù.
ÀÔÂûÇϱâ Àü¿¡ ²Ä²ÄÈ÷ ¹ý¿ø¿¡ ºñÄ¡µÈ ¸Å°¢¹°°Ç¸í¼¼¼­ ¹× ±âŸ °øºÎ¸¦ ÀçÈ®ÀÎÇϽðí ÀÔÂû¿¡ Âü°¡ÇÏ½Ã±æ ¹Ù¶ø´Ï´Ù.