|
|
| ¼ÒÀçÁö |
°æ±âµµ ±èÆ÷½Ã ¾çÃÌÀ¾ Ȳ±Ý·Î89¹ø±æ 25, 111µ¿ 11Ãþ1102È£ (±èÆ÷¾çÃ̱ݺû¸¶À»ÀÚ¿¬¾Øµ¥½Ã¾Ó¾ÆÆÄÆ®)
±¸)°æ±âµµ ±èÆ÷½Ã ¾çÃÌÀ¾ Çп 3019
|
|
| »ç°Ç¹øÈ£ |
2025 Ÿ°æ 30408 Áߺ¹ 2025Ÿ°æ2403, |
¹°°Ç¹øÈ£ |
1
|
¹°°Ç¿ëµµ |
¾ÆÆÄÆ® |
| °¨Á¤Æò°¡¾× |
300,000,000¿ø |
°æ¸Å´ë»ó |
ÅäÁö ¹× °Ç¹°Àϰý ¸Å°¢ |
ÁøÇà»óÅ |
½Å°Ç |
| ÃÖÀúÀÔÂû°¡ |
(100%) 300,000,000¿ø
|
°Ç¹°¸éÀû |
84.95§³(25.70Æò) |
ÀÔÂû±âÀÏ |
2026.02.26(¸ñ) 10:00
(ÀÔÂû 13ÀÏÀü)
|
| ÀÔÂûº¸Áõ±Ý |
(10%) 30,000,000¿ø |
ÅäÁö¸éÀû |
68.32§³(20.67Æò)
|
À¯ÂûȽ¼ö |
0ȸ |
| ÀÔÂû¹ý¿ø |
ÀÎõÁö¹æ¹ý¿ø ºÎõÁö¿ø |
°æ¸Å¹æ¹ý |
|
¹°°ÇÁ¶È¸¼ö |
¿À´Ã: 4ȸ [´©Àû: 17ȸ]
|
| ¸»¼Ò±âÁØ | ÃÖ¼±¼øÀ§ ¼³Á¤ : 2011.01.06. ±ÙÀú´ç±Ç ¼³Á¤
|
|
|
|
|
|
|
|
|
|
|
°æ¸Å´ë»ó ¸ñ·Ï
|
|
| ±¸ºÐ |
¸ñ·Ï |
ÁÖ¼Ò |
±¸Á¶/¿ëµµ/´ëÁö±Ç |
ºñ°í |
´ëÁö±Ç
|
1 |
Çп 3019 |
51028ºÐÀÇ 68.319 |
68.319§³ (20.67Æò)
|
°Ç¹°
|
1 |
Çп 3019 |
111µ¿ 11Ãþ1102È£ ö±ÙÄÜÅ©¸®Æ®±¸Á¶ |
84.945§³ (25.70Æò)
|
|
|
|
2026-02-26
ÁøÇà
|
(100%)
300,000,000¿ø
|
|
|
|
|
|
°¨Á¤Æò°¡¼ ¿ä¾à |
|
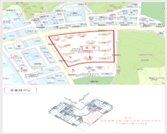
[À§Ä¡/ÁÖÀ§È¯°æ]
º»°ÇÀº °æ±âµµ ±èÆ÷½Ã ¾çÃÌÀ¾ Çп¼ÒÀç ÇпîÃʵîÇб³ ³²ÃøÀαٿ¡ À§Ä¡Çϸç
ÁÖÀ§·Î´Â ¾ÆÆÄÆ® ¹× ´Ù¼¼´ëÁÖÅÃ,±Ù¸°»ýȰ½Ã¼³,°ø¾÷¿ë°Ç¹°ÀÌ È¥ÀçÇÔ.
[±³Åë»óȲ]
º»°Ç±îÁö Â÷·®ÃâÀÔ °¡´ÉÇϰí Àαٿ¡ ¹ö½ºÁ¤·ùÀåÀÌ ¼ÒÀçÇÏ¿© ±³Åë¿©°ÇÀº ¹«³ÇÔ.
[°Ç¹°±¸Á¶]
ö±ÙÄÜÅ©¸®Æ®±¸Á¶ (ö±Ù)ÄÜÅ©¸®Æ®ÁöºØ 15Ãþ °Ç¹° Áß 11Ãþ 1102È£·Î¼
¿Üº®:¸ôÅ»À§ÆäÀÎÆÃ ¸¶°¨ ¹× ¼®Àç ¸¶°¨µî.
âȣ:ÇÏÀÌ»þ½Ãâȣ.
[ÀÌ¿ë»óÅÂ]
¾ÆÆÄÆ®·Î ÀÌ¿ëÁßÀÓ.
[¼³ºñ³»¿ª]
À§»ý¼³ºñ,³¹æ¼³ºñ,½Â°±â¼³ºñµîÀÌ µÇ¾îÀÖÀ½.
[ÅäÁöÇü»ó/ÀÌ¿ë»óÅÂ]
»ç´Ù¸®ÇüÅäÁö¸¦ ¾ÆÆÄÆ® °ÇºÎÁö·Î ÀÌ¿ëÁßÀÓ.
7)ÀÎÁ¢ µµ·Î»óŵî
´ÜÁö³» µµ·Î°¡ ¿Ü°û°øµµ¿¡ ¿¬°áµÊ.
[ÅäÁöÀÌ¿ë°èȹ]
µµ½ÃÁö¿ª , Á¦2Á¾ÀϹÝÁÖ°ÅÁö¿ª , ¼Ò·Î3·ù(Æø 8m ¹Ì¸¸)(Ư¼öµµ·Î)(Á¢ÇÕ) , Áß·Î2·ù(Æø 15m-20m)(±¹Áöµµ·Î)(Á¢ÇÕ)
°¡Ãà»çÀ°Á¦Çѱ¸¿ª(¸ðµçÃàÁ¾ Á¦ÇÑ)£¼°¡ÃàºÐ´¢ÀÇ °ü¸® ¹× À̿뿡 °üÇÑ ¹ý·ü£¾, »ó´ëº¸È£±¸¿ª(ÇпîÃʵîÇб³)£¼±³À°È¯°æ º¸È£¿¡ °üÇÑ ¹ý·ü£¾, ±º»ç±âÁö ¹× ±º»ç½Ã¼³ º¸È£±¸¿ª(À°±º17»ç´Ü°üÇÒÁö¿ª)£¼±º»ç±âÁö ¹× ±º»ç½Ã¼³ º¸È£¹ý£¾, Á¦ÇѺ¸È£±¸¿ª(Àü¹æÁö¿ª:25km)(À§Å¹Áö¿ª 50m)£¼±º»ç±âÁö ¹× ±º»ç½Ã¼³ º¸È£¹ý£¾, ÀϹݻê¾÷´ÜÁö(¾çÃÌÀϹݻê¾÷´ÜÁö)£¼»ê¾÷ÀÔÁö ¹× °³¹ß¿¡ °üÇÑ ¹ý·ü£¾, ¼ºÀå°ü¸®±Ç¿ª£¼¼öµµ±ÇÁ¤ºñ°èȹ¹ý£¾
[°øºÎ¿ÍÀÇ Â÷ÀÌ]
---
[Âü°í»çÇ×]
ÀÓ´ë°ü°è:¹Ì»óÀÓ, |
|
|
°ÇÃ๰ÇöȲ |
|
|
|
| ¼ÒÀçÁö |
°æ±âµµ ±èÆ÷½Ã ¾çÃÌÀ¾ Çп 3019¹øÁö |
| ´ëÁö¸éÀû |
|
¿¬¸éÀû |
202.455§³(61.35Æò) |
ÁÖ¿ëµµ |
°øµ¿ÁÖÅà |
| °ÇÃà¸éÀû |
|
¿ëÀû·ü»êÁ¤¿¬¸éÀû |
|
Âø°øÀÏÀÚ |
2008.10.09 |
| °ÇÆóÀ² |
|
¿ëÀû·ü |
|
»ç¿ë½ÂÀÎÀÏÀÚ |
2010.12.02 |
| Áö»óÃþ¼ö |
1Ãþ |
ÁöÇÏÃþ¼ö |
|
±¸Á¶ |
ö±ÙÄÜÅ©¸®Æ®±¸Á¶ |
|
|
|
|
|
|
|
|
¸éÀû(§³), ±Ý¾×(¸¸¿ø)
| °è¾àÀÏ | ±âÁØ | ¾ÆÆÄÆ®¸í | Ãþ | Àü¿ë¸éÀû | °Å·¡±Ý¾× | °ÇÃà³âµµ | | °Å·¡³»¿ªÀÌ ¾ø½À´Ï´Ù. |
| °è¾àÀÏ | ±âÁØ | ¾ÆÆÄÆ®¸í | Ãþ | Àü¿ë¸éÀû | º¸Áõ±Ý | ¿ù¼¼ | °ÇÃà³âµµ | | 2026.02.10 | Àü¼¼ | ÀÚ¿¬¾Øµ¥½Ã¾Ó(±Ýºû¸¶À») | 10 | 84.753 | 21,500 | 0 | 2010 | | 2026.01.31 | ¿ù¼¼ | ÀÚ¿¬¾Øµ¥½Ã¾Ó(±Ýºû¸¶À») | 13 | 84.607 | 2,000 | 90 | 2010 | | 2026.01.30 | Àü¼¼ | ÀÚ¿¬¾Øµ¥½Ã¾Ó(±Ýºû¸¶À») | 3 | 84.945 | 20,600 | 0 | 2010 | | 2026.01.21 | ¿ù¼¼ | ÀÚ¿¬¾Øµ¥½Ã¾Ó(±Ýºû¸¶À») | 2 | 84.813 | 7,000 | 70 | 2010 | | 2026.01.14 | ¿ù¼¼ | ÀÚ¿¬¾Øµ¥½Ã¾Ó(±Ýºû¸¶À») | 13 | 84.554 | 5,000 | 30 | 2010 | | 2026.01.07 | ¿ù¼¼ | ÀÚ¿¬¾Øµ¥½Ã¾Ó(±Ýºû¸¶À») | 1 | 84.554 | 18,000 | 40 | 2010 | | 2026.01.03 | Àü¼¼ | ÀÚ¿¬¾Øµ¥½Ã¾Ó(±Ýºû¸¶À») | 5 | 84.813 | 18,000 | 0 | 2010 | | 2025.12.19 | ¿ù¼¼ | ÀÚ¿¬¾Øµ¥½Ã¾Ó(±Ýºû¸¶À») | 14 | 84.828 | 5,000 | 100 | 2010 | | 2025.12.10 | ¿ù¼¼ | ÀÚ¿¬¾Øµ¥½Ã¾Ó(±Ýºû¸¶À») | 2 | 84.607 | 3,000 | 100 | 2010 | | 2025.12.04 | ¸Å¸Å | ÀÚ¿¬¾Øµ¥½Ã¾Ó(±Ýºû¸¶À») | 13 | 84.945 | 28,000 | | 2010 | | 2025.12.01 | Àü¼¼ | ÀÚ¿¬¾Øµ¥½Ã¾Ó(±Ýºû¸¶À») | 15 | 84.607 | 23,000 | 0 | 2010 | | 2025.11.29 | ¸Å¸Å | ÀÚ¿¬¾Øµ¥½Ã¾Ó(±Ýºû¸¶À») | 5 | 84.753 | 28,800 | | 2010 | | 2025.11.28 | ¸Å¸Å | ÀÚ¿¬¾Øµ¥½Ã¾Ó(±Ýºû¸¶À») | 13 | 84.828 | 37,500 | | 2010 | | 2025.11.24 | ¸Å¸Å | ÀÚ¿¬¾Øµ¥½Ã¾Ó(±Ýºû¸¶À») | 14 | 84.945 | 26,500 | | 2010 | | 2025.11.06 | ¸Å¸Å | ÀÚ¿¬¾Øµ¥½Ã¾Ó(±Ýºû¸¶À») | 5 | 84.753 | 28,000 | | 2010 | | 2025.10.30 | ¸Å¸Å | ÀÚ¿¬¾Øµ¥½Ã¾Ó(±Ýºû¸¶À») | 6 | 84.945 | 27,000 | | 2010 | | 2025.10.29 | ¿ù¼¼ | ÀÚ¿¬¾Øµ¥½Ã¾Ó(±Ýºû¸¶À») | 5 | 84.945 | 1,000 | 150 | 2010 | | 2025.10.22 | ¸Å¸Å | ÀÚ¿¬¾Øµ¥½Ã¾Ó(±Ýºû¸¶À») | 14 | 84.945 | 26,500 | | 2010 | | 2025.10.19 | Àü¼¼ | ÀÚ¿¬¾Øµ¥½Ã¾Ó(±Ýºû¸¶À») | 5 | 84.753 | 23,000 | 0 | 2010 | | 2025.10.15 | ¿ù¼¼ | ÀÚ¿¬¾Øµ¥½Ã¾Ó(±Ýºû¸¶À») | 8 | 84.813 | 2,000 | 100 | 2010 | | 2025.10.03 | Àü¼¼ | ÀÚ¿¬¾Øµ¥½Ã¾Ó(±Ýºû¸¶À») | 3 | 84.945 | 18,000 | 0 | 2010 | | 2025.10.03 | ¿ù¼¼ | ÀÚ¿¬¾Øµ¥½Ã¾Ó(±Ýºû¸¶À») | 11 | 84.945 | 2,000 | 100 | 2010 | | 2025.10.03 | ¿ù¼¼ | ÀÚ¿¬¾Øµ¥½Ã¾Ó(±Ýºû¸¶À») | 11 | 84.945 | 2,000 | 100 | 2010 | | 2025.10.03 | ¿ù¼¼ | ÀÚ¿¬¾Øµ¥½Ã¾Ó(±Ýºû¸¶À») | 2 | 84.945 | 2,000 | 95 | 2010 | | 2025.10.02 | ¸Å¸Å | ÀÚ¿¬¾Øµ¥½Ã¾Ó(±Ýºû¸¶À») | 11 | 84.753 | 26,000 | | 2010 | | 2025.09.29 | ¿ù¼¼ | ÀÚ¿¬¾Øµ¥½Ã¾Ó(±Ýºû¸¶À») | 8 | 84.945 | 2,000 | 100 | 2010 | | 2025.09.29 | ¸Å¸Å | ÀÚ¿¬¾Øµ¥½Ã¾Ó(±Ýºû¸¶À») | 6 | 84.753 | 26,000 | | 2010 | | 2025.09.27 | ¿ù¼¼ | ÀÚ¿¬¾Øµ¥½Ã¾Ó(±Ýºû¸¶À») | 14 | 84.554 | 2,000 | 100 | 2010 | | 2025.09.22 | ¿ù¼¼ | ÀÚ¿¬¾Øµ¥½Ã¾Ó(±Ýºû¸¶À») | 1 | 84.554 | 10,000 | 60 | 2010 | | 2025.09.17 | ¿ù¼¼ | ÀÚ¿¬¾Øµ¥½Ã¾Ó(±Ýºû¸¶À») | 10 | 84.813 | 4,500 | 50 | 2010 | | 2025.09.17 | ¿ù¼¼ | ÀÚ¿¬¾Øµ¥½Ã¾Ó(±Ýºû¸¶À») | 7 | 84.945 | 5,250 | 63 | 2010 | | 2025.09.16 | ¸Å¸Å | ÀÚ¿¬¾Øµ¥½Ã¾Ó(±Ýºû¸¶À») | 9 | 84.753 | 26,000 | | 2010 | | 2025.09.15 | ¸Å¸Å | ÀÚ¿¬¾Øµ¥½Ã¾Ó(±Ýºû¸¶À») | 4 | 84.945 | 25,500 | | 2010 | | 2025.09.15 | ¸Å¸Å | ÀÚ¿¬¾Øµ¥½Ã¾Ó(±Ýºû¸¶À») | 8 | 84.813 | 28,000 | | 2010 | | 2025.09.11 | ¸Å¸Å | ÀÚ¿¬¾Øµ¥½Ã¾Ó(±Ýºû¸¶À») | 5 | 84.554 | 27,200 | | 2010 | | 2025.09.10 | ¿ù¼¼ | ÀÚ¿¬¾Øµ¥½Ã¾Ó(±Ýºû¸¶À») | 7 | 84.945 | 2,000 | 90 | 2010 | | 2025.09.07 | Àü¼¼ | ÀÚ¿¬¾Øµ¥½Ã¾Ó(±Ýºû¸¶À») | 2 | 84.607 | 18,000 | 0 | 2010 | | 2025.09.06 | ¿ù¼¼ | ÀÚ¿¬¾Øµ¥½Ã¾Ó(±Ýºû¸¶À») | 13 | 84.813 | 2,000 | 100 | 2010 | | 2025.09.05 | ¿ù¼¼ | ÀÚ¿¬¾Øµ¥½Ã¾Ó(±Ýºû¸¶À») | 8 | 84.813 | 1,500 | 90 | 2010 | | 2025.09.01 | ¸Å¸Å | ÀÚ¿¬¾Øµ¥½Ã¾Ó(±Ýºû¸¶À») | 6 | 84.813 | 24,000 | | 2010 | | 2025.09.01 | ¸Å¸Å | ÀÚ¿¬¾Øµ¥½Ã¾Ó(±Ýºû¸¶À») | 11 | 84.607 | 27,400 | | 2010 | | 2025.08.29 | ¸Å¸Å | ÀÚ¿¬¾Øµ¥½Ã¾Ó(±Ýºû¸¶À») | 11 | 84.753 | 27,000 | | 2010 | | 2025.08.28 | Àü¼¼ | ÀÚ¿¬¾Øµ¥½Ã¾Ó(±Ýºû¸¶À») | 8 | 84.945 | 20,000 | 0 | 2010 | | 2025.08.27 | Àü¼¼ | ÀÚ¿¬¾Øµ¥½Ã¾Ó(±Ýºû¸¶À») | 1 | 84.607 | 19,000 | 0 | 2010 | | 2025.08.27 | Àü¼¼ | ÀÚ¿¬¾Øµ¥½Ã¾Ó(±Ýºû¸¶À») | 15 | 84.945 | 28,000 | 0 | 2010 | | 2025.08.21 | ¸Å¸Å | ÀÚ¿¬¾Øµ¥½Ã¾Ó(±Ýºû¸¶À») | 15 | 84.607 | 28,500 | | 2010 | | 2025.08.19 | ¸Å¸Å | ÀÚ¿¬¾Øµ¥½Ã¾Ó(±Ýºû¸¶À») | 15 | 84.945 | 26,500 | | 2010 | | 2025.08.09 | ¿ù¼¼ | ÀÚ¿¬¾Øµ¥½Ã¾Ó(±Ýºû¸¶À») | 9 | 84.813 | 16,500 | 30 | 2010 | | 2025.08.04 | Àü¼¼ | ÀÚ¿¬¾Øµ¥½Ã¾Ó(±Ýºû¸¶À») | 11 | 84.554 | 23,000 | 0 | 2010 | | 2025.07.29 | ¸Å¸Å | ÀÚ¿¬¾Øµ¥½Ã¾Ó(±Ýºû¸¶À») | 14 | 84.945 | 27,700 | | 2010 | | 2025.07.26 | ¿ù¼¼ | ÀÚ¿¬¾Øµ¥½Ã¾Ó(±Ýºû¸¶À») | 10 | 84.813 | 2,000 | 100 | 2010 | | 2025.07.11 | ¸Å¸Å | ÀÚ¿¬¾Øµ¥½Ã¾Ó(±Ýºû¸¶À») | 2 | 84.945 | 26,000 | | 2010 | | 2025.06.23 | Àü¼¼ | ÀÚ¿¬¾Øµ¥½Ã¾Ó(±Ýºû¸¶À») | 12 | 84.945 | 22,000 | 0 | 2010 | | 2025.06.23 | Àü¼¼ | ÀÚ¿¬¾Øµ¥½Ã¾Ó(±Ýºû¸¶À») | 12 | 84.945 | 22,000 | 0 | 2010 | | 2025.06.20 | ¸Å¸Å | ÀÚ¿¬¾Øµ¥½Ã¾Ó(±Ýºû¸¶À») | 12 | 84.813 | 26,500 | | 2010 | | 2025.06.16 | ¿ù¼¼ | ÀÚ¿¬¾Øµ¥½Ã¾Ó(±Ýºû¸¶À») | 9 | 84.945 | 2,000 | 100 | 2010 | | 2025.06.14 | ¿ù¼¼ | ÀÚ¿¬¾Øµ¥½Ã¾Ó(±Ýºû¸¶À») | 10 | 84.554 | 3,000 | 90 | 2010 | | 2025.06.11 | ¿ù¼¼ | ÀÚ¿¬¾Øµ¥½Ã¾Ó(±Ýºû¸¶À») | 11 | 84.607 | 2,000 | 80 | 2010 | | 2025.06.11 | ¿ù¼¼ | ÀÚ¿¬¾Øµ¥½Ã¾Ó(±Ýºû¸¶À») | 8 | 84.945 | 2,000 | 100 | 2010 | | 2025.06.07 | Àü¼¼ | ÀÚ¿¬¾Øµ¥½Ã¾Ó(±Ýºû¸¶À») | 10 | 84.813 | 20,000 | 0 | 2010 | | 2025.06.06 | ¸Å¸Å | ÀÚ¿¬¾Øµ¥½Ã¾Ó(±Ýºû¸¶À») | 11 | 84.945 | 27,900 | | 2010 | | 2025.06.03 | ¸Å¸Å | ÀÚ¿¬¾Øµ¥½Ã¾Ó(±Ýºû¸¶À») | 12 | 84.753 | 26,900 | | 2010 | | 2025.05.28 | ¿ù¼¼ | ÀÚ¿¬¾Øµ¥½Ã¾Ó(±Ýºû¸¶À») | 3 | 84.753 | 3,000 | 90 | 2010 | | 2025.05.21 | ¿ù¼¼ | ÀÚ¿¬¾Øµ¥½Ã¾Ó(±Ýºû¸¶À») | 5 | 84.945 | 2,000 | 100 | 2010 | | 2025.05.19 | ¿ù¼¼ | ÀÚ¿¬¾Øµ¥½Ã¾Ó(±Ýºû¸¶À») | 3 | 84.813 | 5,000 | 80 | 2010 | | 2025.05.19 | Àü¼¼ | ÀÚ¿¬¾Øµ¥½Ã¾Ó(±Ýºû¸¶À») | 1 | 84.554 | 21,000 | 0 | 2010 | | 2025.05.17 | ¸Å¸Å | ÀÚ¿¬¾Øµ¥½Ã¾Ó(±Ýºû¸¶À») | 13 | 84.945 | 26,000 | | 2010 | | 2025.05.13 | ¿ù¼¼ | ÀÚ¿¬¾Øµ¥½Ã¾Ó(±Ýºû¸¶À») | 11 | 84.813 | 2,000 | 100 | 2010 | | 2025.05.02 | ¿ù¼¼ | ÀÚ¿¬¾Øµ¥½Ã¾Ó(±Ýºû¸¶À») | 7 | 84.945 | 3,000 | 90 | 2010 | | 2025.05.02 | ¿ù¼¼ | ÀÚ¿¬¾Øµ¥½Ã¾Ó(±Ýºû¸¶À») | 7 | 84.945 | 3,000 | 90 | 2010 | | 2025.04.29 | Àü¼¼ | ÀÚ¿¬¾Øµ¥½Ã¾Ó(±Ýºû¸¶À») | 7 | 84.945 | 21,000 | 0 | 2010 | | 2025.04.28 | ¿ù¼¼ | ÀÚ¿¬¾Øµ¥½Ã¾Ó(±Ýºû¸¶À») | 11 | 84.945 | 2,000 | 93 | 2010 | | 2025.04.26 | ¿ù¼¼ | ÀÚ¿¬¾Øµ¥½Ã¾Ó(±Ýºû¸¶À») | 1 | 84.813 | 2,000 | 90 | 2010 | | 2025.04.24 | ¸Å¸Å | ÀÚ¿¬¾Øµ¥½Ã¾Ó(±Ýºû¸¶À») | 12 | 84.945 | 26,000 | | 2010 | | 2025.04.19 | ¸Å¸Å | ÀÚ¿¬¾Øµ¥½Ã¾Ó(±Ýºû¸¶À») | 3 | 84.753 | 29,000 | | 2010 | | 2025.04.10 | ¸Å¸Å | ÀÚ¿¬¾Øµ¥½Ã¾Ó(±Ýºû¸¶À») | 6 | 84.813 | 26,500 | | 2010 | | 2025.04.10 | ¿ù¼¼ | ÀÚ¿¬¾Øµ¥½Ã¾Ó(±Ýºû¸¶À») | 14 | 84.554 | 2,000 | 100 | 2010 | | 2025.04.10 | Àü¼¼ | ÀÚ¿¬¾Øµ¥½Ã¾Ó(±Ýºû¸¶À») | 8 | 84.753 | 21,000 | 0 | 2010 | | 2025.04.09 | Àü¼¼ | ÀÚ¿¬¾Øµ¥½Ã¾Ó(±Ýºû¸¶À») | 4 | 84.945 | 23,000 | 0 | 2010 | | 2025.04.03 | ¸Å¸Å | ÀÚ¿¬¾Øµ¥½Ã¾Ó(±Ýºû¸¶À») | 11 | 84.813 | 26,500 | | 2010 | | 2025.04.03 | Àü¼¼ | ÀÚ¿¬¾Øµ¥½Ã¾Ó(±Ýºû¸¶À») | 4 | 84.945 | 23,000 | 0 | 2010 | | 2025.04.02 | ¿ù¼¼ | ÀÚ¿¬¾Øµ¥½Ã¾Ó(±Ýºû¸¶À») | 5 | 84.753 | 2,000 | 100 | 2010 | | 2025.03.31 | ¸Å¸Å | ÀÚ¿¬¾Øµ¥½Ã¾Ó(±Ýºû¸¶À») | 8 | 84.753 | 26,250 | | 2010 | | 2025.03.27 | ¿ù¼¼ | ÀÚ¿¬¾Øµ¥½Ã¾Ó(±Ýºû¸¶À») | 4 | 84.554 | 5,000 | 70 | 2010 | | 2025.03.20 | ¿ù¼¼ | ÀÚ¿¬¾Øµ¥½Ã¾Ó(±Ýºû¸¶À») | 7 | 84.945 | 3,000 | 80 | 2010 | | 2025.03.05 | Àü¼¼ | ÀÚ¿¬¾Øµ¥½Ã¾Ó(±Ýºû¸¶À») | 8 | 84.945 | 22,000 | 0 | 2010 | | 2025.02.27 | Àü¼¼ | ÀÚ¿¬¾Øµ¥½Ã¾Ó(±Ýºû¸¶À») | 2 | 84.945 | 22,000 | 0 | 2010 | | 2025.02.22 | ¸Å¸Å | ÀÚ¿¬¾Øµ¥½Ã¾Ó(±Ýºû¸¶À») | 4 | 84.753 | 27,500 | | 2010 | | 2025.02.19 | Àü¼¼ | ÀÚ¿¬¾Øµ¥½Ã¾Ó(±Ýºû¸¶À») | 7 | 84.813 | 23,000 | 0 | 2010 | | 2025.02.17 | ¸Å¸Å | ÀÚ¿¬¾Øµ¥½Ã¾Ó(±Ýºû¸¶À») | 13 | 84.554 | 26,000 | | 2010 | | 2025.02.11 | ¸Å¸Å | ÀÚ¿¬¾Øµ¥½Ã¾Ó(±Ýºû¸¶À») | 1 | 84.813 | 26,000 | | 2010 | | 2025.02.08 | Àü¼¼ | ÀÚ¿¬¾Øµ¥½Ã¾Ó(±Ýºû¸¶À») | 11 | 84.554 | 15,000 | 0 | 2010 | | 2025.02.05 | ¸Å¸Å | ÀÚ¿¬¾Øµ¥½Ã¾Ó(±Ýºû¸¶À») | 6 | 84.945 | 26,600 | | 2010 | | 2025.02.03 | ¸Å¸Å | ÀÚ¿¬¾Øµ¥½Ã¾Ó(±Ýºû¸¶À») | 2 | 84.945 | 26,500 | | 2010 | | 2025.02.01 | Àü¼¼ | ÀÚ¿¬¾Øµ¥½Ã¾Ó(±Ýºû¸¶À») | 3 | 84.945 | 24,000 | 0 | 2010 | | 2025.01.24 | ¸Å¸Å | ÀÚ¿¬¾Øµ¥½Ã¾Ó(±Ýºû¸¶À») | 5 | 84.813 | 26,800 | | 2010 | | 2025.01.10 | Àü¼¼ | ÀÚ¿¬¾Øµ¥½Ã¾Ó(±Ýºû¸¶À») | 2 | 84.945 | 20,000 | 0 | 2010 | | 2025.01.10 | ¸Å¸Å | ÀÚ¿¬¾Øµ¥½Ã¾Ó(±Ýºû¸¶À») | 14 | 84.753 | 26,125 | | 2010 |
|
|
|
 |
ÀÓÂ÷³»¿ª |
[¹è´ç¿ä±¸Á¾±âÀÏ : 2025/04/07] |
|
|
| ÀÓÂ÷ÀÎ |
Á¡À¯°ü°è |
ÀüÀÔÀÏÀÚ |
È®Á¤ÀÏÀÚ |
¹è´ç¿ä±¸ÀÏ |
º¸Áõ±Ý/Â÷ÀÓ |
´ëÇ׿ä°Ç |
ºñ°í |
| ¸Å°¢±âÀÏ 7ÀÏÀü¿¡ °ø°íµÇ¿À´Ï È®ÀÎÇϽñ⠹ٶø´Ï´Ù. |
|
|
|
 |
Áö¿ªºÐ¼® |
|
|
|
|
| ÁöÇÏö |
|
Çб³ |
|
| °ü°ø¼ |
|
| ¹ý¿ø |
ÀÎõÁö¹æ¹ý¿ø ºÎõÁö¿ø (146-02)°æ±âµµ ºÎõ½Ã ¿ø¹Ì±¸ »óÀÏ·Î 129(»óµ¿) ´ëÇ¥ : 032)320-1114, ¹Î¿ø : 032)320-1234 ºÎõ½Ã, ±èÆ÷½Ã |
| µî±â¼Ò |
ÀÎõÁö¹æ¹ý¿ø ºÎõÁö¿ø ±èÆ÷µî±â¼Ò (´ëÇ¥:1544-0773, ÆÑ½º:(031)982-6997, °æ±âµµ ±èÆ÷½Ã ºÀÈ·Î 16 (»ç¿ìµ¿ 240-2)) |
| ¼¼¹«¼ |
±èÆ÷¼¼¹«¼ (´ëÇ¥:031-980-32, ÆÑ½º:031-987-9932, °æ±âµµ ±èÆ÷½Ã ±èÆ÷ÇѰ1·Î 22 (Àå±âµ¿)) |
|
|
|
 |
¹ý¿ø ¹°°ÇÀÚ·á ¿ä¾à |
|
|
|
|
| ¼Ò¸êµÇÁö ¾Ê´Â µî±âºÎ±Ç¸® |
|
| ¼³Á¤µÈ °ÍÀ¸·Î º¸´Â Áö»ó±Ç |
|
| ¹ý¿øÀÚ·á Æ¯ÀÌ»çÇ× |
[ÁÖ¿ä ¹®°Ç Á¢¼ö ³»¿ª]
[2025.07.21] ä±ÇÀÚ ÄÉOOOOOOOOOOOOOO OOOO ȯ±Þ°èÁ º¯°æ½Åû¼ Á¦Ãâ
|
|
| ¿©ÀÇÁÖ°æ¸Å Á¶¾ð ÇѸ¶µð |
ÀÌ ºÎµ¿»êÀÇ ÀÔÂû¹ý¿øÀº ÀÎõÁö¹æ¹ý¿ø ºÎõÁö¿øÀÔ´Ï´Ù.
ÀÔÂûÀÏÀº 2026-02-26ÀÔ´Ï´Ù.
ÀÔÂû½Ã°£Àº ~11:10ÀÔ´Ï´Ù. ÀÌ ¹ý¿ø¿¡´Â ½ÅÇÑÀºÇàÀÌ ÀÔÁ¡Çϰí ÀÖ½À´Ï´Ù.
|
ÃëÇÏ ¶Ç´Â Ãë¼ÒµÉ °¡´É¼ºÀº ÀÖÀ¸³ª ±×´ë·Î ÁøÇàµÉ °¡´É¼ºµµ ¸¹½À´Ï´Ù
¼±Çà°æ¸Å¸¦ ½ÅûÇÑ Ã¤±ÇÀÚ°¡ ¹è´ç ¹Þ¾Æ¾ß ÇÒ ±Ý¾×Àº 81,632,660¿øÀ¸·Î °¨Á¤°¡°Ý ´ëºñ »ó´çÈ÷ ÀûÀº ±Ý¾×À̼
°æ¸Å°¡ ÃëÇϵǰųª Ãë¼Ò µÉ °¡´É¼ºÀÌ ÀÖ½À´Ï´Ù. ±×·±µ¥ ÈÄÇà°æ¸Å »ç°Ç (Áߺ¹ 2025Ÿ°æ2403,)ÀÌ ÀÖ¾î¼ ÃëÇÏ,Ãë¼ÒµÇÁö ¾Ê°í ÁøÇàµÉ °¡´É¼ºµµ ¸¹½À´Ï´Ù.
|
|
|
| Åë°è±â°£ |
³«Âû¹°°Ç¼ö |
Æò±Õ°¨Á¤°¡ |
Æò±Õ³«Âû°¡ |
³«Âû°¡À² |
À¯ÂûȽ¼ö |
|
|
|
|
|
|
 |
|