|
|
| ¼ÒÀçÁö |
´ë±¸±¤¿ª½Ã ´Þ¼º±º ´Ù»çÀ¾ Áװ 124
|
|
| »ç°Ç¹øÈ£ |
2025 Ÿ°æ 31222 |
¹°°Ç¹øÈ£ |
1
|
¹°°Ç¿ëµµ |
¿îµ¿½Ã¼³ |
| °¨Á¤Æò°¡¾× |
4,503,053,960¿ø |
°æ¸Å´ë»ó |
ÅäÁö ¹× °Ç¹°Àϰý¸Å°¢ |
ÁøÇà»óÅ |
½Å°Ç |
| ÃÖÀúÀÔÂû°¡ |
(100%) 4,503,053,960¿ø
|
°Ç¹°¸éÀû |
1,257.18§³(380.30Æò) |
ÀÔÂû±âÀÏ |
2026.03.05(¸ñ) 10:00
(ÀÔÂû 9ÀÏÀü)
|
| ÀÔÂûº¸Áõ±Ý |
(10%) 450,305,396¿ø |
ÅäÁö¸éÀû |
821.00§³(248.35Æò)
|
À¯ÂûȽ¼ö |
0ȸ |
| ÀÔÂû¹ý¿ø |
´ë±¸Áö¹æ¹ý¿ø ´ë±¸¼ºÎÁö¿ø |
°æ¸Å¹æ¹ý |
|
¹°°ÇÁ¶È¸¼ö |
¿À´Ã: 6ȸ [´©Àû: 6ȸ]
|
| ¸»¼Ò±âÁØ | ÃÖ¼±¼øÀ§ ¼³Á¤ : ¸ñ·Ï1,2,3,4
:2021.7.15.±Ù Àú´ç±Ç ¼³Á¤
¸ñ·Ï5:2022.4.15.±ÙÀú´ç±Ç
|
|
|
|
|
|
|
|
|
|
|
°æ¸Å´ë»ó ¸ñ·Ï
|
|
| ±¸ºÐ |
¸ñ·Ï |
ÁÖ¼Ò |
±¸Á¶/¿ëµµ/´ëÁö±Ç |
ºñ°í |
ÅäÁö
|
1 |
Áװ 124 |
´ë |
785§³ (237.46Æò) |
| 3 |
Áװ 124-2 |
Çб³¿ëÁö |
2§³ (0.61Æò) |
| 4 |
Áװ 124-3 |
Çб³¿ëÁö |
2§³ (0.61Æò) |
| 5 |
Áװ 790-26 |
´ë |
32§³ (9.68Æò) |
°Ç¹°
|
2 |
Áװ 124 |
1Ãþ ¿îµ¿½Ã¼³, ÁÖÂ÷Àå ö±ÙÄÜÅ©¸®Æ®±¸Á¶ |
396.54§³ (119.95Æò)
|
| 2 |
Áװ 124 |
2Ãþ ¿îµ¿½Ã¼³ ö±ÙÄÜÅ©¸®Æ®±¸Á¶ |
430.05§³ (130.09Æò)
|
| 2 |
Áװ 124 |
3Ãþ ¿îµ¿½Ã¼³ ö±ÙÄÜÅ©¸®Æ®±¸Á¶ |
353.09§³ (106.81Æò)
|
| 2 |
Áװ 124 |
4Ãþ ÆßÇÁ½Ç, °è´Ü½Ç ö±ÙÄÜÅ©¸®Æ®±¸Á¶ |
77.5§³ (23.44Æò)
|
|
|
|
2026-03-05
ÁøÇà
|
(100%)
4,503,053,960¿ø
|
|
|
|
|
|
°¨Á¤Æò°¡¼ ¿ä¾à |
|
[À§Ä¡/ÁÖÀ§È¯°æ]
º»°ÇÀº ´ë±¸±¤¿ª½Ã ´Þ¼º±º ´Ù»çÀ¾ Áװ ¼ÒÀç ""Á×°îÃʵîÇб³"" ºÏ¼Ãø Àαٿ¡ À§Ä¡Çϸç,
ºÎ±Ù ÀÏ´ë´Â ¾ÆÆÄÆ®´ÜÁö, ´Ù¼¼´ëÁÖÅà ¹× ±Ù¸°»ýȰ½Ã¼³ µîÀ¸·Î Çü¼ºµÇ¾î ÀÖÀ½.
[±³Åë»óȲ]
º»°Ç±îÁö Â÷·®ÃâÀÔ °¡´ÉÇÏ°í ´ëÁß±³Åë ÀÌ¿ë µî Á¦¹Ý ±³Åë»çÁ¤Àº º¸ÅëÀÓ.
3)ÇüÅ ¹× ÀÌ¿ë»óÅÂ
±âÈ£1): ÆòźÇÏ°Ô Á¶¼ºµÈ ºÎÁ¤ÇüÀÇ ÅäÁö·Î¼, »ó¾÷¿ë °Ç¹° ºÎÁöÀÓ.
±âÈ£3),4): ÆòźÇÑ ºÎÁ¤ÇüÀÇ ÅäÁö·Î¼, ÇöȲ ""µµ·Î"" ÀÓ.
±âÈ£5): ÆòźÇÑ ºÎÁ¤ÇüÀÇ ÅäÁö·Î¼, ""³ª´ëÁö"" ÀÓ.
4)ÀÎÁ¢ µµ·Î»óÅÂ
º»°Ç ³²ÃøÀ¸·Î Æø ¾à 15¹ÌÅÍÀÇ Æ÷Àåµµ·Î¿¡ °¢°¢ Á¢ÇÔ.
[ÅäÁöÀÌ¿ë°èȹ]
±âÈ£1),5): ÁØÁÖ°ÅÁö¿ª, Áß·Î3·ù(Æø 12m¡15m)(Á¢ÇÕ), °¡Ãà»çÀ°Á¦Çѱ¸¿ª£¼°¡ÃàºÐ´¢ÀÇ °ü¸® ¹×
À̿뿡 °üÇÑ ¹ý·ü£¾, »ó´ëº¸È£±¸¿ª(2015-04-15)(Á×°îÃʵîÇб³)£¼±³À°È¯°æ º¸È£¿¡
°üÇÑ ¹ý·ü£¾, ¹èÃâ½Ã¼³¼³Ä¡Á¦ÇÑÁö¿ª£¼¹°È¯°æº¸Àü¹ý£¾.
±âÈ£3),4): ÁØÁÖ°ÅÁö¿ª, Áß·Î3·ù(Æø 12m¡15m), °¡Ãà»çÀ°Á¦Çѱ¸¿ª£¼°¡ÃàºÐ´¢ÀÇ °ü¸® ¹× ÀÌ¿ë
¿¡ °üÇÑ ¹ý·ü£¾, »ó´ëº¸È£±¸¿ª(2015-04-15)(Á×°îÃʵîÇб³)£¼±³À°È¯°æ º¸È£¿¡ °üÇÑ
¹ý·ü£¾, ¹èÃâ½Ã¼³¼³Ä¡Á¦ÇÑÁö¿ª£¼¹°È¯°æº¸Àü¹ý£¾.
6)Á¦½Ã¸ñ·Ï ¿ÜÀÇ ¹°°Ç
¾øÀ½.
[°øºÎ¿ÍÀÇ Â÷ÀÌ]
º»°Ç ±âÈ£3),4)ÀÇ °øºÎ»ó Áö¸ñÀº ""Çб³¿ëÁö"" À̳ª, ÇöȲÀº ""µµ·Î"" ÀÓ.
[Âü°í»çÇ×]
ÀÓ´ë°ü°è´Â ¹Ì»óÀÓ.
[°Ç¹°±¸Á¶]
±âÈ£2) ö±ÙÄÜÅ©¸®Æ®±¸Á¶ (ö±Ù)ÄÜÅ©¸®Æ®ÁöºØ 4Ãþ°ÇÀ¸·Î¼,
- ¿Üº® : ¸ôÅ»À§ ÆäÀÎÆÃ µî ¸¶°¨.
- ³»º® : ³»ÀåÀÎÅ׸®¾î ¹× ŸÀÏ µî ¸¶°¨.
- ¹Ù´Ú : ŸÀÏ µî ¸¶°¨.
- âȣ : »õ½ÃâÀÓ.
[ÀÌ¿ë»óÅÂ]
- 1Ãþ : ¿îµ¿½Ã¼³(°ñÇÁ¿¬½ÀÀå) ¹× ÇÊ·ÎÆ¼ ÁÖÂ÷Àå µîÀ¸·Î ÀÌ¿ëÁßÀÓ.
- 2,3Ãþ : ¿îµ¿½Ã¼³(°ñÇÁ¿¬½ÀÀå)·Î ÀÌ¿ëÁßÀÓ.
- 4Ãþ : ÆßÇÁ½Ç, °è´Ü½Ç·Î ÀÌ¿ëÁßÀÓ.
[¼³ºñ³»¿ª]
À§»ý¼³ºñ, ±Þ¹è¼ö¼³ºñ, Àü±â¼³ºñ, ½Â°±â¼³ºñ µî µÇ¾î ÀÖÀ½.
4)ºÎÇÕ¹° ¹× Á¾¹°
¾øÀ½.
[°øºÎ¿ÍÀÇ Â÷ÀÌ]
¾øÀ½.
[Âü°í»çÇ×]
ÀÓ´ë°ü°è´Â ¹Ì»óÀÓ. |
|
|
°ÇÃ๰ÇöȲ |
|
|
|
| ¼ÒÀçÁö |
´ë±¸±¤¿ª½Ã ´Þ¼º±º ´Ù»çÀ¾ Áװ 124¹øÁö |
| ´ëÁö¸éÀû |
785§³(237.88Æò) |
¿¬¸éÀû |
1257.18§³(380.96Æò) |
ÁÖ¿ëµµ |
¿îµ¿½Ã¼³ |
| °ÇÃà¸éÀû |
443.45§³(134.38Æò) |
¿ëÀû·ü»êÁ¤¿¬¸éÀû |
1257.18§³(380.96Æò) |
Âø°øÀÏÀÚ |
2012.06.26 |
| °ÇÆóÀ² |
56.49% |
¿ëÀû·ü |
160.15% |
»ç¿ë½ÂÀÎÀÏÀÚ |
2013.02.21 |
| Áö»óÃþ¼ö |
4Ãþ |
ÁöÇÏÃþ¼ö |
|
±¸Á¶ |
ö±ÙÄÜÅ©¸®Æ®±¸Á¶ |
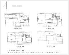
°ÇÃ๰Ãþº°ÇöȲ [º¸±â]| Ãþº° | ±¸Á¶ | ¿ëµµ | ¸éÀû | | 1Ãþ | ö±ÙÄÜÅ©¸®Æ®±¸Á¶ | ¿îµ¿½Ã¼³(°ñÇÁ¿¬½ÀÀå) | 396.54§³ (120.16Æò) | | 2Ãþ | ö±ÙÄÜÅ©¸®Æ®±¸Á¶ | ¿îµ¿½Ã¼³(°ñÇÁ¿¬½ÀÀå) | 430.05§³ (130.32Æò) | | 3Ãþ | ö±ÙÄÜÅ©¸®Æ®±¸Á¶ | ¿îµ¿½Ã¼³(°ñÇÁ¿¬½ÀÀå) | 353.09§³ (107Æò) | | 4Ãþ | ö±ÙÄÜÅ©¸®Æ®±¸Á¶ | ¿îµ¿½Ã¼³(°ñÇÁ¿¬½ÀÀå-ÆßÇÁ½Ç) | 77.5§³ (23.48Æò) |
|
|
|
|
|
|
 |
ÀÓÂ÷³»¿ª |
[¹è´ç¿ä±¸Á¾±âÀÏ : 2025/07/28] |
|
|
| ÀÓÂ÷ÀÎ |
Á¡À¯°ü°è |
ÀüÀÔÀÏÀÚ |
È®Á¤ÀÏÀÚ |
¹è´ç¿ä±¸ÀÏ |
º¸Áõ±Ý/Â÷ÀÓ |
´ëÇ׿ä°Ç |
ºñ°í |
| ¸Å°¢±âÀÏ 7ÀÏÀü¿¡ ¸Å°¢¹°°Ç¸í¼¼¼°¡ °ø°íµÇ¿À´Ï È®ÀÎÇϽñ⠹ٶø´Ï´Ù. |
| ÀÌOO |
1,2,3Ãþ |
2025.01.08. |
|
|
50,000,000 [¿ù]6,000,000 |
X |
2025.01.07~2027.01.06 |
| ¸Å°¢¹°°Ç¸í¼¼ ºñ°í |
ÀÌÁøÇõ:ÀÓ´ëÂ÷±â°£, º¸Áõ±Ý, Â÷ÀÓ µîÀº »ó°¡°Ç¹° ÀÓ´ëÂ÷ÇöȲ¼¿¡ ±Ù°ÅÇÔ |
|
|
|
 |
Áö¿ªºÐ¼® |
|
|
|
|
| ÁöÇÏö |
|
Çб³ |
|
| °ü°ø¼ |
|
| ¹ý¿ø |
´ë±¸Áö¹æ¹ý¿ø ¼ºÎÁö¿ø (426-35)´ë±¸±¤¿ª½Ã ´Þ¼±¸ Àå»ê³²·Î 30 (¿ë»êµ¿ 230) ´ëÇ¥ : 053)570-2114, ¾ß°£ : 053)570-2200 ¼±¸, ´Þ¼±¸, ´Þ¼º±º, ¼ºÁÖ±º, °í·É±º |
| µî±â¼Ò |
´ë±¸Áö¹æ¹ý¿ø ¼ºÎÁö¿ø µî±â°ú (´ëÇ¥:1544-0773, ÆÑ½º:(053)570-2345, ´ë±¸±¤¿ª½Ã ´Þ¼±¸ Àå»ê³²·Î 30 (¿ë»êµ¿ 230)) |
| ¼¼¹«¼ |
³²´ë±¸¼¼¹«¼ (´ëÇ¥:053-659-02, ÆÑ½º:053-627-0157, ´ë±¸±¤¿ª½Ã ³²±¸ ´ë¸í·Î 55 (´ë¸íµ¿)) |
|
|
|
 |
¹ý¿ø ¹°°ÇÀÚ·á ¿ä¾à |
|
|
|
|
| ¼Ò¸êµÇÁö ¾Ê´Â µî±âºÎ±Ç¸® |
|
| ¼³Á¤µÈ °ÍÀ¸·Î º¸´Â Áö»ó±Ç |
|
| ¹ý¿øÀÚ·á Æ¯ÀÌ»çÇ× |
[ÁÖ¿ä ¹®°Ç Á¢¼ö ³»¿ª]
|
[¸Å°¢¹°°Ç¸í¼¼¼ ºñ°í¶õ]
Àϰý¸Å°¢
¸ñ·Ï3,4: °øºÎ»ó Çб³¿ëÁöÀ̳ª ÇöȲÀº µµ·ÎÀÓ |
[ºÎµ¿»ê ÇöȲÁ¶»ç¼ ºñ°í¶õ]
-º°Áö »çÁø°ú °°ÀÌ ½ºÅ©¸°°ñÇÁ(°ñÇÁÁ¸)ÀåÀÓ.
-3Ãþ ÀϺΠ¼ÒÀ¯ÀÚ ±â¹ÌÁ¤ÀÌ °ÅÁÖÇϰí ÀÖ´Ù°í ÀÓÂ÷ÀÎ ÀÌÁøÇõÀÇ Ã³ Áø¼úÇÔ. |
|
| ¿©ÀÇÁÖ°æ¸Å Á¶¾ð ÇѸ¶µð |
ÀÌ ºÎµ¿»êÀÇ ÀÔÂû¹ý¿øÀº ´ë±¸Áö¹æ¹ý¿ø ´ë±¸¼ºÎÁö¿øÀÔ´Ï´Ù.
ÀÔÂûÀÏÀº 2026-03-05ÀÔ´Ï´Ù.
ÀÔÂû½Ã°£Àº ~11:10ÀÔ´Ï´Ù. ÀÌ ¹ý¿ø¿¡´Â iM¹ðÅ©(´ë±¸ÀºÇà)ÀÌ ÀÔÁ¡Çϰí ÀÖ½À´Ï´Ù.
|
|
|
| Åë°è±â°£ |
³«Âû¹°°Ç¼ö |
Æò±Õ°¨Á¤°¡ |
Æò±Õ³«Âû°¡ |
³«Âû°¡À² |
À¯ÂûȽ¼ö |
|
|
|
|
|
|
 |
|