|
|
| ¼ÒÀçÁö |
¼¿ïƯº°½Ã °¼±¸ ¹æÈµ¿ 612-61 ¸¶°îÅ·´ýÄýÅÍÇà Á¦3Ãþ Á¦301È£
|
|
| »ç°Ç¹øÈ£ |
2025 Ÿ°æ 10489 |
¹°°Ç¹øÈ£ |
1
|
¹°°Ç¿ëµµ |
¿ÀÇǽºÅÚ |
| °¨Á¤Æò°¡¾× |
239,000,000¿ø |
°æ¸Å´ë»ó |
ÅäÁö ¹× °Ç¹°Àϰý ¸Å°¢ |
ÁøÇà»óÅ |
½Å°Ç |
| ÃÖÀúÀÔÂû°¡ |
(100%) 239,000,000¿ø
|
°Ç¹°¸éÀû |
25.17§³(7.61Æò) |
ÀÔÂû±âÀÏ |
2026.03.11(¼ö) 10:00
(ÀÔÂû 14ÀÏÀü)
|
| ÀÔÂûº¸Áõ±Ý |
(10%) 23,900,000¿ø |
ÅäÁö¸éÀû |
8.29§³(2.51Æò)
|
À¯ÂûȽ¼ö |
0ȸ |
| ÀÔÂû¹ý¿ø |
¼¿ï³²ºÎÁö¹æ¹ý¿ø |
°æ¸Å¹æ¹ý |
|
¹°°ÇÁ¶È¸¼ö |
¿À´Ã: 6ȸ [´©Àû: 6ȸ]
|
| ¸»¼Ò±âÁØ | |
|
|
|
|
|
|
|
|
|
|
°æ¸Å´ë»ó ¸ñ·Ï
|
|
| ±¸ºÐ |
¸ñ·Ï |
ÁÖ¼Ò |
±¸Á¶/¿ëµµ/´ëÁö±Ç |
ºñ°í |
´ëÁö±Ç
|
1 |
¹æÈµ¿ 612-61 |
508ºÐÀÇ 8.29 |
8.29§³ (2.51Æò)
|
°Ç¹°
|
1 |
¹æÈµ¿ 612-61 |
Á¦3Ãþ Á¦301È£ ö±ÙÄÜÅ©¸®Æ®±¸Á¶ |
25.17§³ (7.61Æò)
|
|
|
|
2026-03-11
ÁøÇà
|
(100%)
239,000,000¿ø
|
|
|
|
|
|
°¨Á¤Æò°¡¼ ¿ä¾à |
|
[À§Ä¡/ÁÖÀ§È¯°æ]
´ë»ó¹°°ÇÀº ¼¿ïƯº°½Ã °¼±¸ ¹æÈµ¿ ¼ÒÀç ""¹æÈÁßÇб³"" ³²µ¿Ãø Àαٿ¡ ¼ÒÀçÇϸç, ÁÖÀ§´Â ´Ù¼¼´ëÁÖÅÃ,´Ù°¡±¸ÁÖÅÃ,¿ÀÇǽºÅÚ,±Ù¸°»ýȰ½Ã¼³ µîÀÌ ¼ÒÀçÇÏ´Â ÁÖ°ÅÁö´ë·Î¼ Á¦¹Ý ¿©°ÇÀº º¸Åë½ÃµÊ.
[±³Åë»óȲ]
´ë»ó¹°°Ç±îÁö Â÷·®ÃâÀÔÀÌ ¿ëÀÌÇϸç Àαٿ¡ ÁöÇÏö 9È£¼± ""°øÇ×½ÃÀ忪"" ¹× ³ë¼± ¹ö½ºÁ¤·ùÀåÀÌ ¼ÒÀçÇÏ´Â ¹Ù, Á¦¹Ý ±³Åë¿©°ÇÀº º¸ÅëÀÓ.
3)ÇüÅ ¹× ÀÌ¿ë»óÅÂ
-
4)ÀÎÁ¢ µµ·Î»óÅÂ
-
[ÅäÁöÀÌ¿ë°èȹ]
¹æÈµ¿ 612-61 : µµ½ÃÁö¿ª, ÁØÁÖ°ÅÁö¿ª, Áß¿ä½Ã¼³¹°º¸È£Áö±¸(°øÇ×), Á¦1Á¾Áö±¸´ÜÀ§°èȹ±¸¿ª, µµ·Î(Á¢ÇÕ), Áß·Î3·ù(Æø 12m~15m)(Á¢ÇÕ) °¡Ãà»çÀ°Á¦Çѱ¸¿ª(Áö¿ª°æÁ¦°ú È®ÀÎ ¿ä¸Á)£¼°¡ÃàºÐ´¢ÀÇ °ü¸® ¹× À̿뿡 °üÇÑ ¹ý·ü£¾, ¼öÆòÇ¥¸é±¸¿ª(¼öÆòÇ¥¸é)£¼°øÇ׽ü³¹ý£¾, »ó´ëº¸È£±¸¿ª(2014-09-26)(Çб³È¯°æÀ§»ýÁ¤È±¸¿ª(°¼±³À°Áö¿øÃ»¿¡ ¹Ýµå½Ã È®ÀÎ ¿ä¸Á)£¼Çб³º¸°Ç¹ý£¾)£¼±³À°È¯°æ º¸È£¿¡ °üÇÑ ¹ý·ü£¾, ´ë°ø¹æ¾îÇùÁ¶±¸¿ª(À§Å¹°íµµ:77-257m)£¼±º»ç±âÁö ¹× ±º»ç½Ã¼³ º¸È£¹ý£¾, °ú¹Ð¾ïÁ¦±Ç¿ª£¼¼öµµ±ÇÁ¤ºñ°èȹ¹ý£¾
»ó°èµ¿ 612-344 : µµ½ÃÁö¿ª, ÁØÁÖ°ÅÁö¿ª, Áß¿ä½Ã¼³¹°º¸È£Áö±¸(°øÇ×), Á¦1Á¾Áö±¸´ÜÀ§°èȹ±¸¿ª, µµ·Î(Á¢ÇÕ) °¡Ãà»çÀ°Á¦Çѱ¸¿ª(Áö¿ª°æÁ¦°ú È®ÀÎ ¿ä¸Á)£¼°¡ÃàºÐ´¢ÀÇ °ü¸® ¹× À̿뿡 °üÇÑ ¹ý·ü£¾, ¼öÆòÇ¥¸é±¸¿ª(¼öÆòÇ¥¸é)£¼°øÇ׽ü³¹ý£¾, »ó´ëº¸È£±¸¿ª(2014-09-26)(Çб³È¯°æÀ§»ýÁ¤È±¸¿ª(°¼±³À°Áö¿øÃ»¿¡ ¹Ýµå½Ã È®ÀÎ ¿ä¸Á)£¼Çб³º¸°Ç¹ý£¾)£¼±³À°È¯°æ º¸È£¿¡ °üÇÑ ¹ý·ü£¾, ´ë°ø¹æ¾îÇùÁ¶±¸¿ª(À§Å¹°íµµ:77-257m)£¼±º»ç±âÁö ¹× ±º»ç½Ã¼³ º¸È£¹ý£¾, °ú¹Ð¾ïÁ¦±Ç¿ª£¼¼öµµ±ÇÁ¤ºñ°èȹ¹ý£¾
6)Á¦½Ã¸ñ·Ï ¿ÜÀÇ ¹°°Ç
-
[°øºÎ¿ÍÀÇ Â÷ÀÌ]
-
[Âü°í»çÇ×]
-
[°Ç¹°±¸Á¶]
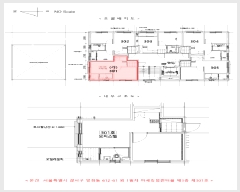
ö±ÙÄÜÅ©¸®Æ®±¸Á¶ Æò½º¶óºêÁöºØ ÁöÇÏ1Ãþ/Áö»ó13Ãþ ³» Á¦3Ãþ Á¦301È£·Î¼,
¿Üº®: ¼®ÀçºÙÀÓ ¸¶°¨ µî,
³»º®: ³»ºÎ ÀÎÅ׸®¾î ¸¶°¨ µî,
âȣ: ¼¦½Ãâȣ ¸¶°¨ µîÀÓ.
[ÀÌ¿ë»óÅÂ]
¿ÀÇǽºÅÚ(¹æ, °Å½Ç °â ÁÖ¹æ, ¿å½Ç, º¸ÀÏ·¯½Ç µî)·Î ÀÌ¿ëÁßÀÓ.
[¼³ºñ³»¿ª]
±âº»ÀûÀÎ À§»ý¡¤±Þ¹è¼ö ¼³ºñ, ³¹æ¼³ºñ, ÈÀç°æº¸¼³ºñ, ÈÀçŽÁö¼³ºñ, ½Â°±â µîÀÇ ¼³ºñ°¡ µÇ¾î
ÀÖÀ½.
4)ºÎÇÕ¹° ¹× Á¾¹°
-
[°øºÎ¿ÍÀÇ Â÷ÀÌ]
-
[Âü°í»çÇ×]
- |
|
|
°ÇÃ๰ÇöȲ |
|
|
|
| ¼ÒÀçÁö |
¼¿ïƯº°½Ã °¼±¸ ¹æÈµ¿ 612-61¹øÁö |
| ´ëÁö¸éÀû |
508§³(153.94Æò) |
¿¬¸éÀû |
2126.88§³(644.51Æò) |
ÁÖ¿ëµµ |
¾÷¹«½Ã¼³ |
| °ÇÃà¸éÀû |
246.87§³(74.81Æò) |
¿ëÀû·ü»êÁ¤¿¬¸éÀû |
1828.09§³(553.97Æò) |
Âø°øÀÏÀÚ |
2019.04.08 |
| °ÇÆóÀ² |
48.6% |
¿ëÀû·ü |
359.86% |
»ç¿ë½ÂÀÎÀÏÀÚ |
2020.11.11 |
| Áö»óÃþ¼ö |
13Ãþ |
ÁöÇÏÃþ¼ö |
1Ãþ |
±¸Á¶ |
ö±ÙÄÜÅ©¸®Æ®±¸Á¶ |
°ÇÃ๰Ãþº°ÇöȲ [º¸±â]| Ãþº° | ±¸Á¶ | ¿ëµµ | ¸éÀû | | 1Ãþ | ö±ÙÄÜÅ©¸®Æ®±¸Á¶ | ±â°è½ÄÁÖÂ÷Àå(¿ëÀûÀ²»êÁ¤¸éÀûÁ¦¿Ü) | 48.91§³ (14.82Æò) | | 1Ãþ | ö±ÙÄÜÅ©¸®Æ®±¸Á¶ | °è´Ü½Ç(17.20),°ü¸®½Ç(1.22) | 18.42§³ (5.58Æò) | | 1Ãþ | ö±ÙÄÜÅ©¸®Æ®±¸Á¶ | Á¦1Á¾±Ù¸°»ýȰ½Ã¼³(¼Ò¸ÅÁ¡) | 40.87§³ (12.38Æò) | | 2Ãþ | ö±ÙÄÜÅ©¸®Æ®±¸Á¶ | ¾÷¹«½Ã¼³ | 159.29§³ (48.27Æò) | | 3Ãþ | ö±ÙÄÜÅ©¸®Æ®±¸Á¶ | ¾÷¹«½Ã¼³(¿ÀÇǽºÅÚ-5È£) | 159.29§³ (48.27Æò) | | 4Ãþ | ö±ÙÄÜÅ©¸®Æ®±¸Á¶ | ¾÷¹«½Ã¼³(¿ÀÇǽºÅÚ-5È£) | 159.29§³ (48.27Æò) | | 5Ãþ | ö±ÙÄÜÅ©¸®Æ®±¸Á¶ | ¾÷¹«½Ã¼³(¿ÀÇǽºÅÚ-5È£) | 159.29§³ (48.27Æò) | | 6Ãþ | ö±ÙÄÜÅ©¸®Æ®±¸Á¶ | ¾÷¹«½Ã¼³(¿ÀÇǽºÅÚ-5È£) | 159.29§³ (48.27Æò) | | 7Ãþ | ö±ÙÄÜÅ©¸®Æ®±¸Á¶ | ¾÷¹«½Ã¼³(¿ÀÇǽºÅÚ-5È£) | 159.29§³ (48.27Æò) | | 8Ãþ | ö±ÙÄÜÅ©¸®Æ®±¸Á¶ | ¾÷¹«½Ã¼³(¿ÀÇǽºÅÚ-5È£) | 159.29§³ (48.27Æò) | | 9Ãþ | ö±ÙÄÜÅ©¸®Æ®±¸Á¶ | ¾÷¹«½Ã¼³(¿ÀÇǽºÅÚ-4È£) | 156.56§³ (47.44Æò) | | 10Ãþ | ö±ÙÄÜÅ©¸®Æ®±¸Á¶ | ¾÷¹«½Ã¼³(¿ÀÇǽºÅÚ-4È£) | 156.56§³ (47.44Æò) | | 11Ãþ | ö±ÙÄÜÅ©¸®Æ®±¸Á¶ | °øµ¿ÁÖÅÃ(´Ù¼¼´ëÁÖÅÃ-4¼¼´ë) | 112.42§³ (34.07Æò) | | 12Ãþ | ö±ÙÄÜÅ©¸®Æ®±¸Á¶ | °øµ¿ÁÖÅÃ(´Ù¼¼´ëÁÖÅÃ-4¼¼´ë) | 112.42§³ (34.07Æò) | | 13Ãþ | ö±ÙÄÜÅ©¸®Æ®±¸Á¶ | °øµ¿ÁÖÅÃ(´Ù¼¼´ëÁÖÅÃ-3¼¼´ë) | 115.81§³ (35.09Æò) | | ¿Áž1Ãþ | ö±ÙÄÜÅ©¸®Æ®±¸Á¶ | °è´Ü½Ç(¿¬¸éÀûÁ¦¿Ü) | 21.2§³ (6.42Æò) | | Áö1Ãþ | ö±ÙÄÜÅ©¸®Æ®±¸Á¶ | ±â°è½ÄÁÖÂ÷Àå | 48.91§³ (14.82Æò) | | Áö1Ãþ | ö±ÙÄÜÅ©¸®Æ®±¸Á¶ | °è´Ü½Ç,Åë½Å½Ç,¹æÀç½Ç,Á¤ÈÁ¶ | 60.64§³ (18.38Æò) | | Áö1Ãþ | ö±ÙÄÜÅ©¸®Æ®±¸Á¶ | Àú¼öÁ¶,±â°è½Ç,ºø¹°ÀÌ¿ë½Ã¼³ | 140.33§³ (42.52Æò) |
|
|
|
|
|
|
|
|
|
¸éÀû(§³), ±Ý¾×(¸¸¿ø)
| °è¾àÀÏ | ±âÁØ | °Ç¹°¸íĪ | Ãþ | Àü¿ë¸éÀû | °Å·¡±Ý¾× | °ÇÃà³âµµ | | °Å·¡³»¿ªÀÌ ¾ø½À´Ï´Ù. |
| °è¾àÀÏ | ±âÁØ | °Ç¹°¸íĪ | Ãþ | Àü¿ë¸éÀû | º¸Áõ±Ý | ¿ù¼¼ | °ÇÃà³âµµ | | 2025.12.11 | Àü¼¼ | ¸¶°î Å·´ý ÄýÅÍÇà | 7 | 25.17 | 19,950 | 0 | 2020 | | 2025.11.23 | Àü¼¼ | ¸¶°î Å·´ý ÄýÅÍÇà | 10 | 35.21 | 26,000 | 0 | 2020 | | 2025.08.07 | ¿ù¼¼ | ¸¶°î Å·´ý ÄýÅÍÇà | 6 | 25.17 | 130 | 65 | 2020 | | 2025.07.10 | Àü¼¼ | ¸¶°î Å·´ý ÄýÅÍÇà | 5 | 29.7 | 25,200 | 0 | 2020 | | 2025.04.30 | ¿ù¼¼ | ¸¶°î Å·´ý ÄýÅÍÇà | 6 | 25.17 | 3,000 | 75 | 2020 | | 2025.01.13 | Àü¼¼ | ¸¶°î Å·´ý ÄýÅÍÇà | 10 | 34.08 | 25,000 | 0 | 2020 |
|
|
|
 |
ÀÓÂ÷³»¿ª |
[¹è´ç¿ä±¸Á¾±âÀÏ : 2025/09/18] |
|
|
| ÀÓÂ÷ÀÎ |
Á¡À¯°ü°è |
ÀüÀÔÀÏÀÚ |
È®Á¤ÀÏÀÚ |
¹è´ç¿ä±¸ÀÏ |
º¸Áõ±Ý/Â÷ÀÓ |
´ëÇ׿ä°Ç |
ºñ°í |
| ¸Å°¢±âÀÏ 7ÀÏÀü¿¡ °ø°íµÇ¿À´Ï È®ÀÎÇϽñ⠹ٶø´Ï´Ù. |
|
|
|
 |
Áö¿ªºÐ¼® |
|
|
|
|
| ÁöÇÏö |
|
Çб³ |
|
| °ü°ø¼ |
|
| ¹ý¿ø |
¼¿ï³²ºÎÁö¹æ¹ý¿ø (080-88)¼¿ïƯº°½Ã ¾çõ±¸ ½Å¿ù·Î 386(½ÅÁ¤µ¿) ´ëÇ¥ : 02)2192-1114 ¿µµîÆ÷±¸, °¼±¸, ¾çõ±¸, ±¸·Î±¸, ±Ýõ±¸ |
| µî±â¼Ò |
¼¿ï³²ºÎÁö¹æ¹ý¿ø º»¿ø µî±â±¹ (´ëÇ¥:1544-0773, ÆÑ½º:(02)2629-7307, ¼¿ïƯº°½Ã ¿µµîÆ÷±¸ °æÀηΠ772 (¹®·¡µ¿ 1°¡)) |
| ¼¼¹«¼ |
°¼¼¼¹«¼ (´ëÇ¥:02-2630-42, ÆÑ½º:02-2679-8777, ¼¿ïƯº°½Ã °¼±¸ ¸¶°î¼1·Î 60 (¸¶°îµ¿)) |
|
|
|
 |
¹ý¿ø ¹°°ÇÀÚ·á ¿ä¾à |
|
|
|
|
| ¼Ò¸êµÇÁö ¾Ê´Â µî±âºÎ±Ç¸® |
|
| ¼³Á¤µÈ °ÍÀ¸·Î º¸´Â Áö»ó±Ç |
|
| ¹ý¿øÀÚ·á Æ¯ÀÌ»çÇ× |
|
| ¿©ÀÇÁÖ°æ¸Å Á¶¾ð ÇѸ¶µð |
ÀÌ ºÎµ¿»êÀÇ ÀÔÂû¹ý¿øÀº ¼¿ï³²ºÎÁö¹æ¹ý¿øÀÔ´Ï´Ù.
ÀÔÂûÀÏÀº 2026-03-11ÀÔ´Ï´Ù.
ÀÔÂû½Ã°£Àº ~11:20ÀÔ´Ï´Ù. ÀÌ ¹ý¿ø¿¡´Â ½ÅÇÑÀºÇàÀÌ ÀÔÁ¡Çϰí ÀÖ½À´Ï´Ù.
|
|
|
| Åë°è±â°£ |
³«Âû¹°°Ç¼ö |
Æò±Õ°¨Á¤°¡ |
Æò±Õ³«Âû°¡ |
³«Âû°¡À² |
À¯ÂûȽ¼ö |
|
|
|
|
|
|
 |
|