|
|
| ¼ÒÀçÁö |
¼¿ïƯº°½Ã °¼±¸ µîÃ̵¿ 828 Á¦1Ãþ Á¦101È£
|
|
| »ç°Ç¹øÈ£ |
2025 Ÿ°æ 494 |
¹°°Ç¹øÈ£ |
1
|
¹°°Ç¿ëµµ |
»ó°¡,»ç¹«½Ç |
| °¨Á¤Æò°¡¾× |
1,110,000,000¿ø |
°æ¸Å´ë»ó |
ÅäÁö ¹× °Ç¹°Àϰý ¸Å°¢ |
ÁøÇà»óÅ |
½Å°Ç |
| ÃÖÀúÀÔÂû°¡ |
(100%) 1,110,000,000¿ø
|
°Ç¹°¸éÀû |
39.01§³(11.80Æò) |
ÀÔÂû±âÀÏ |
2026.03.17(È) 10:00
(ÀÔÂû 13ÀÏÀü)
|
| ÀÔÂûº¸Áõ±Ý |
(10%) 111,000,000¿ø |
ÅäÁö¸éÀû |
19.37§³(5.86Æò)
|
À¯ÂûȽ¼ö |
0ȸ |
| ÀÔÂû¹ý¿ø |
¼¿ï³²ºÎÁö¹æ¹ý¿ø |
°æ¸Å¹æ¹ý |
|
¹°°ÇÁ¶È¸¼ö |
¿À´Ã: 3ȸ [´©Àû: 21ȸ]
|
| ¸»¼Ò±âÁØ | ÃÖ¼±¼øÀ§ ¼³Á¤ : 2022.01.21. ±ÙÀú´ç±Ç ¼³Á¤
|
|
|
|
|
|
|
|
|
|
|
°æ¸Å´ë»ó ¸ñ·Ï
|
|
| ±¸ºÐ |
¸ñ·Ï |
ÁÖ¼Ò |
±¸Á¶/¿ëµµ/´ëÁö±Ç |
ºñ°í |
´ëÁö±Ç
|
1 |
µîÃ̵¿ 828 |
1243ºÐÀÇ 19.37 |
19.37§³ (5.86Æò)
|
°Ç¹°
|
1 |
µîÃ̵¿ 828 |
Á¦1Ãþ Á¦101È£ ö±ÙÄÜÅ©¸®Æ®±¸Á¶ |
39.01§³ (11.80Æò)
|
|
|
|
2026-03-17
ÁøÇà
|
(100%)
1,110,000,000¿ø
|
|
|
|
|
|
°¨Á¤Æò°¡¼ ¿ä¾à |
|
[À§Ä¡/ÁÖÀ§È¯°æ]
º»°ÇÀº ¼¿ïƯº°½Ã °¼±¸ µîÃ̵¿ ¼ÒÀç '¾çõÇâ±³¿ª' ³²µ¿Ãø Àαٿ¡ À§Ä¡Çϸç, ÀαÙÀº
±Ù¸°»ýȰ½Ã¼³, ¿ÀÇǽºÅÚ, ¾ÆÆÄÆ®Çü°øÀå, ¾ÆÆÄÆ® µîÀÌ È¥ÀçÇÏ´Â Áö¿ªÀ¸·Î Á¦¹Ý ÁÖÀ§È¯°æÀº
º¸ÅëÀÔ´Ï´Ù.
[±³Åë»óȲ]
º»°Ç±îÁö Â÷·® ÃâÀÔÀÌ °¡´ÉÇϸç Àαٿ¡ ¹ö½ºÁ¤·ùÀå ¹× ÁöÇÏö¿ª(ÁöÇÏö9È£¼± '¾çõÇâ±³¿ª')
ÀÌ ¼ÒÀçÇÏ´Â µî ´ëÁß±³Åë ¿©°ÇÀº º¸ÅëÀÔ´Ï´Ù.
[°Ç¹°±¸Á¶]
ö±ÙÄÜÅ©¸®Æ®±¸Á¶ (ö±Ù)ÄÜÅ©¸®Æ®ÁöºØ Áö»ó 7Ãþ/ ÁöÇÏ 2Ãþ °Ç¹° ³» Á¦1Ãþ Á¦101È£·Î¼,
(»ç¿ë½ÂÀÎÀÏ: 2020.05.29)
¿Üº®: ¼®Àç ºÙÀÓ ¸¶°¨ µî,
³»º®: ¸ôÅ» À§ ÆäÀÎÆÃ ¸¶°¨ µî,
âȣ: ÇÏÀÌ »õ½Ã âȣ µî ÀÔ´Ï´Ù.
[ÀÌ¿ë»óÅÂ]
º»°ÇÀº ±Ù¸°»ýȰ½Ã¼³·Î ÀÌ¿ë ÁßÀÔ´Ï´Ù.
[¼³ºñ³»¿ª]
±âº»ÀûÀÎ À§»ý ¹× ±Þ¹è¼ö¼³ºñ, ³Ã¹æ ¼³ºñ, ¼ÒÈÀü ¼³ºñ, ÈÀçŽÁö ¼³ºñ, ½Â°±â ¼³ºñ,
±â°è½Ä ÁÖÂ÷Àå ¼³ºñ µîÀ» °®Ãß°í ÀÖ½À´Ï´Ù.
[ÅäÁöÇü»ó/ÀÌ¿ë»óÅÂ]
º»°ÇÀÌ ¼ÒÀçÇÑ ÅäÁö´Â 4ÇÊÁö ÀÏ´ÜÀÇ ÀÎÁ¢Áö ´ëºñ µî°í ÆòźÇÑ ºÎÁ¤Çü ÅäÁö·Î¼, ¾÷¹«½Ã¼³
(¿ÀÇǽºÅÚ) ¹× ±Ù¸°»ýȰ½Ã¼³ °ÇºÎÁö·Î ÀÌ¿ë ÁßÀÔ´Ï´Ù.
7)ÀÎÁ¢ µµ·Î»óŵî
º»°Ç ºÏÃøÀ¸·Î ³ëÆø ¾à 7M, µ¿ÃøÀ¸·Î ³ëÆø ¾à 10M ³»¿ÜÀÇ Æ÷Àåµµ·Î¿Í °¢°¢ Á¢ÇÕ´Ï´Ù.
[ÅäÁöÀÌ¿ë°èȹ]
±âÈ£(1):µµ½ÃÁö¿ª,Áذø¾÷Áö¿ª,Áß¿ä½Ã¼³¹°º¸È£Áö±¸(°øÇ×),µµ·Î(Á¢ÇÕ),°¡Ãà»çÀ°Á¦Çѱ¸¿ª(Áö¿ª
°æÁ¦°ú È®ÀÎ ¿ä¸Á)£¼°¡ÃàºÐ´¢ÀÇ °ü¸® ¹× À̿뿡 °üÇÑ ¹ý·ü£¾,°¡·Î±¸¿ªº° ÃÖ°í³ôÀÌ Á¦ÇÑÁö¿ª
(2015-08-27)£¼°ÇÃà¹ý£¾,¼öÆòÇ¥¸é±¸¿ª(¼öÆòÇ¥¸é)£¼°øÇ׽ü³¹ý£¾,»ó´ëº¸È£±¸¿ª(2015-03-26)
(°¼±³À°Áö¿øÃ»¿¡ ¹Ýµå½Ã È®ÀÎ ¿ä¸Á)£¼±³À°È¯°æ º¸È£¿¡ °üÇÑ ¹ý·ü£¾,´ë°ø¹æ¾îÇùÁ¶±¸¿ª
(À§Å¹°íµµ:77-257m)£¼±º»ç±âÁö ¹× ±º»ç½Ã¼³ º¸È£¹ý£¾,°ú¹Ð¾ïÁ¦±Ç¿ª£¼¼öµµ±ÇÁ¤ºñ°èȹ¹ý£¾,
Áö¿ªÆ¯È¹ßÀüƯ±¸£¼Áö¿ªÆ¯È¹ßÀü Ư±¸¿¡ ´ëÇÑ ±ÔÁ¦Æ¯·Ê¹ý£¾,(ÇѰ)Æó±â¹°¸Å¸³½Ã¼³ ¼³Ä¡Á¦ÇÑ
Áö¿ª£¼ÇѰ¼ö°è »ó¼ö¿ø¼öÁú°³¼± ¹× ÁÖ¹ÎÁö¿ø µî¿¡ °üÇÑ ¹ý·ü£¾
±âÈ£(2):µµ½ÃÁö¿ª,Áذø¾÷Áö¿ª,Áß¿ä½Ã¼³¹°º¸È£Áö±¸(°øÇ×),°¡Ãà»çÀ°Á¦Çѱ¸¿ª(Áö¿ª°æÁ¦°ú È®ÀÎ
¿ä¸Á)£¼°¡ÃàºÐ´¢ÀÇ °ü¸® ¹× À̿뿡 °üÇÑ ¹ý·ü£¾,°¡·Î±¸¿ªº° ÃÖ°í³ôÀÌ Á¦ÇÑÁö¿ª(2015-08-27)
£¼°ÇÃà¹ý£¾,¼öÆòÇ¥¸é±¸¿ª(¼öÆòÇ¥¸é)£¼°øÇ׽ü³¹ý£¾,»ó´ëº¸È£±¸¿ª(2015-03-26)(°¼±³À°Áö¿øÃ»¿¡
¹Ýµå½Ã È®ÀÎ ¿ä¸Á)£¼±³À°È¯°æ º¸È£¿¡ °üÇÑ ¹ý·ü£¾,´ë°ø¹æ¾îÇùÁ¶±¸¿ª(À§Å¹°íµµ:77-257m)£¼±º»ç
±âÁö ¹× ±º»ç½Ã¼³ º¸È£¹ý£¾,°ú¹Ð¾ïÁ¦±Ç¿ª£¼¼öµµ±ÇÁ¤ºñ°èȹ¹ý£¾,Áö¿ªÆ¯È¹ßÀüƯ±¸£¼Áö¿ªÆ¯È¹ßÀü
Ư±¸¿¡ ´ëÇÑ ±ÔÁ¦Æ¯·Ê¹ý£¾,(ÇѰ)Æó±â¹°¸Å¸³½Ã¼³ ¼³Ä¡Á¦ÇÑÁö¿ª£¼ÇѰ¼ö°è »ó¼ö¿ø¼öÁú°³¼± ¹×
ÁÖ¹ÎÁö¿ø µî¿¡ °üÇÑ ¹ý·ü£¾
±âÈ£(3):µµ½ÃÁö¿ª,Áذø¾÷Áö¿ª,Áß¿ä½Ã¼³¹°º¸È£Áö±¸(°øÇ×),µµ·Î(Á¢ÇÕ),°¡Ãà»çÀ°Á¦Çѱ¸¿ª(Áö¿ª
°æÁ¦°ú È®ÀÎ ¿ä¸Á)£¼°¡ÃàºÐ´¢ÀÇ °ü¸® ¹× À̿뿡 °üÇÑ ¹ý·ü£¾,°¡·Î±¸¿ªº° ÃÖ°í³ôÀÌ Á¦ÇÑÁö¿ª
(2015-08-27)£¼°ÇÃà¹ý£¾,¼öÆòÇ¥¸é±¸¿ª(¼öÆòÇ¥¸é)£¼°øÇ׽ü³¹ý£¾,»ó´ëº¸È£±¸¿ª(2015-03-26)
(°¼±³À°Áö¿øÃ»¿¡ ¹Ýµå½Ã È®ÀÎ ¿ä¸Á)£¼±³À°È¯°æ º¸È£¿¡ °üÇÑ ¹ý·ü£¾,´ë°ø¹æ¾îÇùÁ¶±¸¿ª
(À§Å¹°íµµ:77-257m)£¼±º»ç±âÁö ¹× ±º»ç½Ã¼³ º¸È£¹ý£¾,°ú¹Ð¾ïÁ¦±Ç¿ª£¼¼öµµ±ÇÁ¤ºñ°èȹ¹ý£¾,
Áö¿ªÆ¯È¹ßÀüƯ±¸£¼Áö¿ªÆ¯È¹ßÀü Ư±¸¿¡ ´ëÇÑ ±ÔÁ¦Æ¯·Ê¹ý£¾,(ÇѰ)Æó±â¹°¸Å¸³½Ã¼³ ¼³Ä¡Á¦ÇÑ
Áö¿ª£¼ÇѰ¼ö°è »ó¼ö¿ø¼öÁú°³¼± ¹× ÁÖ¹ÎÁö¿ø µî¿¡ °üÇÑ ¹ý·ü£¾
±âÈ£(4):µµ½ÃÁö¿ª,Áذø¾÷Áö¿ª,Áß¿ä½Ã¼³¹°º¸È£Áö±¸(°øÇ×),°¡Ãà»çÀ°Á¦Çѱ¸¿ª(Áö¿ª°æÁ¦°ú È®ÀÎ
¿ä¸Á)£¼°¡ÃàºÐ´¢ÀÇ °ü¸® ¹× À̿뿡 °üÇÑ ¹ý·ü£¾,°¡·Î±¸¿ªº° ÃÖ°í³ôÀÌ Á¦ÇÑÁö¿ª(2015-08-27)
£¼°ÇÃà¹ý£¾,¼öÆòÇ¥¸é±¸¿ª(¼öÆòÇ¥¸é)£¼°øÇ׽ü³¹ý£¾,»ó´ëº¸È£±¸¿ª(2015-03-26)(°¼±³À°Áö¿øÃ»¿¡
¹Ýµå½Ã È®ÀÎ ¿ä¸Á)£¼±³À°È¯°æ º¸È£¿¡ °üÇÑ ¹ý·ü£¾,´ë°ø¹æ¾îÇùÁ¶±¸¿ª(À§Å¹°íµµ:77-257m)£¼±º»ç
±âÁö ¹× ±º»ç½Ã¼³ º¸È£¹ý£¾,°ú¹Ð¾ïÁ¦±Ç¿ª£¼¼öµµ±ÇÁ¤ºñ°èȹ¹ý£¾,Áö¿ªÆ¯È¹ßÀüƯ±¸£¼Áö¿ªÆ¯È¹ßÀü
Ư±¸¿¡ ´ëÇÑ ±ÔÁ¦Æ¯·Ê¹ý£¾,(ÇѰ)Æó±â¹°¸Å¸³½Ã¼³ ¼³Ä¡Á¦ÇÑÁö¿ª£¼ÇѰ¼ö°è »ó¼ö¿ø¼öÁú°³¼± ¹×
ÁÖ¹ÎÁö¿ø µî¿¡ °üÇÑ ¹ý·ü£¾
[°øºÎ¿ÍÀÇ Â÷ÀÌ]
ÇØ´ç»çÇ× ¾ø½À´Ï´Ù.
[Âü°í»çÇ×]
ÀÓ´ë°ü°è´Â ¹Ì»óÀÔ´Ï´Ù. |
|
|
°ÇÃ๰ÇöȲ |
|
|
|
| ¼ÒÀçÁö |
¼¿ïƯº°½Ã °¼±¸ µîÃ̵¿ 828¹øÁö |
| ´ëÁö¸éÀû |
1243§³(376.67Æò) |
¿¬¸éÀû |
4615.25§³(1398.56Æò) |
ÁÖ¿ëµµ |
¾÷¹«½Ã¼³ |
| °ÇÃà¸éÀû |
733.62§³(222.31Æò) |
¿ëÀû·ü»êÁ¤¿¬¸éÀû |
3728.81§³(1129.94Æò) |
Âø°øÀÏÀÚ |
2018.12.03 |
| °ÇÆóÀ² |
59.02% |
¿ëÀû·ü |
299.98% |
»ç¿ë½ÂÀÎÀÏÀÚ |
2020.05.29 |
| Áö»óÃþ¼ö |
7Ãþ |
ÁöÇÏÃþ¼ö |
2Ãþ |
±¸Á¶ |
ö±ÙÄÜÅ©¸®Æ®±¸Á¶ |
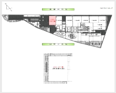
°ÇÃ๰Ãþº°ÇöȲ [º¸±â]| Ãþº° | ±¸Á¶ | ¿ëµµ | ¸éÀû | | 1Ãþ | ö±ÙÄÜÅ©¸®Æ®±¸Á¶ | ÁÖÂ÷Àå, ±Ù¸°»ýȰ½Ã¼³ | 448.39§³ (135.88Æò) | | 1Ãþ | ö±ÙÄÜÅ©¸®Æ®±¸Á¶ | ÁÖÂ÷Àå | 47.36§³ (14.35Æò) | | 2Ãþ | ö±ÙÄÜÅ©¸®Æ®±¸Á¶ | ¾÷¹«½Ã¼³(¿ÀÇǽºÅÚ) | 588.56§³ (178.35Æò) | | 3Ãþ | ö±ÙÄÜÅ©¸®Æ®±¸Á¶ | ¾÷¹«½Ã¼³(¿ÀÇǽºÅÚ) | 588.56§³ (178.35Æò) | | 4Ãþ | ö±ÙÄÜÅ©¸®Æ®±¸Á¶ | ¾÷¹«½Ã¼³(¿ÀÇǽºÅÚ) | 588.56§³ (178.35Æò) | | 5Ãþ | ö±ÙÄÜÅ©¸®Æ®±¸Á¶ | ¾÷¹«½Ã¼³(¿ÀÇǽºÅÚ) | 567.94§³ (172.1Æò) | | 6Ãþ | ö±ÙÄÜÅ©¸®Æ®±¸Á¶ | ¾÷¹«½Ã¼³(¿ÀÇǽºÅÚ) | 567.94§³ (172.1Æò) | | 7Ãþ | ö±ÙÄÜÅ©¸®Æ®±¸Á¶ | ¾÷¹«½Ã¼³(¿ÀÇǽºÅÚ) | 378.86§³ (114.81Æò) | | Áö1Ãþ | ö±ÙÄÜÅ©¸®Æ®±¸Á¶ | ±âÀü½Ç | 208.24§³ (63.1Æò) | | Áö2Ãþ | ö±ÙÄÜÅ©¸®Æ®±¸Á¶ | ÁÖÂ÷Àå | 630.84§³ (191.16Æò) |
|
|
|
|
|
|
 |
ÀÓÂ÷³»¿ª |
[¹è´ç¿ä±¸Á¾±âÀÏ : 2025/07/28] |
|
|
| ÀÓÂ÷ÀÎ |
Á¡À¯°ü°è |
ÀüÀÔÀÏÀÚ |
È®Á¤ÀÏÀÚ |
¹è´ç¿ä±¸ÀÏ |
º¸Áõ±Ý/Â÷ÀÓ |
´ëÇ׿ä°Ç |
ºñ°í |
| ¸Å°¢±âÀÏ 7ÀÏÀü¿¡ ¸Å°¢¹°°Ç¸í¼¼¼°¡ °ø°íµÇ¿À´Ï È®ÀÎÇϽñ⠹ٶø´Ï´Ù. |
| Á¶OO |
101È£ |
2021.10.12. |
2021.10.12. |
2025.5.23. |
40,000,000 [¿ù]2,400,000 |
O |
2021.10.01.~ |
|
|
|
 |
Áö¿ªºÐ¼® |
|
|
|
|
| ÁöÇÏö |
|
Çб³ |
|
| °ü°ø¼ |
|
| ¹ý¿ø |
¼¿ï³²ºÎÁö¹æ¹ý¿ø (080-88)¼¿ïƯº°½Ã ¾çõ±¸ ½Å¿ù·Î 386(½ÅÁ¤µ¿) ´ëÇ¥ : 02)2192-1114 ¿µµîÆ÷±¸, °¼±¸, ¾çõ±¸, ±¸·Î±¸, ±Ýõ±¸ |
| µî±â¼Ò |
¼¿ï³²ºÎÁö¹æ¹ý¿ø º»¿ø µî±â±¹ (´ëÇ¥:1544-0773, ÆÑ½º:(02)2629-7307, ¼¿ïƯº°½Ã ¿µµîÆ÷±¸ °æÀηΠ772 (¹®·¡µ¿ 1°¡)) |
| ¼¼¹«¼ |
°¼¼¼¹«¼ (´ëÇ¥:02-2630-42, ÆÑ½º:02-2679-8777, ¼¿ïƯº°½Ã °¼±¸ ¸¶°î¼1·Î 60 (¸¶°îµ¿)) |
|
|
|
 |
¹ý¿ø ¹°°ÇÀÚ·á ¿ä¾à |
|
|
|
|
| ¼Ò¸êµÇÁö ¾Ê´Â µî±âºÎ±Ç¸® |
|
| ¼³Á¤µÈ °ÍÀ¸·Î º¸´Â Áö»ó±Ç |
|
| ¹ý¿øÀÚ·á Æ¯ÀÌ»çÇ× |
[ÁÖ¿ä ¹®°Ç Á¢¼ö ³»¿ª]
[2026.01.16] ä±ÇÀÚ À¯OOOOOOOOOOOOO OOOO (OO O OOOO OOOO) ä±ÇÀÚº¯°æ½Å°í¼ Á¦Ãâ
|
[ºÎµ¿»ê ÇöȲÁ¶»ç¼ ºñ°í¶õ]
°Ç¹° ¿Üº®¿¡ `¸¶°îº£½ºÆ®Ä«¿îƼ`·Î Ç¥½ÃµÊ |
|
| ¿©ÀÇÁÖ°æ¸Å Á¶¾ð ÇѸ¶µð |
ÀÌ ºÎµ¿»êÀÇ ÀÔÂû¹ý¿øÀº ¼¿ï³²ºÎÁö¹æ¹ý¿øÀÔ´Ï´Ù.
ÀÔÂûÀÏÀº 2026-03-17ÀÔ´Ï´Ù.
ÀÔÂû½Ã°£Àº ~11:20ÀÔ´Ï´Ù. ÀÌ ¹ý¿ø¿¡´Â ½ÅÇÑÀºÇàÀÌ ÀÔÁ¡Çϰí ÀÖ½À´Ï´Ù.
|
|
|
| Åë°è±â°£ |
³«Âû¹°°Ç¼ö |
Æò±Õ°¨Á¤°¡ |
Æò±Õ³«Âû°¡ |
³«Âû°¡À² |
À¯ÂûȽ¼ö |
|
|
|
|
|
|
 |
|