|
|
| ¼ÒÀçÁö |
°æ±âµµ ¿ëÀνà ±âÈﱸ µ¿¹éµ¿ 665 µ¿¹éÄھƷ罺ĵð³ªÇϿ콺 117µ¿ 2È£
|
|
| »ç°Ç¹øÈ£ |
2025 Ÿ°æ 54881 |
¹°°Ç¹øÈ£ |
1
|
¹°°Ç¿ëµµ |
´Ù¼¼´ë,ºô¶ó |
| °¨Á¤Æò°¡¾× |
403,000,000¿ø |
°æ¸Å´ë»ó |
ÅäÁö ¹× °Ç¹°Àϰý ¸Å°¢ |
ÁøÇà»óÅ |
½Å°Ç |
| ÃÖÀúÀÔÂû°¡ |
(100%) 403,000,000¿ø
|
°Ç¹°¸éÀû |
84.74§³(25.63Æò) |
ÀÔÂû±âÀÏ |
2026.03.20(±Ý) 10:00
(ÀÔÂû 12ÀÏÀü)
|
| ÀÔÂûº¸Áõ±Ý |
(10%) 40,300,000¿ø |
ÅäÁö¸éÀû |
130.59§³(39.50Æò)
|
À¯ÂûȽ¼ö |
0ȸ |
| ÀÔÂû¹ý¿ø |
¼ö¿øÁö¹æ¹ý¿ø |
°æ¸Å¹æ¹ý |
|
¹°°ÇÁ¶È¸¼ö |
¿À´Ã: 5ȸ [´©Àû: 25ȸ]
|
| ¸»¼Ò±âÁØ | ÃÖ¼±¼øÀ§ ¼³Á¤ : 2018.11.23. ±ÙÀú´ç ¼³Á¤
|
|
|
|
|
|
|
|
|
|
|
°æ¸Å´ë»ó ¸ñ·Ï
|
|
| ±¸ºÐ |
¸ñ·Ï |
ÁÖ¼Ò |
±¸Á¶/¿ëµµ/´ëÁö±Ç |
ºñ°í |
´ëÁö±Ç
|
1 |
µ¿¹éµ¿ 665 |
12811ºÐÀÇ 130.586 |
130.586§³ (39.50Æò)
|
°Ç¹°
|
1 |
µ¿¹éµ¿ 665 |
117µ¿ 2È£ ö±ÙÄÜÅ©¸®Æ®±¸Á¶ |
84.7419§³ (25.63Æò)
|
|
|
|
2026-03-20
ÁøÇà
|
(100%)
403,000,000¿ø
|
|
|
|
|
|
°¨Á¤Æò°¡¼ ¿ä¾à |
|
[À§Ä¡/ÁÖÀ§È¯°æ]
º» °ÇÀº °æ±âµµ ¿ëÀνà ±âÈﱸ µ¿¹éµ¿ ¼ÒÀç ""¹éÇö°íµîÇб³"" ³²µ¿Ãø¿¡ Á¢ÇÏ¿© À§Ä¡Çϸç, ÁÖÀ§´Â ¾ÆÆÄÆ®´ÜÁö, °ø¿ø, °ø°ø½Ã¼³, Çб³ µîÀÌ È¥ÀçÇÏ´Â ÁÖÅÃÁö´ëÀÓ.
[±³Åë»óȲ]
º» °Ç±îÁö Â÷·®Á¢±Ù °¡´ÉÇϰí Àαٿ¡ °£¼±µµ·Î°¡ ¼ÒÀçÇÏ¿© ±³Åë»óȲÀº º¸ÅëÀÓ.
[°Ç¹°±¸Á¶]
ö±ÙÄÜÅ©¸®Æ®±¸Á¶ °æ»çÁöºØ 3Ãþ °Ç³» 117µ¿ 2È£·Î¼,
¿Üº® : ¼¼¸à¸ôÅ»À§ ÆäÀÎÆÃ ¹× Ä¡À庮µ¹ ºÙÀÓ ¸¶°¨.
³»º® : º®Áö ¹× ŸÀÏ ¸¶°¨
âȣ : ¾Ë¹Ì´½¼¦½Ã ¸¶°¨.
[ÀÌ¿ë»óÅÂ]
°øµ¿ÁÖÅÃ(´Ù¼¼´ë)À¸·Î ÀÌ¿ëÁßÀÓ.
[¼³ºñ³»¿ª]
À§»ý¼³ºñ, ±Þ¹è¼ö¼³ºñ, µµ½Ã°¡½º¼³ºñ µîÀÌ µÇ¾îÀÖÀ½.
[ÅäÁöÇü»ó/ÀÌ¿ë»óÅÂ]
ºÎÁ¤Çü ÆòÁö·Î¼ °øµ¿ÁÖÅÃ(´Ù¼¼´ë)ÀÇ °ÇºÎÁö·Î ÀÌ¿ëÁßÀÓ.
7)ÀÎÁ¢ µµ·Î»óŵî
´ÜÁö³» µµ·Î¸¦ ÅëÇÏ¿© ³²µ¿ÃøÀ¸·Î ³ëÆø ¾à13¹ÌÅÍÀÇ Æ÷Àåµµ·Î¿¡ Á¢ÇÔ.
[ÅäÁöÀÌ¿ë°èȹ]
µµ½ÃÁö¿ª, Á¦1Á¾ÀϹÝÁÖ°ÅÁö¿ª, Áö±¸´ÜÀ§°èȹ±¸¿ª, Áß·Î3·ù(Æø 12m~15m)(Áý»êµµ·Î)(Á¢ÇÕ) °¡Ãà»çÀ°Á¦Çѱ¸¿ª£¼°¡ÃàºÐ´¢ÀÇ °ü¸® ¹× À̿뿡 °üÇÑ ¹ý·ü£¾, »ó´ëº¸È£±¸¿ª£¼±³À°È¯°æ º¸È£¿¡ °üÇÑ ¹ý·ü£¾, Àý´ëº¸È£±¸¿ª£¼±³À°È¯°æ º¸È£¿¡ °üÇÑ ¹ý·ü£¾, ¼ºÀå°ü¸®±Ç¿ª£¼¼öµµ±ÇÁ¤ºñ°èȹ¹ý£¾, ÅÃÁö°³¹ßÁö±¸£¼ÅÃÁö°³¹ßÃËÁø¹ý£¾
[°øºÎ¿ÍÀÇ Â÷ÀÌ]
¾øÀ½.
[Âü°í»çÇ×]
ÀÓ´ë°ü°è´Â ¹Ì»óÀÓ. |
|
|
°ÇÃ๰ÇöȲ |
|
|
|
| ¼ÒÀçÁö |
°æ±âµµ ¿ëÀνà ±âÈﱸ µ¿¹éµ¿ 665¹øÁö |
| ´ëÁö¸éÀû |
|
¿¬¸éÀû |
277.11§³(83.97Æò) |
ÁÖ¿ëµµ |
°øµ¿ÁÖÅà |
| °ÇÃà¸éÀû |
146.8398§³(44.5Æò) |
¿ëÀû·ü»êÁ¤¿¬¸éÀû |
277.11§³(83.97Æò) |
Âø°øÀÏÀÚ |
2016.04.06 |
| °ÇÆóÀ² |
|
¿ëÀû·ü |
|
»ç¿ë½ÂÀÎÀÏÀÚ |
2017.07.28 |
| Áö»óÃþ¼ö |
3Ãþ |
ÁöÇÏÃþ¼ö |
|
±¸Á¶ |
ö±ÙÄÜÅ©¸®Æ®±¸Á¶ |
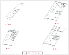
°ÇÃ๰Ãþº°ÇöȲ [º¸±â]| Ãþº° | ±¸Á¶ | ¿ëµµ | ¸éÀû | | 1Ãþ | ö±ÙÄÜÅ©¸®Æ®±¸Á¶ | ´Ù¼¼´ëÁÖÅà | 91.4083§³ (27.7Æò) | | 1Ãþ | ö±ÙÄÜÅ©¸®Æ®±¸Á¶ | ´Ù¼¼´ëÁÖÅà | 71.781§³ (21.75Æò) | | 1Ãþ | ö±ÙÄÜÅ©¸®Æ®±¸Á¶ | ´Ù¼¼´ëÁÖÅà | 89.7798§³ (27.21Æò) | | 1Ãþ | ö±ÙÄÜÅ©¸®Æ®±¸Á¶ | ´Ù¼¼´ëÁÖÅà | 91.4083§³ (27.7Æò) | | 1Ãþ | ö±ÙÄÜÅ©¸®Æ®±¸Á¶ | ´Ù¼¼´ëÁÖÅà | 89.7798§³ (27.21Æò) | | 1Ãþ | ö±ÙÄÜÅ©¸®Æ®±¸Á¶ | ´Ù¼¼´ëÁÖÅà | 89.7798§³ (27.21Æò) | | 1Ãþ | ö±ÙÄÜÅ©¸®Æ®±¸Á¶ | ´Ù¼¼´ëÁÖÅà | 89.7798§³ (27.21Æò) | | 2Ãþ | ö±ÙÄÜÅ©¸®Æ®±¸Á¶ | ´Ù¼¼´ëÁÖÅà | 84.6711§³ (25.66Æò) | | 2Ãþ | ö±ÙÄÜÅ©¸®Æ®±¸Á¶ | ´Ù¼¼´ëÁÖÅà | 84.6711§³ (25.66Æò) | | 2Ãþ | ö±ÙÄÜÅ©¸®Æ®±¸Á¶ | ´Ù¼¼´ëÁÖÅà | 89.0822§³ (26.99Æò) | | 2Ãþ | ö±ÙÄÜÅ©¸®Æ®±¸Á¶ | ´Ù¼¼´ëÁÖÅà | 84.6711§³ (25.66Æò) | | 2Ãþ | ö±ÙÄÜÅ©¸®Æ®±¸Á¶ | ´Ù¼¼´ëÁÖÅà | 84.6711§³ (25.66Æò) | | 2Ãþ | ö±ÙÄÜÅ©¸®Æ®±¸Á¶ | ´Ù¼¼´ëÁÖÅà | 62.78§³ (19.02Æò) | | 2Ãþ | ö±ÙÄÜÅ©¸®Æ®±¸Á¶ | ´Ù¼¼´ëÁÖÅà | 89.0822§³ (26.99Æò) | | 3Ãþ | ö±ÙÄÜÅ©¸®Æ®±¸Á¶ | ´Ù¼¼´ëÁÖÅà | 64.9484§³ (19.68Æò) | | 3Ãþ | ö±ÙÄÜÅ©¸®Æ®±¸Á¶ | ´Ù¼¼´ëÁÖÅà | 94.2426§³ (28.56Æò) | | 3Ãþ | ö±ÙÄÜÅ©¸®Æ®±¸Á¶ | ´Ù¼¼´ëÁÖÅà | 88.83§³ (26.92Æò) | | 3Ãþ | ö±ÙÄÜÅ©¸®Æ®±¸Á¶ | ´Ù¼¼´ëÁÖÅà | 112.8975§³ (34.21Æò) | | 3Ãþ | ö±ÙÄÜÅ©¸®Æ®±¸Á¶ | ´Ù¼¼´ëÁÖÅà | 94.2426§³ (28.56Æò) | | 3Ãþ | ö±ÙÄÜÅ©¸®Æ®±¸Á¶ | ´Ù¼¼´ëÁÖÅà | 88.83§³ (26.92Æò) | | 3Ãþ | ö±ÙÄÜÅ©¸®Æ®±¸Á¶ | ´Ù¼¼´ëÁÖÅà | 94.2426§³ (28.56Æò) | | 3Ãþ | ö±ÙÄÜÅ©¸®Æ®±¸Á¶ | ´Ù¼¼´ëÁÖÅà | 94.2426§³ (28.56Æò) | | Áö1Ãþ | ö±ÙÄÜÅ©¸®Æ®±¸Á¶ | ÁÖÂ÷Àå, â°í | 77.0754§³ (23.36Æò) | | Áö1Ãþ | ö±ÙÄÜÅ©¸®Æ®±¸Á¶ | ÁÖÂ÷Àå, â°í | 86.4903§³ (26.21Æò) | | Áö1Ãþ | ö±ÙÄÜÅ©¸®Æ®±¸Á¶ | ÁÖÂ÷Àå, â°í | 86.4903§³ (26.21Æò) | | Áö1Ãþ | ö±ÙÄÜÅ©¸®Æ®±¸Á¶ | ÁÖÂ÷Àå, â°í | 86.4903§³ (26.21Æò) | | Áö1Ãþ | ö±ÙÄÜÅ©¸®Æ®±¸Á¶ | ÁÖÂ÷Àå, â°í | 86.4903§³ (26.21Æò) | | Áö1Ãþ | ö±ÙÄÜÅ©¸®Æ®±¸Á¶ | â°í | 26.7158§³ (8.1Æò) | | Áö1Ãþ | ö±ÙÄÜÅ©¸®Æ®±¸Á¶ | ÁÖÂ÷Àå, â°í | 77.0754§³ (23.36Æò) | | Áö2Ãþ | ö±ÙÄÜÅ©¸®Æ®±¸Á¶ | ÁÖÂ÷Àå | 64.0074§³ (19.4Æò) |
|
|
|
|
|
|
 |
ÀÓÂ÷³»¿ª |
[¹è´ç¿ä±¸Á¾±âÀÏ : 2025/05/20] |
|
|
| ÀÓÂ÷ÀÎ |
Á¡À¯°ü°è |
ÀüÀÔÀÏÀÚ |
È®Á¤ÀÏÀÚ |
¹è´ç¿ä±¸ÀÏ |
º¸Áõ±Ý/Â÷ÀÓ |
´ëÇ׿ä°Ç |
ºñ°í |
| ¸Å°¢±âÀÏ 7ÀÏÀü¿¡ ¸Å°¢¹°°Ç¸í¼¼¼°¡ °ø°íµÇ¿À´Ï È®ÀÎÇϽñ⠹ٶø´Ï´Ù. |
| ˱OO |
|
2020.05.15 |
|
|
|
X |
|
|
|
|
 |
Áö¿ªºÐ¼® |
|
|
|
|
| ÁöÇÏö |
|
Çб³ |
|
| °ü°ø¼ |
|
| ¹ý¿ø |
¼ö¿øÁö¹æ¹ý¿ø (165-12)°æ±âµµ ¼ö¿ø½Ã ¿µÅ뱸 ¹ýÁ¶·Î 105, Çϵ¿, ¼ö¿ø¹ý¿øÁ¾ÇÕû»ç ´ëÇ¥ : 031)210-1114, ¾ß°£ : 031)210-1111 ¼ö¿ø½Ã, ¿À»ê½Ã, ȼº½Ã, ¿ëÀνà |
| µî±â¼Ò |
¼ö¿øÁö¹æ¹ý¿ø º»¿ø ¿ëÀεî±â¼Ò (´ëÇ¥:1544-0773, ÆÑ½º:(031)321-3919, °æ±âµµ ¿ëÀνà óÀα¸ ¼º»ê·Î 7 (¿ªºÏµ¿ 391-28)) |
| ¼¼¹«¼ |
±âÈï¼¼¹«¼ (´ëÇ¥:031-8007-1, ÆÑ½º:031-895-4902, °æ±âµµ ¿ëÀνà ±âÈﱸ Èï´ö2·Î117¹ø±æ 15(¿µ´öµ¿)) |
|
|
|
 |
¹ý¿ø ¹°°ÇÀÚ·á ¿ä¾à |
|
|
|
|
| ¼Ò¸êµÇÁö ¾Ê´Â µî±âºÎ±Ç¸® |
|
| ¼³Á¤µÈ °ÍÀ¸·Î º¸´Â Áö»ó±Ç |
|
| ¹ý¿øÀÚ·á Æ¯ÀÌ»çÇ× |
[ÁÖ¿ä ¹®°Ç Á¢¼ö ³»¿ª]
|
[ºÎµ¿»ê ÇöȲÁ¶»ç¼ ºñ°í¶õ]
ÇØ´ç ºÎµ¿»êÀÇ ÇöȲÀº ¿Ü |
|
| ¿©ÀÇÁÖ°æ¸Å Á¶¾ð ÇѸ¶µð |
ÀÌ ºÎµ¿»êÀÇ ÀÔÂû¹ý¿øÀº ¼ö¿øÁö¹æ¹ý¿øÀÔ´Ï´Ù.
ÀÔÂûÀÏÀº 2026-03-20ÀÔ´Ï´Ù.
ÀÔÂû½Ã°£Àº ~11:10ÀÔ´Ï´Ù. ÀÌ ¹ý¿ø¿¡´Â KB±¹¹ÎÀºÇàÀÌ ÀÔÁ¡Çϰí ÀÖ½À´Ï´Ù.
|
ÃëÇÏ ¶Ç´Â Ãë¼ÒµÉ °¡´É¼º ÀÖ½À´Ï´Ù
ÀÌ ¹°°ÇÀÇ °¨Á¤°¡°ÝÀº 403,000,000¿øÀÔ´Ï´Ù. °æ¸Å¸¦ ½ÅûÇÑ Ã¤±ÇÀÚ°¡ ¹è´ç ¹Þ¾Æ¾ß ÇÒ ±Ý¾×Àº 105,600,000¿ø À¸·Î °¨Á¤°¡°Ý ´ëºñ »ó´çÈ÷ ÀûÀº ±Ý¾×ÀÔ´Ï´Ù.
ÀÌ·± °æ¿ì, 乫°¡°¡ º¯Á¦ÇÏ¿© °æ¸Å¸¦ ÃëÇϽÃŰ°Å³ª °æ¸Å½Åûä±ÇÀÚ°¡ ¹è´ç¹ÞÀ» ±Ý¿øÀÌ ¾ø°ÔµÇ¾î À̸¥ ¹Ù "¹«À׿©¿¡ ÀÇÇÑ Ãë¼Ò"°¡ µÉ °¡´É¼ºÀÌ ÀÖ½À´Ï´Ù.
|
|
|
| Åë°è±â°£ |
³«Âû¹°°Ç¼ö |
Æò±Õ°¨Á¤°¡ |
Æò±Õ³«Âû°¡ |
³«Âû°¡À² |
À¯ÂûȽ¼ö |
|
|
|
|
|
|
 |
|