|
|
| ¼ÒÀçÁö |
°æ±âµµ ±¤Áֽà °ïÁö¾ÏÀ¾ ¿¹Ì¸® 465-11 Æ÷·¹½ºÆ®ºô 102µ¿ 1Ãþ101È£
|
|
| »ç°Ç¹øÈ£ |
2025 Ÿ°æ 732 |
¹°°Ç¹øÈ£ |
1
|
¹°°Ç¿ëµµ |
´Ù¼¼´ë,ºô¶ó |
| °¨Á¤Æò°¡¾× |
243,000,000¿ø |
°æ¸Å´ë»ó |
ÅäÁö ¹× °Ç¹°Àϰý ¸Å°¢ |
ÁøÇà»óÅ |
½Å°Ç |
| ÃÖÀúÀÔÂû°¡ |
(100%) 243,000,000¿ø
|
°Ç¹°¸éÀû |
53.16§³(16.08Æò) |
ÀÔÂû±âÀÏ |
2026.03.23(¿ù) 10:00
(ÀÔÂû 7ÀÏÀü)
|
| ÀÔÂûº¸Áõ±Ý |
(10%) 24,300,000¿ø |
ÅäÁö¸éÀû |
62.50§³(18.91Æò)
|
À¯ÂûȽ¼ö |
0ȸ |
| ÀÔÂû¹ý¿ø |
¼ö¿øÁö¹æ¹ý¿ø ¼º³²Áö¿ø |
°æ¸Å¹æ¹ý |
|
¹°°ÇÁ¶È¸¼ö |
¿À´Ã: 5ȸ [´©Àû: 51ȸ]
|
| ¸»¼Ò±âÁØ | ÃÖ¼±¼øÀ§ ¼³Á¤ : 2020.07.20. ±ÙÀú´ç±Ç ¼³Á¤
|
|
|
|
|
|
|
|
|
|
|
°æ¸Å´ë»ó ¸ñ·Ï
|
|
| ±¸ºÐ |
¸ñ·Ï |
ÁÖ¼Ò |
±¸Á¶/¿ëµµ/´ëÁö±Ç |
ºñ°í |
´ëÁö±Ç
|
1 |
¿¹Ì¸® 465-11 |
500ºÐÀÇ 62.5 |
62.5§³ (18.91Æò)
|
°Ç¹°
|
1 |
¿¹Ì¸® 465-11 |
102µ¿ 1Ãþ101È£ ö±ÙÄÜÅ©¸®Æ®±¸Á¶ |
53.16§³ (16.08Æò)
|
|
|
|
2026-03-23
ÁøÇà
|
(100%)
243,000,000¿ø
|
|
|
|
|
|
°¨Á¤Æò°¡¼ ¿ä¾à |
|
[À§Ä¡/ÁÖÀ§È¯°æ]
º»°ÇÀº °æ±âµµ ±¤Áֽà °ïÁö¾ÏÀ¾ ¿¹Ì¸® ¼ÒÀç ""¿¹Ì±³"" ºÏÃø Àαٿ¡ À§Ä¡Çϸç, ºÎ±ÙÀº ´Ù¼¼´ëÁÖÅÃ,
â°í½Ã¼³ ¹× ¼Ò±Ô¸ð°øÀå µîÀÌ È¥ÀçµÈ Áö¿ªÀ¸·Î¼ °øµ¿ÁÖ°ÅÁö·Î¼ÀÇ ÁÖÀ§È¯°æ º¸ÅëÀÓ.
[±³Åë»óȲ]
º»°Ç±îÁö Â÷·®Á¢±Ù °¡´ÉÇϸç ÀαÙÀÇ °£¼±µµ·Îº¯¿¡ ´ëÁß±³ÅëÆíÀÎ ³ë¼±¹ö½ºÁ¤·ùÀåÀÌ ¼ÒÀçÇÏ¿© ´ëÁß±³
Åë»çÁ¤ º¸ÅëÀÓ.
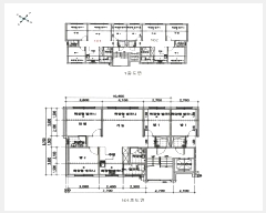
[°Ç¹°±¸Á¶]
2019. 05. 16. »ç¿ë½ÂÀÎµÈ Ã¶±ÙÄÜÅ©¸®Æ®±¸Á¶ (ö±Ù)ÄÜÅ©¸®Æ®ÁöºØ 4Ãþ °Ç¹° Áß 1Ãþ101È£·Î¼,
¿Üº®: ŸÀϺÙÀÓ ¸¶°¨ µî
³»º®: ½Ã¸àÆ®¸ôÅ» À§ º®ÁöÄ¡Àå ¹× ÀϺΠŸÀϺÙÀÓ ¸¶°¨ µî
âȣ: »õ½ÃâȣÀÓ.
[ÀÌ¿ë»óÅÂ]
´Ù¼¼´ëÁÖÅÃÀ¸·Î ÀÌ¿ë ÁßÀ̸ç ÀÚ¼¼ÇÑ ³»ºÎ±¸Á¶´Â º°ÁöÀÇ ""³»ºÎ±¸Á¶µµ"" Âü°í ¹Ù¶÷.
[¼³ºñ³»¿ª]
À§»ý ¹× ±Þ¡¤¹è¼ö½Ã¼³, ½Â°±â¼³ºñ, µµ½Ã°¡½º °³º°³¹æ¼³ºñ µî °®Ãß¾úÀ½.
[ÅäÁöÇü»ó/ÀÌ¿ë»óÅÂ]
ÀÎÁ¢ÇÑ ÅäÁö¿Í °°Àº ³ôÀÌÀÇ ºÎÁ¤ÇüÅäÁö·Î¼ ´Ù¼¼´ëÁÖÅðǺÎÁö·Î ÀÌ¿ë ÁßÀÓ.
7)ÀÎÁ¢ µµ·Î»óŵî
ºÏµ¿ÃøÀ¸·Î ¼¼·Î(°¡)¿¡ Á¢ÇÔ.
[ÅäÁöÀÌ¿ë°èȹ]
°èȹ°ü¸®Áö¿ª(°èȹ°ü¸®), ¼ºÀå°ü¸®°èȹ±¸¿ª(¼ºÀå°ü¸®Áö¿ª(ÁÖ°ÅÇü)), °¡Ãà»çÀ°Á¦Çѱ¸¿ª£¼°¡ÃàºÐ´¢ÀÇ
°ü¸® ¹× À̿뿡 °üÇÑ ¹ý·ü£¾, ¹èÃâ½Ã¼³¼³Ä¡Á¦ÇÑÁö¿ª£¼¹°È¯°æº¸Àü¹ý£¾, ÀÚ¿¬º¸Àü±Ç¿ª£¼¼öµµ±ÇÁ¤ºñ°èȹ
¹ý£¾, °øÀå¼³¸³½ÂÀÎÁö¿ª£¼¼öµµ¹ý£¾, Ưº°´ëÃ¥Áö¿ª£¼È¯°æÁ¤Ã¥±âº»¹ý£¾.
[°øºÎ¿ÍÀÇ Â÷ÀÌ]
ÇØ´ç»çÇ× ¾øÀ½.
[Âü°í»çÇ×]
- ÀÓ´ë°ü°è: ¹Ì»óÀÓ.
- ±âŸ: ÇØ´ç»çÇ× ¾øÀ½. |
|
|
°ÇÃ๰ÇöȲ |
|
|
|
| ¼ÒÀçÁö |
°æ±âµµ ±¤Áֽà °ïÁö¾ÏÀ¾ ¿¹Ì¸® 465-11¹øÁö |
| ´ëÁö¸éÀû |
500§³(151.52Æò) |
¿¬¸éÀû |
498.6§³(151.09Æò) |
ÁÖ¿ëµµ |
°øµ¿ÁÖÅà |
| °ÇÃà¸éÀû |
178.95§³(54.23Æò) |
¿ëÀû·ü»êÁ¤¿¬¸éÀû |
498.6§³(151.09Æò) |
Âø°øÀÏÀÚ |
2018.10.18 |
| °ÇÆóÀ² |
35.79% |
¿ëÀû·ü |
99.72% |
»ç¿ë½ÂÀÎÀÏÀÚ |
2019.05.16 |
| Áö»óÃþ¼ö |
4Ãþ |
ÁöÇÏÃþ¼ö |
|
±¸Á¶ |
ö±ÙÄÜÅ©¸®Æ®±¸Á¶ |
°ÇÃ๰Ãþº°ÇöȲ [º¸±â]| Ãþº° | ±¸Á¶ | ¿ëµµ | ¸éÀû | | 1Ãþ | ö±ÙÄÜÅ©¸®Æ®±¸Á¶ | ´Ù¼¼´ëÁÖÅÃ(2¼¼´ë) | 124.65§³ (37.77Æò) | | 2Ãþ | ö±ÙÄÜÅ©¸®Æ®±¸Á¶ | ´Ù¼¼´ëÁÖÅÃ(2¼¼´ë) | 124.65§³ (37.77Æò) | | 3Ãþ | ö±ÙÄÜÅ©¸®Æ®±¸Á¶ | ´Ù¼¼´ëÁÖÅÃ(2¼¼´ë) | 124.65§³ (37.77Æò) | | 4Ãþ | ö±ÙÄÜÅ©¸®Æ®±¸Á¶ | ´Ù¼¼´ëÁÖÅÃ(2¼¼´ë) | 124.65§³ (37.77Æò) |
|
|
|
|
|
|
|
|
|
¸éÀû(§³), ±Ý¾×(¸¸¿ø)
| °è¾àÀÏ | ±âÁØ | °Ç¹°¸íĪ | Ãþ | ¿¬¸éÀû | ´ëÁö¸éÀû | °Å·¡±Ý¾× | °ÇÃà³âµµ | | °Å·¡³»¿ªÀÌ ¾ø½À´Ï´Ù. |
| °è¾àÀÏ | ±âÁØ | °Ç¹°¸íĪ | Ãþ | ¿¬¸éÀû | º¸Áõ±Ý | ¿ù¼¼ | °ÇÃà³âµµ | | 2026.02.21 | ¿ù¼¼ | Çö(422-0) | 2 | 64.17 | 3,000 | 50 | 1996 | | 2026.02.12 | ¿ù¼¼ | SOOPIA-Bµ¿ | 4 | 61.93 | 500 | 120 | 2022 | | 2026.02.11 | ¸Å¸Å | ¿ø¿ìACEºô¶óÆ® | 4 | 49.39 | 7,300 | | 1997 | | 2026.02.10 | ¸Å¸Å | ¿¡ÄÚÇÏÀÓ(Fµ¿) | 3 | 51.11 | 18,000 | | 2014 | | 2026.02.08 | Àü¼¼ | ¿µ(YOUNG)ºô¸®Áö | 3 | 48.06 | 8,000 | 0 | 2007 | | 2026.02.03 | ¿ù¼¼ | ºê·ÐÁîºô106µ¿ | 4 | 55.06 | 1,000 | 50 | 2016 | | 2026.02.02 | ¸Å¸Å | ³×½ºÆ®ºô(Aµ¿) | 2 | 50.89 | 17,000 | | 2015 | | 2026.01.29 | ¸Å¸Å | ½Å¿øÇØ´ãä(102µ¿) | 1 | 69.005 | 24,200 | | 2018 | | 2026.01.26 | ¿ù¼¼ | Èޱ׸°ºô(103µ¿) | 3 | 51.94 | 1,500 | 70 | 2015 | | 2026.01.26 | ¿ù¼¼ | ±×¸°ÇÏÀÓ | 4 | 20.9 | 500 | 54 | 2019 | | 2026.01.24 | Àü¼¼ | û´ãºô¶ó | 4 | 76.47 | 8,500 | 0 | 2003 | | 2026.01.23 | ¸Å¸Å | º»ºô¸®Áö | 2 | 72.325 | 20,000 | | 2016 | | 2026.01.22 | ¿ù¼¼ | À§³Ê½ºÈú(102µ¿) | 3 | 54.11 | 4,000 | 50 | 2018 | | 2026.01.22 | Àü¼¼ | µ¿¿øºô¶ó(102µ¿) | 4 | 51.13 | 9,300 | 0 | 2014 | | 2026.01.21 | Àü¼¼ | Epalace(Cµ¿) | 3 | 66.42 | 18,000 | 0 | 2018 | | 2026.01.20 | Àü¼¼ | Çö´ëÆÓ¸®½º(1µ¿) | 1 | 62.663 | 9,600 | 0 | 2017 | | 2026.01.15 | ¿ù¼¼ | SOOPIA-Aµ¿ | 2 | 84.12 | 3,000 | 100 | 2022 | | 2026.01.13 | Àü¼¼ | Áøº¸ºô¶ó | 4 | 56.52 | 8,000 | 0 | 1992 | | 2026.01.13 | ¸Å¸Å | ½ÅÈï¸Ç¼Ç | 3 | 75.81 | 11,000 | | 2001 | | 2026.01.08 | ¸Å¸Å | Çà¿î±×¸°ºô(101µ¿) | 1 | 49.46 | 9,500 | | 2014 | | 2026.01.05 | ¸Å¸Å | Áøº¸ºô¶ó | 1 | 56.36 | 8,500 | | 1992 | | 2026.01.03 | Àü¼¼ | û¿ì¸®Ä¡ºô(104µ¿) | 2 | 59.58 | 8,000 | 0 | 2012 | | 2026.01.03 | Àü¼¼ | û´ãºô¶ó | 3 | 76.47 | 8,600 | 0 | 2003 | | 2025.12.27 | ¸Å¸Å | Æ÷·¹½ºÆ®ºô(101µ¿) | 3 | 54.49 | 19,000 | | 2019 | | 2025.12.22 | ¸Å¸Å | ÀÌÆÓ¸®½º(ºñµ¿) | 2 | 66.42 | 22,900 | | 2018 | | 2025.12.20 | Àü¼¼ | ±Ý°¸Ç¼Ç | 4 | 74.7 | 8,000 | 0 | 1997 | | 2025.12.20 | ¿ù¼¼ | ¿ì¸®ÆÓ¸®½ºÅ¸¿î(102µ¿) | 4 | 60.63 | 1,000 | 90 | 2019 | | 2025.12.19 | ¸Å¸Å | ½Å¿øÇØ´ãä(102µ¿) | 1 | 69.005 | 23,300 | | 2018 | | 2025.12.17 | ¿ù¼¼ | ¸¸¿ìºô¶ó | 2 | 48.57 | 1,000 | 55 | 2002 | | 2025.12.11 | ¸Å¸Å | »ï¼º±×¸°ºô¶ó(337-39) | 3 | 60.125 | 9,700 | | 1994 | | 2025.12.09 | ¸Å¸Å | ½Ö¿ëºô¶ó2Â÷ | 2 | 57.79 | 6,800 | | 1996 | | 2025.12.05 | ¿ù¼¼ | ¼¸²ºô¶óCµ¿ | 3 | 44.85 | 1,000 | 60 | 1992 | | 2025.12.02 | ¸Å¸Å | ´ºÈ¨Å¸¿î | 3 | 70.93 | 19,800 | | 2016 | | 2025.11.28 | ¸Å¸Å | ¼¸²ºô¶óAµ¿ | 2 | 44.85 | 7,600 | | 1992 | | 2025.11.27 | ¸Å¸Å | °Ç¿µºô¶óBµ¿ | 1 | 114.53 | 11,300 | | 1997 | | 2025.11.26 | ¸Å¸Å | ½Ö¿ëºô¶ó1Â÷ | 3 | 54.79 | 4,000 | | 1995 | | 2025.11.24 | ¿ù¼¼ | ½ÇÃ̺ô¶óAµ¿ | 2 | 51.01 | 6,500 | 10 | 2002 | | 2025.11.22 | Àü¼¼ | ±î»çÆç¸®½º(Dµ¿) | 3 | 62.49 | 14,800 | 0 | 2016 | | 2025.11.19 | ¿ù¼¼ | Çà¿î±×¸°ºô(101µ¿) | 3 | 49.46 | 3,000 | 55 | 2014 | | 2025.11.18 | ¸Å¸Å | ¸Þ¸£½Ã¾È(101µ¿) | 3 | 71.46 | 19,700 | | 2019 | | 2025.11.18 | ¿ù¼¼ | û¿ì¸®Ä¡ºô(102µ¿) | 2 | 59.82 | 2,000 | 80 | 2011 | | 2025.11.17 | ¸Å¸Å | ²Þ¿¡±×¸°1µ¿ | 4 | 60.41 | 23,800 | | 2016 | | 2025.11.17 | ¿ù¼¼ | SOOPIA-Aµ¿ | 2 | 84.12 | 3,000 | 100 | 2022 | | 2025.11.15 | Àü¼¼ | ¼º¿ìºô¶óDµ¿ | 3 | 80.16 | 7,500 | 0 | 1998 | | 2025.11.12 | ¸Å¸Å | ÇѸ¶·çÁÖÅà | 3 | 43.78 | 13,000 | | 2016 | | 2025.11.12 | ¸Å¸Å | ÇѸ¶·çÁÖÅà | 2 | 44.44 | 13,000 | | 2016 | | 2025.11.12 | ¸Å¸Å | ÇѸ¶·çÁÖÅà | 2 | 43.78 | 13,000 | | 2016 | | 2025.11.12 | ¸Å¸Å | ÇѸ¶·çÁÖÅà | 4 | 43.78 | 13,000 | | 2016 | | 2025.11.12 | ¸Å¸Å | ÇѸ¶·çÁÖÅà | 3 | 44.44 | 13,000 | | 2016 | | 2025.11.12 | ¸Å¸Å | ÇѸ¶·çÁÖÅà | 1 | 45.92 | 13,000 | | 2016 | | 2025.11.12 | ¸Å¸Å | ÇѸ¶·çÁÖÅÃ(2Â÷) | 2 | 45.74 | 12,100 | | 2016 | | 2025.11.12 | ¸Å¸Å | ÇѸ¶·çÁÖÅÃ(2Â÷) | 3 | 45.74 | 12,100 | | 2016 | | 2025.11.12 | ¸Å¸Å | ÇѸ¶·çÁÖÅÃ(2Â÷) | 3 | 46.9 | 12,100 | | 2016 | | 2025.11.12 | ¸Å¸Å | ÇѸ¶·çÁÖÅÃ(2Â÷) | 4 | 46.9 | 12,200 | | 2016 | | 2025.11.12 | ¸Å¸Å | ÇѸ¶·çÁÖÅà | 4 | 44.44 | 13,000 | | 2016 | | 2025.11.12 | ¸Å¸Å | ÇѸ¶·çÁÖÅÃ(2Â÷) | 2 | 46.9 | 12,100 | | 2016 | | 2025.11.12 | ¸Å¸Å | ÇѸ¶·çÁÖÅÃ(2Â÷) | 4 | 45.74 | 12,100 | | 2016 | | 2025.11.12 | ¸Å¸Å | ÇѸ¶·çÁÖÅÃ(2Â÷) | 2 | 50.08 | 12,100 | | 2016 | | 2025.11.12 | ¸Å¸Å | ÇѸ¶·çÁÖÅÃ(2Â÷) | 3 | 50.08 | 12,100 | | 2016 | | 2025.11.12 | ¸Å¸Å | ÇѸ¶·çÁÖÅÃ(2Â÷) | 4 | 50.08 | 12,100 | | 2016 | | 2025.11.03 | ¿ù¼¼ | ½Ö¿ë¾ÆÆ®È¨ºô¸®Áö(Aµ¿) | 5 | 58.93 | 1,000 | 70 | 2003 | | 2025.11.03 | ¿ù¼¼ | ½Ö¿ë¾ÆÆ®È¨ºô¸®Áö(Aµ¿) | 5 | 58.93 | 1,000 | 70 | 2003 | | 2025.11.03 | ¸Å¸Å | ½ãŸ¿î101µ¿ | 1 | 78.38 | 11,000 | | 1997 | | 2025.11.03 | Àü¼¼ | ¸¸¿ìºô¶ó | 4 | 80.69 | 9,000 | 0 | 2002 | | 2025.10.27 | ¸Å¸Å | û¿ì¸®Ä¡ºô(105µ¿) | 3 | 54.35 | 12,800 | | 2015 | | 2025.10.27 | Àü¼¼ | À§³Ê½ºÈú(102µ¿) | 1 | 53.14 | 15,000 | 0 | 2018 | | 2025.10.25 | Àü¼¼ | ½Ö¿ë¾ÆÆ®È¨ºô¸®Áö(Bµ¿) | 2 | 38.025 | 8,000 | 0 | 2003 | | 2025.10.21 | ¸Å¸Å | ÁÖÆÓ¸®½º½ºÆä¼È | 4 | 75.18 | 26,300 | | 2020 | | 2025.10.21 | ¸Å¸Å | ¿ì¸®ÆÓ¸®½ºÅ¸¿î(107µ¿) | 1 | 62.43 | 17,500 | | 2020 | | 2025.10.18 | ¿ù¼¼ | dz»êºô¶ó | 2 | 64.98 | 2,000 | 60 | 1996 | | 2025.10.18 | ¿ù¼¼ | ¾îÀº°¡ | 2 | 36.87 | 1,000 | 55 | 2017 | | 2025.10.13 | ¿ù¼¼ | ½Ö¿ëºô¶ó1Â÷ | 1 | 60.74 | 1,000 | 45 | 1995 | | 2025.10.11 | ¸Å¸Å | ºê·ÐÁîºô101µ¿ | 3 | 57.2495 | 17,900 | | 2016 | | 2025.10.01 | ¿ù¼¼ | ¸¸¿ìºô¶ó | 4 | 57.25 | 500 | 70 | 2002 | | 2025.09.25 | ¸Å¸Å | ¿¡ÄÚÇÏÀÓ | 4 | 58.64 | 13,900 | | 2012 | | 2025.09.25 | ¿ù¼¼ | ÇѸ¶·çÁÖÅÃ(2Â÷) | 2 | 50.08 | 500 | 55 | 2016 | | 2025.09.25 | ¿ù¼¼ | ¸¸¿ìºô¶ó | 1 | 48.24 | 500 | 50 | 2002 | | 2025.09.24 | ¸Å¸Å | ¿¡ÄÚÇÏÀÓ(Dµ¿) | 4 | 51.48 | 15,200 | | 2014 | | 2025.09.16 | ¸Å¸Å | ÁÖÆÓ¸®½º½ºÆä¼È | 3 | 75.18 | 26,900 | | 2020 | | 2025.09.12 | ¸Å¸Å | »ïÀϺô¶ó³ªµ¿ | 3 | 66.04 | 6,000 | | 1992 | | 2025.09.10 | ¿ù¼¼ | ±×¸°ÇÏÀÓ | 4 | 24.18 | 500 | 54 | 2019 | | 2025.09.05 | ¸Å¸Å | ÁÖÆÓ¸®½º(Aµ¿) | 3 | 73.55 | 23,500 | | 2018 | | 2025.09.01 | ¿ù¼¼ | ¼¸²ºô¶óCµ¿ | 3 | 44.85 | 500 | 80 | 1992 | | 2025.08.28 | ¿ù¼¼ | ´ë¿øºô¶ó101µ¿ | 4 | 70.69 | 1,000 | 40 | 1997 | | 2025.08.21 | ¿ù¼¼ | ÇѸ¶·çÁÖÅÃ(2Â÷) | 2 | 50.08 | 500 | 55 | 2016 | | 2025.08.18 | Àü¼¼ | ¿µ(YOUNG)ºô¸®Áö | 3 | 47.735 | 7,500 | 0 | 2007 | | 2025.08.12 | ¿ù¼¼ | ¿¡ÄÚÇÏÀÓ(Cµ¿) | 4 | 53.422 | 2,000 | 70 | 2014 | | 2025.08.07 | ¸Å¸Å | º§¶ó±î»ç | 3 | 72.315 | 21,000 | | 2017 | | 2025.08.05 | Àü¼¼ | ÇÑÃ̸¶À»(¿¡À̵¿) | 2 | 59.09 | 15,000 | 0 | 2018 | | 2025.07.29 | ¿ù¼¼ | ¾îÀº°¡ | 3 | 54.74 | 2,000 | 63 | 2017 | | 2025.07.27 | Àü¼¼ | Áøº¸ºô¶ó | 1 | 58.82 | 5,600 | 0 | 1992 | | 2025.07.18 | ¿ù¼¼ | À¯¸íºô¶ó | 2 | 49.62 | 500 | 45 | 1994 | | 2025.07.16 | Àü¼¼ | À§³Ê½ºÈú(102µ¿) | 4 | 53.14 | 20,900 | 0 | 2018 | | 2025.07.12 | ¸Å¸Å | ±Ý°¸Ç¼Ç | 1 | 75.9 | 8,800 | | 1997 | | 2025.07.12 | Àü¼¼ | ±Ý°¸Ç¼Ç | 1 | 75.9 | 8,000 | 0 | 1997 | | 2025.07.10 | ¸Å¸Å | ¿ì¸®ÆÓ¸®½ºÅ¸¿î(107µ¿) | 4 | 62.43 | 24,000 | | 2020 | | 2025.07.08 | ¸Å¸Å | ÅÂȺô¶ó | 2 | 50.66 | 15,500 | | 2013 | | 2025.07.01 | ¸Å¸Å | ºÎ±æºô¶óAµ¿ | 2 | 75.32 | 10,000 | | 1994 | | 2025.07.01 | Àü¼¼ | À§³Ê½ºÈú(102µ¿) | 4 | 53.14 | 20,900 | 0 | 2018 | | 2025.07.01 | Àü¼¼ | SOOPIA-Bµ¿ | 4 | 61.54 | 18,000 | 0 | 2022 | | 2025.06.27 | ¸Å¸Å | ´ÙºóÈú½ººô(´ë¼®µ¿) | 4 | 52.56 | 38,500 | | 2022 | | 2025.06.27 | ¿ù¼¼ | º§¶ó±î»ç | 2 | 72.315 | 2,000 | 90 | 2017 | | 2025.06.25 | ¿ù¼¼ | ¼Ò¿ïÇϿ콺(103µ¿) | 4 | 51.31 | 2,000 | 80 | 2017 | | 2025.06.23 | ¿ù¼¼ | ¼Ò±×³ëÆÓ¸®½º(Bµ¿) | 3 | 56.67 | 619 | 31 | 2018 | | 2025.06.20 | ¸Å¸Å | ²Þ¿¡±×¸°2µ¿ | 2 | 60.405 | 16,761 | | 2016 | | 2025.06.20 | ¸Å¸Å | ²Þ¿¡±×¸°3µ¿ | 3 | 60.405 | 16,960 | | 2016 | | 2025.06.20 | ¸Å¸Å | ²Þ¿¡±×¸°3µ¿ | 3 | 60.405 | 16,960 | | 2016 | | 2025.06.20 | ¸Å¸Å | ²Þ¿¡±×¸°2µ¿ | 1 | 60.405 | 16,561 | | 2016 | | 2025.06.20 | ¸Å¸Å | ²Þ¿¡±×¸°3µ¿ | 2 | 60.405 | 16,761 | | 2016 | | 2025.06.20 | ¸Å¸Å | ²Þ¿¡±×¸°2µ¿ | 3 | 60.405 | 16,960 | | 2016 | | 2025.06.20 | ¸Å¸Å | ²Þ¿¡±×¸°2µ¿ | 2 | 60.405 | 16,761 | | 2016 | | 2025.06.20 | ¸Å¸Å | ²Þ¿¡±×¸°2µ¿ | 3 | 60.405 | 16,960 | | 2016 | | 2025.06.18 | ¿ù¼¼ | Æ÷·¹½ºÆ®ºô(102µ¿) | 4 | 53.16 | 1,000 | 80 | 2019 | | 2025.06.16 | ¸Å¸Å | »ï½ÂÁÖÅÃ1Â÷ | 3 | 76.4 | 12,000 | | 1997 | | 2025.06.10 | ¿ù¼¼ | ÀÌÆÓ¸®½º(ºñµ¿) | 3 | 66.42 | 2,000 | 50 | 2018 | | 2025.06.10 | ¿ù¼¼ | ÀÌÆÓ¸®½º(ºñµ¿) | 3 | 66.42 | 2,000 | 50 | 2018 | | 2025.06.07 | ¿ù¼¼ | ´ë¿øºô¶ó101µ¿ | 3 | 70.69 | 500 | 45 | 1997 | | 2025.06.04 | ¿ù¼¼ | ±×¸°ÇÏÀÓ | 1 | 20.9 | 500 | 44 | 2019 | | 2025.06.04 | ¿ù¼¼ | ÇѸ¶·çÁÖÅÃ(2Â÷) | 4 | 46.9 | 1,000 | 50 | 2016 | | 2025.06.02 | Àü¼¼ | Çà¿î±×¸°ºô(103µ¿) | 1 | 50.645 | 9,300 | 0 | 2015 | | 2025.05.24 | ¿ù¼¼ | ÇѸ¶·çÁÖÅà | 3 | 43.78 | 2,000 | 60 | 2016 | | 2025.05.23 | Àü¼¼ | ¿µÀº¸Ç¼Ç | 3 | 73.04 | 20,000 | 0 | 2017 | | 2025.05.22 | ¸Å¸Å | »ï¼º±×¸°ºô(101µ¿) | 2 | 53.8 | 11,500 | | 2015 | | 2025.05.22 | ¸Å¸Å | »ï¼º±×¸°ºô(101µ¿) | 2 | 53.8 | 11,500 | | 2015 | | 2025.05.22 | ¸Å¸Å | ºÀÀϱ׸°ºô¶ó | 3 | 76.02 | 10,200 | | 1995 | | 2025.05.21 | ¿ù¼¼ | ¾Æ³Ê½ººôAµ¿ | 3 | 61.56 | 2,000 | 50 | 2016 | | 2025.05.17 | ¸Å¸Å | ´ë¿øºô¶ó101µ¿ | 2 | 70.69 | 6,700 | | 1997 | | 2025.05.16 | ¿ù¼¼ | ±×¸°ÇÏÀÓ | 1 | 24.07 | 500 | 42 | 2019 | | 2025.05.13 | ¸Å¸Å | ÀδõÈú½ººô | 4 | 37.41 | 19,000 | | 2020 | | 2025.05.12 | ¸Å¸Å | û¿ì¸®Ä¡ºô(105µ¿) | 1 | 53.15 | 12,800 | | 2015 | | 2025.05.07 | ¸Å¸Å | °¡¶÷¿¡½ººô(Aµ¿) | 2 | 57.69 | 13,000 | | 2014 | | 2025.05.06 | Àü¼¼ | ½ãŸ¿î101µ¿ | 2 | 78.38 | 8,000 | 0 | 1997 | | 2025.05.05 | ¸Å¸Å | ½Å¿øÇØ´ãä(103µ¿) | 4 | 69.005 | 22,500 | | 2018 | | 2025.05.03 | ¿ù¼¼ | ¸ðÀÎ¾ÆÆ®ºô | 4 | 56.72 | 1,000 | 65 | 2009 | | 2025.04.30 | Àü¼¼ | ¿¤Áö | 5 | 80.55 | 20,000 | 0 | 1997 | | 2025.04.29 | ¿ù¼¼ | °ïÁö¾ÏÅ´½ººô¸®Áö | 18 | 35.63 | 1,000 | 50 | 2001 | | 2025.04.28 | ¸Å¸Å | ÀδõÈú½ººô | 2 | 74.99 | 30,000 | | 2020 | | 2025.04.25 | ¸Å¸Å | ¿¹Ì±×¸°ºô¶ó°¡µ¿ | 3 | 55.02 | 5,950 | | 1995 | | 2025.04.24 | Àü¼¼ | ¿¤Áö | 17 | 58.86 | 15,750 | 0 | 1997 | | 2025.04.24 | ¿ù¼¼ | ½Ö¿ë1 | 8 | 59.89 | 2,000 | 80 | 1998 | | 2025.04.24 | ¿ù¼¼ | °ïÁö¾ÏÅ´½ººô¸®Áö | 18 | 50.55 | 1,000 | 60 | 2001 | | 2025.04.23 | ¸Å¸Å | ±Ý°¸Ç¼Ç | 3 | 75.9 | 14,500 | | 1997 | | 2025.04.23 | Àü¼¼ | »ïÁÖ³ëºí¸®Á¦ | 15 | 59.8407 | 18,000 | 0 | 2005 | | 2025.04.22 | Àü¼¼ | °ïÁö¾ÏÅ´½ººô¸®Áö | 20 | 50.55 | 15,500 | 0 | 2001 | | 2025.04.22 | Àü¼¼ | °ïÁö¾ÏÅ´½ººô¸®Áö | 20 | 50.55 | 15,500 | 0 | 2001 | | 2025.04.21 | ¿ù¼¼ | ¿¤Áö | 12 | 80.55 | 9,000 | 60 | 1997 | | 2025.04.19 | Àü¼¼ | °ïÁö¾ÏÅ´½ººô¸®Áö | 1 | 50.55 | 14,000 | 0 | 2001 | | 2025.04.18 | Àü¼¼ | °ïÁö¾ÏÅ´½ººô¸®Áö | 18 | 35.63 | 12,500 | 0 | 2001 | | 2025.04.18 | Àü¼¼ | ÇöÁø¿¡¹öºô | 18 | 84.966 | 22,000 | 0 | 2003 | | 2025.04.17 | Àü¼¼ | °ïÁö¾ÏÅ´½ººô¸®Áö | 15 | 50.55 | 16,000 | 0 | 2001 | | 2025.04.16 | ¸Å¸Å | û¿ì¸®Ä¡ºô(105µ¿) | 1 | 53.15 | 12,800 | | 2015 | | 2025.04.15 | ¿ù¼¼ | »ïÁÖ³ëºí¸®Á¦ | 13 | 59.8407 | 1,000 | 75 | 2005 | | 2025.04.15 | ¿ù¼¼ | °ïÁö¾ÏÅ´½ººô¸®Áö | 18 | 35.63 | 1,000 | 55 | 2001 | | 2025.04.13 | ¿ù¼¼ | °ïÁö¾ÏÅ´½ººô¸®Áö | 12 | 35.63 | 1,000 | 50 | 2001 | | 2025.04.12 | Àü¼¼ | »ïÁÖ³ëºí¸®Á¦ | 11 | 59.8407 | 16,000 | 0 | 2005 | | 2025.04.12 | Àü¼¼ | °ïÁö¾ÏÅ´½ººô¸®Áö | 3 | 50.55 | 6,000 | 0 | 2001 | | 2025.04.11 | ¸Å¸Å | Çà¿îºô¶ó105µ¿ | 4 | 69.77 | 35,800 | | 2022 | | 2025.04.09 | Àü¼¼ | ½Ö¿ë1 | 17 | 59.89 | 18,000 | 0 | 1998 | | 2025.04.08 | ¿ù¼¼ | °ïÁö¾ÏÅ´½ººô¸®Áö | 4 | 35.63 | 1,000 | 55 | 2001 | | 2025.04.08 | ¿ù¼¼ | °ïÁö¾ÏÅ´½ººô¸®Áö | 4 | 35.63 | 1,000 | 55 | 2001 | | 2025.04.05 | Àü¼¼ | »ïÁÖ³ëºí¸®Á¦ | 13 | 59.8407 | 22,000 | 0 | 2005 | | 2025.04.04 | Àü¼¼ | °ïÁö¾ÏÅ´½ººô¸®Áö | 9 | 50.55 | 13,500 | 0 | 2001 | | 2025.04.04 | ¿ù¼¼ | °ïÁö¾ÏÅ´½ººô¸®Áö | 19 | 35.63 | 1,000 | 55 | 2001 | | 2025.04.04 | ¿ù¼¼ | °ïÁö¾ÏÅ´½ººô¸®Áö | 14 | 35.63 | 1,000 | 55 | 2001 | | 2025.04.01 | Àü¼¼ | ½Ö¿ë1 | 2 | 84.97 | 19,000 | 0 | 1998 | | 2025.04.01 | ¿ù¼¼ | °ïÁö¾ÏÅ´½ººô¸®Áö | 17 | 35.63 | 1,000 | 60 | 2001 | | 2025.02.27 | Àü¼¼ | ´ÙºóÈú½ººô | 3 | 55.32 | 14,000 | 0 | 2015 | | 2025.02.26 | ¸Å¸Å | ¿¡ÄÚÇÏÀÓ(Bµ¿) | 1 | 62.805 | 18,800 | | 2014 | | 2025.02.23 | ¸Å¸Å | ÀÌÆÓ¸®½º(ºñµ¿) | 3 | 66.42 | 22,200 | | 2018 | | 2025.02.19 | ¿ù¼¼ | ´ÙºóÈú½ººô3Â÷(1µ¿) | 2 | 53.065 | 3,000 | 70 | 2017 | | 2025.02.18 | ¿ù¼¼ | ¿µ(YOUNG)ºô¸®Áö | 4 | 47.735 | 8,000 | 36 | 2007 | | 2025.02.18 | ¿ù¼¼ | ¿µ(YOUNG)ºô¸®Áö | 4 | 47.735 | 8,000 | 36 | 2007 | | 2025.02.18 | ¿ù¼¼ | ¿µ(YOUNG)ºô¸®Áö | 4 | 47.735 | 5,000 | 36 | 2007 | | 2025.02.17 | ¸Å¸Å | °Ç¿µºô¸®Áö | 2 | 92.12 | 13,000 | | 2000 | | 2025.02.15 | ¸Å¸Å | ¶óÆÓ¸®½º(Cµ¿) | 4 | 59.09 | 26,000 | | 2018 | | 2025.02.12 | Àü¼¼ | Áö¾Ïºô¶ó | 3 | 63.57 | 8,000 | 0 | 1993 | | 2025.02.12 | ¸Å¸Å | ºÎ±æºô¶óBµ¿ | 2 | 75.32 | 10,800 | | 1994 | | 2025.02.07 | ¸Å¸Å | ºê·ÐÁîºô105µ¿ | 3 | 60.515 | 17,000 | | 2016 | | 2025.02.05 | ¿ù¼¼ | ½º¸¶Æ®¾ØÅ¸¿ö | 8 | 83.1954 | 2,000 | 100 | 2021 | | 2025.01.18 | ¸Å¸Å | »ïÀϺô¶ó³ªµ¿ | 1 | 66.04 | 9,000 | | 1992 | | 2025.01.17 | ¿ù¼¼ | »ï¼º±×¸°ºô¶ó(337-39) | 4 | 60.125 | 1,000 | 61 | 1994 | | 2025.01.16 | ¿ù¼¼ | ¾îÀº°¡ | 4 | 66.93 | 1,000 | 55 | 2017 | | 2025.01.13 | ¸Å¸Å | Á¤¸²ÁÖÅà | 1 | 25.44 | 3,800 | | 1998 | | 2025.01.11 | Àü¼¼ | ºí·ç¹ÖÈúÁî(Bµ¿) | 2 | 56.59 | 15,000 | 0 | 2019 | | 2025.01.03 | ¸Å¸Å | ÀδõÈú½ººô | 3 | 74.99 | 35,000 | | 2020 |
|
|
|
 |
ÀÓÂ÷³»¿ª |
[¹è´ç¿ä±¸Á¾±âÀÏ : 2025/05/07] |
|
|
| ÀÓÂ÷ÀÎ |
Á¡À¯°ü°è |
ÀüÀÔÀÏÀÚ |
È®Á¤ÀÏÀÚ |
¹è´ç¿ä±¸ÀÏ |
º¸Áõ±Ý/Â÷ÀÓ |
´ëÇ׿ä°Ç |
ºñ°í |
| ¸Å°¢±âÀÏ 7ÀÏÀü¿¡ °ø°íµÇ¿À´Ï È®ÀÎÇϽñ⠹ٶø´Ï´Ù. |
|
|
|
 |
Áö¿ªºÐ¼® |
|
|
|
|
| ÁöÇÏö |
|
Çб³ |
|
| °ü°ø¼ |
|
| ¹ý¿ø |
¼ö¿øÁö¹æ¹ý¿ø ¼º³²Áö¿ø (131-43)°æ±âµµ ¼º³²½Ã ¼öÁ¤±¸ »ê¼º´ë·Î 451 (´Ü´ëµ¿) ´ëÇ¥ : 031)737-1558, ¾ß°£ : 031)737-1120 ¼º³²½Ã, ±¤ÁÖ½Ã, Çϳ²½Ã |
| µî±â¼Ò |
¼ö¿øÁö¹æ¹ý¿ø ¼º³²Áö¿ø ±¤ÁÖµî±â¼Ò (´ëÇ¥:1544-0773, ÆÑ½º:(031)765-2388, °æ±âµµ ±¤Áֽà ÇàÁ¤Å¸¿î·Î 49-15 (¼ÛÁ¤µ¿ 346-4)) |
| ¼¼¹«¼ |
°æ±â±¤ÁÖ¼¼¹«¼ (´ëÇ¥:031-880-92, ÆÑ½º:031-769-0417, °æ±âµµ ±¤Áֽà ¹®È·Î 127) |
|
|
|
 |
¹ý¿ø ¹°°ÇÀÚ·á ¿ä¾à |
|
|
|
|
| ¼Ò¸êµÇÁö ¾Ê´Â µî±âºÎ±Ç¸® |
|
| ¼³Á¤µÈ °ÍÀ¸·Î º¸´Â Áö»ó±Ç |
|
| ¹ý¿øÀÚ·á Æ¯ÀÌ»çÇ× |
|
| ¿©ÀÇÁÖ°æ¸Å Á¶¾ð ÇѸ¶µð |
ÀÌ ºÎµ¿»êÀÇ ÀÔÂû¹ý¿øÀº ¼ö¿øÁö¹æ¹ý¿ø ¼º³²Áö¿øÀÔ´Ï´Ù.
ÀÔÂûÀÏÀº 2026-03-23ÀÔ´Ï´Ù.
ÀÔÂû½Ã°£Àº ~11:10ÀÔ´Ï´Ù. ÀÌ ¹ý¿ø¿¡´Â ¿ì¸®ÀºÇàÀÌ ÀÔÁ¡Çϰí ÀÖ½À´Ï´Ù.
|
|
|
| Åë°è±â°£ |
³«Âû¹°°Ç¼ö |
Æò±Õ°¨Á¤°¡ |
Æò±Õ³«Âû°¡ |
³«Âû°¡À² |
À¯ÂûȽ¼ö |
|
|
|
|
|
|
 |
|