|
|
| ¼ÒÀçÁö |
¼¿ïƯº°½Ã µ¿ÀÛ±¸ »óµµµ¿ 301-101 ½Ã³ªºô 5Ãþ502È£
|
|
| »ç°Ç¹øÈ£ |
2025 Ÿ°æ 102532 |
¹°°Ç¹øÈ£ |
1
|
¹°°Ç¿ëµµ |
´Ù¼¼´ë,ºô¶ó |
| °¨Á¤Æò°¡¾× |
373,000,000¿ø |
°æ¸Å´ë»ó |
ÅäÁö ¹× °Ç¹°Àϰý ¸Å°¢ |
ÁøÇà»óÅ |
½Å°Ç |
| ÃÖÀúÀÔÂû°¡ |
(100%) 373,000,000¿ø
|
°Ç¹°¸éÀû |
34.57§³(10.46Æò) |
ÀÔÂû±âÀÏ |
2026.04.01(¼ö) 10:00
(ÀÔÂû 14ÀÏÀü)
|
| ÀÔÂûº¸Áõ±Ý |
(10%) 37,300,000¿ø |
ÅäÁö¸éÀû |
26.02§³(7.87Æò)
|
À¯ÂûȽ¼ö |
0ȸ |
| ÀÔÂû¹ý¿ø |
¼¿ïÁß¾ÓÁö¹æ¹ý¿ø |
°æ¸Å¹æ¹ý |
|
¹°°ÇÁ¶È¸¼ö |
¿À´Ã: 4ȸ [´©Àû: 5ȸ]
|
| ¸»¼Ò±âÁØ | |
|
|
|
|
|
|
|
|
|
|
°æ¸Å´ë»ó ¸ñ·Ï
|
|
| ±¸ºÐ |
¸ñ·Ï |
ÁÖ¼Ò |
±¸Á¶/¿ëµµ/´ëÁö±Ç |
ºñ°í |
´ëÁö±Ç
|
1 |
»óµµµ¿ 301-101 |
286ºÐÀÇ 26.0164 |
26.0164§³ (7.87Æò)
|
°Ç¹°
|
1 |
»óµµµ¿ 301-101 |
5Ãþ502È£ ö±ÙÄÜÅ©¸®Æ®Á¶ |
34.57§³ (10.46Æò)
|
|
|
|
2026-04-01
ÁøÇà
|
(100%)
373,000,000¿ø
|
|
|
|
|
|
°¨Á¤Æò°¡¼ ¿ä¾à |
|
[À§Ä¡/ÁÖÀ§È¯°æ]
º»°ÇÀº ¼¿ïƯº°½Ã °ü¾Ç±¸ ºÀõµ¿ ¼ÒÀç ""´ç°îÁßÇб³"" ºÏÃø Àαٿ¡ À§Ä¡Çϸç, ÁÖÀ§·Î´Â ´Ù¼¼´ëÁÖÅÃ, ´Üµ¶ÁÖÅÃ, ±Ù¸°»ýȰ½Ã¼³ µîÀÌ ¼ÒÀçÇϸç Á¦¹Ý ÁÖÀ§È¯°æÀº º¸ÅëÀÓ.
[±³Åë»óȲ]
º»°Ç±îÁö Â÷·® ÁøÀÔÀÌ °¡´ÉÇϸç, Àαٿ¡ ³ë¼±¹ö½ºÁ¤·ùÀåÀÌ ¼ÒÀçÇÏ´Â µî Á¦¹Ý ±³Åë»óȲÀº º¸ÅëÀÓ.
[°Ç¹°±¸Á¶]
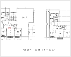
ö±ÙÄÜÅ©¸®Æ®±¸Á¶ (ö±Ù)ÄÜÅ©¸®Æ®ÁöºØ Áö»ó5Ãþ °Ç³» Á¦5Ãþ Á¦502È£·Î¼
¿Üº®: ¼®ÀçºÙÀÓ ¸¶°¨ µî,
âȣ: »õ½Ãâȣ ¸¶°¨ µîÀÓ.
[ÀÌ¿ë»óÅÂ]
º»°ÇÀº °øºÎ»ó ´Ù¼¼´ëÁÖÅÃÀ¸·Î ÀÌ¿ë ÁßÀÓ.
[¼³ºñ³»¿ª]
À§»ý ¹× ±Þ¹è¼ö¼³ºñ, ¿¤¸®º£ÀÌÅͼ³ºñ, ³¹æ¼³ºñ µîÀÌ µÇ¾îÀÖÀ½.
[ÅäÁöÇü»ó/ÀÌ¿ë»óÅÂ]
º»°ÇÀº ¿Ï°æ»çÁöÀÇ »ç´Ù¸®ÇüÀÇ ÅäÁö·Î ´Ù¼¼´ëÁÖÅà °ÇºÎÁö·Î ÀÌ¿ë ÁßÀÓ.
7)ÀÎÁ¢ µµ·Î»óŵî
º»°Ç ºÏµ¿ÃøÀ¸·Î ³ëÆø ¾à 4¹ÌÅÍÀÇ µµ·Î¿Í Á¢ÇÔ.
[ÅäÁöÀÌ¿ë°èȹ]
Á¦2Á¾ÀϹÝÁÖ°ÅÁö¿ª(7Ãþ) °¡Ãà»çÀ°Á¦Çѱ¸¿ª£¼°¡ÃàºÐ´¢ÀÇ °ü¸® ¹× À̿뿡 °üÇÑ ¹ý·ü£¾, ±³À°È¯°æº¸È£±¸¿ª(2020-11-27)£¼±³À°È¯°æ º¸È£¿¡ °üÇÑ ¹ý·ü£¾, ±³À°È¯°æº¸È£±¸¿ª(2020-11-27)(Çб³È¯°æÀ§»ýÁ¤È±¸¿ª¿¡ ´ëÇÑ ÃÖÁ¾È®ÀÎÀº °üÇÒ±³À°Ã»¿¡ ¹Ýµå½Ã È®ÀÎÀÌ ÇÊ¿äÇÑ »çÇ×ÀÓ)£¼±³À°È¯°æ º¸È£¿¡ °üÇÑ ¹ý·ü£¾, »ó´ëº¸È£±¸¿ª(2020-11-27)£¼±³À°È¯°æ º¸È£¿¡ °üÇÑ ¹ý·ü£¾, ´ë°ø¹æ¾îÇùÁ¶±¸¿ª(À§Å¹°íµµ:77-257m)£¼±º»ç±âÁö ¹× ±º»ç½Ã¼³ º¸È£¹ý£¾, °ú¹Ð¾ïÁ¦±Ç¿ª£¼¼öµµ±ÇÁ¤ºñ°èȹ¹ý£¾
[°øºÎ¿ÍÀÇ Â÷ÀÌ]
-
[Âü°í»çÇ×]
ÀÓ´ë¹Ì»óÀÓ. |
|
|
|
|
|
|
|
¸éÀû(§³), ±Ý¾×(¸¸¿ø)
| °è¾àÀÏ | ±âÁØ | °Ç¹°¸íĪ | Ãþ | ¿¬¸éÀû | ´ëÁö¸éÀû | °Å·¡±Ý¾× | °ÇÃà³âµµ | | °Å·¡³»¿ªÀÌ ¾ø½À´Ï´Ù. |
| °è¾àÀÏ | ±âÁØ | °Ç¹°¸íĪ | Ãþ | ¿¬¸éÀû | º¸Áõ±Ý | ¿ù¼¼ | °ÇÃà³âµµ | | 2026.03.12 | Àü¼¼ | ¹Ì¼Ò°¡Aµ¿(244-166) | 5 | 29.91 | 24,000 | 0 | 2017 | | 2026.03.12 | ¿ù¼¼ | (469-4) | 5 | 33.43 | 14,700 | 25 | 2003 | | 2026.03.12 | Àü¼¼ | µ¿¿øº£½ºÆ®Å¸¿î | 4 | 31.33 | 27,550 | 0 | 2015 | | 2026.03.12 | Àü¼¼ | ¶ó¿ÂÆ÷·¹ | 3 | 48.95 | 43,000 | 0 | 2023 | | 2026.03.12 | ¿ù¼¼ | (29-123) | 2 | 15.12 | 1,000 | 62 | 2012 | | 2026.03.11 | ¿ù¼¼ | ´Ù³ª³×½ºÆ®ºô(7-91) | 2 | 40.92 | 22,000 | 20 | 2008 | | 2026.03.11 | Àü¼¼ | ´ëÈï¹Ì¼Ò°¡29Â÷(Aµ¿) | 5 | 34.23 | 24,690 | 0 | 2020 | | 2026.03.11 | Àü¼¼ | ´Ù¼Ø±×¶ûºô | 2 | 41.05 | 29,000 | 0 | 2019 | | 2026.03.11 | Àü¼¼ | ´õÆÛ½ºÆ®Å¸¿î | 6 | 37.42 | 29,400 | 0 | 2018 | | 2026.03.10 | Àü¼¼ | ³«¿øºô¶óBµ¿(256-223) | -1 | 80.58 | 17,500 | 0 | 1996 | | 2026.03.10 | ¸Å¸Å | »óÁöÁÖÅà | 4 | 66.47 | 33,000 | | 2009 | | 2026.03.10 | ¿ù¼¼ | ¿ì¼º±×¸°ºôB | 3 | 75.99 | 20,000 | 70 | 2003 | | 2026.03.10 | ¸Å¸Å | ºÎ¼º·¡¹Ì¾È | 2 | 42.36 | 32,500 | | 2003 | | 2026.03.09 | ¿ù¼¼ | º¦¿¤ | 2 | 69.68 | 24,800 | 30 | 1997 | | 2026.03.09 | Àü¼¼ | ÇÏÀÌ¾æÆ®ºô | 4 | 57.24 | 30,000 | 0 | 2002 | | 2026.03.09 | Àü¼¼ | ´Ù¿ø¾¾¾Ø¾ÆÀÌ | 4 | 29.175 | 27,700 | 0 | 2018 | | 2026.03.09 | ¿ù¼¼ | ¹Ì¼ºÇص帲(214-411) | 1 | 43.37 | 20,000 | 40 | 2014 | | 2026.03.09 | Àü¼¼ | µÎ¼ººô¶ó | 4 | 53.25 | 12,000 | 0 | 1996 | | 2026.03.09 | Àü¼¼ | ´Ù¼Ø±×¶ûºô | 2 | 41.05 | 29,000 | 0 | 2019 | | 2026.03.07 | Àü¼¼ | µå¸²Ä³½½(33-6) | 2 | 59.25 | 38,000 | 0 | 2016 | | 2026.03.07 | ¿ù¼¼ | ¼þ½ÇÈÀÌÆ®ºô | 3 | 51.42 | 26,900 | 30 | 2002 | | 2026.03.07 | Àü¼¼ | (214-251) | 2 | 39.72 | 22,000 | 0 | 2012 | | 2026.03.07 | ¿ù¼¼ | ±Ý»êºô | 3 | 29.8 | 20,400 | 20 | 2016 | | 2026.03.07 | ¸Å¸Å | ½Åµ¿¾Æºô¶ó | -1 | 55.34 | 56,000 | | 1996 | | 2026.03.06 | ¸Å¸Å | ³ëºí½ÃƼ(188-23) | 2 | 40.09 | 79,000 | | 2017 | | 2026.03.06 | ¿ù¼¼ | À§³Ê½ºÈú | 3 | 12.63 | 2,000 | 45 | 2011 | | 2026.03.06 | ¿ù¼¼ | ´õÆ÷·¹½ºÆ®6Â÷ | 3 | 55.29 | 32,600 | 30 | 2019 | | 2026.03.06 | ¿ù¼¼ | ¿¹±×¸° | 5 | 28.41 | 17,500 | 20 | 2017 | | 2026.03.05 | ¸Å¸Å | ¹Ý¼®(279-110) | 3 | 68.76 | 89,000 | | 1997 | | 2026.03.05 | ¿ù¼¼ | ¸®Ä¡ºô(299-168) | 3 | 24.3 | 10,000 | 27 | 2012 | | 2026.03.04 | ¸Å¸Å | ·ç³ªÆ÷·¹30 | 4 | 65.03 | 65,000 | | 2022 | | 2026.03.04 | ¸Å¸Å | Å·½º¾Öºñ´ºBµ¿ | 5 | 45.08 | 25,700 | | 2016 | | 2026.03.04 | ¸Å¸Å | ³ª¶ó±×¸°ºô | 3 | 54.56 | 34,000 | | 2002 | | 2026.03.04 | ¸Å¸Å | ¼°ÆÄ¹Ì¿¡ | 3 | 67.3 | 44,000 | | 2009 | | 2026.03.04 | ¿ù¼¼ | ¹ÎÀÌÇÏÀÌÃ÷ºô | 4 | 93.83 | 10,000 | 95 | 2003 | | 2026.03.04 | Àü¼¼ | ¸ñȺô | 3 | 59.56 | 12,000 | 0 | 2017 | | 2026.03.04 | Àü¼¼ | ´ëÈï¹Ì¼Ò°¡19Â÷ | 3 | 37.65 | 25,500 | 0 | 2016 | | 2026.03.04 | Àü¼¼ | ¼¾ÅÍÆ÷ÀÎÆ®»óµµ | 1 | 19.98 | 14,000 | 0 | 2020 | | 2026.03.04 | Àü¼¼ | Çö´ëÇÏÀÌÃ÷103µ¿ | 2 | 79.68 | 24,975 | 0 | 1991 | | 2026.03.04 | ¿ù¼¼ | Á¦ÀÌ¿ø | 3 | 18.26 | 5,000 | 37 | 2012 | | 2026.03.03 | Àü¼¼ | ޳ª°ñµçºô¶ó | 1 | 107.7 | 38,000 | 0 | 1993 | | 2026.03.03 | Àü¼¼ | Ç÷ÎäºôAµ¿ | 3 | 37.67 | 27,000 | 0 | 2016 | | 2026.03.03 | ¸Å¸Å | »óµµ´õÇÏÀÓ | 4 | 50.72 | 59,500 | | 2022 | | 2026.03.02 | ¸Å¸Å | »óµµ¸®Ä¡ºô | 3 | 74.23 | 91,000 | | 2005 | | 2026.03.02 | ¿ù¼¼ | ¼¿ï¸Ç¼Ç | 2 | 52.41 | 19,500 | 14 | 2001 | | 2026.03.02 | ¿ù¼¼ | Ǫ¿ò | 4 | 23.93 | 10,000 | 17 | 2014 | | 2026.02.28 | Àü¼¼ | ¹Ì¼Ò°¡25Â÷Bµ¿ | 2 | 48.91 | 30,000 | 0 | 2017 | | 2026.02.28 | ¿ù¼¼ | 154-7 | 3 | 15.54 | 1,500 | 48 | 2014 | | 2026.02.27 | Àü¼¼ | È¿¼ºÁÖÅÃ(294-42) | 4 | 49.18 | 30,000 | 0 | 2012 | | 2026.02.27 | Àü¼¼ | °³²ºô(210-292) | 2 | 40.59 | 25,900 | 0 | 2017 | | 2026.02.26 | ¿ù¼¼ | ºêÀ̾÷ºôµù | 4 | 14.03 | 1,000 | 67 | 2017 | | 2026.02.26 | Àü¼¼ | Áß¾Ó(259-12) | 3 | 49.05 | 16,275 | 0 | 1974 | | 2026.02.26 | ¿ù¼¼ | ÈÞ¸Õºô | 4 | 38.3 | 4,000 | 110 | 2018 | | 2026.02.26 | Àü¼¼ | »óµµÇÏÀÌÃ÷(´Ùµ¿) | 2 | 38.14 | 13,000 | 0 | 1988 | | 2026.02.26 | Àü¼¼ | Áß¾Ó(259-12) | 3 | 49.05 | 16,275 | 0 | 1974 | | 2026.02.26 | Àü¼¼ | 491-20 | 2 | 18.44 | 15,372 | 0 | 2013 | | 2026.02.25 | Àü¼¼ | µµ´ã¸¶À» | 5 | 32.31 | 24,066 | 0 | 2022 | | 2026.02.25 | ¿ù¼¼ | ¿ë¼±¾ÆÆ®ºô | 4 | 14.19 | 3,000 | 55 | 2013 | | 2026.02.25 | Àü¼¼ | Çö´ëÇÏÀÌÃ÷ºô¶ó(101µ¿) | -1 | 24.27 | 6,000 | 0 | 1990 | | 2026.02.25 | Àü¼¼ | ¿ìÁÖ | 5 | 13.73 | 6,500 | 0 | 2012 | | 2026.02.25 | ¿ù¼¼ | û¿îÆÄÅ©ºô | 2 | 66.05 | 4,000 | 120 | 2002 | | 2026.02.24 | ¿ù¼¼ | â¼± | 2 | 28.78 | 2,000 | 82 | 2013 | | 2026.02.24 | ¿ù¼¼ | ÇÑ¿ïºôµù | 4 | 12.07 | 1,000 | 53 | 2012 | | 2026.02.24 | ¿ù¼¼ | »óµµ±×¸°Èú1Â÷ | 1 | 70.98 | 5,000 | 120 | 2002 | | 2026.02.24 | ¿ù¼¼ | ¹Ì·¡ºô | 4 | 21.56 | 1,000 | 69 | 2018 | | 2026.02.23 | Àü¼¼ | ½Ã³ªºô | 5 | 34.05 | 24,000 | 0 | 2021 | | 2026.02.23 | ¿ù¼¼ | ´ë¼º¸Ç¼Ç | 5 | 71.15 | 28,000 | 16 | 2002 | | 2026.02.23 | ¿ù¼¼ | ÇÁ¶óÀÓºô | 1 | 63.7 | 20,000 | 60 | 2002 | | 2026.02.23 | ¿ù¼¼ | ÇöÁøºô¶ó(221-1) | 3 | 68.94 | 10,000 | 70 | 1984 | | 2026.02.23 | Àü¼¼ | »óµµ±×¸°ºô | 5 | 60.64 | 20,000 | 0 | 2002 | | 2026.02.23 | Àü¼¼ | (493-0) | 2 | 55.35 | 24,000 | 0 | 1992 | | 2026.02.23 | ¿ù¼¼ | ´ë¼º¸Ç¼Ç | 4 | 72.95 | 25,000 | 11 | 2002 | | 2026.02.23 | ¸Å¸Å | ¼§±×¸±¶ó | 4 | 29.94 | 32,700 | | 2016 | | 2026.02.22 | ¿ù¼¼ | ÀÌÆíÇѺô | 2 | 13.23 | 1,000 | 44 | 2013 | | 2026.02.22 | Àü¼¼ | â¼± | 2 | 29.5 | 16,500 | 0 | 2013 | | 2026.02.22 | ¿ù¼¼ | µî¾ÈÁ¤(335-149) | 2 | 12.07 | 1,000 | 50 | 2011 | | 2026.02.22 | ¸Å¸Å | ÀϵîÇϿ콺(7-21¹øÁö) | 3 | 53.12 | 50,700 | | 2016 | | 2026.02.21 | ¿ù¼¼ | (495-2) | 3 | 12.87 | 500 | 45 | 1995 | | 2026.02.21 | ¿ù¼¼ | °ñµçºô | 4 | 25.22 | 1,000 | 80 | 2016 | | 2026.02.21 | ¿ù¼¼ | ¹Ì¼ºÇص帲(256-228) | 2 | 44.49 | 25,500 | 20 | 2016 | | 2026.02.21 | Àü¼¼ | ½¦¾îÇϿ콺 | 1 | 13.69 | 8,800 | 0 | 2012 | | 2026.02.21 | ¿ù¼¼ | ¸ñȺô | 3 | 59.56 | 3,000 | 50 | 2017 | | 2026.02.21 | ¿ù¼¼ | ¹Ì¼ºÇص帲 | 3 | 27.48 | 5,000 | 70 | 2018 | | 2026.02.21 | ¿ù¼¼ | ÇÞ´Ôºô¶ó | 1 | 55.56 | 19,800 | 10 | 1991 | | 2026.02.21 | ¿ù¼¼ | ÇѰ´º½ºÅ¸(299-21) | 2 | 43.66 | 5,000 | 100 | 2015 | | 2026.02.20 | ¿ù¼¼ | ¿ì¼º±×¸°ºô(Aµ¿) | 2 | 80.48 | 24,000 | 50 | 2003 | | 2026.02.20 | Àü¼¼ | ´ëÀϺô¶ó(210-252¿Ü) | 2 | 39.26 | 22,000 | 0 | 2015 | | 2026.02.20 | Àü¼¼ | ´ë±¤¾ÆÆ®ºô2Â÷ | 2 | 70.32 | 23,000 | 0 | 2003 | | 2026.02.20 | ¿ù¼¼ | ´õŬ·¡½º | 2 | 47.16 | 1,000 | 105 | 2016 | | 2026.02.20 | Àü¼¼ | ¼Á¤Ä³½½ | 5 | 22.27 | 14,000 | 0 | 2016 | | 2026.02.20 | ¿ù¼¼ | ÇÑ¿ïºôµù | 4 | 12.29 | 1,000 | 57 | 2012 | | 2026.02.20 | Àü¼¼ | (211-184) | 3 | 41.29 | 18,500 | 0 | 2009 | | 2026.02.20 | ¿ù¼¼ | À̳ë½ÃƼºô | 3 | 28.88 | 1,034 | 26 | 2021 | | 2026.02.20 | ¸Å¸Å | µ¿¾ç½º¸¶Æ®ºô | 4 | 14.383 | 12,000 | | 2012 | | 2026.02.20 | ¸Å¸Å | Á¤¼ºÈúž | 3 | 58.65 | 35,000 | | 1994 | | 2026.02.20 | Àü¼¼ | Á¤¿ø½ÃƼºô | 3 | 57.16 | 24,000 | 0 | 1997 | | 2026.02.19 | ¿ù¼¼ | ¸®Ä¡ºô(299-168) | 2 | 20.32 | 9,000 | 33 | 2012 | | 2026.02.19 | Àü¼¼ | ¸íÁøÁÖÅà | 1 | 56.89 | 20,000 | 0 | 1996 | | 2026.02.19 | ¸Å¸Å | ±Ý¼º6Â÷°ñµçºô¸®Áö | 1 | 53.58 | 74,000 | | 1994 | | 2026.02.19 | ¸Å¸Å | ¹Ì¼Ò°¡Bµ¿(244-254) | 2 | 29.94 | 74,000 | | 2018 | | 2026.02.19 | ¿ù¼¼ | ¼Á¤Èúž | 3 | 26 | 8,000 | 22 | 2017 | | 2026.02.18 | ¿ù¼¼ | ¿¤·»ÇϿ콺 | 2 | 20.51 | 2,000 | 53 | 2015 | | 2026.02.15 | ¿ù¼¼ | µ§µé¶óÀ̾ð | 2 | 25.23 | 1,000 | 55 | 2015 | | 2026.02.15 | ¿ù¼¼ | µ§µé¶óÀ̾ð | 2 | 25.23 | 1,000 | 55 | 2015 | | 2026.02.14 | ¸Å¸Å | Ãæ½Å | 3 | 51.53 | 23,500 | | 1991 | | 2026.02.14 | Àü¼¼ | ±Ý°±×¸°ºô(202-235) | 5 | 28.64 | 20,000 | 0 | 2014 | | 2026.02.14 | ¿ù¼¼ | 211-440 | 2 | 30.81 | 20,000 | 20 | 2016 | | 2026.02.14 | Àü¼¼ | ´õÆ÷·¹½ºÆ®6Â÷ | 2 | 45.1 | 28,300 | 0 | 2019 | | 2026.02.14 | ¿ù¼¼ | ¿ìâºô¶ó | -1 | 46.81 | 12,000 | 20 | 1991 | | 2026.02.14 | ¿ù¼¼ | ºí·çºô(492-7) | 3 | 20.81 | 5,000 | 45 | 2013 | | 2026.02.14 | ¿ù¼¼ | ¼ººóºô¶ó | 1 | 61.45 | 24,000 | 10 | 2002 | | 2026.02.14 | ¿ù¼¼ | (22-108) | 4 | 16.23 | 1,000 | 65 | 2019 | | 2026.02.13 | ¿ù¼¼ | »ó·Ï¿ø·ë | 3 | 24.25 | 1,000 | 58 | 2001 | | 2026.02.13 | Àü¼¼ | ¿ø¾Óºô¶ó | 1 | 44.78 | 13,000 | 0 | 1991 | | 2026.02.13 | ¿ù¼¼ | Á¦ÀϺô¶ó | 3 | 26.84 | 2,000 | 73 | 2002 | | 2026.02.13 | Àü¼¼ | ¿À¼ººô¶óÆ® | 3 | 45.84 | 17,850 | 0 | 1996 | | 2026.02.13 | Àü¼¼ | Çö´ëºô¶ó(299-24) | 4 | 69.48 | 29,000 | 0 | 1996 | | 2026.02.13 | Àü¼¼ | ¸ð°Ç½¦¸£ºô | 5 | 29.34 | 17,700 | 0 | 2012 | | 2026.02.13 | ¸Å¸Å | Á¤°æ¿¬¸³(244-125) | 3 | 55.47 | 60,000 | | 1982 | | 2026.02.13 | ¸Å¸Å | »ïÁ¤ÇÏÀÌÃ÷ºô | 1 | 78.898 | 47,000 | | 2001 | | 2026.02.12 | ¿ù¼¼ | ±×¸°Ä³½½(183-31) | 4 | 14.99 | 2,000 | 62 | 2012 | | 2026.02.12 | Àü¼¼ | (335-9) | 1 | 48.88 | 23,000 | 0 | 2003 | | 2026.02.12 | ¿ù¼¼ | ºêÀ̾÷ºôµù | 5 | 15.44 | 1,000 | 67 | 2017 | | 2026.02.12 | Àü¼¼ | ¼Á¤Ä³½½ | 5 | 20.7 | 13,000 | 0 | 2016 | | 2026.02.11 | ¸Å¸Å | beginhouse | 3 | 27.945 | 35,000 | | 2014 | | 2026.02.11 | Àü¼¼ | ÇѰ´º½ºÅ¸(210-289) | 2 | 35.8 | 22,000 | 0 | 2013 | | 2026.02.11 | ¿ù¼¼ | ÇÑ¹é¾ÆÆ®ºô(299-161) | 5 | 71.67 | 5,000 | 110 | 2009 | | 2026.02.10 | Àü¼¼ | ´ëÈï¹Ì¼Ò°¡(214-221) | 1 | 34.86 | 18,900 | 0 | 2012 | | 2026.02.10 | ¿ù¼¼ | ȨÀη¹Áö´ø½º | 3 | 13.9 | 1,000 | 48 | 2013 | | 2026.02.10 | ¿ù¼¼ | ºêÀ̾÷ºôµù | 3 | 16.65 | 1,000 | 67 | 2017 | | 2026.02.10 | ¿ù¼¼ | ±×¸°Ä³½½(183-31) | 6 | 12.48 | 3,000 | 51 | 2012 | | 2026.02.10 | ¿ù¼¼ | ½ºÄ«ÀÌÆ÷·¹ | 6 | 50.39 | 8,211 | 85 | 2021 | | 2026.02.10 | ¿ù¼¼ | ½ºÄ«ÀÌÆ÷·¹ | 2 | 53.09 | 8,148 | 84 | 2021 | | 2026.02.10 | ¿ù¼¼ | ÇÑÁöºØ¾ÆÆ®ºô | 3 | 74.7 | 10,000 | 50 | 2009 | | 2026.02.10 | ¿ù¼¼ | ³×ÀÌÃĺô | 3 | 41.73 | 5,069 | 6 | 2018 | | 2026.02.10 | ¿ù¼¼ | ±×¸°Ä³½½(183-31) | 6 | 12.48 | 3,000 | 51 | 2012 | | 2026.02.10 | ¿ù¼¼ | ¼º¿ì(474-13) | 2 | 27.6 | 3,000 | 73 | 2016 | | 2026.02.10 | ¸Å¸Å | H-ÆÓ¸®½º(210-350) | 4 | 37.69 | 21,000 | | 2014 | | 2026.02.10 | ¸Å¸Å | º¦¿¤ | 3 | 67.26 | 26,000 | | 1997 | | 2026.02.10 | ¿ù¼¼ | ½ºÅÚ¶ó | 5 | 21.09 | 1,000 | 52 | 2012 | | 2026.02.09 | ¿ù¼¼ | Á¦ÀϺô¶ó | 3 | 27.49 | 2,000 | 67 | 2002 | | 2026.02.09 | ¿ù¼¼ | JABEZHOUSE | 2 | 27.7 | 2,000 | 60 | 2002 | | 2026.02.09 | Àü¼¼ | ÇØ¶ãÂü°¡ | 3 | 59.56 | 29,000 | 0 | 2009 | | 2026.02.09 | ¿ù¼¼ | ºêÀ̾÷ºôµù | 2 | 16.65 | 1,000 | 67 | 2017 | | 2026.02.09 | ¸Å¸Å | »óµµµå¸²ºô(291-5) | 2 | 55.62 | 44,500 | | 2008 | | 2026.02.09 | ¸Å¸Å | ±×·£Á®ºô¶ó | 4 | 46.42 | 31,000 | | 1995 | | 2026.02.09 | ¸Å¸Å | ´º¿¡ÄÚºô(211-445) | 1 | 29.97 | 28,000 | | 2014 | | 2026.02.09 | ¸Å¸Å | Àå¾È°ñµåºô¶ó¸¶µ¿ | 1 | 67.12 | 79,000 | | 1993 | | 2026.02.09 | ¿ù¼¼ | ½ÅÇѽ¦¸£ºô | 4 | 28.52 | 4,000 | 70 | 2013 | | 2026.02.08 | ¸Å¸Å | ¾Æ³×½ºÆ® | 2 | 38.58 | 36,000 | | 2012 | | 2026.02.08 | ¿ù¼¼ | ´ëÈïºôµù | 5 | 19.98 | 2,000 | 70 | 2012 | | 2026.02.07 | Àü¼¼ | »óµµ¾ÆÆ®ºô(210-190) | 3 | 41.88 | 29,000 | 0 | 2015 | | 2026.02.07 | ¿ù¼¼ | ¿ë¼±¾ÆÆ®ºô | 4 | 13.95 | 2,000 | 60 | 2013 | | 2026.02.07 | Àü¼¼ | ¼Á¤Èúž | 6 | 29.64 | 12,000 | 0 | 2017 | | 2026.02.07 | ¿ù¼¼ | ¾ÆÄ§ÇÞ»ì | 4 | 12.14 | 3,000 | 45 | 2014 | | 2026.02.07 | Àü¼¼ | ÀνººôBµ¿ | 2 | 43.82 | 30,000 | 0 | 2016 | | 2026.02.07 | Àü¼¼ | »óµµ¾ÆÆ®ºô(210-190) | 3 | 41.88 | 29,000 | 0 | 2015 | | 2026.02.07 | ¿ù¼¼ | ¸®¿òÆç¸®Ã¼ | 1 | 57.782 | 39,500 | 10 | 2021 | | 2026.02.07 | ¿ù¼¼ | ¼Á¤Èúž | 3 | 29.64 | 3,000 | 75 | 2017 | | 2026.02.07 | Àü¼¼ | ±×¸°Èú | 5 | 29.92 | 17,500 | 0 | 2014 | | 2026.02.07 | ¿ù¼¼ | ´ë¿µºô¶ó(´Ùµ¿) | -1 | 39.99 | 1,000 | 60 | 1991 | | 2026.02.07 | ¿ù¼¼ | ½ºÅÚ¶ó | 2 | 20.9 | 1,000 | 58 | 2012 | | 2026.02.06 | ¿ù¼¼ | ºêÀ̾÷ºôµù | 3 | 14.19 | 1,000 | 67 | 2017 | | 2026.02.06 | ¿ù¼¼ | Á¦ÀÌ¾ÆÆ®ºô | 3 | 40.6 | 3,000 | 80 | 2012 | | 2026.02.06 | ¿ù¼¼ | ½ºÄ«ÀÌŸ¿î | 4 | 23.4 | 2,000 | 63 | 2017 | | 2026.02.06 | Àü¼¼ | °³²ºô(243-4) | 3 | 29.845 | 27,000 | 0 | 2022 | | 2026.02.06 | Àü¼¼ | ´õ±×¸°3Â÷ | 2 | 33.22 | 20,500 | 0 | 2013 | | 2026.02.06 | ¸Å¸Å | ¹Ì¹Ì¾ÆÆ®ºô(335-101) | 3 | 59.93 | 50,000 | | 2002 | | 2026.02.06 | ¸Å¸Å | ½Å¾ÈÇÏÀÌÃ÷ºô¶ó | -1 | 45.72 | 57,700 | | 1994 | | 2026.02.06 | ¸Å¸Å | ·ÎÁî¾ÆÆ®ºô | 1 | 70.65 | 90,000 | | 2008 | | 2026.02.05 | ¿ù¼¼ | (361-63) | 1 | 20.68 | 9,280 | 15 | 2004 | | 2026.02.05 | ¿ù¼¼ | ±¤Ã¤ºô¶ó | 2 | 42.62 | 3,969 | 41 | 2024 | | 2026.02.05 | ¿ù¼¼ | ±¤Ã¤ºô¶ó | 2 | 38 | 3,582 | 37 | 2024 | | 2026.02.05 | Àü¼¼ | ¸ð°Çºô¶óÆ® | 3 | 25.92 | 13,000 | 0 | 2012 | | 2026.02.05 | Àü¼¼ | ¿øÇü½¦¸£ºô(289-27) | 3 | 57.61 | 25,000 | 0 | 2007 | | 2026.02.05 | ¸Å¸Å | ¼¼±â | 2 | 42.3 | 40,700 | | 2011 | | 2026.02.05 | ¸Å¸Å | µ¿»ê±×¸°ºô¶ó4Â÷ | 5 | 56.29 | 38,500 | | 2001 | | 2026.02.05 | ¸Å¸Å | ¾ÆÆ®¸®ºùÅÚ | 1 | 68.56 | 40,800 | | 2000 | | 2026.02.04 | ¿ù¼¼ | ¿¹ÀÏ¿¡¹öºô | 1 | 67.13 | 24,000 | 15 | 2003 | | 2026.02.04 | ¿ù¼¼ | ¼Û¸²ºô¶ó | 2 | 46.19 | 13,000 | 20 | 2001 | | 2026.02.04 | Àü¼¼ | ³²¾çºô¶ó(301-209) | 2 | 58.18 | 17,000 | 0 | 1994 | | 2026.02.04 | ¿ù¼¼ | Ǫ¸¥½£ÇϿ콺 | 2 | 29.98 | 20,500 | 22 | 2015 | | 2026.02.04 | ¸Å¸Å | ½Â¿øÁÖÅà | 5 | 29.31 | 38,000 | | 2020 | | 2026.02.04 | ¿ù¼¼ | (121-128) | 3 | 28.98 | 2,000 | 44 | 2000 | | 2026.02.04 | ¸Å¸Å | û¿ø°¡µçºô¶óBµ¿ | 3 | 84.08 | 152,350 | | 1989 | | 2026.02.04 | ¸Å¸Å | ¸¼Àº¼¼»óºô¸®Áö | 2 | 59.335 | 58,000 | | 2012 | | 2026.02.04 | ¿ù¼¼ | ÇØÇÇÇϿ콺(242-92) | 2 | 14.23 | 1,000 | 62 | 2013 | | 2026.02.03 | ¸Å¸Å | °³²ºô(210-292) | 2 | 40.59 | 64,000 | | 2017 | | 2026.02.03 | ¿ù¼¼ | ±¤Ã¤ºô¶ó | 5 | 42.21 | 4,023 | 41 | 2024 | | 2026.02.03 | Àü¼¼ | ¸ð°Çºô¶óÆ® | 2 | 29.04 | 17,600 | 0 | 2012 | | 2026.02.03 | ¿ù¼¼ | ÇѰ³ëºí·¹½º | 3 | 43.14 | 24,500 | 20 | 2013 | | 2026.02.03 | Àü¼¼ | ¹Ý¼®ÁÖÅà | 2 | 59.86 | 19,000 | 0 | 1996 | | 2026.02.03 | ¸Å¸Å | Å·½ºÅ¸¿îAµ¿ | 3 | 44.29 | 32,000 | | 2014 | | 2026.02.03 | Àü¼¼ | ¹Ý¼®ÁÖÅà | 2 | 59.86 | 19,000 | 0 | 1996 | | 2026.02.03 | Àü¼¼ | È¿ÆÄÅ©ºô | 6 | 29.57 | 27,000 | 0 | 2019 | | 2026.02.03 | ¿ù¼¼ | ±¤Ã¤ºô¶ó | 5 | 42.21 | 4,999 | 36 | 2024 | | 2026.02.03 | ¿ù¼¼ | (245-5) | 1 | 38.72 | 2,000 | 55 | 1986 | | 2026.02.03 | ¿ù¼¼ | ÀÌÆíÇѺô | 2 | 12.58 | 1,000 | 43 | 2013 | | 2026.02.02 | ¸Å¸Å | »ï¼ºÇÏÀÌÃ÷(229-1) | 2 | 59.61 | 55,000 | | 2016 | | 2026.02.02 | ¸Å¸Å | »óµµ´õÇÏÀÓ | 4 | 48.97 | 59,000 | | 2022 | | 2026.02.02 | ¸Å¸Å | »óµµ´õÇÏÀÓ | 4 | 48.97 | 59,000 | | 2022 | | 2026.02.01 | ¸Å¸Å | ÇѼֺô¶ó | 1 | 70.46 | 38,500 | | 2001 | | 2026.02.01 | ¸Å¸Å | Áß¾Ó(259-12) | 4 | 48.46 | 30,600 | | 1974 | | 2026.01.31 | ¸Å¸Å | (245-5) | 1 | 38.72 | 39,000 | | 1986 | | 2026.01.31 | ¸Å¸Å | ¹Ì¼Ò°¡Aµ¿(244-166) | 5 | 29.81 | 71,000 | | 2017 | | 2026.01.31 | ¸Å¸Å | (335-228) | 2 | 73.03 | 65,500 | | 2007 | | 2026.01.31 | ¸Å¸Å | ½Â¿øÁÖÅà | 2 | 29.69 | 37,000 | | 2020 | | 2026.01.31 | ¸Å¸Å | ¿ëÈ£ºô¶ó | 4 | 36.7 | 28,000 | | 2003 | | 2026.01.31 | ¸Å¸Å | ÀÌ¿¡½ºÇÏÀÓ7Â÷Bµ¿ | 3 | 38.48 | 47,000 | | 2018 | | 2026.01.31 | Àü¼¼ | ´ëÈï¹Ì¼Ò°¡(210-112) | 4 | 45.16 | 25,500 | 0 | 2012 | | 2026.01.31 | Àü¼¼ | ·¹µåÇϿ콺 | 2 | 39.84 | 17,000 | 0 | 2002 | | 2026.01.31 | ¿ù¼¼ | ±×¸°Ä³½½(183-31) | 7 | 14.99 | 6,000 | 65 | 2012 | | 2026.01.31 | Àü¼¼ | ¼Á¤Ä³½½ | 7 | 24 | 20,000 | 0 | 2016 | | 2026.01.31 | ¿ù¼¼ | ¿ë¼±¾ÆÆ®ºô | 3 | 13.95 | 1,000 | 65 | 2013 | | 2026.01.31 | ¿ù¼¼ | µ¿ÁøÇϿ콺 | 2 | 18.67 | 500 | 50 | 2015 | | 2026.01.31 | ¿ù¼¼ | ¿¤·»ÇϿ콺 | 2 | 19.99 | 3,000 | 50 | 2015 | | 2026.01.31 | ¿ù¼¼ | ¹Ì¼Ò°¡8Â÷ | 5 | 34.79 | 11,000 | 40 | 2013 | | 2026.01.30 | ¸Å¸Å | ÀÌ¿¡½ºÇÏÀÓ6Â÷ | 4 | 28.81 | 61,500 | | 2017 | | 2026.01.30 | ¸Å¸Å | »óµµ¸®Ä¡ºô | 4 | 72.21 | 85,000 | | 2005 | | 2026.01.30 | ¸Å¸Å | È¿¼ºÁÖÅÃ(211-12) | 4 | 42.9 | 58,000 | | 2015 | | 2026.01.30 | ¸Å¸Å | ¿¡¹ö±×¸°ºô | 2 | 43.99 | 37,800 | | 2017 | | 2026.01.30 | ¸Å¸Å | ´Ù¼Ø±×¶ûºô | 2 | 21.59 | 41,000 | | 2020 | | 2026.01.30 | ¿ù¼¼ | º£½ººô | 2 | 21.58 | 500 | 55 | 2002 | | 2026.01.29 | Àü¼¼ | °³²·º½ººô | 3 | 69.19 | 34,700 | 0 | 2007 | | 2026.01.29 | ¸Å¸Å | ¿µ¿ì»çºôµù | 5 | 96.69 | 51,000 | | 2002 | | 2026.01.29 | ¿ù¼¼ | ³×¿Àºô¸®Áö(299-57) | 3 | 26.43 | 16,000 | 15 | 2014 | | 2026.01.29 | Àü¼¼ | (244-349) | -1 | 41.1 | 12,000 | 0 | 1986 | | 2026.01.29 | ¿ù¼¼ | ºêÀ̾÷ºôµù | 2 | 14.64 | 1,000 | 67 | 2017 | | 2026.01.29 | ¿ù¼¼ | Tivoli | 1 | 27.93 | 1,000 | 52 | 2001 | | 2026.01.29 | ¿ù¼¼ | µå¸²ÆÓ¸®½ºII | 4 | 24.82 | 5,000 | 60 | 2015 | | 2026.01.29 | ¸Å¸Å | ´ë¿ÕÁÖÅÃ(214-320) | 2 | 52.89 | 55,600 | | 2008 | | 2026.01.29 | ¸Å¸Å | ÇØµçÇϿ콺 | 2 | 41.12 | 49,000 | | 2012 | | 2026.01.29 | ¸Å¸Å | ÇѰ´º½ºÅ¸(210-289) | 2 | 35.8 | 40,000 | | 2013 | | 2026.01.29 | ¸Å¸Å | ´ëÀϺô¶ó(210-252¿Ü) | 2 | 39.26 | 57,000 | | 2015 | | 2026.01.28 | ¿ù¼¼ | ȨÀη¹Áö´ø½º | 5 | 15.4 | 1,000 | 53 | 2013 | | 2026.01.28 | ¿ù¼¼ | ·ÎÁî¾ÆÆ®ºô | 4 | 69.8 | 26,000 | 20 | 2008 | | 2026.01.28 | ¿ù¼¼ | (495-2) | 3 | 16.52 | 1,000 | 55 | 1995 | | 2026.01.28 | Àü¼¼ | ¿øÇü½¦¸£ºô(289-27) | 2 | 57.61 | 25,000 | 0 | 2007 | | 2026.01.28 | Àü¼¼ | ´ë¿ÕÁÖÅÃ11Â÷ | 1 | 35.88 | 19,900 | 0 | 2008 | | 2026.01.28 | ¸Å¸Å | Áß¾Óºô¶óÆ® | 3 | 84.52 | 55,000 | | 2002 | | 2026.01.28 | ¸Å¸Å | »ï¼ººô¶ó(289-1) | 4 | 56.7 | 72,000 | | 1993 | | 2026.01.28 | ¸Å¸Å | »óµµÃ¿½Ã(256-212) | 5 | 38.32 | 33,000 | | 2014 | | 2026.01.28 | ¸Å¸Å | Ç÷ÎäºôBµ¿ | -1 | 45.74 | 30,000 | | 2016 | | 2026.01.28 | ¸Å¸Å | û¼Û½¦¸£ºô | 1 | 77.08 | 54,000 | | 2002 | | 2026.01.27 | ¸Å¸Å | ¾ÆÁøºô¶ó | 1 | 68.25 | 53,200 | | 1997 | | 2026.01.27 | ¸Å¸Å | ¿¹±×¸° | 1 | 29.72 | 40,000 | | 2020 | | 2026.01.27 | ¿ù¼¼ | ´ëÈïºôµù | 2 | 31.4 | 1,000 | 55 | 2012 | | 2026.01.27 | Àü¼¼ | Á¦ÀÌÇ÷¯½º | 3 | 12.395 | 10,000 | 0 | 2013 | | 2026.01.27 | ¿ù¼¼ | û¿îÇÏÀÌÃ÷3Â÷ | 1 | 71.08 | 4,000 | 105 | 2001 | | 2026.01.27 | Àü¼¼ | û¸í¿¡¹öºô | 2 | 39.56 | 20,500 | 0 | 2012 | | 2026.01.27 | ¿ù¼¼ | (29-123) | 5 | 15.75 | 1,000 | 55 | 2012 | | 2026.01.27 | ¸Å¸Å | ´ëÈï¹Ì¼Ò°¡(210-112) | 4 | 45.16 | 49,500 | | 2012 | | 2026.01.26 | ¿ù¼¼ | ±×¸°Ä³½½(183-31) | 7 | 15.83 | 4,000 | 74 | 2012 | | 2026.01.26 | Àü¼¼ | ¼§±×¸±¶óVI | 2 | 53.34 | 36,700 | 0 | 2016 | | 2026.01.26 | ¿ù¼¼ | ±×¸°Ä³½½(183-31) | 7 | 15.83 | 4,000 | 74 | 2012 | | 2026.01.26 | ¿ù¼¼ | ´ë¿ÕÁÖÅÃ(199-26) | 3 | 32.7 | 5,000 | 64 | 2018 | | 2026.01.26 | ¿ù¼¼ | ¿¡ÀÌ·¹³×(492-12) | 2 | 15.5 | 2,500 | 59 | 2017 | | 2026.01.26 | ¿ù¼¼ | ¿ÀÅ©ºô | 2 | 16.89 | 2,000 | 63 | 2013 | | 2026.01.26 | ¿ù¼¼ | LuceForet | 7 | 25.4214 | 32,000 | 9 | 2021 | | 2026.01.26 | ¸Å¸Å | ¸ð´øÈúŸ¿î1Â÷ | 5 | 31.08 | 35,800 | | 2015 | | 2026.01.26 | ¸Å¸Å | ¹Ý¼®ºô¶ó(256-202) | 1 | 51.44 | 20,000 | | 1994 | | 2026.01.25 | ¸Å¸Å | ¶ó¿ÂÈú½º | 3 | 50.43 | 44,500 | | 2022 | | 2026.01.25 | ¿ù¼¼ | ÇÑ¿ïºôµù | 4 | 12.05 | 1,000 | 55 | 2012 | | 2026.01.24 | ¸Å¸Å | ´Ù¼Ø±×¶ûºô | 2 | 41.05 | 45,000 | | 2019 | | 2026.01.24 | ¸Å¸Å | ÈúÆÄÅ©ºô | 1 | 74.5 | 52,750 | | 2002 | | 2026.01.24 | ¿ù¼¼ | ´ö¼ººô¶ó | 3 | 62.7 | 5,000 | 110 | 2009 | | 2026.01.24 | ¸Å¸Å | ¼±°æ¸Ç¼Ç | 4 | 84.58 | 45,000 | | 2001 | | 2026.01.24 | ¸Å¸Å | ¶ó¿ÂÈú½º | 3 | 53.11 | 47,000 | | 2022 | | 2026.01.24 | ¸Å¸Å | »óµµ½¦¸£ºô | 2 | 40.64 | 45,000 | | 2008 | | 2026.01.24 | Àü¼¼ | Àå¾È°ñµåºô¶ó´Ùµ¿ | 3 | 67.22 | 29,000 | 0 | 1993 | | 2026.01.24 | Àü¼¼ | ±Ý¼ºÇÏÀÌÃ÷ºô¶ó1Â÷ | 2 | 45.72 | 20,000 | 0 | 1993 | | 2026.01.24 | Àü¼¼ | ¿¹±×¸° | 4 | 39.26 | 22,500 | 0 | 2017 | | 2026.01.24 | ¿ù¼¼ | ¼ö¾Öºô(363-88) | 5 | 29.98 | 8,000 | 65 | 2018 | | 2026.01.24 | Àü¼¼ | ¼ö¾Öºô(363-88) | 5 | 29.98 | 23,000 | 0 | 2018 | | 2026.01.24 | ¿ù¼¼ | ±×¸°Ä³½½(183-31) | 5 | 14.99 | 2,500 | 60 | 2012 | | 2026.01.24 | Àü¼¼ | ¼§±×¸±¶óV | 5 | 29.96 | 26,600 | 0 | 2016 | | 2026.01.24 | ¸Å¸Å | »óµµ¾ÆÆ®ºô¶ó(159-285) | 1 | 82.76 | 50,750 | | 1998 | | 2026.01.24 | ¸Å¸Å | º¦¿¤ÇÏÀ̺ô | 1 | 44.67 | 30,500 | | 2002 | | 2026.01.24 | ¿ù¼¼ | ¿ìÇöij½½(210-266) | 5 | 38.96 | 5,000 | 130 | 2014 | | 2026.01.24 | Àü¼¼ | ´Ùä°¡ | 2 | 59.98 | 34,000 | 0 | 2022 | | 2026.01.24 | ¸Å¸Å | º¸¼ºÆÓ¸®½º17Â÷ | 3 | 47.15 | 42,000 | | 2016 | | 2026.01.23 | ¿ù¼¼ | ÇØ¿ìºô¶ó | -1 | 61.83 | 12,000 | 15 | 1993 | | 2026.01.23 | Àü¼¼ | È¿¼ºÁÖÅÃ(211-12) | 3 | 47.145 | 30,000 | 0 | 2015 | | 2026.01.23 | Àü¼¼ | ¹Ì¼Ò°¡25Â÷Aµ¿ | 4 | 45.52 | 30,500 | 0 | 2017 | | 2026.01.23 | ¿ù¼¼ | (469-4) | 2 | 32.62 | 5,000 | 67 | 2003 | | 2026.01.23 | ¿ù¼¼ | ÄÉÀ̵ð¾ÆÀ̺ôEµ¿ | 1 | 27.71 | 13,800 | 15 | 2007 | | 2026.01.23 | ¸Å¸Å | ´ëÈï¹Ì¼Ò°¡24Â÷ | 3 | 29.24 | 27,000 | | 2017 | | 2026.01.23 | ¸Å¸Å | µµ¿µÅ¸¿î(210-86) | 4 | 39.63 | 38,000 | | 2014 | | 2026.01.23 | ¸Å¸Å | ³²¾çºô¶ó(301-209) | 2 | 58.18 | 25,000 | | 1994 | | 2026.01.23 | ¸Å¸Å | ½Å¾ç¸Ç¼Ç | 2 | 61.26 | 42,750 | | 1997 | | 2026.01.23 | ¸Å¸Å | ½ÅÇѽ¦¸£ºô | 4 | 28.52 | 31,500 | | 2013 | | 2026.01.22 | Àü¼¼ | ¶óÀ̿°ñµåºô | 4 | 38.88 | 18,000 | 0 | 2013 | | 2026.01.22 | Àü¼¼ | ´ë¸íºô¶ó | 3 | 52.91 | 30,000 | 0 | 1994 | | 2026.01.22 | Àü¼¼ | ±Ý°±×¸°ºô(202-235) | 3 | 40.95 | 24,000 | 0 | 2014 | | 2026.01.22 | ¿ù¼¼ | Tivoli | 1 | 54.57 | 500 | 55 | 2001 | | 2026.01.22 | ¿ù¼¼ | KSKºô5Â÷ | 1 | 29.88 | 14,000 | 3 | 2013 | | 2026.01.22 | ¸Å¸Å | Çö´ë¾¾Æ¼ºô¶ó | 4 | 61.2 | 30,000 | | 1999 | | 2026.01.22 | ¸Å¸Å | »óµµÇÏÀÌÃ÷(´Ùµ¿) | 2 | 38.14 | 27,300 | | 1988 | | 2026.01.22 | ¸Å¸Å | °ñµç¸®¹öƼºô(1-10) | 3 | 78.11 | 54,000 | | 2001 | | 2026.01.22 | ¸Å¸Å | ¹Ì¼Ò°¡(279-217) | 4 | 37.63 | 40,000 | | 2011 | | 2026.01.22 | ¿ù¼¼ | ¿¤·»ÇϿ콺 | 3 | 33.52 | 5,000 | 80 | 2015 | | 2026.01.21 | ¿ù¼¼ | (235-25) | 1 | 81.18 | 10,000 | 130 | 1994 | | 2026.01.21 | Àü¼¼ | (283-106) | 4 | 27.91 | 25,000 | 0 | 2023 | | 2026.01.21 | ¿ù¼¼ | ½ºÄ«ÀÌÆ÷·¹ | 2 | 49.23 | 6,552 | 68 | 2021 | | 2026.01.21 | ¿ù¼¼ | ½ºÄ«ÀÌÆ÷·¹ | 2 | 49.23 | 2,655 | 76 | 2021 | | 2026.01.21 | Àü¼¼ | (335-84) | 4 | 137.34 | 30,030 | 0 | 2005 | | 2026.01.21 | ¿ù¼¼ | ½ºÄ«ÀÌÆ÷·¹ | 3 | 49.23 | 2,620 | 76 | 2021 | | 2026.01.21 | ¸Å¸Å | ÀÎÁ¤ºô(211-240) | 3 | 40.925 | 25,000 | | 2015 | | 2026.01.21 | ¸Å¸Å | ¾Æ³×½ºÆ® | 5 | 46.78 | 22,500 | | 2012 | | 2026.01.21 | ¸Å¸Å | ÀÌ¿¡½ºÇÏÀÓ7Â÷Aµ¿ | 2 | 38.58 | 39,000 | | 2018 | | 2026.01.21 | ¸Å¸Å | ´ëÀϺô¶ó(210-252¿Ü) | 2 | 43.39 | 59,000 | | 2015 | | 2026.01.21 | ¸Å¸Å | Àå¾È°ñµåºô¶ó°¡µ¿ | 3 | 69.75 | 65,500 | | 1993 | | 2026.01.21 | ¸Å¸Å | »óµµÇÏÀÌÃ÷(°¡µ¿) | 1 | 38.14 | 27,800 | | 1988 | | 2026.01.21 | ¸Å¸Å | ¸í¼ºÁÖÅà | 4 | 26.84 | 29,500 | | 2016 | | 2026.01.21 | ¸Å¸Å | ´ëÀϺô¶ó(210-252¿Ü) | 2 | 41.57 | 58,000 | | 2015 | | 2026.01.21 | ¸Å¸Å | ¿Õ¼ºÁÖÅà | 4 | 52.87 | 36,000 | | 2002 | | 2026.01.20 | ¿ù¼¼ | ½ºÄ«ÀÌÆ÷·¹ | 4 | 49.23 | 6,606 | 68 | 2021 | | 2026.01.20 | ¿ù¼¼ | (279-567) | 1 | 33.39 | 11,900 | 11 | 1986 | | 2026.01.20 | ¿ù¼¼ | 491-20 | 4 | 12.22 | 2,500 | 41 | 2013 | | 2026.01.20 | ¿ù¼¼ | ¿ÀÆä¶óºô | 4 | 60.24 | 3,000 | 125 | 2009 | | 2026.01.20 | ¿ù¼¼ | (279-567) | 1 | 33.39 | 11,900 | 11 | 1986 | | 2026.01.20 | Àü¼¼ | °³²ºô(243-4) | 3 | 29.87 | 28,000 | 0 | 2022 | | 2026.01.20 | ¿ù¼¼ | ºñÄ¡ºô¶ó | 3 | 42.39 | 10,000 | 65 | 1991 | | 2026.01.20 | ¿ù¼¼ | È¿ÆÄÅ©ºô | 6 | 46.91 | 50 | 35 | 2019 | | 2026.01.20 | ¿ù¼¼ | ºñÄ¡ºô¶ó | 3 | 42.39 | 10,000 | 65 | 1991 | | 2026.01.20 | Àü¼¼ | Çö´ëÇÏÀÌÃ÷106µ¿ | 1 | 53.25 | 16,000 | 0 | 1991 | | 2026.01.20 | ¸Å¸Å | û¿îÇϿ콺 | 5 | 44.16 | 51,000 | | 2016 | | 2026.01.20 | ¸Å¸Å | °¼ºÇÏÀÌÃ÷(°¡µ¿) | -1 | 44.24 | 40,000 | | 1992 | | 2026.01.20 | ¸Å¸Å | û¼öºô¶ó | -1 | 59.85 | 20,000 | | 1992 | | 2026.01.20 | ¸Å¸Å | û¸í¿¡¹öºô5Â÷(299-149) | 1 | 51.96 | 42,500 | | 2014 | | 2026.01.19 | ¿ù¼¼ | ½ºÄ«ÀÌÆ÷·¹ | 4 | 53.09 | 8,232 | 85 | 2021 | | 2026.01.19 | ¿ù¼¼ | ½ºÄ«ÀÌÆ÷·¹ | 3 | 53.09 | 6,984 | 72 | 2021 | | 2026.01.19 | ¿ù¼¼ | ½ºÄ«ÀÌÆ÷·¹ | 3 | 53.09 | 17,296 | 14 | 2021 | | 2026.01.19 | Àü¼¼ | ÇູÇѵ¿Çà(214-146) | 3 | 37.69 | 21,500 | 0 | 2015 | | 2026.01.19 | ¸Å¸Å | ¼º´ëÇÏÀÌÃ÷ºô | 1 | 41.18 | 23,000 | | 2002 | | 2026.01.19 | ¸Å¸Å | ÀÌ¿¡½ºÇÏÀÓ7Â÷Aµ¿ | 4 | 30.2 | 33,700 | | 2018 | | 2026.01.18 | ¿ù¼¼ | ¿ë¼±¾ÆÆ®ºô | 4 | 18.36 | 1,000 | 60 | 2013 | | 2026.01.18 | ¿ù¼¼ | ¿ë¼±¾ÆÆ®ºô | 3 | 14.19 | 1,000 | 60 | 2013 | | 2026.01.18 | ¿ù¼¼ | µ¿ÁøÇϿ콺 | 4 | 25.63 | 1,000 | 100 | 2015 | | 2026.01.18 | ¸Å¸Å | ´ëÈï¹Ì¼Ò°¡29Â÷(Aµ¿) | 3 | 29.78 | 49,000 | | 2020 | | 2026.01.18 | ¿ù¼¼ | ºêÀ̾÷ºôµù | 3 | 14.64 | 1,000 | 67 | 2017 | | 2026.01.17 | ¿ù¼¼ | »óµµ¾ÆÆ®ºô(210-271) | 3 | 76.89 | 20,000 | 55 | 2002 | | 2026.01.17 | ¸Å¸Å | ±Â¶óÀÌÇÁºô | -1 | 33.03 | 28,000 | | 2002 | | 2026.01.17 | ¸Å¸Å | ÀºÇÏ¸Ç¼Ç | 2 | 66.26 | 52,000 | | 2002 | | 2026.01.17 | ¸Å¸Å | ¿À¼ººô¶óÆ® | 1 | 52.53 | 58,000 | | 1996 | | 2026.01.17 | ¸Å¸Å | ´ëÀϺô¶ó(210-252¿Ü) | 3 | 43.39 | 58,000 | | 2015 | | 2026.01.17 | ¸Å¸Å | ½Å¼±ºô¶ó | 2 | 55.47 | 68,000 | | 1998 | | 2026.01.17 | ¸Å¸Å | ½Åµ¿¾Æºô¶ó | 1 | 65.54 | 70,000 | | 1996 | | 2026.01.17 | ¿ù¼¼ | ´ë¸íºô¶ó | 1 | 65.26 | 10,000 | 150 | 1994 | | 2026.01.17 | Àü¼¼ | Çö´ëÇÏÀÌÃ÷103µ¿ | 2 | 79.68 | 24,975 | 0 | 1991 | | 2026.01.17 | ¿ù¼¼ | ´õŬ·¡½Ä | 3 | 29.56 | 28,300 | 12 | 2023 | | 2026.01.17 | ¿ù¼¼ | ÀºÇýºô | 4 | 29.87 | 14,000 | 20 | 2011 | | 2026.01.17 | Àü¼¼ | Ä«·»½Ã¾ÆBµ¿ | 4 | 29.83 | 29,000 | 0 | 2022 | | 2026.01.17 | Àü¼¼ | ½ÂÀ±³ëºí¸®¾È | 4 | 45.43 | 26,400 | 0 | 2014 | | 2026.01.17 | ¿ù¼¼ | ¼ºÁöºô¶ó(212-48) | -1 | 37.28 | 1,000 | 40 | 1996 | | 2026.01.17 | Àü¼¼ | À¯Ã¢ºô¶ó | 2 | 45.6 | 28,000 | 0 | 2008 | | 2026.01.17 | ¿ù¼¼ | ¾ÆÄ§ÇÞ»ì | 3 | 12 | 3,000 | 45 | 2014 | | 2026.01.17 | ¿ù¼¼ | »óµµ¾ÆÆ®ºô(210-271) | 3 | 76.89 | 20,000 | 55 | 2002 | | 2026.01.17 | ¿ù¼¼ | ÇѰ´º½ºÅ¸(210-289) | 2 | 35.05 | 3,000 | 100 | 2013 | | 2026.01.17 | ¿ù¼¼ | (7-60) | 3 | 11.84 | 3,700 | 55 | 2020 | | 2026.01.17 | ¿ù¼¼ | ½ºÅÚ¶ó | 2 | 18.2 | 1,000 | 55 | 2012 | | 2026.01.17 | ¿ù¼¼ | µ¿¼ÁÖÅÃ(279-211) | 4 | 61.3 | 3,000 | 95 | 2001 | | 2026.01.17 | ¿ù¼¼ | û¸í¿¡¹öºô¿¡À̵¿ | 5 | 55.04 | 25,000 | 30 | 2013 | | 2026.01.17 | ¿ù¼¼ | ¹«°æÇϿ콺 | 4 | 18.96 | 5,000 | 50 | 2016 | | 2026.01.17 | ¿ù¼¼ | ±Ý¼ºÇÏÀÌÃ÷ºô¶ó1Â÷ | 2 | 49.86 | 3,000 | 70 | 1993 | | 2026.01.17 | Àü¼¼ | ¸ð´øÈúŸ¿î1Â÷ | 6 | 31.08 | 22,500 | 0 | 2015 | | 2026.01.16 | ¸Å¸Å | º¸¼ºÆÓ¸®½º | 4 | 24.99 | 22,500 | | 2013 | | 2026.01.16 | ¸Å¸Å | ¿ÍÀÌ¿¥½ÃƼ | 2 | 29.99 | 50,000 | | 2022 | | 2026.01.16 | ¸Å¸Å | ÀÌÁÖ¾ÆÆ®ºô¶ó(³ªµ¿) | 1 | 53.07 | 36,000 | | 1991 | | 2026.01.16 | Àü¼¼ | (22-108) | 7 | 59.02 | 36,660 | 0 | 2019 | | 2026.01.16 | Àü¼¼ | Àϱ¤¸®Ä¡ºô(256-196) | 1 | 49.67 | 30,000 | 0 | 2015 | | 2026.01.16 | Àü¼¼ | ±¤¿ìºô¶ó | 1 | 49.31 | 13,400 | 0 | 1991 | | 2026.01.16 | ¿ù¼¼ | ½ºÄ«ÀÌŸ¿î | 3 | 23.41 | 4,000 | 75 | 2017 | | 2026.01.16 | ¿ù¼¼ | ¼öÁ¤ºô | 2 | 28.02 | 3,000 | 73 | 2016 | | 2026.01.16 | Àü¼¼ | »óµµÇÏÀÌÃ÷(°¡µ¿) | 1 | 38.14 | 12,500 | 0 | 1988 | | 2026.01.16 | ¿ù¼¼ | ÈÞ¸Õºô·¹ | 2 | 44.43 | 24,600 | 30 | 2013 | | 2026.01.15 | ¿ù¼¼ | (7-60) | 2 | 10.26 | 3,700 | 43 | 2020 | | 2026.01.15 | ¿ù¼¼ | ¿¡ÀÌ·¹³×(492-12) | 3 | 15.18 | 1,000 | 55 | 2017 | | 2026.01.15 | ¿ù¼¼ | ¼Á¤Èúž | 5 | 29.64 | 8,000 | 33 | 2017 | | 2026.01.15 | ¸Å¸Å | È¿¼ºÁÖÅÃ(294-42) | 4 | 49.18 | 50,000 | | 2012 | | 2026.01.15 | ¸Å¸Å | ´ë¿ëÁÖÅà | 1 | 78.46 | 79,000 | | 2001 | | 2026.01.14 | ¿ù¼¼ | ºêÀ̾÷ºôµù | 2 | 17.08 | 1,000 | 67 | 2017 | | 2026.01.14 | Àü¼¼ | Á¦´Ï½ººô | 2 | 37.56 | 22,000 | 0 | 2015 | | 2026.01.14 | ¿ù¼¼ | ¹Ì¼ºÇص帲(256-228) | 3 | 29.81 | 15,000 | 40 | 2016 | | 2026.01.14 | ¿ù¼¼ | ÄÉÀ̵ð¾ÆÀ̺ôEµ¿ | 2 | 23.29 | 12,400 | 10 | 2007 | | 2026.01.14 | Àü¼¼ | ½¦¾îÇϿ콺 | 2 | 15.17 | 9,000 | 0 | 2012 | | 2026.01.14 | Àü¼¼ | ¹Ì¼Ò°¡25Â÷Bµ¿ | 3 | 48.91 | 30,200 | 0 | 2017 | | 2026.01.14 | ¸Å¸Å | ÇѰÆÓ¸®½º(335-10) | 3 | 32.28 | 34,000 | | 2012 | | 2026.01.14 | ¸Å¸Å | ÀÎÁ¤ºô(211-240) | 3 | 40.925 | 25,000 | | 2015 | | 2026.01.14 | ¿ù¼¼ | Å·½ºÅ¸¿îBµ¿ | 5 | 45.56 | 17,000 | 30 | 2014 | | 2026.01.14 | ¿ù¼¼ | LuceForet | 6 | 25.4214 | 32,000 | 9 | 2021 | | 2026.01.13 | ¿ù¼¼ | (279-68) | 1 | 50.04 | 50 | 50 | 1990 | | 2026.01.13 | ¸Å¸Å | »óµµÇÏÀÌÃ÷(°¡µ¿) | 1 | 38.14 | 25,000 | | 1988 | | 2026.01.13 | ¿ù¼¼ | ³×ÀÌóVill | 4 | 31.68 | 5,000 | 75 | 2016 | | 2026.01.13 | ¿ù¼¼ | ¼Á¤Ä³½½ | 5 | 20.7 | 3,000 | 55 | 2016 | | 2026.01.13 | Àü¼¼ | ½ºÅ¸ºô¶ó | 4 | 32.85 | 15,000 | 0 | 2007 | | 2026.01.13 | ¿ù¼¼ | Á¦ÀϺô¶ó | 3 | 40.04 | 3,000 | 78 | 2002 | | 2026.01.13 | ¿ù¼¼ | ´ë¿µºô¶ó(´Ùµ¿) | 1 | 39.99 | 1,000 | 93 | 1991 | | 2026.01.13 | ¿ù¼¼ | ºêÀ̾÷ºôµù | 2 | 14.19 | 1,000 | 67 | 2017 | | 2026.01.12 | Àü¼¼ | Çö´ë½¦¸£ºô(335-130) | 3 | 79.01 | 45,000 | 0 | 2003 | | 2026.01.12 | ¿ù¼¼ | ¹Ì¼Ò°¡(282-7) | 4 | 29.81 | 5,000 | 84 | 2022 | | 2026.01.12 | ¿ù¼¼ | ±×¸°Ä³½½(183-31) | 4 | 12.48 | 1,000 | 58 | 2012 | | 2026.01.12 | ¸Å¸Å | ½Å¼ºÇÏÀÌÃ÷ºô¶ó | 2 | 39.48 | 63,000 | | 1991 | | 2026.01.12 | ¿ù¼¼ | ¼ö¾Öºô(363-88) | 4 | 19.33 | 1,000 | 58 | 2018 | | 2026.01.12 | ¸Å¸Å | ÀÌ·¹¾ÆÆ®ºô9Â÷(314-32) | 4 | 46.4 | 52,000 | | 2014 | | 2026.01.11 | Àü¼¼ | µ¿¾ç¸Ç¼Ç3Â÷ | -1 | 72.36 | 14,000 | 0 | 2002 | | 2026.01.11 | ¿ù¼¼ | ´Ù³ª³×½ºÆ®ºô(214-32) | 3 | 26.35 | 5,000 | 60 | 2008 | | 2026.01.11 | ¿ù¼¼ | Çö´ëÈúŸ¿î | 2 | 43.6 | 5,000 | 110 | 2013 | | 2026.01.11 | ¿ù¼¼ | ÁÖ¿øVILL | 4 | 17.49 | 1,000 | 60 | 2013 | | 2026.01.11 | ¿ù¼¼ | ȨÀη¹Áö´ø½º | 4 | 18.57 | 1,000 | 60 | 2013 | | 2026.01.11 | ¸Å¸Å | ½¦¾îÇϿ콺 | 2 | 25.25 | 29,900 | | 2012 | | 2026.01.11 | ¿ù¼¼ | beginhouse | 2 | 27.945 | 13,850 | 25 | 2014 | | 2026.01.10 | ¸Å¸Å | Çö´ëÇÏÀÌÃ÷ºô¶ó110µ¿ | 1 | 55.65 | 30,500 | | 1994 | | 2026.01.10 | ¸Å¸Å | »óµµÈѹи®ºô¶ó | 4 | 62.98 | 65,000 | | 1996 | | 2026.01.10 | ¸Å¸Å | ´ëÈヲ¸£ºô | 3 | 50.4 | 38,000 | | 2009 | | 2026.01.10 | ¸Å¸Å | ¶óÀ̿°ñµåºô | 4 | 38.88 | 28,000 | | 2013 | | 2026.01.10 | Àü¼¼ | ÀÌ¿¡½ºÇÏÀÓ7Â÷Bµ¿ | 2 | 37.01 | 28,000 | 0 | 2018 | | 2026.01.10 | ¿ù¼¼ | Á¦ÀϺô¶ó | 4 | 25 | 2,000 | 67 | 2002 | | 2026.01.10 | ¿ù¼¼ | Ǫ¸¥½£ÇϿ콺 | 1 | 29.98 | 20,000 | 24 | 2015 | | 2026.01.10 | ¿ù¼¼ | ¹éÃÌŸ¿î | 3 | 68.15 | 26,980 | 21 | 1983 | | 2026.01.10 | Àü¼¼ | Á¤¿ø½ÃƼºô | 2 | 69.78 | 25,000 | 0 | 1997 | | 2026.01.10 | Àü¼¼ | ¶ó¿ÂÈú½º | 1 | 50.43 | 26,700 | 0 | 2022 | | 2026.01.10 | ¿ù¼¼ | »óµµ·ÎÁöºô | 5 | 59.86 | 5,000 | 150 | 2018 | | 2026.01.10 | ¿ù¼¼ | ³×¿Àºô¸®Áö(299-57) | 5 | 27.3 | 2,000 | 115 | 2014 | | 2026.01.10 | ¿ù¼¼ | ´õŬ·¡½Ä | 4 | 29.56 | 28,350 | 6 | 2023 | | 2026.01.10 | ¿ù¼¼ | (22-108) | 4 | 36.14 | 1,000 | 63 | 2019 | | 2026.01.10 | ¿ù¼¼ | °ø°£ | 2 | 29.43 | 20,000 | 60 | 2021 | | 2026.01.10 | ¿ù¼¼ | Áß¾ÓÀ§³Ê½º(361-14) | 2 | 27.32 | 17,000 | 27 | 2013 | | 2026.01.10 | ¿ù¼¼ | (7-60) | 3 | 11.84 | 3,700 | 55 | 2020 | | 2026.01.10 | ¸Å¸Å | »óµµº£½ºÆ®ºô | 4 | 17.36 | 7,000 | | 2002 | | 2026.01.10 | ¿ù¼¼ | °ø°£ | 1 | 29.43 | 21,000 | 38 | 2021 | | 2026.01.10 | ¸Å¸Å | »óµµº£½ºÆ®ºô | 4 | 18.63 | 7,500 | | 2002 | | 2026.01.10 | ¸Å¸Å | »óµµº£½ºÆ®ºô | 4 | 18.63 | 7,500 | | 2002 | | 2026.01.10 | ¸Å¸Å | »óµµº£½ºÆ®ºô | 4 | 17.36 | 7,000 | | 2002 | | 2026.01.10 | ¿ù¼¼ | °ø°£ | 2 | 29.43 | 20,000 | 60 | 2021 | | 2026.01.10 | ¸Å¸Å | »óµµº£½ºÆ®ºô | 4 | 19.32 | 8,000 | | 2002 | | 2026.01.10 | ¸Å¸Å | »óµµº£½ºÆ®ºô | 4 | 29.7 | 8,500 | | 2002 | | 2026.01.10 | ¸Å¸Å | »óµµº£½ºÆ®ºô | 4 | 34.1 | 9,000 | | 2002 | | 2026.01.10 | ¸Å¸Å | »óµµº£½ºÆ®ºô | 4 | 18.63 | 7,500 | | 2002 | | 2026.01.10 | Àü¼¼ | »ï¼ºÇÏÀÌÃ÷ºô | 3 | 75.16 | 25,000 | 0 | 2006 | | 2026.01.09 | ¿ù¼¼ | ·ÎÁî¾ÆÆ®ºô | 3 | 49.58 | 13,000 | 22 | 2008 | | 2026.01.09 | ¿ù¼¼ | ¸®Ä¡Ä³½½ | 4 | 29.19 | 2,000 | 80 | 2013 | | 2026.01.09 | Àü¼¼ | ÁØÇϿ콺 | 5 | 51.2 | 21,600 | 0 | 2009 | | 2026.01.09 | ¿ù¼¼ | (22-108) | 6 | 36.03 | 1,000 | 65 | 2019 | | 2026.01.09 | ¿ù¼¼ | ¿ìÀüºô¶ó | 1 | 44.96 | 1,000 | 74 | 1996 | | 2026.01.09 | Àü¼¼ | ´Ù³ª³×½ºÆ®ºô(22-38) | 3 | 59.73 | 27,300 | 0 | 2008 | | 2026.01.09 | ¸Å¸Å | õ¼öºô¶óCµ¿ | 3 | 24.36 | 22,000 | | 1992 | | 2026.01.09 | ¸Å¸Å | ½Å¾ÈÆÄÅ©ºô¶ó | 2 | 69.93 | 39,000 | | 1997 | | 2026.01.09 | ¸Å¸Å | »óµµÈѹи®(214-31) | 4 | 57.96 | 49,000 | | 1993 | | 2026.01.09 | ¸Å¸Å | ³»°íÇâºô¶ó(290-53) | 1 | 79.75 | 44,000 | | 1997 | | 2026.01.08 | ¸Å¸Å | ³ëºí½ÃƼ(188-23) | 2 | 39.56 | 73,500 | | 2017 | | 2026.01.08 | Àü¼¼ | ³ª¹«ÇϿ콺2 | 2 | 40.08 | 26,000 | 0 | 2015 | | 2026.01.08 | ¿ù¼¼ | ÄÉÀ̵ð¾ÆÀ̺ôEµ¿ | 3 | 23.29 | 12,400 | 10 | 2007 | | 2026.01.08 | ¿ù¼¼ | ½Â¿øÁÖÅà | 4 | 29.31 | 24,500 | 10 | 2020 | | 2026.01.08 | ¿ù¼¼ | µÎ¼Õº£½ºÆ¼¿ò(210-55) | 4 | 28.015 | 18,500 | 10 | 2014 | | 2026.01.08 | ¿ù¼¼ | ÄÉÀ̵ð¾ÆÀ̺ôEµ¿ | 3 | 23.29 | 5,000 | 60 | 2007 | | 2026.01.08 | Àü¼¼ | ´ëÈï¹Ì¼Ò°¡24Â÷ | 3 | 29.24 | 21,600 | 0 | 2017 | | 2026.01.08 | ¿ù¼¼ | »óµµº£½ºÆ®ºô | 4 | 18.63 | 5,000 | 30 | 2002 | | 2026.01.08 | ¿ù¼¼ | ¿¤·»ÇϿ콺 | 3 | 20.51 | 1,000 | 60 | 2015 | | 2026.01.08 | ¸Å¸Å | ÁÖ¿øº£¸£ºô102 | 3 | 29.38 | 40,700 | | 2018 | | 2026.01.08 | ¸Å¸Å | »ï¼ºÆÓ¸®½º | 3 | 28.985 | 38,000 | | 2020 | | 2026.01.08 | ¸Å¸Å | ¼Á¤½¦¸£ºô | 4 | 48.83 | 70,000 | | 2015 | | 2026.01.08 | ¸Å¸Å | ´ë¼ºÇÏÀÌÃ÷(301-159) | 4 | 65.91 | 36,300 | | 2000 | | 2026.01.08 | ¸Å¸Å | È¿¼ººô¶ó | -1 | 40.63 | 48,800 | | 1991 | | 2026.01.08 | ¸Å¸Å | ÁÖ¿øº£¸£ºô102 | 3 | 29.38 | 40,700 | | 2018 | | 2026.01.08 | ¿ù¼¼ | »óµµº£½ºÆ®ºô | 4 | 18.63 | 5,000 | 30 | 2002 | | 2026.01.08 | ¸Å¸Å | Çý¸²ÁÖÅà | 4 | 67.81 | 36,000 | | 2001 | | 2026.01.07 | Àü¼¼ | ¹Ì¼Ò°¡17Â÷ | 2 | 36.87 | 24,300 | 0 | 2015 | | 2026.01.07 | ¿ù¼¼ | µå¸²Æç¸®½º | 5 | 15.02 | 5,000 | 24 | 2012 | | 2026.01.07 | ¿ù¼¼ | ¿¡ºñ´ººô(201-89) | 4 | 38.26 | 6,000 | 85 | 2015 | | 2026.01.07 | ¸Å¸Å | ÀÌȺô¶ó(279-60) | 1 | 66.93 | 70,000 | | 2001 | | 2026.01.07 | ¸Å¸Å | Èѹ̸®ºô¶ó | 2 | 75.48 | 56,000 | | 2001 | | 2026.01.06 | Àü¼¼ | ´Ù¿ø¾¾¾Ø¾ÆÀÌ | 3 | 29.9 | 22,500 | 0 | 2018 | | 2026.01.06 | ¸Å¸Å | ¹Ì¼Ò°¡Aµ¿(244-166) | 2 | 52.1 | 74,000 | | 2017 | | 2026.01.06 | ¸Å¸Å | ÀÌ¿¡½ºÇÏÀÓ4Â÷ | 4 | 23.59 | 35,900 | | 2017 | | 2026.01.05 | ¿ù¼¼ | Á¦ÀÌÇ÷¯½º | 3 | 12.395 | 1,000 | 52 | 2013 | | 2026.01.05 | ¿ù¼¼ | Å¿µÁÖÅà | 5 | 42.83 | 20,500 | 13 | 2003 | | 2026.01.05 | ¿ù¼¼ | ¿øÃµºô(299-127) | 2 | 55.51 | 5,000 | 95 | 2012 | | 2026.01.05 | Àü¼¼ | »óµµÈú | 3 | 27.68 | 15,700 | 0 | 2017 | | 2026.01.05 | ¿ù¼¼ | ºêÀ̾÷ºôµù | 5 | 14.19 | 1,000 | 67 | 2017 | | 2026.01.05 | ¿ù¼¼ | ¿øÃµºô(299-127) | 5 | 65.35 | 5,000 | 93 | 2012 | | 2026.01.05 | ¿ù¼¼ | ¸®Ä¡ºô(299-168) | 1 | 24.3 | 11,000 | 13 | 2012 | | 2026.01.05 | ¿ù¼¼ | ¸®Ä¡ºô(299-168) | 1 | 24.3 | 11,000 | 13 | 2012 | | 2026.01.03 | Àü¼¼ | ´ëÈヲ¸£ºô(335-95) | 4 | 49.4 | 26,000 | 0 | 2012 | | 2026.01.03 | Àü¼¼ | ¼ººóºô¶ó | 2 | 55.73 | 21,000 | 0 | 2002 | | 2026.01.03 | Àü¼¼ | °³²ºô(243-4) | 4 | 34.1 | 30,400 | 0 | 2022 | | 2026.01.03 | ¿ù¼¼ | ´ëÈï¹Ì¼Ò°¡15Â÷(210-282) | 5 | 37.63 | 10 | 39 | 2015 | | 2026.01.03 | Àü¼¼ | Ä«¸®½ººô | 3 | 46.3 | 22,000 | 0 | 2013 | | 2026.01.03 | ¿ù¼¼ | ½ºÄ«ÀÌŸ¿î | 3 | 21.6 | 17,000 | 25 | 2017 | | 2026.01.03 | Àü¼¼ | ¹Ì¼Ò°¡25Â÷Aµ¿ | 4 | 47.68 | 34,500 | 0 | 2017 | | 2026.01.03 | ¿ù¼¼ | ȨÀη¹Áö´ø½º | 2 | 13.86 | 1,000 | 51 | 2013 | | 2026.01.03 | Àü¼¼ | (202-35) | -1 | 53.68 | 12,000 | 0 | 1993 | | 2026.01.03 | Àü¼¼ | Ä«¸®½ººô | 3 | 46.3 | 22,000 | 0 | 2013 | | 2026.01.03 | ¿ù¼¼ | ±×¸°½ÃƼ | 10 | 9 | 10,470 | 7 | 2018 | | 2026.01.03 | ¿ù¼¼ | »óµµ±îÄ¡ºô¶ó | 1 | 43.22 | 18,000 | 20 | 1994 | | 2026.01.03 | ¸Å¸Å | º£³×½ºÆ®¥± | 2 | 48.68 | 38,800 | | 2015 | | 2026.01.03 | ¸Å¸Å | »óµµÇÏÀÌÃ÷(´Ùµ¿) | 2 | 38.14 | 24,500 | | 1988 | | 2026.01.02 | ¿ù¼¼ | Á¦ÀÌ¾ÆÆ®ºô | 2 | 40.6 | 1,500 | 75 | 2012 | | 2026.01.02 | Àü¼¼ | Çѽꣳ׽ºÆ® | 3 | 35.04 | 26,700 | 0 | 2014 | | 2026.01.02 | ¿ù¼¼ | ±Ý¼º6Â÷°ñµçºô¸®Áö | 1 | 36.54 | 13,000 | 10 | 1994 | | 2026.01.02 | ¿ù¼¼ | ¼Á¤Èúž | 3 | 29.64 | 7,000 | 30 | 2017 | | 2026.01.02 | ¸Å¸Å | ½Åµ¿¾Æ | 4 | 63.54 | 58,000 | | 2002 | | 2026.01.02 | ¸Å¸Å | Çö´ëÇÏÀÌÃ÷106µ¿ | 1 | 53.25 | 31,000 | | 1991 | | 2026.01.02 | ¸Å¸Å | µ¿ÇÏÇÏÀÌÃ÷ºô¶ó | 2 | 39.42 | 31,000 | | 1991 | | 2026.01.02 | ¸Å¸Å | À¯¼ºÁÖÅÃ(279-203) | 2 | 58.8 | 73,000 | | 1997 | | 2026.01.02 | ¸Å¸Å | ´ëµ¿¸®¹öÆÄÅ©ºô | 1 | 31.72 | 28,700 | | 2017 | | 2025.12.31 | Àü¼¼ | ÇѺû¿¡ÄÚºô | 3 | 27.94 | 19,000 | 0 | 2014 | | 2025.12.31 | ¿ù¼¼ | ÁøÈïǪ¸£Áö¿À | 4 | 29.86 | 20,000 | 20 | 2013 | | 2025.12.31 | ¸Å¸Å | Á¾ÀξƳ׽ºÆ®(211-436) | 3 | 43.24 | 42,000 | | 2012 | | 2025.12.31 | ¸Å¸Å | ¹Ý¼®ÁÖÅÃ(299-142) | 2 | 72.6 | 49,300 | | 1995 | | 2025.12.31 | ¸Å¸Å | ¹Ì¼Ò°¡20Â÷ | 5 | 42.73 | 30,000 | | 2016 | | 2025.12.31 | ¿ù¼¼ | beginhouse | 3 | 27.945 | 13,850 | 20 | 2014 | | 2025.12.31 | ¸Å¸Å | ¿À¼ººô¶óÆ® | 1 | 55.59 | 69,000 | | 1996 | | 2025.12.31 | Àü¼¼ | ºÎ¼º·¡¹Ì¾È | 2 | 42.36 | 17,000 | 0 | 2003 | | 2025.12.31 | ¿ù¼¼ | Çö´ëÇÏÀÌÃ÷ºô¶ó(101µ¿) | -1 | 30.06 | 1,000 | 50 | 1990 | | 2025.12.31 | ¿ù¼¼ | Çѽꣳ׽ºÆ® | 3 | 34.52 | 13,000 | 55 | 2014 | | 2025.12.31 | ¸Å¸Å | Çö´ëºô¸®Áö(1µ¿) | 2 | 50.57 | 33,500 | | 1991 | | 2025.12.30 | ¸Å¸Å | ¹Ì¼Ò°¡8Â÷ | 5 | 26.92 | 21,000 | | 2013 | | 2025.12.30 | ¸Å¸Å | »óµµ·¹À̳ª | 2 | 24.82 | 42,000 | | 2022 | | 2025.12.30 | ¿ù¼¼ | 492-8 | 4 | 14.02 | 1,000 | 52 | 2013 | | 2025.12.30 | ¿ù¼¼ | ¸®Ä¡ºô(299-168) | 3 | 23.77 | 5,000 | 50 | 2012 | | 2025.12.30 | ¿ù¼¼ | ÄÉÀ̵ð¾ÆÀ̺ôAµ¿ | 3 | 58.58 | 10,000 | 70 | 2003 | | 2025.12.30 | ¿ù¼¼ | ¸®Ä¡ºô(299-168) | 2 | 23.77 | 14,900 | 10 | 2012 | | 2025.12.30 | ¿ù¼¼ | »óµµµ¿ÇູÁÖÅà | 3 | 20.01 | 3,998 | 15 | 2020 | | 2025.12.30 | ¿ù¼¼ | ¸íâºôµù | 5 | 16.14 | 10,000 | 20 | 2012 | | 2025.12.30 | ¿ù¼¼ | »óµµ±×¸°ºô¶ó(134-205) | 3 | 54.69 | 500 | 100 | 2003 | | 2025.12.30 | ¿ù¼¼ | Àå½Â½ÃƼºô | 1 | 80.52 | 29,700 | 25 | 2001 | | 2025.12.29 | ¸Å¸Å | ¿ìÁ¤ºô¶óÆ®(244-163) | 2 | 60.53 | 71,000 | | 2002 | | 2025.12.29 | ¸Å¸Å | ÁøÁÖ¸®Ã÷ºô | 4 | 41.5 | 35,000 | | 2013 | | 2025.12.29 | ¸Å¸Å | ´ëÈï¹Ì¼Ò°¡(210-108) | 5 | 42.36 | 39,000 | | 2014 | | 2025.12.29 | ¿ù¼¼ | ¿ìÁ¤¾ÆÆ®ºô | 4 | 42.8 | 16,000 | 20 | 2002 | | 2025.12.29 | ¿ù¼¼ | Ǫ¿ò | 2 | 23.93 | 10,000 | 20 | 2014 | | 2025.12.29 | ¸Å¸Å | µÎ¼ºÈÀÌÆ®ºô | 2 | 58.97 | 44,000 | | 2010 | | 2025.12.29 | Àü¼¼ | ¿ì¸®ºô¶ó | -1 | 55.23 | 13,000 | 0 | 1991 | | 2025.12.29 | Àü¼¼ | Ä«·»½Ã¾ÆBµ¿ | 2 | 26.75 | 28,400 | 0 | 2022 | | 2025.12.29 | ¿ù¼¼ | ¿ìÁ¤¾ÆÆ®ºô | 4 | 42.8 | 16,000 | 20 | 2002 | | 2025.12.29 | ¿ù¼¼ | »óÀϺô¶ó | 3 | 41.99 | 12,000 | 15 | 2001 | | 2025.12.29 | ¿ù¼¼ | ¿¹¼ºô¶ó | -1 | 33.93 | 11,700 | 10 | 1992 | | 2025.12.29 | Àü¼¼ | Ä«·»½Ã¾ÆBµ¿ | 2 | 26.75 | 28,400 | 0 | 2022 | | 2025.12.29 | ¿ù¼¼ | ¸®Ä¡Ä³½½ | 4 | 42.59 | 2,000 | 100 | 2013 | | 2025.12.29 | Àü¼¼ | ¿¹¼ºÈÞij½½³ªµ¿ | 5 | 39.77 | 19,890 | 0 | 2014 | | 2025.12.29 | ¿ù¼¼ | ¿ìÁÖ | 4 | 13.54 | 600 | 30 | 2012 | | 2025.12.28 | Àü¼¼ | Ǫ¸¥ÁÖÅÃ¥± | 2 | 28.34 | 24,000 | 0 | 2021 | | 2025.12.28 | Àü¼¼ | ¸®¿òÆç¸®Ã¼ | 2 | 57.782 | 40,000 | 0 | 2021 | | 2025.12.28 | ¿ù¼¼ | ¼º¿ì(474-13) | 5 | 18.63 | 3,400 | 38 | 2016 | | 2025.12.27 | ¸Å¸Å | ¿ÍÀÌ¿¥½ÃƼ | 2 | 37.33 | 46,000 | | 2022 | | 2025.12.27 | ¸Å¸Å | ÈÞ¸Õºô·¹ | 4 | 44.29 | 45,000 | | 2013 | | 2025.12.27 | Àü¼¼ | ·º½ººô3Â÷ | 3 | 37.58 | 21,000 | 0 | 2016 | | 2025.12.27 | ¿ù¼¼ | µ¿ÁøÇϿ콺 | 2 | 27.08 | 1,000 | 95 | 2015 | | 2025.12.27 | Àü¼¼ | ¸ÞÆ®·Îºô(279-149) | 5 | 66.87 | 26,000 | 0 | 2003 | | 2025.12.27 | Àü¼¼ | ¸¶Å©ÇϿ콺 | 5 | 47.32 | 34,500 | 0 | 2016 | | 2025.12.27 | ¿ù¼¼ | (361-139) | 3 | 48.55 | 1,000 | 50 | 2003 | | 2025.12.27 | ¿ù¼¼ | »óµµÈú | 2 | 27.76 | 15,000 | 3 | 2017 | | 2025.12.27 | Àü¼¼ | ¹Ì¼Ò°¡Bµ¿(244-254) | 3 | 39.02 | 28,000 | 0 | 2018 | | 2025.12.27 | ¿ù¼¼ | °ñµåij½½ | 4 | 50.45 | 28,000 | 25 | 2013 | | 2025.12.27 | Àü¼¼ | ¸ÞÆ®·Îºô(279-149) | 5 | 66.87 | 26,000 | 0 | 2003 | | 2025.12.26 | ¿ù¼¼ | ´ë¿µºô¶ó(´Ùµ¿) | 3 | 39.99 | 5,000 | 80 | 1991 | | 2025.12.26 | ¿ù¼¼ | Feb-29 | 4 | 25.22 | 1,000 | 69 | 2016 | | 2025.12.26 | Àü¼¼ | »óµµÈѹи®(214-31) | 2 | 51.03 | 18,000 | 0 | 1993 | | 2025.12.26 | ¸Å¸Å | ´õ±×¸°3Â÷ | 2 | 33.22 | 34,500 | | 2013 | | 2025.12.26 | ¸Å¸Å | »óµµ´õÇÏÀÓ | 3 | 54.15 | 58,500 | | 2022 | | 2025.12.26 | ¸Å¸Å | Àå¾È°ñµåºô¶ó°¡µ¿ | 2 | 77.83 | 76,000 | | 1993 | | 2025.12.26 | ¿ù¼¼ | ´ëÈï¹Ì¼Ò°¡(214-221) | 4 | 37.22 | 3,000 | 100 | 2012 | | 2025.12.26 | ¿ù¼¼ | (495-2) | 4 | 14.5 | 1,000 | 55 | 1995 | | 2025.12.25 | ¿ù¼¼ | ½ºÄ«ÀÌŸ¿î | 4 | 15 | 3,000 | 75 | 2017 | | 2025.12.25 | ¿ù¼¼ | »óµµµ¿ÇູÁÖÅà | 2 | 20.01 | 3,998 | 15 | 2020 | | 2025.12.25 | ¸Å¸Å | ¼¾ÅÍÆ÷ÀÎÆ®»óµµ | 2 | 21.22 | 31,300 | | 2020 | | 2025.12.24 | ¿ù¼¼ | ±¸¸³¾à¼ö°æ·Î´çÇູÁÖÅú¹Çսü³ | 4 | 22.05 | 3,198 | 16 | 2020 | | 2025.12.24 | ¿ù¼¼ | ·º½ººô(214-197) | 3 | 38.49 | 20,000 | 10 | 2015 | | 2025.12.24 | Àü¼¼ | »óÁöÁÖÅà | 2 | 31.99 | 12,000 | 0 | 2009 | | 2025.12.24 | ¿ù¼¼ | ¸¶¸£¸¶ | 2 | 16.23 | 12,000 | 10 | 2012 | | 2025.12.24 | ¿ù¼¼ | µÕÁö | 2 | 24.58 | 2,000 | 100 | 2014 | | 2025.12.24 | Àü¼¼ | ¹Ì¼ºÇص帲(244-140) | 3 | 57.84 | 25,000 | 0 | 2013 | | 2025.12.24 | ¿ù¼¼ | ±¸¸³¾à¼ö°æ·Î´çÇູÁÖÅú¹Çսü³ | 4 | 22.05 | 3,998 | 15 | 2020 | | 2025.12.23 | ¿ù¼¼ | (279-474) | 3 | 55.92 | 1,000 | 80 | 1999 | | 2025.12.23 | Àü¼¼ | Àϱ¤¸®Ä¡ºô(256-196) | 1 | 49.67 | 35,000 | 0 | 2015 | | 2025.12.23 | ¿ù¼¼ | (242-77) | 3 | 17.2 | 1,000 | 42 | 2014 | | 2025.12.23 | Àü¼¼ | (361-109) | 3 | 32.94 | 21,000 | 0 | 2015 | | 2025.12.23 | ¿ù¼¼ | ¹Ì¼ºÇص帲(256-228) | 2 | 45.18 | 27,000 | 15 | 2016 | | 2025.12.23 | Àü¼¼ | ÆÛ½ºÆ®ºô(256-37) | 2 | 29.97 | 18,000 | 0 | 2014 | | 2025.12.23 | Àü¼¼ | ´ë¿ÕÁÖÅÃ8Â÷ | 3 | 41.34 | 16,000 | 0 | 2003 | | 2025.12.23 | Àü¼¼ | ¿¡¹öºô | 2 | 50.34 | 21,800 | 0 | 2010 | | 2025.12.23 | Àü¼¼ | Á¤¿ø½ÃƼºô | 4 | 77.41 | 28,300 | 0 | 1997 | | 2025.12.23 | ¿ù¼¼ | ¿¹±×¸° | 4 | 35.52 | 3,000 | 80 | 2017 | | 2025.12.23 | ¸Å¸Å | ·ç³ªÆ÷·¹30 | 5 | 49.88 | 58,000 | | 2022 | | 2025.12.22 | ¿ù¼¼ | µå¸²Æç¸®½º | 3 | 15 | 11,820 | 8 | 2012 | | 2025.12.22 | ¿ù¼¼ | »óµµÇÏÀÌÆÄÅ©ºô | 3 | 81.9 | 15,000 | 100 | 2002 | | 2025.12.22 | ¿ù¼¼ | ¹Ì¼Ò°¡(282-7) | 3 | 26.57 | 2,000 | 95 | 2022 | | 2025.12.22 | ¿ù¼¼ | ¼öÁ¤ºô | 2 | 29.89 | 3,000 | 93 | 2016 | | 2025.12.22 | Àü¼¼ | Çö»êǪ¸¥½£ºô¶ó(279-23) | 5 | 49.64 | 21,000 | 0 | 2007 | | 2025.12.22 | ¿ù¼¼ | ¹ÎÀÌÇÏÀÌÃ÷ºô | 3 | 19.2 | 1,000 | 65 | 2003 | | 2025.12.22 | ¸Å¸Å | żººô¶ó | -1 | 54.77 | 51,500 | | 1992 | | 2025.12.22 | ¸Å¸Å | Å·½º¿ÍÀ̵å(301-51) | 5 | 44.52 | 40,000 | | 2014 | | 2025.12.22 | ¸Å¸Å | ¸ð°ÇÇÏÀ̺ô(210-193) | 4 | 50.16 | 45,000 | | 2014 | | 2025.12.22 | ¸Å¸Å | ¿¹°¡½ºÀ§Æ® | 4 | 38.78 | 70,500 | | 2015 | | 2025.12.21 | ¸Å¸Å | ÁøÈïǪ¸£Áö¿À | 3 | 29.86 | 30,000 | | 2013 | | 2025.12.21 | ¿ù¼¼ | ±ÃÀü±×¸°ºô¶ó | 4 | 44.9 | 3,000 | 75 | 1996 | | 2025.12.20 | ¿ù¼¼ | ¹Ì¼Ò°¡(282-7) | 4 | 28.81 | 3,000 | 92 | 2022 | | 2025.12.20 | ¿ù¼¼ | (7-60) | 3 | 11.84 | 3,700 | 55 | 2020 | | 2025.12.20 | Àü¼¼ | ¼¿¬ºô | 4 | 29.75 | 23,940 | 0 | 2017 | | 2025.12.20 | ¿ù¼¼ | ¾Æ³×Æ®ºô | 3 | 59.07 | 30,000 | 10 | 2013 | | 2025.12.20 | Àü¼¼ | °È£ºô¸®Áö | 3 | 59.93 | 28,500 | 0 | 2017 | | 2025.12.20 | ¿ù¼¼ | ¹Ì¼Ò°¡(282-7) | 2 | 26.57 | 2,000 | 92 | 2022 | | 2025.12.20 | Àü¼¼ | ´ëµ¿±×¸°ºô | 2 | 45.07 | 25,000 | 0 | 2002 | | 2025.12.20 | ¿ù¼¼ | ¹Ì¼Ò°¡(282-7) | 2 | 29.81 | 3,000 | 100 | 2022 | | 2025.12.20 | ¿ù¼¼ | »ó·Ï¿ø·ë | 2 | 27.66 | 2,000 | 74 | 2001 | | 2025.12.20 | Àü¼¼ | ´Ù¿òºô | 4 | 29.4 | 23,000 | 0 | 2019 | | 2025.12.20 | ¿ù¼¼ | ÇØÇǵ¥ÀÌ | 2 | 12.18 | 5,000 | 20 | 2012 | | 2025.12.20 | ¿ù¼¼ | (366-9) | 2 | 29.34 | 5,000 | 60 | 2019 | | 2025.12.20 | ¿ù¼¼ | 474-14 | 2 | 29.8 | 3,000 | 81 | 2015 | | 2025.12.20 | ¸Å¸Å | ¹Ì¼ºÇص帲(210-206) | 1 | 58.28 | 56,500 | | 2022 | | 2025.12.20 | ¸Å¸Å | È¿¼ººô¶ó(Aµ¿)(159-36) | -1 | 54 | 10,200 | | 1986 | | 2025.12.20 | ¿ù¼¼ | ¸®Ä¡ºô(299-168) | 2 | 20.54 | 10,000 | 25 | 2012 | | 2025.12.20 | ¸Å¸Å | ¼º¹®ºô¶ó | 1 | 39.37 | 23,000 | | 1991 | | 2025.12.20 | Àü¼¼ | ´ëÈï¹Ì¼Ò°¡19Â÷ | 2 | 35.74 | 25,200 | 0 | 2016 | | 2025.12.19 | ¸Å¸Å | ¹Ì¼Ò°¡25Â÷Aµ¿ | 5 | 47.68 | 74,800 | | 2017 | | 2025.12.19 | Àü¼¼ | ¸ñȺô | 2 | 55.82 | 12,000 | 0 | 2017 | | 2025.12.19 | ¸Å¸Å | (259-21) | 1 | 39.88 | 59,500 | | 1986 | | 2025.12.19 | ¸Å¸Å | Á¦´Ï½ººô(335-33) | 1 | 59.98 | 47,000 | | 2009 | | 2025.12.18 | Àü¼¼ | ¹Ì¼Ò°¡(279-217) | 4 | 37.63 | 19,400 | 0 | 2011 | | 2025.12.18 | ¿ù¼¼ | °³²ºô(279-535) | 2 | 37.19 | 28,400 | 8 | 2018 | | 2025.12.18 | ¿ù¼¼ | µ¿¾ç½º¸¶Æ®ºô | 6 | 14.248 | 500 | 58 | 2012 | | 2025.12.18 | ¸Å¸Å | ÇѰ´º½ºÅ¸2µ¿(236-34) | 4 | 50.94 | 79,700 | | 2016 | | 2025.12.18 | ¸Å¸Å | Ǫ¸¥ÁÖÅà | 5 | 29.35 | 30,000 | | 2020 | | 2025.12.18 | ¸Å¸Å | µ¿¹æºô¶ó(302-21) | -1 | 62.51 | 29,800 | | 1997 | | 2025.12.18 | ¿ù¼¼ | ´Ù¼Ø±×¶ûºô(210-47) | 3 | 34.42 | 22,000 | 5 | 2016 | | 2025.12.18 | ¿ù¼¼ | ¸ð¾Æºô | 2 | 53.04 | 10,500 | 54 | 2003 | | 2025.12.17 | ¸Å¸Å | Áß¾Ó½¦¸£ºô(302-44) | 3 | 80.71 | 43,000 | | 2003 | | 2025.12.17 | ¸Å¸Å | °Ç¿µ(211-135) | 2 | 29.89 | 25,700 | | 2014 | | 2025.12.17 | ¸Å¸Å | Çö´ëÇÏÀÌÃ÷103µ¿ | -1 | 67.6 | 26,500 | | 1991 | | 2025.12.17 | Àü¼¼ | ºÎ¼º·¡¹Ì¾È | 1 | 42.36 | 15,500 | 0 | 2003 | | 2025.12.17 | ¿ù¼¼ | ±âÈï¸Ç¼Ç | 1 | 25.72 | 2,000 | 200 | 2018 | | 2025.12.17 | Àü¼¼ | ¸í¼ºÇϿ콺 | 5 | 29.61 | 27,300 | 0 | 2017 | | 2025.12.17 | Àü¼¼ | Ƽ¿¡½ºÆÓ¸®½º | 3 | 39.09 | 25,000 | 0 | 2013 | | 2025.12.17 | ¿ù¼¼ | ´ëÈï¹Ì¼Ò°¡24Â÷ | 2 | 29.98 | 22,000 | 30 | 2017 | | 2025.12.17 | Àü¼¼ | ¸í¼ºÇϿ콺 | 5 | 29.61 | 27,300 | 0 | 2017 | | 2025.12.17 | ¿ù¼¼ | ½ºÄ«ÀÌŸ¿î | 3 | 25.23 | 16,000 | 40 | 2017 | | 2025.12.17 | ¸Å¸Å | À¯ÁøÇÏÀÌÃ÷ºô¶ó | 2 | 44.31 | 33,500 | | 1991 | | 2025.12.16 | ¸Å¸Å | żººô¶ó | -1 | 56.81 | 60,000 | | 1992 | | 2025.12.16 | ¿ù¼¼ | ¿¹Àººô¶ó | 4 | 55.74 | 8,000 | 80 | 2004 | | 2025.12.16 | Àü¼¼ | ÀºÇýºô | 2 | 50.45 | 21,000 | 0 | 2011 | | 2025.12.16 | ¿ù¼¼ | ¼¼ÇѺô¸®Áö(265-2) | 1 | 49.98 | 5,000 | 70 | 2003 | | 2025.12.15 | ¿ù¼¼ | (22-108) | 5 | 38.65 | 1,000 | 63 | 2019 | | 2025.12.15 | Àü¼¼ | µÎ¿µºô | 4 | 35.7 | 17,300 | 0 | 2008 | | 2025.12.15 | ¿ù¼¼ | ¸®Ä¡ºô(299-168) | 3 | 20.54 | 10,000 | 28 | 2012 | | 2025.12.15 | ¸Å¸Å | (361-63) | 1 | 20.68 | 20,500 | | 2004 | | 2025.12.15 | ¸Å¸Å | ¿ìÇöij½½(210-266) | 4 | 38.96 | 45,000 | | 2014 | | 2025.12.15 | ¿ù¼¼ | ¸®Ä¡ºô(299-168) | 3 | 20.54 | 10,000 | 28 | 2012 | | 2025.12.15 | Àü¼¼ | ÇѰº£½ºÆ®ºô(56-40) | 2 | 35.38 | 22,000 | 0 | 2010 | | 2025.12.14 | ¿ù¼¼ | µ¿¿øºô¶ó(157-22) | 1 | 40.11 | 5,000 | 60 | 2002 | | 2025.12.14 | Àü¼¼ | ÀºÇàºô¶óBµ¿ | 2 | 41.36 | 18,000 | 0 | 1986 | | 2025.12.14 | ¿ù¼¼ | ¼Á¤Èúž | 4 | 26 | 3,000 | 60 | 2017 | | 2025.12.14 | ¿ù¼¼ | ´ë¼ºÇÏÀÌÃ÷ºô¶ó | -1 | 48.42 | 6,000 | 8 | 1994 | | 2025.12.14 | ¸Å¸Å | ¶óÀÌÇÁÇϿ콺(279-414) | 4 | 64.59 | 43,000 | | 2012 | | 2025.12.14 | ¸Å¸Å | ¾Æ³×½ºÆ®Aµ¿(256-289) | 5 | 53.36 | 42,000 | | 2016 | | 2025.12.13 | Àü¼¼ | Á¤¿ø½ÃƼºô | 4 | 77.41 | 28,300 | 0 | 1997 | | 2025.12.13 | Àü¼¼ | ¸í¼ºÇϿ콺 | 3 | 29.61 | 27,700 | 0 | 2017 | | 2025.12.13 | Àü¼¼ | ¼Û¿ùÇÏÀÌÃ÷Bµ¿ | 4 | 42.81 | 13,000 | 0 | 1996 | | 2025.12.13 | ¿ù¼¼ | ±¸»ïºô¶ó(223-10) | 3 | 49.47 | 16,000 | 35 | 1993 | | 2025.12.13 | ¿ù¼¼ | ±¸»ïºô¶ó(223-10) | 3 | 49.47 | 16,000 | 35 | 1993 | | 2025.12.13 | Àü¼¼ | (361-109) | 3 | 35.31 | 23,000 | 0 | 2015 | | 2025.12.13 | Àü¼¼ | ¿ì¼ººô¶óÆ®(212-105) | 3 | 56.7 | 20,000 | 0 | 1993 | | 2025.12.13 | ¿ù¼¼ | (485-11) | 4 | 56.13 | 10,000 | 57 | 2011 | | 2025.12.13 | Àü¼¼ | ½¦¾îÇϿ콺 | 1 | 12.96 | 7,500 | 0 | 2012 | | 2025.12.13 | ¸Å¸Å | ¶ó¿ÂÈú½º | 1 | 27.71 | 38,700 | | 2022 | | 2025.12.13 | ¸Å¸Å | ´ëÈï¹Ì¼Ò°¡29Â÷(Bµ¿) | 3 | 29.49 | 35,000 | | 2020 | | 2025.12.13 | ¸Å¸Å | ¸ð°ÇÇÏÀ̺ô(210-193) | 2 | 50.16 | 43,700 | | 2014 | | 2025.12.13 | ¸Å¸Å | ´Ùä°¡ | 1 | 59.98 | 80,000 | | 2022 | | 2025.12.13 | ¿ù¼¼ | (495-2) | 4 | 18.12 | 1,000 | 55 | 1995 | | 2025.12.12 | ¸Å¸Å | »óµµµ¿µÎ¾çºô¶ó | 4 | 145.44 | 54,700 | | 1994 | | 2025.12.12 | ¿ù¼¼ | ¸ð´øÈúŸ¿î4Â÷ | 4 | 52.91 | 10,000 | 95 | 2015 | | 2025.12.12 | ¿ù¼¼ | Á¦ÀÌ¿ø | 3 | 13.47 | 3,000 | 49 | 2012 | | 2025.12.12 | ¸Å¸Å | ±×¸°ºô¶ó(159-29) | 2 | 50.07 | 29,500 | | 1995 | | 2025.12.12 | Àü¼¼ | Çö´ëºô¶ó(256-189) | 4 | 69.02 | 19,000 | 0 | 1999 | | 2025.12.12 | Àü¼¼ | ´ë¿ÕÁÖÅÃ(214-421) | 3 | 47.82 | 16,000 | 0 | 2001 | | 2025.12.12 | ¿ù¼¼ | ±¸¸³¾à¼ö°æ·Î´çÇູÁÖÅú¹Çսü³ | 2 | 22.05 | 3,998 | 14 | 2020 | | 2025.12.12 | ¿ù¼¼ | ±¸¸³¾à¼ö°æ·Î´çÇູÁÖÅú¹Çսü³ | 5 | 21.93 | 4,777 | 12 | 2020 | | 2025.12.11 | ¿ù¼¼ | µ¿µµºô¶ó | 3 | 60.94 | 20,000 | 60 | 1986 | | 2025.12.11 | ¸Å¸Å | ¿ÍÀÌ¿¥½ÃƼ | 2 | 36.03 | 47,000 | | 2022 | | 2025.12.11 | ¸Å¸Å | ¿ìâºô¶ó | -1 | 46.81 | 41,700 | | 1991 | | 2025.12.11 | ¸Å¸Å | ¶ó¿ÂÆ÷·¹ | 3 | 48.95 | 66,000 | | 2023 | | 2025.12.11 | ¿ù¼¼ | Ǫ¿ò | 2 | 29.36 | 10,000 | 32 | 2014 | | 2025.12.11 | ¿ù¼¼ | Ǫ¿ò | 3 | 23.93 | 10,000 | 20 | 2014 | | 2025.12.11 | ¿ù¼¼ | ¼Ò´ã1 | 3 | 17.49 | 3,000 | 70 | 2017 | | 2025.12.10 | ¿ù¼¼ | Ç®ÇϿ콺3Â÷(283-150) | 4 | 72.24 | 3,000 | 70 | 2025 | | 2025.12.10 | ¿ù¼¼ | ±×¸°È¨ | 2 | 39.09 | 19,800 | 5 | 2012 | | 2025.12.10 | ¿ù¼¼ | Ǫ¸¥½£ÇϿ콺 | 4 | 27.34 | 17,900 | 22 | 2015 | | 2025.12.10 | ¿ù¼¼ | Á¤°æ¿¬¸³(244-125) | 2 | 55.47 | 500 | 60 | 1982 | | 2025.12.10 | ¿ù¼¼ | ±¤Ã¤ºô¶ó | 3 | 29.66 | 2,826 | 29 | 2024 | | 2025.12.10 | ¸Å¸Å | ±¤¿ìºô¶ó | 1 | 49.31 | 48,700 | | 1991 | | 2025.12.10 | Àü¼¼ | ¿øÇü½¦¸£ºô(°¡µ¿) | 3 | 61.42 | 23,000 | 0 | 2002 | | 2025.12.09 | ¿ù¼¼ | ž¿ø·ë | 7 | 14.72 | 1,000 | 70 | 2013 | | 2025.12.09 | ¿ù¼¼ | ±¸¸³¾à¼ö°æ·Î´çÇູÁÖÅú¹Çսü³ | 3 | 22.05 | 4,514 | 12 | 2020 | | 2025.12.09 | Àü¼¼ | ¿øÇü½¦¸£ºô(°¡µ¿) | 3 | 61.42 | 23,000 | 0 | 2002 | | 2025.12.09 | Àü¼¼ | Àå¾È°ñµåºô¶ó°¡µ¿ | 1 | 77.83 | 27,000 | 0 | 1993 | | 2025.12.09 | ¿ù¼¼ | ž¿ø·ë | 7 | 14.72 | 1,000 | 65 | 2013 | | 2025.12.09 | ¿ù¼¼ | ÃÊ¿øÇÏÀÌÃ÷ºô¶ó | 1 | 40.08 | 1,000 | 65 | 1991 | | 2025.12.09 | ¿ù¼¼ | ¸ÞÀÌÀúºô | 3 | 54.69 | 16,000 | 80 | 2002 | | 2025.12.09 | ¿ù¼¼ | »óµµµ¿ÇູÁÖÅà | 3 | 20.01 | 4,538 | 11 | 2020 | | 2025.12.09 | ¸Å¸Å | °ñµåij½½(210-132) | 3 | 22.12 | 23,000 | | 2013 | | 2025.12.09 | ¸Å¸Å | ´Ù¼Ø±×¶ûºô | 1 | 29.9 | 41,500 | | 2020 | | 2025.12.08 | Àü¼¼ | ¿ìÇöij½½(210-266) | 4 | 38.96 | 25,000 | 0 | 2014 | | 2025.12.08 | ¿ù¼¼ | ±¤Ã¤ºô¶ó | 5 | 39.21 | 6,778 | 9 | 2024 | | 2025.12.08 | ¿ù¼¼ | µî¾ÈÁ¤(335-149) | 2 | 12.02 | 2,000 | 54 | 2011 | | 2025.12.08 | ¿ù¼¼ | ±¤Ã¤ºô¶ó | 2 | 29.66 | 3,028 | 18 | 2024 | | 2025.12.08 | ¿ù¼¼ | ±¤Ã¤ºô¶ó | 4 | 27.5 | 4,828 | 7 | 2024 | | 2025.12.08 | Àü¼¼ | ÇѰ´º½ºÅ¸ | 4 | 32.45 | 24,000 | 0 | 2013 | | 2025.12.08 | ¸Å¸Å | »óµµÅ¸¿î2Â÷ | 4 | 76.44 | 49,000 | | 2003 | | 2025.12.08 | ¸Å¸Å | ´ë¿ÕÁÖÅÃ(210-285) | 4 | 50.43 | 39,000 | | 2014 | | 2025.12.08 | ¿ù¼¼ | ±¤Ã¤ºô¶ó | 5 | 32.03 | 1,234 | 36 | 2024 | | 2025.12.08 | ¿ù¼¼ | ±¤Ã¤ºô¶ó | 2 | 36.46 | 1,389 | 40 | 2024 | | 2025.12.08 | ¿ù¼¼ | ´ÙºóÄ¡(256-9) | 2 | 10.94 | 1,000 | 60 | 2018 | | 2025.12.08 | ¿ù¼¼ | ±¤Ã¤ºô¶ó | 5 | 32.03 | 3,087 | 32 | 2024 | | 2025.12.08 | ¿ù¼¼ | ±¤Ã¤ºô¶ó | 2 | 31.14 | 100 | 37 | 2024 | | 2025.12.08 | ¿ù¼¼ | ±¤Ã¤ºô¶ó | 4 | 27.5 | 100 | 33 | 2024 | | 2025.12.08 | ¿ù¼¼ | ±¤Ã¤ºô¶ó | 2 | 36.46 | 3,474 | 36 | 2024 | | 2025.12.08 | ¿ù¼¼ | ±¤Ã¤ºô¶ó | 5 | 39.21 | 100 | 47 | 2024 | | 2025.12.08 | ¿ù¼¼ | ±¤Ã¤ºô¶ó | 2 | 29.66 | 100 | 34 | 2024 | | 2025.12.08 | ¿ù¼¼ | ¿ÍÀÌ¿¥½ÃƼ | 3 | 29.99 | 22,000 | 15 | 2022 | | 2025.12.08 | Àü¼¼ | ¿ìÀÏÁÖÅà | -1 | 40.32 | 9,000 | 0 | 1989 | | 2025.12.08 | Àü¼¼ | ³²¿µ¾ÆÆ®ºô | 2 | 51.51 | 20,000 | 0 | 2003 | | 2025.12.07 | ¿ù¼¼ | Ǫ¸¥ÁÖÅÃ¥± | 5 | 25.88 | 2,000 | 85 | 2021 | | 2025.12.07 | ¸Å¸Å | ½¦¾îÇϿ콺 | 4 | 74.11 | 54,000 | | 2012 | | 2025.12.06 | Àü¼¼ | ³²¿µ¾ÆÆ®ºô | 3 | 63.33 | 26,000 | 0 | 2003 | | 2025.12.06 | ¿ù¼¼ | 154-7 | 2 | 16.17 | 4,000 | 35 | 2014 | | 2025.12.06 | ¿ù¼¼ | ÀºÅ¹ºô | 4 | 47.26 | 23,300 | 25 | 2011 | | 2025.12.06 | ¿ù¼¼ | ½Å¼ºÇÏÀÌÃ÷3Â÷ | 2 | 75.66 | 7,000 | 200 | 2001 | | 2025.12.06 | ¸Å¸Å | »óµµ¼¼ÀÎÆ®ºôEµ¿(214-150¿Ü) | 5 | 36.93 | 43,500 | | 2015 | | 2025.12.06 | ¿ù¼¼ | µå¸²Æç¸®½º | 6 | 20.37 | 15,000 | 3 | 2012 | | 2025.12.06 | ¸Å¸Å | º¦¿¤ | 2 | 69.68 | 30,500 | | 1997 | | 2025.12.06 | ¿ù¼¼ | ¼Á¤Ä³½½ | 4 | 20.7 | 3,000 | 60 | 2016 | | 2025.12.05 | Àü¼¼ | ¹Ì¼Ò°¡(279-169) | 3 | 28.5 | 24,600 | 0 | 2019 | | 2025.12.05 | Àü¼¼ | ¹Ì¼Ò°¡(279-169) | 3 | 28.5 | 24,600 | 0 | 2019 | | 2025.12.05 | ¿ù¼¼ | ¹«Áö°³ºô¶ó | 1 | 35.98 | 5,000 | 70 | 1992 | | 2025.12.05 | ¿ù¼¼ | ÀÌÆíÇѺô | 3 | 12.84 | 1,000 | 45 | 2013 | | 2025.12.05 | Àü¼¼ | ÀºÇàºô¶óBµ¿ | 2 | 41.36 | 18,000 | 0 | 1986 | | 2025.12.05 | ¿ù¼¼ | ±ÝȺô | 2 | 17.64 | 500 | 55 | 2012 | | 2025.12.05 | Àü¼¼ | ³²¿µ¾ÆÆ®ºô | 1 | 51.04 | 18,900 | 0 | 2003 | | 2025.12.05 | ¿ù¼¼ | ¸®Æ²Æ÷·¹½ºÆ® | 3 | 29.25 | 5,000 | 122 | 2023 | | 2025.12.05 | Àü¼¼ | ³ëºí·¹½º | 3 | 29.7 | 24,000 | 0 | 2018 | | 2025.12.05 | ¿ù¼¼ | ½Â½Åºô¶ó | -1 | 48.96 | 10,500 | 10 | 1990 | | 2025.12.05 | Àü¼¼ | ´õÇϿ콺ºô | 5 | 29.57 | 14,000 | 0 | 2011 | | 2025.12.05 | ¿ù¼¼ | ³²¿µ¾ÆÆ®ºô | 3 | 51.51 | 15,000 | 25 | 2003 | | 2025.12.05 | Àü¼¼ | ´õÆ÷·¹½ºÆ®2Â÷ | 2 | 41.5 | 23,000 | 0 | 2016 | | 2025.12.05 | Àü¼¼ | ¿À¼ººô¶óÆ® | 3 | 48.87 | 20,000 | 0 | 1996 | | 2025.12.05 | ¿ù¼¼ | ¼Ò´ã1 | 2 | 13.8 | 1,000 | 65 | 2017 | | 2025.12.04 | Àü¼¼ | ¿µ»ê¾ÆÆ®ºô¶ó | 1 | 47.61 | 24,980 | 0 | 1992 | | 2025.12.04 | ¸Å¸Å | ´Ùä°¡ | 4 | 23.27 | 50,000 | | 2022 | | 2025.12.04 | Àü¼¼ | ±¤¿ìºô¶ó | 1 | 49.31 | 13,400 | 0 | 1991 | | 2025.12.04 | ¸Å¸Å | Çö´ëÇÏÀÌÃ÷ºô¶ó(361-22) | -1 | 63.72 | 40,000 | | 1995 | | 2025.12.03 | Àü¼¼ | ³«¿ø±×¸°ºô¶ó | 3 | 64.89 | 25,000 | 0 | 1997 | | 2025.12.03 | Àü¼¼ | ¿¹±×¸° | 3 | 39.26 | 23,000 | 0 | 2017 | | 2025.12.03 | ¸Å¸Å | (202-35) | -1 | 53.68 | 26,000 | | 1993 | | 2025.12.03 | ¸Å¸Å | »óµµµ¿±Ù.»ý¹×´Ù¼¼´ëÁÖÅà | 2 | 79.59 | 48,700 | | 2002 | | 2025.12.03 | Àü¼¼ | ÇѰ´º½ºÅ¸(299-21) | 3 | 38.12 | 30,000 | 0 | 2015 | | 2025.12.03 | ¸Å¸Å | Ä«·»½Ã¾ÆBµ¿ | 2 | 26.75 | 68,500 | | 2022 | | 2025.12.02 | ¿ù¼¼ | ´ë¿ø | -1 | 37.2 | 8,500 | 20 | 2001 | | 2025.12.02 | Àü¼¼ | Ä«·»½Ã¾ÆBµ¿ | 3 | 29.83 | 29,000 | 0 | 2022 | | 2025.12.02 | ¿ù¼¼ | µ¿¹æºô¶ó(7-96) | 2 | 73.59 | 25,800 | 18 | 1989 | | 2025.12.02 | ¿ù¼¼ | (335-9) | 1 | 48.67 | 17,000 | 25 | 2003 | | 2025.12.02 | Àü¼¼ | ¿öµå¶÷ | 3 | 43.42 | 21,000 | 0 | 1991 | | 2025.12.02 | ¿ù¼¼ | Á¦ÀÌÇ÷¯½º | 4 | 12.395 | 12,000 | 10 | 2013 | | 2025.12.02 | ¸Å¸Å | µ¿±¤ºô¶ó(242-104) | 1 | 40.7 | 49,000 | | 1986 | | 2025.12.02 | ¿ù¼¼ | ºêÀ̾÷ºôµù | 4 | 22.68 | 1,000 | 70 | 2017 | | 2025.12.02 | ¸Å¸Å | ½Å´ë¿ÕÁÖÅà | 3 | 49.63 | 60,000 | | 2015 | | 2025.12.01 | ¸Å¸Å | »ï¼ºÆÓ¸®½º | 2 | 28.985 | 33,500 | | 2020 | | 2025.12.01 | ¿ù¼¼ | µ¿¿øºô¶ó(157-22) | 2 | 45.15 | 22,026 | 10 | 2002 | | 2025.12.01 | Àü¼¼ | »óµµ¸®Ä¡ºô | 4 | 74.23 | 32,000 | 0 | 2005 | | 2025.12.01 | Àü¼¼ | µå¸²Ä³½½(33-6) | 4 | 28.66 | 27,000 | 0 | 2016 | | 2025.12.01 | ¿ù¼¼ | Çö´ëÈúŸ¿î | 5 | 30.69 | 5,000 | 80 | 2013 | | 2025.12.01 | Àü¼¼ | ÀÌ·¹¾ÆÆ®ºô9Â÷(314-32) | 4 | 46.4 | 40,200 | 0 | 2014 | | 2025.12.01 | ¸Å¸Å | ³»°íÇâºô¶ó(290-53) | 1 | 79.75 | 44,000 | | 1997 | | 2025.11.30 | ¸Å¸Å | ´Ù¼Ø±×¶ûºô(299-153) | 1 | 29.88 | 40,500 | | 2019 | | 2025.11.30 | ¿ù¼¼ | ¸¶¸£¸¶ | 5 | 14.16 | 3,000 | 60 | 2012 | | 2025.11.29 | ¸Å¸Å | ÇýÀκô | 1 | 45.73 | 30,000 | | 2008 | | 2025.11.29 | ¿ù¼¼ | »óµµ·¹À̳ª | 3 | 29.73 | 26,800 | 30 | 2022 | | 2025.11.29 | Àü¼¼ | °³²ºô(210-292) | 2 | 46.22 | 31,100 | 0 | 2017 | | 2025.11.29 | ¿ù¼¼ | »óµµÆÛ½ºÆ®ºô | 2 | 35.89 | 22,000 | 20 | 2014 | | 2025.11.29 | ¿ù¼¼ | »óµµÆÛ½ºÆ®ºô | 2 | 35.89 | 22,000 | 20 | 2014 | | 2025.11.29 | ¿ù¼¼ | ±×¸°½ÃƼ | 7 | 14.85 | 16,800 | 15 | 2018 | | 2025.11.29 | Àü¼¼ | ºÎ±¤È¨Å¸¿î | 2 | 39.6 | 21,500 | 0 | 2006 | | 2025.11.29 | ¸Å¸Å | »óµµ¸®Ä¡ºô | 4 | 74.23 | 81,000 | | 2005 | | 2025.11.29 | ¸Å¸Å | ¿ì¸®ºô¶ó | -1 | 55.23 | 46,000 | | 1991 | | 2025.11.29 | Àü¼¼ | ¿ì¸®ºô¶ó | -1 | 55.23 | 13,000 | 0 | 1991 | | 2025.11.29 | ¿ù¼¼ | ÁÖ¿øºô¸®Áö(266-11) | 2 | 40.44 | 12,000 | 40 | 1995 | | 2025.11.29 | ¸Å¸Å | ÃÊ¿ø¾ÆÆ®ºô¶ó(279-104) | -1 | 57.39 | 47,800 | | 1993 | | 2025.11.28 | Àü¼¼ | ÀνººôBµ¿ | 2 | 43.82 | 30,000 | 0 | 2016 | | 2025.11.28 | ¸Å¸Å | ŰÇÇÏÀÌÃ÷ºô¶ó(159-278) | 1 | 69.81 | 85,650 | | 1986 | | 2025.11.28 | ¸Å¸Å | TSÆÓ¸®½º2Â÷ | 4 | 51.93 | 51,000 | | 2016 | | 2025.11.28 | ¸Å¸Å | ¿¹±×¸° | 4 | 35.52 | 32,500 | | 2017 | | 2025.11.28 | ¿ù¼¼ | SUNHOUSE(303-0) | 2 | 13.61 | 11,000 | 10 | 2013 | | 2025.11.28 | Àü¼¼ | ½Å¿øºô¶ó(212-51) | 1 | 65.97 | 29,000 | 0 | 2000 | | 2025.11.28 | Àü¼¼ | (274-66) | 2 | 65.07 | 20,000 | 0 | 1986 | | 2025.11.28 | Àü¼¼ | ÀνººôBµ¿ | 2 | 43.82 | 30,000 | 0 | 2016 | | 2025.11.28 | Àü¼¼ | µå¸²Ä³½½(33-6) | 2 | 59.48 | 36,000 | 0 | 2016 | | 2025.11.27 | ¸Å¸Å | (361-109) | 3 | 32.94 | 27,000 | | 2015 | | 2025.11.27 | Àü¼¼ | ÀÌȺô¸®Áî | 4 | 68.46 | 20,000 | 0 | 2001 | | 2025.11.27 | Àü¼¼ | ¼Ò»ì¸®Åä»óµµ | 2 | 55.03 | 32,000 | 0 | 2020 | | 2025.11.27 | Àü¼¼ | (283-106) | 2 | 29.97 | 20,000 | 0 | 2023 | | 2025.11.26 | ¿ù¼¼ | ¸®Ä¡ºô(299-168) | 4 | 20.32 | 9,000 | 34 | 2012 | | 2025.11.26 | ¸Å¸Å | ´Ùä°¡ | 2 | 59.98 | 80,000 | | 2022 | | 2025.11.26 | ¸Å¸Å | ¾ÆÄ§ÇÞ»ì2Â÷ | 4 | 57.61 | 51,000 | | 2015 | | 2025.11.25 | Àü¼¼ | ÇѰ´º½ºÅ¸(299-21) | 3 | 38.12 | 30,000 | 0 | 2015 | | 2025.11.25 | ¸Å¸Å | ½¦¾îÇϿ콺 | 2 | 29.89 | 28,000 | | 2012 | | 2025.11.24 | Àü¼¼ | »ï¿µÈ¨Å¸¿î | 2 | 76.09 | 29,000 | 0 | 2003 | | 2025.11.24 | ¿ù¼¼ | µå¸²Ä³½½(33-6) | 6 | 51.38 | 10,000 | 110 | 2016 | | 2025.11.24 | ¸Å¸Å | ÀÌȺô¸®Áî | 4 | 68.46 | 69,700 | | 2001 | | 2025.11.24 | ¸Å¸Å | ¶ó¿ÂÆ÷·¹ | 3 | 28.28 | 46,000 | | 2023 | | 2025.11.24 | ¿ù¼¼ | ¹Ì¼Ò°¡25Â÷Aµ¿ | 4 | 45.92 | 30,200 | 5 | 2017 | | 2025.11.23 | Àü¼¼ | ±Ý°±×¸°ºô(256-52) | 1 | 72.27 | 21,000 | 0 | 2002 | | 2025.11.23 | Àü¼¼ | ±Ý°±×¸°ºô(256-52) | 1 | 72.27 | 21,000 | 0 | 2002 | | 2025.11.23 | ¿ù¼¼ | ´ëÈï¹Ì¼Ò°¡29Â÷(Aµ¿) | 5 | 34.23 | 24,000 | 10 | 2020 | | 2025.11.22 | ¸Å¸Å | ½ÅÇѽ¦¸£ºô | 3 | 43.2 | 62,000 | | 2016 | | 2025.11.22 | ¸Å¸Å | ÀÌÁÖ¾ÆÆ®ºô¶ó(³ªµ¿) | 2 | 53.07 | 39,000 | | 1991 | | 2025.11.22 | ¸Å¸Å | ¹Ì¼Ò°¡Bµ¿(244-254) | 4 | 39.02 | 75,500 | | 2018 | | 2025.11.22 | ¸Å¸Å | ÇѰ´º½ºÅ¸(239-22) | 2 | 43.36 | 59,000 | | 2015 | | 2025.11.22 | ¸Å¸Å | (268-1) | 2 | 53.55 | 69,000 | | 1980 | | 2025.11.22 | ¿ù¼¼ | Áö¾È | 4 | 23.38 | 5,000 | 74 | 2016 | | 2025.11.22 | ¿ù¼¼ | ¸®º£ÇϿ콺 | 2 | 26.08 | 1,000 | 50 | 2012 | | 2025.11.22 | ¿ù¼¼ | °ñµçºô¶ó | 2 | 36.3 | 3,000 | 100 | 1995 | | 2025.11.22 | ¿ù¼¼ | ºí·çºô(492-7) | 4 | 17.89 | 3,000 | 50 | 2013 | | 2025.11.22 | ¿ù¼¼ | ¸®º£ÇϿ콺 | 2 | 26.08 | 1,000 | 50 | 2012 | | 2025.11.21 | Àü¼¼ | (283-106) | 1 | 50.73 | 30,000 | 0 | 2023 | | 2025.11.21 | Àü¼¼ | (210-390) | 2 | 39.47 | 19,000 | 0 | 2001 | | 2025.11.21 | Àü¼¼ | (493-0) | 1 | 63.6 | 21,000 | 0 | 1992 | | 2025.11.21 | ¸Å¸Å | ¹Ý¼®(279-110) | 1 | 68.76 | 73,000 | | 1997 | | 2025.11.21 | ¸Å¸Å | ¹Ì¼ºÁÖÅà | 5 | 74.04 | 70,000 | | 2003 | | 2025.11.20 | Àü¼¼ | À¯Ã¢ºô¶ó | 2 | 45.6 | 25,000 | 0 | 2008 | | 2025.11.20 | ¿ù¼¼ | û¼Ö¾ÆÆ®ºô | 2 | 70.01 | 25,000 | 55 | 2002 | | 2025.11.20 | Àü¼¼ | ÇØÇÇÇϿ콺2Â÷ | 6 | 43.68 | 29,000 | 0 | 2015 | | 2025.11.20 | Àü¼¼ | ¿¹±×¸° | 4 | 28.41 | 17,800 | 0 | 2017 | | 2025.11.20 | ¿ù¼¼ | »óµµ¼¼ÀÎÆ®ºôBµ¿(214-42¿Ü) | 3 | 32.04 | 3,000 | 90 | 2014 | | 2025.11.20 | ¸Å¸Å | »óµµ±×¸°Å¸¿î | 1 | 77.52 | 43,000 | | 1999 | | 2025.11.20 | Àü¼¼ | ¼¿¬ºô | 1 | 29.45 | 23,680 | 0 | 2017 | | 2025.11.20 | ¸Å¸Å | ±×·£Á®ºô¶ó | 1 | 46.21 | 27,700 | | 1995 | | 2025.11.20 | ¸Å¸Å | ´Ù³ª³×½ºÆ®ºô(211-94) | 1 | 45.16 | 25,000 | | 2008 | | 2025.11.20 | ¿ù¼¼ | STUDIO»óµµ14 | 2 | 22.68 | 2,619 | 10 | 2021 | | 2025.11.19 | ¸Å¸Å | Æ®¶ó¿òÆÓ¸®½º | 2 | 75.81 | 45,000 | | 2009 | | 2025.11.19 | ¿ù¼¼ | ÇÏÁÖºô¶ó | 4 | 50.85 | 20,000 | 5 | 2003 | | 2025.11.19 | ¿ù¼¼ | ¹Ì¼Ò°¡26Â÷ | 2 | 28.31 | 22,500 | 10 | 2018 | | 2025.11.19 | Àü¼¼ | ¹Ì¼Ò°¡25Â÷Aµ¿ | 3 | 45.52 | 31,100 | 0 | 2017 | | 2025.11.19 | Àü¼¼ | Àå½Âºô¶ó | 4 | 76.55 | 26,000 | 0 | 2004 | | 2025.11.19 | ¿ù¼¼ | º£½ºÆ®ºô | 2 | 29.67 | 21,000 | 20 | 2016 | | 2025.11.18 | ¸Å¸Å | ÇѰ´º½ºÅ¸2µ¿(236-34) | 5 | 44 | 62,000 | | 2016 | | 2025.11.18 | ¸Å¸Å | ¾È´ÙÇϿ콺 | 2 | 44.16 | 37,000 | | 2015 | | 2025.11.18 | ¸Å¸Å | ºÎ±¤ºô¶ó | 4 | 83.08 | 70,500 | | 1994 | | 2025.11.18 | Àü¼¼ | »óµµÈѹи®(214-31) | 2 | 51.03 | 18,000 | 0 | 1993 | | 2025.11.18 | ¿ù¼¼ | (492-6) | 3 | 17.15 | 2,000 | 38 | 2012 | | 2025.11.18 | ¿ù¼¼ | Çϳªºô | 3 | 54.52 | 5,000 | 100 | 2012 | | 2025.11.18 | ¿ù¼¼ | µ¿¿øº£½ºÆ®Å¸¿î | 4 | 35.66 | 2,000 | 90 | 2015 | | 2025.11.18 | ¿ù¼¼ | °ÅºÀSÇϿ콺»óµµ | 2 | 48.63 | 10,081 | 35 | 2022 | | 2025.11.18 | ¿ù¼¼ | °ÅºÀSÇϿ콺»óµµ | 3 | 48.36 | 8,414 | 28 | 2022 | | 2025.11.17 | ¿ù¼¼ | ¿ÀÅ©ºô | 2 | 18.21 | 2,000 | 58 | 2013 | | 2025.11.17 | ¿ù¼¼ | 492-8 | 2 | 12.7 | 1,000 | 50 | 2013 | | 2025.11.17 | Àü¼¼ | »óµµ±×¸°ºô | 1 | 59.65 | 33,480 | 0 | 2015 | | 2025.11.17 | Àü¼¼ | »óµµÈú | 3 | 27.68 | 15,700 | 0 | 2017 | | 2025.11.17 | Àü¼¼ | ½ºÄ«À̺ô | 4 | 59.82 | 31,500 | 0 | 2002 | | 2025.11.17 | ¸Å¸Å | ÀÌ¿¡½ºÇÏÀÓ7Â÷Bµ¿ | 2 | 37.01 | 39,500 | | 2018 | | 2025.11.17 | ¸Å¸Å | ¾È´ÙÇϿ콺 | 3 | 44.16 | 34,400 | | 2015 | | 2025.11.17 | Àü¼¼ | ¿¤¸®½Ã¾Æ | 3 | 29.89 | 19,656 | 0 | 2014 | | 2025.11.16 | Àü¼¼ | ¿ì¼º±×¸°ºôB | 1 | 75.99 | 31,500 | 0 | 2003 | | 2025.11.16 | Àü¼¼ | ½ºÅÚ¶ó | 3 | 17.97 | 7,350 | 0 | 2012 | | 2025.11.16 | Àü¼¼ | LuceForet | 8 | 28.2069 | 34,500 | 0 | 2021 | | 2025.11.16 | Àü¼¼ | ´ëÈï¹Ì¼Ò°¡19Â÷ | 4 | 35.74 | 25,000 | 0 | 2016 | | 2025.11.16 | ¿ù¼¼ | û¿îÇϿ콺 | 4 | 45.89 | 17,000 | 76 | 2016 | | 2025.11.15 | ¿ù¼¼ | ¼Ò´ã1 | 3 | 14.35 | 2,000 | 65 | 2017 | | 2025.11.15 | ¿ù¼¼ | ¸ÇÇÏźÇÏ¿ì¡(256-180) | 4 | 50.38 | 28,000 | 18 | 2019 | | 2025.11.15 | ¿ù¼¼ | ½ºÅ¸Æç¸®½º | 3 | 27.35 | 3,000 | 130 | 2024 | | 2025.11.15 | Àü¼¼ | ¿ìÇöºô¶óÆ® | 3 | 29.25 | 19,000 | 0 | 2014 | | 2025.11.15 | Àü¼¼ | ¹Ì¼Ò°¡8Â÷ | 5 | 26.92 | 16,000 | 0 | 2013 | | 2025.11.15 | Àü¼¼ | ¹Ì¼Ò°¡8Â÷ | 5 | 26.92 | 16,000 | 0 | 2013 | | 2025.11.15 | ¿ù¼¼ | ¸¶¸£¸¶ | 2 | 16.26 | 11,500 | 17 | 2012 | | 2025.11.15 | ¿ù¼¼ | ¸íº¸½ºÀ§Æ®ºô | 2 | 77.97 | 10,000 | 120 | 2002 | | 2025.11.15 | ¿ù¼¼ | ±Ý±¤ÈÞ¸Õ¾¾Æ¼ | 2 | 14.28 | 500 | 53 | 2011 | | 2025.11.15 | ¿ù¼¼ | ´ë¼ººô¶ó(212-47) | -1 | 37.08 | 1,000 | 45 | 1990 | | 2025.11.15 | ¸Å¸Å | û¸í¿¡¹öºô5Â÷(299-149) | 3 | 51.77 | 38,000 | | 2014 | | 2025.11.15 | ¸Å¸Å | ´ëÈï¹Ì¼Ò°¡18Â÷ | 4 | 35.48 | 38,000 | | 2015 | | 2025.11.15 | ¿ù¼¼ | û¸í¿¡¹öºôºñµ¿ | 4 | 29.86 | 5,000 | 70 | 2013 | | 2025.11.15 | Àü¼¼ | Çö´ëÇÏÀÌÃ÷ºô¶ó(101µ¿) | 1 | 55.89 | 20,000 | 0 | 1990 | | 2025.11.14 | Àü¼¼ | °ñµçÈú(335-129) | 3 | 42.46 | 27,000 | 0 | 2013 | | 2025.11.14 | ¿ù¼¼ | ´ëÈïºôµù | 5 | 15.45 | 2,000 | 65 | 2012 | | 2025.11.14 | ¸Å¸Å | Ǫ¸¥ÁÖÅÃ¥± | 4 | 29.86 | 27,500 | | 2021 | | 2025.11.14 | ¸Å¸Å | Çö´ëºô¶ó(256-189) | 4 | 69.02 | 34,500 | | 1999 | | 2025.11.14 | ¸Å¸Å | Àϱ¤¸®Ä¡ºô(256-196) | 1 | 49.67 | 55,000 | | 2015 | | 2025.11.13 | ¿ù¼¼ | ¾Æ¾Èä | 1 | 68.22 | 5,000 | 103 | 2008 | | 2025.11.13 | ¸Å¸Å | Âü¼Ö¾ÆÆ®ºôBµ¿ | 3 | 84.04 | 94,700 | | 2009 | | 2025.11.13 | ¿ù¼¼ | Àå½Â(183-7) | 6 | 15.84 | 1,000 | 60 | 2012 | | 2025.11.13 | ¸Å¸Å | (279-68) | 1 | 50.04 | 60,000 | | 1990 | | 2025.11.13 | ¿ù¼¼ | µ¿»ê°ñµåºô¸®Áö | 3 | 33.09 | 18,900 | 10 | 2017 | | 2025.11.13 | ¿ù¼¼ | µ¿»ê°ñµåºô¸®Áö | 3 | 33.09 | 18,900 | 10 | 2017 | | 2025.11.13 | ¿ù¼¼ | µ¿»ê°ñµåºô¸®Áö | 3 | 33.09 | 18,900 | 10 | 2017 | | 2025.11.13 | ¿ù¼¼ | µ¿»ê°ñµåºô¸®Áö | 3 | 33.09 | 18,900 | 10 | 2017 | | 2025.11.13 | ¿ù¼¼ | ÇØ´ãä»óµµ | 5 | 75.83 | 500 | 48 | 2016 | | 2025.11.13 | ¿ù¼¼ | À§³Ê½ººô | 4 | 69.42 | 26,000 | 40 | 2009 | | 2025.11.13 | ¸Å¸Å | °íÀ̺ô¶óÆ® | 3 | 55.29 | 33,500 | | 2000 | | 2025.11.12 | Àü¼¼ | (283-106) | 2 | 28.87 | 23,000 | 0 | 2023 | | 2025.11.12 | ¿ù¼¼ | ³ªÀÎÈúÇϿ콺(256-62) | 2 | 29.96 | 18,500 | 15 | 2014 | | 2025.11.12 | Àü¼¼ | »óµµ·ÎÁöºô | 2 | 29.06 | 18,500 | 0 | 2018 | | 2025.11.12 | ¸Å¸Å | µÎ¼º½¦¸£ºô(301-177) | 1 | 76.55 | 35,500 | | 2001 | | 2025.11.12 | Àü¼¼ | ¶ó¿Âºô | 1 | 42 | 26,000 | 0 | 2016 | | 2025.11.11 | ¿ù¼¼ | ¼Á¤Ä³½½ | 6 | 22.27 | 1,000 | 63 | 2016 | | 2025.11.11 | ¸Å¸Å | Àå¿øÁÖÅÃ(256-197) | 4 | 81.98 | 44,800 | | 1996 | | 2025.11.10 | ¿ù¼¼ | ºêÀ̾÷ºôµù | 4 | 15.44 | 1,000 | 67 | 2017 | | 2025.11.10 | ¿ù¼¼ | ±¤Ã¤ºô¶ó | 5 | 35.5 | 100 | 42 | 2024 | | 2025.11.10 | Àü¼¼ | ÇѰ´º½ºÅ¸(299-21) | 3 | 38.12 | 30,000 | 0 | 2015 | | 2025.11.10 | ¸Å¸Å | ÈÞ¸Õºô·¹(299-164) | 5 | 22.57 | 21,000 | | 2014 | | 2025.11.08 | ¿ù¼¼ | (294-66) | 2 | 28.98 | 16,000 | 10 | 2015 | | 2025.11.08 | ¿ù¼¼ | ÇѺûÇϿ콺2µ¿ | 2 | 63.6 | 2,000 | 140 | 2003 | | 2025.11.08 | ¿ù¼¼ | ±âÈï¸Ç¼Ç | 2 | 25.72 | 3,000 | 87 | 2018 | | 2025.11.08 | ¿ù¼¼ | ÀÌÆíÇѺô | 2 | 12.7 | 1,000 | 47 | 2013 | | 2025.11.08 | ¿ù¼¼ | ´º¿¡ÄÚºô(211-445) | 4 | 40.16 | 10,000 | 50 | 2014 | | 2025.11.08 | Àü¼¼ | Ǫ¸¥½£ÇϿ콺 | 1 | 29.84 | 18,300 | 0 | 2015 | | 2025.11.08 | ¸Å¸Å | ¼ÒÀ±¼¾Æ®·²ÆÄÅ© | 4 | 27.85 | 59,800 | | 2022 | | 2025.11.08 | ¸Å¸Å | ½¦¾îÇϿ콺 | 3 | 12.96 | 17,300 | | 2012 | | 2025.11.07 | Àü¼¼ | È¿¼ºÁÖÅÃ(211-12) | 3 | 42.9 | 28,000 | 0 | 2015 | | 2025.11.07 | Àü¼¼ | (283-106) | 3 | 33.41 | 24,000 | 0 | 2023 | | 2025.11.07 | Àü¼¼ | »ï¿õÇÏÀÌÃ÷ºô¶ó | 1 | 59.82 | 23,000 | 0 | 1991 | | 2025.11.07 | Àü¼¼ | Àå¾È°ñµåºô¶ó°¡µ¿ | 1 | 77.83 | 27,000 | 0 | 1993 | | 2025.11.07 | Àü¼¼ | »ï¿õÇÏÀÌÃ÷ºô¶ó | 1 | 59.82 | 23,000 | 0 | 1991 | | 2025.11.07 | ¸Å¸Å | ¹Ì¼Ò°¡8Â÷ | 5 | 26.92 | 18,500 | | 2013 | | 2025.11.06 | Àü¼¼ | Á¦½Â´õÇÏÀÓ | 4 | 40.25 | 25,000 | 0 | 2011 | | 2025.11.06 | ¿ù¼¼ | ¹Ì·¡ºô | 4 | 21.75 | 1,000 | 71 | 2018 | | 2025.11.06 | Àü¼¼ | ¾à¼ö¿¬¸³ | 2 | 67.93 | 16,000 | 0 | 1981 | | 2025.11.06 | ¿ù¼¼ | (17-60) | 3 | 91.38 | 2,000 | 73 | 2001 | | 2025.11.06 | ¸Å¸Å | È¿¼ºÁÖÅÃ(204-125) | 5 | 59.79 | 60,000 | | 2011 | | 2025.11.06 | ¸Å¸Å | Àå¼öºô¶ó | 2 | 59.58 | 34,000 | | 1992 | | 2025.11.06 | ¸Å¸Å | ´ë¼ºÇÏÀ̺ô¶óAµ¿ | 3 | 70.62 | 72,000 | | 1991 | | 2025.11.06 | ¿ù¼¼ | ´ëÈï¹Ì¼Ò°¡29Â÷(Bµ¿) | 2 | 29.94 | 19,000 | 15 | 2020 | | 2025.11.06 | ¸Å¸Å | ½Å¿ì | 3 | 51.66 | 63,000 | | 1993 | | 2025.11.05 | Àü¼¼ | »óµµµ¿ÇÏÀ̺ô | 4 | 63.02 | 30,000 | 0 | 2003 | | 2025.11.05 | Àü¼¼ | (283-106) | 3 | 26.34 | 21,000 | 0 | 2023 | | 2025.11.05 | ¸Å¸Å | À¯¼ºÁÖÅÃ(210-113) | 4 | 45.96 | 25,000 | | 1995 | | 2025.11.05 | Àü¼¼ | ÇѰ´º½ºÅ¸2µ¿(236-34) | 2 | 46 | 27,500 | 0 | 2016 | | 2025.11.05 | ¸Å¸Å | »óµµ´õÇÏÀÓ | 2 | 54.15 | 57,000 | | 2022 | | 2025.11.05 | ¸Å¸Å | ´õÆ÷·¹½ºÆ®2Â÷ | 2 | 41.5 | 42,000 | | 2016 | | 2025.11.04 | ¿ù¼¼ | ¹®ÈÁÖÅÃBµ¿ | 1 | 34.57 | 500 | 60 | 1987 | | 2025.11.04 | ¿ù¼¼ | °³²ºô(210-292) | 5 | 36.38 | 3,000 | 95 | 2017 | | 2025.11.04 | ¿ù¼¼ | (303-8) | 2 | 61.09 | 100 | 60 | 2003 | | 2025.11.04 | ¿ù¼¼ | ¾È´ÙÇϿ콺 | 2 | 44.16 | 3,000 | 70 | 2015 | | 2025.11.03 | ¸Å¸Å | ´Ùä°¡ | 3 | 59.98 | 80,000 | | 2022 | | 2025.11.03 | ¸Å¸Å | ÄÉÀ̵ð¾ÆÀ̺ôAµ¿ | 2 | 58.58 | 32,500 | | 2003 | | 2025.11.03 | Àü¼¼ | ¹Ì¼Ò°¡9Â÷ | 3 | 33.7 | 20,000 | 0 | 2013 | | 2025.11.03 | Àü¼¼ | ¸í¼ºÇϿ콺 | 4 | 29.61 | 27,700 | 0 | 2017 | | 2025.11.03 | Àü¼¼ | ¸í¼ºÇϿ콺 | 4 | 29.61 | 27,700 | 0 | 2017 | | 2025.11.03 | ¿ù¼¼ | ¿¹¸²¹Ì¼Ò°¡3Â÷ | 5 | 34.27 | 5,000 | 80 | 2015 | | 2025.11.03 | ¿ù¼¼ | Á¦ÀϺô¶ó | 2 | 65.55 | 7,000 | 96 | 2002 | | 2025.11.02 | ¸Å¸Å | ½Å¼ººô¶óÆ® | 3 | 84.98 | 52,000 | | 2002 | | 2025.11.02 | ¸Å¸Å | ¼º¿ø¾ÆÆ® | 4 | 41.31 | 45,000 | | 1993 | | 2025.11.02 | ¿ù¼¼ | ¿¤·»ÇϿ콺 | 3 | 19.99 | 1,000 | 60 | 2015 | | 2025.11.02 | Àü¼¼ | ·ç³ªÆ÷·¹30 | 3 | 53.54 | 38,000 | 0 | 2022 | | 2025.11.01 | ¸Å¸Å | ±¸»ïºô¶ó(223-10) | 3 | 49.47 | 29,000 | | 1993 | | 2025.11.01 | Àü¼¼ | ´õÆ÷·¹½ºÆ®6Â÷ | 2 | 45.1 | 28,300 | 0 | 2019 | | 2025.11.01 | Àü¼¼ | Áß¾Ó(259-12) | 2 | 49.05 | 15,000 | 0 | 1974 | | 2025.11.01 | ¿ù¼¼ | °ø°£ | 1 | 29.81 | 22,000 | 20 | 2021 | | 2025.11.01 | ¿ù¼¼ | ±¹»çºÀºô¶óA(214-72) | 2 | 36.18 | 2,000 | 50 | 1986 | | 2025.11.01 | Àü¼¼ | (244-349) | -1 | 41.1 | 12,000 | 0 | 1986 | | 2025.11.01 | Àü¼¼ | »Ñ¸®ºô¶ó | 2 | 53.31 | 15,000 | 0 | 1991 | | 2025.11.01 | ¿ù¼¼ | (493-0) | 3 | 55.35 | 19,800 | 30 | 1992 | | 2025.11.01 | ¿ù¼¼ | À£¸®Ä¡ÆÄÅ©1Â÷ | 2 | 32.42 | 4,000 | 100 | 2013 | | 2025.11.01 | ¿ù¼¼ | 215-3 | 1 | 34.88 | 1,000 | 60 | 1975 | | 2025.11.01 | ¿ù¼¼ | È¿¼ºÁÖÅÃ(201) | 4 | 29.79 | 21,600 | 4 | 2018 | | 2025.10.31 | ¿ù¼¼ | ¼º´ëºô¶ó | 2 | 66.72 | 5,000 | 90 | 1996 | | 2025.10.31 | ¿ù¼¼ | ¸®Ä¡ºô(299-168) | 4 | 24.3 | 10,000 | 30 | 2012 | | 2025.10.31 | Àü¼¼ | ½ºÅ¸ºô¶ó | 1 | 39.32 | 16,000 | 0 | 2007 | | 2025.10.31 | Àü¼¼ | »óµµ¼¼ÀÎÆ®ºôEµ¿(214-150¿Ü) | 5 | 36.93 | 22,000 | 0 | 2015 | | 2025.10.31 | Àü¼¼ | ´ÙÀÎij½½2Â÷ | 6 | 28.44 | 27,000 | 0 | 2019 | | 2025.10.31 | ¿ù¼¼ | Àå¼öºô¶ó | -1 | 59.58 | 500 | 100 | 1992 | | 2025.10.31 | ¸Å¸Å | ÇѰ¸®Ã÷ºô(279-272) | 2 | 60.85 | 69,800 | | 2008 | | 2025.10.31 | ¿ù¼¼ | ¸®Ä¡ºô(299-168) | 4 | 24.3 | 10,000 | 30 | 2012 | | 2025.10.31 | ¿ù¼¼ | ž¿ø·ë | 5 | 14.72 | 500 | 54 | 2013 | | 2025.10.30 | ¸Å¸Å | Åä°æ¾ÆÆ®ºô | 2 | 75.8 | 78,500 | | 2003 | | 2025.10.30 | ¸Å¸Å | »óµµ¾ÆÆ®ºô(210-271) | 3 | 76.89 | 53,000 | | 2002 | | 2025.10.30 | ¸Å¸Å | ¸®Ä¡ºô(265-7) | 3 | 58.98 | 69,000 | | 2003 | | 2025.10.30 | Àü¼¼ | ¼®°æÆ®¶ó¿ò | 3 | 48.04 | 26,200 | 0 | 2013 | | 2025.10.30 | ¸Å¸Å | ¸íÁøÁÖÅà | 1 | 56.89 | 64,500 | | 1996 | | 2025.10.30 | ¿ù¼¼ | ¼§±×¸±¶óV | 4 | 29.96 | 5,000 | 80 | 2016 | | 2025.10.30 | Àü¼¼ | ÇѰ¸®Ã÷ºô(279-272) | 4 | 84.75 | 24,000 | 0 | 2008 | | 2025.10.30 | Àü¼¼ | ¼¼ÇѺô¸®Áö(265-2) | 4 | 42.63 | 17,500 | 0 | 2003 | | 2025.10.30 | ¿ù¼¼ | Æä¹Ð¸®ºô | 2 | 42.96 | 11,000 | 25 | 2009 | | 2025.10.29 | ¿ù¼¼ | (283-106) | 1 | 46.71 | 5,000 | 130 | 2023 | | 2025.10.29 | ¿ù¼¼ | ÇØ¶ß´ÂÁý(7-7) | 3 | 59.21 | 8,000 | 115 | 2017 | | 2025.10.29 | ¿ù¼¼ | ¿ÍÀÌ¿¥½ÃƼ | 3 | 29.99 | 22,000 | 15 | 2022 | | 2025.10.28 | ¸Å¸Å | ¿ìÁÖºôBµ¿ | 4 | 74.07 | 75,000 | | 2002 | | 2025.10.28 | ¸Å¸Å | ¿ìÁÖºôBµ¿ | 4 | 74.07 | 75,000 | | 2002 | | 2025.10.28 | Àü¼¼ | µå¸²Ä³½½ | 6 | 48.57 | 30,000 | 0 | 2015 | | 2025.10.28 | ¿ù¼¼ | (469-4) | 3 | 29.08 | 5,000 | 42 | 2003 | | 2025.10.28 | ¿ù¼¼ | °³²ºô(236-9) | 4 | 35.77 | 5,000 | 80 | 2014 | | 2025.10.28 | Àü¼¼ | µå¸²Ä³½½ | 6 | 48.57 | 30,000 | 0 | 2015 | | 2025.10.28 | Àü¼¼ | µå¸²ÇϿ콺 | 5 | 23.66 | 21,500 | 0 | 2012 | | 2025.10.27 | ¿ù¼¼ | ¿µ»ê¾ÆÆ®ºô¶ó | 1 | 41.01 | 10,000 | 50 | 1992 | | 2025.10.27 | ¸Å¸Å | ±×¸°Èú | 2 | 29.92 | 31,500 | | 2014 | | 2025.10.27 | ¸Å¸Å | Á¤Áøºô¶ó | 2 | 87.21 | 57,000 | | 1996 | | 2025.10.27 | ¸Å¸Å | ÀÌ·¹È¨Ä³½½ | 2 | 53.91 | 51,000 | | 2017 | | 2025.10.27 | ¿ù¼¼ | µÎ¼ººô¶óÆ®(279-36) | 1 | 82.64 | 10,000 | 80 | 1998 | | 2025.10.27 | ¿ù¼¼ | ¹Ì¼Ò°¡26Â÷ | 2 | 28.31 | 22,500 | 10 | 2018 | | 2025.10.27 | Àü¼¼ | âÁ¶ºô¶ó | 2 | 54.63 | 15,000 | 0 | 1993 | | 2025.10.27 | Àü¼¼ | (361-63) | 3 | 47.96 | 18,000 | 0 | 2004 | | 2025.10.27 | Àü¼¼ | ±Ý°±×¸°ºô(202-235) | 2 | 40.95 | 23,000 | 0 | 2014 | | 2025.10.27 | Àü¼¼ | ±Ý°±×¸°ºô(202-235) | 2 | 40.95 | 23,000 | 0 | 2014 | | 2025.10.27 | ¿ù¼¼ | ¹Ì¼Ò°¡26Â÷ | 2 | 28.31 | 22,500 | 10 | 2018 | | 2025.10.27 | Àü¼¼ | ´ëµ¿±×¸°ºô | 2 | 50.01 | 23,000 | 0 | 2002 | | 2025.10.27 | Àü¼¼ | ÄڳʽºÅæ | 1 | 29.92 | 20,450 | 0 | 2019 | | 2025.10.27 | Àü¼¼ | ±×¸°Èú | 2 | 29.92 | 17,700 | 0 | 2014 | | 2025.10.26 | ¸Å¸Å | ¼¼Áø½ÃƼºô¶ó | 1 | 61.05 | 34,000 | | 2002 | | 2025.10.25 | ¿ù¼¼ | ¼öÁ¤½¦¸£ºô³ªµ¿ | 2 | 61.98 | 27,000 | 20 | 2003 | | 2025.10.25 | Àü¼¼ | Áø¼ººô | 1 | 63.96 | 25,000 | 0 | 2005 | | 2025.10.25 | ¿ù¼¼ | ¿ìÇöÆÄÅ©ºô | 2 | 29.95 | 5,000 | 90 | 2014 | | 2025.10.25 | ¸Å¸Å | ½¦¾îÇϿ콺 | 3 | 29.18 | 26,500 | | 2012 | | 2025.10.25 | ¸Å¸Å | Çö´ë¾¾Æ¼ºô¶ó | 2 | 82.89 | 50,000 | | 1999 | | 2025.10.25 | ¿ù¼¼ | ´õÇϿ콺ºô | 2 | 29.99 | 17,000 | 18 | 2011 | | 2025.10.25 | Àü¼¼ | õ¼ö¸Ç¼Ç | 4 | 80.56 | 35,000 | 0 | 2002 | | 2025.10.25 | ¸Å¸Å | ±ÃÀüºô¶ó(199-1) | 2 | 73.44 | 67,000 | | 2002 | | 2025.10.24 | ¸Å¸Å | ¼Á¤½¦¸£ºô | 4 | 29.93 | 41,000 | | 2015 | | 2025.10.24 | Àü¼¼ | (256-209) | 4 | 66.7 | 36,980 | 0 | 2014 | | 2025.10.24 | Àü¼¼ | ·Îµ©½ºÄ«À̺ä | 3 | 54.88 | 28,500 | 0 | 2012 | | 2025.10.24 | Àü¼¼ | ·Îµ©½ºÄ«À̺ä | 3 | 54.88 | 28,500 | 0 | 2012 | | 2025.10.24 | ¿ù¼¼ | ÆÛ½ºÆ®ºô(256-37) | 5 | 29.11 | 19,400 | 20 | 2014 | | 2025.10.24 | ¿ù¼¼ | ¼º¸²ºô¸®Áö1µ¿ | 4 | 70.6 | 20,000 | 60 | 2003 | | 2025.10.24 | Àü¼¼ | SUNHOUSE(303-0) | 4 | 17.22 | 12,500 | 0 | 2013 | | 2025.10.24 | ¿ù¼¼ | ¿¹±×¸° | 2 | 29.72 | 22,000 | 10 | 2020 | | 2025.10.24 | ¸Å¸Å | À¯Ã¢ºô¶ó | 2 | 45.6 | 38,800 | | 2008 | | 2025.10.24 | ¸Å¸Å | ŰÇÇÏÀÌÃ÷ºô¶ó(159-278) | 2 | 69.81 | 85,635 | | 1986 | | 2025.10.24 | ¸Å¸Å | ·ç³ªÆ÷·¹30 | 5 | 56.86 | 60,500 | | 2022 | | 2025.10.24 | ¸Å¸Å | ¹Ý¼®(279-110) | 3 | 68.76 | 70,200 | | 1997 | | 2025.10.24 | ¸Å¸Å | ¿ùµå½¦¸£ºô(256-23) | 1 | 60.48 | 44,800 | | 2002 | | 2025.10.24 | Àü¼¼ | ·Îµ©½ºÄ«À̺ä | 3 | 54.88 | 28,500 | 0 | 2012 | | 2025.10.24 | ¸Å¸Å | ¿ëÈ£ºô¶ó | 1 | 50.03 | 35,300 | | 2003 | | 2025.10.23 | ¸Å¸Å | ¼Á¤½¦¸£ºô | 5 | 47.22 | 54,850 | | 2015 | | 2025.10.23 | ¿ù¼¼ | Ǫ¿ò | 4 | 23.93 | 10,000 | 18 | 2014 | | 2025.10.23 | Àü¼¼ | ÀÌ¿¡½ºÇÏÀÓ | 2 | 39.16 | 22,400 | 0 | 2016 | | 2025.10.23 | ¿ù¼¼ | ±×¸°½ÃƼ | 8 | 9 | 10,700 | 10 | 2018 | | 2025.10.23 | ¿ù¼¼ | »óµµ±îÄ¡ºô¶ó | 1 | 50.42 | 13,000 | 35 | 1994 | | 2025.10.23 | ¿ù¼¼ | ´Ü±Ã¾ÆÆ®ºô¶ó | 1 | 47.79 | 15,200 | 20 | 1991 | | 2025.10.23 | ¿ù¼¼ | µî¾ÈÁ¤(335-149) | 2 | 13.34 | 2,000 | 55 | 2011 | | 2025.10.23 | ¸Å¸Å | ¿¹¼ºÈÞij½½´Ùµ¿ | 5 | 40.43 | 27,500 | | 2014 | | 2025.10.23 | ¸Å¸Å | ¸ð°Ç½¦¸£ºô | 5 | 29.34 | 26,000 | | 2012 | | 2025.10.22 | ¿ù¼¼ | ¸®Ä¡ºô¶ó | 4 | 52.89 | 12,000 | 30 | 1996 | | 2025.10.22 | ¿ù¼¼ | È¿ÆÄÅ©ºô | 3 | 33.89 | 5,000 | 100 | 2019 | | 2025.10.22 | ¿ù¼¼ | Á¦ÀÌ¿ø | 2 | 16.02 | 3,000 | 55 | 2012 | | 2025.10.22 | ¿ù¼¼ | À£¸®Ä¡ÆÄÅ©(256-17) | 5 | 38.01 | 3,000 | 110 | 2015 | | 2025.10.22 | Àü¼¼ | ¸í¼ºÇϿ콺 | 3 | 29.68 | 28,300 | 0 | 2017 | | 2025.10.22 | ¿ù¼¼ | Á¦ÀÌ¿ø | 2 | 16.02 | 3,000 | 55 | 2012 | | 2025.10.22 | Àü¼¼ | ¿ÍÀÌ¿¥½ÃƼ | 2 | 37.33 | 26,000 | 0 | 2022 | | 2025.10.21 | ¸Å¸Å | ´ëµ¿±×¸°ºô | 2 | 45.07 | 69,000 | | 2002 | | 2025.10.21 | ¿ù¼¼ | ´ëÈï¹Ì¼Ò°¡21Â÷ | 4 | 37.46 | 20,000 | 35 | 2016 | | 2025.10.21 | Àü¼¼ | È¿¼ºÁÖÅÃ(212-41) | 5 | 59.71 | 26,000 | 0 | 2013 | | 2025.10.21 | Àü¼¼ | ¿¹¸²¹Ì¼Ò°¡3Â÷ | 2 | 39.38 | 22,900 | 0 | 2015 | | 2025.10.21 | ¿ù¼¼ | ÈÞ¸Õºô·¹(299-164) | 2 | 38.2 | 300 | 59 | 2014 | | 2025.10.21 | ¿ù¼¼ | À̳ë½ÃƼºô | 5 | 35.97 | 6,757 | 6 | 2021 | | 2025.10.20 | ¿ù¼¼ | ¸ð¾Æºô | 5 | 21.37 | 3,000 | 58 | 2003 | | 2025.10.20 | Àü¼¼ | Ȩ¾¾¾ÆÆ®·Î¾â | 5 | 40.63 | 43,000 | 0 | 2019 | | 2025.10.20 | ¿ù¼¼ | Á¦ÀÌÇ÷¯½º | 2 | 12.395 | 1,000 | 52 | 2013 | | 2025.10.20 | ¿ù¼¼ | ¿¤·»ÇϿ콺 | 4 | 16.23 | 7,000 | 81 | 2015 | | 2025.10.20 | ¸Å¸Å | ÇѺû¿¡ÄÚºô | 3 | 27.94 | 57,000 | | 2014 | | 2025.10.19 | ¿ù¼¼ | ¾çÁöºô¶ó(³ªµ¿) | -1 | 38.6 | 2,000 | 65 | 1986 | | 2025.10.18 | Àü¼¼ | Űæ | 5 | 28.31 | 15,000 | 0 | 2013 | | 2025.10.18 | Àü¼¼ | ÁÖ¿øº£¸£ºô102 | 4 | 29.55 | 20,700 | 0 | 2018 | | 2025.10.18 | ¸Å¸Å | ¹Ì¼ºÇص帲 | 4 | 38.35 | 36,700 | | 2015 | | 2025.10.18 | ¿ù¼¼ | (236-4) | 3 | 26.08 | 1,000 | 46 | 2015 | | 2025.10.18 | Àü¼¼ | ¾Æ³Ê½ºÈú | 1 | 29.88 | 21,000 | 0 | 2013 | | 2025.10.18 | ¿ù¼¼ | µå¸²ÆÓ¸®½ºII | 3 | 20.94 | 1,000 | 66 | 2015 | | 2025.10.18 | Àü¼¼ | ´ëÈï¹Ì¼Ò°¡24Â÷ | 3 | 28.84 | 21,000 | 0 | 2017 | | 2025.10.18 | Àü¼¼ | ´ëÈï¹Ì¼Ò°¡24Â÷ | 3 | 28.84 | 21,000 | 0 | 2017 | | 2025.10.18 | ¸Å¸Å | ¿ìÇâ¾ÆÆ®ºô | 1 | 47.1 | 24,000 | | 2003 | | 2025.10.18 | ¸Å¸Å | û¸í¿¡¹öºô¿¡À̵¿ | 5 | 55.04 | 42,000 | | 2013 | | 2025.10.18 | ¿ù¼¼ | (29-37) | 3 | 56.92 | 500 | 50 | 2014 | | 2025.10.18 | ¿ù¼¼ | µ§µé¶óÀ̾ð | 3 | 21.78 | 10,000 | 78 | 2015 | | 2025.10.17 | ¸Å¸Å | ½¦¾îÇϿ콺 | 2 | 19.98 | 23,000 | | 2012 | | 2025.10.17 | ¸Å¸Å | ³«¿ø±×¸°Å¸¿ö³ªµ¿ | 4 | 58.34 | 60,000 | | 1998 | | 2025.10.17 | ¿ù¼¼ | (283-106) | 3 | 17.82 | 11,900 | 17 | 2023 | | 2025.10.17 | ¸Å¸Å | ½¦¾îÇϿ콺 | 3 | 24.89 | 24,000 | | 2012 | | 2025.10.17 | ¿ù¼¼ | ¸ð¾Æºô | 4 | 35.63 | 13,000 | 14 | 2003 | | 2025.10.17 | Àü¼¼ | ¿ìÇöij½½(210-266) | 4 | 44.83 | 25,700 | 0 | 2014 | | 2025.10.17 | ¿ù¼¼ | (279-433) | 3 | 58.99 | 10,000 | 50 | 1994 | | 2025.10.17 | ¿ù¼¼ | ¹Ì·¡ºô | 3 | 16.05 | 500 | 56 | 2018 | | 2025.10.16 | ¿ù¼¼ | ³ëµé¸¶À»ºô¶ó | 4 | 115.92 | 5,000 | 190 | 1998 | | 2025.10.16 | ¸Å¸Å | û¸í¿¡¹öºô | 2 | 39.56 | 35,000 | | 2012 | | 2025.10.16 | Àü¼¼ | ÈÞ¸Õºô·¹(299-164) | 5 | 39.1 | 22,000 | 0 | 2014 | | 2025.10.16 | Àü¼¼ | µ¿¿øºô¶ó(157-22) | 2 | 45.15 | 23,800 | 0 | 2002 | | 2025.10.16 | ¿ù¼¼ | ³ëµé¸¶À»ºô¶ó | 4 | 115.92 | 5,000 | 190 | 1998 | | 2025.10.16 | ¸Å¸Å | µå¸²ÆÓ¸®½º | 5 | 29.78 | 53,000 | | 2011 | | 2025.10.15 | ¸Å¸Å | »óµµºô¶ó(279-443) | 2 | 50.16 | 23,000 | | 1991 | | 2025.10.15 | ¸Å¸Å | ¶ó¿ÂÆ÷·¹ | 5 | 55.22 | 71,000 | | 2023 | | 2025.10.15 | ¸Å¸Å | °³²ºô(243-4) | 2 | 44.825 | 76,000 | | 2022 | | 2025.10.15 | ¸Å¸Å | ÇØÇÇÇϿ콺(242-92) | 5 | 16.14 | 28,500 | | 2013 | | 2025.10.15 | ¸Å¸Å | Áß¾Ó(259-12) | 4 | 48.46 | 26,000 | | 1974 | | 2025.10.15 | ¸Å¸Å | ½Â¿øÁÖÅÃ(299-1) | 4 | 28.5 | 42,300 | | 2023 | | 2025.10.15 | ¸Å¸Å | »óµµµ¿ÇÏÀ̺ô | 5 | 42.3 | 49,000 | | 2003 | | 2025.10.15 | ¸Å¸Å | µ¿»êGreenTown | 2 | 29.95 | 36,500 | | 2020 | | 2025.10.15 | ¸Å¸Å | ÆÛ½ºÆ®ºô(256-37) | 2 | 29.97 | 29,500 | | 2014 | | 2025.10.15 | ¸Å¸Å | ÀÌ¿¡½ºÇÏÀÓ | 2 | 39.16 | 34,700 | | 2016 | | 2025.10.15 | ¸Å¸Å | Çö´ëÈѹ̸®(Çö´ëºô¶ó) | 2 | 84.63 | 54,000 | | 2000 | | 2025.10.15 | ¸Å¸Å | ¿ÍÀÌ¿¥½ÃƼ | 3 | 36.03 | 44,000 | | 2022 | | 2025.10.15 | ¸Å¸Å | ´ÙÀÎij½½2Â÷ | 6 | 28.44 | 54,800 | | 2019 | | 2025.10.15 | ¸Å¸Å | ±¤¿ìºô¶ó | 1 | 49.31 | 56,000 | | 1991 | | 2025.10.15 | ¸Å¸Å | ¹Ì¼Ò°¡22Â÷ | 4 | 32.79 | 31,800 | | 2016 | | 2025.10.15 | ¸Å¸Å | ±¤¿ìºô¶ó | 1 | 49.31 | 56,000 | | 1991 | | 2025.10.15 | ¸Å¸Å | ÆÄÅ©ÆÓ¸®½º | 3 | 19.69 | 23,000 | | 2017 | | 2025.10.15 | ¸Å¸Å | ¶ó¿ÂÆ÷·¹ | 2 | 28.28 | 46,000 | | 2023 | | 2025.10.15 | ¸Å¸Å | û¼Ö¾ÆÆ®ºô | 4 | 66.11 | 33,000 | | 2002 | | 2025.10.15 | ¸Å¸Å | û¿îÆÄÅ©ºô | 3 | 63.03 | 54,500 | | 2002 | | 2025.10.15 | ¸Å¸Å | û¿îÇϿ콺 | 2 | 48.455 | 54,600 | | 2016 | | 2025.10.15 | ¸Å¸Å | Áß¾Ó(259-12) | 2 | 49.05 | 28,000 | | 1974 | | 2025.10.15 | ¸Å¸Å | ½ºÅ¸Æç¸®½º | 2 | 27.86 | 28,500 | | 2024 | | 2025.10.15 | ¸Å¸Å | ¹Ý¼®ÁÖÅÃ(299-142) | 2 | 72.6 | 47,300 | | 1995 | | 2025.10.15 | ¿ù¼¼ | JABEZHOUSE | 2 | 56 | 1,000 | 65 | 2002 | | 2025.10.15 | ¿ù¼¼ | ¹Ì¼Ò°¡8Â÷ | 4 | 27.44 | 16,700 | 10 | 2013 | | 2025.10.15 | ¿ù¼¼ | (236-4) | 3 | 41.56 | 10,000 | 34 | 2015 | | 2025.10.15 | ¿ù¼¼ | Çö»êǪ¸¥½£ºô¶ó(279-23) | 2 | 53.48 | 20,000 | 20 | 2007 | | 2025.10.15 | Àü¼¼ | µ¿¹æÇÏÀÌÃ÷ºô¶ó | 3 | 58.95 | 21,200 | 0 | 1994 | | 2025.10.15 | ¿ù¼¼ | ¸ÇÇÏźÇÏ¿ì¡(256-180) | 3 | 50.39 | 32,000 | 6 | 2019 | | 2025.10.15 | ¿ù¼¼ | µå¸²ÆÓ¸®½ºII | 4 | 24.82 | 2,000 | 75 | 2015 | | 2025.10.14 | ¸Å¸Å | È¿¼ººô¶ó(Bµ¿) | 2 | 35.04 | 28,000 | | 1986 | | 2025.10.14 | ¸Å¸Å | ¿¡ºê¶óÀÓVill | -1 | 50.38 | 26,000 | | 2016 | | 2025.10.14 | ¸Å¸Å | ¶ó¿ÂÆ÷·¹ | 2 | 49.26 | 67,000 | | 2023 | | 2025.10.14 | ¸Å¸Å | ¸ð°Ç½¦¸£ºô | 5 | 29.34 | 24,000 | | 2012 | | 2025.10.14 | ¸Å¸Å | Çѽꣳ׽ºÆ® | 5 | 34.22 | 35,000 | | 2014 | | 2025.10.14 | ¸Å¸Å | ´õÇϿ콺ºô | 5 | 29.57 | 21,500 | | 2011 | | 2025.10.14 | ¿ù¼¼ | ±Ý±¤ÈÞ¸Õ¾¾Æ¼ | 3 | 14.28 | 1,000 | 55 | 2011 | | 2025.10.14 | Àü¼¼ | µ¿¿ì¸Ç¼Ç | 2 | 70.77 | 30,000 | 0 | 2002 | | 2025.10.14 | ¿ù¼¼ | ½¦¾îÇϿ콺 | 3 | 24.89 | 11,100 | 17 | 2012 | | 2025.10.13 | ¸Å¸Å | È¿ÆÄÅ©ºô | 4 | 58.6 | 49,000 | | 2019 | | 2025.10.13 | ¸Å¸Å | »Ñ¸®ºô¶ó | 2 | 53.31 | 33,500 | | 1991 | | 2025.10.13 | ¸Å¸Å | ÀºÇýºô | 2 | 50.45 | 48,000 | | 2011 | | 2025.10.13 | Àü¼¼ | (251-5) | 3 | 143.25 | 10,000 | 0 | 2004 | | 2025.10.13 | ¸Å¸Å | Áß¾Ó(259-12) | 4 | 48.46 | 26,000 | | 1974 | | 2025.10.13 | ¸Å¸Å | ¶ó¿ÂÆ÷·¹ | 5 | 35.62 | 48,000 | | 2023 | | 2025.10.13 | ¸Å¸Å | û¸í¿¡¹öºô¿¡À̵¿ | 5 | 55.04 | 42,000 | | 2013 | | 2025.10.12 | ¸Å¸Å | ¾Æ³×½ºÆ®Bµ¿(256-27) | 2 | 58.64 | 51,000 | | 2016 | | 2025.10.12 | Àü¼¼ | ¼ººó | 3 | 81.12 | 30,000 | 0 | 2001 | | 2025.10.11 | Àü¼¼ | ¹Ì°æºô¶ó(214-35) | 1 | 53.54 | 14,000 | 0 | 1991 | | 2025.10.11 | Àü¼¼ | ¼öÁ¤½¦¸£ºô°¡µ¿ | 2 | 64.5 | 27,000 | 0 | 2003 | | 2025.10.11 | ¿ù¼¼ | (242-77) | 3 | 28.63 | 1,000 | 65 | 2014 | | 2025.10.11 | ¿ù¼¼ | ÇØÇÇÇϿ콺(242-92) | 2 | 18.81 | 13,000 | 20 | 2013 | | 2025.10.11 | Àü¼¼ | ±îÄ¡ºô¶ó | 4 | 74.12 | 23,000 | 0 | 1996 | | 2025.10.11 | Àü¼¼ | ¿¹¼ºô¶ó | 1 | 51.03 | 22,000 | 0 | 1992 | | 2025.10.11 | ¸Å¸Å | ¿ÍÀÌ¿¥½ÃƼ | 3 | 29.99 | 41,000 | | 2022 | | 2025.10.11 | Àü¼¼ | »óµµÈѹи®(214-31) | -1 | 51.03 | 11,500 | 0 | 1993 | | 2025.10.11 | ¸Å¸Å | (210-194) | -1 | 48.57 | 20,700 | | 1997 | | 2025.10.11 | ¸Å¸Å | »óµµ¾ÆÆ®ºô(210-190) | 2 | 28.44 | 31,500 | | 2015 | | 2025.10.11 | ¸Å¸Å | ¿ÍÀÌ¿¥½ÃƼ | 3 | 29.99 | 41,000 | | 2022 | | 2025.10.10 | Àü¼¼ | ½Ã±×´ÏóÆÓ¸®½º | 2 | 56.28 | 28,100 | 0 | 2019 | | 2025.10.10 | ¿ù¼¼ | Áö¾È | 4 | 23.38 | 3,200 | 68 | 2016 | | 2025.10.10 | Àü¼¼ | ´ëÀϺô¶ó(210-252¿Ü) | 2 | 41.57 | 21,850 | 0 | 2015 | | 2025.10.10 | ¿ù¼¼ | È޸ճؽººô(256-6) | 4 | 37.67 | 3,010 | 70 | 2013 | | 2025.10.10 | Àü¼¼ | ½Ã±×´ÏóÆÓ¸®½º | 2 | 56.28 | 28,100 | 0 | 2019 | | 2025.10.10 | ¸Å¸Å | û¸²ºô | 2 | 74.08 | 55,300 | | 2002 | | 2025.10.09 | ¸Å¸Å | »ï¼º½ÃƼºô | 2 | 54.97 | 32,000 | | 2001 | | 2025.10.08 | ¿ù¼¼ | ÄÉÀ̵ð¾ÆÀ̺ôCµ¿ | 1 | 23.285 | 2,000 | 67 | 2007 | | 2025.10.04 | ¸Å¸Å | ¹Ì¼Ò°¡26Â÷ | 4 | 36.18 | 31,150 | | 2018 | | 2025.10.04 | Àü¼¼ | ¸ÇÇÏźÇÏ¿ì¡(256-180) | 3 | 50.38 | 31,973 | 0 | 2019 | | 2025.10.04 | ¿ù¼¼ | ¶ó¿Âºô | 1 | 40.7 | 25,700 | 7 | 2016 | | 2025.10.03 | Àü¼¼ | (159-307) | -1 | 50.85 | 8,500 | 0 | 1986 | | 2025.10.03 | ¿ù¼¼ | (485-11) | 3 | 52.89 | 10,000 | 57 | 2011 | | 2025.10.03 | Àü¼¼ | ÈúÇϿ콺Bµ¿ | 2 | 64.08 | 18,000 | 0 | 2006 | | 2025.10.03 | ¸Å¸Å | ¼Á¤½¦¸£ºô | 2 | 48.83 | 66,000 | | 2015 | | 2025.10.03 | ¸Å¸Å | Çö´ë¸Ç¼Ç | 1 | 67.16 | 45,000 | | 2002 | | 2025.10.02 | ¸Å¸Å | ½ºÅ¸ºô¶ó | 1 | 39.32 | 28,000 | | 2007 | | 2025.10.02 | ¿ù¼¼ | ÇÑ¹é¾ÆÆ®(211-108) | 2 | 49.35 | 3,000 | 100 | 2013 | | 2025.10.02 | ¿ù¼¼ | ÆÓ¸®½ºÅ¸¿î(335-158) | 3 | 50.66 | 1,000 | 81 | 2016 | | 2025.10.02 | ¿ù¼¼ | ¼®°æÆ®¶ó¿ò | 5 | 26.91 | 15,400 | 20 | 2013 | | 2025.10.02 | ¿ù¼¼ | (264-181) | -1 | 80.55 | 1,000 | 40 | 1988 | | 2025.10.02 | ¿ù¼¼ | (264-181) | -1 | 80.55 | 1,000 | 40 | 1988 | | 2025.10.02 | Àü¼¼ | żººô¶ó | 1 | 45.28 | 20,000 | 0 | 1992 | | 2025.10.02 | ¿ù¼¼ | ÆÓ¸®½ºÅ¸¿î(335-158) | 3 | 50.66 | 1,000 | 81 | 2016 | | 2025.10.02 | ¸Å¸Å | µå¸²·°½ººô | 2 | 76 | 43,500 | | 2003 | | 2025.10.02 | ¿ù¼¼ | Á¤¼ºÈúž | 4 | 55.94 | 18,000 | 30 | 1994 | | 2025.10.02 | ¸Å¸Å | È¿¼ºÁÖÅÃ(211-12) | 3 | 42.9 | 41,000 | | 2015 | | 2025.10.02 | ¸Å¸Å | ´õÆ÷·¹½ºÆ®6Â÷ | 2 | 45.1 | 45,000 | | 2019 | | 2025.10.02 | ¸Å¸Å | ¼º¸²°ñµåÇϿ콺 | 4 | 51.57 | 28,000 | | 1994 | | 2025.10.01 | Àü¼¼ | ÀÌ·¹¾ÆÆ®ºô9Â÷(314-32) | 3 | 42.48 | 39,200 | 0 | 2014 | | 2025.10.01 | Àü¼¼ | º¦¿¤ | 1 | 69.23 | 17,500 | 0 | 1997 | | 2025.10.01 | ¿ù¼¼ | ¿¡ºñ´ººô(201-89) | 3 | 23.29 | 15,100 | 15 | 2015 | | 2025.10.01 | ¿ù¼¼ | ¼º¸²ºô¸®Áö1µ¿ | 4 | 70.6 | 20,000 | 60 | 2003 | | 2025.10.01 | Àü¼¼ | º¦¿¤ | 1 | 45.97 | 17,500 | 0 | 1997 | | 2025.10.01 | ¿ù¼¼ | ´Ù¼Ø±×¶ûºô | 5 | 28.99 | 4,000 | 100 | 2019 | | 2025.10.01 | ¿ù¼¼ | (335-228) | 4 | 73.96 | 5,000 | 130 | 2007 | | 2025.10.01 | Àü¼¼ | Çö´ëÇÏÀÌÃ÷ºô¶ó(101µ¿) | 1 | 58.83 | 20,000 | 0 | 1990 | | 2025.10.01 | ¿ù¼¼ | Tivoli | 2 | 28.285 | 500 | 60 | 2001 | | 2025.10.01 | ¸Å¸Å | ¸¶¿îƾºô¶ó | 2 | 65.38 | 31,500 | | 1996 | | 2025.09.30 | ¿ù¼¼ | ½Â¿øÁÖÅà | 5 | 29.69 | 23,500 | 15 | 2020 | | 2025.09.30 | ¿ù¼¼ | ´Ù¼Ø±×¶ûºô | 2 | 21.59 | 0 | 60 | 2020 | | 2025.09.30 | ¸Å¸Å | û¸í¿¡¹öºô | 2 | 40.75 | 32,500 | | 2012 | | 2025.09.30 | ¸Å¸Å | ¿¹¼ºÈÞij½½´Ùµ¿ | 4 | 27.82 | 20,000 | | 2014 | | 2025.09.30 | ¸Å¸Å | ÇѰ´º½ºÅ¸(210-289) | 2 | 35.05 | 31,500 | | 2013 | | 2025.09.30 | ¸Å¸Å | Á¦½Â´õÇÏÀÓ | 4 | 56.68 | 70,000 | | 2011 | | 2025.09.29 | ¸Å¸Å | ´ëÈï¹Ì¼Ò°¡21Â÷ | 4 | 37.46 | 39,300 | | 2016 | | 2025.09.29 | Àü¼¼ | ½ÅÇѽ¦¸£ºô | 2 | 27.19 | 16,000 | 0 | 2013 | | 2025.09.29 | Àü¼¼ | ÈÞij½½(299-160) | 3 | 48.78 | 26,000 | 0 | 2015 | | 2025.09.29 | Àü¼¼ | ÀÌ¿¡½ºÇÏÀÓ7Â÷Aµ¿ | 5 | 26.81 | 30,000 | 0 | 2018 | | 2025.09.29 | ¸Å¸Å | Çö´ëÇÏÀÌÃ÷ºô¶ó(112µ¿) | 2 | 61.49 | 48,000 | | 1991 | | 2025.09.29 | ¸Å¸Å | °¶·¯¸®ÇϿ콺1 | 5 | 54.13 | 35,000 | | 2002 | | 2025.09.29 | ¸Å¸Å | ŰÇÇÏÀÌÃ÷ºô¶ó(159-278) | 3 | 74.67 | 91,350 | | 1986 | | 2025.09.29 | ¸Å¸Å | ÁÖ¿øº£¸£ºô101 | 3 | 48.75 | 39,500 | | 2018 | | 2025.09.29 | ¸Å¸Å | »óµµ¼¼ÀÎÆ®ºôBµ¿(214-42¿Ü) | 1 | 32.04 | 50,000 | | 2014 | | 2025.09.28 | ¸Å¸Å | Çö´ëÈúŸ¿î | 5 | 30.69 | 33,000 | | 2013 | | 2025.09.28 | ¿ù¼¼ | 56-60 | 3 | 56.29 | 25,000 | 10 | 2015 | | 2025.09.28 | ¿ù¼¼ | beginhouse | 4 | 12.04 | 5,000 | 59 | 2014 | | 2025.09.28 | ¿ù¼¼ | beginhouse | 4 | 12.04 | 5,000 | 59 | 2014 | | 2025.09.27 | Àü¼¼ | »óµµ¼¼ÀÎÆ®ºôEµ¿(214-150¿Ü) | 2 | 39.02 | 20,000 | 0 | 2015 | | 2025.09.27 | Àü¼¼ | À¯¼ºÁÖÅÃ21Â÷ | 1 | 93.35 | 33,000 | 0 | 1998 | | 2025.09.27 | Àü¼¼ | ¹Ì¼Ò°¡20Â÷ | 2 | 47.31 | 24,500 | 0 | 2016 | | 2025.09.27 | ¿ù¼¼ | (302-16) | 4 | 69.94 | 23,000 | 30 | 2008 | | 2025.09.27 | ¿ù¼¼ | ¹Ì¼Ò°¡25Â÷Bµ¿ | 5 | 24.12 | 3,000 | 80 | 2017 | | 2025.09.27 | ¸Å¸Å | ¸®¿òÆç¸®Ã¼ | 2 | 58.617 | 57,500 | | 2021 | | 2025.09.27 | ¸Å¸Å | û¸í¿¡¹öºô | 2 | 36.76 | 32,500 | | 2012 | | 2025.09.27 | ¸Å¸Å | ³ªÀÎÈúÇϿ콺(256-62) | 2 | 29.96 | 31,900 | | 2014 | | 2025.09.27 | ¸Å¸Å | ´Ù³ª³×½ºÆ®ºô(241-11) | 4 | 37.4 | 50,000 | | 2008 | | 2025.09.27 | ¸Å¸Å | ´ë¿ÕÁÖÅÃ11Â÷ | 1 | 35.88 | 45,000 | | 2008 | | 2025.09.26 | ¸Å¸Å | ¿ì¼ººô¶ó(299-19) | 1 | 41.94 | 33,000 | | 1993 | | 2025.09.26 | ¸Å¸Å | ¿ìÇöºô¶óÆ® | 3 | 46.52 | 69,700 | | 2014 | | 2025.09.26 | ¸Å¸Å | ÀÌ¿¡½ºÇÏÀÓ | 2 | 40.45 | 35,000 | | 2016 | | 2025.09.26 | ¸Å¸Å | ¶ó¿ÂÆ÷·¹ | 3 | 49.26 | 67,000 | | 2023 | | 2025.09.26 | ¸Å¸Å | ½¦¾îÇϿ콺 | 2 | 25.25 | 25,000 | | 2012 | | 2025.09.26 | ¿ù¼¼ | º¦¿¤ | 3 | 69.68 | 17,000 | 20 | 1997 | | 2025.09.26 | ¿ù¼¼ | º¦¿¤ | 3 | 69.68 | 17,000 | 20 | 1997 | | 2025.09.26 | Àü¼¼ | º¦¿¤ | 3 | 69.68 | 21,000 | 0 | 1997 | | 2025.09.26 | ¸Å¸Å | ½¦¾îÇϿ콺 | 2 | 25.25 | 24,500 | | 2012 | | 2025.09.25 | ¿ù¼¼ | µî¾ÈÁ¤(335-149) | 5 | 23.42 | 3,000 | 60 | 2011 | | 2025.09.25 | ¿ù¼¼ | µî¾ÈÁ¤(335-149) | 5 | 23.42 | 3,000 | 60 | 2011 | | 2025.09.25 | Àü¼¼ | û¿ø°¡µçºô¶óAµ¿ | 3 | 84.8 | 40,000 | 0 | 1988 | | 2025.09.25 | Àü¼¼ | ÇØÇÇÇϿ콺(283-41) | 5 | 42.16 | 26,000 | 0 | 2015 | | 2025.09.25 | Àü¼¼ | ³«¿ø±×¸°ºô¶ó | 2 | 73.5 | 27,500 | 0 | 1997 | | 2025.09.25 | ¸Å¸Å | Å×¹ÌÇϿ콺 | 4 | 70.5 | 39,900 | | 2008 | | 2025.09.25 | ¸Å¸Å | ¼±°æ | 2 | 59.97 | 69,000 | | 2002 | | 2025.09.25 | ¸Å¸Å | ´ëÈï¹Ì¼Ò°¡19Â÷ | 4 | 35.74 | 35,700 | | 2016 | | 2025.09.25 | ¸Å¸Å | ÀºÇàºô¶óAµ¿ | 1 | 49.14 | 48,000 | | 1986 | | 2025.09.25 | ¸Å¸Å | »ïÁöºô¶ó | -1 | 45.02 | 45,800 | | 1991 | | 2025.09.25 | ¸Å¸Å | ÄÉÀ̵ð¾ÆÀ̺ôEµ¿ | 2 | 23.29 | 14,500 | | 2007 | | 2025.09.25 | ¸Å¸Å | ÄÉÀ̵ð¾ÆÀ̺ôEµ¿ | 3 | 23.29 | 14,500 | | 2007 | | 2025.09.24 | Àü¼¼ | Çö´ëºô¶ó(299-24) | 4 | 69.48 | 30,000 | 0 | 1996 | | 2025.09.24 | ¸Å¸Å | û¸í¿¡¹öºô | 3 | 39.56 | 32,000 | | 2012 | | 2025.09.23 | ¸Å¸Å | ´Ù¼Ø±×¶ûºô(299-153) | 1 | 43.24 | 46,500 | | 2019 | | 2025.09.23 | ¸Å¸Å | ¹Ì¼ºÇص帲(210-206) | 2 | 59.84 | 56,700 | | 2022 | | 2025.09.23 | ¸Å¸Å | ¹Ì¼ºÇص帲 | 2 | 27.48 | 33,000 | | 2018 | | 2025.09.22 | Àü¼¼ | ´Ù³ª³×½ºÆ®ºô(211-91) | 1 | 28.26 | 12,000 | 0 | 2008 | | 2025.09.22 | ¿ù¼¼ | ÄÉÀ̵ð¾ÆÀ̺ôDµ¿ | 1 | 24.45 | 12,000 | 15 | 2007 | | 2025.09.22 | ¿ù¼¼ | °³²ºô(279-34) | 1 | 59.56 | 12,000 | 50 | 2013 | | 2025.09.22 | Àü¼¼ | ¹Ì¼ºÇص帲(256-228) | 5 | 29.96 | 17,500 | 0 | 2016 | | 2025.09.22 | ¿ù¼¼ | »óµµ´õÇÏÀÓ | 3 | 48.97 | 5,000 | 150 | 2022 | | 2025.09.22 | ¿ù¼¼ | ³«¿ø±×¸°ºô¶ó | 3 | 64.89 | 15,000 | 70 | 1997 | | 2025.09.22 | Àü¼¼ | ´Ù¼Ø±×¶ûºô | 2 | 23.47 | 17,700 | 0 | 2020 | | 2025.09.22 | ¸Å¸Å | Á¾ÀξƳ׽ºÆ®(211-436) | 5 | 58.31 | 47,000 | | 2012 | | 2025.09.22 | ¸Å¸Å | ÀνººôBµ¿ | 2 | 43.82 | 66,000 | | 2016 | | 2025.09.22 | ¸Å¸Å | µ¿¼ººô¶ó | 4 | 67.26 | 38,000 | | 2001 | | 2025.09.21 | ¸Å¸Å | Áø¼ººô | 1 | 63.96 | 47,000 | | 2005 | | 2025.09.21 | ¿ù¼¼ | À§³Ê½ºÈú | 5 | 20.65 | 8,000 | 41 | 2011 | | 2025.09.21 | Àü¼¼ | ¸¶³ë¾ÆÀç | 3 | 43.56 | 29,400 | 0 | 2015 | | 2025.09.21 | ¿ù¼¼ | ¸¶³ë¾ÆÀç | 1 | 43.56 | 27,563 | 5 | 2015 | | 2025.09.21 | ¸Å¸Å | ´ëÈï¹Ì¼Ò°¡(214-221) | 4 | 37.22 | 36,000 | | 2012 | | 2025.09.20 | Àü¼¼ | ±×·£µåŸ¿î | 1 | 45.28 | 16,000 | 0 | 2001 | | 2025.09.20 | Àü¼¼ | º§¶ó·çü | 5 | 46.69 | 34,000 | 0 | 2020 | | 2025.09.20 | Àü¼¼ | ´Ù¿ø¾¾¾Ø¾ÆÀÌ | 3 | 29.9 | 24,800 | 0 | 2018 | | 2025.09.20 | Àü¼¼ | »óµµµ¿ÇÏÀ̺ô | 4 | 63.02 | 31,100 | 0 | 2003 | | 2025.09.20 | ¿ù¼¼ | ÇѺû¿¡ÄÚºô | 5 | 27.94 | 18,580 | 10 | 2014 | | 2025.09.20 | ¸Å¸Å | ½¦¾îÇϿ콺 | 1 | 12.2 | 17,000 | | 2012 | | 2025.09.20 | ¸Å¸Å | ¹Ì¼Ò°¡9Â÷ | 3 | 33.7 | 35,000 | | 2013 | | 2025.09.20 | ¸Å¸Å | (493-0) | 4 | 53.64 | 31,300 | | 1992 | | 2025.09.20 | ¿ù¼¼ | »óµµÃ¿½Ã2 | 4 | 29.66 | 23,000 | 10 | 2018 | | 2025.09.20 | ¸Å¸Å | ´ë¿ÕÁÖÅÃ(210-286) | 2 | 56.65 | 42,000 | | 2015 | | 2025.09.20 | ¿ù¼¼ | JABEZHOUSE | 3 | 26.8 | 1,000 | 65 | 2002 | | 2025.09.20 | Àü¼¼ | (204-121) | 4 | 60.46 | 25,000 | 0 | 2008 | | 2025.09.20 | Àü¼¼ | Å×¹ÌÇϿ콺 | 2 | 67.16 | 25,000 | 0 | 2008 | | 2025.09.20 | ¸Å¸Å | ÁØÇϿ콺 | 5 | 51.2 | 30,500 | | 2009 | | 2025.09.19 | ¸Å¸Å | ÀÌ¿¡½ºÇÏÀÓ12Â÷ | 3 | 29.91 | 34,000 | | 2023 | | 2025.09.19 | ¸Å¸Å | û¼Öº£½ºÆ®ºô | 3 | 77.79 | 51,850 | | 2001 | | 2025.09.19 | Àü¼¼ | ÇѰ¸®Ã÷ºô(279-272) | 1 | 60.56 | 24,000 | 0 | 2008 | | 2025.09.19 | Àü¼¼ | ·Î¾âÆÓ¸®½º | 3 | 52.97 | 27,500 | 0 | 2016 | | 2025.09.19 | ¿ù¼¼ | ÇÑ¿ïºôµù | 5 | 12.07 | 1,000 | 55 | 2012 | | 2025.09.19 | Àü¼¼ | ÇѰ¸®Ã÷ºô(279-272) | 1 | 60.56 | 24,000 | 0 | 2008 | | 2025.09.19 | ¿ù¼¼ | ÇѰÆÓ¸®½º | 4 | 39.68 | 1,500 | 85 | 2009 | | 2025.09.19 | ¸Å¸Å | ½Â¿øÁÖÅÃ(299-1) | 4 | 29.99 | 40,000 | | 2023 | | 2025.09.18 | ¿ù¼¼ | ÇØ´ãä»óµµ | 2 | 45.07 | 13,000 | 60 | 2016 | | 2025.09.18 | Àü¼¼ | ¼§±×¸±¶óVI | 5 | 29.96 | 25,400 | 0 | 2016 | | 2025.09.18 | Àü¼¼ | µ¿»ê±×¸°ºô | 4 | 66.52 | 25,000 | 0 | 2001 | | 2025.09.18 | Àü¼¼ | ¸ð°Çºô¶óAµ¿ | 4 | 49.9 | 15,200 | 0 | 2002 | | 2025.09.18 | ¿ù¼¼ | °³²Æç¸®Ã¼ | 3 | 51.34 | 10,000 | 100 | 2016 | | 2025.09.18 | Àü¼¼ | ¹Ý¼®(279-110) | 2 | 68.76 | 27,000 | 0 | 1997 | | 2025.09.18 | ¸Å¸Å | ½¦¾îÇϿ콺 | 3 | 12.96 | 17,000 | | 2012 | | 2025.09.17 | ¸Å¸Å | ¼º¸²ÇÏÀÌÃ÷ | 2 | 32.7 | 35,000 | | 1991 | | 2025.09.17 | ¸Å¸Å | ½¦¾îÇϿ콺 | 2 | 19.98 | 23,000 | | 2012 | | 2025.09.17 | ¿ù¼¼ | ÇÑÁöºØ¾ÆÆ®ºô | 2 | 74.7 | 12,000 | 17 | 2009 | | 2025.09.17 | ¸Å¸Å | µÕÁöÇϿ콺 | 3 | 40.28 | 30,500 | | 2001 | | 2025.09.17 | Àü¼¼ | ÆÈ·¹½ººô | 1 | 69.66 | 29,900 | 0 | 2001 | | 2025.09.17 | Àü¼¼ | ±×¸°Èú | 5 | 42.77 | 23,800 | 0 | 2014 | | 2025.09.16 | ¿ù¼¼ | (242-11) | 5 | 58.94 | 3,000 | 115 | 2003 | | 2025.09.16 | ¸Å¸Å | ´ÙºóÄ¡(256-9) | 4 | 10.94 | 15,000 | | 2018 | | 2025.09.16 | ¸Å¸Å | ·ÎÁ¨ºô | 4 | 22.92 | 21,500 | | 2016 | | 2025.09.16 | ¸Å¸Å | ¿¤¸®½Ã¾Æ | 3 | 29.89 | 27,800 | | 2014 | | 2025.09.16 | ¸Å¸Å | ¼§±×¸±¶ó | 3 | 59.51 | 39,000 | | 2016 | | 2025.09.16 | Àü¼¼ | ³ªÀÎÈúÇϿ콺(256-62) | 4 | 73.27 | 37,800 | 0 | 2014 | | 2025.09.16 | Àü¼¼ | ´ëÈï¹Ì¼Ò°¡(210-108) | 3 | 47.18 | 24,900 | 0 | 2014 | | 2025.09.16 | Àü¼¼ | ´Ù³ª³×½ºÆ®ºô(203-33) | 4 | 55.02 | 18,900 | 0 | 2008 | | 2025.09.16 | ¸Å¸Å | ¹Ì¼ºÇص帲(256-228) | 5 | 29.96 | 24,500 | | 2016 | | 2025.09.15 | ¿ù¼¼ | (17-52) | 4 | 127.22 | 500 | 45 | 2003 | | 2025.09.15 | ¸Å¸Å | ÇѰ´º½ºÅ¸3µ¿ | 2 | 58.22 | 51,500 | | 2016 | | 2025.09.15 | ¸Å¸Å | ½¦¾îÇϿ콺 | 1 | 12.96 | 16,400 | | 2012 | | 2025.09.15 | ¿ù¼¼ | ¼Ò´ãºô¸®Áö(279-396) | 3 | 29.76 | 11,000 | 40 | 2014 | | 2025.09.15 | ¿ù¼¼ | ÀÌ·¹¾ÆÆ®ºô12Â÷ | 4 | 29.56 | 20,200 | 10 | 2016 | | 2025.09.15 | ¸Å¸Å | ½¦¾îÇϿ콺 | 2 | 12.96 | 16,000 | | 2012 | | 2025.09.15 | ¿ù¼¼ | ÈÞ¸ÕŸ¿î | 2 | 58.68 | 1,000 | 47 | 2003 | | 2025.09.15 | ¿ù¼¼ | ¼Ò´ãºô¸®Áö(279-396) | 3 | 29.76 | 11,000 | 40 | 2014 | | 2025.09.15 | ¿ù¼¼ | ¹Ì¼Òºô | 4 | 29.97 | 20,900 | 20 | 2017 | | 2025.09.15 | ¿ù¼¼ | (366-9) | 2 | 29.39 | 3,000 | 80 | 2019 | | 2025.09.14 | ¿ù¼¼ | ¸ð¾Æºô | 4 | 35.63 | 13,000 | 30 | 2003 | | 2025.09.13 | Àü¼¼ | ÇѺû¼¾½ººô | 3 | 62.01 | 19,000 | 0 | 2002 | | 2025.09.13 | ¿ù¼¼ | ¿¡½ºÁ¦À̺ô(324-63) | 2 | 29.99 | 2,000 | 58 | 2014 | | 2025.09.13 | ¿ù¼¼ | ±Ý»êºô | 1 | 29.8 | 15,000 | 20 | 2016 | | 2025.09.13 | ¿ù¼¼ | µî¾ÈÁ¤(335-149) | 2 | 12.07 | 1,000 | 45 | 2011 | | 2025.09.13 | Àü¼¼ | ¸®¾È¾ÆÆ® | 2 | 28.77 | 19,000 | 0 | 2018 | | 2025.09.13 | ¸Å¸Å | µå¸²ÆÓ¸®½º | 4 | 29.64 | 50,000 | | 2011 | | 2025.09.13 | ¸Å¸Å | °ñµåij½½(210-132) | 2 | 22.12 | 19,000 | | 2013 | | 2025.09.13 | Àü¼¼ | ·ç³ªÆ÷·¹30 | 5 | 49.88 | 39,700 | 0 | 2022 | | 2025.09.13 | ¸Å¸Å | °ñµåij½½(210-132) | 2 | 22.12 | 19,000 | | 2013 | | 2025.09.13 | ¸Å¸Å | ´ë¸íºô¶ó(279-356) | 3 | 47.06 | 28,000 | | 1992 | | 2025.09.13 | ¿ù¼¼ | ½ºÅ¸Æç¸®½º | 3 | 27.38 | 13,000 | 70 | 2024 | | 2025.09.13 | ¸Å¸Å | ´ë¿µºô¶ó(299-2) | -1 | 34.23 | 19,000 | | 1994 | | 2025.09.13 | ¸Å¸Å | (199-7) | 2 | 36.96 | 43,000 | | 1986 | | 2025.09.13 | ¸Å¸Å | ¸ð°Ç½¦¸£ºô | 3 | 29.7 | 24,000 | | 2012 | | 2025.09.12 | ¿ù¼¼ | ±Ý±¤ÈÞ¸Õ¾¾Æ¼ | 2 | 12.14 | 1,000 | 55 | 2011 | | 2025.09.12 | ¿ù¼¼ | ±Ý±¤ÈÞ¸Õ¾¾Æ¼ | 2 | 12.14 | 1,000 | 55 | 2011 | | 2025.09.12 | Àü¼¼ | Ǫ¸¥ÁÖÅÃ¥± | 5 | 28.34 | 24,444 | 0 | 2021 | | 2025.09.12 | ¸Å¸Å | ÀÌ·¹¾ÆÆ®ºô(358-8) | 6 | 29.21 | 32,500 | | 2013 | | 2025.09.12 | ¸Å¸Å | ½¦¾îÇϿ콺 | 1 | 14.98 | 16,400 | | 2012 | | 2025.09.11 | ¸Å¸Å | ÇѰÆÓ¸®½º | 2 | 59.95 | 43,800 | | 2009 | | 2025.09.11 | ¸Å¸Å | »óµµÁ¨Æ®¸®ÇÏÀÓ | 2 | 30.69 | 28,000 | | 2018 | | 2025.09.11 | ¸Å¸Å | žÇϿ콺ºô | 1 | 51.6 | 26,500 | | 2001 | | 2025.09.11 | ¸Å¸Å | µ¿¿øºô¶ó(210-2) | 1 | 48 | 26,000 | | 2003 | | 2025.09.11 | ¸Å¸Å | û¸í¿¡¹öºôºñµ¿ | 4 | 29.86 | 31,400 | | 2013 | | 2025.09.11 | Àü¼¼ | ¿ìÁÖ | 4 | 13.73 | 6,500 | 0 | 2012 | | 2025.09.11 | Àü¼¼ | ÇØÇÇÇϿ콺2Â÷ | 3 | 43.13 | 30,000 | 0 | 2015 | | 2025.09.11 | Àü¼¼ | ´Ù¼Ø±×¶ûºô | 2 | 23.47 | 17,700 | 0 | 2020 | | 2025.09.11 | Àü¼¼ | »óµµÈú | 4 | 27.68 | 15,700 | 0 | 2017 | | 2025.09.11 | ¸Å¸Å | ¸®¿òÆç¸®Ã¼ | 3 | 57.782 | 59,000 | | 2021 | | 2025.09.11 | ¿ù¼¼ | ´ë¼ºÇÏÀ̺ô¶óAµ¿ | 1 | 35.52 | 2,000 | 80 | 1991 | | 2025.09.10 | ¸Å¸Å | ¿¹¼º¼¾Æ®·²ºô | 1 | 53.16 | 45,000 | | 2013 | | 2025.09.10 | ¸Å¸Å | µ¿½ÅÁÖÅà | 2 | 55.28 | 29,500 | | 1995 | | 2025.09.10 | ¸Å¸Å | Àå¾È°ñµåºô¶ó°¡µ¿ | 1 | 77.83 | 73,500 | | 1993 | | 2025.09.10 | ¿ù¼¼ | ±Ý±¤ÈÞ¸Õ¾¾Æ¼ | 2 | 22.19 | 2,000 | 80 | 2011 | | 2025.09.10 | Àü¼¼ | ¹Ì¼ºÇص帲(214-411) | 1 | 29.93 | 20,000 | 0 | 2014 | | 2025.09.10 | ¿ù¼¼ | ½ÅȰ¡¿Âä | 6 | 29.3 | 4,000 | 104 | 2015 | | 2025.09.10 | Àü¼¼ | ¸¸¹Îº£½ºÆ®ºô | 5 | 60.61 | 30,000 | 0 | 2009 | | 2025.09.10 | Àü¼¼ | ¹Ì¼Ò°¡26Â÷ | 2 | 36.18 | 26,400 | 0 | 2018 | | 2025.09.10 | ¸Å¸Å | ÇØÇÇÇϿ콺(242-92) | 4 | 17.45 | 30,600 | | 2013 | | 2025.09.09 | ¸Å¸Å | ½¦¾îÇϿ콺 | 1 | 15.08 | 16,500 | | 2012 | | 2025.09.09 | ¸Å¸Å | ½¦¾îÇϿ콺 | 1 | 14.98 | 16,400 | | 2012 | | 2025.09.09 | ¸Å¸Å | Á¦½Â´õÇÏÀÓ | 2 | 13.33 | 37,000 | | 2011 | | 2025.09.09 | ¸Å¸Å | û¿îÆÄÅ©ºô | 4 | 71.44 | 48,000 | | 2002 | | 2025.09.09 | ¸Å¸Å | ´Ù³ª³×½ºÆ®ºô(211-91) | 1 | 28.26 | 20,500 | | 2008 | | 2025.09.09 | Àü¼¼ | ¶ó¿ÂÈú½º | 4 | 52.89 | 29,000 | 0 | 2022 | | 2025.09.09 | Àü¼¼ | µå¸²ÇϿ콺¥± | 5 | 29.1 | 22,000 | 0 | 2014 | | 2025.09.09 | Àü¼¼ | ¹Ì¼Ò°¡26Â÷ | 4 | 36.18 | 26,400 | 0 | 2018 | | 2025.09.08 | ¿ù¼¼ | ¿¤¸®½Ã¾Æ | 3 | 43.41 | 20,000 | 25 | 2014 | | 2025.09.08 | ¸Å¸Å | ÄÉÀ̵ð¾ÆÀ̺ôCµ¿ | 1 | 29.945 | 17,500 | | 2007 | | 2025.09.08 | ¿ù¼¼ | ¹ÎÀÌÇÏÀÌÃ÷ºô | 1 | 76.75 | 400 | 60 | 2003 | | 2025.09.08 | ¸Å¸Å | û¼Û¾Æ¸£´©º¸ | 2 | 79.16 | 43,000 | | 2003 | | 2025.09.08 | ¿ù¼¼ | ¹Ì¼ºÇص帲 | 2 | 34.63 | 5,000 | 85 | 2018 | | 2025.09.08 | ¸Å¸Å | ¿¹¼º¼¾Æ®·²ºô | 2 | 29.82 | 26,500 | | 2013 | | 2025.09.08 | ¸Å¸Å | ŰÇÇÏÀÌÃ÷ºô¶ó(159-278) | 3 | 74.67 | 91,350 | | 1986 | | 2025.09.08 | ¸Å¸Å | ´ëÈï¹Ì¼Ò°¡(210-108) | 3 | 47.16 | 34,000 | | 2014 | | 2025.09.07 | ¸Å¸Å | ÇØÇÇÇϿ콺(242-92) | 2 | 14.01 | 24,600 | | 2013 | | 2025.09.07 | ¸Å¸Å | ÇØÇÇÇϿ콺(242-92) | 3 | 17.45 | 30,600 | | 2013 | | 2025.09.07 | ¿ù¼¼ | À§³Ê½ºÈú | 5 | 20.65 | 10,000 | 33 | 2011 | | 2025.09.07 | ¿ù¼¼ | ÁøÈïǪ¸£Áö¿À | 4 | 42.98 | 5,000 | 95 | 2013 | | 2025.09.07 | ¸Å¸Å | ÇØÇÇÇϿ콺(242-92) | 2 | 18.81 | 33,000 | | 2013 | | 2025.09.07 | ¸Å¸Å | ÇØÇÇÇϿ콺(242-92) | 4 | 14.01 | 24,600 | | 2013 | | 2025.09.07 | ¸Å¸Å | ¹Ìµµºô¶ó(244-221) | 1 | 38.16 | 44,000 | | 1986 | | 2025.09.07 | ¸Å¸Å | ÇØÇÇÇϿ콺(242-92) | 2 | 17.45 | 30,600 | | 2013 | | 2025.09.07 | ¸Å¸Å | (361-63) | 3 | 47.96 | 35,000 | | 2004 | | 2025.09.06 | ¿ù¼¼ | µ¿¹æÆÄ·¹½ººô¶ó13Â÷ | 3 | 48.06 | 16,000 | 20 | 1991 | | 2025.09.06 | Àü¼¼ | µå¸²Ä³½½(33-6) | 6 | 40.62 | 33,600 | 0 | 2016 | | 2025.09.06 | Àü¼¼ | µå¸²Ä³½½(33-6) | 6 | 40.62 | 33,600 | 0 | 2016 | | 2025.09.06 | Àü¼¼ | »óµµ¼¼ÀÎÆ®ºôDµ¿(214-28¿Ü) | 3 | 41.21 | 25,450 | 0 | 2015 | | 2025.09.06 | Àü¼¼ | µå¸²Ä³½½(33-6) | 6 | 40.62 | 33,600 | 0 | 2016 | | 2025.09.06 | ¸Å¸Å | Á¤¿ø½ÃƼºô | 3 | 63.38 | 60,000 | | 1997 | | 2025.09.06 | ¸Å¸Å | ÆÓ¸®½ºÅ¸¿î(335-139) | 3 | 51.25 | 44,000 | | 2014 | | 2025.09.06 | ¿ù¼¼ | ´ë¿ÕÁÖÅÃ(210-30) | 4 | 55.29 | 5,000 | 100 | 2016 | | 2025.09.05 | ¸Å¸Å | ÁØÇϿ콺2Â÷ | 5 | 77.12 | 49,000 | | 2010 | | 2025.09.05 | Àü¼¼ | µå¸²Ä³½½(33-6) | 3 | 71.98 | 36,000 | 0 | 2016 | | 2025.09.05 | ¸Å¸Å | ÇѰ´º½ºÅ¸(299-21) | 3 | 38.12 | 38,000 | | 2015 | | 2025.09.05 | ¸Å¸Å | ÇØÇÇÇϿ콺(242-92) | 3 | 18.84 | 32,500 | | 2013 | | 2025.09.05 | ¸Å¸Å | ÇØÇÇÇϿ콺(242-92) | 4 | 18.84 | 32,500 | | 2013 | | 2025.09.05 | ¸Å¸Å | ÇØÇÇÇϿ콺(242-92) | 2 | 18.84 | 32,500 | | 2013 | | 2025.09.05 | ¿ù¼¼ | ¼º¿ì(474-13) | 3 | 27.6 | 7,000 | 64 | 2016 | | 2025.09.05 | ¸Å¸Å | ÇѰ´º½ºÅ¸(299-21) | 3 | 38.12 | 38,000 | | 2015 | | 2025.09.04 | ¸Å¸Å | ŰÇÇÏÀÌÃ÷ºô¶ó(159-278) | 2 | 74.67 | 91,350 | | 1986 | | 2025.09.03 | Àü¼¼ | »ï¼ºÈ¨Å¸¿îAµ¿ | 1 | 52.29 | 17,000 | 0 | 2002 | | 2025.09.03 | ¿ù¼¼ | ¸ñȺô¶ó(279-235) | 4 | 74.19 | 5,000 | 120 | 1995 | | 2025.09.03 | ¸Å¸Å | ŰÇÇÏÀÌÃ÷ºô¶ó(159-278) | 2 | 74.67 | 91,350 | | 1986 | | 2025.09.03 | ¸Å¸Å | È¿¼º¾ÆÆ®ºô | 3 | 76.24 | 73,000 | | 2002 | | 2025.09.03 | ¿ù¼¼ | ³«¿ø±×¸°Å¸¿ö³ªµ¿ | 4 | 65.98 | 50 | 15 | 1998 | | 2025.09.03 | ¸Å¸Å | »óµµµå¸²ºô(214-321) | 2 | 46.4 | 39,500 | | 2008 | | 2025.09.03 | Àü¼¼ | »ï¼ºÈ¨Å¸¿îAµ¿ | 1 | 52.29 | 17,000 | 0 | 2002 | | 2025.09.03 | ¿ù¼¼ | (55-102) | 1 | 37.25 | 5,000 | 60 | 1995 | | 2025.09.03 | ¸Å¸Å | ¼±°æºô¶ó3Â÷ | 3 | 59.96 | 50,000 | | 1994 | | 2025.09.02 | Àü¼¼ | µÕÁöºô¶ó(235-3) | 1 | 65.85 | 28,000 | 0 | 2002 | | 2025.09.02 | Àü¼¼ | ½Â¿øÁÖÅÃ(299-1) | 5 | 49.62 | 40,000 | 0 | 2023 | | 2025.09.02 | Àü¼¼ | º¦¿¤ | 2 | 69.68 | 23,000 | 0 | 1997 | | 2025.09.02 | Àü¼¼ | ÇØµçÇϿ콺 | 3 | 41.12 | 21,000 | 0 | 2012 | | 2025.09.02 | ¿ù¼¼ | ´ÙºóÄ¡(256-9) | 2 | 15.32 | 8,500 | 35 | 2018 | | 2025.09.02 | ¿ù¼¼ | ´ÙºóÄ¡(256-9) | 2 | 15.32 | 13,000 | 35 | 2018 | | 2025.09.02 | ¿ù¼¼ | ´ÙºóÄ¡(256-9) | 2 | 15.32 | 13,000 | 35 | 2018 | | 2025.09.02 | ¿ù¼¼ | µ¿¿øºô¶ó(157-22) | -1 | 50.56 | 1,000 | 47 | 2002 | | 2025.09.02 | ¸Å¸Å | ÇѰ´º½ºÅ¸Bµ¿2Â÷ | 5 | 40.43 | 31,500 | | 2014 | | 2025.09.02 | ¸Å¸Å | ¶ó¿ÂÈú½º | 4 | 29.93 | 38,000 | | 2022 | | 2025.09.01 | ¸Å¸Å | ¸¼Àº¼¼»óºô¸®Áö | 4 | 34.16 | 23,000 | | 2012 | | 2025.09.01 | ¸Å¸Å | ´Ù¼Ø±×¶ûºô | 2 | 29.86 | 39,300 | | 2020 | | 2025.09.01 | ¸Å¸Å | ¸®¿òÆç¸®Ã¼ | 1 | 58.617 | 56,000 | | 2021 | | 2025.09.01 | ¸Å¸Å | »óµµÈѹи®(214-31) | 2 | 51.03 | 35,000 | | 1993 | | 2025.09.01 | ¸Å¸Å | ÇѸ¶À½ºô | 4 | 63.5 | 37,300 | | 2002 | | 2025.09.01 | Àü¼¼ | ÀºÇýºô | 4 | 51.7 | 16,000 | 0 | 2011 | | 2025.09.01 | ¿ù¼¼ | Çö´ëÈѹ̸®(Çö´ëºô¶ó) | -1 | 84.63 | 20,000 | 10 | 2000 | | 2025.09.01 | Àü¼¼ | °³²Ä³½½(264-42) | 3 | 69.85 | 35,000 | 0 | 2014 | | 2025.09.01 | Àü¼¼ | ¹Ì¼Ò°¡Aµ¿(244-252) | 4 | 29.83 | 25,000 | 0 | 2018 | | 2025.09.01 | Àü¼¼ | (256-209) | 4 | 66.7 | 36,980 | 0 | 2014 | | 2025.09.01 | Àü¼¼ | ÇѰºô¶ó | 1 | 36.18 | 12,600 | 0 | 1992 | | 2025.09.01 | ¿ù¼¼ | ½Å¼ºÇÏÀÌÃ÷(299-68) | 1 | 76.68 | 25,000 | 20 | 2000 | | 2025.09.01 | Àü¼¼ | ¿À¼ºÇÏÀÌÃ÷ | 3 | 33 | 10,000 | 0 | 1992 | | 2025.09.01 | ¿ù¼¼ | »ïµµºô¸®Áö | 2 | 36.45 | 2,000 | 95 | 2016 | | 2025.09.01 | ¸Å¸Å | ¸¼Àº¼¼»óºô¸®Áö | 3 | 59.335 | 45,000 | | 2012 | | 2025.09.01 | ¿ù¼¼ | 491-20 | 5 | 14.4 | 1,000 | 42 | 2013 | | 2025.08.30 | Àü¼¼ | ÇѰ¸®Ã÷ºô(279-272) | 1 | 61.03 | 23,000 | 0 | 2008 | | 2025.08.30 | ¿ù¼¼ | (366-9) | 3 | 29.34 | 3,000 | 80 | 2019 | | 2025.08.30 | ¿ù¼¼ | (495-2) | 4 | 15.41 | 1,000 | 50 | 1995 | | 2025.08.30 | ¿ù¼¼ | ¸ÇÇÏźÇÏ¿ì¡(256-180) | 2 | 50.39 | 23,000 | 36 | 2019 | | 2025.08.30 | ¸Å¸Å | ±ÃÀü±×¸°ºô¶ó | 4 | 44.9 | 30,000 | | 1996 | | 2025.08.30 | ¸Å¸Å | »óµµµ¿ÇÏÀ̺ô | 5 | 54.05 | 62,000 | | 2003 | | 2025.08.30 | ¸Å¸Å | ÀÌ·¹¾ÆÆ®ºô(358-8) | 4 | 29.27 | 32,000 | | 2013 | | 2025.08.30 | ¸Å¸Å | ¶ó¿ÂÈú½º | 2 | 53.11 | 45,500 | | 2022 | | 2025.08.30 | ¸Å¸Å | û±¸ºô¶ó1Â÷ | 1 | 123.15 | 78,000 | | 1991 | | 2025.08.29 | ¿ù¼¼ | ¿¡±×¸®³ª(256-31) | 2 | 57.12 | 30,000 | 4 | 2015 | | 2025.08.29 | ¿ù¼¼ | ¿¡±×¸®³ª(256-31) | 2 | 57.12 | 30,000 | 4 | 2015 | | 2025.08.29 | ¿ù¼¼ | ÇÑÁöºØ¾ÆÆ®ºô | 3 | 74.7 | 5,000 | 110 | 2009 | | 2025.08.29 | ¿ù¼¼ | ´ÙºóÄ¡(256-9) | 3 | 23.07 | 10,000 | 10 | 2018 | | 2025.08.29 | ¿ù¼¼ | ´ÙºóÄ¡(256-9) | 3 | 23.07 | 10,000 | 10 | 2018 | | 2025.08.29 | ¿ù¼¼ | ´ë¿Õºô(198-31) | 1 | 42.14 | 3,000 | 70 | 2011 | | 2025.08.29 | Àü¼¼ | (210-194) | 1 | 48.57 | 19,558 | 0 | 1997 | | 2025.08.29 | ¿ù¼¼ | ´ÙºóÄ¡(256-9) | 3 | 23.07 | 10,000 | 10 | 2018 | | 2025.08.29 | ¿ù¼¼ | ÇÑ¿ïºôµù | 4 | 12.05 | 1,000 | 55 | 2012 | | 2025.08.29 | ¸Å¸Å | ÁÖ¿øº£¸£ºô101 | 2 | 50.98 | 39,700 | | 2018 | | 2025.08.29 | ¸Å¸Å | ÇØÇÇÇϿ콺(242-92) | 2 | 14.23 | 25,000 | | 2013 | | 2025.08.29 | ¸Å¸Å | ÇØÇÇÇϿ콺(242-92) | 3 | 14.23 | 25,000 | | 2013 | | 2025.08.29 | ¸Å¸Å | ÇØÇÇÇϿ콺(242-92) | 3 | 14.01 | 24,500 | | 2013 | | 2025.08.29 | ¸Å¸Å | ¸¼Àº¼¼»óºô¸®Áö | 3 | 59.335 | 40,000 | | 2012 | | 2025.08.29 | ¸Å¸Å | ÇØÇÇÇϿ콺(242-92) | 4 | 14.23 | 25,000 | | 2013 | | 2025.08.29 | ¸Å¸Å | ÆÓ¸®½ºÅ¸¿î(335-158) | 2 | 58.93 | 61,200 | | 2016 | | 2025.08.29 | ¸Å¸Å | ÇѰºô¶ó | 4 | 36.18 | 23,000 | | 1992 | | 2025.08.29 | ¸Å¸Å | ¹Ì°æºô¶ó(214-35) | 1 | 53.54 | 33,500 | | 1991 | | 2025.08.29 | ¸Å¸Å | °³²ºô(243-4) | 5 | 34.31 | 66,500 | | 2022 | | 2025.08.29 | ¸Å¸Å | Áß¾Ó(259-12) | 4 | 48.46 | 26,000 | | 1974 | | 2025.08.29 | ¸Å¸Å | ÇѼֺô¶óA | 4 | 27.91 | 22,000 | | 1992 | | 2025.08.29 | ¸Å¸Å | ÇØÇÇÇϿ콺(242-92) | 5 | 14.01 | 24,500 | | 2013 | | 2025.08.28 | ¸Å¸Å | ´Ù¼Ø±×¶ûºô | 3 | 29.86 | 41,000 | | 2020 | | 2025.08.28 | ¸Å¸Å | À¯ÇÑ¾ÆÆ®ºô¶ó | 2 | 78.91 | 45,000 | | 1991 | | 2025.08.28 | ¿ù¼¼ | ¿µµ¿¸Ç¼ð | 3 | 65.34 | 24,600 | 10 | 1997 | | 2025.08.28 | Àü¼¼ | ¹Ì¼Òºô | 3 | 29.97 | 22,500 | 0 | 2017 | | 2025.08.28 | Àü¼¼ | ¹Ì¼Òºô | 3 | 29.97 | 21,600 | 0 | 2017 | | 2025.08.28 | Àü¼¼ | Űæºô5Â÷ | 3 | 29.99 | 16,380 | 0 | 2017 | | 2025.08.28 | Àü¼¼ | ¹Ì¼Òºô | 3 | 29.97 | 22,500 | 0 | 2017 | | 2025.08.28 | Àü¼¼ | û¿î¿ÀÅ©ºô(299-89) | 2 | 45.62 | 34,000 | 0 | 2015 | | 2025.08.28 | Àü¼¼ | ´ë±¤¾ÆÆ®ºô | 2 | 66.475 | 23,500 | 0 | 2002 | | 2025.08.28 | ¸Å¸Å | ´Ù¼Ø±×¶ûºô | 1 | 21.59 | 37,000 | | 2020 | | 2025.08.27 | ¸Å¸Å | ¹Ý¼®ÁÖÅÃ(299-142) | 2 | 72.6 | 47,300 | | 1995 | | 2025.08.27 | ¸Å¸Å | û°èºô¶ó(211-168) | 3 | 64.26 | 33,500 | | 1993 | | 2025.08.27 | ¸Å¸Å | ´ëÈï¹Ì¼Ò°¡24Â÷ | 3 | 28.25 | 25,500 | | 2017 | | 2025.08.27 | ¸Å¸Å | ¹Ì¼Ò°¡9Â÷ | 4 | 33.7 | 26,000 | | 2013 | | 2025.08.27 | Àü¼¼ | ´õÆ÷·¹½ºÆ®6Â÷ | 4 | 55.29 | 30,000 | 0 | 2019 | | 2025.08.27 | ¿ù¼¼ | ³×¿Àºô¸®Áö(299-57) | 5 | 29.94 | 12,500 | 35 | 2014 | | 2025.08.27 | ¿ù¼¼ | ³×¿Àºô¸®Áö(299-57) | 5 | 29.94 | 12,500 | 35 | 2014 | | 2025.08.27 | ¿ù¼¼ | ¼Ò´ã1 | 3 | 25.74 | 3,000 | 55 | 2017 | | 2025.08.27 | ¿ù¼¼ | ³×¿Àºô¸®Áö(299-57) | 5 | 29.94 | 12,000 | 36 | 2014 | | 2025.08.27 | ¿ù¼¼ | ³×¿Àºô¸®Áö(299-57) | 5 | 29.94 | 12,000 | 36 | 2014 | | 2025.08.27 | Àü¼¼ | ÀÌ·¹¾ÆÆ®ºô9Â÷(314-32) | 3 | 44.2 | 40,000 | 0 | 2014 | | 2025.08.27 | Àü¼¼ | Àϱ¤¸®Ä¡ºô(256-196) | 3 | 49.67 | 27,000 | 0 | 2015 | | 2025.08.27 | Àü¼¼ | ´õÆ÷·¹½ºÆ®6Â÷ | 4 | 55.29 | 30,000 | 0 | 2019 | | 2025.08.27 | ¿ù¼¼ | ¼öÁ¤ºô | 3 | 24.66 | 3,000 | 73 | 2016 | | 2025.08.27 | Àü¼¼ | Çö´ëÇÏÀÌÃ÷ºô¶ó(102µ¿) | 3 | 61.86 | 15,000 | 0 | 1990 | | 2025.08.26 | ¸Å¸Å | ÁøÈïǪ¸£Áö¿À | 5 | 59.97 | 35,000 | | 2013 | | 2025.08.26 | ¸Å¸Å | ¹Ì¼Ò°¡22Â÷ | 2 | 41.6 | 39,300 | | 2016 | | 2025.08.26 | ¸Å¸Å | ½Â¿øÁÖÅà | 5 | 29.69 | 34,800 | | 2020 | | 2025.08.26 | ¸Å¸Å | ¿À¼ºÇÏÀÌÃ÷ | 3 | 33 | 35,000 | | 1992 | | 2025.08.26 | ¸Å¸Å | È¿¼ºÁÖÅÃ(256-111) | 5 | 45.01 | 32,000 | | 2014 | | 2025.08.25 | ¿ù¼¼ | Á¦½Â¸®Ä¡ºô | 2 | 29.07 | 5,000 | 80 | 2012 | | 2025.08.25 | Àü¼¼ | ¼ºÈ£¸Ç¼Ç2Â÷ | -1 | 49.4 | 10,000 | 0 | 1996 | | 2025.08.25 | ¿ù¼¼ | ¸®Æ²Æ÷·¹½ºÆ® | 5 | 23.26 | 5,000 | 95 | 2023 | | 2025.08.25 | ¿ù¼¼ | ´õŬ·¡½Ä | 3 | 29.56 | 28,300 | 12 | 2023 | | 2025.08.25 | ¿ù¼¼ | ±âÈï¸Ç¼Ç | 3 | 28.24 | 2,000 | 91 | 2018 | | 2025.08.25 | Àü¼¼ | ´Ù³ª³×½ºÆ®ºô(241-11) | 3 | 50.35 | 25,000 | 0 | 2008 | | 2025.08.25 | ¿ù¼¼ | ±¤Ã¤ºô¶ó | 3 | 37.58 | 100 | 44 | 2024 | | 2025.08.25 | ¸Å¸Å | ½Å¼ºÇÏÀÌÃ÷3Â÷ | 2 | 75.66 | 46,000 | | 2001 | | 2025.08.25 | ¸Å¸Å | »ï¿µÈ¨Å¸¿î | 2 | 76.09 | 55,000 | | 2003 | | 2025.08.25 | ¿ù¼¼ | ¸®Æ²Æ÷·¹½ºÆ® | 5 | 23.26 | 5,000 | 95 | 2023 | | 2025.08.23 | ¿ù¼¼ | 474-14 | 2 | 29.8 | 3,000 | 81 | 2015 | | 2025.08.23 | Àü¼¼ | µå¸²Ä³½½(33-6) | 5 | 38.61 | 32,000 | 0 | 2016 | | 2025.08.23 | Àü¼¼ | (169-153) | 3 | 80.64 | 33,000 | 0 | 2003 | | 2025.08.23 | ¿ù¼¼ | û¼ÛÁÖÅÃ(256-218) | 4 | 70.79 | 10,000 | 100 | 1995 | | 2025.08.23 | Àü¼¼ | µ¿ÁøÇÏÀÌÃ÷ºô¶óBµ¿ | 2 | 39.4 | 19,000 | 0 | 1993 | | 2025.08.23 | ¿ù¼¼ | ´ÙºóÄ¡(256-9) | 2 | 23.07 | 5,000 | 35 | 2018 | | 2025.08.23 | Àü¼¼ | µå¸²Ä³½½(33-6) | 5 | 38.61 | 32,000 | 0 | 2016 | | 2025.08.23 | Àü¼¼ | ´Ù³ª³×½ºÆ®ºô(211-91) | 1 | 26.83 | 12,300 | 0 | 2008 | | 2025.08.23 | Àü¼¼ | ¹Ì¼Ò°¡Bµ¿(244-254) | 3 | 39.02 | 28,000 | 0 | 2018 | | 2025.08.23 | ¿ù¼¼ | ¿¡µ§ºô¶ó | 1 | 61.14 | 15,000 | 40 | 1995 | | 2025.08.23 | ¿ù¼¼ | ¼¾½ººô(299-113) | 2 | 29.68 | 5,000 | 55 | 2013 | | 2025.08.23 | Àü¼¼ | °³²ºô(210-292) | 2 | 29.44 | 24,200 | 0 | 2017 | | 2025.08.23 | ¿ù¼¼ | ´Ù¼Ø±×¶ûºô | 3 | 23.47 | 5,000 | 50 | 2020 | | 2025.08.23 | ¿ù¼¼ | ¿¡µ§ºô¶ó | 1 | 61.14 | 15,000 | 40 | 1995 | | 2025.08.23 | Àü¼¼ | ¹Ì¼Ò°¡Bµ¿(244-254) | 3 | 39.02 | 28,000 | 0 | 2018 | | 2025.08.22 | Àü¼¼ | °³²Ä³½½(264-42) | 4 | 69.85 | 29,400 | 0 | 2014 | | 2025.08.22 | ¸Å¸Å | ¸ÞÁ¾µåÄ«¶ó | 3 | 44.66 | 40,700 | | 2019 | | 2025.08.22 | ¿ù¼¼ | ½ºÅ¸Æç¸®½º | 2 | 27.86 | 22,000 | 15 | 2024 | | 2025.08.22 | Àü¼¼ | ´ëµ¿±×¸°ºô | 2 | 50.01 | 23,000 | 0 | 2002 | | 2025.08.22 | Àü¼¼ | °³²Ä³½½(264-42) | 4 | 69.85 | 29,400 | 0 | 2014 | | 2025.08.22 | ¿ù¼¼ | ´Ù¼Ø±×¶ûºô | 4 | 28.99 | 5,000 | 94 | 2019 | | 2025.08.22 | ¿ù¼¼ | ½Å¼ººô¶ó(201-32) | -1 | 39.24 | 6,000 | 20 | 1990 | | 2025.08.22 | ¿ù¼¼ | ±×¸°È¨ | 4 | 39.09 | 10,000 | 60 | 2012 | | 2025.08.22 | Àü¼¼ | ´ëµ¿±×¸°ºô | 2 | 50.01 | 23,000 | 0 | 2002 | | 2025.08.22 | ¸Å¸Å | ¹Ì¼ºÇص帲 | 3 | 56.44 | 43,500 | | 2015 | | 2025.08.21 | ¸Å¸Å | °Ç¿ìºô¶ó | 1 | 59.71 | 59,000 | | 1997 | | 2025.08.21 | ¿ù¼¼ | ÇѸ¶À½ºôBµ¿ | 1 | 57.84 | 5,000 | 75 | 2003 | | 2025.08.21 | Àü¼¼ | °Ç¿ìºô¶ó | 1 | 59.71 | 22,400 | 0 | 1997 | | 2025.08.21 | ¿ù¼¼ | ±¤Ã¤ºô¶ó | 3 | 38 | 1,461 | 37 | 2024 | | 2025.08.21 | ¿ù¼¼ | ±¤Ã¤ºô¶ó | 3 | 38 | 100 | 45 | 2024 | | 2025.08.21 | ¿ù¼¼ | ÇѸ¶À½ºôBµ¿ | 1 | 57.84 | 5,000 | 75 | 2003 | | 2025.08.20 | ¿ù¼¼ | ±¤Ã¤ºô¶ó | 4 | 37.35 | 1,582 | 37 | 2024 | | 2025.08.20 | ¸Å¸Å | ´ë¼ºÇÏÀÌÃ÷ºô¶ó | 2 | 48.42 | 27,300 | | 1994 | | 2025.08.20 | ¿ù¼¼ | ÀÌ·¹ºô | 4 | 66.3 | 100 | 40 | 2008 | | 2025.08.20 | ¿ù¼¼ | ¿öµå¶÷ | 3 | 42.16 | 3,000 | 80 | 1991 | | 2025.08.20 | ¿ù¼¼ | Á¦ÀϺô¶ó | 3 | 37.5 | 2,000 | 94 | 2002 | | 2025.08.20 | ¿ù¼¼ | Á¾ÀξƳ׽ºÆ®(7-43) | 4 | 59.68 | 5,000 | 120 | 2012 | | 2025.08.20 | ¿ù¼¼ | ±¤Ã¤ºô¶ó | 4 | 37.35 | 100 | 45 | 2024 | | 2025.08.20 | Àü¼¼ | ¸®¹öÆ÷·¹½ºÆ® | 3 | 54.3 | 30,000 | 0 | 2020 | | 2025.08.20 | ¿ù¼¼ | ±¤Ã¤ºô¶ó | 4 | 38 | 100 | 45 | 2024 | | 2025.08.20 | ¿ù¼¼ | (492-6) | 2 | 29.39 | 7,000 | 26 | 2012 | | 2025.08.19 | ¿ù¼¼ | ±¤Ã¤ºô¶ó | 4 | 37.72 | 4,917 | 18 | 2024 | | 2025.08.19 | ¿ù¼¼ | ±¤Ã¤ºô¶ó | 2 | 37.58 | 100 | 44 | 2024 | | 2025.08.19 | ¿ù¼¼ | ¹ÎÀÌÇÏÀÌÃ÷ºô | 1 | 39.69 | 500 | 50 | 2003 | | 2025.08.19 | ¸Å¸Å | ¸ð´øÈúŸ¿î2Â÷ | 6 | 29.8 | 29,000 | | 2015 | | 2025.08.19 | ¸Å¸Å | ¼ºµµ¸Ç¼Ç(211-443) | 4 | 46.94 | 29,300 | | 2002 | | 2025.08.19 | ¸Å¸Å | ´Ï½Ã¿Âºô | 4 | 52.66 | 27,000 | | 2002 | | 2025.08.19 | ¿ù¼¼ | ´ÙºóÄ¡(256-9) | 4 | 11.39 | 1,000 | 55 | 2018 | | 2025.08.19 | ¸Å¸Å | ÇѰ¸®Ã÷ºô(279-272) | 4 | 84.75 | 68,000 | | 2008 | | 2025.08.18 | ¿ù¼¼ | Çö´ëºô¶ó(279-426) | 1 | 49.7 | 3,000 | 15 | 1991 | | 2025.08.18 | ¸Å¸Å | ¸íº¸½ºÀ§Æ®ºô | 2 | 77.97 | 44,500 | | 2002 | | 2025.08.18 | ¸Å¸Å | ÇØÇÇÇϿ콺(283-41) | 5 | 42.16 | 65,500 | | 2015 | | 2025.08.18 | ¿ù¼¼ | ¸®º£ÇϿ콺 | 3 | 26.08 | 1,000 | 50 | 2012 | | 2025.08.18 | ¿ù¼¼ | ¸®º£ÇϿ콺 | 3 | 26.08 | 1,000 | 50 | 2012 | | 2025.08.18 | ¿ù¼¼ | ÀºÇýºô | 3 | 49.56 | 5,000 | 70 | 2011 | | 2025.08.18 | ¿ù¼¼ | ´ë¿ø | 3 | 45.045 | 18,900 | 5 | 2001 | | 2025.08.18 | Àü¼¼ | ´ëÈï¹Ì¼Ò°¡18Â÷ | 3 | 35.48 | 26,500 | 0 | 2015 | | 2025.08.18 | ¿ù¼¼ | ¸®Æ²Æ÷·¹½ºÆ® | 5 | 23.26 | 5,000 | 95 | 2023 | | 2025.08.18 | ¿ù¼¼ | 474-14 | 3 | 28.2 | 1,000 | 72 | 2015 | | 2025.08.18 | Àü¼¼ | µ¿»ê·°½ººô | 4 | 74.11 | 25,500 | 0 | 2002 | | 2025.08.18 | ¸Å¸Å | ¹Ì¼ºÇص帲(214-411) | 1 | 29.93 | 33,000 | | 2014 | | 2025.08.16 | ¸Å¸Å | ¼¼ÇѺô¸®Áö(265-2) | 2 | 49.98 | 54,000 | | 2003 | | 2025.08.16 | Àü¼¼ | ÇØ¶ß´ÂÁý | 3 | 46.685 | 17,000 | 0 | 2005 | | 2025.08.16 | ¿ù¼¼ | »óµµ·¹À̳ª | 6 | 25.14 | 23,310 | 5 | 2022 | | 2025.08.16 | ¿ù¼¼ | ÄÉÀ̵ð¾ÆÀ̺ôCµ¿ | 1 | 29.945 | 14,990 | 15 | 2007 | | 2025.08.16 | Àü¼¼ | µå¸²ÇϿ콺¥± | 3 | 39.78 | 23,800 | 0 | 2014 | | 2025.08.16 | Àü¼¼ | ´Ù¼Ø±×¶ûºô | 2 | 28.99 | 21,000 | 0 | 2019 | | 2025.08.16 | ¿ù¼¼ | ¸ÇÇÏźÇÏ¿ì¡(256-180) | 2 | 50.38 | 20,000 | 31 | 2019 | | 2025.08.16 | Àü¼¼ | µå¸²ÇϿ콺¥± | 3 | 39.78 | 23,800 | 0 | 2014 | | 2025.08.16 | Àü¼¼ | ´Ù¼Ø±×¶ûºô | 2 | 28.99 | 21,000 | 0 | 2019 | | 2025.08.16 | ¸Å¸Å | »ï¼ºÇÏÀÌÃ÷(229-1) | 5 | 47.76 | 35,500 | | 2016 | | 2025.08.15 | ¿ù¼¼ | ÀÌÆíÇѺô | 3 | 17.65 | 1,000 | 47 | 2013 | | 2025.08.15 | ¸Å¸Å | ´ÙÀÎij½½2Â÷ | 5 | 26.55 | 52,500 | | 2019 | | 2025.08.15 | ¿ù¼¼ | Űæºô4Â÷ | 5 | 29.82 | 2,000 | 90 | 2016 | | 2025.08.15 | ¿ù¼¼ | ´ÙºóÄ¡(256-9) | 3 | 10.94 | 10,000 | 10 | 2018 | | 2025.08.15 | ¿ù¼¼ | ´ÙºóÄ¡(256-9) | 3 | 10.94 | 10,000 | 10 | 2018 | | 2025.08.15 | ¿ù¼¼ | ´ÙºóÄ¡(256-9) | 3 | 10.94 | 10,000 | 10 | 2018 | | 2025.08.15 | ¸Å¸Å | ¸ð°Ç½¦¸£ºô | 4 | 29.7 | 24,500 | | 2012 | | 2025.08.15 | Àü¼¼ | »óÀϺô¶ó | 3 | 57.78 | 30,000 | 0 | 2001 | | 2025.08.14 | Àü¼¼ | ´ÙºóÄ¡(256-9) | 4 | 10.94 | 10,000 | 0 | 2018 | | 2025.08.14 | ¿ù¼¼ | (469-4) | 5 | 33.43 | 12,900 | 31 | 2003 | | 2025.08.14 | ¿ù¼¼ | ¼º¿ì(474-13) | 2 | 20.48 | 3,400 | 55 | 2016 | | 2025.08.14 | ¿ù¼¼ | ½¦¾îÇϿ콺 | 4 | 74.11 | 32,000 | 20 | 2012 | | 2025.08.14 | Àü¼¼ | ÀÌÆíÇѺô | 3 | 13.08 | 5,000 | 0 | 2013 | | 2025.08.14 | Àü¼¼ | ¹Ì¼ºÇص帲 | 2 | 27.48 | 19,400 | 0 | 2018 | | 2025.08.13 | Àü¼¼ | ´ëÈï¹Ì¼Ò°¡24Â÷ | 5 | 41.8 | 24,700 | 0 | 2017 | | 2025.08.13 | ¸Å¸Å | ·º½ººô(214-197) | 5 | 35.51 | 33,000 | | 2015 | | 2025.08.13 | ¿ù¼¼ | »óµµÅ¸¿ö¸Ç¼Ç | 2 | 75.2 | 5,000 | 95 | 1995 | | 2025.08.12 | ¿ù¼¼ | û¾Æ¸Ç¼Ç | 2 | 52.38 | 15,000 | 35 | 2008 | | 2025.08.12 | ¿ù¼¼ | û¾Æ¸Ç¼Ç | 2 | 52.38 | 15,000 | 35 | 2008 | | 2025.08.12 | ¿ù¼¼ | µå¸²Æç¸®½º | 5 | 14.78 | 9,300 | 15 | 2012 | | 2025.08.12 | ¿ù¼¼ | ¹Ì¼Ò°¡Aµ¿(244-166) | 3 | 52.1 | 2,000 | 100 | 2017 | | 2025.08.12 | ¿ù¼¼ | LuceForet | 6 | 28.2069 | 30,000 | 10 | 2021 | | 2025.08.12 | ¸Å¸Å | ÈÞ¸Õºô·¹(299-164) | 5 | 39.74 | 32,500 | | 2014 | | 2025.08.12 | ¿ù¼¼ | ´ëÈïºôµù | 4 | 13.68 | 1,000 | 55 | 2012 | | 2025.08.12 | ¸Å¸Å | È¿¼ºÁÖÅÃ(279-251) | 2 | 69.39 | 43,000 | | 2008 | | 2025.08.12 | ¸Å¸Å | ¾Æ³×½ºÆ®Aµ¿(256-289) | 3 | 59.08 | 54,000 | | 2016 | | 2025.08.11 | Àü¼¼ | ¹Ì¼ºÇص帲(299-192) | 2 | 52.2 | 23,000 | 0 | 2012 | | 2025.08.11 | ¿ù¼¼ | ´ÙºóÄ¡(256-9) | 2 | 23.07 | 1,000 | 72 | 2018 | | 2025.08.11 | ¿ù¼¼ | (7-60) | 2 | 14.85 | 3,700 | 62 | 2020 | | 2025.08.11 | Àü¼¼ | µå¸²Ä³½½(33-6) | 3 | 28.66 | 26,500 | 0 | 2016 | | 2025.08.11 | Àü¼¼ | û¿îÇϿ콺 | 2 | 49.825 | 36,000 | 0 | 2016 | | 2025.08.11 | ¿ù¼¼ | Àü¿øÇÏÀÌÃ÷(159-268) | 2 | 97.49 | 10,000 | 100 | 1999 | | 2025.08.11 | Àü¼¼ | ¿øÀÏÁÖÅÃ(279-2) | 3 | 46.18 | 19,000 | 0 | 1992 | | 2025.08.11 | Àü¼¼ | ¿¹°¡½ºÀ§Æ® | 5 | 38.78 | 31,000 | 0 | 2015 | | 2025.08.11 | ¸Å¸Å | ¿ìÁ¤¾ÆÆ®ºô | 2 | 69.44 | 44,800 | | 2002 | | 2025.08.11 | ¸Å¸Å | Áֹ̺ô¶ó | 1 | 60.61 | 39,500 | | 2001 | | 2025.08.11 | ¸Å¸Å | È¿ÆÄÅ©ºô | 4 | 58.72 | 48,000 | | 2019 | | 2025.08.11 | ¿ù¼¼ | Á¦ÀÌ¿ø | 3 | 16.02 | 3,000 | 47 | 2012 | | 2025.08.11 | ¿ù¼¼ | (244-357) | 1 | 40.68 | 2,000 | 60 | 1987 | | 2025.08.11 | Àü¼¼ | µå¸²Ä³½½(33-6) | 3 | 28.66 | 26,500 | 0 | 2016 | | 2025.08.11 | Àü¼¼ | µå¸²Ä³½½ | 4 | 44.44 | 10,000 | 0 | 2015 | | 2025.08.10 | ¿ù¼¼ | ¸®Ä¡Ä³½½ | 2 | 29.19 | 2,000 | 71 | 2013 | | 2025.08.10 | Àü¼¼ | ÅÂ¾ç¾ÆÆ®ºô | 4 | 70.64 | 21,000 | 0 | 2006 | | 2025.08.10 | Àü¼¼ | (201-23) | 2 | 77.43 | 24,000 | 0 | 2002 | | 2025.08.09 | Àü¼¼ | ´ë½ÅÇÏÀÌÃ÷ | 3 | 54.48 | 20,500 | 0 | 1992 | | 2025.08.09 | ¿ù¼¼ | ¸¶¿îƾºô¶ó | -1 | 47.25 | 11,100 | 7 | 1996 | | 2025.08.09 | Àü¼¼ | ¾à¼ö¼±°æºô¶ó | 2 | 65.01 | 22,050 | 0 | 1992 | | 2025.08.09 | ¿ù¼¼ | ±Ý»êºô | 4 | 18.79 | 12,000 | 25 | 2016 | | 2025.08.09 | ¿ù¼¼ | ¿Ã·¹ÇϿ콺 | 8 | 66.39 | 1,000 | 55 | 2017 | | 2025.08.09 | ¿ù¼¼ | Á¦ÀϺô¶ó | 2 | 26.84 | 1,000 | 72 | 2002 | | 2025.08.09 | ¿ù¼¼ | µå¸²Æç¸®½º | 4 | 21.31 | 15,900 | 1 | 2012 | | 2025.08.09 | ¿ù¼¼ | ´ëÈヲ¸£ºô(214-244) | 2 | 31.07 | 2,000 | 70 | 2011 | | 2025.08.09 | Àü¼¼ | ´ë½ÅÇÏÀÌÃ÷ | 3 | 54.48 | 19,000 | 0 | 1992 | | 2025.08.09 | ¿ù¼¼ | ÀÌ¿¡½ºÇÏÀÓ4Â÷ | 4 | 49.44 | 15,000 | 50 | 2017 | | 2025.08.09 | ¸Å¸Å | ÆÛ½ºÆ®ºô | 4 | 44.51 | 47,500 | | 2016 | | 2025.08.08 | ¿ù¼¼ | ¹Ì¹Ì¾ÆÆ®ºô(335-202) | 1 | 62.22 | 10,000 | 100 | 2007 | | 2025.08.08 | Àü¼¼ | ³ëºí·¹½º | 2 | 29.2 | 24,000 | 0 | 2018 | | 2025.08.08 | ¿ù¼¼ | (279-417) | 5 | 29.89 | 3,571 | 8 | 2019 | | 2025.08.08 | ¸Å¸Å | ÈÞ¸Õºô·¹ | 3 | 44.43 | 37,000 | | 2013 | | 2025.08.07 | Àü¼¼ | ÀÌ¿¡½ºÇÏÀÓ4Â÷ | 4 | 49.44 | 15,000 | 0 | 2017 | | 2025.08.07 | Àü¼¼ | µÎ¼º½¦¸£ºô(256-207) | 2 | 82.99 | 32,000 | 0 | 2002 | | 2025.08.07 | ¸Å¸Å | Çö´ëÇÏÀÌÃ÷ºô¶ó(101µ¿) | 2 | 55.89 | 35,600 | | 1990 | | 2025.08.07 | ¸Å¸Å | ÈÞ¸í°¡ | 5 | 27.844 | 40,800 | | 2019 | | 2025.08.07 | ¿ù¼¼ | µ§µé¶óÀ̾ð | 4 | 25.23 | 1,000 | 55 | 2015 | | 2025.08.07 | Àü¼¼ | ½ºÄ«À̺ô | 4 | 59.82 | 31,500 | 0 | 2002 | | 2025.08.07 | ¿ù¼¼ | À£¸®Ä¡ÆÄÅ©1Â÷ | 3 | 32.42 | 3,000 | 100 | 2013 | | 2025.08.07 | ¿ù¼¼ | ȨÀη¹Áö´ø½º | 4 | 18.57 | 500 | 64 | 2013 | | 2025.08.07 | ¿ù¼¼ | ¸®Ä¡ºô(299-168) | 2 | 25.47 | 11,000 | 24 | 2012 | | 2025.08.07 | ¿ù¼¼ | ·Îµ©½ºÄ«À̺ä | 4 | 35.24 | 5,000 | 70 | 2012 | | 2025.08.07 | ¿ù¼¼ | ½ÂÀ±³ëºí¸®¾È | 4 | 46.24 | 2,000 | 105 | 2014 | | 2025.08.07 | ¿ù¼¼ | ȨÀη¹Áö´ø½º | 4 | 18.57 | 500 | 64 | 2013 | | 2025.08.06 | ¸Å¸Å | ´ö¿î¸Ç¼Ç | -1 | 30.03 | 15,000 | | 2001 | | 2025.08.06 | ¸Å¸Å | ÆÓ¸®½ºÅ¸¿î | 2 | 46.61 | 59,850 | | 2015 | | 2025.08.06 | ¸Å¸Å | ¿ìÁÖºôBµ¿ | 1 | 54.97 | 50,000 | | 2002 | | 2025.08.06 | ¿ù¼¼ | ¿¹Àººô¶ó | 3 | 43.91 | 3,000 | 80 | 2004 | | 2025.08.06 | ¿ù¼¼ | (279-417) | 5 | 29.89 | 5,897 | 13 | 2019 | | 2025.08.06 | ¿ù¼¼ | (466-1) | 1 | 23.57 | 1,000 | 54 | 2003 | | 2025.08.06 | ¿ù¼¼ | ¿¹Àººô¶ó | 3 | 43.91 | 3,000 | 80 | 2004 | | 2025.08.06 | ¿ù¼¼ | ³ëºí·¹½º | 4 | 33.22 | 11,300 | 65 | 2018 | | 2025.08.06 | Àü¼¼ | µÎ¼º½¦¸£ºô(256-207) | 2 | 82.99 | 32,000 | 0 | 2002 | | 2025.08.06 | ¿ù¼¼ | JABEZHOUSE | 2 | 56 | 1,000 | 62 | 2002 | | 2025.08.06 | ¿ù¼¼ | (279-417) | 2 | 45.51 | 1,385 | 49 | 2019 | | 2025.08.06 | Àü¼¼ | ¸ð´øÈúŸ¿î4Â÷ | 2 | 46.3 | 30,000 | 0 | 2015 | | 2025.08.05 | ¿ù¼¼ | Çö´ëºô(126-129) | 3 | 61.3 | 20,000 | 24 | 2004 | | 2025.08.05 | ¿ù¼¼ | µî¾ÈÁ¤(335-149) | 3 | 18.92 | 1,000 | 55 | 2011 | | 2025.08.05 | Àü¼¼ | ÆÓ¸®½ºÅ¸¿î | 4 | 46.61 | 27,300 | 0 | 2015 | | 2025.08.05 | ¸Å¸Å | ¸¶¿îƾºô¶ó | 4 | 52.12 | 29,000 | | 1996 | | 2025.08.05 | ¸Å¸Å | ¿À¼ºÇÏÀÌÃ÷ | 3 | 49.61 | 41,900 | | 1992 | | 2025.08.05 | ¸Å¸Å | ¿øÃµºô(299-127) | 3 | 54.32 | 41,700 | | 2012 | | 2025.08.05 | ¸Å¸Å | ´©¸®¾Öºô | 2 | 54.29 | 41,900 | | 2010 | | 2025.08.05 | ¿ù¼¼ | µî¾ÈÁ¤(335-149) | 5 | 28.9 | 5,000 | 65 | 2011 | | 2025.08.04 | Àü¼¼ | ÇູÇѵ¿Çà(214-146) | 2 | 38.74 | 22,000 | 0 | 2015 | | 2025.08.04 | ¿ù¼¼ | ¸®Æ²Æ÷·¹½ºÆ® | 5 | 23.26 | 5,000 | 95 | 2023 | | 2025.08.04 | ¿ù¼¼ | ´ëÈï¹Ì¼Ò°¡24Â÷ | 4 | 28.23 | 20,700 | 4 | 2017 | | 2025.08.04 | Àü¼¼ | ÇØ¶ãÂü°¡ | 4 | 55.6 | 22,000 | 0 | 2009 | | 2025.08.04 | Àü¼¼ | ¹Ý¼®ºô¶ó(256-202) | 1 | 51.44 | 17,000 | 0 | 1994 | | 2025.08.04 | ¸Å¸Å | µÎ¼º½¦¸£ºô(256-207) | 2 | 82.99 | 50,000 | | 2002 | | 2025.08.04 | ¸Å¸Å | ÆÓ¸®½ºÅ¸¿î | 2 | 46.61 | 60,000 | | 2015 | | 2025.08.04 | ¸Å¸Å | ¹Ì¼ºÇص帲(256-228) | 4 | 53.74 | 42,000 | | 2016 | | 2025.08.04 | ¸Å¸Å | ¿øÇü½¦¸£ºô(289-27) | 5 | 57.61 | 59,000 | | 2007 | | 2025.08.03 | Àü¼¼ | °¡¿¬ºô | 4 | 34.17 | 18,753 | 0 | 2015 | | 2025.08.03 | ¿ù¼¼ | ¼Á¤½¦¸£ºô | 5 | 29.93 | 1,000 | 100 | 2015 | | 2025.08.03 | Àü¼¼ | ½ºÄ«À̺ô | 3 | 57.42 | 30,000 | 0 | 2002 | | 2025.08.02 | ¿ù¼¼ | ¼±ÁøÆÄÅ©ºô | 3 | 40.45 | 2,000 | 73 | 2002 | | 2025.08.02 | ¿ù¼¼ | µå¸²Æç¸®½º | 4 | 15 | 11,820 | 2 | 2012 | | 2025.08.02 | ¿ù¼¼ | ½Å¿ì±×¸°ºô¶ó(214-215) | 3 | 57.97 | 18,000 | 30 | 1991 | | 2025.08.02 | ¸Å¸Å | ½Â¿øÁÖÅÃ(299-1) | 5 | 28.5 | 42,000 | | 2023 | | 2025.08.02 | ¿ù¼¼ | ½Å¿ì±×¸°ºô¶ó(214-215) | 3 | 57.97 | 18,000 | 30 | 1991 | | 2025.08.02 | Àü¼¼ | ´õÆ÷·¹½ºÆ®4Â÷ | 4 | 54.95 | 35,000 | 0 | 2018 | | 2025.08.02 | Àü¼¼ | ´Ù¸ðÀÎHOUSE | 3 | 77.99 | 32,000 | 0 | 2002 | | 2025.08.02 | Àü¼¼ | ´ëÈ£¸Ç¼Ç | 3 | 76.74 | 30,000 | 0 | 1992 | | 2025.08.02 | Àü¼¼ | µ¿¿øº£½ºÆ®Å¸¿î | 2 | 37.39 | 29,000 | 0 | 2015 | | 2025.08.02 | ¸Å¸Å | TSÆÓ¸®½º(470-9) | 5 | 29.63 | 29,000 | | 2013 | | 2025.08.02 | Àü¼¼ | ´ëÈ£¸Ç¼Ç | 3 | 76.74 | 30,000 | 0 | 1992 | | 2025.08.01 | Àü¼¼ | ÈÞ¸ÕŸ¿î | 3 | 43.39 | 24,600 | 0 | 2003 | | 2025.08.01 | Àü¼¼ | ÈÞ¸ÕŸ¿î | 3 | 43.39 | 24,600 | 0 | 2003 | | 2025.08.01 | ¿ù¼¼ | µ¿¾ç | 5 | 47.97 | 7,000 | 55 | 2010 | | 2025.08.01 | ¿ù¼¼ | ½ºÅÚ¶ó | 3 | 18.03 | 1,000 | 48 | 2012 | | 2025.08.01 | ¿ù¼¼ | 492-8 | 3 | 14.02 | 1,000 | 50 | 2013 | | 2025.07.31 | ¿ù¼¼ | ¼ö¾Öºô(363-88) | 4 | 19.51 | 1,000 | 53 | 2018 | | 2025.07.31 | ¿ù¼¼ | 491-20 | 4 | 13.99 | 4,000 | 36 | 2013 | | 2025.07.31 | Àü¼¼ | ´Ù¿ø¾¾¾Ø¾ÆÀÌ | 2 | 29.175 | 27,500 | 0 | 2018 | | 2025.07.31 | Àü¼¼ | ´Ù¿ø¾¾¾Ø¾ÆÀÌ | 2 | 29.175 | 27,500 | 0 | 2018 | | 2025.07.31 | ¿ù¼¼ | µå¸²ÆÓ¸®½º | 3 | 29.64 | 12,000 | 30 | 2011 | | 2025.07.31 | Àü¼¼ | ÇØÇÇÇϿ콺2Â÷ | 3 | 43.13 | 30,000 | 0 | 2015 | | 2025.07.31 | Àü¼¼ | ½Â¿øÁÖÅÃ(299-1) | 4 | 28.5 | 25,000 | 0 | 2023 | | 2025.07.31 | ¿ù¼¼ | ¸ð°Çºô¶óBµ¿ | 3 | 50.35 | 3,000 | 95 | 2002 | | 2025.07.31 | ¿ù¼¼ | ¼ö¾Öºô(363-88) | 4 | 19.51 | 1,000 | 53 | 2018 | | 2025.07.31 | Àü¼¼ | ´Ù¿ø¾¾¾Ø¾ÆÀÌ | 2 | 29.175 | 27,500 | 0 | 2018 | | 2025.07.31 | ¿ù¼¼ | (22-108) | 5 | 16.28 | 1,000 | 63 | 2019 | | 2025.07.31 | Àü¼¼ | ½Â¿øÁÖÅÃ(299-1) | 4 | 29.99 | 26,000 | 0 | 2023 | | 2025.07.31 | Àü¼¼ | ´Ù¿ø¾¾¾Ø¾ÆÀÌ | 2 | 29.175 | 27,500 | 0 | 2018 | | 2025.07.31 | ¸Å¸Å | ´Ù¼Ø±×¶ûºô | 2 | 23.47 | 29,000 | | 2020 | | 2025.07.31 | ¸Å¸Å | ½Â¿øÁÖÅÃ(299-1) | 6 | 29.79 | 42,000 | | 2023 | | 2025.07.31 | ¸Å¸Å | »óµµÃ¿½Ã2 | 5 | 29.96 | 30,500 | | 2018 | | 2025.07.31 | ¸Å¸Å | ¼º¸²ºô¸®Áö1µ¿ | 4 | 70.6 | 69,000 | | 2003 | | 2025.07.31 | ¸Å¸Å | ¿¹±×¸° | 2 | 29.72 | 34,200 | | 2020 | | 2025.07.31 | ¸Å¸Å | ´Ù¼Ø±×¶ûºô | 2 | 28.99 | 32,000 | | 2019 | | 2025.07.31 | Àü¼¼ | ´Ù¿ø¾¾¾Ø¾ÆÀÌ | 2 | 29.175 | 27,500 | 0 | 2018 | | 2025.07.30 | ¿ù¼¼ | ´Ù¿øºô | 4 | 25.7 | 7,500 | 20 | 2002 | | 2025.07.30 | ¸Å¸Å | ´õŬ·¡½Ä | 4 | 29.88 | 59,000 | | 2023 | | 2025.07.30 | ¸Å¸Å | ÄÉÀ̵ð¾ÆÀ̺ôCµ¿ | 1 | 29.945 | 16,800 | | 2007 | | 2025.07.30 | ¿ù¼¼ | ¼öÁ¤ºô | 3 | 20.84 | 2,000 | 60 | 2016 | | 2025.07.30 | Àü¼¼ | (214-194) | 2 | 76.2 | 34,000 | 0 | 2007 | | 2025.07.30 | ¿ù¼¼ | ¿¡±×¸®³ª(256-31) | 2 | 57.12 | 30,000 | 4 | 2015 | | 2025.07.30 | ¿ù¼¼ | ÀÌ·¹¾ÆÆ®ºô(1-24) | 3 | 35.32 | 25,300 | 3 | 2017 | | 2025.07.29 | ¿ù¼¼ | ÀÌÆíÇѺô | 2 | 12.65 | 500 | 45 | 2013 | | 2025.07.29 | ¿ù¼¼ | Feb-29 | 3 | 25.22 | 1,000 | 73 | 2016 | | 2025.07.29 | ¿ù¼¼ | Çϳªºô | -1 | 23.18 | 500 | 40 | 2012 | | 2025.07.29 | ¿ù¼¼ | »ó·Ï¿ø·ë | 2 | 24.25 | 1,000 | 49 | 2001 | | 2025.07.29 | ¿ù¼¼ | Feb-29 | 3 | 25.22 | 1,000 | 76 | 2016 | | 2025.07.29 | Àü¼¼ | ½Ã¿Âºô¸®Áö | 4 | 27.75 | 15,000 | 0 | 2015 | | 2025.07.29 | Àü¼¼ | ¹Ì¼Ò°¡17Â÷ | 3 | 36.25 | 24,800 | 0 | 2015 | | 2025.07.29 | ¸Å¸Å | ±¤Áøºô¶óÆ® | 4 | 119.26 | 54,500 | | 1993 | | 2025.07.29 | ¸Å¸Å | ·ç³ªÆ÷·¹30 | 3 | 65.03 | 55,000 | | 2022 | | 2025.07.29 | Àü¼¼ | ¶ó¿Âºô | 2 | 42 | 26,500 | 0 | 2016 | | 2025.07.28 | ¿ù¼¼ | ¿¹¼ºÈÞij½½´Ùµ¿ | 3 | 27.82 | 8,000 | 45 | 2014 | | 2025.07.28 | ¿ù¼¼ | ¸ð¾Æºô | 4 | 30.07 | 11,000 | 42 | 2003 | | 2025.07.28 | ¿ù¼¼ | ´ëÈïºôµù | 2 | 12.95 | 1,500 | 52 | 2012 | | 2025.07.28 | ¿ù¼¼ | ºêÀ̾÷ºôµù | 4 | 18.06 | 1,000 | 67 | 2017 | | 2025.07.28 | Àü¼¼ | ´Ù¿òºô | 3 | 18.58 | 13,650 | 0 | 2019 | | 2025.07.28 | Àü¼¼ | ·Îµ©ÇϿ콺 | 2 | 37 | 24,696 | 0 | 2012 | | 2025.07.28 | ¸Å¸Å | ¹Ì¼Ò°¡26Â÷ | 3 | 37.94 | 31,000 | | 2018 | | 2025.07.28 | ¸Å¸Å | ¹Ì¼ºÇص帲(299-192) | 2 | 52.2 | 36,000 | | 2012 | | 2025.07.28 | Àü¼¼ | »óµµµ¿ÇÏÀ̺ô | 4 | 63.02 | 30,000 | 0 | 2003 | | 2025.07.28 | ¿ù¼¼ | ¿¹¼ºÈÞij½½´Ùµ¿ | 3 | 27.82 | 8,000 | 45 | 2014 | | 2025.07.27 | Àü¼¼ | ·ÎÁ¨ºô | 3 | 40.78 | 23,000 | 0 | 2016 | | 2025.07.26 | ¿ù¼¼ | ¿µÁøÆÄÅ©ºô¶ó | 3 | 76.89 | 15,000 | 110 | 2000 | | 2025.07.26 | ¿ù¼¼ | ¿ÀÅ©ºô | 4 | 16.89 | 1,000 | 68 | 2013 | | 2025.07.26 | ¿ù¼¼ | (487-0) | 3 | 45.7 | 2,000 | 55 | 2002 | | 2025.07.26 | ¸Å¸Å | ¶óÀ̾ð°ñµåºô5Â÷ | 2 | 29.97 | 27,500 | | 2015 | | 2025.07.26 | ¿ù¼¼ | ¸ÞÀÌÀúºô | 3 | 54.69 | 21,000 | 35 | 2002 | | 2025.07.26 | ¿ù¼¼ | (487-0) | 3 | 22.1 | 2,000 | 55 | 2002 | | 2025.07.26 | ¸Å¸Å | ÇѰ¸®Ã÷ºô(279-272) | 1 | 60.56 | 65,500 | | 2008 | | 2025.07.25 | ¿ù¼¼ | ¿ìÁÖ | 5 | 13.73 | 8,400 | 14 | 2012 | | 2025.07.25 | ¿ù¼¼ | ºêÀ̾÷ºôµù | 2 | 15.56 | 1,000 | 67 | 2017 | | 2025.07.25 | ¿ù¼¼ | ´Ù³ª³×½ºÆ®ºô(301-190) | 4 | 47.88 | 18,000 | 20 | 2008 | | 2025.07.25 | Àü¼¼ | Ÿ¿öºô | 3 | 59.9 | 24,800 | 0 | 2009 | | 2025.07.25 | Àü¼¼ | »óµµ·¹¹Ì¾Èºô | 3 | 57.5 | 23,400 | 0 | 2002 | | 2025.07.25 | ¿ù¼¼ | µ¿¾ç½º¸¶Æ®ºô | 5 | 14.248 | 1,000 | 49 | 2012 | | 2025.07.25 | Àü¼¼ | ¼®°æÆ®¶ó¿ò | 4 | 41.71 | 21,000 | 0 | 2013 | | 2025.07.25 | ¸Å¸Å | ¿ìÇöºô¶óÆ® | 2 | 29.25 | 53,000 | | 2014 | | 2025.07.25 | ¸Å¸Å | ¼Á¤½¦¸£ºô | 5 | 29.93 | 42,000 | | 2015 | | 2025.07.25 | ¸Å¸Å | ÆÓ¸®½ºÅ¸¿î | 4 | 46.61 | 60,000 | | 2015 | | 2025.07.25 | ¸Å¸Å | ´ëµ¿¸®¹öÆÄÅ©ºô | 2 | 31.72 | 32,000 | | 2017 | | 2025.07.24 | ¿ù¼¼ | ¸®Æ²Æ÷·¹½ºÆ® | 5 | 23.26 | 5,000 | 95 | 2023 | | 2025.07.24 | ¸Å¸Å | ³ëºí½ÃƼ(188-23) | 4 | 29.64 | 50,000 | | 2017 | | 2025.07.24 | ¿ù¼¼ | ȨÀη¹Áö´ø½º | 4 | 13.9 | 3,000 | 26 | 2013 | | 2025.07.24 | Àü¼¼ | ´ë¿ÕÁÖÅÃ(199-26) | 3 | 32.7 | 22,100 | 0 | 2018 | | 2025.07.24 | Àü¼¼ | ´ë¿ÕÁÖÅÃ(199-26) | 3 | 32.7 | 22,100 | 0 | 2018 | | 2025.07.23 | ¿ù¼¼ | ´ëÈï¹Ì¼Ò°¡(214-221) | 3 | 41.35 | 20,000 | 20 | 2012 | | 2025.07.23 | ¸Å¸Å | ÇѰ³ëºí·¹½º | 2 | 43.14 | 33,900 | | 2013 | | 2025.07.23 | ¸Å¸Å | ¼Á¤½¦¸£ºô | 5 | 29.93 | 42,000 | | 2015 | | 2025.07.23 | ¿ù¼¼ | µå¸²Æç¸®½º | 3 | 14.78 | 9,765 | 8 | 2012 | | 2025.07.23 | Àü¼¼ | ½Â¿øÁÖÅÃ(299-1) | 5 | 29.99 | 26,000 | 0 | 2023 | | 2025.07.23 | Àü¼¼ | ½Â¿øÁÖÅÃ(299-1) | 3 | 28.5 | 25,000 | 0 | 2023 | | 2025.07.22 | ¸Å¸Å | ½Â¿øÁÖÅÃ(299-1) | 5 | 29.99 | 41,000 | | 2023 | | 2025.07.22 | ¸Å¸Å | ÇØÇÇÇϿ콺(242-92) | 4 | 18.81 | 33,300 | | 2013 | | 2025.07.22 | ¿ù¼¼ | ÀÌ¿¡½ºÇÏÀÓ | 2 | 38.64 | 15,000 | 50 | 2016 | | 2025.07.22 | ¸Å¸Å | ¿¹¼ºÈÞij½½³ªµ¿ | 5 | 39.77 | 27,000 | | 2014 | | 2025.07.21 | ¸Å¸Å | Àå¹Ìºô¶ó(159-52) | -1 | 41.52 | 25,000 | | 1988 | | 2025.07.21 | ¿ù¼¼ | 154-7 | 4 | 15.97 | 7,000 | 40 | 2014 | | 2025.07.21 | Àü¼¼ | ´ëÈï¹Ì¼Ò°¡(210-108) | 3 | 47.18 | 24,900 | 0 | 2014 | | 2025.07.21 | Àü¼¼ | ÀÌ¿¡½ºÇÏÀÓ | 2 | 40.45 | 24,150 | 0 | 2016 | | 2025.07.20 | Àü¼¼ | µå¸²Ä³½½(33-6) | 4 | 59.25 | 33,000 | 0 | 2016 | | 2025.07.20 | ¿ù¼¼ | ¿¡ºñ´ººô(201-89) | 3 | 53.54 | 26,700 | 10 | 2015 | | 2025.07.20 | ¿ù¼¼ | Âü¼Ö¾ÆÆ®ºôBµ¿ | 4 | 63.34 | 5,000 | 100 | 2009 | | 2025.07.19 | ¿ù¼¼ | ¼Á¤½¦¸£ºô | 4 | 29.93 | 7,000 | 80 | 2015 | | 2025.07.19 | ¸Å¸Å | »óÁöÁÖÅà | 2 | 31.99 | 30,000 | | 2009 | | 2025.07.19 | Àü¼¼ | ÀºÇàºô¶óBµ¿ | 2 | 41.36 | 17,400 | 0 | 1986 | | 2025.07.19 | ¿ù¼¼ | żº°ñµçºô(322-11) | 2 | 69.61 | 20,000 | 60 | 2003 | | 2025.07.19 | Àü¼¼ | ¾Æ³Ê½ºÈú | 2 | 54.5 | 33,000 | 0 | 2013 | | 2025.07.19 | Àü¼¼ | À§³Ê½ººô¸®Áö | 3 | 96.06 | 36,900 | 0 | 1997 | | 2025.07.19 | ¿ù¼¼ | µ¿»êÈޱ׸°Å¸¿î | 2 | 28.25 | 20,000 | 4 | 2018 | | 2025.07.19 | Àü¼¼ | ¹Ì¼Ò°¡(279-217) | 5 | 37.13 | 18,000 | 0 | 2011 | | 2025.07.19 | Àü¼¼ | ·ç³ªÆ÷·¹30 | 6 | 49.88 | 37,200 | 0 | 2022 | | 2025.07.19 | ¿ù¼¼ | ¾ÆÄ§ÇÞ»ì | 2 | 22.37 | 3,000 | 80 | 2014 | | 2025.07.18 | ¿ù¼¼ | (7-60) | 2 | 14.85 | 3,700 | 62 | 2020 | | 2025.07.18 | ¿ù¼¼ | ¸®Æ²Æ÷·¹½ºÆ® | 5 | 18.47 | 5,000 | 79 | 2023 | | 2025.07.18 | ¿ù¼¼ | ½ºÅÚ¶ó | 2 | 18.2 | 1,000 | 55 | 2012 | | 2025.07.18 | ¿ù¼¼ | °³²ºô(230-1) | 4 | 39.02 | 5,000 | 90 | 2014 | | 2025.07.18 | ¸Å¸Å | ¼º´ë¸Ç¼ð | 1 | 56.86 | 45,000 | | 1983 | | 2025.07.18 | ¸Å¸Å | (204-121) | 4 | 60.46 | 70,000 | | 2008 | | 2025.07.18 | ¸Å¸Å | È¿¿ø±×¸°ºô | 5 | 50.05 | 45,000 | | 2013 | | 2025.07.18 | ¿ù¼¼ | ¸®Æ²Æ÷·¹½ºÆ® | 5 | 18.47 | 5,000 | 79 | 2023 | | 2025.07.18 | ¸Å¸Å | ´ë¿µºô¶ó(299-2) | 1 | 45.98 | 23,700 | | 1994 | | 2025.07.18 | ¸Å¸Å | (238-13) | 1 | 93.55 | 49,700 | | 1980 | | 2025.07.17 | ¸Å¸Å | (361-109) | 4 | 48.15 | 35,100 | | 2015 | | 2025.07.17 | ¸Å¸Å | ¾Æ³×½ºÆ® | 2 | 38.58 | 27,350 | | 2012 | | 2025.07.17 | ¸Å¸Å | µ¿½ÅÁÖÅà | 4 | 37.26 | 26,000 | | 1995 | | 2025.07.17 | Àü¼¼ | ¾Æ¾Èä | 4 | 67.28 | 26,500 | 0 | 2008 | | 2025.07.17 | Àü¼¼ | ¹Ì¼ºÇص帲(256-228) | 2 | 29.81 | 22,400 | 0 | 2016 | | 2025.07.17 | ¿ù¼¼ | ´Ù¼Ø±×¶ûºô | 4 | 28.4 | 5,000 | 70 | 2020 | | 2025.07.16 | ¸Å¸Å | ½Â¿øÁÖÅÃ(299-1) | 3 | 28.5 | 41,000 | | 2023 | | 2025.07.16 | Àü¼¼ | »ï¼ºÇÏÀÌÃ÷(223-14) | 2 | 41.59 | 27,200 | 0 | 2017 | | 2025.07.16 | ¸Å¸Å | Ǫ¸¥ÁÖÅÃ¥± | 4 | 29.86 | 22,805 | | 2021 | | 2025.07.15 | Àü¼¼ | µ¿ÇÏÇÏÀÌÃ÷ºô¶ó | -1 | 39.42 | 8,500 | 0 | 1991 | | 2025.07.15 | ¸Å¸Å | ½Â¿øÁÖÅÃ(299-1) | 3 | 29.99 | 40,000 | | 2023 | | 2025.07.15 | ¸Å¸Å | ·ÎÁ¨ºô | 3 | 40.78 | 33,700 | | 2016 | | 2025.07.15 | ¸Å¸Å | ´ëµ¿±×¸°ºô | 2 | 50.01 | 55,000 | | 2002 | | 2025.07.15 | Àü¼¼ | ½ºÀ§Æ®ºô¶ó(214-30) | 2 | 42.62 | 16,500 | 0 | 1993 | | 2025.07.15 | Àü¼¼ | ½ºÀ§Æ®ºô¶ó(214-30) | 2 | 42.62 | 16,500 | 0 | 1993 | | 2025.07.15 | ¿ù¼¼ | »ìÇÇÀç±æÇÑÁø | 2 | 21.069 | 1,000 | 60 | 2007 | | 2025.07.15 | ¿ù¼¼ | »óµµµå¸²ºô(302-13) | 4 | 37.33 | 15,000 | 15 | 2008 | | 2025.07.15 | ¿ù¼¼ | (469-4) | 2 | 29.08 | 14,000 | 7 | 2003 | | 2025.07.15 | Àü¼¼ | ½Â¿øÁÖÅÃ(299-1) | 3 | 29.99 | 26,000 | 0 | 2023 | | 2025.07.15 | ¿ù¼¼ | ¸®Æ²Æ÷·¹½ºÆ® | 5 | 19.8 | 5,500 | 85 | 2023 | | 2025.07.15 | Àü¼¼ | ´Ü±Ã¾ÆÆ®ºô¶ó | 3 | 40.29 | 11,500 | 0 | 1991 | | 2025.07.14 | Àü¼¼ | ÀÌ¿¡½ºÇÏÀÓ6Â÷ | 2 | 26.03 | 23,500 | 0 | 2017 | | 2025.07.14 | ¸Å¸Å | ´Ü±Ã¾ÆÆ®ºô¶ó | 3 | 40.29 | 20,500 | | 1991 | | 2025.07.14 | Àü¼¼ | ´ÙºóÄ¡(256-9) | 2 | 23.07 | 12,000 | 0 | 2018 | | 2025.07.14 | ¸Å¸Å | ´Ù³ª³×½ºÆ®ºô(241-11) | 3 | 50.35 | 57,000 | | 2008 | | 2025.07.14 | ¿ù¼¼ | ±×¸°Ä³½½(183-31) | 6 | 15.83 | 2,500 | 63 | 2012 | | 2025.07.13 | ¿ù¼¼ | °³²ºô(279-535) | 4 | 31.94 | 5,000 | 100 | 2018 | | 2025.07.12 | ¿ù¼¼ | ¿¡ÀÌ·¹³×(492-12) | 2 | 15.18 | 2,000 | 52 | 2017 | | 2025.07.12 | ¸Å¸Å | ¿¡¹ö±×¸°ºô | 4 | 29.34 | 26,800 | | 2017 | | 2025.07.12 | ¸Å¸Å | Űæºô4Â÷ | 5 | 29.82 | 19,600 | | 2016 | | 2025.07.12 | ¿ù¼¼ | ÁÖ¿øVILL | 5 | 70.71 | 500 | 50 | 2013 | | 2025.07.12 | ¿ù¼¼ | ºêÀ̾÷ºôµù | 2 | 14.64 | 1,000 | 67 | 2017 | | 2025.07.12 | Àü¼¼ | ´ëÈï¹Ì¼Ò°¡21Â÷ | 5 | 28.08 | 17,500 | 0 | 2016 | | 2025.07.12 | Àü¼¼ | µÎ¼ºÈÀÌÆ®ºô | 2 | 58.97 | 25,000 | 0 | 2010 | | 2025.07.12 | ¿ù¼¼ | Çູºô | 2 | 54.63 | 22,000 | 4 | 2017 | | 2025.07.12 | ¿ù¼¼ | Å·½ºÅ¸¿îBµ¿ | 5 | 45.56 | 17,000 | 30 | 2014 | | 2025.07.12 | Àü¼¼ | ´ëÈï¹Ì¼Ò°¡19Â÷ | 4 | 35.44 | 24,000 | 0 | 2016 | | 2025.07.11 | ¸Å¸Å | Àº¼ººô¶ó | 2 | 60.96 | 17,850 | | 1993 | | 2025.07.11 | ¸Å¸Å | ´ëÈï¹Ì¼Ò°¡(210-64) | 4 | 29.23 | 26,000 | | 2013 | | 2025.07.11 | ¸Å¸Å | ´ëÈï¹Ì¼Ò°¡(210-64) | 4 | 29.23 | 26,000 | | 2013 | | 2025.07.11 | Àü¼¼ | ¿ø¸²¾ÆÆ®ºô(356-65) | 4 | 78.87 | 24,000 | 0 | 2002 | | 2025.07.11 | Àü¼¼ | »óµµ¸Ç¼ÇA | 1 | 63.02 | 27,000 | 0 | 2003 | | 2025.07.11 | Àü¼¼ | ¿ø¸²¾ÆÆ®ºô(356-65) | 4 | 78.87 | 24,000 | 0 | 2002 | | 2025.07.11 | ¸Å¸Å | (361-63) | 4 | 62.54 | 33,800 | | 2004 | | 2025.07.11 | ¸Å¸Å | ³ªÀÎÈúÇϿ콺(256-62) | 4 | 73.27 | 49,000 | | 2014 | | 2025.07.11 | ¿ù¼¼ | ÈÞ¸Õºô·¹(299-164) | 4 | 28.42 | 1,000 | 85 | 2014 | | 2025.07.10 | ¿ù¼¼ | ¼Á¤Èúž | 3 | 29.64 | 3,000 | 75 | 2017 | | 2025.07.10 | ¿ù¼¼ | ´Ù³ª³×½ºÆ®ºô(56-31) | 3 | 43.11 | 3,000 | 115 | 2008 | | 2025.07.10 | ¿ù¼¼ | ¿ÍÀÌ¿¥½ÃƼ | 4 | 20.82 | 5,000 | 70 | 2022 | | 2025.07.10 | Àü¼¼ | »óµµÈѹи®(214-31) | 1 | 51.03 | 16,200 | 0 | 1993 | | 2025.07.10 | ¿ù¼¼ | 492-8 | 4 | 12.07 | 1,000 | 45 | 2013 | | 2025.07.10 | ¿ù¼¼ | ¹Ì¼Ò°¡26Â÷ | 4 | 28.31 | 300 | 75 | 2018 | | 2025.07.10 | ¿ù¼¼ | ¿¡½ºÁ¦À̺ô(324-63) | 2 | 29.77 | 2,000 | 58 | 2014 | | 2025.07.10 | ¸Å¸Å | (236-4) | 3 | 41.56 | 30,000 | | 2015 | | 2025.07.10 | ¸Å¸Å | È¿¼ººô¶ó(Bµ¿) | 2 | 34.77 | 20,000 | | 1986 | | 2025.07.10 | ¿ù¼¼ | (236-4) | 2 | 41.56 | 10,000 | 58 | 2015 | | 2025.07.10 | ¿ù¼¼ | ¿¡½ºÁ¦À̺ô(324-63) | 2 | 29.77 | 2,000 | 58 | 2014 | | 2025.07.10 | ¿ù¼¼ | ¼º¸²ºô¶ó | 1 | 53.18 | 2,000 | 75 | 1990 | | 2025.07.09 | Àü¼¼ | À£¸®Ä¡ÆÄÅ©(256-229) | 2 | 37.91 | 22,400 | 0 | 2014 | | 2025.07.09 | ¿ù¼¼ | ¸íâºôµù | 5 | 16.14 | 10,500 | 15 | 2012 | | 2025.07.09 | ¿ù¼¼ | ³×¿Àºô¸®Áö(299-57) | 4 | 26.43 | 4,000 | 75 | 2014 | | 2025.07.09 | Àü¼¼ | ¹Ì¼Ò°¡8Â÷ | 3 | 34.79 | 20,000 | 0 | 2013 | | 2025.07.09 | Àü¼¼ | µå¸²ÇϿ콺 | 4 | 24.43 | 21,000 | 0 | 2012 | | 2025.07.09 | Àü¼¼ | ´ëÈï¹Ì¼Ò°¡24Â÷ | 3 | 29.98 | 23,100 | 0 | 2017 | | 2025.07.09 | Àü¼¼ | ³ëºí·¹½º | 2 | 29.7 | 24,000 | 0 | 2018 | | 2025.07.09 | Àü¼¼ | À£¸®Ä¡ÆÄÅ©(256-229) | 2 | 37.91 | 22,400 | 0 | 2014 | | 2025.07.09 | ¿ù¼¼ | ½Å¾ç±×¸°ºô3Â÷ | 3 | 57.72 | 19,400 | 37 | 1997 | | 2025.07.09 | ¸Å¸Å | Űæ | 5 | 28.31 | 26,000 | | 2013 | | 2025.07.09 | ¸Å¸Å | ´Ù¿ø¾¾¾Ø¾ÆÀÌ | 5 | 29.84 | 58,500 | | 2018 | | 2025.07.09 | ¸Å¸Å | Űæ | -1 | 21.7 | 22,000 | | 2013 | | 2025.07.09 | ¸Å¸Å | ¹Ý¼®(279-110) | 2 | 68.76 | 67,500 | | 1997 | | 2025.07.09 | ¸Å¸Å | ÀÌÁÖ¾ÆÆ®ºô¶ó(°¡µ¿) | 1 | 54.6 | 39,000 | | 1991 | | 2025.07.09 | Àü¼¼ | ¹Ì¼Ò°¡8Â÷ | 3 | 34.79 | 18,800 | 0 | 2013 | | 2025.07.08 | Àü¼¼ | ´ëÈï¹Ì¼Ò°¡24Â÷ | 4 | 28.25 | 23,100 | 0 | 2017 | | 2025.07.08 | ¸Å¸Å | (236-4) | 2 | 41.56 | 30,000 | | 2015 | | 2025.07.08 | ¸Å¸Å | ¿¡ºñ´ººô(201-89) | 4 | 37.58 | 42,500 | | 2015 | | 2025.07.08 | ¸Å¸Å | û¿Í¸Ç¼Ç | 2 | 70.33 | 50,000 | | 2002 | | 2025.07.08 | ¸Å¸Å | ·Îµ©Vill | 2 | 19.29 | 25,000 | | 2016 | | 2025.07.08 | ¸Å¸Å | »óµµµ¿ÇÏÀ̺ô | 2 | 63.02 | 64,000 | | 2003 | | 2025.07.08 | ¸Å¸Å | (198-37) | -1 | 50.58 | 40,500 | | 1989 | | 2025.07.08 | ¸Å¸Å | ¿¡ºñ´ººô(201-89) | 4 | 15.08 | 21,000 | | 2015 | | 2025.07.08 | ¸Å¸Å | ³»½¬ºô | 3 | 71.8 | 50,000 | | 2003 | | 2025.07.08 | Àü¼¼ | ¹Ì¼Ò°¡26Â÷ | 4 | 31 | 24,300 | 0 | 2018 | | 2025.07.08 | Àü¼¼ | ½Å¾çºô¶ó | 2 | 56.88 | 19,400 | 0 | 1989 | | 2025.07.08 | ¿ù¼¼ | ÀÌ¿¡½ºÇÏÀÓ | 5 | 46.44 | 5,000 | 95 | 2016 | | 2025.07.08 | ¿ù¼¼ | (154-14) | 2 | 41.32 | 4,000 | 80 | 2013 | | 2025.07.07 | Àü¼¼ | ÆÛ½ºÆ®ºô(256-37) | 4 | 29.99 | 20,790 | 0 | 2014 | | 2025.07.07 | ¿ù¼¼ | ÄÉÀ̵ð¾ÆÀ̺ôEµ¿ | 2 | 23.29 | 12,400 | 8 | 2007 | | 2025.07.07 | ¿ù¼¼ | ÄÚ¸°µµ½ººô | 4 | 63.715 | 5,000 | 130 | 2003 | | 2025.07.07 | ¿ù¼¼ | ¸®Æ²Æ÷·¹½ºÆ® | 2 | 29.34 | 5,000 | 116 | 2023 | | 2025.07.07 | Àü¼¼ | ´ë¿Õºô(198-31) | -1 | 52.73 | 23,000 | 0 | 2011 | | 2025.07.07 | ¸Å¸Å | ¸®¹öÆ÷·¹½ºÆ® | 3 | 54.3 | 58,000 | | 2020 | | 2025.07.07 | ¸Å¸Å | ¿¡ºñ´ººô(201-89) | 4 | 38.26 | 41,000 | | 2015 | | 2025.07.07 | ¸Å¸Å | ¹Ì¼Òºô | 4 | 39.21 | 36,900 | | 2017 | | 2025.07.07 | ¸Å¸Å | Å·½º¾Öºñ´ºAµ¿ | 5 | 47.83 | 31,900 | | 2016 | | 2025.07.06 | ¸Å¸Å | ¿¡ºñ´ººô(201-89) | 5 | 27.96 | 31,000 | | 2015 | | 2025.07.06 | Àü¼¼ | ´Ï½Ã¿Âºô | 4 | 52.66 | 6,000 | 0 | 2002 | | 2025.07.06 | ¿ù¼¼ | HGALLERY | 5 | 22.22 | 12,000 | 20 | 2013 | | 2025.07.05 | ¸Å¸Å | (236-4) | 4 | 14.31 | 15,000 | | 2015 | | 2025.07.05 | ¸Å¸Å | ÈÞ¸Õºô·¹ | 3 | 44.29 | 34,000 | | 2013 | | 2025.07.05 | Àü¼¼ | ¸¶³ë¾ÆÀç | 2 | 43.56 | 28,940 | 0 | 2015 | | 2025.07.05 | ¿ù¼¼ | ·Î¾âÆÓ¸®½º | 4 | 29.95 | 4,500 | 65 | 2016 | | 2025.07.05 | ¿ù¼¼ | KSKºô5Â÷ | -1 | 9.95 | 500 | 15 | 2013 | | 2025.07.05 | ¿ù¼¼ | È޸ճؽººô(299-176) | 3 | 41.09 | 21,000 | 35 | 2012 | | 2025.07.05 | ¿ù¼¼ | ¹Ì¼ºÇص帲(210-206) | 3 | 58.28 | 37,000 | 7 | 2022 | | 2025.07.05 | Àü¼¼ | ´ëÈï¹Ì¼Ò°¡(210-64) | 3 | 44.16 | 24,000 | 0 | 2013 | | 2025.07.05 | Àü¼¼ | ¹ÏÀ½ºô | 3 | 29.69 | 18,000 | 0 | 2016 | | 2025.07.05 | Àü¼¼ | (1-36) | 3 | 48.385 | 22,000 | 0 | 2012 | | 2025.07.05 | ¿ù¼¼ | ±¸»ïºô¶ó(223-10) | 2 | 49.47 | 16,000 | 30 | 1993 | | 2025.07.04 | ¸Å¸Å | ´ëÈï¹Ì¼Ò°¡(210-108) | 3 | 47.18 | 32,000 | | 2014 | | 2025.07.04 | Àü¼¼ | Ä«¸®½ººô | 4 | 46.3 | 22,000 | 0 | 2013 | | 2025.07.04 | ¿ù¼¼ | ±¸¸³¾à¼ö°æ·Î´çÇູÁÖÅú¹Çսü³ | 4 | 22.05 | 4,634 | 11 | 2020 | | 2025.07.04 | ¸Å¸Å | ´ëÈï¹Ì¼Ò°¡(210-108) | 3 | 47.18 | 32,000 | | 2014 | | 2025.07.04 | ¸Å¸Å | ´ëÈï¹Ì¼Ò°¡(210-108) | 3 | 47.18 | 32,000 | | 2014 | | 2025.07.04 | ¿ù¼¼ | ´ëÈï¹Ì¼Ò°¡(210-167) | 2 | 34.99 | 3,000 | 100 | 2015 | | 2025.07.03 | ¿ù¼¼ | ¾ÆÄ§ÇÞ»ì | 4 | 12 | 3,000 | 43 | 2014 | | 2025.07.03 | ¿ù¼¼ | º£³×½ºÆ®¥² | 5 | 29.95 | 10,000 | 100 | 2015 | | 2025.07.03 | Àü¼¼ | ½Ã³ªºô | 4 | 50.56 | 32,500 | 0 | 2021 | | 2025.07.03 | ¿ù¼¼ | µå¸²ÇϿ콺 | 5 | 24.43 | 15,000 | 25 | 2012 | | 2025.07.03 | ¿ù¼¼ | µî¾ÈÁ¤(335-149) | 3 | 12.22 | 1,000 | 55 | 2011 | | 2025.07.03 | ¸Å¸Å | »óµµµ¿ÇÏÀ̺ô | 4 | 63.02 | 69,500 | | 2003 | | 2025.07.03 | ¸Å¸Å | ÄڳʽºÅæ | 2 | 40.8 | 36,000 | | 2019 | | 2025.07.03 | ¸Å¸Å | Çѽꣳ׽ºÆ® | 5 | 34.82 | 31,500 | | 2014 | | 2025.07.02 | ¿ù¼¼ | ÀÌ¿¡½ºÇÏÀÓ6Â÷ | 4 | 28.81 | 21,400 | 15 | 2017 | | 2025.07.02 | Àü¼¼ | ±ÃÀüºô¶ó(199-1) | 2 | 78 | 32,000 | 0 | 2002 | | 2025.07.02 | Àü¼¼ | ÇູÆÄÅ©ºô¸®Áö | 2 | 52.54 | 28,900 | 0 | 2012 | | 2025.07.02 | ¿ù¼¼ | ¿öµå¶÷ | 4 | 35.11 | 3,000 | 80 | 1991 | | 2025.07.02 | ¿ù¼¼ | ¹Ì·¡ºô | 3 | 22.59 | 1,000 | 72 | 2018 | | 2025.07.02 | Àü¼¼ | ÇູÆÄÅ©ºô¸®Áö | 2 | 52.54 | 28,900 | 0 | 2012 | | 2025.07.02 | ¿ù¼¼ | ½Ã±×´ÏóÆÓ¸®½º | 4 | 54.48 | 5,000 | 70 | 2019 | | 2025.07.02 | ¸Å¸Å | À¯Çüºô¶ó | 2 | 44.54 | 25,000 | | 1994 | | 2025.07.02 | ¸Å¸Å | ¹Ì¼Ò°¡26Â÷ | 2 | 28.31 | 31,000 | | 2018 | | 2025.07.02 | ¸Å¸Å | µå¸²ÇϿ콺 | 4 | 24.43 | 44,300 | | 2012 | | 2025.07.02 | ¸Å¸Å | °³²Ä³½½(264-42) | 3 | 69.85 | 63,000 | | 2014 | | 2025.07.02 | Àü¼¼ | ¼º¸²±×¸°ºô¶ó | -1 | 50.38 | 8,000 | 0 | 1995 | | 2025.07.01 | Àü¼¼ | ¶ó¿ÂÆÄÅ© | 4 | 43.96 | 25,000 | 0 | 2013 | | 2025.07.01 | ¿ù¼¼ | ¹Ìµµºô¶ó(244-221) | 2 | 38.16 | 16,500 | 10 | 1986 | | 2025.07.01 | Àü¼¼ | LuceForet | 6 | 28.2069 | 32,000 | 0 | 2021 | | 2025.07.01 | Àü¼¼ | ¼ºÈ¯ºô | 4 | 73.07 | 13,600 | 0 | 2001 | | 2025.07.01 | ¸Å¸Å | ±¸»ïºô¶ó(223-10) | -1 | 37.17 | 7,500 | | 1993 | | 2025.07.01 | ¸Å¸Å | ½Â¿øÁÖÅà | 3 | 29.39 | 31,000 | | 2020 | | 2025.07.01 | ¸Å¸Å | ½Â¿øÁÖÅà | 4 | 29.75 | 30,000 | | 2020 | | 2025.07.01 | ¸Å¸Å | ½Â¿øÁÖÅà | 3 | 29.39 | 31,000 | | 2020 | | 2025.07.01 | ¿ù¼¼ | ¹Ì¼Ò°¡(282-7) | 3 | 28.7 | 3,000 | 90 | 2022 | | 2025.07.01 | Àü¼¼ | ½Ã±×´ÏóÆÓ¸®½º | 2 | 56.28 | 28,100 | 0 | 2019 | | 2025.07.01 | ¸Å¸Å | ½Â¿øÁÖÅà | 5 | 28.08 | 35,000 | | 2020 | | 2025.06.30 | ¸Å¸Å | Ǫ¸¥ÁÖÅÃ¥± | 3 | 47.21 | 27,700 | | 2021 | | 2025.06.30 | ¸Å¸Å | ÇØÇÇÇϿ콺2Â÷ | 3 | 43.13 | 61,500 | | 2015 | | 2025.06.30 | Àü¼¼ | Çö»êǪ¸¥½£ºô3Â÷(214-295) | 5 | 55.54 | 32,000 | 0 | 2007 | | 2025.06.30 | Àü¼¼ | µ¿¹æºô¶ó(7-96) | 1 | 62.14 | 20,700 | 0 | 1989 | | 2025.06.30 | ¿ù¼¼ | ½Â¿øÁÖÅà | 2 | 29.75 | 23,900 | 10 | 2020 | | 2025.06.30 | ¿ù¼¼ | Űæºô4Â÷ | 4 | 29.94 | 200 | 100 | 2016 | | 2025.06.29 | Àü¼¼ | â¼± | 4 | 29.8 | 17,100 | 0 | 2013 | | 2025.06.29 | ¸Å¸Å | ¿øÀÏÁÖÅÃ(279-2) | 3 | 46.18 | 48,000 | | 1992 | | 2025.06.29 | ¸Å¸Å | Àϱ¤¸®Ä¡ºô(256-196) | 1 | 47.89 | 49,000 | | 2015 | | 2025.06.29 | ¿ù¼¼ | ºêÀ̾÷ºôµù | 5 | 14.03 | 1,000 | 67 | 2017 | | 2025.06.28 | ¿ù¼¼ | Áö¾È | 2 | 25.26 | 19,000 | 2 | 2016 | | 2025.06.28 | Àü¼¼ | Ç÷ÎäºôBµ¿ | 3 | 29.07 | 22,000 | 0 | 2016 | | 2025.06.28 | Àü¼¼ | ¸í¼ºÇϿ콺 | 4 | 29.68 | 28,600 | 0 | 2017 | | 2025.06.28 | Àü¼¼ | ¹Ì¼Ò°¡(279-169) | 5 | 44.66 | 25,000 | 0 | 2019 | | 2025.06.28 | ¸Å¸Å | Àå¾È°ñµåºô¶ó¶óµ¿ | 3 | 67.22 | 54,500 | | 1993 | | 2025.06.28 | ¿ù¼¼ | (358-12) | 3 | 43.73 | 8,000 | 60 | 2003 | | 2025.06.28 | ¿ù¼¼ | ´ëÇöºô | 1 | 46.8 | 20,400 | 12 | 2009 | | 2025.06.28 | ¸Å¸Å | ¸ð°Ç½¦¸£ºô | 5 | 29.34 | 22,600 | | 2012 | | 2025.06.28 | ¸Å¸Å | ¹Ì¼Ò°¡Aµ¿(244-252) | 2 | 29.94 | 56,000 | | 2018 | | 2025.06.28 | ¸Å¸Å | ÄÉÀ̵ð¾ÆÀ̺ôDµ¿ | 4 | 37.39 | 20,000 | | 2007 | | 2025.06.27 | Àü¼¼ | Á¦½Â½ºÀ§Æ® | 2 | 37.72 | 21,000 | 0 | 2014 | | 2025.06.27 | Àü¼¼ | ¹Ì¼Ò°¡(279-169) | 5 | 29.31 | 22,000 | 0 | 2019 | | 2025.06.27 | Àü¼¼ | »ï¼ººô | 5 | 31.56 | 15,000 | 0 | 2011 | | 2025.06.27 | ¸Å¸Å | »óµµÃ¿½Ã2 | 2 | 29.96 | 29,000 | | 2018 | | 2025.06.27 | Àü¼¼ | ÀÌ·¹È¨Ä³½½ | 4 | 59.67 | 35,600 | 0 | 2017 | | 2025.06.27 | Àü¼¼ | ±Ý¼º6Â÷°ñµçºô¸®Áö | 2 | 53.58 | 19,950 | 0 | 1994 | | 2025.06.27 | Àü¼¼ | »óµµ·¹À̳ª | 2 | 24.82 | 23,680 | 0 | 2022 | | 2025.06.27 | ¿ù¼¼ | µî¾ÈÁ¤(335-149) | 4 | 12.17 | 1,000 | 50 | 2011 | | 2025.06.27 | Àü¼¼ | ´ëÈï¹Ì¼Ò°¡15Â÷(210-282) | 6 | 36.4 | 20,000 | 0 | 2015 | | 2025.06.27 | ¸Å¸Å | (244-349) | 1 | 41.1 | 48,000 | | 1986 | | 2025.06.27 | ¸Å¸Å | ž½ÃƼºô | 3 | 41.24 | 54,000 | | 2008 | | 2025.06.27 | ¸Å¸Å | µÕÁöºô¶ó(235-3) | 2 | 54.25 | 52,000 | | 2002 | | 2025.06.27 | ¸Å¸Å | ¿À¼ººô¶óÆ® | 1 | 53.55 | 50,000 | | 1996 | | 2025.06.27 | ¸Å¸Å | ¹Ì¼ºÇص帲(299-159) | 5 | 55.39 | 36,700 | | 2017 | | 2025.06.27 | ¸Å¸Å | ¹Ì¹Ì¾ÆÆ®ºô(335-107) | 4 | 76.8 | 54,000 | | 2002 | | 2025.06.26 | Àü¼¼ | µµ´ã¸¶À» | 4 | 51.69 | 35,000 | 0 | 2022 | | 2025.06.26 | Àü¼¼ | µµ´ã¸¶À» | 4 | 51.69 | 35,000 | 0 | 2022 | | 2025.06.26 | ¿ù¼¼ | Ǫ¸¥½£ÇϿ콺(301-206) | 3 | 43.45 | 20,000 | 19 | 2016 | | 2025.06.26 | ¿ù¼¼ | µ¿¾ç½º¸¶Æ®ºô | 4 | 14.383 | 3,000 | 45 | 2012 | | 2025.06.26 | Àü¼¼ | µå¸²Ä³½½(33-6) | 5 | 33.51 | 24,000 | 0 | 2016 | | 2025.06.26 | ¸Å¸Å | »óµµ±îÄ¡ºô¶ó | 1 | 50.42 | 52,000 | | 1994 | | 2025.06.26 | ¸Å¸Å | ÀºÇýºô | 3 | 49.56 | 38,000 | | 2011 | | 2025.06.26 | ¸Å¸Å | »óµµµå¸²ºô(291-5) | 4 | 64.65 | 38,000 | | 2008 | | 2025.06.25 | Àü¼¼ | ¼§±×¸±¶óVI | 4 | 53.34 | 35,900 | 0 | 2016 | | 2025.06.25 | Àü¼¼ | ¿¤¸®½Ã¾Æ(350-4) | 2 | 29.81 | 18,000 | 0 | 2014 | | 2025.06.25 | Àü¼¼ | ÀÌ·¹¾ÆÆ®ºô12Â÷ | 2 | 34.11 | 23,100 | 0 | 2016 | | 2025.06.25 | ¿ù¼¼ | ¹Ì·¡ºô | 4 | 29.98 | 1,000 | 72 | 2018 | | 2025.06.25 | Àü¼¼ | ·Ôµ¥ÆÄÅ©ºäAµ¿ | 4 | 58.44 | 24,900 | 0 | 2003 | | 2025.06.25 | Àü¼¼ | ·Ôµ¥ÆÄÅ©ºäAµ¿ | 4 | 58.44 | 24,900 | 0 | 2003 | | 2025.06.25 | ¿ù¼¼ | ´õÆ÷·¹½ºÆ®(210-155) | 3 | 55.52 | 0 | 70 | 2015 | | 2025.06.25 | Àü¼¼ | ¿¤¸®½Ã¾Æ(350-4) | 2 | 29.81 | 18,000 | 0 | 2014 | | 2025.06.25 | Àü¼¼ | ´ëÀϺô¶ó(210-252¿Ü) | 4 | 49.85 | 30,000 | 0 | 2015 | | 2025.06.25 | Àü¼¼ | ·Ôµ¥ÆÄÅ©ºäAµ¿ | 4 | 58.44 | 24,900 | 0 | 2003 | | 2025.06.25 | ¸Å¸Å | ¼º¸²ºô¸®Áö1µ¿ | 4 | 70.6 | 62,000 | | 2003 | | 2025.06.25 | ¸Å¸Å | ´Ù³ª³×½ºÆ®ºô(301-190) | 4 | 41.98 | 25,000 | | 2008 | | 2025.06.25 | ¸Å¸Å | ´Ù³ª³×½ºÆ®ºô(279-412) | 3 | 46.47 | 28,000 | | 2008 | | 2025.06.25 | ¸Å¸Å | µ¿»ê°ñµåºô¸®Áö | 3 | 33.09 | 23,800 | | 2017 | | 2025.06.25 | ¸Å¸Å | ÀÌ¿¡½ºÇÏÀÓ12Â÷ | 3 | 28.63 | 34,700 | | 2023 | | 2025.06.24 | ¸Å¸Å | ¼º¸²°ñµåÇϿ콺 | 3 | 57.44 | 20,000 | | 1994 | | 2025.06.24 | ¸Å¸Å | ±¤¾Ïºô¶ó | 3 | 51.34 | 28,000 | | 1998 | | 2025.06.24 | ¸Å¸Å | ÇØ¿ìºô¶ó | 1 | 61.83 | 33,000 | | 1993 | | 2025.06.24 | ¸Å¸Å | º¸·ÉÁÖÅà | 1 | 41.64 | 41,500 | | 1988 | | 2025.06.24 | ¸Å¸Å | Á¦½Â´õÇÏÀÓ | 4 | 40.25 | 47,500 | | 2011 | | 2025.06.24 | ¸Å¸Å | Á¤¿ø½ÃƼºô | 3 | 57.16 | 55,000 | | 1997 | | 2025.06.24 | ¸Å¸Å | ±¤¾Ïºô¶ó | 3 | 51.34 | 28,000 | | 1998 | | 2025.06.24 | Àü¼¼ | ¼Á¤½¦¸£ºô | 4 | 35.13 | 24,000 | 0 | 2015 | | 2025.06.24 | Àü¼¼ | ¼º¿ìºô¶ó(375-4) | 3 | 46.62 | 17,500 | 0 | 1994 | | 2025.06.24 | Àü¼¼ | »óµµÈú | 3 | 27.76 | 12,000 | 0 | 2017 | | 2025.06.24 | Àü¼¼ | °è¸²ÁÖÅÃA | 4 | 69.96 | 27,000 | 0 | 2003 | | 2025.06.24 | Àü¼¼ | ½ÅÇѽ¦¸£ºô | 4 | 37.91 | 26,000 | 0 | 2016 | | 2025.06.24 | ¿ù¼¼ | ½ÅÇѽ¦¸£ºô | 1 | 42.26 | 25,000 | 7 | 2016 | | 2025.06.23 | ¸Å¸Å | ¿µÁøÆÄÅ©ºô¶ó2Â÷ | 3 | 78.18 | 59,000 | | 2001 | | 2025.06.23 | ¸Å¸Å | Á¤È£(54-7) | 2 | 84.74 | 62,000 | | 2002 | | 2025.06.23 | ¸Å¸Å | ´õÆÛ½ºÆ®Å¸¿î | 5 | 49.11 | 40,500 | | 2018 | | 2025.06.23 | Àü¼¼ | Àμº¼öÇÇ¾Æ | 3 | 38.08 | 35,500 | 0 | 2022 | | 2025.06.23 | ¿ù¼¼ | µÕÁöºô¶ó(235-3) | 2 | 54.25 | 5,000 | 95 | 2002 | | 2025.06.23 | ¿ù¼¼ | ž¿ø·ë | 6 | 17.09 | 500 | 52 | 2013 | | 2025.06.23 | ¿ù¼¼ | µ¿¼ººô¶ó | 2 | 63.87 | 2,000 | 110 | 2001 | | 2025.06.23 | ¿ù¼¼ | ±ÝȺô | 2 | 14.85 | 500 | 44 | 2012 | | 2025.06.23 | ¸Å¸Å | Á¤È£(54-7) | 2 | 84.74 | 62,000 | | 2002 | | 2025.06.22 | Àü¼¼ | »ïÁ¤ÇÏÀÌÃ÷ºô | 4 | 51.18 | 23,000 | 0 | 2001 | | 2025.06.21 | ¸Å¸Å | ¿øÇü½¦¸£ºô(289-27) | 5 | 54.53 | 53,800 | | 2007 | | 2025.06.21 | ¸Å¸Å | ûµµÁÖÅà | 3 | 33.87 | 18,000 | | 1994 | | 2025.06.21 | ¸Å¸Å | ±ÝÈ£¸Ç¼Ç(244-176) | 2 | 78.7 | 67,000 | | 2001 | | 2025.06.21 | ¸Å¸Å | È¿¼ºÁÖÅÃ(294-42) | 3 | 54.03 | 42,800 | | 2012 | | 2025.06.21 | ¸Å¸Å | Ǫ¸¥ÁÖÅÃ¥± | 5 | 27.66 | 29,000 | | 2021 | | 2025.06.21 | Àü¼¼ | û¸í¿¡¹öºô¿¡À̵¿ | 2 | 44.81 | 26,500 | 0 | 2013 | | 2025.06.21 | Àü¼¼ | ¹Ì¼Ò°¡Bµ¿(244-168) | 4 | 45.96 | 27,820 | 0 | 2017 | | 2025.06.21 | ¿ù¼¼ | ´Ù¼Ø±×¶ûºô | 3 | 23.47 | 5,000 | 50 | 2020 | | 2025.06.20 | ¸Å¸Å | û¿Í¸Ç¼Ç | 2 | 70.33 | 50,000 | | 2002 | | 2025.06.20 | ¸Å¸Å | ¿ìÇöºô¶óÆ® | 2 | 31.91 | 54,000 | | 2014 | | 2025.06.20 | ¸Å¸Å | ½Â½Åºô¶ó | 1 | 48.96 | 32,700 | | 1990 | | 2025.06.20 | ¿ù¼¼ | ¸®Ä¡ºô(299-168) | 4 | 24.3 | 10,000 | 30 | 2012 | | 2025.06.20 | ¸Å¸Å | ¹Ì¼Ò°¡26Â÷ | 4 | 32.02 | 28,300 | | 2018 | | 2025.06.20 | ¿ù¼¼ | Çö´ëºô¸®Áö(1µ¿) | 1 | 39.59 | 3,000 | 60 | 1991 | | 2025.06.20 | ¸Å¸Å | ´Ù¿ø¾¾¾Ø¾ÆÀÌ | 4 | 29.715 | 34,000 | | 2018 | | 2025.06.20 | ¸Å¸Å | ÇѰ¸®Ã÷ºô(279-272) | 2 | 63.78 | 51,500 | | 2008 | | 2025.06.20 | ¸Å¸Å | ÀºÇýºô | 4 | 29.87 | 30,500 | | 2011 | | 2025.06.20 | Àü¼¼ | KSKºô5Â÷ | 3 | 29.88 | 13,500 | 0 | 2013 | | 2025.06.20 | ¿ù¼¼ | 211-440 | 5 | 29.48 | 5,500 | 100 | 2016 | | 2025.06.20 | Àü¼¼ | ¹«Áö°³ºô¶ó | -1 | 41.27 | 8,000 | 0 | 1992 | | 2025.06.20 | ¸Å¸Å | ¾È´ÙÇϿ콺 | 2 | 44.16 | 35,000 | | 2015 | | 2025.06.20 | Àü¼¼ | ÈÞ¸í°¡ | 3 | 29.59 | 26,000 | 0 | 2019 | | 2025.06.20 | Àü¼¼ | ·Ôµ¥ÆÄÅ©ºäAµ¿ | 2 | 59.29 | 27,000 | 0 | 2003 | | 2025.06.20 | ¿ù¼¼ | (283-106) | 2 | 26.34 | 2,000 | 100 | 2023 | | 2025.06.20 | Àü¼¼ | ¹Ì¼Ò°¡12Â÷ | 2 | 41.39 | 25,000 | 0 | 2014 | | 2025.06.19 | ¿ù¼¼ | Èúžºô | 3 | 67.01 | 31,000 | 30 | 2009 | | 2025.06.19 | ¿ù¼¼ | Èúžºô | 3 | 67.01 | 31,000 | 30 | 2009 | | 2025.06.19 | ¸Å¸Å | Á¤ÀÎ¾ÆÆ®ºô | 4 | 40.55 | 33,000 | | 2001 | | 2025.06.19 | ¿ù¼¼ | Feb-29 | 5 | 25.22 | 1,000 | 78 | 2016 | | 2025.06.19 | Àü¼¼ | Çö»êǪ¸¥½£ºô¶ó(279-23) | 2 | 53.48 | 22,000 | 0 | 2007 | | 2025.06.19 | Àü¼¼ | Èúžºô | 3 | 67.01 | 37,000 | 0 | 2009 | | 2025.06.19 | ¿ù¼¼ | ´ë¿ø | -1 | 37.2 | 8,500 | 20 | 2001 | | 2025.06.19 | ¿ù¼¼ | ´Ù¼Ø±×¶ûºô | 2 | 29.88 | 200 | 100 | 2019 | | 2025.06.19 | ¸Å¸Å | ÇູÇѵ¿Çà(214-146) | 2 | 38.74 | 34,800 | | 2015 | | 2025.06.19 | ¸Å¸Å | ÇѰÆÓ¸®½º(335-10) | 4 | 32.28 | 32,000 | | 2012 | | 2025.06.19 | ¸Å¸Å | ¶ó¿Âºô | 1 | 42 | 35,000 | | 2016 | | 2025.06.18 | ¿ù¼¼ | ¼Á¤Èúž | 5 | 26 | 3,000 | 55 | 2017 | | 2025.06.18 | ¿ù¼¼ | °³²ºô(210-313) | -1 | 66.63 | 5,000 | 80 | 2012 | | 2025.06.18 | Àü¼¼ | Çö´ëÇÏÀÌÃ÷ºô¶ó110µ¿ | 4 | 48.45 | 13,000 | 0 | 1994 | | 2025.06.18 | ¿ù¼¼ | ¹Ì¼Ò°¡Bµ¿(244-254) | 2 | 39.43 | 5,000 | 110 | 2018 | | 2025.06.18 | ¸Å¸Å | ÇÑ¾ç¾ÆÆ®ºô | 4 | 42.685 | 30,500 | | 2003 | | 2025.06.18 | ¸Å¸Å | µ¿¾ç | 5 | 39.07 | 15,200 | | 2010 | | 2025.06.18 | ¸Å¸Å | Çѳª·¡8Â÷ | 1 | 50.8 | 60,000 | | 2016 | | 2025.06.18 | ¸Å¸Å | ºÎ¸²¸Ç¼Ç | 4 | 70.78 | 57,500 | | 2006 | | 2025.06.17 | ¸Å¸Å | ½Â¿øÁÖÅÃ(299-1) | 5 | 49.62 | 50,300 | | 2023 | | 2025.06.17 | ¸Å¸Å | (279-433) | 4 | 41.15 | 25,500 | | 1994 | | 2025.06.17 | ¸Å¸Å | µµ¿µÅ¸¿î4Â÷Bµ¿ | 3 | 56.59 | 34,000 | | 2008 | | 2025.06.17 | ¸Å¸Å | žçºô¶ó | 1 | 45.07 | 34,500 | | 1991 | | 2025.06.17 | ¸Å¸Å | °³²ºô(236-9) | 4 | 35.77 | 37,000 | | 2014 | | 2025.06.17 | ¿ù¼¼ | µ¿Èºô | 2 | 33.7 | 3,000 | 63 | 2016 | | 2025.06.17 | Àü¼¼ | ±¹»çºÀºô¶óA(214-72) | 2 | 36.18 | 6,000 | 0 | 1986 | | 2025.06.17 | ¿ù¼¼ | À§³Ê½ºÈú | 2 | 13.95 | 500 | 45 | 2011 | | 2025.06.17 | ¿ù¼¼ | ¸®Æ²Æ÷·¹½ºÆ® | 4 | 25.8 | 5,000 | 95 | 2023 | | 2025.06.17 | ¸Å¸Å | ÀÌ¿¡½ºÇÏÀÓ6Â÷ | 5 | 29.1 | 36,750 | | 2017 | | 2025.06.16 | ¸Å¸Å | ´õŬ·¡½Ä | 3 | 29.56 | 43,500 | | 2023 | | 2025.06.16 | ¿ù¼¼ | ¹Ì¹Ì¾ÆÆ®ºô(335-101) | 1 | 65.15 | 29,000 | 25 | 2002 | | 2025.06.16 | Àü¼¼ | ´ëÀϺô¶ó(210-252¿Ü) | 3 | 41.57 | 20,400 | 0 | 2015 | | 2025.06.16 | Àü¼¼ | »óµµ·¹¹Ì¾Èºô | 2 | 57.5 | 30,000 | 0 | 2002 | | 2025.06.16 | ¸Å¸Å | »ó¿øºô¾ÆÆ® | 3 | 41.05 | 20,000 | | 2002 | | 2025.06.16 | ¸Å¸Å | ½Â¿øÁÖÅà | 2 | 29.75 | 34,000 | | 2020 | | 2025.06.15 | ¿ù¼¼ | ¹Ì¼Ò°¡(282-7) | 3 | 29.07 | 3,000 | 95 | 2022 | | 2025.06.15 | ¿ù¼¼ | (466-1) | 3 | 28.26 | 1,000 | 60 | 2003 | | 2025.06.15 | Àü¼¼ | ¿ìÇöÆÄÅ©ºô | 3 | 29.95 | 20,000 | 0 | 2014 | | 2025.06.15 | ¿ù¼¼ | ÇØÇǵ¥ÀÌ | 2 | 12.18 | 1,000 | 45 | 2012 | | 2025.06.15 | ¸Å¸Å | ´Ù³ª³×½ºÆ®ºô(301-190) | 4 | 47.88 | 26,500 | | 2008 | | 2025.06.15 | ¸Å¸Å | ¸ð´øÈúŸ¿î4Â÷ | 2 | 46.3 | 47,000 | | 2015 | | 2025.06.15 | ¸Å¸Å | Çö»êǪ¸¥½£ºô¶ó(279-23) | 2 | 53.48 | 39,000 | | 2007 | | 2025.06.14 | ¿ù¼¼ | ¹«°æÇϿ콺 | 6 | 37.91 | 500 | 45 | 2016 | | 2025.06.14 | ¸Å¸Å | Ä¥¼ºÇÏÀÌÃ÷ºô¶ó2Â÷³ªµ¿ | 1 | 82.26 | 44,000 | | 1991 | | 2025.06.14 | ¸Å¸Å | ±æÁÖºô¶ó7Â÷ | -1 | 84.93 | 34,500 | | 1996 | | 2025.06.14 | ¸Å¸Å | ÇѼººô¶ó(244-91) | 1 | 60.51 | 51,500 | | 1992 | | 2025.06.14 | ¸Å¸Å | ¿¹¼ºÈÞij½½³ªµ¿ | 4 | 39.77 | 29,000 | | 2014 | | 2025.06.14 | ¿ù¼¼ | ÀÌ¿¡½ºÇÏÀÓ12Â÷ | 4 | 29.74 | 3,150 | 116 | 2023 | | 2025.06.14 | ¿ù¼¼ | 154-7 | 3 | 15.54 | 1,500 | 48 | 2014 | | 2025.06.14 | ¸Å¸Å | »óµµ·ÎÁöºô | 2 | 29.06 | 40,000 | | 2018 | | 2025.06.14 | Àü¼¼ | ´õÆ÷·¹½ºÆ®3Â÷ | 2 | 43.41 | 25,000 | 0 | 2017 | | 2025.06.14 | ¿ù¼¼ | ±×¸°Èú | 2 | 29.92 | 3,000 | 80 | 2014 | | 2025.06.14 | ¿ù¼¼ | ÈÞ¸Õºô | 3 | 38.92 | 25,000 | 16 | 2018 | | 2025.06.14 | ¿ù¼¼ | ÈÞ¸Õºô | 3 | 38.92 | 25,000 | 16 | 2018 | | 2025.06.14 | ¿ù¼¼ | (366-9) | 5 | 35.62 | 3,000 | 60 | 2019 | | 2025.06.14 | Àü¼¼ | ÄÉÀ̵ð¾ÆÀ̺ôBµ¿ | 4 | 105.34 | 42,000 | 0 | 2003 | | 2025.06.13 | Àü¼¼ | »óµµµ¿ÇÏÀ̺ô | 5 | 51.94 | 26,000 | 0 | 2003 | | 2025.06.13 | Àü¼¼ | ·Î¾âij½½(210-153) | 3 | 46.53 | 21,500 | 0 | 2014 | | 2025.06.13 | Àü¼¼ | °¡µçºô¶ó | 2 | 58.3 | 36,000 | 0 | 2012 | | 2025.06.13 | ¿ù¼¼ | ¿¡ÀÌ·¹³×(492-12) | 3 | 15.18 | 1,000 | 55 | 2017 | | 2025.06.13 | ¿ù¼¼ | Á¦ÀϺô¶ó | 4 | 26.84 | 2,000 | 72 | 2002 | | 2025.06.13 | Àü¼¼ | Ƽ¿¡½ºÆÓ¸®½º | 3 | 39.09 | 25,000 | 0 | 2013 | | 2025.06.13 | ¸Å¸Å | ¶ó¿Âºô | 2 | 42 | 37,300 | | 2016 | | 2025.06.13 | Àü¼¼ | µµ´ã¸¶À» | 3 | 50.58 | 32,500 | 0 | 2022 | | 2025.06.13 | Àü¼¼ | ·°Å°¸®Ä¡ºô¶ó | 1 | 47.35 | 17,890 | 0 | 2002 | | 2025.06.13 | ¸Å¸Å | ¹Ì¼Ò°¡12Â÷ | 2 | 41.39 | 39,000 | | 2014 | | 2025.06.13 | ¸Å¸Å | »ó¾Æºô¶ó | 4 | 39.92 | 34,000 | | 1991 | | 2025.06.12 | Àü¼¼ | ¼¿¬ºô | 2 | 29.45 | 23,600 | 0 | 2017 | | 2025.06.12 | ¿ù¼¼ | ¹éÃÌŸ¿î | 1 | 68.15 | 9,000 | 30 | 1983 | | 2025.06.12 | ¿ù¼¼ | °¼ºÇÏÀÌÃ÷(°¡µ¿) | 3 | 47.52 | 2,000 | 80 | 1992 | | 2025.06.12 | Àü¼¼ | ¼®°æÆ®¶ó¿ò | 2 | 45.54 | 23,900 | 0 | 2013 | | 2025.06.12 | ¿ù¼¼ | ÇÁ¶óÀÓºô | 1 | 63.7 | 20,000 | 60 | 2002 | | 2025.06.12 | ¿ù¼¼ | ÇÁ¶óÀÓºô | 1 | 63.7 | 20,000 | 60 | 2002 | | 2025.06.12 | Àü¼¼ | Á¦½Â¸®Ä¡ºô | 2 | 29.95 | 20,100 | 0 | 2012 | | 2025.06.12 | ¿ù¼¼ | À§³Ê½ºÈú | 2 | 12.63 | 2,000 | 45 | 2011 | | 2025.06.12 | ¸Å¸Å | ´õŬ·¡½Ä | 4 | 29.56 | 56,000 | | 2023 | | 2025.06.12 | ¸Å¸Å | µ¿¿øº£½ºÆ®Å¸¿î | 3 | 31.33 | 30,000 | | 2015 | | 2025.06.12 | Àü¼¼ | ¼®°æÆ®¶ó¿ò | 2 | 45.54 | 24,000 | 0 | 2013 | | 2025.06.11 | ¿ù¼¼ | ¼ºÈ¯ºô | 2 | 41.26 | 1,650 | 45 | 2001 | | 2025.06.11 | Àü¼¼ | ¿ìÀÏÁÖÅà | -1 | 40.32 | 9,000 | 0 | 1989 | | 2025.06.11 | ¸Å¸Å | ´ëÈï¹Ì¼Ò°¡(214-221) | 3 | 41.35 | 39,000 | | 2012 | | 2025.06.11 | ¸Å¸Å | Àμº¼öÇÇ¾Æ | 3 | 38.08 | 49,000 | | 2022 | | 2025.06.11 | ¸Å¸Å | ½ºÄ«ÀÌÆ÷·¹ | 3 | 49.23 | 48,800 | | 2021 | | 2025.06.11 | ¸Å¸Å | ½ºÄ«ÀÌÆ÷·¹ | 4 | 49.23 | 49,350 | | 2021 | | 2025.06.11 | Àü¼¼ | µÎ¼Õº£½ºÆ¼¿ò(210-55) | 5 | 28.015 | 20,000 | 0 | 2014 | | 2025.06.11 | Àü¼¼ | µÎ¼Õº£½ºÆ¼¿ò(210-55) | 5 | 28.015 | 20,000 | 0 | 2014 | | 2025.06.11 | Àü¼¼ | ¸®¹öÆ÷·¹½ºÆ® | 5 | 29 | 15,000 | 0 | 2020 | | 2025.06.11 | ¿ù¼¼ | ¿¤·»ÇϿ콺 | 2 | 29.49 | 5,000 | 74 | 2015 | | 2025.06.11 | Àü¼¼ | µÎ¼Õº£½ºÆ¼¿ò(210-55) | 5 | 28.015 | 20,000 | 0 | 2014 | | 2025.06.11 | Àü¼¼ | ÇѼֺô¶óB | -1 | 43.13 | 9,000 | 0 | 1992 | | 2025.06.11 | ¿ù¼¼ | ±Ý±¤ÈÞ¸Õ¾¾Æ¼ | 5 | 13.07 | 1,000 | 50 | 2011 | | 2025.06.11 | Àü¼¼ | µÎ¼Õº£½ºÆ¼¿ò(210-55) | 5 | 28.015 | 20,000 | 0 | 2014 | | 2025.06.11 | ¸Å¸Å | ½ºÄ«ÀÌÆ÷·¹ | 6 | 50.39 | 52,700 | | 2021 | | 2025.06.11 | ¸Å¸Å | ½ºÄ«ÀÌÆ÷·¹ | 5 | 49.23 | 49,900 | | 2021 | | 2025.06.11 | ¸Å¸Å | ½ºÄ«ÀÌÆ÷·¹ | 6 | 50.39 | 47,450 | | 2021 | | 2025.06.11 | ¸Å¸Å | ½ºÄ«ÀÌÆ÷·¹ | 3 | 53.09 | 52,150 | | 2021 | | 2025.06.11 | ¸Å¸Å | ½ºÄ«ÀÌÆ÷·¹ | 2 | 49.23 | 48,800 | | 2021 | | 2025.06.11 | ¸Å¸Å | ½ºÄ«ÀÌÆ÷·¹ | 2 | 49.23 | 48,800 | | 2021 | | 2025.06.11 | ¸Å¸Å | ½ºÄ«ÀÌÆ÷·¹ | 4 | 49.23 | 49,350 | | 2021 | | 2025.06.11 | ¸Å¸Å | ½ºÄ«ÀÌÆ÷·¹ | 5 | 49.23 | 49,900 | | 2021 | | 2025.06.11 | ¸Å¸Å | ½ºÄ«ÀÌÆ÷·¹ | 6 | 50.39 | 52,700 | | 2021 | | 2025.06.11 | ¸Å¸Å | ½ºÄ«ÀÌÆ÷·¹ | 6 | 47.11 | 47,450 | | 2021 | | 2025.06.11 | ¸Å¸Å | ½ºÄ«ÀÌÆ÷·¹ | 5 | 53.09 | 53,250 | | 2021 | | 2025.06.11 | ¸Å¸Å | ½ºÄ«ÀÌÆ÷·¹ | 2 | 53.09 | 52,150 | | 2021 | | 2025.06.11 | ¸Å¸Å | µå¸²ÇϿ콺 | 5 | 28.87 | 40,500 | | 2012 | | 2025.06.11 | ¸Å¸Å | ½ºÄ«ÀÌÆ÷·¹ | 3 | 53.09 | 52,150 | | 2021 | | 2025.06.11 | ¸Å¸Å | ½ºÄ«ÀÌÆ÷·¹ | 4 | 53.09 | 52,700 | | 2021 | | 2025.06.11 | ¸Å¸Å | »óµµµ¿ÇÏÀ̺ô | 5 | 51.94 | 27,500 | | 2003 | | 2025.06.11 | ¸Å¸Å | ½ºÄ«ÀÌÆ÷·¹ | 4 | 53.09 | 52,700 | | 2021 | | 2025.06.11 | ¸Å¸Å | ½ºÄ«ÀÌÆ÷·¹ | 2 | 53.09 | 52,150 | | 2021 | | 2025.06.11 | ¸Å¸Å | ½ºÄ«ÀÌÆ÷·¹ | 5 | 53.09 | 53,250 | | 2021 | | 2025.06.11 | ¸Å¸Å | ½ºÄ«ÀÌÆ÷·¹ | 3 | 49.23 | 48,800 | | 2021 | | 2025.06.10 | ¿ù¼¼ | À§³Ê½ºÈú | 4 | 18.82 | 3,000 | 29 | 2011 | | 2025.06.10 | ¿ù¼¼ | Ä«·»½Ã¾ÆBµ¿ | 3 | 24.74 | 26,300 | 50 | 2022 | | 2025.06.10 | ¿ù¼¼ | ½Ã±×´ÏóÆÓ¸®½º | 4 | 59.98 | 7,000 | 80 | 2019 | | 2025.06.10 | Àü¼¼ | ûȺô¶ó°¡µ¿ | 1 | 40.3 | 13,000 | 0 | 1989 | | 2025.06.10 | ¿ù¼¼ | Ä«·»½Ã¾ÆBµ¿ | 3 | 24.74 | 26,300 | 50 | 2022 | | 2025.06.10 | ¿ù¼¼ | µµ¿µÅ¸¿î(210-86) | 3 | 42.59 | 21,000 | 15 | 2014 | | 2025.06.10 | Àü¼¼ | »óµµ¾ÆÆ®ºô(210-190) | 2 | 41.68 | 11,000 | 0 | 2015 | | 2025.06.10 | Àü¼¼ | ûȺô¶ó°¡µ¿ | 1 | 40.3 | 13,000 | 0 | 1989 | | 2025.06.10 | ¿ù¼¼ | µ¿µµºô¶ó | 3 | 66.12 | 14,000 | 20 | 1986 | | 2025.06.10 | ¿ù¼¼ | ½Ã±×´ÏóÆÓ¸®½º | 4 | 59.98 | 7,000 | 80 | 2019 | | 2025.06.10 | ¿ù¼¼ | ÇູÆÄÅ©ºô¸®Áö | 2 | 47.04 | 10,000 | 85 | 2012 | | 2025.06.10 | ¿ù¼¼ | Feb-29 | 5 | 25.22 | 1,000 | 78 | 2016 | | 2025.06.10 | ¸Å¸Å | ¸í¼ºÁÖÅà | 3 | 26.84 | 29,800 | | 2016 | | 2025.06.10 | ¸Å¸Å | ÆäÆ®¶óºô | 3 | 65.61 | 39,500 | | 2003 | | 2025.06.10 | ¸Å¸Å | ÇູÇѵ¿Çà(214-146) | 2 | 37.69 | 34,800 | | 2015 | | 2025.06.10 | ¸Å¸Å | ´Ù¿øºô | 4 | 22.77 | 16,400 | | 2002 | | 2025.06.10 | ¸Å¸Å | ÈÞ¸Õºô·¹ | 4 | 29.99 | 25,900 | | 2013 | | 2025.06.10 | ¸Å¸Å | ¹Ì¼Ò°¡(299-196) | 2 | 50.21 | 37,000 | | 2010 | | 2025.06.09 | ¿ù¼¼ | ÇØÇÇÇϿ콺(242-92) | 3 | 14.01 | 1,000 | 55 | 2013 | | 2025.06.09 | ¿ù¼¼ | ´Ù¿øºô | 4 | 22.77 | 11,400 | 15 | 2002 | | 2025.06.09 | ¿ù¼¼ | ÀÌ¿¡½ºÇÏÀÓ6Â÷ | 3 | 26.03 | 23,500 | 4 | 2017 | | 2025.06.09 | ¿ù¼¼ | º£½ººô | 2 | 21.58 | 500 | 55 | 2002 | | 2025.06.09 | ¸Å¸Å | ºÎ¸²¸Ç¼Ç | 2 | 75.97 | 59,000 | | 2006 | | 2025.06.09 | ¸Å¸Å | ¼Ò´ãºô¸®Áö(279-396) | 3 | 29.76 | 29,000 | | 2014 | | 2025.06.09 | ¸Å¸Å | »óµµÆÛ½ºÆ®ºô | 4 | 35.89 | 33,000 | | 2014 | | 2025.06.08 | ¿ù¼¼ | (7-60) | 2 | 11.84 | 3,700 | 55 | 2020 | | 2025.06.08 | ¿ù¼¼ | ´Ù¼Ø±×¶ûºô(210-47) | 2 | 42 | 27,100 | 7 | 2016 | | 2025.06.07 | Àü¼¼ | »óµµÃ¿½Ã2 | 4 | 51.6 | 30,000 | 0 | 2018 | | 2025.06.07 | Àü¼¼ | ¼ÒÀ±¼¾Æ®·²ÆÄÅ© | 5 | 28.45 | 22,800 | 0 | 2022 | | 2025.06.07 | ¿ù¼¼ | »óµµÃ¿½Ã2 | 4 | 51.6 | 29,400 | 5 | 2018 | | 2025.06.07 | Àü¼¼ | ¼ÒÀ±¼¾Æ®·²ÆÄÅ© | 2 | 28.45 | 22,800 | 0 | 2022 | | 2025.06.07 | ¿ù¼¼ | À§³Ê½ºÈú | 2 | 13.14 | 500 | 44 | 2011 | | 2025.06.07 | ¿ù¼¼ | À¯Ã¢ºô¶ó | 5 | 34.07 | 2,000 | 55 | 2008 | | 2025.06.07 | ¿ù¼¼ | »óµµÃ¿½Ã2 | 4 | 51.6 | 29,400 | 4 | 2018 | | 2025.06.07 | ¸Å¸Å | Ä«·»½Ã¾ÆBµ¿ | 3 | 29.83 | 45,500 | | 2022 | | 2025.06.07 | ¸Å¸Å | ÀÌȺô¸®Áî | 1 | 78.96 | 55,000 | | 2001 | | 2025.06.07 | Àü¼¼ | »ï¼ººô | 5 | 31.56 | 15,000 | 0 | 2011 | | 2025.06.06 | ¸Å¸Å | ¹ÏÀ½ºô | 5 | 21 | 28,200 | | 2016 | | 2025.06.06 | Àü¼¼ | ÀÌ¿¡½ºÇÏÀÓ7Â÷Bµ¿ | 2 | 33.1 | 26,500 | 0 | 2018 | | 2025.06.06 | Àü¼¼ | µµ´ã¸¶À» | 2 | 48.37 | 33,000 | 0 | 2022 | | 2025.06.06 | Àü¼¼ | µµ´ã¸¶À» | 2 | 48.37 | 33,000 | 0 | 2022 | | 2025.06.06 | ¿ù¼¼ | µ¿Èºô | 3 | 41.7 | 5,000 | 89 | 2016 | | 2025.06.06 | Àü¼¼ | µå¸²Æç¸®½º | 6 | 19.29 | 14,805 | 0 | 2012 | | 2025.06.06 | ¸Å¸Å | Âü´©¸®ºô | 4 | 65.64 | 50,000 | | 2012 | | 2025.06.06 | ¸Å¸Å | ½Â¿øÁÖÅÃ(299-1) | 2 | 28.5 | 38,500 | | 2023 | | 2025.06.06 | ¸Å¸Å | µÎ¼Õº£½ºÆ¼¿ò(210-55) | 4 | 28.015 | 27,000 | | 2014 | | 2025.06.05 | Àü¼¼ | ½Å¼º¾ÆÆ®ºô¶ó | 3 | 47.29 | 14,000 | 0 | 1991 | | 2025.06.05 | Àü¼¼ | ½¦¾îÇϿ콺 | 3 | 29.18 | 10,000 | 0 | 2012 | | 2025.06.05 | Àü¼¼ | ¿ìÇöij½½ | 4 | 33.44 | 24,300 | 0 | 2013 | | 2025.06.05 | Àü¼¼ | ½¦¾îÇϿ콺 | 3 | 29.18 | 10,500 | 0 | 2012 | | 2025.06.05 | Àü¼¼ | »óµµÁ¨Æ®¸®ÇÏÀÓ | 3 | 34.98 | 24,500 | 0 | 2018 | | 2025.06.05 | Àü¼¼ | »óµµÁ¨Æ®¸®ÇÏÀÓ | 3 | 34.98 | 24,500 | 0 | 2018 | | 2025.06.05 | Àü¼¼ | ¶óÅ©·¹½ºÅ¸ | 3 | 51.67 | 38,000 | 0 | 2022 | | 2025.06.05 | ¿ù¼¼ | ´õŬ·¡½Ä | 2 | 29.88 | 28,000 | 15 | 2023 | | 2025.06.05 | ¸Å¸Å | ¸í¼ºÁÖÅà | 3 | 26.84 | 29,800 | | 2016 | | 2025.06.05 | ¸Å¸Å | (244-349) | -1 | 41.1 | 31,000 | | 1986 | | 2025.06.04 | ¸Å¸Å | ¹Ì¼Ò°¡(282-7) | 4 | 29.81 | 48,900 | | 2022 | | 2025.06.04 | ¸Å¸Å | ¿¤¸®½Ã¾Æ | 3 | 43.41 | 32,000 | | 2014 | | 2025.06.04 | Àü¼¼ | µ¿ÇѺô¶ó | 2 | 51.35 | 18,000 | 0 | 1985 | | 2025.06.04 | Àü¼¼ | µ¿ÇѺô¶ó | 2 | 51.35 | 18,000 | 0 | 1985 | | 2025.06.04 | ¿ù¼¼ | ÁÖ¿øº£¸£ºô102 | 2 | 29.86 | 25,000 | 8 | 2018 | | 2025.06.04 | ¿ù¼¼ | ¸¶¸£¸¶ | 2 | 17.26 | 13,000 | 10 | 2012 | | 2025.06.04 | ¸Å¸Å | ¸ð´øÈúŸ¿î3Â÷ | 4 | 30.4 | 33,000 | | 2015 | | 2025.06.04 | Àü¼¼ | ÇѼֺô¶óB | -1 | 43.13 | 9,000 | 0 | 1992 | | 2025.06.04 | ¿ù¼¼ | ¹Ì¼Ò°¡17Â÷ | 3 | 36.87 | 25,700 | 20 | 2015 | | 2025.06.04 | Àü¼¼ | ÇѼֺô¶óB | -1 | 43.13 | 9,000 | 0 | 1992 | | 2025.06.04 | ¿ù¼¼ | ¹®ÈÁÖÅÃBµ¿ | 1 | 34.57 | 2,500 | 40 | 1987 | | 2025.06.04 | ¸Å¸Å | ³²¾çºô¶ó(301-209) | 2 | 53.85 | 25,000 | | 1994 | | 2025.06.04 | ¸Å¸Å | (283-106) | 3 | 26.34 | 40,000 | | 2023 | | 2025.06.04 | ¸Å¸Å | À£¸®Ä¡ÆÄÅ©(256-17) | 4 | 59.89 | 54,500 | | 2015 | | 2025.06.04 | ¸Å¸Å | (244-349) | -1 | 41.1 | 31,000 | | 1986 | | 2025.06.03 | Àü¼¼ | ÆÛ½ÃÇÈÇÏÀÌÃ÷ | -1 | 77.42 | 17,900 | 0 | 1992 | | 2025.06.03 | ¿ù¼¼ | °ñµç¸®¹öƼºô(1-10) | 2 | 78.11 | 10,000 | 100 | 2001 | | 2025.06.03 | Àü¼¼ | »óµµ±×¸°Å¸¿î | 1 | 64.65 | 19,000 | 0 | 1999 | | 2025.06.03 | Àü¼¼ | ´õÆÛ½ºÆ®Å¸¿î | 4 | 32.97 | 35,000 | 0 | 2018 | | 2025.06.03 | ¿ù¼¼ | ´ö¼ººô¶ó(279-108) | 2 | 51.53 | 17,000 | 10 | 1992 | | 2025.06.03 | ¿ù¼¼ | ¼Ò´ã1 | 2 | 13.11 | 1,000 | 65 | 2017 | | 2025.06.03 | Àü¼¼ | ÄÉÀ̵ð¾ÆÀ̺ôDµ¿ | 4 | 37.39 | 20,200 | 0 | 2007 | | 2025.06.03 | ¿ù¼¼ | »óµµ·¹À̳ª | 4 | 29.73 | 31,900 | 5 | 2022 | | 2025.06.03 | ¸Å¸Å | ´Ù³ª³×½ºÆ®ºô(241-11) | 4 | 37.04 | 44,500 | | 2008 | | 2025.06.03 | ¸Å¸Å | ´õÆÛ½ºÆ®Å¸¿î | 4 | 32.97 | 36,800 | | 2018 | | 2025.06.03 | ¸Å¸Å | (283-106) | 1 | 46.71 | 50,000 | | 2023 | | 2025.06.03 | ¸Å¸Å | (283-106) | 2 | 28.87 | 40,000 | | 2023 | | 2025.06.03 | ¸Å¸Å | (283-106) | 2 | 26.34 | 40,000 | | 2023 | | 2025.06.03 | ¸Å¸Å | (283-106) | 2 | 29.97 | 40,000 | | 2023 | | 2025.06.03 | ¸Å¸Å | ȶûºô¶ó | 2 | 56.05 | 48,000 | | 1994 | | 2025.06.03 | ¸Å¸Å | ½Åµ¿¾Æºô¶ó | 4 | 44.72 | 44,000 | | 1996 | | 2025.06.03 | ¸Å¸Å | À¯¼ºÁÖÅÃ(279-203) | 3 | 53.76 | 49,800 | | 1997 | | 2025.06.02 | ¿ù¼¼ | µî¾ÈÁ¤(335-149) | 2 | 12.22 | 1,000 | 55 | 2011 | | 2025.06.02 | ¿ù¼¼ | ÀÌ·¹¾ÆÆ®ºô12Â÷ | 3 | 34.11 | 19,000 | 10 | 2016 | | 2025.06.02 | ¿ù¼¼ | ÀÌ·¹¾ÆÆ®ºô12Â÷ | 3 | 34.11 | 19,000 | 10 | 2016 | | 2025.06.02 | ¿ù¼¼ | ¼ÒÀ±¼¾Æ®·²ÆÄÅ© | 2 | 27.85 | 22,400 | 15 | 2022 | | 2025.06.02 | ¸Å¸Å | (283-106) | 4 | 28.24 | 40,000 | | 2023 | | 2025.06.02 | ¸Å¸Å | µÕÁöºô¶ó(235-3) | 1 | 65.85 | 54,500 | | 2002 | | 2025.06.02 | ¸Å¸Å | (283-106) | 1 | 50.73 | 50,000 | | 2023 | | 2025.06.02 | ¸Å¸Å | (283-106) | 4 | 27.91 | 50,000 | | 2023 | | 2025.06.02 | ¸Å¸Å | (283-106) | 3 | 17.82 | 21,000 | | 2023 | | 2025.06.02 | ¸Å¸Å | ¾Æ¾Èä | 4 | 67.28 | 64,000 | | 2008 | | 2025.06.02 | ¸Å¸Å | (283-106) | 3 | 33.41 | 40,000 | | 2023 | | 2025.06.02 | ¸Å¸Å | ¾Æ¿øºô¶ó | 2 | 65.205 | 54,000 | | 2006 | | 2025.06.02 | ¸Å¸Å | °æ¹æ¸Ç¼Ç | 1 | 62.2 | 65,000 | | 1998 | | 2025.06.01 | ¿ù¼¼ | ±Ý»êºô | 1 | 29.87 | 19,000 | 10 | 2016 | | 2025.06.01 | ¿ù¼¼ | ½Å¼ºÇÏÀÌÃ÷ºô¶ó | 3 | 36.15 | 1,000 | 100 | 1991 | | 2025.06.01 | ¿ù¼¼ | (492-6) | 4 | 29.39 | 8,000 | 15 | 2012 | | 2025.06.01 | ¿ù¼¼ | ÁÖ¿øVILL | 2 | 15.33 | 2,000 | 55 | 2013 | | 2025.05.31 | Àü¼¼ | ¼ºÁö | 5 | 69.39 | 29,400 | 0 | 2002 | | 2025.05.31 | Àü¼¼ | ÇöÁÖ¾ÆÆ®ºô | 2 | 13.06 | 10,000 | 0 | 2013 | | 2025.05.31 | Àü¼¼ | ¸®¹öÆ÷·¹½ºÆ® | 2 | 54.3 | 36,000 | 0 | 2020 | | 2025.05.31 | Àü¼¼ | À¯Ã¢ºô¶ó | 3 | 47.59 | 29,000 | 0 | 2008 | | 2025.05.31 | ¿ù¼¼ | µµ´ã¸¶À» | 3 | 48.37 | 30,000 | 15 | 2022 | | 2025.05.31 | ¸Å¸Å | ¿¤¸®½Ã¾Æ(350-4) | 4 | 59.09 | 50,300 | | 2014 | | 2025.05.31 | ¸Å¸Å | ¶óÅ©·¹½ºÅ¸ | 6 | 58.02 | 69,000 | | 2022 | | 2025.05.31 | ¸Å¸Å | ÇѰ¸®Ä¡ºô(283-159) | 3 | 48.3 | 48,800 | | 2008 | | 2025.05.31 | ¸Å¸Å | ¶óÅ©·¹½ºÅ¸ | 3 | 27.3 | 48,000 | | 2022 | | 2025.05.31 | ¸Å¸Å | À¯¼ºÁÖÅÃ21Â÷ | 4 | 55.74 | 49,500 | | 1998 | | 2025.05.31 | ¸Å¸Å | Âü´©¸®ºô | 2 | 63.1 | 64,800 | | 2012 | | 2025.05.31 | ¸Å¸Å | õ¼öºô¶óCµ¿ | 1 | 34.92 | 19,500 | | 1992 | | 2025.05.31 | ¸Å¸Å | û¿øÁÖÅà | 1 | 60.78 | 43,000 | | 1995 | | 2025.05.31 | Àü¼¼ | À¯Ã¢ºô¶ó | 3 | 47.59 | 29,000 | 0 | 2008 | | 2025.05.30 | Àü¼¼ | ¶óÅ©·¹½ºÅ¸ | 4 | 59.87 | 43,000 | 0 | 2022 | | 2025.05.30 | ¿ù¼¼ | ¼º¸²±×¸°ºô¶ó | -1 | 50.38 | 4,000 | 10 | 1995 | | 2025.05.30 | ¿ù¼¼ | ÈÞ¸ÕŸ¿î | 4 | 84.09 | 21,450 | 4 | 2003 | | 2025.05.30 | ¸Å¸Å | ¿¡±×¸®³ª(256-31) | 2 | 57.12 | 39,000 | | 2015 | | 2025.05.30 | ¸Å¸Å | ½ºÅ¸½ÃƼ | 3 | 70.55 | 52,000 | | 2009 | | 2025.05.30 | ¸Å¸Å | µµ´ã¸¶À» | 2 | 48.37 | 59,900 | | 2022 | | 2025.05.30 | ¸Å¸Å | TSÆÓ¸®½º(470-9) | 3 | 29.26 | 29,000 | | 2013 | | 2025.05.29 | ¿ù¼¼ | ¹Ì¼Ò°¡(279-169) | 4 | 46.59 | 8,000 | 100 | 2019 | | 2025.05.29 | Àü¼¼ | ¹Ì¼Ò°¡Aµ¿(244-166) | 2 | 52.1 | 28,800 | 0 | 2017 | | 2025.05.29 | ¿ù¼¼ | Á¦ÀÌ¿ø | 2 | 13.47 | 5,000 | 40 | 2012 | | 2025.05.29 | ¿ù¼¼ | ¹Ì¼Ò°¡(279-169) | 4 | 46.59 | 10,000 | 90 | 2019 | | 2025.05.29 | ¿ù¼¼ | ¹Ì¼Ò°¡(282-7) | 4 | 28.7 | 2,000 | 100 | 2022 | | 2025.05.29 | Àü¼¼ | º¸¼ºÆÓ¸®½º11Â÷(244-49) | 5 | 36.02 | 20,000 | 0 | 2014 | | 2025.05.29 | ¿ù¼¼ | ¿ì¼º¸Ç¼Ç | 2 | 54.32 | 1,000 | 55 | 1992 | | 2025.05.29 | ¸Å¸Å | (268-1) | 2 | 53.55 | 57,000 | | 1980 | | 2025.05.29 | ¸Å¸Å | µµ´ã¸¶À» | 3 | 50.58 | 59,900 | | 2022 | | 2025.05.29 | ¸Å¸Å | Çý¼º¸Ç¼Ç | 3 | 66.48 | 55,000 | | 1996 | | 2025.05.29 | ¸Å¸Å | Á¦´Ï½ººô | 3 | 37.56 | 48,500 | | 2015 | | 2025.05.28 | ¿ù¼¼ | ¿ÍÀÌ¿¥½ÃƼ | 3 | 36.03 | 26,000 | 5 | 2022 | | 2025.05.28 | ¿ù¼¼ | ¼¾ÅÍÆ÷ÀÎÆ®»óµµ | 1 | 25.64 | 3,000 | 80 | 2020 | | 2025.05.28 | ¿ù¼¼ | û¾Æ¸Ç¼Ç | 3 | 52.38 | 16,560 | 50 | 2008 | | 2025.05.28 | Àü¼¼ | »óµµ½Ã±×´Ïó | 2 | 56.06 | 33,000 | 0 | 2022 | | 2025.05.28 | Àü¼¼ | ³ª¶ó±×¸°ºô | 4 | 36.9 | 14,300 | 0 | 2002 | | 2025.05.28 | Àü¼¼ | À£¸®Ä¡ÆÄÅ©(256-229) | 2 | 37.91 | 22,400 | 0 | 2014 | | 2025.05.28 | Àü¼¼ | ÇѼֺô¶óB | -1 | 43.13 | 9,000 | 0 | 1992 | | 2025.05.28 | Àü¼¼ | ÇѼֺô¶óB | -1 | 43.13 | 9,000 | 0 | 1992 | | 2025.05.28 | ¸Å¸Å | Á¦½Â¸®Ä¡ºô | 2 | 29.07 | 38,000 | | 2012 | | 2025.05.28 | ¸Å¸Å | µµ´ã¸¶À» | 3 | 56.83 | 63,000 | | 2022 | | 2025.05.28 | ¸Å¸Å | ¼ÒÀ±¼¾Æ®·²ÆÄÅ© | 2 | 28.45 | 42,000 | | 2022 | | 2025.05.28 | ¸Å¸Å | ¶óÅ©·¹½ºÅ¸ | 4 | 59.96 | 66,000 | | 2022 | | 2025.05.28 | ¸Å¸Å | ¶óÅ©·¹½ºÅ¸ | 4 | 59.96 | 66,000 | | 2022 | | 2025.05.27 | ¿ù¼¼ | ÇѼֺô¶óA | 2 | 39.94 | 12,800 | 20 | 1992 | | 2025.05.27 | ¿ù¼¼ | 154-7 | 5 | 42.85 | 1,000 | 100 | 2014 | | 2025.05.27 | ¸Å¸Å | ·ÎÁ¨ºô | 4 | 40.78 | 30,000 | | 2016 | | 2025.05.27 | ¿ù¼¼ | (303-8) | 1 | 76.31 | 1,000 | 95 | 2003 | | 2025.05.27 | ¸Å¸Å | ¼ÒÀ±¼¾Æ®·²ÆÄÅ© | 5 | 28.45 | 41,800 | | 2022 | | 2025.05.27 | ¸Å¸Å | ¼ÒÀ±¼¾Æ®·²ÆÄÅ© | 6 | 28.45 | 41,800 | | 2022 | | 2025.05.27 | ¸Å¸Å | ¼ÒÀ±¼¾Æ®·²ÆÄÅ© | 2 | 27.85 | 41,000 | | 2022 | | 2025.05.27 | ¸Å¸Å | ¼ÒÀ±¼¾Æ®·²ÆÄÅ© | 4 | 28.81 | 43,000 | | 2022 | | 2025.05.27 | ¸Å¸Å | »óµµ½Ã±×´Ïó | 4 | 58.94 | 65,000 | | 2022 | | 2025.05.27 | ¸Å¸Å | ÇѰºô¶ó | 2 | 32.88 | 21,000 | | 1992 | | 2025.05.26 | ¸Å¸Å | µµ´ã¸¶À» | 3 | 48.37 | 59,900 | | 2022 | | 2025.05.26 | ¸Å¸Å | ½Å¼ºÇÏÀÌÃ÷(299-68) | 1 | 76.68 | 48,000 | | 2000 | | 2025.05.26 | Àü¼¼ | ´Ù³ª³×½ºÆ®ºô(301-190) | 1 | 44.08 | 15,000 | 0 | 2008 | | 2025.05.26 | ¿ù¼¼ | Á¦½Â¸®Ä¡ºô | 3 | 29.07 | 19,000 | 20 | 2012 | | 2025.05.26 | ¿ù¼¼ | ¿øÀÏÁÖÅÃ(279-2) | 3 | 46.18 | 19,000 | 10 | 1992 | | 2025.05.26 | Àü¼¼ | Âü´©¸®ºô | 2 | 62.12 | 22,300 | 0 | 2012 | | 2025.05.26 | ¸Å¸Å | ¼ÒÀ±¼¾Æ®·²ÆÄÅ© | 4 | 28.45 | 41,000 | | 2022 | | 2025.05.26 | ¸Å¸Å | ¼ÒÀ±¼¾Æ®·²ÆÄÅ© | 2 | 26.66 | 37,000 | | 2022 | | 2025.05.26 | ¸Å¸Å | ¹éÃÌŸ¿î | 1 | 68.15 | 21,500 | | 1983 | | 2025.05.26 | ¸Å¸Å | ¹éÃÌŸ¿î | 1 | 68.15 | 25,500 | | 1983 | | 2025.05.26 | ¸Å¸Å | ÇѼֺô¶ó | 4 | 78.35 | 39,300 | | 2001 | | 2025.05.26 | ¸Å¸Å | ¼ÒÀ±¼¾Æ®·²ÆÄÅ© | 2 | 28.81 | 43,500 | | 2022 | | 2025.05.26 | Àü¼¼ | ·Îµ©ÇϿ콺22Â÷ | 3 | 41.46 | 30,000 | 0 | 2020 | | 2025.05.26 | ¸Å¸Å | ½Åµ¿¾Æ | 3 | 82.59 | 67,000 | | 2002 | | 2025.05.26 | ¸Å¸Å | ¼ÒÀ±¼¾Æ®·²ÆÄÅ© | 3 | 28.45 | 41,000 | | 2022 | | 2025.05.26 | ¸Å¸Å | ¼ÒÀ±¼¾Æ®·²ÆÄÅ© | 3 | 26.66 | 37,000 | | 2022 | | 2025.05.25 | ¿ù¼¼ | ¸ð´øÈúŸ¿î3Â÷ | 2 | 43.05 | 3,000 | 90 | 2015 | | 2025.05.25 | Àü¼¼ | ´ëÈï¹Ì¼Ò°¡24Â÷ | 2 | 29.24 | 21,600 | 0 | 2017 | | 2025.05.25 | ¿ù¼¼ | ¿ë¼±¾ÆÆ®ºô | 5 | 13.53 | 500 | 60 | 2013 | | 2025.05.24 | Àü¼¼ | Á¦½Â¸®Ä¡ºô | 2 | 29.95 | 20,100 | 0 | 2012 | | 2025.05.24 | Àü¼¼ | ´õÆ÷·¹½ºÆ®2Â÷ | 2 | 43.49 | 24,000 | 0 | 2016 | | 2025.05.24 | ¿ù¼¼ | ¸¶¸£¸¶ | 2 | 16.23 | 12,000 | 10 | 2012 | | 2025.05.24 | Àü¼¼ | ±×¸°½ÃƼ | 8 | 11.31 | 12,000 | 0 | 2018 | | 2025.05.24 | ¸Å¸Å | µµ¿µÅ¸¿î(210-86) | 3 | 42.59 | 30,500 | | 2014 | | 2025.05.24 | ¸Å¸Å | »óµµ½Ã±×´Ïó | 1 | 66.69 | 65,700 | | 2022 | | 2025.05.24 | ¸Å¸Å | »óµµ¼¼ÀÎÆ®ºôEµ¿(214-150¿Ü) | 2 | 29.98 | 35,000 | | 2015 | | 2025.05.24 | ¸Å¸Å | ÇѰÆÓ¸®½º(335-10) | 4 | 32.28 | 32,000 | | 2012 | | 2025.05.24 | ¸Å¸Å | ¿À¼ººô¶óÆ® | 2 | 53.55 | 44,800 | | 1996 | | 2025.05.24 | ¸Å¸Å | µ¿¹æÇÏÀÌÃ÷ºô¶ó | 3 | 54.09 | 44,800 | | 1994 | | 2025.05.24 | Àü¼¼ | °³²ºô(262-1) | 3 | 29.85 | 21,800 | 0 | 2019 | | 2025.05.24 | Àü¼¼ | ¹Ì¼Ò°¡Aµ¿(244-166) | 2 | 42.89 | 27,000 | 0 | 2017 | | 2025.05.24 | ¿ù¼¼ | ¿¹¸²¹Ì¼Ò°¡(201-77) | 4 | 34.44 | 0 | 56 | 2014 | | 2025.05.24 | Àü¼¼ | ¿À¼ººô¶óÆ® | 2 | 53.55 | 20,500 | 0 | 1996 | | 2025.05.24 | Àü¼¼ | ¿µÀκô¶ó | 3 | 62.41 | 20,000 | 0 | 1993 | | 2025.05.24 | Àü¼¼ | ¿¹¸²¹Ì¼Ò°¡3Â÷ | 2 | 39.85 | 21,000 | 0 | 2015 | | 2025.05.24 | Àü¼¼ | ¿À¼ººô¶óÆ® | 2 | 53.55 | 20,500 | 0 | 1996 | | 2025.05.24 | Àü¼¼ | ¹Ì¼Ò°¡Aµ¿(244-166) | 2 | 42.89 | 27,000 | 0 | 2017 | | 2025.05.24 | ¿ù¼¼ | ÇØ¶ß´ÂÁý(7-7) | 2 | 49.15 | 30,870 | 6 | 2017 | | 2025.05.23 | ¸Å¸Å | µµ´ã¸¶À» | 2 | 50.58 | 59,900 | | 2022 | | 2025.05.23 | ¸Å¸Å | »óµµ½Ã±×´Ïó | 3 | 63.88 | 67,000 | | 2022 | | 2025.05.23 | ¸Å¸Å | ¹Ì¼Ò°¡Aµ¿(244-252) | 4 | 44.7 | 53,500 | | 2018 | | 2025.05.23 | ¸Å¸Å | µå¸²·°½ººô | 2 | 76.32 | 44,000 | | 2003 | | 2025.05.23 | ¸Å¸Å | ¿øÇü½¦¸£ºô(289-27) | 4 | 54.53 | 50,000 | | 2007 | | 2025.05.23 | ¸Å¸Å | »óµµ½Ã±×´Ïó | 3 | 63.88 | 67,000 | | 2022 | | 2025.05.23 | ¸Å¸Å | ´Ù¿ø¾¾¾Ø¾ÆÀÌ | 5 | 29.84 | 36,000 | | 2018 | | 2025.05.23 | ¸Å¸Å | ¿ìÀÏÁÖÅà | -1 | 40.32 | 28,000 | | 1989 | | 2025.05.23 | ¸Å¸Å | ·ç³ªÆ÷·¹30 | 2 | 65.03 | 59,900 | | 2022 | | 2025.05.23 | ¿ù¼¼ | º¦¿¤ | 3 | 44.38 | 13,000 | 10 | 1997 | | 2025.05.23 | ¿ù¼¼ | (211-59) | 3 | 67.92 | 10,000 | 55 | 1993 | | 2025.05.23 | Àü¼¼ | ³×¿Àºô¸®Áö(299-57) | 5 | 26.43 | 15,000 | 0 | 2014 | | 2025.05.23 | ¸Å¸Å | ·ç³ªÆ÷·¹30 | 2 | 65.03 | 59,900 | | 2022 | | 2025.05.23 | Àü¼¼ | »ï¼ºµå¸²ºô | 5 | 38.63 | 22,000 | 0 | 2016 | | 2025.05.22 | ¿ù¼¼ | ¹éÈ£ºô | 2 | 18.24 | 5,000 | 20 | 2012 | | 2025.05.22 | ¸Å¸Å | ¿µµ¿¸Ç¼ð | 3 | 65.34 | 51,900 | | 1997 | | 2025.05.22 | ¿ù¼¼ | µî¾ÈÁ¤(335-149) | 2 | 13.24 | 500 | 62 | 2011 | | 2025.05.22 | ¿ù¼¼ | ½ºÅ¸ºô¶ó(303-19) | 4 | 53.62 | 23,600 | 5 | 2002 | | 2025.05.22 | ¸Å¸Å | ¿¹¼ºÈÞij½½´Ùµ¿ | 5 | 27.82 | 19,000 | | 2014 | | 2025.05.22 | ¸Å¸Å | ¼º¿ìºô¶ó(375-4) | 3 | 46.62 | 41,600 | | 1994 | | 2025.05.22 | ¸Å¸Å | ½Å¿ì±×¸°ºô¶ó(214-215) | 3 | 57.97 | 31,000 | | 1991 | | 2025.05.22 | ¸Å¸Å | µµ´ã¸¶À» | 5 | 43.53 | 55,000 | | 2022 | | 2025.05.22 | ¸Å¸Å | ¼ÒÀ±¼¾Æ®·²ÆÄÅ© | 4 | 26.66 | 39,800 | | 2022 | | 2025.05.22 | ¸Å¸Å | »óµµ½Ã±×´Ïó | 3 | 66.76 | 67,000 | | 2022 | | 2025.05.21 | Àü¼¼ | °ñµçºô¶ó | 2 | 65.28 | 26,000 | 0 | 1992 | | 2025.05.21 | Àü¼¼ | Àϱ¤¸®Ä¡ºô(256-196) | 3 | 49.67 | 27,000 | 0 | 2015 | | 2025.05.21 | ¿ù¼¼ | ¹Ì¼ºÇص帲(244-140) | 3 | 38.22 | 5,000 | 100 | 2013 | | 2025.05.21 | Àü¼¼ | Àϱ¤¸®Ä¡ºô(256-196) | 3 | 49.67 | 27,000 | 0 | 2015 | | 2025.05.21 | Àü¼¼ | ´õÆÛ½ºÆ®Å¸¿î | 6 | 49.19 | 33,000 | 0 | 2018 | | 2025.05.21 | ¿ù¼¼ | JABEZHOUSE | 2 | 56 | 1,000 | 55 | 2002 | | 2025.05.21 | ¿ù¼¼ | ÀÌ·¹¾ÆÆ®ºô(1-24) | 2 | 28.39 | 22,300 | 15 | 2017 | | 2025.05.21 | Àü¼¼ | ÇѰ´º½ºÅ¸1µ¿ | 2 | 44.33 | 29,350 | 0 | 2016 | | 2025.05.21 | Àü¼¼ | »óµµ½Ã±×´Ïó | 2 | 59.06 | 35,000 | 0 | 2022 | | 2025.05.21 | ¸Å¸Å | ¼ÒÀ±¼¾Æ®·²ÆÄÅ© | 6 | 28.81 | 42,700 | | 2022 | | 2025.05.21 | ¸Å¸Å | ¼ÒÀ±¼¾Æ®·²ÆÄÅ© | 5 | 26.66 | 39,300 | | 2022 | | 2025.05.21 | ¸Å¸Å | ¼º¹®ºô¶ó(279-427) | 3 | 49 | 28,000 | | 1991 | | 2025.05.21 | ¸Å¸Å | »óµµ½Ã±×´Ïó | 2 | 56.93 | 62,500 | | 2022 | | 2025.05.21 | ¸Å¸Å | ÄÚ¸°µµ½ººô | 2 | 80.75 | 52,000 | | 2003 | | 2025.05.20 | Àü¼¼ | ¸®Æ²Æ÷·¹½ºÆ® | 3 | 18.91 | 21,800 | 0 | 2023 | | 2025.05.20 | Àü¼¼ | À¯Áø¾ÆÆ®ºô | 4 | 57.5 | 19,950 | 0 | 2003 | | 2025.05.20 | ¿ù¼¼ | ¼Ò»ì¸®Åä»óµµ | 2 | 46.22 | 4,189 | 10 | 2020 | | 2025.05.20 | ¿ù¼¼ | ¸®º£ÇϿ콺 | 3 | 29.92 | 5,000 | 80 | 2012 | | 2025.05.20 | Àü¼¼ | ´Ù¿òºô | 3 | 29.69 | 17,600 | 0 | 2019 | | 2025.05.20 | Àü¼¼ | ¸®Æ²Æ÷·¹½ºÆ® | 3 | 18.91 | 21,800 | 0 | 2023 | | 2025.05.20 | ¿ù¼¼ | °ÅºÀSÇϿ콺»óµµ | 5 | 48.36 | 1,445 | 39 | 2022 | | 2025.05.20 | ¿ù¼¼ | ½ÉÄô | 5 | 47.01 | 6,054 | 31 | 2018 | | 2025.05.20 | ¸Å¸Å | ´ëµ¿¸®¹öÆÄÅ©ºô | 2 | 43.99 | 41,900 | | 2017 | | 2025.05.20 | ¸Å¸Å | ¼ººóºô¶ó(301-2) | 1 | 79.73 | 35,000 | | 2001 | | 2025.05.20 | ¸Å¸Å | »óµµ½Ã±×´Ïó | 1 | 59.06 | 62,500 | | 2022 | | 2025.05.20 | ¸Å¸Å | »óµµ±×¸°Èú1Â÷ | 3 | 70.98 | 58,000 | | 2002 | | 2025.05.20 | ¸Å¸Å | ½ºÅ¸½ÃƼ | 3 | 70.55 | 50,000 | | 2009 | | 2025.05.20 | ¿ù¼¼ | (17-52) | 4 | 127.22 | 1,500 | 80 | 2003 | | 2025.05.20 | Àü¼¼ | »óµµ½Ã±×´Ïó | 4 | 46.15 | 28,000 | 0 | 2022 | | 2025.05.20 | ¿ù¼¼ | ¼Ò»ì¸®Åä»óµµ | 4 | 46.22 | 4,119 | 12 | 2020 | | 2025.05.20 | ¿ù¼¼ | ÀÌ¿¡½ºÇÏÀÓ12Â÷ | 2 | 28.46 | 3,000 | 120 | 2023 | | 2025.05.20 | ¸Å¸Å | µµ´ã¸¶À» | 2 | 56.83 | 62,000 | | 2022 | | 2025.05.19 | Àü¼¼ | °³²ºô(243-4) | 5 | 43.7 | 35,000 | 0 | 2022 | | 2025.05.19 | Àü¼¼ | ¹Ì¼Ò°¡(279-217) | 2 | 37.63 | 19,150 | 0 | 2011 | | 2025.05.19 | Àü¼¼ | °³²ºô(243-4) | 5 | 43.7 | 35,000 | 0 | 2022 | | 2025.05.19 | ¿ù¼¼ | »óµµ½Ã±×´Ïó | 4 | 47.08 | 5,000 | 130 | 2022 | | 2025.05.19 | ¸Å¸Å | ¶óÅ©·¹½ºÅ¸ | 2 | 51.67 | 60,000 | | 2022 | | 2025.05.19 | Àü¼¼ | ¹Ì¼Ò°¡(279-217) | 2 | 37.63 | 19,150 | 0 | 2011 | | 2025.05.19 | Àü¼¼ | »óµµÈѹи®(214-31) | 3 | 45.33 | 15,000 | 0 | 1993 | | 2025.05.19 | ¿ù¼¼ | ´õÆ÷·¹½ºÆ®3Â÷ | 4 | 38.63 | 2,000 | 100 | 2017 | | 2025.05.19 | ¿ù¼¼ | (256-100) | -1 | 38.25 | 1,000 | 40 | 1986 | | 2025.05.19 | ¿ù¼¼ | Á¤È£(54-7) | 1 | 84.38 | 200 | 28 | 2002 | | 2025.05.18 | ¸Å¸Å | ¿¹¼ºÈÞij½½´Ùµ¿ | 3 | 27.82 | 22,500 | | 2014 | | 2025.05.18 | ¿ù¼¼ | È¿ÆÄÅ©ºô | 6 | 47.97 | 30,900 | 14 | 2019 | | 2025.05.18 | ¿ù¼¼ | ´ÙºóÄ¡(256-9) | 3 | 15.32 | 14,000 | 20 | 2018 | | 2025.05.18 | ¸Å¸Å | »óµµ½Ã±×´Ïó | 4 | 46.15 | 46,000 | | 2022 | | 2025.05.17 | Àü¼¼ | ÈÞ¸í°¡ | 3 | 27.431 | 24,600 | 0 | 2019 | | 2025.05.17 | ¿ù¼¼ | ¿ø¾Óºô¶ó | -1 | 44.78 | 10,000 | 10 | 1991 | | 2025.05.17 | ¿ù¼¼ | ÀÌ¿¡½ºÇÏÀÓ12Â÷ | 3 | 29.96 | 3,000 | 120 | 2023 | | 2025.05.17 | ¿ù¼¼ | TSÆÓ¸®½º(470-9) | 3 | 29.43 | 2,000 | 100 | 2013 | | 2025.05.17 | ¸Å¸Å | ÀÏÁ¤¾ÆÆ®ºô | 2 | 62.75 | 44,500 | | 2002 | | 2025.05.17 | ¸Å¸Å | ÇØ¶ß´ÂÁý | 2 | 81.3 | 40,000 | | 2005 | | 2025.05.17 | ¸Å¸Å | »óµµ½Ã±×´Ïó | 1 | 56.06 | 59,000 | | 2022 | | 2025.05.17 | ¸Å¸Å | ¶óÅ©·¹½ºÅ¸ | 2 | 59.7 | 67,500 | | 2022 | | 2025.05.17 | ¸Å¸Å | ¶óÅ©·¹½ºÅ¸ | 3 | 51.67 | 67,000 | | 2022 | | 2025.05.17 | ¸Å¸Å | µ¿¿øº£½ºÆ®Å¸¿î | 4 | 36.13 | 29,500 | | 2015 | | 2025.05.16 | ¿ù¼¼ | JABEZHOUSE | 2 | 27.7 | 1,000 | 55 | 2002 | | 2025.05.16 | ¿ù¼¼ | Çö´ëÈúŸ¿î | 4 | 43.6 | 20,000 | 50 | 2013 | | 2025.05.16 | ¿ù¼¼ | µ¿¿øºô¶ó(157-22) | 4 | 46.43 | 5,000 | 70 | 2002 | | 2025.05.16 | ¿ù¼¼ | (134-262) | 1 | 39.75 | 9,000 | 28 | 2003 | | 2025.05.16 | Àü¼¼ | °ÅÀ彺īÀ̺ô(214-45) | 2 | 69.68 | 19,900 | 0 | 2003 | | 2025.05.16 | ¿ù¼¼ | ¿¡ºñ´ººô(201-89) | 2 | 23.29 | 14,000 | 4 | 2015 | | 2025.05.16 | ¿ù¼¼ | ¹Ì¼Ò°¡(282-7) | 5 | 26.57 | 2,000 | 90 | 2022 | | 2025.05.16 | ¿ù¼¼ | ÇѸ¶À½ºôBµ¿ | 3 | 75.38 | 10,000 | 100 | 2003 | | 2025.05.16 | ¿ù¼¼ | ½Å¼ººô¶óÆ® | 2 | 48.56 | 5,000 | 95 | 2002 | | 2025.05.16 | Àü¼¼ | °ñµç¸®¹öƼºô(361-102) | 1 | 72.77 | 26,000 | 0 | 2000 | | 2025.05.16 | ¸Å¸Å | ¼ÒÀ±¼¾Æ®·²ÆÄÅ© | 3 | 27.85 | 41,500 | | 2022 | | 2025.05.16 | ¿ù¼¼ | ¹Ì¼Ò°¡20Â÷ | 5 | 29.08 | 2,000 | 83 | 2016 | | 2025.05.15 | Àü¼¼ | »óµµ½Ã±×´Ïó | 1 | 56.93 | 33,000 | 0 | 2022 | | 2025.05.15 | ¿ù¼¼ | º¦¿¤ | 3 | 44.38 | 13,000 | 10 | 1997 | | 2025.05.15 | Àü¼¼ | ½Ã³ªºô | 4 | 50.56 | 32,500 | 0 | 2021 | | 2025.05.15 | ¿ù¼¼ | ¸®Æ²Æ÷·¹½ºÆ® | 2 | 28.57 | 5,000 | 125 | 2023 | | 2025.05.15 | ¸Å¸Å | ¶óÅ©·¹½ºÅ¸ | 5 | 59.44 | 68,000 | | 2022 | | 2025.05.15 | ¸Å¸Å | °³²Ä³½½(264-42) | 4 | 69.85 | 45,000 | | 2014 | | 2025.05.15 | ¿ù¼¼ | º¦¿¤ | 3 | 44.38 | 13,000 | 10 | 1997 | | 2025.05.15 | ¿ù¼¼ | »óµµÇÏÀÌÃ÷(°¡µ¿) | 1 | 38.14 | 1,000 | 75 | 1988 | | 2025.05.15 | ¿ù¼¼ | º¦¿¤ | 3 | 44.38 | 13,000 | 10 | 1997 | | 2025.05.14 | ¿ù¼¼ | ¼¼ÀÌÇÁºô | 3 | 29.66 | 24,800 | 20 | 2019 | | 2025.05.14 | ¸Å¸Å | ¶óÅ©·¹½ºÅ¸ | 4 | 59.87 | 68,000 | | 2022 | | 2025.05.14 | ¸Å¸Å | ³«¿ø±×¸°Å¸¿ö³ªµ¿ | 1 | 82.92 | 59,000 | | 1998 | | 2025.05.14 | Àü¼¼ | ¿øÀÏÁÖÅÃ(279-2) | 3 | 46.18 | 18,000 | 0 | 1992 | | 2025.05.13 | Àü¼¼ | ´õÆ÷·¹½ºÆ®2Â÷ | 4 | 41.26 | 23,500 | 0 | 2016 | | 2025.05.13 | ¿ù¼¼ | ÃÊ¿ø¾ÆÆ®ºô¶ó(279-104) | 2 | 56.52 | 12,900 | 50 | 1993 | | 2025.05.13 | ¿ù¼¼ | SUNHOUSE(303-0) | 3 | 12.07 | 10,000 | 5 | 2013 | | 2025.05.13 | ¿ù¼¼ | ȨÀη¹Áö´ø½º | 2 | 15.4 | 500 | 50 | 2013 | | 2025.05.13 | ¿ù¼¼ | µ¿ÁøÇϿ콺 | 5 | 49.98 | 500 | 40 | 2015 | | 2025.05.13 | ¸Å¸Å | Çູºô | 5 | 56.77 | 54,500 | | 2017 | | 2025.05.13 | ¸Å¸Å | ¸¶Å©ÇϿ콺 | 2 | 46.81 | 54,500 | | 2016 | | 2025.05.13 | ¸Å¸Å | ´Ù¿ï³×¹öºôA(335-110) | 2 | 98.36 | 50,000 | | 2002 | | 2025.05.12 | ¿ù¼¼ | ÁøÈïǪ¸£Áö¿À | 2 | 33.01 | 3,000 | 100 | 2013 | | 2025.05.12 | ¿ù¼¼ | ¿Àº¹ºô¶ó | 3 | 37.27 | 2,000 | 50 | 1991 | | 2025.05.12 | ¿ù¼¼ | ÇѰ´º½ºÅ¸Bµ¿2Â÷ | 4 | 40.04 | 2,000 | 120 | 2014 | | 2025.05.12 | Àü¼¼ | »óµµ·¹À̳ª | 5 | 25.14 | 27,000 | 0 | 2022 | | 2025.05.12 | Àü¼¼ | »óµµ±×¸°ºô | 2 | 75.57 | 35,000 | 0 | 2002 | | 2025.05.12 | ¿ù¼¼ | ¼Ò»ì¸®Åä»óµµ | 4 | 40.05 | 4,057 | 10 | 2020 | | 2025.05.12 | ¸Å¸Å | Å·½ºÅ¸¿îAµ¿ | 3 | 48.07 | 32,000 | | 2014 | | 2025.05.12 | ¸Å¸Å | ¼ÒÀ±¼¾Æ®·²ÆÄÅ© | 6 | 49.13 | 64,700 | | 2022 | | 2025.05.12 | Àü¼¼ | ±Ý»êºô | 2 | 29.87 | 22,000 | 0 | 2016 | | 2025.05.11 | ¸Å¸Å | »óµµ½Ã±×´Ïó | 2 | 59.06 | 63,500 | | 2022 | | 2025.05.11 | ¿ù¼¼ | µî¾ÈÁ¤(335-149) | 4 | 18.96 | 1,000 | 55 | 2011 | | 2025.05.11 | ¸Å¸Å | »óµµ½Ã±×´Ïó | 1 | 56.93 | 59,000 | | 2022 | | 2025.05.11 | Àü¼¼ | ¸ð°ÇÇÏÀ̺ô(210-193) | 3 | 49.67 | 25,000 | 0 | 2014 | | 2025.05.10 | ¸Å¸Å | ¼ÒÀ±¼¾Æ®·²ÆÄÅ© | 3 | 28.81 | 44,500 | | 2022 | | 2025.05.10 | ¸Å¸Å | ¶óÅ©·¹½ºÅ¸ | 2 | 27.3 | 47,000 | | 2022 | | 2025.05.10 | Àü¼¼ | ·ÎÁîÈú½º | 3 | 67.02 | 31,000 | 0 | 2008 | | 2025.05.10 | ¿ù¼¼ | °³²Æç¸®Ã¼ | 4 | 51.34 | 25,000 | 50 | 2016 | | 2025.05.10 | Àü¼¼ | Å·½º¾Öºñ´ºBµ¿ | 3 | 45.71 | 26,200 | 0 | 2016 | | 2025.05.10 | Àü¼¼ | µ¿¾Æºô¶ó(279-45) | 4 | 48.7 | 15,000 | 0 | 1996 | | 2025.05.10 | ¿ù¼¼ | Á¦ÀÌ¿ø | 4 | 24.42 | 3,000 | 53 | 2012 | | 2025.05.10 | ¸Å¸Å | ¹Ì¼ºÇص帲(299-159) | 3 | 29.11 | 26,000 | | 2017 | | 2025.05.10 | ¸Å¸Å | ¸ð°Ç½¦¸£ºô | 2 | 29.34 | 23,700 | | 2012 | | 2025.05.10 | ¸Å¸Å | »óµµ½Ã±×´Ïó | 3 | 57.58 | 64,000 | | 2022 | | 2025.05.10 | ¸Å¸Å | »óµµ½Ã±×´Ïó | 2 | 56.06 | 59,500 | | 2022 | | 2025.05.10 | ¸Å¸Å | Çö´ëÇÏÀÌÃ÷ºô¶ó(101µ¿) | -1 | 30.06 | 20,000 | | 1990 | | 2025.05.09 | Àü¼¼ | ¼ÒÀ±¼¾Æ®·²ÆÄÅ© | 4 | 27.85 | 22,400 | 0 | 2022 | | 2025.05.09 | ¿ù¼¼ | ´ëÈï¹Ì¼Ò°¡18Â÷ | 2 | 34.77 | 26,100 | 3 | 2015 | | 2025.05.09 | ¿ù¼¼ | ÁÖ¿øº£¸£ºô102 | 4 | 28.95 | 5,000 | 100 | 2018 | | 2025.05.09 | Àü¼¼ | ´ëÈï¹Ì¼Ò°¡18Â÷ | 2 | 34.77 | 26,800 | 0 | 2015 | | 2025.05.09 | ¿ù¼¼ | ¹Ì¼Ò°¡(282-7) | 3 | 29.81 | 2,000 | 100 | 2022 | | 2025.05.09 | Àü¼¼ | È¿¼ºÁÖÅÃ(211-12) | 2 | 42.9 | 27,500 | 0 | 2015 | | 2025.05.09 | Àü¼¼ | ´ëÈï¹Ì¼Ò°¡18Â÷ | 2 | 34.77 | 26,800 | 0 | 2015 | | 2025.05.09 | ¿ù¼¼ | ¸®Ä¡ºô(335-67) | 3 | 76.39 | 10,000 | 80 | 2008 | | 2025.05.09 | ¿ù¼¼ | ¸®Ä¡ºô(335-67) | 3 | 76.39 | 10,000 | 80 | 2008 | | 2025.05.09 | ¸Å¸Å | »óµµ½Ã±×´Ïó | 4 | 47.08 | 52,000 | | 2022 | | 2025.05.09 | ¸Å¸Å | º£³×½ºÆ®¥² | 5 | 29.95 | 34,000 | | 2015 | | 2025.05.09 | ¸Å¸Å | µ¿¾ç½º¸¶Æ®ºô | 7 | 16.545 | 13,000 | | 2012 | | 2025.05.09 | Àü¼¼ | È¿¼ºÁÖÅÃ(211-12) | 2 | 42.9 | 27,500 | 0 | 2015 | | 2025.05.08 | Àü¼¼ | (202-150) | 1 | 26.4 | 12,000 | 0 | 1986 | | 2025.05.08 | ¿ù¼¼ | µ¿»êGreenTown | 2 | 29.95 | 0 | 120 | 2020 | | 2025.05.08 | ¿ù¼¼ | ¿ÍÀÌ¿¥½ÃƼ | 3 | 29.99 | 22,000 | 15 | 2022 | | 2025.05.08 | Àü¼¼ | Ç÷Îäºô2Â÷(335-4) | 1 | 44.19 | 8,000 | 0 | 2015 | | 2025.05.08 | Àü¼¼ | (134-262) | 1 | 39.75 | 17,115 | 0 | 2003 | | 2025.05.08 | ¸Å¸Å | µÎ¼Õº£½ºÆ¼¿ò(210-55) | 5 | 28.015 | 23,000 | | 2014 | | 2025.05.08 | ¸Å¸Å | ¼º¹®ºô¶ó(279-427) | 3 | 58.12 | 32,000 | | 1991 | | 2025.05.07 | Àü¼¼ | µ¿¹æÆÄ·¹½ººô¶ó13Â÷ | 2 | 51.18 | 18,000 | 0 | 1991 | | 2025.05.07 | ¿ù¼¼ | ¼§±×¸±¶óV | 4 | 29.96 | 5,000 | 80 | 2016 | | 2025.05.07 | ¸Å¸Å | ´ë¿Õºô(198-31) | 1 | 42.14 | 46,800 | | 2011 | | 2025.05.07 | ¸Å¸Å | ¿øÃµºô(299-127) | 4 | 81.43 | 40,000 | | 2012 | | 2025.05.06 | Àü¼¼ | ÀºÇýºô | 2 | 50.45 | 30,000 | 0 | 2011 | | 2025.05.06 | ¿ù¼¼ | ¹Ì¼Ò°¡(282-7) | 4 | 26.57 | 2,000 | 100 | 2022 | | 2025.05.06 | Àü¼¼ | µå¸²ÇϿ콺 | 5 | 28.87 | 21,500 | 0 | 2012 | | 2025.05.05 | ¿ù¼¼ | µ¿¾ç½º¸¶Æ®ºô | 4 | 14.308 | 1,000 | 65 | 2012 | | 2025.05.05 | ¿ù¼¼ | ÆÛ½ºÆ®ºô | 5 | 28.84 | 3,000 | 110 | 2016 | | 2025.05.04 | ¿ù¼¼ | ÀÌ¿¡½ºÇÏÀÓ12Â÷ | 1 | 29.96 | 3,000 | 120 | 2023 | | 2025.05.04 | ¸Å¸Å | »óµµ½Ã±×´Ïó | 2 | 42.52 | 45,000 | | 2022 | | 2025.05.03 | Àü¼¼ | »óµµ¼¼ÀÎÆ®ºôA(214-336¿Ü) | 4 | 32.09 | 19,700 | 0 | 2014 | | 2025.05.03 | Àü¼¼ | ±Ý°±×¸°ºô(256-52) | 4 | 35.01 | 13,000 | 0 | 2002 | | 2025.05.03 | Àü¼¼ | ÀÌÁÖ¾ÆÆ®ºô¶ó(°¡µ¿) | 2 | 54.6 | 19,000 | 0 | 1991 | | 2025.05.03 | ¿ù¼¼ | »ó¿øºô¾ÆÆ® | 2 | 41.05 | 3,000 | 80 | 2002 | | 2025.05.03 | ¿ù¼¼ | »óµµµ¿214-191´Ù¼¼´ëÁÖÅà | 1 | 63.93 | 3,000 | 53 | 2002 | | 2025.05.03 | ¿ù¼¼ | µå¸²Æç¸®½º | 3 | 21.31 | 15,900 | 3 | 2012 | | 2025.05.03 | ¿ù¼¼ | ¿ìÇöij½½ | 4 | 35.61 | 19,000 | 20 | 2013 | | 2025.05.03 | ¿ù¼¼ | »óµµ·¹À̳ª | 3 | 24.82 | 5,000 | 100 | 2022 | | 2025.05.02 | ¸Å¸Å | ·ÎÁ¨ºô | 2 | 39.2 | 30,000 | | 2016 | | 2025.05.02 | ¸Å¸Å | ´Ù¼Ø±×¶ûºô | 3 | 28.99 | 29,000 | | 2019 | | 2025.05.02 | ¸Å¸Å | ¸ð°Çºô¶óBµ¿ | 3 | 50.35 | 35,000 | | 2002 | | 2025.05.02 | ¿ù¼¼ | ½ÉÄô | 2 | 42.8 | 3,582 | 15 | 2018 | | 2025.05.02 | Àü¼¼ | (210-390) | 4 | 79.58 | 30,300 | 0 | 2001 | | 2025.05.02 | ¿ù¼¼ | ¸ð°ÇÇÏÀ̺ô(210-193) | 5 | 38.3 | 8,000 | 63 | 2014 | | 2025.05.02 | Àü¼¼ | (210-390) | 4 | 79.58 | 30,300 | 0 | 2001 | | 2025.05.01 | ¸Å¸Å | »óµµ½Ã±×´Ïó | 1 | 41.84 | 42,000 | | 2022 | | 2025.05.01 | Àü¼¼ | ´ëÈï¹Ì¼Ò°¡29Â÷(Bµ¿) | 5 | 29.94 | 27,500 | 0 | 2020 | | 2025.05.01 | Àü¼¼ | ´ëÈï¹Ì¼Ò°¡29Â÷(Aµ¿) | 3 | 42.68 | 25,500 | 0 | 2020 | | 2025.05.01 | Àü¼¼ | »óµµÅ¾ÇϿ콺ºô | 4 | 69.54 | 24,000 | 0 | 2004 | | 2025.05.01 | ¿ù¼¼ | ´Ù¿øC&IAµ¿ | 4 | 44.22 | 3,000 | 120 | 2016 | | 2025.05.01 | ¿ù¼¼ | Ǫ¿ò | 2 | 23.93 | 10,000 | 18 | 2014 | | 2025.05.01 | ¿ù¼¼ | È¿¼ººô¶ó | -1 | 40.63 | 1,500 | 63 | 1991 | | 2025.05.01 | ¿ù¼¼ | Ç÷ÎäºôBµ¿ | 4 | 26.67 | 5,000 | 80 | 2016 | | 2025.05.01 | ¸Å¸Å | ÇѰ´º½ºÅ¸(239-22) | 3 | 59.9 | 58,500 | | 2015 | | 2025.05.01 | ¸Å¸Å | »óµµ½Ã±×´Ïó | 4 | 41.38 | 44,000 | | 2022 | | 2025.05.01 | ¸Å¸Å | »ï¼ºÇÏÀÌÃ÷(229-1) | 3 | 59.63 | 44,000 | | 2016 | | 2025.05.01 | ¸Å¸Å | »óµµ½Ã±×´Ïó | 2 | 66.69 | 65,700 | | 2022 | | 2025.05.01 | ¿ù¼¼ | ½Â¿øÁÖÅà | 3 | 37.81 | 3,000 | 100 | 2017 | | 2025.04.30 | Àü¼¼ | »óµµ¿ª·Ôµ¥Ä³½½ÆÄÅ©¿¤ | 10 | 74.9587 | 75,000 | 0 | 2021 | | 2025.04.30 | Àü¼¼ | ·¡¹Ì¾È»óµµ3Â÷ | 4 | 84.96 | 57,000 | 0 | 2004 | | 2025.04.30 | Àü¼¼ | µÎ»êÀ§ºêÆ®·¹Áö¿ò2Â÷ | 11 | 84.8032 | 75,000 | 0 | 2016 | | 2025.04.30 | Àü¼¼ | Èú½ºÅ×ÀÌÆ® »óµµ ¼¾Æ®·²ÆÄÅ© | 3 | 84.7835 | 79,000 | 0 | 2012 | | 2025.04.30 | Àü¼¼ | Æ÷½ºÄÚ´õ¼¥ | 5 | 84.995 | 60,900 | 0 | 2007 | | 2025.04.30 | Àü¼¼ | Çö´ë(°ü¾Ç) | 10 | 58.59 | 38,000 | 0 | 1992 | | 2025.04.30 | Àü¼¼ | »óµµÇö´ë | 13 | 84.97 | 52,000 | 0 | 2003 | | 2025.04.30 | ¸Å¸Å | ¿ì¸®ºô¶ó | 2 | 55.23 | 45,000 | | 1991 | | 2025.04.29 | ¿ù¼¼ | ½Ö¿ë½ºÀ´åȨ | 3 | 84.954 | 20,000 | 150 | 2003 | | 2025.04.29 | ¸Å¸Å | µ¿¾ç¾ÆÆ®ºô | 1 | 49.38 | 32,000 | | 2002 | | 2025.04.29 | Àü¼¼ | ´ëµ¿¾ÆÆÄÆ® | 7 | 58.43 | 33,500 | 0 | 2017 | | 2025.04.29 | ¸Å¸Å | ¸®º£ÇϿ콺 | 3 | 29.92 | 24,000 | | 2012 | | 2025.04.29 | ¸Å¸Å | µµ´ã¸¶À» | 5 | 32.31 | 44,500 | | 2022 | | 2025.04.29 | ¸Å¸Å | (361-109) | 4 | 48.15 | 34,500 | | 2015 | | 2025.04.29 | ¸Å¸Å | Ǫ¸¥ÁÖÅÃ¥± | 5 | 27.66 | 23,507 | | 2021 | | 2025.04.28 | Àü¼¼ | »óµµ´õ¼¥2Â÷ | 7 | 84.99 | 70,000 | 0 | 2014 | | 2025.04.28 | Àü¼¼ | À̼öºê¶ó¿î½ºÅæ»óµµ(527-0) | 7 | 59.94 | 64,000 | 0 | 2007 | | 2025.04.28 | Àü¼¼ | µÎ»êÀ§ºêÆ®·¹Áö¿ò2Â÷ | 11 | 59.7852 | 37,248 | 0 | 2016 | | 2025.04.28 | Àü¼¼ | eÆíÇѼ¼»ó»óµµ³ëºô¸®Æ¼ | 25 | 59.5905 | 77,000 | 0 | 2018 | | 2025.04.27 | ¸Å¸Å | ¶óÀ̿°ñµåºô | 3 | 59.76 | 36,000 | | 2013 | | 2025.04.26 | Àü¼¼ | »óµµ¿ª·Ôµ¥Ä³½½ÆÄÅ©¿¤ | 14 | 59.9818 | 70,000 | 0 | 2021 | | 2025.04.26 | ¿ù¼¼ | Èú½ºÅ×ÀÌÆ® »óµµ ÇÁ·¹½ºÆ¼Áö | 5 | 84.884 | 50,000 | 42 | 2013 | | 2025.04.26 | Àü¼¼ | »óµµ¿ª·Ôµ¥Ä³½½ÆÄÅ©¿¤ | 7 | 59.9818 | 70,000 | 0 | 2021 | | 2025.04.26 | ¿ù¼¼ | Èú½ºÅ×ÀÌÆ® »óµµ ¼¾Æ®·²ÆÄÅ© | 15 | 84.6099 | 70,000 | 55 | 2012 | | 2025.04.26 | Àü¼¼ | Æ÷½ºÄÚ´õ¼¥ | 7 | 59.995 | 60,000 | 0 | 2007 | | 2025.04.26 | Àü¼¼ | »óµµ¿ª·Ôµ¥Ä³½½ÆÄÅ©¿¤ | 1 | 59.9818 | 55,600 | 0 | 2021 | | 2025.04.26 | Àü¼¼ | Èú½ºÅ×ÀÌÆ® »óµµ ¼¾Æ®·²ÆÄÅ© | 13 | 84.7835 | 78,750 | 0 | 2012 | | 2025.04.26 | Àü¼¼ | Æ÷½ºÄÚ´õ¼¥ | 7 | 59.995 | 62,000 | 0 | 2007 | | 2025.04.26 | Àü¼¼ | »óµµµ¿»ïÈ£¾ÆÆÄÆ® | 14 | 114.63 | 60,000 | 0 | 1994 | | 2025.04.26 | Àü¼¼ | Æ÷½ºÄÚ´õ¼¥ | 10 | 59.995 | 62,000 | 0 | 2007 | | 2025.04.26 | Àü¼¼ | Æ÷½ºÄÚ´õ¼¥ | 8 | 59.995 | 60,000 | 0 | 2007 | | 2025.04.26 | ¿ù¼¼ | »óµµ1Â÷°©À»¸í°¡ | 3 | 83.84 | 1,500 | 70 | 2006 | | 2025.04.26 | Àü¼¼ | »óµµÇö´ë | 3 | 84.97 | 46,200 | 0 | 2003 | | 2025.04.26 | Àü¼¼ | µ¿¾Æ | 11 | 83.09 | 45,000 | 0 | 1995 | | 2025.04.26 | Àü¼¼ | »óµµµ¿»ïÈ£¾ÆÆÄÆ® | 17 | 83.89 | 41,700 | 0 | 1994 | | 2025.04.26 | Àü¼¼ | eÆíÇѼ¼»ó»óµµ³ëºô¸®Æ¼ | 11 | 59.7827 | 65,100 | 0 | 2018 | | 2025.04.26 | ¸Å¸Å | µµ´ã¸¶À» | 4 | 51.69 | 59,900 | | 2022 | | 2025.04.25 | Àü¼¼ | eÆíÇѼ¼»ó»óµµ³ëºô¸®Æ¼ | 23 | 84.8746 | 76,000 | 0 | 2018 | | 2025.04.25 | ¸Å¸Å | ¹Ì¼Ò°¡Aµ¿(244-252) | 4 | 29.94 | 50,000 | | 2018 | | 2025.04.25 | ¸Å¸Å | ÇÁ¶óÀÓºô | 1 | 63.7 | 35,000 | | 2002 | | 2025.04.25 | Àü¼¼ | ·¡¹Ì¾È»óµµ3Â÷ | 12 | 84.96 | 68,000 | 0 | 2004 | | 2025.04.25 | ¿ù¼¼ | ·¡¹Ì¾È»óµµ3Â÷ | 5 | 84.96 | 10,000 | 180 | 2004 | | 2025.04.25 | Àü¼¼ | »óµµÆÄÅ©ÀÚÀÌ | 5 | 84.918 | 80,000 | 0 | 2016 | | 2025.04.25 | Àü¼¼ | µÎ»êÀ§ºêÆ®·¹Áö¿ò2Â÷ | 21 | 84.864 | 65,100 | 0 | 2016 | | 2025.04.24 | Àü¼¼ | ¾ÆÀÌÆÄÅ© | 14 | 84.96 | 63,000 | 0 | 2004 | | 2025.04.24 | ¸Å¸Å | Á¦½Â´õÇÏÀÓ | 3 | 40.27 | 49,700 | | 2011 | | 2025.04.24 | Àü¼¼ | ·¡¹Ì¾È»óµµ3Â÷ | 6 | 84.96 | 71,000 | 0 | 2004 | | 2025.04.24 | Àü¼¼ | »ï¼º·¡¹Ì¾È2 | 2 | 84.796 | 56,000 | 0 | 2003 | | 2025.04.24 | Àü¼¼ | »óµµ¿ª·Ôµ¥Ä³½½ÆÄÅ©¿¤ | 14 | 59.9818 | 75,000 | 0 | 2021 | | 2025.04.24 | ¸Å¸Å | µµ´ã¸¶À» | 4 | 47.83 | 59,900 | | 2022 | | 2025.04.24 | Àü¼¼ | »óµµ¿ª·Ôµ¥Ä³½½ÆÄÅ©¿¤ | 14 | 59.9818 | 75,000 | 0 | 2021 | | 2025.04.24 | Àü¼¼ | eÆíÇѼ¼»ó»óµµ³ëºô¸®Æ¼ | 7 | 84.9704 | 73,500 | 0 | 2018 | | 2025.04.24 | ¸Å¸Å | ¸ð´øÈúŸ¿î1Â÷ | 2 | 45.26 | 43,400 | | 2015 | | 2025.04.24 | ¸Å¸Å | ¾Æ³Ê½ºÈú | 3 | 54.5 | 45,000 | | 2013 | | 2025.04.24 | ¸Å¸Å | ÇÁ¸®¸ðŸ¿î | 4 | 51.93 | 39,500 | | 2002 | | 2025.04.24 | ¸Å¸Å | Èѹ̸®ºô¶ó | 1 | 75.48 | 28,500 | | 2001 | | 2025.04.23 | Àü¼¼ | »óµµÆÄÅ©ÀÚÀÌ | 12 | 84.918 | 80,000 | 0 | 2016 | | 2025.04.23 | Àü¼¼ | »óµµ¿ª·Ôµ¥Ä³½½ÆÄÅ©¿¤ | 20 | 59.6984 | 72,400 | 0 | 2021 | | 2025.04.23 | Àü¼¼ | Æ÷½ºÄÚ´õ¼¥ | 8 | 59.99 | 62,000 | 0 | 2007 | | 2025.04.23 | ¿ù¼¼ | »óµµÈÞ¿£ÇÏÀÓ | 7 | 14.7 | 1,000 | 65 | 2016 | | 2025.04.22 | Àü¼¼ | »óµµ¿ª·Ôµ¥Ä³½½ÆÄÅ©¿¤ | 10 | 59.6984 | 63,000 | 0 | 2021 | | 2025.04.22 | Àü¼¼ | °Ç¿µ | 14 | 114.96 | 73,000 | 0 | 1997 | | 2025.04.22 | Àü¼¼ | »óµµÈ¿¼ºÇظµÅÏÇ÷¹À̽º | 14 | 59.9769 | 50,000 | 0 | 2016 | | 2025.04.22 | Àü¼¼ | »óµµÆÄÅ©ÀÚÀÌ | 5 | 71.252 | 80,000 | 0 | 2016 | | 2025.04.22 | Àü¼¼ | »óµµ¿ª·Ôµ¥Ä³½½ÆÄÅ©¿¤ | 8 | 84.9952 | 85,000 | 0 | 2021 | | 2025.04.22 | ¸Å¸Å | Àοµ¸®Ä¡ºô | 4 | 67.23 | 42,000 | | 2002 | | 2025.04.22 | Àü¼¼ | Çö´ë(°ü¾Ç) | 14 | 84.78 | 65,000 | 0 | 1992 | | 2025.04.22 | ¸Å¸Å | ¹Ì¼ºÇص帲(244-140) | 3 | 38.22 | 49,300 | | 2013 | | 2025.04.22 | ¸Å¸Å | ±×¸°ºô¶ó(159-29) | 1 | 53.13 | 26,000 | | 1995 | | 2025.04.22 | Àü¼¼ | »óµµ¿¡½º¿¡ÀÌÄ¡ºô | 8 | 32.43 | 5,113 | 0 | 2006 | | 2025.04.21 | Àü¼¼ | Èú½ºÅ×ÀÌÆ® »óµµ ÇÁ·¹½ºÆ¼Áö | 20 | 84.884 | 80,000 | 0 | 2013 | | 2025.04.21 | Àü¼¼ | »óµµ¿¡½º¿¡ÀÌÄ¡ºô | 1 | 32.43 | 4,146 | 0 | 2006 | | 2025.04.21 | Àü¼¼ | eÆíÇѼ¼»ó»óµµ³ëºô¸®Æ¼ | 19 | 59.7827 | 75,000 | 0 | 2018 | | 2025.04.21 | Àü¼¼ | »óµµÇª¸£Áö¿ÀŬ¶óº£´º | 7 | 84.9198 | 68,000 | 0 | 2024 | | 2025.04.21 | ¸Å¸Å | ¹Ì¼Ò°¡Aµ¿(244-252) | 5 | 29.89 | 45,500 | | 2018 | | 2025.04.21 | ¿ù¼¼ | °Ç¿µ | 11 | 32.8 | 6,000 | 85 | 1997 | | 2025.04.21 | ¿ù¼¼ | »óµµ¿¡½º¿¡ÀÌÄ¡ºô | 7 | 32.43 | 3,708 | 8 | 2006 | | 2025.04.21 | ¿ù¼¼ | °Ç¿µ | 6 | 32.8 | 374 | 10 | 1997 | | 2025.04.21 | ¸Å¸Å | ¿ì¼ººô¶óÆ®(212-105) | -1 | 45.27 | 11,000 | | 1993 | | 2025.04.21 | ¸Å¸Å | û¸í¿¡¹öºô | 3 | 35.07 | 33,000 | | 2012 | | 2025.04.21 | ¸Å¸Å | ¹Ì¼Ò°¡Aµ¿(244-252) | 5 | 29.89 | 45,500 | | 2018 | | 2025.04.21 | ¸Å¸Å | Á¦´Ï½ººô(287-20) | 4 | 71.4 | 38,500 | | 2009 | | 2025.04.21 | ¸Å¸Å | ¸ÞÀÌÁ®ºô5Â÷ | 2 | 79.34 | 49,000 | | 2003 | | 2025.04.20 | ¸Å¸Å | ÈÞ¸Õºô | 3 | 38.92 | 30,600 | | 2018 | | 2025.04.20 | Àü¼¼ | Áß¾ÓÇÏÀÌÃ÷ºô | 15 | 84.9883 | 60,000 | 0 | 2003 | | 2025.04.20 | Àü¼¼ | »óµµ´õ¼¥2Â÷ | 10 | 84.99 | 69,000 | 0 | 2014 | | 2025.04.20 | Àü¼¼ | Æ÷½ºÄÚ´õ¼¥ | 14 | 84.995 | 61,950 | 0 | 2007 | | 2025.04.19 | ¸Å¸Å | Á¦½Â´õÇÏÀÓ | 5 | 38.68 | 44,000 | | 2011 | | 2025.04.19 | ¸Å¸Å | ´ë¼ºÇÏÀ̺ô¶óBµ¿ | 1 | 41.16 | 37,500 | | 1991 | | 2025.04.19 | ¿ù¼¼ | Æ÷½ºÄÚ´õ¼¥ | 13 | 161.481 | 10,000 | 350 | 2007 | | 2025.04.19 | Àü¼¼ | »óµµ¿ª·Ôµ¥Ä³½½ÆÄÅ©¿¤ | 9 | 74.9853 | 71,000 | 0 | 2021 | | 2025.04.19 | Àü¼¼ | »óµµÇª¸£Áö¿ÀŬ¶óº£´º | 2 | 59.8166 | 61,000 | 0 | 2024 | | 2025.04.19 | Àü¼¼ | ·¡¹Ì¾È»óµµ3Â÷ | 5 | 59.97 | 55,600 | 0 | 2004 | | 2025.04.19 | Àü¼¼ | »ï¼º·¡¹Ì¾È2 | 7 | 59.886 | 56,000 | 0 | 2003 | | 2025.04.19 | Àü¼¼ | Áß¾ÓÇÏÀÌÃ÷ºô | 3 | 84.9883 | 60,000 | 0 | 2003 | | 2025.04.19 | Àü¼¼ | Èú½ºÅ×ÀÌÆ® »óµµ ¼¾Æ®·²ÆÄÅ© | 14 | 84.7835 | 82,000 | 0 | 2012 | | 2025.04.19 | Àü¼¼ | »óµµ¿ª·Ôµ¥Ä³½½ÆÄÅ©¿¤ | 11 | 84.9952 | 83,000 | 0 | 2021 | | 2025.04.19 | Àü¼¼ | À̼öºê¶ó¿î½ºÅæ»óµµ(527-0) | 2 | 84.99 | 70,000 | 0 | 2007 | | 2025.04.19 | Àü¼¼ | À̼öºê¶ó¿î½ºÅæ»óµµ(527-0) | 3 | 84.99 | 69,000 | 0 | 2007 | | 2025.04.19 | Àü¼¼ | »óµµµ¿·¡¹Ì¾È1Â÷ | 14 | 114.171 | 68,250 | 0 | 2004 | | 2025.04.19 | Àü¼¼ | Èú½ºÅ×ÀÌÆ® »óµµ ÇÁ·¹½ºÆ¼Áö | 19 | 84.884 | 63,000 | 0 | 2013 | | 2025.04.18 | ¿ù¼¼ | »óµµ¿¡½º¿¡ÀÌÄ¡ºô | 9 | 32.43 | 1,831 | 18 | 2006 | | 2025.04.18 | ¿ù¼¼ | À̼öºê¶ó¿î½ºÅæ»óµµ(527-0) | 13 | 84.84 | 30,000 | 100 | 2007 | | 2025.04.18 | Àü¼¼ | »óµµµ¿»ïÈ£¾ÆÆÄÆ® | 3 | 114.63 | 46,000 | 0 | 1994 | | 2025.04.18 | Àü¼¼ | »óµµ´õ¼¥2Â÷ | 10 | 84.98 | 63,000 | 0 | 2014 | | 2025.04.18 | ¿ù¼¼ | »óµµ¿¡½º¿¡ÀÌÄ¡ºô | 2 | 32.43 | 1,831 | 18 | 2006 | | 2025.04.18 | ¸Å¸Å | ´Ü±Ã¾ÆÆ®ºô¶ó | -1 | 44.1 | 13,300 | | 1991 | | 2025.04.18 | ¸Å¸Å | ÀÌ·¹È¨Ä³½½ | 2 | 30 | 33,000 | | 2017 | | 2025.04.18 | ¸Å¸Å | »óµµÈѹи®(214-31) | 3 | 45.33 | 27,500 | | 1993 | | 2025.04.17 | ¸Å¸Å | û¼ÛÁÖÅÃ(299-150) | 4 | 73.52 | 36,800 | | 1995 | | 2025.04.17 | ¿ù¼¼ | Çö´ë(°ü¾Ç) | 9 | 84.78 | 42,000 | 8 | 1992 | | 2025.04.17 | ¿ù¼¼ | »óµµ¿¡½º¿¡ÀÌÄ¡ºô | 1 | 32.43 | 1,831 | 18 | 2006 | | 2025.04.17 | Àü¼¼ | Èú½ºÅ×ÀÌÆ® »óµµ ¼¾Æ®·²ÆÄÅ© | 8 | 59.8758 | 68,000 | 0 | 2012 | | 2025.04.17 | Àü¼¼ | eÆíÇѼ¼»ó»óµµ³ëºô¸®Æ¼ | 28 | 59.7827 | 78,000 | 0 | 2018 | | 2025.04.17 | Àü¼¼ | Èú½ºÅ×ÀÌÆ® »óµµ ¼¾Æ®·²ÆÄÅ© | 2 | 84.6099 | 80,000 | 0 | 2012 | | 2025.04.17 | ¸Å¸Å | ½¦¾îÇϿ콺 | 3 | 13.69 | 17,000 | | 2012 | | 2025.04.17 | ¸Å¸Å | Çູºô | 2 | 54.63 | 53,500 | | 2017 | | 2025.04.16 | ¿ù¼¼ | »óµµ¿¡½º¿¡ÀÌÄ¡ºô | 7 | 32.43 | 1,831 | 18 | 2006 | | 2025.04.16 | ¿ù¼¼ | °Ç¿µ | 16 | 32.8 | 935 | 9 | 1997 | | 2025.04.16 | ¿ù¼¼ | »ï¼º·¡¹Ì¾È2 | 4 | 84.796 | 25,000 | 140 | 2003 | | 2025.04.16 | Àü¼¼ | °æÇâ·º½ººô | 12 | 84.5802 | 50,000 | 0 | 2002 | | 2025.04.16 | Àü¼¼ | Çö´ë(°ü¾Ç) | 3 | 84.78 | 46,000 | 0 | 1992 | | 2025.04.16 | ¿ù¼¼ | »óµµ¿¡½º¿¡ÀÌÄ¡ºô | 11 | 32.43 | 732 | 21 | 2006 | | 2025.04.16 | ¿ù¼¼ | »óµµ¿¡½º¿¡ÀÌÄ¡ºô | 11 | 32.43 | 1,831 | 18 | 2006 | | 2025.04.16 | ¿ù¼¼ | °Ç¿µ | 16 | 32.8 | 374 | 10 | 1997 | | 2025.04.16 | ¿ù¼¼ | »óµµ¿¡½º¿¡ÀÌÄ¡ºô | 3 | 32.43 | 1,831 | 18 | 2006 | | 2025.04.16 | ¿ù¼¼ | »óµµ¿¡½º¿¡ÀÌÄ¡ºô | 3 | 32.43 | 3,801 | 7 | 2006 | | 2025.04.16 | Àü¼¼ | Æ÷½ºÄÚ´õ¼¥ | 11 | 59.99 | 63,000 | 0 | 2007 | | 2025.04.16 | ¿ù¼¼ | ¾¾Æ¼¾Æ¸ð¸®¿ò | 3 | 14.1881 | 1,000 | 65 | 2012 | | 2025.04.16 | Àü¼¼ | »óµµ¿ª·Ôµ¥Ä³½½ÆÄÅ©¿¤ | 18 | 74.9587 | 80,000 | 0 | 2021 | | 2025.04.16 | ¿ù¼¼ | ·¡¹Ì¾È»óµµ3Â÷ | 6 | 114.97 | 20,000 | 250 | 2004 | | 2025.04.16 | Àü¼¼ | »óµµ¿ª·Ôµ¥Ä³½½ÆÄÅ©¿¤ | 18 | 74.9587 | 80,000 | 0 | 2021 | | 2025.04.16 | ¿ù¼¼ | »ï¼º·¡¹Ì¾È2 | 4 | 84.796 | 25,000 | 140 | 2003 | | 2025.04.16 | ¿ù¼¼ | »óµµ¿¡½º¿¡ÀÌÄ¡ºô | 1 | 32.43 | 1,831 | 18 | 2006 | | 2025.04.16 | ¸Å¸Å | (244-302) | 1 | 98.71 | 65,000 | | 1976 | | 2025.04.16 | ¸Å¸Å | ½ºÅ¸½ÃƼ | 3 | 70.55 | 52,000 | | 2009 | | 2025.04.15 | ¿ù¼¼ | »óµµ¿¡½º¿¡ÀÌÄ¡ºô | 4 | 32.43 | 3,801 | 7 | 2006 | | 2025.04.15 | ¿ù¼¼ | »óµµ¿¡½º¿¡ÀÌÄ¡ºô | 13 | 32.43 | 1,831 | 18 | 2006 | | 2025.04.15 | ¿ù¼¼ | »óµµ¿¡½º¿¡ÀÌÄ¡ºô | 8 | 32.43 | 1,831 | 18 | 2006 | | 2025.04.15 | ¿ù¼¼ | »óµµ¿¡½º¿¡ÀÌÄ¡ºô | 13 | 32.43 | 1,831 | 18 | 2006 | | 2025.04.15 | ¿ù¼¼ | »óµµ¿¡½º¿¡ÀÌÄ¡ºô | 14 | 32.43 | 1,831 | 18 | 2006 | | 2025.04.15 | ¿ù¼¼ | »óµµ¿¡½º¿¡ÀÌÄ¡ºô | 11 | 32.43 | 1,831 | 18 | 2006 | | 2025.04.15 | ¿ù¼¼ | »óµµ¿¡½º¿¡ÀÌÄ¡ºô | 1 | 32.43 | 1,831 | 18 | 2006 | | 2025.04.15 | ¿ù¼¼ | »óµµ¿¡½º¿¡ÀÌÄ¡ºô | 7 | 32.43 | 1,831 | 18 | 2006 | | 2025.04.15 | ¿ù¼¼ | »óµµ¿¡½º¿¡ÀÌÄ¡ºô | 12 | 32.43 | 1,831 | 18 | 2006 | | 2025.04.15 | ¿ù¼¼ | »óµµ¿¡½º¿¡ÀÌÄ¡ºô | 13 | 32.43 | 1,831 | 18 | 2006 | | 2025.04.15 | ¿ù¼¼ | »óµµ¿¡½º¿¡ÀÌÄ¡ºô | 7 | 32.43 | 1,831 | 18 | 2006 | | 2025.04.15 | ¿ù¼¼ | »óµµ¿¡½º¿¡ÀÌÄ¡ºô | 14 | 32.43 | 1,831 | 18 | 2006 | | 2025.04.15 | ¿ù¼¼ | »óµµ¿¡½º¿¡ÀÌÄ¡ºô | 8 | 32.43 | 1,831 | 18 | 2006 | | 2025.04.15 | ¿ù¼¼ | »óµµ¿¡½º¿¡ÀÌÄ¡ºô | 7 | 32.43 | 732 | 21 | 2006 | | 2025.04.15 | ¿ù¼¼ | »óµµ¿¡½º¿¡ÀÌÄ¡ºô | 4 | 32.43 | 1,831 | 18 | 2006 | | 2025.04.15 | ¿ù¼¼ | »óµµ¿¡½º¿¡ÀÌÄ¡ºô | 13 | 32.43 | 732 | 21 | 2006 | | 2025.04.15 | ¿ù¼¼ | »óµµ¿¡½º¿¡ÀÌÄ¡ºô | 7 | 32.43 | 732 | 21 | 2006 | | 2025.04.15 | Àü¼¼ | Çö´ë201µ¿ | 1 | 59.91 | 28,600 | 0 | 1995 | | 2025.04.15 | Àü¼¼ | Çö´ë201µ¿ | 1 | 59.91 | 28,600 | 0 | 1995 | | 2025.04.15 | Àü¼¼ | ¾à¼ö¸Ç¼Ç | 10 | 131.5 | 55,000 | 0 | 1980 | | 2025.04.15 | ¿ù¼¼ | °Ç¿µ | 5 | 32.8 | 374 | 10 | 1997 | | 2025.04.15 | ¿ù¼¼ | °Ç¿µ | 13 | 32.8 | 935 | 9 | 1997 | | 2025.04.15 | ¿ù¼¼ | °Ç¿µ | 5 | 32.8 | 935 | 9 | 1997 | | 2025.04.15 | ¿ù¼¼ | °Ç¿µ | 8 | 32.8 | 935 | 9 | 1997 | | 2025.04.15 | ¿ù¼¼ | °Ç¿µ | 12 | 32.8 | 935 | 9 | 1997 | | 2025.04.15 | ¿ù¼¼ | °Ç¿µ | 8 | 32.8 | 935 | 9 | 1997 | | 2025.04.15 | ¿ù¼¼ | °Ç¿µ | 6 | 32.8 | 935 | 9 | 1997 | | 2025.04.15 | ¿ù¼¼ | »óµµ¿¡½º¿¡ÀÌÄ¡ºô | 14 | 32.43 | 732 | 21 | 2006 | | 2025.04.15 | ¿ù¼¼ | »óµµ¿¡½º¿¡ÀÌÄ¡ºô | 12 | 32.43 | 732 | 21 | 2006 | | 2025.04.15 | ¿ù¼¼ | »óµµ¿¡½º¿¡ÀÌÄ¡ºô | 10 | 32.43 | 1,831 | 18 | 2006 | | 2025.04.15 | ¿ù¼¼ | »óµµ¿¡½º¿¡ÀÌÄ¡ºô | 8 | 32.43 | 1,831 | 18 | 2006 | | 2025.04.15 | Àü¼¼ | ·¡¹Ì¾È»óµµ3Â÷ | 10 | 84.96 | 72,000 | 0 | 2004 | | 2025.04.15 | Àü¼¼ | »óµµ¿ª·Ôµ¥Ä³½½ÆÄÅ©¿¤ | 2 | 74.9853 | 75,200 | 0 | 2021 | | 2025.04.15 | Àü¼¼ | »óµµÆÄÅ©ÀÚÀÌ | 16 | 84.888 | 70,000 | 0 | 2016 | | 2025.04.15 | Àü¼¼ | Èú½ºÅ×ÀÌÆ® »óµµ ÇÁ·¹½ºÆ¼Áö | 10 | 84.951 | 70,350 | 0 | 2013 | | 2025.04.15 | Àü¼¼ | Èú½ºÅ×ÀÌÆ® »óµµ ¼¾Æ®·²ÆÄÅ© | 17 | 84.7835 | 80,000 | 0 | 2012 | | 2025.04.15 | ¿ù¼¼ | »óµµµ¿·¡¹Ì¾È1Â÷(ÀÓ´ë) | 7 | 30.289 | 1,480 | 18 | 2004 | | 2025.04.15 | ¿ù¼¼ | °Ç¿µ | 13 | 32.8 | 935 | 9 | 1997 | | 2025.04.15 | ¿ù¼¼ | ½Ö¿ë½ºÀ´åȨ | 2 | 59.578 | 5,000 | 150 | 2003 | | 2025.04.14 | Àü¼¼ | ·¡¹Ì¾È»óµµ3Â÷ | 11 | 84.96 | 57,750 | 0 | 2004 | | 2025.04.14 | ¿ù¼¼ | ¾¾Æ¼¾Æ¸ð¸®¿ò | 3 | 12.7071 | 1,000 | 60 | 2012 | | 2025.04.14 | Àü¼¼ | Èú½ºÅ×ÀÌÆ® »óµµ ¼¾Æ®·²ÆÄÅ© | 16 | 84.7835 | 66,150 | 0 | 2012 | | 2025.04.14 | Àü¼¼ | »ï¼º·¡¹Ì¾È2 | 8 | 84.796 | 58,000 | 0 | 2003 | | 2025.04.14 | Àü¼¼ | »óµµµ¿»ïÈ£¾ÆÆÄÆ® | 16 | 83.89 | 45,000 | 0 | 1994 | | 2025.04.14 | ¸Å¸Å | ¾Æ³Ê½ºÈú2Â÷ | 3 | 29.66 | 27,000 | | 2014 | | 2025.04.14 | ¸Å¸Å | ¿ì¼ººô¶ó | 3 | 32.87 | 28,000 | | 1992 | | 2025.04.14 | ¸Å¸Å | ¿ì¼ººô¶ó | 3 | 32.87 | 28,000 | | 1992 | | 2025.04.14 | ¸Å¸Å | ¼±°æ¾ÆÆ®ºô | 1 | 58 | 42,600 | | 2001 | | 2025.04.14 | ¸Å¸Å | µ¿¼Ûºô¸®ÁöAµ¿ | 1 | 57.03 | 18,000 | | 2002 | | 2025.04.14 | ¸Å¸Å | ¼ºÁ¾ | 4 | 64.69 | 48,500 | | 2010 | | 2025.04.13 | ¿ù¼¼ | »óµµ¿ª·Ôµ¥Ä³½½ÆÄÅ©¿¤ | 11 | 59.9818 | 30,000 | 170 | 2021 | | 2025.04.13 | ¸Å¸Å | ¿ì³²ÆÄÅ©ºô | 2 | 49.32 | 43,500 | | 2016 | | 2025.04.13 | Àü¼¼ | »óµµµ¿·¡¹Ì¾È1Â÷ | 6 | 84.959 | 62,000 | 0 | 2004 | | 2025.04.13 | Àü¼¼ | »óµµÆÄÅ©ÀÚÀÌ | 18 | 72.328 | 80,000 | 0 | 2016 | | 2025.04.13 | Àü¼¼ | Èú½ºÅ×ÀÌÆ® »óµµ ¼¾Æ®·²ÆÄÅ© | 11 | 59.7754 | 57,750 | 0 | 2012 | | 2025.04.13 | ¿ù¼¼ | »óµµ¿ª·Ôµ¥Ä³½½ÆÄÅ©¿¤ | 11 | 59.9818 | 30,000 | 170 | 2021 | | 2025.04.12 | Àü¼¼ | »óµµµ¿·¡¹Ì¾È1Â÷ | 13 | 84.959 | 63,000 | 0 | 2004 | | 2025.04.12 | Àü¼¼ | Çö´ë(°ü¾Ç) | 1 | 84.78 | 40,950 | 0 | 1992 | | 2025.04.12 | Àü¼¼ | µ¿¿øº£³×½ºÆ® | 9 | 84.958 | 52,500 | 0 | 2008 | | 2025.04.12 | Àü¼¼ | À̼öºê¶ó¿î½ºÅæ»óµµ(527-0) | 12 | 59.91 | 64,000 | 0 | 2007 | | 2025.04.12 | ¿ù¼¼ | Èú½ºÅ×ÀÌÆ® »óµµ ¼¾Æ®·²ÆÄÅ© | 5 | 118.2086 | 80,000 | 110 | 2012 | | 2025.04.12 | Àü¼¼ | »óµµÈÞ¿£ÇÏÀÓ | 10 | 14.7 | 11,300 | 0 | 2016 | | 2025.04.12 | Àü¼¼ | »óµµ¿ª·Ôµ¥Ä³½½ÆÄÅ©¿¤ | 4 | 110.9996 | 75,075 | 0 | 2021 | | 2025.04.12 | Àü¼¼ | »óµµ¿ª·Ôµ¥Ä³½½ÆÄÅ©¿¤ | 2 | 59.9818 | 65,000 | 0 | 2021 | | 2025.04.12 | Àü¼¼ | »óµµ¿ª·Ôµ¥Ä³½½ÆÄÅ©¿¤ | 5 | 84.9807 | 52,500 | 0 | 2021 | | 2025.04.12 | Àü¼¼ | »ï¼º·¡¹Ì¾È2 | 13 | 59.886 | 42,000 | 0 | 2003 | | 2025.04.12 | Àü¼¼ | »óµµ¿ª·Ôµ¥Ä³½½ÆÄÅ©¿¤ | 12 | 59.9818 | 60,900 | 0 | 2021 | | 2025.04.12 | ¸Å¸Å | µÕÁöºô¶ó(235-3) | 2 | 54.25 | 46,000 | | 2002 | | 2025.04.12 | ¸Å¸Å | ¸¶¿îƾºô¶ó | -1 | 47.25 | 9,500 | | 1996 | | 2025.04.12 | ¸Å¸Å | ´õÆ÷·¹½ºÆ®2Â÷ | 3 | 43.49 | 36,700 | | 2016 | | 2025.04.12 | ¸Å¸Å | ¿¡µ§ºô¶ó | -1 | 72.69 | 26,000 | | 1995 | | 2025.04.11 | Àü¼¼ | ·¡¹Ì¾È»óµµ3Â÷ | 1 | 114.97 | 81,000 | 0 | 2004 | | 2025.04.11 | Àü¼¼ | µÎ»êÀ§ºêÆ®·¹Áö¿ò2Â÷ | 16 | 84.864 | 81,000 | 0 | 2016 | | 2025.04.11 | ¸Å¸Å | ¼±ÁøÆÄÅ©ºô¶ó | 1 | 64.11 | 32,000 | | 1996 | | 2025.04.10 | Àü¼¼ | »óµµÆÄÅ©ÀÚÀÌ | 16 | 59.978 | 70,000 | 0 | 2016 | | 2025.04.10 | ¸Å¸Å | ¸ð°Çºô¶óÆ® | 2 | 29.04 | 42,000 | | 2012 | | 2025.04.10 | Àü¼¼ | ·¡¹Ì¾È»óµµ3Â÷ | 10 | 84.96 | 68,000 | 0 | 2004 | | 2025.04.10 | Àü¼¼ | »óµµ¿ª·Ôµ¥Ä³½½ÆÄÅ©¿¤ | 7 | 84.9833 | 80,000 | 0 | 2021 | | 2025.04.10 | Àü¼¼ | eÆíÇѼ¼»ó»óµµ³ëºô¸®Æ¼ | 2 | 59.7827 | 61,950 | 0 | 2018 | | 2025.04.10 | Àü¼¼ | »óµµ¿ª·Ôµ¥Ä³½½ÆÄÅ©¿¤ | 10 | 59.9818 | 73,000 | 0 | 2021 | | 2025.04.10 | Àü¼¼ | »óµµµ¿·¡¹Ì¾È1Â÷ | 10 | 84.959 | 43,000 | 0 | 2004 | | 2025.04.09 | Àü¼¼ | µÎ»êÀ§ºêÆ®·¹Áö¿ò2Â÷ | 19 | 84.9988 | 69,300 | 0 | 2016 | | 2025.04.09 | ¿ù¼¼ | Èú½ºÅ×ÀÌÆ® »óµµ ÇÁ·¹½ºÆ¼Áö | 2 | 120.49 | 80,000 | 57 | 2013 | | 2025.04.09 | ¸Å¸Å | À§³Ê½ººô¸®Áö | 4 | 94.11 | 45,000 | | 1997 | | 2025.04.09 | ¸Å¸Å | ¾Æ³×½ºÆ® | 3 | 38.58 | 17,000 | | 2012 | | 2025.04.09 | ¸Å¸Å | ¼ºÁöºô¶ó(212-48) | -1 | 37.28 | 18,000 | | 1996 | | 2025.04.09 | Àü¼¼ | »óµµ¿ª·Ôµ¥Ä³½½ÆÄÅ©¿¤ | 4 | 59.9851 | 72,000 | 0 | 2021 | | 2025.04.09 | Àü¼¼ | »óµµ¿ª·Ôµ¥Ä³½½ÆÄÅ©¿¤ | 4 | 59.9851 | 72,000 | 0 | 2021 | | 2025.04.09 | ¿ù¼¼ | »þÀÎ | 5 | 145.03 | 3,000 | 120 | 2007 | | 2025.04.09 | ¿ù¼¼ | Èú½ºÅ×ÀÌÆ® »óµµ ÇÁ·¹½ºÆ¼Áö | 2 | 120.49 | 80,000 | 58 | 2013 | | 2025.04.08 | ¿ù¼¼ | Èú½ºÅ×ÀÌÆ® »óµµ ¼¾Æ®·²ÆÄÅ© | 2 | 84.7835 | 30,000 | 101 | 2012 | | 2025.04.08 | Àü¼¼ | µÎ»êÀ§ºêÆ®·¹Áö¿ò2Â÷ | 6 | 84.8624 | 76,500 | 0 | 2016 | | 2025.04.08 | ¿ù¼¼ | »óµµÈÞ¿£ÇÏÀÓ | 4 | 14.7 | 7,000 | 40 | 2016 | | 2025.04.08 | ¿ù¼¼ | »óµµÆÄÅ©ÀÚÀÌ | 17 | 59.978 | 5,000 | 165 | 2016 | | 2025.04.08 | ¸Å¸Å | Çູºô | 5 | 21.26 | 30,000 | | 2017 | | 2025.04.08 | ¸Å¸Å | °³²·º½ººô | 4 | 66.89 | 40,400 | | 2007 | | 2025.04.08 | ¸Å¸Å | »óµµÃ¿½Ã(256-212) | 5 | 36.16 | 37,000 | | 2014 | | 2025.04.08 | ¸Å¸Å | ³ªÀ̽ººô | 2 | 59.41 | 47,600 | | 2016 | | 2025.04.07 | Àü¼¼ | °Ç¿µ | 17 | 32.8 | 42,000 | 0 | 1997 | | 2025.04.07 | Àü¼¼ | eÆíÇѼ¼»ó»óµµ³ëºô¸®Æ¼ | 26 | 84.9704 | 88,000 | 0 | 2018 | | 2025.04.07 | Àü¼¼ | ·¡¹Ì¾È»óµµ3Â÷ | 6 | 84.96 | 72,000 | 0 | 2004 | | 2025.04.07 | Àü¼¼ | Áø¼º±×¸° | 4 | 81.46 | 30,000 | 0 | 2004 | | 2025.04.07 | Àü¼¼ | »óµµ¿ª·Ôµ¥Ä³½½ÆÄÅ©¿¤ | 3 | 59.9818 | 56,500 | 0 | 2021 | | 2025.04.07 | ¸Å¸Å | µ¿»êÈޱ׸°Å¸¿î | 2 | 28.25 | 20,500 | | 2018 | | 2025.04.07 | ¸Å¸Å | ¿ì¼ººô¶ó | 3 | 38.46 | 30,000 | | 1992 | | 2025.04.07 | ¸Å¸Å | ¹Ì¼ºÇص帲(256-228) | 2 | 29.81 | 28,800 | | 2016 | | 2025.04.07 | ¸Å¸Å | ¿ì¼ººô¶ó | 3 | 38.46 | 30,000 | | 1992 | | 2025.04.07 | ¸Å¸Å | ¹«Áö°³ºô¶ó | -1 | 41.27 | 14,500 | | 1992 | | 2025.04.05 | ¿ù¼¼ | »óµµÈÞ¿£ÇÏÀÓ | 7 | 14.7 | 5,000 | 40 | 2016 | | 2025.04.05 | Àü¼¼ | »óµµµ¿·¡¹Ì¾È1Â÷ | 3 | 84.959 | 62,000 | 0 | 2004 | | 2025.04.05 | Àü¼¼ | ½Ö¿ë½ºÀ´åȨ | 6 | 112.756 | 65,000 | 0 | 2003 | | 2025.04.05 | ¿ù¼¼ | ·¡¹Ì¾È»óµµ3Â÷ | 8 | 84.96 | 10,000 | 250 | 2004 | | 2025.04.05 | ¸Å¸Å | »óµµ¼¼ÀÎÆ®ºôA(214-336¿Ü) | 4 | 32.09 | 37,000 | | 2014 | | 2025.04.05 | Àü¼¼ | eÆíÇѼ¼»ó»óµµ³ëºô¸®Æ¼ | 13 | 84.9704 | 73,500 | 0 | 2018 | | 2025.04.05 | Àü¼¼ | À̼öºê¶ó¿î½ºÅæ»óµµ(527-0) | 14 | 84.84 | 71,000 | 0 | 2007 | | 2025.04.05 | Àü¼¼ | »óµµÈ¿¼ºÇظµÅÏÇ÷¹À̽º | 12 | 84.9116 | 69,000 | 0 | 2016 | | 2025.04.05 | Àü¼¼ | Èú½ºÅ×ÀÌÆ® »óµµ ÇÁ·¹½ºÆ¼Áö | 17 | 84.884 | 82,000 | 0 | 2013 | | 2025.04.05 | ¿ù¼¼ | Èú½ºÅ×ÀÌÆ® »óµµ ¼¾Æ®·²ÆÄÅ© | 7 | 84.6099 | 60,000 | 12 | 2012 | | 2025.04.05 | ¿ù¼¼ | »óµµÇª¸£Áö¿ÀŬ¶óº£´º | 3 | 59.8166 | 5,000 | 180 | 2024 | | 2025.04.05 | ¸Å¸Å | ´º¿ùµåºô(214-226) | 4 | 83.11 | 49,000 | | 2003 | | 2025.04.05 | ¸Å¸Å | (279-80) | -1 | 31.47 | 29,900 | | 1986 | | 2025.04.04 | ¸Å¸Å | ´õÇϿ콺ºô | 4 | 29.21 | 25,000 | | 2011 | | 2025.04.04 | ¸Å¸Å | ¹Ì¼Ò°¡Bµ¿(244-168) | 2 | 45.96 | 52,000 | | 2017 | | 2025.04.04 | Àü¼¼ | Áß¾ÓÇÏÀÌÃ÷ºô | 9 | 84.9883 | 58,500 | 0 | 2003 | | 2025.04.04 | ¿ù¼¼ | »óµµ¿ª·Ôµ¥Ä³½½ÆÄÅ©¿¤ | 15 | 59.9818 | 40,000 | 110 | 2021 | | 2025.04.04 | Àü¼¼ | Çö´ë(°ü¾Ç) | 10 | 84.78 | 36,750 | 0 | 1992 | | 2025.04.04 | ¿ù¼¼ | »ï¼º·¡¹Ì¾È2 | 11 | 84.796 | 40,000 | 60 | 2003 | | 2025.04.04 | Àü¼¼ | ·¡¹Ì¾È»óµµ3Â÷ | 11 | 114.97 | 78,000 | 0 | 2004 | | 2025.04.04 | ¿ù¼¼ | ·¡¹Ì¾È»óµµ3Â÷ | 14 | 84.96 | 49,350 | 65 | 2004 | | 2025.04.03 | Àü¼¼ | »ï¼º·¡¹Ì¾È2 | 7 | 84.796 | 50,400 | 0 | 2003 | | 2025.04.03 | ¸Å¸Å | ´õÇϿ콺ºô | 4 | 29.21 | 25,000 | | 2011 | | 2025.04.03 | ¸Å¸Å | ´õÆ÷·¹½ºÆ®3Â÷ | 3 | 29.85 | 32,000 | | 2017 | | 2025.04.03 | Àü¼¼ | Èú½ºÅ×ÀÌÆ® »óµµ ÇÁ·¹½ºÆ¼Áö | 7 | 84.884 | 57,750 | 0 | 2013 | | 2025.04.03 | ¿ù¼¼ | »óµµ¿ª·Ôµ¥Ä³½½ÆÄÅ©¿¤ | 9 | 84.9833 | 10,000 | 290 | 2021 | | 2025.04.03 | ¸Å¸Å | Çö´ëºô¸®Áö(2µ¿) | 3 | 37.56 | 24,000 | | 1992 | | 2025.04.03 | ¸Å¸Å | º£½ºÆ®ºô | 4 | 43.17 | 37,500 | | 2016 | | 2025.04.02 | ¿ù¼¼ | »óµµÈÞ¿£ÇÏÀÓ | 6 | 14.7 | 1,000 | 60 | 2016 | | 2025.04.02 | Àü¼¼ | °Ç¿µ | 12 | 32.8 | 25,000 | 0 | 1997 | | 2025.04.02 | ¸Å¸Å | ·Î¾âij½½(210-153) | 3 | 49.47 | 21,700 | | 2014 | | 2025.04.02 | Àü¼¼ | ·¡¹Ì¾È»óµµ3Â÷ | 7 | 84.96 | 70,000 | 0 | 2004 | | 2025.04.02 | ¿ù¼¼ | ·¡¹Ì¾È»óµµ3Â÷ | 10 | 84.96 | 25,000 | 200 | 2004 | | 2025.04.02 | ¿ù¼¼ | ·¡¹Ì¾È»óµµ3Â÷ | 7 | 84.96 | 55,650 | 10 | 2004 | | 2025.04.02 | ¿ù¼¼ | ¾¾Æ¼¾Æ¸ð¸®¿ò | 2 | 14.1881 | 1,000 | 65 | 2012 | | 2025.04.02 | Àü¼¼ | »óµµ¿ª·Ôµ¥Ä³½½ÆÄÅ©¿¤ | 9 | 59.9818 | 70,000 | 0 | 2021 | | 2025.04.02 | Àü¼¼ | »ïȯ³ª¿ìºô(520-0) | 2 | 84.87 | 57,000 | 0 | 2007 | | 2025.04.02 | Àü¼¼ | Çö´ë(°ü¾Ç) | 14 | 84.78 | 40,400 | 0 | 1992 | | 2025.04.01 | Àü¼¼ | »óµµÈ¿¼ºÇظµÅÏÇ÷¹À̽º | 28 | 59.9769 | 52,500 | 0 | 2016 | | 2025.04.01 | ¸Å¸Å | ¿ì¸®ÁÖÅà | 1 | 76.79 | 46,500 | | 2003 | | 2025.04.01 | Àü¼¼ | »óµµÆÄÅ©ÀÚÀÌ | 9 | 84.947 | 73,500 | 0 | 2016 | | 2025.04.01 | Àü¼¼ | eÆíÇѼ¼»ó»óµµ³ëºô¸®Æ¼ | 9 | 84.9704 | 88,000 | 0 | 2018 | | 2025.04.01 | Àü¼¼ | Èú½ºÅ×ÀÌÆ® »óµµ ¼¾Æ®·²ÆÄÅ© | 4 | 118.2086 | 88,200 | 0 | 2012 | | 2025.04.01 | ¿ù¼¼ | Çö´ë(°ü¾Ç) | 11 | 84.78 | 38,000 | 35 | 1992 | | 2025.02.28 | ¿ù¼¼ | ¸¶¸£¸¶ | 3 | 18.11 | 13,400 | 7 | 2012 | | 2025.02.28 | Àü¼¼ | ÈÞ¸ÕŸ¿î | 2 | 58.68 | 7,600 | 0 | 2003 | | 2025.02.28 | ¿ù¼¼ | ´ëÈïºôµù | 5 | 19.98 | 3,000 | 60 | 2012 | | 2025.02.28 | ¿ù¼¼ | ¿ë¼±¾ÆÆ®ºô | 2 | 17.1 | 1,000 | 60 | 2013 | | 2025.02.28 | ¿ù¼¼ | ¿ë¼±¾ÆÆ®ºô | 2 | 17.1 | 1,000 | 60 | 2013 | | 2025.02.28 | ¿ù¼¼ | (495-2) | 3 | 14.99 | 1,000 | 50 | 1995 | | 2025.02.28 | ¿ù¼¼ | ¿ìÇöÆÄÅ©ºô | 2 | 43 | 19,900 | 25 | 2014 | | 2025.02.28 | ¸Å¸Å | ´ë¿Õºô(198-31) | -1 | 52.73 | 45,000 | | 2011 | | 2025.02.28 | ¸Å¸Å | Ç÷Îäºô2Â÷(335-4) | 1 | 44.19 | 43,500 | | 2015 | | 2025.02.28 | ¸Å¸Å | ½Â¿øÁÖÅà | 3 | 29.31 | 29,800 | | 2020 | | 2025.02.27 | Àü¼¼ | ½¦¾îÇϿ콺 | 2 | 25.25 | 11,000 | 0 | 2012 | | 2025.02.27 | Àü¼¼ | ½¦¾îÇϿ콺 | 2 | 25.25 | 11,000 | 0 | 2012 | | 2025.02.27 | Àü¼¼ | ½ºÅ¸Æç¸®½º | 5 | 29.24 | 25,000 | 0 | 2024 | | 2025.02.27 | ¿ù¼¼ | (244-349) | 1 | 41.1 | 18,000 | 10 | 1986 | | 2025.02.27 | ¸Å¸Å | ÇÁ¸®¸ðŸ¿î | 2 | 53.52 | 40,000 | | 2002 | | 2025.02.27 | ¸Å¸Å | ´ÙÀÎij½½2Â÷ | 5 | 40.4 | 44,250 | | 2019 | | 2025.02.26 | ¿ù¼¼ | ÀÌÆíÇѺô | 4 | 18.73 | 1,000 | 53 | 2013 | | 2025.02.26 | ¿ù¼¼ | ÀÌÆíÇѺô | 4 | 18.73 | 1,000 | 53 | 2013 | | 2025.02.26 | ¿ù¼¼ | ¿¤·»ÇϿ콺 | 5 | 15.71 | 5,000 | 40 | 2015 | | 2025.02.26 | ¿ù¼¼ | (469-4) | 3 | 20.61 | 1,000 | 44 | 2003 | | 2025.02.26 | ¿ù¼¼ | ¶ó¿Âºô | 2 | 29.08 | 21,900 | 10 | 2016 | | 2025.02.26 | ¿ù¼¼ | ¼ö¾Öºô(363-88) | 3 | 19.51 | 1,000 | 57 | 2018 | | 2025.02.26 | ¸Å¸Å | ¼¼ÀÌÇÁºô | 4 | 39.12 | 25,000 | | 2019 | | 2025.02.25 | ¿ù¼¼ | µ¿¾ç½º¸¶Æ®ºô | 5 | 14.203 | 1,000 | 55 | 2012 | | 2025.02.25 | ¿ù¼¼ | ·º½ººô2Â÷ | 5 | 38.84 | 3,000 | 85 | 2015 | | 2025.02.25 | ¿ù¼¼ | Ǫ¿ò | 3 | 23.93 | 10,000 | 15 | 2014 | | 2025.02.25 | Àü¼¼ | ÇѰ´º½ºÅ¸1µ¿ | 2 | 44.33 | 29,350 | 0 | 2016 | | 2025.02.25 | Àü¼¼ | ¸¶¸£¸¶ | 2 | 18.11 | 13,400 | 0 | 2012 | | 2025.02.25 | ¿ù¼¼ | Çö´ëÇÏÀÌÃ÷ºô¶ó(101µ¿) | 1 | 58.83 | 5,000 | 65 | 1990 | | 2025.02.25 | ¸Å¸Å | ¾Æ³Ê½ººô | 2 | 59.12 | 27,800 | | 2014 | | 2025.02.25 | Àü¼¼ | ³×ÀÌóVill | 2 | 29.79 | 18,000 | 0 | 2016 | | 2025.02.24 | Àü¼¼ | ¸¶¸£¸¶ | 5 | 38.92 | 26,000 | 0 | 2012 | | 2025.02.24 | Àü¼¼ | ¸¶¸£¸¶ | 5 | 38.92 | 36,000 | 0 | 2012 | | 2025.02.24 | ¿ù¼¼ | ÀÌÆíÇѺô | 2 | 13.23 | 1,000 | 42 | 2013 | | 2025.02.24 | ¿ù¼¼ | ´õÆ÷·¹½ºÆ®4Â÷ | 5 | 42.05 | 5,000 | 100 | 2018 | | 2025.02.24 | ¿ù¼¼ | Ǫ¸¥½£ÇϿ콺(301-206) | 4 | 38.29 | 17,500 | 33 | 2016 | | 2025.02.24 | Àü¼¼ | ¼ºÈ£¸Ç¼Ç1Â÷ | 4 | 46.44 | 15,000 | 0 | 1994 | | 2025.02.24 | ¿ù¼¼ | ¹«Áö°³ºô¶ó(214-312) | 1 | 47.7 | 15,700 | 25 | 1992 | | 2025.02.24 | ¿ù¼¼ | ¹«Áö°³ºô¶ó(214-312) | 1 | 47.7 | 17,000 | 10 | 1992 | | 2025.02.24 | Àü¼¼ | ¼ºÁÖÆÄÅ©ºô¶ó | 3 | 64.76 | 21,000 | 0 | 2001 | | 2025.02.24 | ¿ù¼¼ | ÀÌÁÖ¾ÆÆ®ºô¶ó(°¡µ¿) | 2 | 54.6 | 19,000 | 35 | 1991 | | 2025.02.24 | ¸Å¸Å | ½ÅÇѽ¦¸£ºô | 1 | 42.26 | 46,500 | | 2016 | | 2025.02.23 | ¿ù¼¼ | µÎ¼º½¦¸£ºô(256-207) | 4 | 72.18 | 5,000 | 100 | 2002 | | 2025.02.22 | ¿ù¼¼ | ȨÀη¹Áö´ø½º | 3 | 13.1 | 1,000 | 52 | 2013 | | 2025.02.22 | ¿ù¼¼ | ¿ë¼±¾ÆÆ®ºô | 5 | 17.1 | 1,000 | 60 | 2013 | | 2025.02.22 | ¿ù¼¼ | ¿ÀÅ©ºô | 3 | 13.56 | 1,000 | 47 | 2013 | | 2025.02.22 | ¿ù¼¼ | ÇØ¶ß´ÂÁý(7-7) | 4 | 108.71 | 500 | 40 | 2017 | | 2025.02.22 | ¿ù¼¼ | ¸íâºôµù | 5 | 16.14 | 12,000 | 5 | 2012 | | 2025.02.22 | Àü¼¼ | µå¸²Æç¸®½º | 3 | 19.41 | 14,330 | 0 | 2012 | | 2025.02.22 | ¿ù¼¼ | °³²ºô(214-70) | 3 | 46.8 | 21,000 | 40 | 2011 | | 2025.02.22 | ¿ù¼¼ | µ¿³èºô¶ó | 1 | 69.45 | 20,000 | 50 | 1997 | | 2025.02.22 | ¸Å¸Å | ÈÞ¸í°¡ | 5 | 29.59 | 50,000 | | 2019 | | 2025.02.21 | ¸Å¸Å | (202-150) | -1 | 26.4 | 20,000 | | 1986 | | 2025.02.21 | ¸Å¸Å | ¹Ì¼Ò°¡(279-217) | 2 | 37.63 | 30,700 | | 2011 | | 2025.02.21 | ¸Å¸Å | »Ñ¸®ºô¶ó | 1 | 53.31 | 26,000 | | 1991 | | 2025.02.21 | ¿ù¼¼ | ¿ìÁÖ | 4 | 13.54 | 1,000 | 30 | 2012 | | 2025.02.21 | ¸Å¸Å | Çý¼º¸Ç¼Ç | 2 | 56.88 | 51,500 | | 1996 | | 2025.02.21 | ¿ù¼¼ | µ¿»êGreenTown | 3 | 29.95 | 25,000 | 20 | 2020 | | 2025.02.21 | Àü¼¼ | Å·½ºÅ¸¿îBµ¿ | 4 | 45.56 | 18,000 | 0 | 2014 | | 2025.02.21 | ¸Å¸Å | ÇѰ´º½ºÅ¸1µ¿ | 2 | 44.33 | 45,000 | | 2016 | | 2025.02.20 | ¸Å¸Å | ´ÙÀÎij½½2Â÷ | 5 | 33.55 | 36,000 | | 2019 | | 2025.02.20 | ¸Å¸Å | ´ÙÀÎij½½2Â÷ | 4 | 46.92 | 47,200 | | 2019 | | 2025.02.20 | ¸Å¸Å | ¿ìÀÏÁÖÅà | 2 | 40.32 | 29,200 | | 1989 | | 2025.02.20 | ¿ù¼¼ | ´Ù¿òºô | 4 | 17.46 | 12,900 | 3 | 2019 | | 2025.02.20 | ¿ù¼¼ | ±ÝȺô | 2 | 19.49 | 500 | 57 | 2012 | | 2025.02.20 | ¿ù¼¼ | (242-77) | 3 | 17.2 | 1,000 | 42 | 2014 | | 2025.02.20 | Àü¼¼ | µå¸²Ä³½½ | 3 | 48.57 | 32,000 | 0 | 2015 | | 2025.02.19 | Àü¼¼ | ·ç³ªÆ÷·¹30 | 2 | 49.88 | 37,900 | 0 | 2022 | | 2025.02.19 | ¿ù¼¼ | Çö´ëºô¸®Áö(2µ¿) | 3 | 37.56 | 12,400 | 40 | 1992 | | 2025.02.19 | ¿ù¼¼ | ½Â¿øÁÖÅà | 3 | 26.7 | 16,000 | 35 | 2018 | | 2025.02.19 | Àü¼¼ | KSKºô5Â÷ | 2 | 29.83 | 13,000 | 0 | 2013 | | 2025.02.19 | ¿ù¼¼ | ¿ÀÆä¶óºô | 3 | 60.56 | 3,000 | 139 | 2009 | | 2025.02.19 | ¿ù¼¼ | ¸®Æ²Æ÷·¹½ºÆ® | 2 | 15.84 | 5,000 | 85 | 2023 | | 2025.02.19 | ¿ù¼¼ | »ï¼ºÈ¨Å¸¿îAµ¿ | 1 | 52.29 | 17,600 | 15 | 2002 | | 2025.02.19 | ¸Å¸Å | ¹Ì¼ºÇص帲(214-411) | 3 | 43.37 | 38,000 | | 2014 | | 2025.02.19 | ¸Å¸Å | ÇѼֺô¶ó(279-232) | 4 | 71.9 | 40,000 | | 1998 | | 2025.02.19 | ¿ù¼¼ | Àü¿øÇÏÀÌÃ÷(159-268) | 3 | 101.92 | 20,000 | 100 | 1999 | | 2025.02.19 | ¿ù¼¼ | ÇÊÇϿ콺 | 5 | 27.72 | 100 | 150 | 2018 | | 2025.02.18 | ¸Å¸Å | Çö´ëÆÄÅ©ºô | 4 | 60.29 | 47,900 | | 2000 | | 2025.02.18 | ¸Å¸Å | ÆÄÅ©ÆÓ¸®½º | 6 | 52.08 | 37,000 | | 2017 | | 2025.02.18 | ¸Å¸Å | µå¸²Ä³½½ | 3 | 48.57 | 59,500 | | 2015 | | 2025.02.18 | Àü¼¼ | ÈÞ¸Õºô | 2 | 49.7 | 30,500 | 0 | 2018 | | 2025.02.18 | Àü¼¼ | Çö´ë¸Ç¼Ç | -1 | 65.12 | 15,000 | 0 | 2002 | | 2025.02.18 | Àü¼¼ | »óµµÈú | 3 | 18.36 | 15,750 | 0 | 2017 | | 2025.02.18 | Àü¼¼ | µå¸²Ä³½½(33-6) | 4 | 29.79 | 29,000 | 0 | 2016 | | 2025.02.18 | Àü¼¼ | ½£¼ÓÇϿ콺 | 2 | 29.9 | 17,000 | 0 | 2013 | | 2025.02.18 | Àü¼¼ | SUNHOUSE(303-0) | 3 | 17.22 | 13,000 | 0 | 2013 | | 2025.02.18 | ¿ù¼¼ | ¸íâºôµù | 5 | 16.14 | 10,000 | 15 | 2012 | | 2025.02.17 | ¿ù¼¼ | û°èºô¶ó(211-168) | 4 | 56.82 | 16,700 | 30 | 1993 | | 2025.02.17 | ¿ù¼¼ | ÀÌ¿¡½ºÇÏÀÓ12Â÷ | 4 | 40.05 | 3,000 | 150 | 2023 | | 2025.02.17 | ¿ù¼¼ | ¿ìÇöij½½ | 4 | 33.48 | 20,000 | 20 | 2013 | | 2025.02.17 | ¸Å¸Å | µÎ¼Õº£½ºÆ¼¿ò(210-55) | 3 | 28.015 | 25,900 | | 2014 | | 2025.02.17 | Àü¼¼ | Ä¥¼ºÇÏÀÌÃ÷ºô¶ó2Â÷°¡µ¿ | 3 | 79.92 | 26,000 | 0 | 1991 | | 2025.02.17 | ¿ù¼¼ | û°èºô¶ó(211-168) | 4 | 56.82 | 16,700 | 30 | 1993 | | 2025.02.17 | ¸Å¸Å | ¸íÁøÁÖÅà | 3 | 49.35 | 39,800 | | 1996 | | 2025.02.16 | ¿ù¼¼ | Á¦ÀÌÇ÷¯½º | 2 | 12.395 | 5,000 | 40 | 2013 | | 2025.02.16 | Àü¼¼ | À§³Ê½ººô¸®Áö | 3 | 94.11 | 37,500 | 0 | 1997 | | 2025.02.16 | ¿ù¼¼ | ¸ð¾Æºô | 5 | 20.75 | 5,000 | 43 | 2003 | | 2025.02.16 | Àü¼¼ | ¼Á¤Ä³½½ | 7 | 22.27 | 14,000 | 0 | 2016 | | 2025.02.15 | Àü¼¼ | ÀÌȺô¸®Áî | 2 | 78.96 | 27,400 | 0 | 2001 | | 2025.02.15 | ¿ù¼¼ | ¾çÁöºô¶ó(³ªµ¿) | 2 | 35.42 | 300 | 65 | 1986 | | 2025.02.15 | ¿ù¼¼ | (485-11) | 2 | 52.89 | 10,000 | 54 | 2011 | | 2025.02.15 | ¿ù¼¼ | ¼º¾Èºô¶ó³ªµ¿ | 1 | 36.9 | 2,000 | 55 | 1990 | | 2025.02.15 | ¸Å¸Å | µ¿¿øº£½ºÆ®Å¸¿î | 3 | 32.91 | 26,500 | | 2015 | | 2025.02.15 | Àü¼¼ | ÀÌȺô¸®Áî | 2 | 78.96 | 27,400 | 0 | 2001 | | 2025.02.15 | ¿ù¼¼ | ÈÞ¸ÕŸ¿î | 2 | 58.68 | 3,000 | 45 | 2003 | | 2025.02.15 | ¿ù¼¼ | ¿¬¼ººô¶ó(159-340) | 3 | 57.34 | 8,800 | 35 | 1993 | | 2025.02.15 | ¿ù¼¼ | ¿¬¼ººô¶ó(159-340) | 3 | 57.34 | 8,800 | 35 | 1993 | | 2025.02.15 | ¿ù¼¼ | ¿ì¼ººô¶óÆ®(212-105) | 1 | 56.7 | 18,000 | 40 | 1993 | | 2025.02.15 | ¿ù¼¼ | ¿ì¼ººô¶óÆ®(212-105) | 1 | 56.7 | 18,000 | 40 | 1993 | | 2025.02.15 | Àü¼¼ | ÈÞ¸ÕŸ¿î | 3 | 43.39 | 24,600 | 0 | 2003 | | 2025.02.15 | ¿ù¼¼ | ÀÌÆíÇѺô | 3 | 13.23 | 3,000 | 33 | 2013 | | 2025.02.15 | Àü¼¼ | û¸í¿¡¹öºôºñµ¿ | 2 | 29.92 | 18,000 | 0 | 2013 | | 2025.02.15 | Àü¼¼ | ¼®°æÆ®¶ó¿ò | 5 | 31.78 | 18,000 | 0 | 2013 | | 2025.02.15 | Àü¼¼ | žÇϿ콺ºô | 1 | 51.6 | 19,500 | 0 | 2001 | | 2025.02.15 | Àü¼¼ | ½ÅÇѽ¦¸£ºô | 4 | 35.57 | 27,000 | 0 | 2016 | | 2025.02.15 | Àü¼¼ | ´Ù¼Ø±×¶ûºô | 1 | 29.86 | 23,000 | 0 | 2020 | | 2025.02.14 | ¸Å¸Å | È¿¿ø±×¸°ºô | 5 | 55.77 | 48,700 | | 2013 | | 2025.02.14 | ¿ù¼¼ | »óµµÃ¿½Ã2 | 3 | 51.6 | 20,000 | 50 | 2018 | | 2025.02.14 | Àü¼¼ | ¾È´ÙÇϿ콺 | 2 | 44.16 | 19,000 | 0 | 2015 | | 2025.02.14 | ¸Å¸Å | ¶ó¼ºÇÏÀÌÃ÷ºô¶ó | 4 | 52.53 | 28,000 | | 2002 | | 2025.02.14 | ¿ù¼¼ | ¸®Ä¡ºô(299-168) | 3 | 20.32 | 8,000 | 35 | 2012 | | 2025.02.14 | ¿ù¼¼ | ¼ºÁöºô¶ó(212-48) | 4 | 54.13 | 20,500 | 15 | 1996 | | 2025.02.14 | ¿ù¼¼ | 474-14 | 2 | 28.2 | 3,000 | 66 | 2015 | | 2025.02.13 | ¿ù¼¼ | ¼Á¤Ä³½½ | 6 | 22.27 | 14,000 | 5 | 2016 | | 2025.02.13 | ¸Å¸Å | Çö´ëµå¸²¸Ç¼Ç | 2 | 54.469 | 47,500 | | 2016 | | 2025.02.13 | ¿ù¼¼ | (361-139) | 1 | 26.7 | 2,000 | 50 | 2003 | | 2025.02.13 | ¿ù¼¼ | Á¤ÀÎ¾ÆÆ®ºô | 4 | 40.55 | 2,000 | 100 | 2001 | | 2025.02.13 | ¿ù¼¼ | ¿ë¼±¾ÆÆ®ºô | 3 | 18.36 | 2,000 | 55 | 2013 | | 2025.02.13 | ¿ù¼¼ | ¼Á¤Ä³½½ | 7 | 22.27 | 3,000 | 55 | 2016 | | 2025.02.13 | ¿ù¼¼ | ¸®Ä¡ºô(299-168) | 2 | 24.3 | 13,000 | 10 | 2012 | | 2025.02.13 | Àü¼¼ | ½£¼ÓÇϿ콺 | 3 | 29.88 | 17,000 | 0 | 2013 | | 2025.02.12 | Àü¼¼ | µÎ¼ººô¶óÆ®(279-82) | 1 | 64.75 | 24,000 | 0 | 2000 | | 2025.02.12 | ¿ù¼¼ | (279-433) | 4 | 41.15 | 13,000 | 10 | 1994 | | 2025.02.12 | Àü¼¼ | ½£¼ÓÇϿ콺 | 2 | 29.82 | 15,700 | 0 | 2013 | | 2025.02.12 | ¿ù¼¼ | ¹Ì¼ÒÁÖÅÃ(279-406) | 3 | 29.7 | 1,208 | 16 | 2017 | | 2025.02.12 | ¿ù¼¼ | ÀÌ¿¡½ºÇÏÀÓ12Â÷ | 2 | 29.96 | 3,000 | 120 | 2023 | | 2025.02.12 | ¿ù¼¼ | ¹Ì¼ÒÁÖÅÃ(279-406) | 5 | 25.99 | 431 | 15 | 2017 | | 2025.02.12 | ¸Å¸Å | °³²ºô(210-313) | -1 | 66.63 | 36,200 | | 2012 | | 2025.02.11 | ¿ù¼¼ | ¶óÀ̿°ñµåºô3Â÷ | 3 | 39.06 | 18,000 | 20 | 2014 | | 2025.02.11 | Àü¼¼ | ±×¸°Èú | 4 | 38.64 | 22,680 | 0 | 2014 | | 2025.02.11 | ¿ù¼¼ | È¿¼ºÁÖÅÃ(201) | 3 | 43.1 | 26,800 | 5 | 2018 | | 2025.02.11 | Àü¼¼ | »óµµ½Ã±×´Ïó | 1 | 41.84 | 27,000 | 0 | 2022 | | 2025.02.11 | ¿ù¼¼ | ¹«°æÇϿ콺 | 5 | 50.25 | 20,000 | 40 | 2016 | | 2025.02.11 | ¿ù¼¼ | ´õ±×¸°3Â÷ | 5 | 56.72 | 3,000 | 105 | 2013 | | 2025.02.11 | ¿ù¼¼ | Çϳªºô | 3 | 54.52 | 5,000 | 100 | 2012 | | 2025.02.11 | ¿ù¼¼ | ´ëÈïºôµù | 5 | 35.5 | 5,000 | 60 | 2012 | | 2025.02.11 | ¿ù¼¼ | ±Ý±¤ÈÞ¸Õ¾¾Æ¼ | 2 | 19.31 | 9,000 | 26 | 2011 | | 2025.02.11 | ¿ù¼¼ | ±Ý±¤ÈÞ¸Õ¾¾Æ¼ | 2 | 19.31 | 9,000 | 26 | 2011 | | 2025.02.10 | Àü¼¼ | ´ë¼ºÇÏÀÌÃ÷(301-159) | 2 | 66.45 | 26,000 | 0 | 2000 | | 2025.02.10 | Àü¼¼ | °æ¹æ¸Ç¼Ç | 1 | 71.06 | 35,000 | 0 | 1998 | | 2025.02.10 | ¿ù¼¼ | ÄÉÀ̵ð¾ÆÀ̺ôDµ¿ | 1 | 24.45 | 2,000 | 75 | 2007 | | 2025.02.10 | Àü¼¼ | ÀÌ·¹¾ÆÆ®ºô | 3 | 41.38 | 21,000 | 0 | 2013 | | 2025.02.10 | Àü¼¼ | ÀÌ·¹¾ÆÆ®ºô | 3 | 41.38 | 21,000 | 0 | 2013 | | 2025.02.10 | ¿ù¼¼ | ¹éÃÌŸ¿î | 2 | 68.15 | 18,990 | 29 | 1983 | | 2025.02.10 | ¸Å¸Å | µ¿»êÈޱ׸°Å¸¿î | 4 | 23.84 | 18,200 | | 2018 | | 2025.02.10 | ¿ù¼¼ | ÇÑ¹é¾ÆÆ®ºô(279-116) | 1 | 66.66 | 500 | 20 | 2003 | | 2025.02.09 | ¿ù¼¼ | ÇØ¶ß´ÂÁý(7-7) | 4 | 108.71 | 500 | 50 | 2017 | | 2025.02.09 | Àü¼¼ | ¿¹¸²¹Ì¼Ò°¡3Â÷ | 2 | 32.53 | 19,900 | 0 | 2015 | | 2025.02.08 | ¸Å¸Å | ¹Ì¼Ò°¡(279-217) | 5 | 37.13 | 30,500 | | 2011 | | 2025.02.08 | ¿ù¼¼ | ¹Ì¼Ò°¡(282-7) | 3 | 28.75 | 2,000 | 95 | 2022 | | 2025.02.08 | Àü¼¼ | Á¦½Â´õÇÏÀÓ | 3 | 40.27 | 23,900 | 0 | 2011 | | 2025.02.08 | Àü¼¼ | Âü¼Ö¾ÆÆ®ºôBµ¿ | 3 | 84.04 | 29,000 | 0 | 2009 | | 2025.02.08 | Àü¼¼ | Á¦½Â´õÇÏÀÓ | 3 | 40.27 | 23,900 | 0 | 2011 | | 2025.02.08 | ¿ù¼¼ | ¿ë¼±¾ÆÆ®ºô | 3 | 13.95 | 1,000 | 65 | 2013 | | 2025.02.08 | ¿ù¼¼ | ¾ÆÄ§ÇÞ»ì | 4 | 12.14 | 3,000 | 42 | 2014 | | 2025.02.08 | ¿ù¼¼ | »óµµÃ¿½Ã2 | 4 | 29.99 | 21,650 | 10 | 2018 | | 2025.02.08 | ¿ù¼¼ | ÀÌ¿¡½ºÇÏÀÓ12Â÷ | 4 | 29.96 | 3,000 | 120 | 2023 | | 2025.02.07 | ¸Å¸Å | ´õžçºô | 2 | 28.44 | 30,500 | | 2024 | | 2025.02.07 | ¸Å¸Å | ´õžçºô | 1 | 29.96 | 29,950 | | 2024 | | 2025.02.07 | ¸Å¸Å | ´õžçºô | 1 | 29.43 | 30,850 | | 2024 | | 2025.02.07 | ¸Å¸Å | ´õžçºô | 1 | 28.44 | 28,250 | | 2024 | | 2025.02.07 | ¸Å¸Å | ´õžçºô | 2 | 28.54 | 31,650 | | 2024 | | 2025.02.07 | ¸Å¸Å | ´õžçºô | 2 | 29.43 | 33,650 | | 2024 | | 2025.02.07 | ¿ù¼¼ | (7-60) | 3 | 10.26 | 3,700 | 44 | 2020 | | 2025.02.07 | ¸Å¸Å | ´õžçºô | 5 | 51.09 | 41,800 | | 2024 | | 2025.02.07 | ¸Å¸Å | ´õžçºô | 4 | 56.12 | 58,800 | | 2024 | | 2025.02.07 | ¸Å¸Å | ´õžçºô | 4 | 55.73 | 56,400 | | 2024 | | 2025.02.07 | ¸Å¸Å | ´õžçºô | 3 | 29.96 | 32,700 | | 2024 | | 2025.02.07 | ¸Å¸Å | ´õžçºô | 3 | 28.54 | 32,150 | | 2024 | | 2025.02.07 | ¸Å¸Å | ´õžçºô | 3 | 28.44 | 31,200 | | 2024 | | 2025.02.07 | ¸Å¸Å | ´õžçºô | 2 | 29.96 | 32,150 | | 2024 | | 2025.02.07 | ¸Å¸Å | ´õžçºô | 3 | 29.43 | 34,200 | | 2024 | | 2025.02.07 | ¸Å¸Å | ¿ìÇöij½½ | 5 | 29.12 | 33,500 | | 2013 | | 2025.02.07 | Àü¼¼ | (134-262) | 3 | 39.75 | 15,356 | 0 | 2003 | | 2025.02.07 | ¿ù¼¼ | ¸ÇÇÏźÇÏ¿ì¡(256-180) | 2 | 29.6 | 18,000 | 35 | 2019 | | 2025.02.07 | ¿ù¼¼ | ¿¤·»ÇϿ콺 | 2 | 19.99 | 1,000 | 55 | 2015 | | 2025.02.07 | ¿ù¼¼ | 56-60 | 1 | 24.75 | 2,000 | 65 | 2015 | | 2025.02.07 | Àü¼¼ | ÈÞ¸ÕŸ¿î | 4 | 31.72 | 13,380 | 0 | 2003 | | 2025.02.06 | Àü¼¼ | ¼Á¤Ä³½½ | 7 | 41.4 | 18,000 | 0 | 2016 | | 2025.02.06 | Àü¼¼ | ¿¡±×¸®³ª(256-31) | 3 | 57.12 | 32,000 | 0 | 2015 | | 2025.02.06 | ¿ù¼¼ | (236-4) | 2 | 26.08 | 1,000 | 49 | 2015 | | 2025.02.06 | ¿ù¼¼ | »ó·Ï¿ø·ë | 2 | 21.66 | 2,000 | 56 | 2001 | | 2025.02.06 | ¿ù¼¼ | ÇØ¶ß´ÂÁý(7-7) | 4 | 108.71 | 200 | 30 | 2017 | | 2025.02.06 | ¿ù¼¼ | ¹éÈ£ºô | 3 | 16.49 | 6,000 | 22 | 2012 | | 2025.02.06 | ¸Å¸Å | »óµµÃ¿½Ã2 | 3 | 29.96 | 30,000 | | 2018 | | 2025.02.06 | ¸Å¸Å | ¹Ì¼ºÇص帲(210-206) | 1 | 29.81 | 39,800 | | 2022 | | 2025.02.05 | Àü¼¼ | ¼Á¤Ä³½½ | 5 | 24 | 14,000 | 0 | 2016 | | 2025.02.05 | Àü¼¼ | ÁÖ¿øº£¸£ºô102 | 3 | 29.55 | 26,000 | 0 | 2018 | | 2025.02.05 | Àü¼¼ | ´ë¿ÕÁÖÅÃ11Â÷ | 3 | 41.29 | 23,000 | 0 | 2008 | | 2025.02.04 | ¿ù¼¼ | (361-139) | 3 | 26.7 | 1,000 | 52 | 2003 | | 2025.02.04 | ¿ù¼¼ | ´ë¼º¸Ç¼Ç | 2 | 72.95 | 28,000 | 6 | 2002 | | 2025.02.04 | ¿ù¼¼ | (22-108) | 6 | 36.03 | 1,000 | 63 | 2019 | | 2025.02.03 | ¸Å¸Å | ´ö¼ººô¶ó(279-108) | 2 | 51.53 | 39,000 | | 1992 | | 2025.02.03 | Àü¼¼ | (134-262) | 2 | 39.75 | 19,101 | 0 | 2003 | | 2025.02.03 | Àü¼¼ | ºñ·ÎÀÚ³ª¸Ç¼ð | 2 | 84.37 | 32,000 | 0 | 2002 | | 2025.02.03 | Àü¼¼ | ¹Ì¼Ò°¡Aµ¿(244-166) | 5 | 29.81 | 25,900 | 0 | 2017 | | 2025.02.03 | ¿ù¼¼ | ¶ó¿Âºô | 4 | 29.08 | 21,900 | 10 | 2016 | | 2025.02.03 | ¿ù¼¼ | ±×¸°Ä³½½(183-31) | 6 | 12.48 | 2,500 | 50 | 2012 | | 2025.02.03 | ¿ù¼¼ | µ¿¿øºô¶ó(210-315) | 2 | 43.57 | 7,000 | 80 | 2003 | | 2025.02.02 | ¿ù¼¼ | °¡¿¬ºô | 4 | 34.21 | 3,500 | 56 | 2015 | | 2025.02.01 | ¿ù¼¼ | ¸íâºôµù | 4 | 16.14 | 12,000 | 10 | 2012 | | 2025.02.01 | Àü¼¼ | ³»½¬ºô | 4 | 62.03 | 28,000 | 0 | 2003 | | 2025.02.01 | Àü¼¼ | ·ÎÁîÈú½º | 4 | 54.06 | 23,180 | 0 | 2008 | | 2025.02.01 | Àü¼¼ | ¸íâºôµù | 5 | 16.14 | 13,000 | 0 | 2012 | | 2025.02.01 | ¿ù¼¼ | ¸íâºôµù | 4 | 16.14 | 14,000 | 5 | 2012 | | 2025.02.01 | ¿ù¼¼ | ¸íâºôµù | 4 | 16.14 | 13,000 | 5 | 2012 | | 2025.01.31 | Àü¼¼ | µå¸²Ä³½½(33-6) | 4 | 38.61 | 31,000 | 0 | 2016 | | 2025.01.28 | Àü¼¼ | ÇÊÇϿ콺 | 4 | 26.81 | 23,800 | 0 | 2018 | | 2025.01.27 | ¿ù¼¼ | Á¦ÀÌÇ÷¯½º | 2 | 12.395 | 1,000 | 50 | 2013 | | 2025.01.27 | ¸Å¸Å | »óµµÃ¿½Ã2 | 3 | 51.6 | 36,000 | | 2018 | | 2025.01.27 | ¸Å¸Å | ÇýÀκô | 3 | 73.59 | 52,000 | | 2008 | | 2025.01.25 | Àü¼¼ | Çູºô | 3 | 54.63 | 25,000 | 0 | 2017 | | 2025.01.25 | ¿ù¼¼ | ¼Á¤Èúž | 3 | 29.64 | 7,000 | 30 | 2017 | | 2025.01.25 | ¸Å¸Å | ¼®°æÆ®¶ó¿ò | 4 | 55.47 | 38,500 | | 2013 | | 2025.01.25 | Àü¼¼ | °è¸²ÁÖÅÃB | 2 | 58.545 | 23,500 | 0 | 2003 | | 2025.01.25 | Àü¼¼ | Ä«·»½Ã¾ÆBµ¿ | 5 | 24.74 | 28,500 | 0 | 2022 | | 2025.01.25 | Àü¼¼ | ´ëÈï¹Ì¼Ò°¡24Â÷ | 4 | 29.98 | 22,100 | 0 | 2017 | | 2025.01.24 | ¿ù¼¼ | ¶ó¿ÂÈú½º | 3 | 53.11 | 5,000 | 130 | 2022 | | 2025.01.24 | Àü¼¼ | ½Å¿ìÇÏÀ̺ô | 3 | 40.08 | 18,770 | 0 | 2010 | | 2025.01.24 | ¿ù¼¼ | ¿¹¿øÅ¸¿î | -1 | 41.22 | 9,700 | 25 | 1993 | | 2025.01.24 | ¿ù¼¼ | 56-60 | 1 | 45.81 | 10,000 | 48 | 2015 | | 2025.01.24 | Àü¼¼ | ¼¿¬ºô | 3 | 29.75 | 25,000 | 0 | 2017 | | 2025.01.24 | ¿ù¼¼ | ÄÉÀ̵ð¾ÆÀ̺ôDµ¿ | 2 | 24.45 | 10,000 | 25 | 2007 | | 2025.01.24 | Àü¼¼ | ½ºÅ¸½ÃƼ | 2 | 51.53 | 20,700 | 0 | 2009 | | 2025.01.24 | ¿ù¼¼ | ¼Á¤Èúž | 6 | 29.64 | 5,000 | 60 | 2017 | | 2025.01.24 | ¿ù¼¼ | ÀÌ·¹¾ÆÆ®ºô(1-24) | 2 | 35.32 | 23,900 | 10 | 2017 | | 2025.01.24 | ¿ù¼¼ | µÎ¼º½¦¸£ºô(256-207) | 4 | 74.44 | 5,000 | 130 | 2002 | | 2025.01.24 | Àü¼¼ | µå¸²Ä³½½(33-6) | 6 | 53.15 | 33,000 | 0 | 2016 | | 2025.01.24 | ¸Å¸Å | Çö´ëÇÏÀÌÃ÷ºô¶ó(101µ¿) | -1 | 31.62 | 18,900 | | 1990 | | 2025.01.23 | ¿ù¼¼ | ¿¡µ§ºô¶ó | 1 | 61.14 | 15,000 | 25 | 1995 | | 2025.01.23 | ¿ù¼¼ | Çö»êǪ¸¥½£ºô¶ó(279-23) | 5 | 42.6 | 14,000 | 20 | 2007 | | 2025.01.23 | ¿ù¼¼ | ÇÑ¿ïºôµù | 6 | 15.15 | 1,000 | 65 | 2012 | | 2025.01.23 | ¿ù¼¼ | È޸ճؽººô | 1 | 47.39 | 3,000 | 100 | 2011 | | 2025.01.23 | ¿ù¼¼ | ÀÌ·¹¾ÆÆ®ºô | 2 | 19.82 | 12,000 | 15 | 2013 | | 2025.01.23 | ¿ù¼¼ | ÀÌ·¹¾ÆÆ®ºô | 2 | 19.82 | 12,000 | 15 | 2013 | | 2025.01.22 | ¿ù¼¼ | ¹Ì¼Ò°¡20Â÷ | 4 | 42.73 | 10,000 | 60 | 2016 | | 2025.01.22 | ¿ù¼¼ | ÀÌ·¹¾ÆÆ®ºô12Â÷ | 3 | 34.11 | 19,000 | 5 | 2016 | | 2025.01.22 | ¿ù¼¼ | TSÆÓ¸®½º(470-9) | 3 | 29.71 | 20,000 | 12 | 2013 | | 2025.01.22 | Àü¼¼ | ¿¤¸²ÆÄÅ©ºô | 4 | 15.52 | 16,000 | 0 | 2016 | | 2025.01.22 | Àü¼¼ | ÇѼֺô¶ó(279-232) | 2 | 50.07 | 17,000 | 0 | 1998 | | 2025.01.22 | Àü¼¼ | ¿¡ºê¶óÀÓVill | 3 | 49.41 | 27,000 | 0 | 2016 | | 2025.01.22 | Àü¼¼ | (469-4) | 4 | 82.3 | 28,300 | 0 | 2003 | | 2025.01.22 | Àü¼¼ | (469-4) | 4 | 82.3 | 28,300 | 0 | 2003 | | 2025.01.22 | Àü¼¼ | (469-4) | 4 | 82.3 | 28,300 | 0 | 2003 | | 2025.01.22 | ¿ù¼¼ | ´ëÈï¹Ì¼Ò°¡29Â÷(Bµ¿) | 2 | 29.94 | 19,000 | 10 | 2020 | | 2025.01.22 | ¿ù¼¼ | Á¦ÀϺô¶ó | 3 | 26.84 | 2,000 | 73 | 2002 | | 2025.01.22 | ¿ù¼¼ | È£¾Ö | 5 | 14 | 11,000 | 20 | 2019 | | 2025.01.21 | Àü¼¼ | ¼§±×¸±¶ó | 3 | 59.51 | 27,000 | 0 | 2016 | | 2025.01.21 | ¿ù¼¼ | ÄÉÀ̵ð¾ÆÀ̺ôDµ¿ | 4 | 37.39 | 5,000 | 85 | 2007 | | 2025.01.21 | Àü¼¼ | Æ®¶ó¿òÆÓ¸®½º | 2 | 75.81 | 33,300 | 0 | 2009 | | 2025.01.21 | Àü¼¼ | ÇູÆÄÅ©ºô¸®Áö | 5 | 42.28 | 23,800 | 0 | 2012 | | 2025.01.21 | ¿ù¼¼ | Çϳªºô(299-203) | 4 | 41.13 | 13,600 | 14 | 2002 | | 2025.01.21 | ¿ù¼¼ | ±×¸°½ÃƼ | 10 | 18 | 18,900 | 18 | 2018 | | 2025.01.21 | ¿ù¼¼ | ¿ë¼±¾ÆÆ®ºô | 4 | 14.19 | 1,000 | 65 | 2013 | | 2025.01.21 | ¸Å¸Å | µ¿¾ç½º¸¶Æ®ºô | 4 | 14.203 | 12,500 | | 2012 | | 2025.01.21 | ¸Å¸Å | ¹Ì¼Ò°¡(279-217) | 4 | 37.63 | 30,500 | | 2011 | | 2025.01.21 | ¿ù¼¼ | ÇູÇѵ¿Çà(214-146) | 5 | 29.78 | 3,000 | 80 | 2015 | | 2025.01.21 | ¿ù¼¼ | ÄÉÀ̵ð¾ÆÀ̺ôDµ¿ | 4 | 37.39 | 5,000 | 85 | 2007 | | 2025.01.21 | ¿ù¼¼ | ÇÑ¿ïºôµù | 5 | 12.01 | 1,000 | 50 | 2012 | | 2025.01.21 | ¿ù¼¼ | ÇÑ¿ïºôµù | 4 | 12.05 | 1,000 | 55 | 2012 | | 2025.01.20 | ¸Å¸Å | ÆÓ¸®½ºÅ¸¿î(335-139) | 3 | 50.76 | 41,000 | | 2014 | | 2025.01.20 | ¿ù¼¼ | ´ëÇöºô¶ó | 1 | 69.69 | 24,800 | 20 | 1993 | | 2025.01.20 | ¿ù¼¼ | ³×¿Àºô¸®Áö(299-57) | 5 | 29.94 | 12,500 | 30 | 2014 | | 2025.01.20 | Àü¼¼ | Ä«·»½Ã¾ÆBµ¿ | 5 | 29.85 | 27,000 | 0 | 2022 | | 2025.01.20 | ¿ù¼¼ | (22-108) | 4 | 16.43 | 1,000 | 63 | 2019 | | 2025.01.20 | Àü¼¼ | Á¾ÀξƳ׽ºÆ®(211-436) | 3 | 53.15 | 17,000 | 0 | 2012 | | 2025.01.20 | ¿ù¼¼ | °³²ºô(236-9) | 3 | 51.28 | 5,500 | 95 | 2014 | | 2025.01.20 | Àü¼¼ | Ä«·»½Ã¾ÆBµ¿ | 5 | 29.85 | 27,000 | 0 | 2022 | | 2025.01.20 | Àü¼¼ | ½Å¼ºÇÏÀÌÃ÷4Â÷ | 4 | 50.05 | 18,000 | 0 | 2002 | | 2025.01.19 | ¸Å¸Å | Å¿µÁÖÅà | 5 | 49.16 | 33,500 | | 2003 | | 2025.01.19 | ¸Å¸Å | ·ç³ªÆ÷·¹30 | 4 | 49.88 | 53,500 | | 2022 | | 2025.01.19 | ¿ù¼¼ | TSÆÓ¸®½º(470-9) | 3 | 29.71 | 20,000 | 12 | 2013 | | 2025.01.19 | Àü¼¼ | ³²¾çºô¶ó(301-209) | -1 | 58.18 | 11,000 | 0 | 1994 | | 2025.01.19 | ¿ù¼¼ | ½ºÄ«ÀÌŸ¿î | 4 | 21.53 | 16,500 | 20 | 2017 | | 2025.01.18 | Àü¼¼ | ´Ù¼Ø±×¶ûºô | 3 | 29.88 | 21,000 | 0 | 2019 | | 2025.01.18 | Àü¼¼ | â¼± | 4 | 29.5 | 16,800 | 0 | 2013 | | 2025.01.18 | ¸Å¸Å | ¼±°æ¾ÆÆ®ºô | -1 | 58 | 29,700 | | 2001 | | 2025.01.18 | ¸Å¸Å | °ñµçºô¶ó | -1 | 62.56 | 21,000 | | 1997 | | 2025.01.18 | Àü¼¼ | Çö´ë´º¸Ç¼Ç | 3 | 73.2 | 27,000 | 0 | 2002 | | 2025.01.18 | Àü¼¼ | ³ª¹«ÇϿ콺2 | 2 | 41.17 | 26,100 | 0 | 2015 | | 2025.01.18 | ¿ù¼¼ | ¼Ò´ãºô¸®Áö(279-396) | 2 | 29.76 | 16,000 | 10 | 2014 | | 2025.01.18 | ¿ù¼¼ | µ§µé¶óÀ̾ð | 3 | 25.23 | 1,000 | 55 | 2015 | | 2025.01.18 | Àü¼¼ | ½ºÄ«À̺ô | 3 | 48.27 | 26,000 | 0 | 2002 | | 2025.01.18 | ¿ù¼¼ | ¹«°æÇϿ콺 | 3 | 18.96 | 3,000 | 60 | 2016 | | 2025.01.17 | ¿ù¼¼ | ¿¡ÀÌ·¹³×(492-12) | 3 | 15.5 | 2,300 | 58 | 2017 | | 2025.01.17 | ¸Å¸Å | °è¸²ÁÖÅÃB | 2 | 58.545 | 35,800 | | 2003 | | 2025.01.17 | Àü¼¼ | û¿Í¸Ç¼Ç | 2 | 70.33 | 26,000 | 0 | 2002 | | 2025.01.17 | ¿ù¼¼ | ¿ë¼±¾ÆÆ®ºô | 3 | 17.1 | 1,000 | 65 | 2013 | | 2025.01.17 | ¿ù¼¼ | µ¿Èºô | 4 | 18.09 | 500 | 46 | 2016 | | 2025.01.17 | ¿ù¼¼ | õ¼öºô¶óCµ¿ | 3 | 24.36 | 7,970 | 23 | 1992 | | 2025.01.17 | ¸Å¸Å | ¼ºÈ£¸Ç¼Ç2Â÷ | -1 | 49.4 | 18,000 | | 1996 | | 2025.01.17 | Àü¼¼ | ÈÞ¸í°¡ | 3 | 27.431 | 24,600 | 0 | 2019 | | 2025.01.17 | Àü¼¼ | ÈÞ¸í°¡ | 3 | 27.431 | 24,600 | 0 | 2019 | | 2025.01.17 | Àü¼¼ | ÈÞ¸í°¡ | 3 | 27.431 | 24,600 | 0 | 2019 | | 2025.01.17 | ¿ù¼¼ | °íÀººô | 2 | 49.19 | 25,000 | 20 | 2020 | | 2025.01.17 | ¿ù¼¼ | Á¦ÀÌÇ÷¯½º | 3 | 12.395 | 3,500 | 50 | 2013 | | 2025.01.16 | ¿ù¼¼ | ¼º¿ì(474-13) | 2 | 20.48 | 1,000 | 64 | 2016 | | 2025.01.16 | ¿ù¼¼ | À§³Ê½ººô | 4 | 69.42 | 26,000 | 40 | 2009 | | 2025.01.16 | ¿ù¼¼ | ¾Æ¿øºô¸®Áö | 2 | 66.51 | 9,000 | 65 | 1991 | | 2025.01.15 | ¿ù¼¼ | ÁÖ¿øº£¸£ºô102 | 5 | 28.1 | 5,500 | 110 | 2018 | | 2025.01.15 | ¸Å¸Å | Àå¼öÁÖÅà | 3 | 61.7 | 36,200 | | 2000 | | 2025.01.15 | ¿ù¼¼ | ±×¸°Èú | 4 | 38.64 | 24,150 | 8 | 2014 | | 2025.01.15 | ¸Å¸Å | Àμº¼öÇÇ¾Æ | 2 | 38.08 | 46,800 | | 2022 | | 2025.01.15 | ¿ù¼¼ | »óµµµ¿ÇູÁÖÅà | 4 | 20.02 | 4,704 | 12 | 2020 | | 2025.01.15 | Àü¼¼ | Èúžºô | 3 | 67.01 | 31,000 | 0 | 2009 | | 2025.01.14 | ¿ù¼¼ | ±¤Áøºô¶óÆ® | 1 | 67.07 | 7,000 | 100 | 1993 | | 2025.01.14 | Àü¼¼ | °³²ºô(243-4) | 3 | 44.85 | 37,000 | 0 | 2022 | | 2025.01.14 | Àü¼¼ | »óµµ¼¼ÀÎÆ®ºôA(214-336¿Ü) | 3 | 36.12 | 25,000 | 0 | 2014 | | 2025.01.14 | ¿ù¼¼ | ¼Ò´ã1 | 2 | 17.49 | 3,000 | 70 | 2017 | | 2025.01.14 | ¿ù¼¼ | (366-9) | 3 | 29.39 | 3,000 | 80 | 2019 | | 2025.01.14 | ¸Å¸Å | û¿îÇϿ콺 | 3 | 45.89 | 31,000 | | 2016 | | 2025.01.13 | ¸Å¸Å | Á¤ÀÎ¾ÆÆ®ºô | 4 | 40.55 | 29,500 | | 2001 | | 2025.01.13 | ¸Å¸Å | Àμº¼öÇÇ¾Æ | 5 | 29.94 | 41,000 | | 2022 | | 2025.01.13 | ¸Å¸Å | Àμº¼öÇÇ¾Æ | 5 | 29.94 | 41,000 | | 2022 | | 2025.01.13 | ¿ù¼¼ | beginhouse | 1 | 27.945 | 14,950 | 3 | 2014 | | 2025.01.13 | ¸Å¸Å | Á¤ÀÎ¾ÆÆ®ºô | 4 | 40.55 | 29,500 | | 2001 | | 2025.01.13 | ¿ù¼¼ | beginhouse | 1 | 27.945 | 14,950 | 3 | 2014 | | 2025.01.13 | ¿ù¼¼ | ÇØ´ãä»óµµ | 5 | 75.83 | 500 | 46 | 2016 | | 2025.01.13 | ¿ù¼¼ | ¹«°æÇϿ콺 | 3 | 15.43 | 3,000 | 50 | 2016 | | 2025.01.13 | Àü¼¼ | µå¸²ÇϿ콺 | 4 | 24.45 | 18,300 | 0 | 2012 | | 2025.01.13 | ¿ù¼¼ | ´ëÈï¹Ì¼Ò°¡29Â÷(Bµ¿) | 2 | 28.54 | 1,350 | 11 | 2020 | | 2025.01.13 | Àü¼¼ | °³²ºô(243-4) | 4 | 27.96 | 25,000 | 0 | 2022 | | 2025.01.13 | Àü¼¼ | ½¦¾îÇϿ콺 | 1 | 12.2 | 7,800 | 0 | 2012 | | 2025.01.13 | Àü¼¼ | ÀÌ¿¡½ºÇÏÀÓ7Â÷Bµ¿ | 3 | 37.01 | 27,000 | 0 | 2018 | | 2025.01.13 | ¿ù¼¼ | (495-2) | 3 | 16.52 | 400 | 52 | 1995 | | 2025.01.12 | Àü¼¼ | â¼± | 3 | 29.5 | 16,800 | 0 | 2013 | | 2025.01.12 | Àü¼¼ | (361-109) | 2 | 35.31 | 22,500 | 0 | 2015 | | 2025.01.12 | Àü¼¼ | â¼± | 2 | 29.8 | 16,500 | 0 | 2013 | | 2025.01.12 | ¿ù¼¼ | ½ºÄ«ÀÌŸ¿î | 4 | 15 | 3,000 | 73 | 2017 | | 2025.01.12 | ¸Å¸Å | ´ö¿îÄ«¿îƼºô | 4 | 75.49 | 37,000 | | 2002 | | 2025.01.11 | ¸Å¸Å | ÀºÇàºô¶óBµ¿ | 1 | 41.36 | 39,500 | | 1986 | | 2025.01.11 | ¿ù¼¼ | ÇÑ¿ïºôµù | 5 | 12.05 | 1,000 | 55 | 2012 | | 2025.01.11 | ¸Å¸Å | Çö´ëÇÏÀÌÃ÷ºô¶ó(101µ¿) | -1 | 24.27 | 13,000 | | 1990 | | 2025.01.11 | ¿ù¼¼ | Á¦ÀϺô¶ó | 4 | 37.5 | 3,000 | 90 | 2002 | | 2025.01.11 | Àü¼¼ | â¼± | 4 | 28.78 | 16,500 | 0 | 2013 | | 2025.01.11 | Àü¼¼ | ÁøÀ̺ô1Â÷(279-9) | 2 | 66.67 | 25,000 | 0 | 2008 | | 2025.01.11 | Àü¼¼ | ȨÀη¹Áö´ø½º | 5 | 26.82 | 14,250 | 0 | 2013 | | 2025.01.11 | ¿ù¼¼ | (495-2) | 3 | 12.87 | 500 | 40 | 1995 | | 2025.01.11 | ¿ù¼¼ | °ñµç¸®¹öƼºô(1-10) | 1 | 78.11 | 14,000 | 80 | 2001 | | 2025.01.11 | ¿ù¼¼ | ¼Ò´ã1 | 2 | 13.8 | 2,000 | 60 | 2017 | | 2025.01.10 | ¿ù¼¼ | ¿ë¼±¾ÆÆ®ºô | 2 | 14.19 | 1,000 | 65 | 2013 | | 2025.01.10 | Àü¼¼ | ÈÞ¸ÕŸ¿î | 2 | 43.95 | 21,920 | 0 | 2003 | | 2025.01.10 | ¿ù¼¼ | Á¦ÀÌÇ÷¯½º | 4 | 12.395 | 1,000 | 50 | 2013 | | 2025.01.10 | Àü¼¼ | µ¿»êÈޱ׸°Å¸¿î | 3 | 27.83 | 19,600 | 0 | 2018 | | 2025.01.10 | ¸Å¸Å | ¹Ì¼ºÇص帲(210-206) | 2 | 29.81 | 39,000 | | 2022 | | 2025.01.10 | Àü¼¼ | ¼þ½ÇÈÀÌÆ®ºô | 1 | 50.22 | 25,000 | 0 | 2002 | | 2025.01.10 | ¿ù¼¼ | Á¤µµÁÖÅà | 4 | 32.66 | 8,851 | 17 | 2023 | | 2025.01.10 | ¿ù¼¼ | ±×¸°Èú | 4 | 38.64 | 24,150 | 8 | 2014 | | 2025.01.10 | Àü¼¼ | ¸®Ä¡ºô¶ó5Â÷ | 3 | 83.51 | 30,000 | 0 | 1995 | | 2025.01.10 | ¿ù¼¼ | ¸í¼ºÇϿ콺 | 3 | 29.96 | 12,200 | 54 | 2017 | | 2025.01.09 | ¸Å¸Å | ¿¹¸²¹Ì¼Ò°¡(201-77) | 2 | 35.55 | 35,000 | | 2014 | | 2025.01.09 | ¸Å¸Å | û¼Û½¦¸£ºô | 4 | 75.24 | 55,000 | | 2002 | | 2025.01.09 | ¿ù¼¼ | 491-20 | 4 | 14.83 | 12,300 | 19 | 2013 | | 2025.01.09 | ¿ù¼¼ | 491-20 | 4 | 14.83 | 12,300 | 19 | 2013 | | 2025.01.09 | ¿ù¼¼ | ¸®Æ²Æ÷·¹½ºÆ® | 4 | 29.88 | 5,000 | 105 | 2023 | | 2025.01.09 | ¿ù¼¼ | »ó·Ï¿ø·ë | 2 | 27.66 | 2,000 | 70 | 2001 | | 2025.01.09 | ¿ù¼¼ | ÀÌÆíÇѺô | 4 | 20.65 | 2,500 | 55 | 2013 | | 2025.01.09 | Àü¼¼ | ´õÆÛ½ºÆ®Å¸¿î | 6 | 27.9 | 24,000 | 0 | 2018 | | 2025.01.08 | ¸Å¸Å | º¦¿¤ | 3 | 53.44 | 24,000 | | 1997 | | 2025.01.08 | ¸Å¸Å | µ¿¿øº£½ºÆ®Å¸¿î | 4 | 32.91 | 30,000 | | 2015 | | 2025.01.08 | Àü¼¼ | ±æÁÖºô¶ó7Â÷ | -1 | 84.93 | 24,300 | 0 | 1996 | | 2025.01.08 | Àü¼¼ | ¹®ÈÁÖÅà | 1 | 39.35 | 12,500 | 0 | 1986 | | 2025.01.08 | ¿ù¼¼ | µ¿¾ç½º¸¶Æ®ºô | 7 | 16.545 | 10,000 | 15 | 2012 | | 2025.01.08 | ¿ù¼¼ | ±¸¸³¾à¼ö°æ·Î´çÇູÁÖÅú¹Çսü³ | 3 | 20.32 | 4,032 | 15 | 2020 | | 2025.01.08 | Àü¼¼ | (77-23) | 4 | 13.82 | 8,000 | 0 | 2013 | | 2025.01.07 | ¿ù¼¼ | ÇÑ¿ïºôµù | 6 | 16.66 | 100 | 65 | 2012 | | 2025.01.07 | ¿ù¼¼ | ´Ù³ª³×½ºÆ®ºô(7-91) | 2 | 36.31 | 200 | 20 | 2008 | | 2025.01.07 | ¸Å¸Å | ½Å¼ºÇÏÀÌÃ÷4Â÷ | 4 | 50.05 | 23,000 | | 2002 | | 2025.01.07 | Àü¼¼ | »óµµµå¸²ºô(291-5) | 4 | 64.65 | 24,000 | 0 | 2008 | | 2025.01.07 | Àü¼¼ | »óµµµå¸²ºô(291-5) | 4 | 64.65 | 24,000 | 0 | 2008 | | 2025.01.07 | ¿ù¼¼ | ¸ÇÇÏźÇÏ¿ì¡(256-180) | 4 | 43.26 | 29,600 | 15 | 2019 | | 2025.01.07 | ¿ù¼¼ | ´ë¿øÁÖÅà | 2 | 62.38 | 5,000 | 55 | 1997 | | 2025.01.07 | Àü¼¼ | ¸ð´øÈúŸ¿î1Â÷ | 2 | 32.03 | 23,600 | 0 | 2015 | | 2025.01.07 | ¸Å¸Å | ¼±°æ | 2 | 59.95 | 55,000 | | 2002 | | 2025.01.06 | ¸Å¸Å | »óµµº£½ºÆ®ºô | 1 | 77.72 | 47,000 | | 2002 | | 2025.01.06 | ¸Å¸Å | ¹Ì¼ºÇص帲(210-206) | 4 | 59.28 | 63,500 | | 2022 | | 2025.01.06 | Àü¼¼ | ´ë¿ø | 3 | 45.045 | 19,000 | 0 | 2001 | | 2025.01.06 | ¿ù¼¼ | ÄÉÀ̵ð¾ÆÀ̺ôEµ¿ | 2 | 27.71 | 2,000 | 80 | 2007 | | 2025.01.06 | Àü¼¼ | ´ëµ¿¸®¹öÆÄÅ©ºô | 3 | 43.99 | 32,000 | 0 | 2017 | | 2025.01.06 | ¿ù¼¼ | TSÆÓ¸®½º(470-9) | 5 | 24.76 | 4,000 | 95 | 2013 | | 2025.01.06 | Àü¼¼ | ¸¼Àº¼¼»óºô¸®Áö | 3 | 59.335 | 26,000 | 0 | 2012 | | 2025.01.06 | Àü¼¼ | ´ë¿ø | 3 | 45.045 | 19,000 | 0 | 2001 | | 2025.01.06 | Àü¼¼ | ´ë¿ø | 3 | 45.045 | 19,500 | 0 | 2001 | | 2025.01.05 | Àü¼¼ | (245-5) | 2 | 38.72 | 18,000 | 0 | 1986 | | 2025.01.05 | ¿ù¼¼ | ¼öÁ¤ºô | 2 | 28.02 | 3,000 | 73 | 2016 | | 2025.01.05 | ¿ù¼¼ | À¯ÁøÇÏÀÌÃ÷ºô¶ó | 1 | 42.11 | 18,000 | 20 | 1991 | | 2025.01.04 | ¸Å¸Å | Ä«·»½Ã¾ÆBµ¿ | 5 | 24.74 | 42,500 | | 2022 | | 2025.01.04 | ¿ù¼¼ | ¼öÁ¤ºô | 2 | 29.89 | 3,000 | 89 | 2016 | | 2025.01.04 | ¿ù¼¼ | ȨÀη¹Áö´ø½º | 3 | 13.9 | 1,000 | 46 | 2013 | | 2025.01.04 | ¿ù¼¼ | ¼Ò´ã1 | 2 | 13.11 | 2,000 | 60 | 2017 | | 2025.01.04 | ¿ù¼¼ | ¼º¿ì(474-13) | 2 | 27.95 | 10,000 | 60 | 2016 | | 2025.01.04 | ¿ù¼¼ | ¶ó¿ÂÆ÷·¹ | 5 | 55.22 | 5,000 | 220 | 2023 | | 2025.01.04 | ¿ù¼¼ | (492-6) | 2 | 29.39 | 7,000 | 26 | 2012 | | 2025.01.04 | ¿ù¼¼ | »ó·Ï¿ø·ë | 4 | 27.66 | 3,000 | 63 | 2001 | | 2025.01.03 | ¿ù¼¼ | ½Â¿øÁÖÅà | 3 | 29.31 | 26,500 | 25 | 2020 | | 2025.01.03 | ¿ù¼¼ | (212-63) | 3 | 35.42 | 13,300 | 10 | 2003 | | 2025.01.03 | ¸Å¸Å | ³×ÀÌóVill | 2 | 29.79 | 23,000 | | 2016 | | 2025.01.03 | ¿ù¼¼ | ¸®Ä¡ºô(299-168) | 3 | 25.47 | 15,400 | 6 | 2012 | | 2025.01.03 | Àü¼¼ | »óµµµ¿214-191´Ù¼¼´ëÁÖÅà | 4 | 74.08 | 35,000 | 0 | 2002 | | 2025.01.03 | Àü¼¼ | ´ëÈï¹Ì¼Ò°¡19Â÷ | 2 | 35.73 | 25,100 | 0 | 2016 | | 2025.01.03 | ¿ù¼¼ | À§³Ê½ººô¸®Áö | 2 | 96.06 | 32,000 | 17 | 1997 | | 2025.01.03 | Àü¼¼ | Á¦ÀÌÇ÷¯½º | 3 | 16.75 | 15,000 | 0 | 2013 | | 2025.01.03 | ¿ù¼¼ | ¼Á¤Ä³½½ | 4 | 20.7 | 3,000 | 55 | 2016 | | 2025.01.03 | ¸Å¸Å | ¸í¼ºÁÖÅà | 3 | 42.85 | 38,000 | | 2016 | | 2025.01.02 | ¿ù¼¼ | (169-2) | 3 | 68.76 | 3,000 | 140 | 2003 | | 2025.01.02 | ¿ù¼¼ | ¹«Áö°³ºô¶ó | 4 | 35.98 | 1,500 | 85 | 1992 | | 2025.01.02 | ¿ù¼¼ | ºêÀ̾÷ºôµù | 5 | 17.08 | 1,000 | 67 | 2017 | | 2025.01.02 | Àü¼¼ | °æ±¤ºô¶ó | 4 | 59.59 | 20,000 | 0 | 2003 |
|
|
|
 |
ÀÓÂ÷³»¿ª |
[¹è´ç¿ä±¸Á¾±âÀÏ : 2025/06/26] |
|
|
| ÀÓÂ÷ÀÎ |
Á¡À¯°ü°è |
ÀüÀÔÀÏÀÚ |
È®Á¤ÀÏÀÚ |
¹è´ç¿ä±¸ÀÏ |
º¸Áõ±Ý/Â÷ÀÓ |
´ëÇ׿ä°Ç |
ºñ°í |
| ¸Å°¢±âÀÏ 7ÀÏÀü¿¡ °ø°íµÇ¿À´Ï È®ÀÎÇϽñ⠹ٶø´Ï´Ù. |
|
|
|
 |
Áö¿ªºÐ¼® |
|
|
|
|
| ÁöÇÏö |
|
Çб³ |
|
| °ü°ø¼ |
|
| ¹ý¿ø |
¼¿ïÁß¾ÓÁö¹æ¹ý¿ø (065-94)¼¿ïƯº°½Ã ¼Ãʱ¸ ¼ÃÊÁß¾Ó·Î 157 (¼Ãʵ¿) ´ëÇ¥ : 02)530-1114, ¾ß°£ : 02)530-1280/536-8003 Á¾·Î±¸, Áß±¸, °³²±¸, ¼Ãʱ¸, °ü¾Ç±¸, µ¿ÀÛ±¸ |
| µî±â¼Ò |
¼¿ïÁß¾ÓÁö¹æ¹ý¿ø º»¿ø µî±â±¹ (´ëÇ¥:1544-0773, ÆÑ½º:(02)590-1881, ¼¿ïƯº°½Ã ¼Ãʱ¸ ¹ý¿ø·Î3±æ 14 (¼Ãʵ¿ 1707-4)) |
| ¼¼¹«¼ |
µ¿ÀÛ¼¼¹«¼ (´ëÇ¥:02-840-920, ÆÑ½º:02-831-4137, ¼¿ïƯº°½Ã ¿µµîÆ÷±¸ ´ë¹æÃµ·Î 259 (½Å±æµ¿)) |
|
|
|
 |
¹ý¿ø ¹°°ÇÀÚ·á ¿ä¾à |
|
|
|
|
| ¼Ò¸êµÇÁö ¾Ê´Â µî±âºÎ±Ç¸® |
|
| ¼³Á¤µÈ °ÍÀ¸·Î º¸´Â Áö»ó±Ç |
|
| ¹ý¿øÀÚ·á Æ¯ÀÌ»çÇ× |
|
| ¿©ÀÇÁÖ°æ¸Å Á¶¾ð ÇѸ¶µð |
ÀÌ ºÎµ¿»êÀÇ ÀÔÂû¹ý¿øÀº ¼¿ïÁß¾ÓÁö¹æ¹ý¿øÀÔ´Ï´Ù.
ÀÔÂûÀÏÀº 2026-04-01ÀÔ´Ï´Ù.
ÀÔÂû½Ã°£Àº ~11:00ÀÔ´Ï´Ù. ÀÌ ¹ý¿ø¿¡´Â ½ÅÇÑÀºÇàÀÌ ÀÔÁ¡Çϰí ÀÖ½À´Ï´Ù.
|
|
|
| Åë°è±â°£ |
³«Âû¹°°Ç¼ö |
Æò±Õ°¨Á¤°¡ |
Æò±Õ³«Âû°¡ |
³«Âû°¡À² |
À¯ÂûȽ¼ö |
| 3°³¿ù |
20°Ç |
484,469,085¿ø |
368,033,944¿ø |
80% |
2.2ȸ |
| 6°³¿ù |
42°Ç |
439,273,540¿ø |
362,976,610¿ø |
86% |
1.7ȸ |
| 12°³¿ù |
64°Ç |
426,486,385¿ø |
371,253,485¿ø |
90% |
1.4ȸ |
|
|
|
|
|
|
 |
|