|
|
| ¼ÒÀçÁö |
°æ±âµµ ±¤Áֽà ÃÊ¿ùÀ¾ Áö¿ù¸® 739-30 1Ãþ101È£
|
|
| »ç°Ç¹øÈ£ |
2025 Ÿ°æ 52522 |
¹°°Ç¹øÈ£ |
1
|
¹°°Ç¿ëµµ |
´Ù¼¼´ë,ºô¶ó |
| °¨Á¤Æò°¡¾× |
275,000,000¿ø |
°æ¸Å´ë»ó |
ÅäÁö ¹× °Ç¹°Àϰý ¸Å°¢ |
ÁøÇà»óÅ |
½Å°Ç |
| ÃÖÀúÀÔÂû°¡ |
(100%) 275,000,000¿ø
|
°Ç¹°¸éÀû |
61.80§³(18.69Æò) |
ÀÔÂû±âÀÏ |
2026.04.06(¿ù) 10:00
(ÀÔÂû 10ÀÏÀü)
|
| ÀÔÂûº¸Áõ±Ý |
(10%) 27,500,000¿ø |
ÅäÁö¸éÀû |
71.44§³(21.61Æò)
|
À¯ÂûȽ¼ö |
0ȸ |
| ÀÔÂû¹ý¿ø |
¼ö¿øÁö¹æ¹ý¿ø ¼º³²Áö¿ø |
°æ¸Å¹æ¹ý |
|
¹°°ÇÁ¶È¸¼ö |
¿À´Ã: 3ȸ [´©Àû: 41ȸ]
|
| ¸»¼Ò±âÁØ | ÃÖ¼±¼øÀ§ ¼³Á¤ : 2023.7.21. ±ÙÀú´ç±Ç ¼³Á¤
|
|
|
|
|
|
|
|
|
|
|
°æ¸Å´ë»ó ¸ñ·Ï
|
|
| ±¸ºÐ |
¸ñ·Ï |
ÁÖ¼Ò |
±¸Á¶/¿ëµµ/´ëÁö±Ç |
ºñ°í |
´ëÁö±Ç
|
1 |
Áö¿ù¸® 739-30 |
604ºÐÀÇ 71.44 |
71.44§³ (21.61Æò)
|
°Ç¹°
|
1 |
Áö¿ù¸® 739-30 |
1Ãþ101È£ ö±ÙÄÜÅ©¸®Æ®±¸Á¶ |
61.8§³ (18.69Æò)
|
|
|
|
2026-04-06
ÁøÇà
|
(100%)
275,000,000¿ø
|
|
|
|
|
|
°¨Á¤Æò°¡¼ ¿ä¾à |
|
[À§Ä¡/ÁÖÀ§È¯°æ]
º»°ÇÀº °æ±âµµ ±¤Áֽà ÃÊ¿ùÀ¾ Áö¿ù¸® ¼ÒÀç ""¼¼±¤¿£¸®Ä¥ºô ¾ÆÆÄÆ®"" ³²¼Ãø Àαٿ¡ À§Ä¡Çϸç
ºÎ±ÙÀ¸·Î´Â ¾ÆÆÄÆ®, ´Üµ¶ÁÖÅà ¹× ´Ù¼¼´ëÁÖÅÃ, ±Ù¸°»ýȰ½Ã¼³, ¼Ò±Ô¸ð °øÀå ¹× Ã¢°í, ³ó°æÁö,
ÀӾߵîÀÌ ¼ÒÀçÇϸç ÁÖ°ÅÁö·Î¼ÀÇ Á¦¹Ý ÁÖÀ§È¯°æÀº º¸ÅëÀÎ ÆíÀÓ.
[±³Åë»óȲ]
º»°Ç±îÁö Á¦¹ÝÂ÷·® ÃâÀÔÀÌ ¿ëÀÌÇϰí Àαٿ¡ ¹ö½ºÁ¤·ùÀåÀÌ ¼ÒÀçÇÏ¿© ´ëÁß±³Åë ÀÌ¿ëÀº º¸ÅëÀÎ
ÆíÀÓ.
[°Ç¹°±¸Á¶]
ö±ÙÄÜÅ©¸®Æ®±¸Á¶ (ö±Ù)ÄÜÅ©¸®Æ®(°æ»çÁöºØ)ÁöºØ 4Ãþ°Ç ´Ù¼¼´ëÁÖÅà Áß 1Ãþ 101È£·Î¼,
¿Ü º® : ¼®ÀçºÙÀÓ.
³» º® : º®Áöµµ¹è ¹× ŸÀϺÙÀÓ.
â È£ : ¾Ë·ç¹Ì´½¼¦½Ã ¹× ÇÏÀ̼¦½Ã ÀÌÁßâÀÓ.
[ÀÌ¿ë»óÅÂ]
´Ù¼¼´ëÁÖÅÃÀ¸·Î ÀÌ¿ëÁßÀÓ.(Èĸé ""³»ºÎ±¸Á¶µµ"" Âü°í)
[¼³ºñ³»¿ª]
±âº»ÀûÀÎ À§»ý ±Þ.¹è¼ö¼³ºñ, °³º°³¹æ¼³ºñ, ¼Ò¹æ¼³ºñ, ½Â°±â, °øµ¿Çö°üº¸¾È¼³ºñ µîÀÓ.
[ÅäÁöÇü»ó/ÀÌ¿ë»óÅÂ]
ÀÎÁ¢ µµ·Î¿Í µî°í ÆòźÇÑ ºÎÁ¤Çü ÅäÁö·Î¼ ´Ù¼¼´ëÁÖÅà °ÇºÎÁö·Î ÀÌ¿ëÁßÀÓ.
7)ÀÎÁ¢ µµ·Î»óŵî
º»°Ç ¼ÃøÀ¸·Î ·ÎÆø ¾à 4-6¹ÌÅÍ µµ·Î¿¡ Á¢ÇÔ.
[ÅäÁöÀÌ¿ë°èȹ]
°èȹ°ü¸®Áö¿ª(°èȹ°ü¸®), ¼ºÀå°ü¸®°èȹ±¸¿ª(¼ºÀå°ü¸®Áö¿ª(ÀϹÝÇü)), ¼Ò·Î3·ù(Æø 8m ¹Ì¸¸)
(Á¢ÇÕ)
°¡Ãà»çÀ°Á¦Çѱ¸¿ª(ÀϺÎÁ¦Çѱ¸¿ª)£¼°¡ÃàºÐ´¢ÀÇ °ü¸® ¹× À̿뿡 °üÇÑ ¹ý·ü£¾,¹èÃâ½Ã¼³¼³Ä¡Á¦ÇÑ
Áö¿ª£¼¹°È¯°æº¸Àü¹ý£¾,ÀÚ¿¬º¸Àü±Ç¿ª£¼¼öµµ±ÇÁ¤ºñ°èȹ¹ý£¾,°øÀå¼³¸³½ÂÀÎÁö¿ª£¼¼öµµ¹ý£¾,(ÇѰ)Æó±â
¹°¸Å¸³½Ã¼³ ¼³Ä¡Á¦ÇÑÁö¿ª£¼ÇѰ¼ö°è »ó¼ö¿ø¼öÁú°³¼± ¹× ÁÖ¹ÎÁö¿ø µî¿¡ °üÇÑ ¹ý·ü£¾,Ưº°´ëÃ¥
Áö¿ª£¼È¯°æÁ¤Ã¥±âº»¹ý£¾
[°øºÎ¿ÍÀÇ Â÷ÀÌ]
-
[Âü°í»çÇ×]
ÀÓ´ë°ü°è ¹Ì»óÀÓ. |
|
|
°ÇÃ๰ÇöȲ |
|
|
|
| ¼ÒÀçÁö |
°æ±âµµ ±¤Áֽà ÃÊ¿ùÀ¾ Áö¿ù¸® 739-30¹øÁö |
| ´ëÁö¸éÀû |
604§³(183.03Æò) |
¿¬¸éÀû |
602§³(182.42Æò) |
ÁÖ¿ëµµ |
°øµ¿ÁÖÅà |
| °ÇÃà¸éÀû |
214.88§³(65.12Æò) |
¿ëÀû·ü»êÁ¤¿¬¸éÀû |
602§³(182.42Æò) |
Âø°øÀÏÀÚ |
2017.04.10 |
| °ÇÆóÀ² |
35.58% |
¿ëÀû·ü |
99.67% |
»ç¿ë½ÂÀÎÀÏÀÚ |
2018.06.26 |
| Áö»óÃþ¼ö |
4Ãþ |
ÁöÇÏÃþ¼ö |
|
±¸Á¶ |
ö±ÙÄÜÅ©¸®Æ®±¸Á¶ |
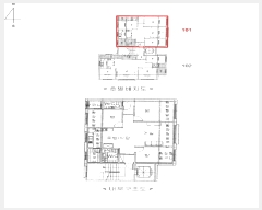
°ÇÃ๰Ãþº°ÇöȲ [º¸±â]| Ãþº° | ±¸Á¶ | ¿ëµµ | ¸éÀû | | 1Ãþ | ö±ÙÄÜÅ©¸®Æ®±¸Á¶ | ´Ù¼¼´ëÁÖÅà | 150.5§³ (45.61Æò) | | 2Ãþ | ö±ÙÄÜÅ©¸®Æ®±¸Á¶ | ´Ù¼¼´ëÁÖÅà | 150.5§³ (45.61Æò) | | 3Ãþ | ö±ÙÄÜÅ©¸®Æ®±¸Á¶ | ´Ù¼¼´ëÁÖÅà | 150.5§³ (45.61Æò) | | 4Ãþ | ö±ÙÄÜÅ©¸®Æ®±¸Á¶ | ´Ù¼¼´ëÁÖÅà | 150.5§³ (45.61Æò) |
|
|
|
|
|
|
|
|
|
¸éÀû(§³), ±Ý¾×(¸¸¿ø)
| °è¾àÀÏ | ±âÁØ | °Ç¹°¸íĪ | Ãþ | ¿¬¸éÀû | ´ëÁö¸éÀû | °Å·¡±Ý¾× | °ÇÃà³âµµ | | °Å·¡³»¿ªÀÌ ¾ø½À´Ï´Ù. |
| °è¾àÀÏ | ±âÁØ | °Ç¹°¸íĪ | Ãþ | ¿¬¸éÀû | º¸Áõ±Ý | ¿ù¼¼ | °ÇÃà³âµµ | | 2026.03.12 | ¸Å¸Å | (303-11) | 1 | 57.57 | 13,000 | | 2013 | | 2026.03.12 | ¸Å¸Å | Ç®ÇϿ콺Cµ¿ | 2 | 50.68 | 17,500 | | 2016 | | 2026.03.10 | ¸Å¸Å | º£¸£µð¿ò(204µ¿) | 3 | 60.6 | 28,000 | | 2018 | | 2026.03.09 | ¸Å¸Å | »ï¼ºÆÄÅ©ºô(102µ¿) | 1 | 58.17 | 15,800 | | 2016 | | 2026.03.07 | ¸Å¸Å | À§¼º¾ÆÆ®ºô(182-8) | 4 | 39.94 | 7,300 | | 2011 | | 2026.03.06 | ¸Å¸Å | MJÇϿ콺(102µ¿) | 1 | 53.2 | 18,500 | | 2017 | | 2026.03.04 | Àü¼¼ | (303-11) | 1 | 57.57 | 13,000 | 0 | 2013 | | 2026.03.04 | ¿ù¼¼ | µ¿Çö¾ÆÆ®ºô¶ó | 1 | 69.28 | 5,000 | 50 | 1997 | | 2026.03.04 | ¿ù¼¼ | µ¿Çö¾ÆÆ®ºô¶ó | 1 | 69.28 | 5,000 | 50 | 1997 | | 2026.03.03 | ¿ù¼¼ | ´Ãº½Å¸¿î104µ¿ | 3 | 55.4 | 1,000 | 70 | 2008 | | 2026.03.02 | ¿ù¼¼ | HERA(¾¾,µðµ¿) | 2 | 81.22 | 2,000 | 100 | 2024 | | 2026.02.13 | ¿ù¼¼ | ±ÝÈ£ºô¶ó(°¡µ¿) | 1 | 76.2 | 1,000 | 80 | 2003 | | 2026.02.13 | ¿ù¼¼ | ·°Å°Å¸¿îÇϿ콺(106µ¿) | 1 | 61.5 | 3,000 | 90 | 2023 | | 2026.02.12 | ¿ù¼¼ | ·Îµ©ÇϿ콺 | 3 | 50.53 | 2,000 | 65 | 2015 | | 2026.02.12 | ¸Å¸Å | ´ÙÀ̺ê½ÃƼ(103µ¿,104µ¿) | 3 | 61.05 | 42,000 | | 2024 | | 2026.02.11 | ¿ù¼¼ | ¸®¹öºô(Aµ¿) | 3 | 55.41 | 14,400 | 25 | 2014 | | 2026.02.11 | ¿ù¼¼ | Çö´ë¹ë¸®Å¸¿î(108µ¿) | 4 | 47.8 | 1,000 | 65 | 2013 | | 2026.02.10 | ¸Å¸Å | Ƽ¾Æ¸ðºô | 4 | 59.43 | 13,000 | | 2014 | | 2026.02.07 | ¸Å¸Å | µå¸²ÇϿ콺(Bµ¿) | 2 | 56.2 | 15,500 | | 2014 | | 2026.02.07 | ¿ù¼¼ | ÇѲɺô¶ó´Ùµ¿ | 1 | 61.54 | 2,500 | 50 | 2007 | | 2026.02.06 | ¿ù¼¼ | ´õÆú¶ó¸®½º(Bµ¿) | 4 | 57.32 | 2,000 | 80 | 2017 | | 2026.02.04 | ¸Å¸Å | ¸í¼ºÇÏÀÌÃ÷(203µ¿) | 1 | 72.24 | 20,500 | | 2017 | | 2026.02.04 | ¸Å¸Å | ¶ó¿ÂÆÓ¸®½º(106µ¿) | -1 | 84.77 | 18,000 | | 2017 | | 2026.02.04 | ¸Å¸Å | ´õÇÁ¶óÀÓ204µ¿ | 2 | 73.67 | 25,500 | | 2018 | | 2026.02.04 | ¸Å¸Å | ÄÉ·»½Ã¾Æ101µ¿ | 2 | 62.86 | 25,000 | | 2023 | | 2026.02.04 | ¸Å¸Å | ÄÉ·»½Ã¾Æ101µ¿ | 2 | 60.12 | 25,000 | | 2023 | | 2026.02.03 | ¿ù¼¼ | ¿¡ÄÚÇÏÀÓ(3µ¿) | 3 | 17.76 | 500 | 40 | 2012 | | 2026.02.02 | ¸Å¸Å | Èޱ׸°ºô(102µ¿) | 3 | 54.24 | 13,000 | | 2013 | | 2026.02.01 | ¸Å¸Å | JWºôDµ¿Eµ¿ | 3 | 48.24 | 18,900 | | 2020 | | 2026.01.31 | ¸Å¸Å | ´õÆú¶ó¸®½º(Bµ¿) | 1 | 57.32 | 20,800 | | 2017 | | 2026.01.31 | ¿ù¼¼ | Çö´ë¹ë¸®Å¸¿î(116µ¿) | 4 | 54.36 | 2,000 | 60 | 2015 | | 2026.01.30 | ¸Å¸Å | Ǫ¸£¸§ºô(³ªµ¿) | 2 | 54.17 | 14,000 | | 2012 | | 2026.01.30 | ¿ù¼¼ | ¸®Ä¡ÇÏÀÓ(105µ¿) | 3 | 53.34 | 2,000 | 80 | 2018 | | 2026.01.30 | ¸Å¸Å | »ï¼ºÅ¸¿î(109µ¿) | 4 | 56.64 | 25,500 | | 2018 | | 2026.01.30 | ¿ù¼¼ | ShinYoungTown106µ¿ | 2 | 66.17 | 2,000 | 70 | 2017 | | 2026.01.30 | ¸Å¸Å | À¯¾îȨŸ¿î(Bµ¿) | 4 | 55.027 | 25,000 | | 2016 | | 2026.01.28 | ¸Å¸Å | ¼º¿øÇÏÀÌÃ÷ºô¶ó | 4 | 44.01 | 10,000 | | 2004 | | 2026.01.28 | ¿ù¼¼ | ·Ôµ¥ºô¸®Áö(Bµ¿) | 4 | 54.87 | 11,500 | 15 | 2014 | | 2026.01.27 | ¸Å¸Å | ´õ½£ | 2 | 69.04 | 26,400 | | 2022 | | 2026.01.26 | Àü¼¼ | ÇѾƸ§ºô(³ªµ¿) | 4 | 68.4 | 12,000 | 0 | 2014 | | 2026.01.26 | Àü¼¼ | ±î»çÆÓ¸®½º(Cµ¿) | 4 | 45.54 | 12,800 | 0 | 2015 | | 2026.01.25 | ¸Å¸Å | ¶ó¿ÂÆÓ¸®½º(107µ¿) | -1 | 84.77 | 15,200 | | 2017 | | 2026.01.25 | Àü¼¼ | µ¿¼ºô¸®Áö101µ¿ | 4 | 64.05 | 20,000 | 0 | 2018 | | 2026.01.24 | ¿ù¼¼ | ´ëÁö±×¸°ºô¶ó | 1 | 59.4 | 3,000 | 70 | 1996 | | 2026.01.24 | ¸Å¸Å | ÇÑ¿ïÀü¿øÅ¸¿î(103µ¿) | 3 | 145.71 | 29,000 | | 2012 | | 2026.01.23 | ¸Å¸Å | ºñ¾ÆÆ®¸®½º(2µ¿) | 2 | 57.99 | 17,800 | | 2017 | | 2026.01.23 | Àü¼¼ | ¸¶¸¶ÇÏÀÌÃ÷¸Ç¼Ç(Aµ¿) | 2 | 95.76 | 10,000 | 0 | 1995 | | 2026.01.22 | ¸Å¸Å | ³»Ãß·²ÇϿ콺105µ¿ | 4 | 56.54 | 23,000 | | 2018 | | 2026.01.22 | ¿ù¼¼ | ÈúÇϿ콺(Aµ¿) | 2 | 59.74 | 10,800 | 10 | 2012 | | 2026.01.22 | ¸Å¸Å | µ¿»ê±×¸°ºôAµ¿ | 1 | 50.85 | 15,000 | | 2002 | | 2026.01.21 | ¸Å¸Å | ´õÆú¶ó¸®½º(Dµ¿) | 4 | 51.22 | 20,000 | | 2017 | | 2026.01.21 | Àü¼¼ | º£½ºÆ®Å¸¿î(101µ¿) | 4 | 55.735 | 12,500 | 0 | 2016 | | 2026.01.20 | ¸Å¸Å | ³×Ãò·²ÇϿ콺103µ¿ | 4 | 61.47 | 24,500 | | 2016 | | 2026.01.20 | Àü¼¼ | ±×¸°È¨Å¸¿î(103µ¿) | 3 | 58.565 | 13,500 | 0 | 2015 | | 2026.01.20 | ¿ù¼¼ | ·¹Áö´ø½º¿ø | 2 | 18.74 | 600 | 38 | 2018 | | 2026.01.19 | Àü¼¼ | ´õÇýÀ³ | 3 | 59.52 | 18,000 | 0 | 2021 | | 2026.01.19 | ¸Å¸Å | °ñµçij½½(Aµ¿) | 4 | 58.95 | 15,000 | | 2014 | | 2026.01.19 | ¸Å¸Å | Á¶Àº¸Ç¼Ç(Bµ¿) | 3 | 58.95 | 13,800 | | 2014 | | 2026.01.18 | ¸Å¸Å | ¶ó¿ÂÆÓ¸®½º(105µ¿) | 4 | 55.12 | 29,000 | | 2017 | | 2026.01.18 | Àü¼¼ | ¶óÀÓÇϿ콺(101µ¿) | 3 | 59.68 | 14,800 | 0 | 2015 | | 2026.01.17 | ¸Å¸Å | ºñ¾ÆÆ®¸®½º(6µ¿) | 2 | 59.75 | 18,500 | | 2017 | | 2026.01.15 | Àü¼¼ | ÄÉ·»½Ã¾Æ101µ¿ | 2 | 60.12 | 18,000 | 0 | 2023 | | 2026.01.15 | Àü¼¼ | ÄÉ·»½Ã¾Æ101µ¿ | 2 | 60.12 | 18,000 | 0 | 2023 | | 2026.01.13 | ¸Å¸Å | ¶óÆÄ¹Ì¿¡ | 3 | 77.56 | 40,500 | | 2021 | | 2026.01.12 | Àü¼¼ | ·°Å°¾ÆÆ®Èú103µ¿ | 4 | 57.09 | 14,000 | 0 | 2016 | | 2026.01.12 | ¸Å¸Å | ¶óÆÄ¹Ì¿¡ | 2 | 55.48 | 36,000 | | 2021 | | 2026.01.10 | ¸Å¸Å | ¼¼ÁøÅ¸¿î(103µ¿) | 3 | 35.96 | 9,300 | | 2014 | | 2026.01.10 | ¿ù¼¼ | ´õ½£¿¡¶ß¿Ð | 1 | 68.92 | 1,000 | 20 | 2023 | | 2026.01.10 | ¿ù¼¼ | º£½ºÆ®È¨102µ¿ | 1 | 69.38 | 1,000 | 85 | 2010 | | 2026.01.09 | ¸Å¸Å | ·Î¾âºô¸®Áö(Aµ¿) | 2 | 59.74 | 15,000 | | 2014 | | 2026.01.09 | ¿ù¼¼ | JWºô | 4 | 18.18 | 1,000 | 50 | 2019 | | 2026.01.09 | ¸Å¸Å | ¶óÆÄ¹Ì¿¡ | 4 | 51.57 | 36,500 | | 2021 | | 2026.01.08 | ¸Å¸Å | ´õ½£(301µ¿) | 4 | 70.49 | 30,000 | | 2021 | | 2026.01.07 | Àü¼¼ | ±×¸°È¨Å¸¿î(105µ¿) | 2 | 58.565 | 13,000 | 0 | 2015 | | 2026.01.06 | ¸Å¸Å | Çö´ëÀü¿ø¸Ç¼Ç | 3 | 76.64 | 11,800 | | 2000 | | 2026.01.05 | Àü¼¼ | À屺ºô(Aµ¿) | 3 | 75.69 | 12,000 | 0 | 2010 | | 2026.01.04 | Àü¼¼ | Àü¿ø¸¶À»(110µ¿) | 2 | 57.42 | 10,000 | 0 | 2015 | | 2026.01.03 | Àü¼¼ | Èޱ׸°ºô(102µ¿) | 4 | 45.42 | 8,800 | 0 | 2013 | | 2026.01.03 | ¿ù¼¼ | ÄÚÁöÇϿ콺(41-9) | 3 | 22.2 | 500 | 35 | 2012 | | 2026.01.03 | ¸Å¸Å | ¶óÆÄ¹Ì¿¡ | 3 | 77.56 | 40,500 | | 2021 | | 2026.01.03 | Àü¼¼ | µ¿»ê¾ÆÆ®ºô | 4 | 45.91 | 9,200 | 0 | 2014 | | 2026.01.03 | Àü¼¼ | µ¿»ê¾ÆÆ®ºô | 4 | 45.91 | 9,200 | 0 | 2014 | | 2026.01.02 | Àü¼¼ | À§µåÆÓ¸®½º(102µ¿) | 3 | 56.92 | 10,000 | 0 | 2013 | | 2025.12.31 | Àü¼¼ | (61-27) | 2 | 94.42 | 19,000 | 0 | 2015 | | 2025.12.31 | ¸Å¸Å | ÃÊ¿ùÆÓ¸®½ºAµ¿ | 3 | 50.69 | 19,400 | | 2011 | | 2025.12.31 | Àü¼¼ | °ñµçÇϿ콺(Aµ¿) | 3 | 59.5 | 10,000 | 0 | 2012 | | 2025.12.30 | ¿ù¼¼ | Æ÷·¹½ºÆ®Èú(106µ¿) | -1 | 79.49 | 1,500 | 70 | 2017 | | 2025.12.30 | ¸Å¸Å | °ñµçij½½(Bµ¿) | 4 | 58.95 | 12,000 | | 2014 | | 2025.12.29 | ¿ù¼¼ | À§µåÆÓ¸®½º(105µ¿) | 3 | 51.72 | 2,000 | 55 | 2013 | | 2025.12.29 | ¿ù¼¼ | »ïÁ¤ºô¶ó | 2 | 77.25 | 4,100 | 49 | 1997 | | 2025.12.26 | Àü¼¼ | JHOUSE(Dµ¿) | 4 | 59.91 | 21,000 | 0 | 2018 | | 2025.12.26 | Àü¼¼ | ¶óÆÄ¹Ì¿¡ | 3 | 73.33 | 10,800 | 0 | 2021 | | 2025.12.26 | ¸Å¸Å | ¶óÆÄ¹Ì¿¡ | 3 | 73.33 | 38,000 | | 2021 | | 2025.12.25 | ¸Å¸Å | JWºôDµ¿Eµ¿ | 4 | 18.09 | 10,300 | | 2020 | | 2025.12.23 | Àü¼¼ | ÀÌ·ëÇ÷¯½º102µ¿ | 1 | 70.9 | 10,800 | 0 | 2009 | | 2025.12.23 | Àü¼¼ | º£½ºÆ®È¨101µ¿ | 4 | 71.5 | 13,000 | 0 | 2010 | | 2025.12.21 | Àü¼¼ | º£½ºÆ®Å¸¿î(202µ¿) | 4 | 51.09 | 11,900 | 0 | 2014 | | 2025.12.20 | ¸Å¸Å | ¶óÆÄ¹Ì¿¡ | 2 | 55.48 | 36,000 | | 2021 | | 2025.12.18 | ¸Å¸Å | µ¿»êºô¶óBµ¿ | 2 | 65.73 | 8,500 | | 1997 | | 2025.12.17 | ¿ù¼¼ | ¿¡ÄÚÇÏÀÓ(¥µ) | 1 | 21.78 | 300 | 35 | 2012 | | 2025.12.17 | ¸Å¸Å | Æ®¶ó¿ò(207µ¿) | 4 | 60.83 | 31,000 | | 2021 | | 2025.12.16 | Àü¼¼ | Æ÷·¹½ºÆ®Èú(107µ¿) | 2 | 69.16 | 14,000 | 0 | 2017 | | 2025.12.16 | ¸Å¸Å | »ï¼ºÅ¸¿î(109µ¿) | 3 | 56.64 | 21,500 | | 2018 | | 2025.12.15 | ¿ù¼¼ | ¿¡ÄÚÇÏÀÓ(¥µ) | 3 | 18.76 | 500 | 37 | 2012 | | 2025.12.12 | Àü¼¼ | ¸í¼ºÇÏÀÌÃ÷104µ¿ | 2 | 55.88 | 14,300 | 0 | 2016 | | 2025.12.12 | ¿ù¼¼ | À§³Ê½ººô | 4 | 52.26 | 10,600 | 17 | 2013 | | 2025.12.12 | ¿ù¼¼ | ·Î¾âºô¸®Áö(Bµ¿) | 2 | 59.74 | 1,500 | 70 | 2014 | | 2025.12.12 | Àü¼¼ | ºÎ±¤Ã¾½ººô | 3 | 57.81 | 11,000 | 0 | 2013 | | 2025.12.12 | ¸Å¸Å | µ¿»ê±×¸°ºôAµ¿ | 3 | 50.85 | 10,000 | | 2002 | | 2025.12.10 | ¸Å¸Å | ¶óÆÄ¹Ì¿¡ | 4 | 51.57 | 36,500 | | 2021 | | 2025.12.10 | Àü¼¼ | ´õÆú¶ó¸®½º(Fµ¿) | 4 | 51.32 | 15,000 | 0 | 2017 | | 2025.12.09 | ¸Å¸Å | ¹é»êÀÚÀ̾È102µ¿ | 4 | 65.42 | 33,000 | | 2022 | | 2025.12.09 | ¿ù¼¼ | À¯¾îȨŸ¿î(Bµ¿) | 2 | 55.027 | 1,000 | 60 | 2016 | | 2025.12.08 | ¸Å¸Å | ÄÉ·»½Ã¾Æ101µ¿ | 3 | 60.12 | 28,000 | | 2023 | | 2025.12.06 | Àü¼¼ | º£½ºÆ®ÇÏÀÓ106µ¿ | 2 | 65.93 | 15,000 | 0 | 2018 | | 2025.12.03 | ¿ù¼¼ | ÃÊ¿ù¼Ö³»À½Á¦103µ¿ | 1 | 84.29 | 3,000 | 120 | 2016 | | 2025.12.02 | ¸Å¸Å | ÁÖ³ëÇϿ콺 | 3 | 60.21 | 15,350 | | 2016 | | 2025.12.01 | ¿ù¼¼ | ³»Ãß·²ÇϿ콺101µ¿ | 1 | 63.09 | 2,000 | 80 | 2016 | | 2025.11.30 | ¸Å¸Å | ¶óÆÄ¹Ì¿¡ | 4 | 45.09 | 29,800 | | 2021 | | 2025.11.29 | Àü¼¼ | ¶óÀÓÇϿ콺(101µ¿) | 1 | 63.84 | 14,000 | 0 | 2015 | | 2025.11.29 | ¿ù¼¼ | JWºô | 3 | 39.99 | 2,000 | 65 | 2019 | | 2025.11.27 | ¿ù¼¼ | Èú¸µÅ¸¿î(Fµ¿) | 1 | 52.478 | 2,000 | 70 | 2015 | | 2025.11.26 | ¸Å¸Å | ·Î¾âºô¸®Áö(Cµ¿) | 3 | 59.74 | 14,700 | | 2014 | | 2025.11.26 | ¸Å¸Å | ¼±±¤ºô¶ó(°¡µ¿) | 4 | 75.7 | 11,000 | | 1996 | | 2025.11.25 | ¿ù¼¼ | ¿ìÁÖÆç¸®½º(Bµ¿) | 2 | 50.69 | 2,000 | 63 | 2014 | | 2025.11.24 | Àü¼¼ | ¸í¼ºÇÏÀÌÃ÷103µ¿ | 3 | 55.88 | 12,500 | 0 | 2016 | | 2025.11.24 | ¿ù¼¼ | ·°Å°¾ÆÆ®Èú101µ¿ | 1 | 52.065 | 2,000 | 70 | 2016 | | 2025.11.24 | ¿ù¼¼ | ¾ÆÀÌÄÉÀ̺ô¸®Áö | 1 | 75.03 | 2,000 | 120 | 2021 | | 2025.11.24 | ¿ù¼¼ | º£½ºÆ®ÇÏÀÓ201~203µ¿ | 4 | 66.39 | 774 | 33 | 2018 | | 2025.11.24 | ¿ù¼¼ | ½ºÀ§Ã÷ºô¶ó | 4 | 76.38 | 8,000 | 15 | 1997 | | 2025.11.23 | ¿ù¼¼ | ÆÄ½ºÅÚºô(101µ¿) | 2 | 57.575 | 2,000 | 90 | 2018 | | 2025.11.22 | ¿ù¼¼ | ¶ó¿ÂÆÓ¸®½º109µ¿ | -1 | 69.55 | 3,000 | 65 | 2018 | | 2025.11.22 | ¿ù¼¼ | µ¿ÁøÅ¸¿î | 2 | 51.79 | 1,000 | 52 | 1993 | | 2025.11.21 | ¸Å¸Å | µå¸²ÇϿ콺3Â÷(4µ¿) | 3 | 56.2 | 18,500 | | 2016 | | 2025.11.20 | ¸Å¸Å | ÀÌ·ëÇ÷¯½º102µ¿ | 3 | 70.9 | 14,000 | | 2009 | | 2025.11.20 | ¿ù¼¼ | T.SÅ©¶óÀ̽å±(102µ¿) | 3 | 56.7 | 1,000 | 90 | 2020 | | 2025.11.19 | ¸Å¸Å | ÀÌ·ëÇ÷¯½º102µ¿ | 1 | 70.9 | 18,800 | | 2009 | | 2025.11.19 | ¿ù¼¼ | »ê³»¸¶À»ºô¶ó(°¡µ¿) | 2 | 78.15 | 2,000 | 60 | 1996 | | 2025.11.19 | ¸Å¸Å | ±×¸°È¨Å¸¿îÁ¦201µ¿ | 1 | 58.565 | 15,400 | | 2016 | | 2025.11.18 | ¸Å¸Å | °¡¶÷ºô(Aµ¿) | 3 | 48.18 | 11,500 | | 2017 | | 2025.11.17 | ¿ù¼¼ | ·°Å°Å¸¿îÇϿ콺101µ¿ | 1 | 57.42 | 13,300 | 20 | 2019 | | 2025.11.17 | Àü¼¼ | Çö´ëŸ¿î(Gµ¿) | 2 | 75.98 | 15,500 | 0 | 2020 | | 2025.11.16 | ¸Å¸Å | Çö´ë¸Ç¼Ç | 4 | 76.16 | 10,500 | | 2008 | | 2025.11.15 | ¿ù¼¼ | º¸¼ººô¶ó | 1 | 58.24 | 1,000 | 40 | 1991 | | 2025.11.15 | ¿ù¼¼ | ¸®¹öºô(Bµ¿) | 4 | 59.52 | 3,000 | 90 | 2013 | | 2025.11.15 | ¿ù¼¼ | ÇÑÁÖŸ¿î106µ¿ | 1 | 65.705 | 2,000 | 55 | 2011 | | 2025.11.15 | ¸Å¸Å | ¼£·ÎÃ÷ºô102µ¿103µ¿ | 3 | 55.93 | 27,000 | | 2018 | | 2025.11.14 | ¿ù¼¼ | »ï¼ºÅ¸¿î(205µ¿) | 3 | 56.5 | 2,000 | 90 | 2018 | | 2025.11.12 | ¿ù¼¼ | ¼¼ÁøÅ¸¿î(106µ¿) | 4 | 34.2 | 1,000 | 70 | 2014 | | 2025.11.12 | Àü¼¼ | ±î»çÆç¸®½º(Iµ¿) | 1 | 59.96 | 13,400 | 0 | 2015 | | 2025.11.12 | ¿ù¼¼ | ·°Å°Å¸¿îÇϿ콺(105µ¿) | 2 | 75.06 | 3,000 | 90 | 2023 | | 2025.11.11 | Àü¼¼ | Çö´ë¹ë¸®Å¸¿î(104µ¿) | 4 | 55.005 | 10,000 | 0 | 2014 | | 2025.11.11 | ¿ù¼¼ | ÆÄÀκô(2µ¿) | 4 | 51.99 | 10,200 | 15 | 2015 | | 2025.11.10 | ¸Å¸Å | ¸®Ä¡ºôAµ¿ | 3 | 52.78 | 16,000 | | 2022 | | 2025.11.10 | ¸Å¸Å | º£½ºÆ®Å¸¿î(201µ¿) | 4 | 51.09 | 15,000 | | 2014 | | 2025.11.08 | ¸Å¸Å | ·Ôµ¥ºô¸®Áö(202µ¿) | 1 | 53.18 | 14,000 | | 2014 | | 2025.11.07 | Àü¼¼ | ºÎ±¤Ã¾½ººô | 1 | 57.81 | 10,000 | 0 | 2013 | | 2025.11.07 | ¿ù¼¼ | º£¸£µð¿ò(205µ¿) | 2 | 60.6 | 3,000 | 70 | 2018 | | 2025.11.07 | ¿ù¼¼ | ÇØ´ãºô¸®Áö(Aµ¿) | 2 | 51.36 | 2,000 | 80 | 2017 | | 2025.11.06 | ¿ù¼¼ | ¿õÁøºô¶ó(°¡µ¿) | 1 | 58.89 | 600 | 60 | 1996 | | 2025.11.06 | ¿ù¼¼ | Ƽ¾Æ¸ð | 3 | 49.31 | 2,000 | 65 | 2017 | | 2025.11.06 | ¸Å¸Å | ·º½ººô(Aµ¿) | 3 | 69.45 | 20,000 | | 2018 | | 2025.11.05 | ¿ù¼¼ | Èú¸µÅ¸¿î(Dµ¿) | 1 | 51.87 | 1,000 | 80 | 2016 | | 2025.11.05 | Àü¼¼ | ¸¶¸¶ÇÏÀÌÃ÷¸Ç¼Ç(Aµ¿) | 4 | 95.76 | 10,500 | 0 | 1995 | | 2025.11.04 | ¿ù¼¼ | Àü¿ø¸¶À»(110µ¿) | 1 | 57.42 | 2,000 | 50 | 2015 | | 2025.11.03 | ¿ù¼¼ | Áø»õ°ñÀü¿ø¸¶À»(105µ¿) | 1 | 58.41 | 3,000 | 60 | 2014 | | 2025.11.03 | ¿ù¼¼ | ±×¸°È¨Å¸¿î(103µ¿) | 3 | 58.565 | 2,000 | 80 | 2015 | | 2025.11.01 | ¿ù¼¼ | ¼º¿øÇÏÀÌÃ÷ºô¶ó | 3 | 44.01 | 1,000 | 60 | 2004 | | 2025.11.01 | ¿ù¼¼ | Áö»êºô¶ó(°¡µ¿) | 2 | 55.26 | 2,000 | 60 | 1994 | | 2025.10.30 | ¸Å¸Å | JHOUSE(Cµ¿) | 4 | 64.41 | 24,000 | | 2018 | | 2025.10.30 | ¿ù¼¼ | ¿¡ÄÚÇÏÀÓ(¥µ) | 2 | 18.76 | 500 | 38 | 2012 | | 2025.10.30 | ¿ù¼¼ | JWºô | 5 | 33.485 | 2,000 | 60 | 2019 | | 2025.10.29 | ¸Å¸Å | ÇØ¿À¸§ÇϿ콺 | 3 | 49.39 | 10,500 | | 2013 | | 2025.10.29 | ¿ù¼¼ | µ¿ÁøÅ¸¿î | 2 | 51.79 | 1,000 | 36 | 1993 | | 2025.10.27 | Àü¼¼ | Áö»êºô¶ó(°¡µ¿) | 3 | 55.26 | 10,000 | 0 | 1994 | | 2025.10.25 | ¿ù¼¼ | ÄÚÁöÇϿ콺(41-9) | 2 | 18.76 | 500 | 35 | 2012 | | 2025.10.25 | ¸Å¸Å | Èޱ׸°ºô(102µ¿) | 2 | 45.42 | 12,700 | | 2013 | | 2025.10.22 | Àü¼¼ | ·º½ººô(Aµ¿) | 4 | 69.45 | 18,000 | 0 | 2018 | | 2025.10.22 | Àü¼¼ | Çö´ë±×¶ûºí | 4 | 76 | 9,200 | 0 | 2007 | | 2025.10.22 | ¿ù¼¼ | Çö´ëŸ¿îAµ¿ | 3 | 57.81 | 2,500 | 65 | 2020 | | 2025.10.21 | ¿ù¼¼ | ´õÆú¶ó¸®½º(Eµ¿) | 3 | 51.32 | 2,000 | 64 | 2017 | | 2025.10.20 | ¿ù¼¼ | °ñµåºô¸®ÁöCµ¿ | 2 | 72.78 | 2,000 | 60 | 2022 | | 2025.10.18 | ¿ù¼¼ | ³×Ãò·²ÇϿ콺103µ¿ | 3 | 61.47 | 14,000 | 10 | 2016 | | 2025.10.18 | ¸Å¸Å | »ïÁ¤ºô¶ó | 4 | 69.03 | 12,500 | | 1997 | | 2025.10.16 | ¿ù¼¼ | ·º½ººô(Cµ¿) | 3 | 43.91 | 1,000 | 50 | 2017 | | 2025.10.15 | ¿ù¼¼ | ±ÝÈ£ºô¶ó(°¡µ¿) | 1 | 76.2 | 1,500 | 80 | 2003 | | 2025.10.14 | ¸Å¸Å | Èú¸µÅ¸¿î(Fµ¿) | 1 | 52.478 | 13,500 | | 2015 | | 2025.10.14 | ¿ù¼¼ | JWºô | 2 | 15.95 | 1,000 | 50 | 2019 | | 2025.10.14 | ¿ù¼¼ | JWºô | 2 | 15.95 | 1,000 | 42 | 2019 | | 2025.10.14 | ¿ù¼¼ | µ¿»ê±×¸°ºôAµ¿ | 2 | 50.85 | 6,000 | 20 | 2002 | | 2025.10.14 | ¸Å¸Å | ·º½ººô(Aµ¿) | 2 | 65.43 | 29,000 | | 2017 | | 2025.10.13 | ¸Å¸Å | Àü¿ø¸¶À»(108µ¿) | 3 | 54.88 | 14,300 | | 2015 | | 2025.10.13 | ¸Å¸Å | ·Ôµ¥ºô¸®Áö(103µ¿) | 3 | 59.95 | 15,000 | | 2012 | | 2025.10.10 | ¸Å¸Å | ´ÙÀ̺꾾Ƽ101µ¿ | 2 | 72.99 | 24,900 | | 2020 | | 2025.10.05 | ¸Å¸Å | ³»Ãß·²ÇϿ콺105µ¿ | 2 | 59.83 | 25,000 | | 2018 | | 2025.09.30 | ¸Å¸Å | JHOUSE(Bµ¿) | 4 | 65.17 | 24,000 | | 2018 | | 2025.09.29 | ¸Å¸Å | û¸²ÇÏÀÓºôÁ¦101µ¿ | 4 | 51.825 | 12,500 | | 2016 | | 2025.09.29 | ¿ù¼¼ | °ñµåºô¸®Áö(Aµ¿) | 1 | 61.84 | 2,000 | 60 | 2019 | | 2025.09.29 | ¿ù¼¼ | µ¿ÁøÅ¸¿î | 1 | 51.79 | 1,000 | 45 | 1993 | | 2025.09.27 | ¸Å¸Å | ´ÙÀ̺꾾Ƽ102µ¿ | 1 | 68.43 | 27,000 | | 2020 | | 2025.09.27 | Àü¼¼ | Èޱ׸°ºô104µ¿105µ¿ | 3 | 57.27 | 12,500 | 0 | 2014 | | 2025.09.27 | ¿ù¼¼ | Èޱ׸°ºô104µ¿105µ¿ | 2 | 57.27 | 2,000 | 65 | 2014 | | 2025.09.27 | Àü¼¼ | ¶óÀÓÇϿ콺104µ¿ | 4 | 54.18 | 15,000 | 0 | 2018 | | 2025.09.27 | ¸Å¸Å | »êÈ£ÈúÇϿ콺(1µ¿) | 1 | 67.335 | 16,850 | | 2017 | | 2025.09.26 | ¸Å¸Å | ½ºÄ«À̺ô(219-4) | 4 | 78.39 | 13,000 | | 2008 | | 2025.09.26 | ¸Å¸Å | ¸¶¸¶ÇÏÀÌÃ÷¸Ç¼Ç(Aµ¿) | 2 | 67.6 | 9,750 | | 1995 | | 2025.09.23 | ¸Å¸Å | µ¿»êºô¶óBµ¿ | 1 | 65.73 | 8,500 | | 1997 | | 2025.09.22 | ¿ù¼¼ | ÁÖ³ëÇϿ콺(A,Bµ¿) | 1 | 51.015 | 1,000 | 70 | 2016 | | 2025.09.20 | Àü¼¼ | ¹ÌÁÖ¸Ç¼Ç | 4 | 135.45 | 14,500 | 0 | 1999 | | 2025.09.18 | ¸Å¸Å | µ¿»êºô¶óAµ¿ | 4 | 70.05 | 8,600 | | 1995 | | 2025.09.16 | ¿ù¼¼ | ¿ìÁÖÆç¸®½º(Bµ¿) | 3 | 50.69 | 2,500 | 61 | 2014 | | 2025.09.16 | ¿ù¼¼ | À屺ºô(CDµ¿) | 3 | 51.89 | 9,500 | 15 | 2013 | | 2025.09.15 | Àü¼¼ | °¡¶÷ºô(Aµ¿) | 2 | 48.18 | 12,000 | 0 | 2017 | | 2025.09.15 | ¸Å¸Å | À§¼º¾ÆÆ®ºô(182-8) | 1 | 39.43 | 9,700 | | 2011 | | 2025.09.15 | ¿ù¼¼ | ¿¡ÄÚÇÏÀÓ2 | 3 | 34.56 | 1,000 | 56 | 2012 | | 2025.09.13 | ¿ù¼¼ | ·°Å°Å¸¿îÇϿ콺(105µ¿) | 4 | 75.06 | 3,000 | 90 | 2023 | | 2025.09.12 | ¸Å¸Å | ½ºÄ«ÀÌÈú102µ¿ | 1 | 72.95 | 32,200 | | 2022 | | 2025.09.11 | ¸Å¸Å | ´Ãº½Å¸¿î102µ¿103µ¿ | 1 | 62.21 | 13,700 | | 2008 | | 2025.09.11 | ¸Å¸Å | ¸®Ä¡ºôAµ¿ | 2 | 52.78 | 17,000 | | 2022 | | 2025.09.10 | Àü¼¼ | ¾ð´öÀ§ÇϾáÁý(103µ¿) | 1 | 57.57 | 11,000 | 0 | 2013 | | 2025.09.10 | ¿ù¼¼ | ¼¿øCµ¿ | 1 | 82.52 | 3,000 | 100 | 2019 | | 2025.09.09 | ¿ù¼¼ | ºñ¾ÆÆ®¸®½º(5µ¿) | 1 | 58.44 | 2,000 | 75 | 2017 | | 2025.09.08 | ¿ù¼¼ | °¶·°½Ãºô | 3 | 48.78 | 10,700 | 15 | 2018 | | 2025.09.08 | ¿ù¼¼ | Ƽ¾Æ¸ð | 3 | 49.31 | 2,000 | 65 | 2017 | | 2025.09.08 | ¸Å¸Å | Æ®¶ó¿ò(207µ¿) | 2 | 60.83 | 23,000 | | 2021 | | 2025.09.06 | ¸Å¸Å | ¹é»êÀÚÀ̾È103µ¿ | 4 | 66.32 | 36,000 | | 2022 | | 2025.09.06 | ¸Å¸Å | JWºô | 5 | 62.44 | 23,000 | | 2020 | | 2025.09.05 | ¿ù¼¼ | ¿¡ÄÚÇÏÀÓ(¥µ) | 3 | 18.76 | 500 | 37 | 2012 | | 2025.09.04 | ¿ù¼¼ | ³×Ãò·²ÆÄÅ©ºô(101µ¿) | 1 | 66.44 | 3,000 | 80 | 2016 | | 2025.09.02 | ¿ù¼¼ | »ï¿ì | 1 | 135.36 | 1,000 | 47 | 1996 | | 2025.09.02 | ¿ù¼¼ | (61-27) | 2 | 94.42 | 2,000 | 85 | 2015 | | 2025.09.02 | Àü¼¼ | ´ë¿µ¾ÆÆ®ºô¶ó | 3 | 77.43 | 8,000 | 0 | 1997 | | 2025.09.01 | ¿ù¼¼ | ¿¡ÄÚÇÏÀÓ(5µ¿) | 1 | 19.21 | 500 | 37 | 2012 | | 2025.09.01 | Àü¼¼ | º£½ºÆ®Å¸¿î103µ¿ | 3 | 50.82 | 11,500 | 0 | 2016 | | 2025.08.29 | Àü¼¼ | ´ÙÀ̺꾾Ƽ101µ¿ | 4 | 72.99 | 23,000 | 0 | 2020 | | 2025.08.29 | ¿ù¼¼ | ÁÖ³ëÇϿ콺3Â÷ | 3 | 56.12 | 1,000 | 90 | 2018 | | 2025.08.28 | ¿ù¼¼ | JHOUSE(Dµ¿) | 1 | 59.91 | 2,000 | 20 | 2018 | | 2025.08.28 | ¸Å¸Å | HERA(¾¾,µðµ¿) | 1 | 81.48 | 42,000 | | 2024 | | 2025.08.27 | ¿ù¼¼ | Áø»õ°ñÀü¿ø¸¶À»(101µ¿) | 2 | 59.62 | 2,000 | 70 | 2013 | | 2025.08.27 | ¿ù¼¼ | Àº¼º¾ÆÆ®ºô2µ¿ | 4 | 75.46 | 1,000 | 60 | 2009 | | 2025.08.26 | ¸Å¸Å | ±î»çÆç¸®½º(Aµ¿) | 4 | 59.96 | 25,500 | | 2015 | | 2025.08.25 | Àü¼¼ | JHOUSE(Eµ¿) | 3 | 59.6 | 24,500 | 0 | 2018 | | 2025.08.25 | ¸Å¸Å | »ê³»¸¶À»ºô¶ó(³ªµ¿) | 3 | 58.89 | 11,700 | | 1997 | | 2025.08.25 | ¿ù¼¼ | ·Ôµ¥ºô¸®Áö(103µ¿) | 3 | 59.95 | 12,000 | 10 | 2012 | | 2025.08.25 | Àü¼¼ | º£½ºÆ®Å¸¿î(201µ¿) | 4 | 51.09 | 10,900 | 0 | 2014 | | 2025.08.23 | ¿ù¼¼ | °ñµçÆ®¸®(Cµ¿) | -1 | 47.18 | 1,000 | 50 | 2017 | | 2025.08.22 | ¸Å¸Å | Àü¿ø¸¶À»(110µ¿) | 1 | 57.42 | 15,000 | | 2015 | | 2025.08.22 | ¸Å¸Å | »ï¼º·Î¾â¸Ç¼Ç(Cµ¿) | 3 | 59.18 | 9,800 | | 2012 | | 2025.08.21 | Àü¼¼ | ºÎ±¤Ã¾½ººô | 4 | 57.81 | 10,000 | 0 | 2013 | | 2025.08.19 | ¿ù¼¼ | ¿ìÁÖÆç¸®½º(Bµ¿) | 4 | 50.69 | 2,500 | 63 | 2014 | | 2025.08.19 | ¿ù¼¼ | µ¿»ê±×¸°ºôAµ¿ | 4 | 50.85 | 1,000 | 60 | 2002 | | 2025.08.18 | ¿ù¼¼ | ´ë¼ººô¶ó | 2 | 45.07 | 4,000 | 45 | 2013 | | 2025.08.18 | ¸Å¸Å | Èޱ׸°ºô(102µ¿) | 2 | 54.24 | 16,000 | | 2013 | | 2025.08.17 | ¸Å¸Å | ´ÙÀ̺꾾Ƽ105µ¿ | 4 | 66.12 | 53,000 | | 2022 | | 2025.08.16 | Àü¼¼ | ¼¼ÁøÅ¸¿î(101µ¿) | 2 | 51.47 | 12,400 | 0 | 2014 | | 2025.08.15 | ¿ù¼¼ | ºñ¾ÆÆ®¸®½º(6µ¿) | 1 | 59.75 | 2,000 | 50 | 2017 | | 2025.08.14 | ¸Å¸Å | ¶ó¿ÂÆÓ¸®½º(101µ¿) | 3 | 63 | 17,000 | | 2016 | | 2025.08.13 | ¸Å¸Å | À§µåÆÓ¸®½º(101µ¿) | 2 | 53.99 | 13,500 | | 2013 | | 2025.08.13 | Àü¼¼ | »ï¼ºÅ¸¿î(108µ¿) | 2 | 56.64 | 18,000 | 0 | 2018 | | 2025.08.13 | ¿ù¼¼ | ·°Å°Å¸¿îÇϿ콺(108µ¿) | 1 | 61.5 | 3,000 | 90 | 2023 | | 2025.08.13 | ¿ù¼¼ | ¾Æ¸£Å×Èú(307µ¿) | 3 | 61.51 | 2,800 | 80 | 2021 | | 2025.08.12 | ¿ù¼¼ | ´ë¼ººô¶ó | 1 | 42.3 | 2,000 | 70 | 2013 | | 2025.08.11 | ¸Å¸Å | »ï¼ºÅ¸¿î(201µ¿) | 4 | 56.89 | 24,800 | | 2018 | | 2025.08.09 | ¸Å¸Å | ¿õÁøºô¶ó(°¡µ¿) | 1 | 58.89 | 9,900 | | 1996 | | 2025.08.08 | ¿ù¼¼ | ¿õÁøºô¶ó(³ªµ¿) | 3 | 74.79 | 1,000 | 70 | 1996 | | 2025.08.08 | ¿ù¼¼ | ¹ÌÁÖ¸Ç¼Ç | 4 | 100 | 2,000 | 80 | 1999 | | 2025.08.07 | ¸Å¸Å | ±×·£µåÇÏÀÓ101µ¿ | 1 | 66.87 | 46,700 | | 2024 | | 2025.08.07 | ¿ù¼¼ | ¿ì¸®°¡Aµ¿ | 3 | 42.1 | 2,000 | 57 | 2015 | | 2025.08.07 | Àü¼¼ | ShinYoungTown105µ¿ | 4 | 59.85 | 13,650 | 0 | 2017 | | 2025.08.05 | ¸Å¸Å | ´ëÇöÁÖÅÃ(³ªµ¿) | 2 | 54.46 | 8,400 | | 1996 | | 2025.08.04 | Àü¼¼ | ½ºÄ«À̺ô(3µ¿) | 2 | 51.43 | 11,300 | 0 | 2013 | | 2025.08.04 | ¿ù¼¼ | Çö´ëŸ¿î(Cµ¿) | 3 | 56.13 | 3,000 | 60 | 2018 | | 2025.08.03 | ¸Å¸Å | ¿õÁøºô¶ó(´Ùµ¿) | 2 | 80.8 | 9,800 | | 1996 | | 2025.08.03 | ¸Å¸Å | µå¸²ÇϿ콺(Bµ¿) | 3 | 56.2 | 15,000 | | 2014 | | 2025.08.03 | ¸Å¸Å | HERA(¿¡ÀÌ,ºñµ¿) | 3 | 84.48 | 48,500 | | 2024 | | 2025.08.02 | ¸Å¸Å | Çö´ëŸ¿î(Dµ¿) | 2 | 56.1 | 13,300 | | 2018 | | 2025.08.01 | ¸Å¸Å | ¾ÆÀÌÄÉÀ̺ô¸®Áö | 1 | 75.15 | 29,500 | | 2021 | | 2025.07.31 | ¸Å¸Å | ž½ººô(232-1) | 4 | 54.095 | 17,500 | | 2015 | | 2025.07.31 | ¿ù¼¼ | º£½ºÆ®ÇÏÀÓ302µ¿ | 3 | 69 | 4,000 | 75 | 2018 | | 2025.07.31 | Àü¼¼ | ¿¡ÄÚÇÏÀÓ¥° | 4 | 34.2 | 7,500 | 0 | 2011 | | 2025.07.31 | Àü¼¼ | ±×¸°È¨Å¸¿î(105µ¿) | 1 | 58.565 | 16,000 | 0 | 2015 | | 2025.07.30 | ¿ù¼¼ | ¶óÀÓÇϿ콺102µ¿,103µ¿ | 2 | 60.08 | 2,800 | 80 | 2018 | | 2025.07.30 | ¿ù¼¼ | ¿¬¼¼¾ÆÆ®ºô(Bµ¿) | 3 | 56.19 | 2,000 | 50 | 2014 | | 2025.07.29 | ¿ù¼¼ | JWºô | 3 | 18.18 | 800 | 50 | 2019 | | 2025.07.28 | ¿ù¼¼ | À§µåÆÓ¸®½º(102µ¿) | 1 | 56.92 | 1,000 | 65 | 2013 | | 2025.07.28 | ¸Å¸Å | ¸®¹öºô(Aµ¿) | 4 | 55.41 | 25,000 | | 2014 | | 2025.07.26 | ¸Å¸Å | ±×·£µåÇÏÀÓ107µ¿ | 3 | 62.74 | 43,000 | | 2023 | | 2025.07.26 | ¸Å¸Å | Ç®ÇϿ콺Á¦Bµ¿ | 2 | 52.5 | 18,400 | | 2016 | | 2025.07.25 | ¸Å¸Å | HERA(¾¾,µðµ¿) | 2 | 83.57 | 49,500 | | 2024 | | 2025.07.25 | ¿ù¼¼ | Ç϶÷ºô¸®Áö(105µ¿) | 4 | 59.36 | 500 | 50 | 2018 | | 2025.07.25 | ¿ù¼¼ | À§µåÆÓ¸®½º(105µ¿) | 4 | 51.72 | 2,000 | 55 | 2013 | | 2025.07.25 | ¸Å¸Å | ³»½´ºô(103µ¿) | 3 | 36.267 | 22,000 | | 2017 | | 2025.07.25 | ¸Å¸Å | µ¿»ê±×¸°ºôBµ¿ | 2 | 76.31 | 10,300 | | 2002 | | 2025.07.24 | ¸Å¸Å | JWºôDµ¿Eµ¿ | 4 | 52.42 | 23,300 | | 2020 | | 2025.07.23 | ¸Å¸Å | HERA(¿¡ÀÌ,ºñµ¿) | 2 | 84.48 | 49,500 | | 2024 | | 2025.07.23 | ¿ù¼¼ | ´Ãº½Å¸¿î104µ¿ | 2 | 55.4 | 9,800 | 10 | 2008 | | 2025.07.23 | Àü¼¼ | ´ëÁö±×¸°ºô¶ó | 3 | 59.4 | 12,000 | 0 | 1996 | | 2025.07.23 | Àü¼¼ | ´ëÁö±×¸°ºô¶ó | 3 | 59.4 | 12,000 | 0 | 1996 | | 2025.07.23 | ¿ù¼¼ | ¼¿µºô¶ó | 2 | 75.96 | 3,000 | 60 | 1998 | | 2025.07.23 | ¿ù¼¼ | º£¸£µð¿ò(202µ¿) | 3 | 58.4 | 2,000 | 75 | 2018 | | 2025.07.22 | ¸Å¸Å | ´ëÁøºô¶ó | 4 | 75.66 | 9,500 | | 1995 | | 2025.07.22 | ¸Å¸Å | HERA(¾¾,µðµ¿) | 1 | 81.22 | 49,500 | | 2024 | | 2025.07.22 | ¸Å¸Å | Çϸ²ºô¸®Áö(106µ¿) | 4 | 56.71 | 18,900 | | 2018 | | 2025.07.22 | ¸Å¸Å | Çϸ²ºô¸®Áö(106µ¿) | 4 | 56.71 | 19,000 | | 2018 | | 2025.07.20 | ¸Å¸Å | ´ÙÀ̺꾾Ƽ101µ¿ | 3 | 61.38 | 42,800 | | 2024 | | 2025.07.19 | ¸Å¸Å | ÇØ´çȸ¶À»Dµ¿ | 1 | 71.67 | 14,000 | | 2009 | | 2025.07.17 | ¿ù¼¼ | Å©·Î¹Ùºô(101µ¿) | 1 | 54.87 | 800 | 70 | 2014 | | 2025.07.17 | ¸Å¸Å | ÇѾƸ§ºô(°¡µ¿) | 4 | 68.4 | 16,750 | | 2014 | | 2025.07.16 | ¿ù¼¼ | ÃÊ¿ùÆÓ¸®½ºAµ¿ | 4 | 50.96 | 14,000 | 30 | 2011 | | 2025.07.16 | Àü¼¼ | À屺ºô(CDµ¿) | 1 | 51.89 | 9,000 | 0 | 2013 | | 2025.07.16 | ¿ù¼¼ | ¸Þ¸£½Ã¾È | 3 | 55.415 | 2,000 | 55 | 2016 | | 2025.07.15 | ¿ù¼¼ | ¿ìÁÖÆç¸®½º(Bµ¿) | 4 | 50.69 | 2,000 | 58 | 2014 | | 2025.07.15 | ¿ù¼¼ | ¿ìÁÖÆç¸®½º(Bµ¿) | 4 | 50.69 | 2,000 | 58 | 2014 | | 2025.07.15 | Àü¼¼ | ÄÉ·»½Ã¾Æ107µ¿,108µ¿ | 4 | 64.92 | 21,000 | 0 | 2022 | | 2025.07.14 | Àü¼¼ | ÃÊ¿ùÆÓ¸®½ºBµ¿ | 2 | 57.608 | 16,700 | 0 | 2011 | | 2025.07.13 | ¿ù¼¼ | ¼±±¤ºô¶ó(°¡µ¿) | 1 | 75.7 | 2,000 | 80 | 1996 | | 2025.07.12 | ¸Å¸Å | û¸²ÇÏÀÓºôÁ¦101µ¿ | 3 | 50.645 | 13,800 | | 2016 | | 2025.07.11 | ¿ù¼¼ | ¸®Ä¡ºôAµ¿ | 2 | 53.09 | 3,000 | 80 | 2022 | | 2025.07.11 | ¿ù¼¼ | ¸®Ä¡ºôAµ¿ | 2 | 53.09 | 3,000 | 80 | 2022 | | 2025.07.11 | ¸Å¸Å | ½Å¾ÈÆÓ¸®½º(Bµ¿) | 3 | 59.36 | 15,000 | | 2012 | | 2025.07.11 | Àü¼¼ | ÄÉ·»½Ã¾Æ107µ¿,108µ¿ | 4 | 64.92 | 21,000 | 0 | 2022 | | 2025.07.10 | ¿ù¼¼ | Æ÷·¹½ººôCµ¿ | 4 | 76 | 1,000 | 70 | 2009 | | 2025.07.08 | Àü¼¼ | º£¸£µð¿òJÆÓ¸®½º(206µ¿) | 4 | 59.31 | 21,000 | 0 | 2018 | | 2025.07.07 | ¸Å¸Å | ÇØ´çȸ¶À»Bµ¿ | 2 | 74.91 | 12,500 | | 2009 | | 2025.07.07 | ¿ù¼¼ | ¹Ì¸£ÇÏÀÓ | 5 | 65.46 | 2,000 | 100 | 2023 | | 2025.07.07 | ¿ù¼¼ | JWºô | 3 | 21.99 | 1,000 | 53 | 2020 | | 2025.07.07 | Àü¼¼ | ´õÆú¶ó¸®½º(Fµ¿) | 3 | 50.89 | 15,800 | 0 | 2017 | | 2025.07.07 | ¸Å¸Å | µ¿¼ºô¸®Áö101µ¿ | 1 | 64.05 | 17,500 | | 2018 | | 2025.07.06 | ¿ù¼¼ | »ï¼º±×¸°ºô1µ¿ | 3 | 55.3 | 2,000 | 70 | 2013 | | 2025.07.06 | ¿ù¼¼ | »ï¼º±×¸°ºô1µ¿ | 3 | 55.3 | 2,000 | 70 | 2013 | | 2025.07.04 | ¿ù¼¼ | ´ÙÀ̺꾾Ƽ105µ¿ | 1 | 66.12 | 2,000 | 100 | 2022 | | 2025.07.03 | ¿ù¼¼ | ±×¸°È¨Å¸¿îÁ¦204µ¿ | 2 | 58.57 | 3,000 | 60 | 2016 | | 2025.06.30 | ¿ù¼¼ | Çö´ë¹ë¸®Å¸¿î(103µ¿) | 1 | 48.55 | 2,000 | 50 | 2013 | | 2025.06.28 | ¸Å¸Å | µå¸²ÇϿ콺3Â÷(5µ¿) | 4 | 56.2 | 21,500 | | 2016 | | 2025.06.27 | ¿ù¼¼ | JWºô | 3 | 33.485 | 2,000 | 60 | 2019 | | 2025.06.26 | ¸Å¸Å | »ï¼ºÆÄÅ©ºô(103µ¿) | 1 | 58.17 | 16,700 | | 2016 | | 2025.06.26 | ¿ù¼¼ | ÈúÇϿ콺(Bµ¿) | 2 | 59.68 | 2,000 | 60 | 2012 | | 2025.06.25 | ¸Å¸Å | ±×·£µåÇÏÀÓ102µ¿ | 2 | 66.04 | 41,500 | | 2023 | | 2025.06.25 | ¸Å¸Å | ¾Æ½ºÅ׸£(102µ¿) | 2 | 67.08 | 43,000 | | 2022 | | 2025.06.24 | ¸Å¸Å | ¼º¿øÇÏÀÌÃ÷ºô¶ó | 4 | 44.01 | 10,000 | | 2004 | | 2025.06.24 | ¸Å¸Å | ´ÙÀ̺꾾Ƽ102µ¿ | 2 | 68.43 | 25,600 | | 2020 | | 2025.06.23 | ¸Å¸Å | HERA(¾¾,µðµ¿) | 2 | 81.22 | 46,000 | | 2024 | | 2025.06.23 | ¿ù¼¼ | ¾ÆÆ®¸®¿ò(102µ¿) | 4 | 34.69 | 2,000 | 60 | 2014 | | 2025.06.23 | ¿ù¼¼ | ¿¡ÄÚÇÏÀÓ(¥µ) | 1 | 21.78 | 300 | 35 | 2012 | | 2025.06.23 | ¸Å¸Å | °ñµçij½½(Aµ¿) | 1 | 58.95 | 15,300 | | 2014 | | 2025.06.23 | ¿ù¼¼ | ¼³¿ù¶û(103µ¿) | 3 | 58.525 | 16,200 | 7 | 2017 | | 2025.06.21 | Àü¼¼ | º£½ºÆ®Å¸¿î(203µ¿) | 4 | 59.23 | 13,000 | 0 | 2014 | | 2025.06.20 | ¿ù¼¼ | ¾ð´öÀ§ÇϾáÁý(104µ¿) | 2 | 57.27 | 1,000 | 60 | 2013 | | 2025.06.19 | ¸Å¸Å | Áö»êºô¶ó(°¡µ¿) | 4 | 55.26 | 11,500 | | 1994 | | 2025.06.19 | ¿ù¼¼ | ·°Å°Å¸¿îÇϿ콺(107µ¿) | 4 | 74.385 | 3,000 | 83 | 2023 | | 2025.06.18 | ¸Å¸Å | ÇØ´ãºô¸®Áö(Bµ¿) | 3 | 52.54 | 13,800 | | 2017 | | 2025.06.16 | ¸Å¸Å | µ¿»ê¸¶À»(5µ¿) | 3 | 59.86 | 15,300 | | 2015 | | 2025.06.14 | Àü¼¼ | Ǫ¸£¸§ºô(¶óµ¿) | 1 | 54.51 | 11,300 | 0 | 2012 | | 2025.06.14 | Àü¼¼ | Ǫ¸£¸§ºô(¶óµ¿) | 1 | 54.51 | 11,300 | 0 | 2012 | | 2025.06.13 | ¸Å¸Å | ÄÉ·»½Ã¾Æ107µ¿,108µ¿ | 4 | 64.92 | 37,000 | | 2022 | | 2025.06.12 | ¸Å¸Å | Ç®ÇϿ콺Á¦Bµ¿ | 3 | 50.505 | 19,000 | | 2016 | | 2025.06.11 | ¿ù¼¼ | ¿¡ÄÚÇÏÀÓ(3µ¿) | 2 | 18.1 | 500 | 35 | 2012 | | 2025.06.11 | ¿ù¼¼ | µ¿ÁøÅ¸¿î | 3 | 51.79 | 1,000 | 47 | 1993 | | 2025.06.10 | Àü¼¼ | ºñ¾ÆÆ®¸®½º(5µ¿) | 4 | 59.88 | 18,000 | 0 | 2017 | | 2025.06.10 | Àü¼¼ | ºñ¾ÆÆ®¸®½º(5µ¿) | 4 | 59.88 | 18,000 | 0 | 2017 | | 2025.06.09 | ¿ù¼¼ | ±î»çÆç¸®½ºEµ¿ | 3 | 59.4 | 2,000 | 80 | 2016 | | 2025.06.09 | ¿ù¼¼ | ·Ôµ¥ºô¸®Áö(203µ¿) | 3 | 44.15 | 3,000 | 50 | 2014 | | 2025.06.08 | ¸Å¸Å | T.SÅ©¶óÀ̽å²(102µ¿) | 3 | 63.43 | 42,500 | | 2022 | | 2025.06.07 | ¸Å¸Å | Æ÷½ÃÁð | 4 | 53.03 | 15,000 | | 2015 | | 2025.06.07 | ¿ù¼¼ | ´õÆú¶ó¸®½º(Eµ¿) | 4 | 50.855 | 2,000 | 73 | 2017 | | 2025.06.07 | ¸Å¸Å | JWºôDµ¿Eµ¿ | 2 | 52.42 | 23,000 | | 2020 | | 2025.06.06 | ¿ù¼¼ | ÇÑÁÖÀ£½ÃƼ(Dµ¿) | 2 | 56.84 | 1,000 | 70 | 2014 | | 2025.06.06 | ¿ù¼¼ | Çö´ë¹ë¸®Å¸¿î(108µ¿) | 4 | 47.8 | 1,000 | 65 | 2013 | | 2025.06.04 | Àü¼¼ | »êÈ£ÈúÇϿ콺(2µ¿) | 3 | 55.87 | 14,500 | 0 | 2017 | | 2025.06.02 | Àü¼¼ | ±×¸°È¨Å¸¿îÁ¦203µ¿ | 4 | 58.565 | 20,000 | 0 | 2016 | | 2025.06.02 | Àü¼¼ | ±×¸°È¨Å¸¿îÁ¦203µ¿ | 4 | 58.565 | 20,000 | 0 | 2016 | | 2025.06.02 | ¿ù¼¼ | ¿¡ÄÚÇÏÀÓ¥¶ | 3 | 22.06 | 2,000 | 25 | 2012 | | 2025.06.02 | ¿ù¼¼ | ¿¡ÄÚÇÏÀÓ(¥µ) | 1 | 20.16 | 500 | 36 | 2012 | | 2025.06.02 | ¿ù¼¼ | ·°Å°Å¸¿îÇϿ콺(108µ¿) | 4 | 61.5 | 3,000 | 83 | 2023 | | 2025.05.30 | ¸Å¸Å | ÀÌõºô¶ó | 2 | 75.33 | 9,500 | | 1993 | | 2025.05.28 | ¸Å¸Å | »ï¼ºÆÄÅ©ºô101µ¿ | 4 | 67.65 | 10,000 | | 2008 | | 2025.05.27 | ¿ù¼¼ | µå¸²ºô¶ó | 3 | 43.743 | 2,000 | 70 | 2013 | | 2025.05.26 | ¸Å¸Å | º£½ºÆ®ÇÏÀÓ301µ¿ | 4 | 69.42 | 22,700 | | 2018 | | 2025.05.26 | ¿ù¼¼ | ·Ôµ¥ºô¸®Áö(105µ¿) | 1 | 52.07 | 1,000 | 75 | 2014 | | 2025.05.26 | ¿ù¼¼ | µ¿ÁøÅ¸¿î | 1 | 51.79 | 1,000 | 40 | 1993 | | 2025.05.25 | ¿ù¼¼ | º£¸£µð¿òJÆÓ¸®½º(206µ¿) | 1 | 56.66 | 2,000 | 70 | 2018 | | 2025.05.24 | ¿ù¼¼ | ¿¡ÄÚÇÏÀÓ2 | 1 | 20.16 | 300 | 35 | 2012 | | 2025.05.24 | Àü¼¼ | µå¸²ÇϿ콺3Â÷(7µ¿) | 1 | 53.2 | 10,240 | 0 | 2017 | | 2025.05.23 | ¸Å¸Å | JWºô | 3 | 40.24 | 19,000 | | 2020 | | 2025.05.23 | Àü¼¼ | º£¸£µð¿ò(101µ¿) | 2 | 46 | 13,000 | 0 | 2018 | | 2025.05.22 | Àü¼¼ | Áø»õ°ñÀü¿ø¸¶À»(105µ¿) | 1 | 58.41 | 11,000 | 0 | 2014 | | 2025.05.22 | ¸Å¸Å | ¸®Ä¡ºôAµ¿ | 4 | 52.78 | 24,000 | | 2022 | | 2025.05.22 | ¸Å¸Å | µ¿½ÂÆÄÀκô | 2 | 45.825 | 13,800 | | 2016 | | 2025.05.21 | Àü¼¼ | û¿ì¸®Ä¡ºô107µ¿ | 2 | 49.17 | 9,400 | 0 | 2011 | | 2025.05.20 | ¸Å¸Å | ºñ¾ÆÆ®¸®½º(8µ¿) | 1 | 57.99 | 17,300 | | 2016 | | 2025.05.19 | ¸Å¸Å | ±×·£µåÇÏÀÓ104µ¿ | 2 | 69.86 | 41,900 | | 2023 | | 2025.05.19 | ¿ù¼¼ | µ¿ÁøÅ¸¿î | 3 | 51.79 | 1,000 | 51 | 1993 | | 2025.05.17 | ¸Å¸Å | ¶óÆÄ¹Ì¿¡ | 2 | 44.97 | 29,000 | | 2021 | | 2025.05.17 | ¸Å¸Å | ±î»çÆç¸®½º(Bµ¿) | 3 | 62.58 | 20,000 | | 2016 | | 2025.05.16 | Àü¼¼ | ´ë¼ººô¶ó | 3 | 42.3 | 11,000 | 0 | 2013 | | 2025.05.16 | ¿ù¼¼ | ´ëÇöÁÖÅÃ(°¡µ¿) | -1 | 59.68 | 500 | 50 | 1996 | | 2025.05.15 | ¸Å¸Å | º£½ºÆ®Å¸¿î(102µ¿) | 2 | 53.28 | 15,500 | | 2016 | | 2025.05.14 | ¿ù¼¼ | ·Ôµ¥ºô¸®Áö(203µ¿) | 1 | 44.15 | 1,000 | 55 | 2014 | | 2025.05.13 | ¿ù¼¼ | û¿ì¸®Ä¡ºô | 1 | 51.69 | 1,000 | 80 | 2015 | | 2025.05.13 | ¸Å¸Å | ±ÝÈ£ºô¶ó | 1 | 76.29 | 18,000 | | 1993 | | 2025.05.13 | ¸Å¸Å | ´õÇÁ¶óÀÓ106µ¿ | 1 | 75.12 | 29,800 | | 2018 | | 2025.05.13 | Àü¼¼ | (565-0) | 3 | 65.62 | 6,000 | 0 | 2013 | | 2025.05.13 | Àü¼¼ | ·º½ººô(Cµ¿) | 2 | 54.4 | 13,500 | 0 | 2017 | | 2025.05.13 | Àü¼¼ | ·º½ººô(Cµ¿) | 2 | 54.4 | 13,500 | 0 | 2017 | | 2025.05.12 | ¸Å¸Å | ´ÙÀ̺꾾Ƽ106µ¿ | 2 | 66.71 | 39,500 | | 2022 | | 2025.05.12 | ¿ù¼¼ | T.SÅ©¶óÀ̽å² | 1 | 61.465 | 500 | 100 | 2021 | | 2025.05.12 | ¿ù¼¼ | ´ë¼º¸Ç¼Ç | 1 | 54.54 | 1,000 | 63 | 1998 | | 2025.05.12 | ¿ù¼¼ | ¸®º£&ºí¸®½ºAµ¿ | 2 | 39.36 | 3,000 | 40 | 2020 | | 2025.05.12 | ¿ù¼¼ | °ñµçÆ®¸®(Cµ¿) | -1 | 47.18 | 1,000 | 50 | 2017 | | 2025.05.11 | ¸Å¸Å | ¶óÆÄ¹Ì¿¡ | 3 | 44.53 | 30,000 | | 2021 | | 2025.05.10 | ¸Å¸Å | ¶óÆÄ¹Ì¿¡ | 3 | 55.48 | 35,000 | | 2021 | | 2025.05.10 | ¸Å¸Å | JWºô | 2 | 39.99 | 17,400 | | 2019 | | 2025.05.09 | ¿ù¼¼ | ¿¡ÄÚÇÏÀÓ(¥µ) | 4 | 34.56 | 2,000 | 48 | 2012 | | 2025.05.09 | Àü¼¼ | ¿ì¸®°¡Aµ¿ | 3 | 54.83 | 15,000 | 0 | 2015 | | 2025.05.09 | ¸Å¸Å | º£¸£µð¿ò(204µ¿) | 2 | 60.6 | 18,900 | | 2018 | | 2025.05.08 | Àü¼¼ | ·°Å°¾ÆÆ®Èú102µ¿ | 1 | 56.8 | 14,700 | 0 | 2016 | | 2025.05.08 | ¸Å¸Å | ´ë¼ººô¶ó | 3 | 45.07 | 14,000 | | 2013 | | 2025.05.08 | Àü¼¼ | ·Î¾âºô¸®Áö(Dµ¿) | 2 | 59.74 | 10,000 | 0 | 2014 | | 2025.05.08 | ¿ù¼¼ | MJÇϿ콺(104µ¿) | 4 | 53.2 | 1,500 | 65 | 2017 | | 2025.05.07 | ¸Å¸Å | ÆÄ½ºÅÚºô(102µ¿) | 1 | 57.575 | 26,000 | | 2018 | | 2025.05.07 | Àü¼¼ | Àü¿ø¸¶À»(110µ¿) | 4 | 57.42 | 17,000 | 0 | 2015 | | 2025.05.07 | ¸Å¸Å | À§µåÆÓ¸®½º(103µ¿) | 2 | 54.38 | 11,500 | | 2013 | | 2025.05.06 | ¿ù¼¼ | JWºô | 5 | 21.99 | 1,000 | 53 | 2020 | | 2025.05.05 | ¿ù¼¼ | °¡¶÷ºô(Aµ¿) | 2 | 48.18 | 2,000 | 40 | 2017 | | 2025.05.03 | ¿ù¼¼ | Çö´ë¹ë¸®Å¸¿î(102µ¿) | 4 | 31.85 | 1,000 | 50 | 2013 | | 2025.05.01 | ¸Å¸Å | ´ÙÀ̺꾾Ƽ106µ¿ | 4 | 67.19 | 29,400 | | 2021 | | 2025.05.01 | ¸Å¸Å | ÄÉ·»½Ã¾Æ107µ¿,108µ¿ | 2 | 64.92 | 29,500 | | 2022 | | 2025.05.01 | ¸Å¸Å | ÄÉ·»½Ã¾Æ107µ¿,108µ¿ | 2 | 64.92 | 29,500 | | 2022 | | 2025.04.30 | Àü¼¼ | Èú½ºÅ×ÀÌÆ®ÃÊ¿ù¿ª1ºí·Ï | 17 | 84.9636 | 37,000 | 0 | 2024 | | 2025.04.30 | ¸Å¸Å | T.SÅ©¶óÀ̽å² | 1 | 61.465 | 42,500 | | 2021 | | 2025.04.29 | ¸Å¸Å | JWºôDµ¿Eµ¿ | 3 | 18.09 | 10,500 | | 2020 | | 2025.04.29 | Àü¼¼ | ÃÊ¿ù¿ªÇѶóºñ¹ßµð | 8 | 75.3083 | 28,000 | 0 | 2023 | | 2025.04.29 | ¸Å¸Å | JWºô | 3 | 18.18 | 10,500 | | 2019 | | 2025.04.29 | ¸Å¸Å | JWºôDµ¿Eµ¿ | 3 | 18.09 | 10,500 | | 2020 | | 2025.04.28 | ¸Å¸Å | »ïÁ¤ºô¶ó | 2 | 72.93 | 12,900 | | 1997 | | 2025.04.26 | ¸Å¸Å | ¹é»êÀÚÀ̾È103µ¿ | 4 | 66.32 | 36,000 | | 2022 | | 2025.04.26 | ¸Å¸Å | ¾¾¿¤µå¸²C | 1 | 84.78 | 52,000 | | 2022 | | 2025.04.26 | Àü¼¼ | ÃÊ¿ùe-ÆíÇѼ¼»ó2 | 4 | 84.911 | 25,000 | 0 | 2007 | | 2025.04.26 | Àü¼¼ | ÃÊ¿ù·Ôµ¥Ä³½½ | 4 | 74.71 | 31,000 | 0 | 2004 | | 2025.04.25 | Àü¼¼ | ÃÊ¿ù·Ôµ¥³«Ãµ´ë2 | 9 | 84.93 | 28,000 | 0 | 2004 | | 2025.04.24 | ¿ù¼¼ | ±¤ÁÖÃÊ¿ùµ¿±¤¸ð´×½ºÄ«ÀÌ | 13 | 105.4136 | 2,500 | 125 | 2005 | | 2025.04.23 | ¸Å¸Å | ·°Å°¾ÆÆ®Èú(104µ¿) | 4 | 56.72 | 27,000 | | 2016 | | 2025.04.23 | ¸Å¸Å | Áø»õ°ñÀü¿ø¸¶À»(103µ¿) | 2 | 59.41 | 14,000 | | 2013 | | 2025.04.23 | Àü¼¼ | ´ëÁÖÆÄÅ©ºô | 12 | 84.6166 | 24,000 | 0 | 2004 | | 2025.04.23 | Àü¼¼ | ´ëÁÖÆÄÅ©ºô | 12 | 84.6166 | 24,000 | 0 | 2004 | | 2025.04.23 | ¸Å¸Å | ´ÙÀ̺꾾Ƽ106µ¿ | 3 | 66.71 | 37,300 | | 2022 | | 2025.04.23 | ¸Å¸Å | ÀÌõºô¶ó | 2 | 75.33 | 9,500 | | 1993 | | 2025.04.23 | Àü¼¼ | ´ëÁÖÆÄÅ©ºô | 12 | 84.6166 | 24,000 | 0 | 2004 | | 2025.04.23 | Àü¼¼ | ÃÊ¿ù·Ôµ¥Ä³½½ | 11 | 84.93 | 26,000 | 0 | 2004 | | 2025.04.22 | ¿ù¼¼ | ¿ì¸²Çª¸¥¸¶À» | 14 | 136.21 | 3,000 | 100 | 1999 | | 2025.04.22 | Àü¼¼ | ´ëÁÖÇÇ¿À·¹ | 15 | 104.5079 | 25,000 | 0 | 2007 | | 2025.04.22 | Àü¼¼ | ´ëÁÖÇÇ¿À·¹ | 15 | 104.5079 | 25,000 | 0 | 2007 | | 2025.04.22 | ¿ù¼¼ | ´ëÁÖÆÄÅ©ºô | 9 | 84.6166 | 2,000 | 110 | 2004 | | 2025.04.22 | ¸Å¸Å | Áö»êºô¶ó(³ªµ¿) | 4 | 48.56 | 8,000 | | 1994 | | 2025.04.22 | ¸Å¸Å | º£½ºÆ®Å¸¿î | 1 | 66.57 | 17,300 | | 2016 | | 2025.04.21 | ¸Å¸Å | ¿õÁøºô¶ó(³ªµ¿) | 1 | 74.79 | 11,800 | | 1996 | | 2025.04.20 | Àü¼¼ | ÃÊ¿ù¿ªÇѶóºñ¹ßµð | 4 | 75.3083 | 24,150 | 0 | 2023 | | 2025.04.20 | ¸Å¸Å | ´õÆú¶ó¸®½º(Dµ¿) | 2 | 51.22 | 21,000 | | 2017 | | 2025.04.19 | ¿ù¼¼ | º®»êºí·ç¹Ö | 3 | 84.944 | 1,500 | 95 | 2004 | | 2025.04.19 | ¿ù¼¼ | ÃÊ¿ùe-ÆíÇѼ¼»ó1 | 7 | 84.911 | 5,000 | 90 | 2007 | | 2025.04.19 | Àü¼¼ | ÃÊ¿ù·Ôµ¥³«Ãµ´ë2 | 8 | 84.93 | 34,000 | 0 | 2004 | | 2025.04.18 | Àü¼¼ | ¿ì¸²Çª¸¥¸¶À» | 9 | 84.98 | 22,000 | 0 | 1999 | | 2025.04.18 | Àü¼¼ | º®»êºí·ç¹Ö | 7 | 84.944 | 25,000 | 0 | 2004 | | 2025.04.18 | Àü¼¼ | ÃÊ¿ùe-ÆíÇѼ¼»ó1 | 5 | 80.159 | 21,000 | 0 | 2007 | | 2025.04.17 | Àü¼¼ | ÃÊ¿ù¿ª¸ð¾Æ¹Ì·¡µµÆÄÅ©Èú½º | 16 | 84.9191 | 35,000 | 0 | 2020 | | 2025.04.17 | Àü¼¼ | ±¤ÁÖÃÊ¿ù±Ý°¾Æ¹Ì¿ò | 9 | 84.97 | 17,000 | 0 | 2004 | | 2025.04.16 | ¸Å¸Å | ¼¼Áøºô¶ó(102µ¿) | 2 | 51.47 | 13,000 | | 2014 | | 2025.04.16 | Àü¼¼ | ÃÊ¿ùe-ÆíÇѼ¼»ó2 | 11 | 133.991 | 30,000 | 0 | 2007 | | 2025.04.16 | Àü¼¼ | ÃÊ¿ù¿ªÇѶóºñ¹ßµð | 4 | 84.9396 | 24,000 | 0 | 2023 | | 2025.04.16 | ¿ù¼¼ | ÃÊ¿ù¿ªÇѶóºñ¹ßµð | 2 | 75.7994 | 3,000 | 100 | 2023 | | 2025.04.14 | ¿ù¼¼ | ´ëÁÖÇÇ¿À·¹ | 2 | 104.5079 | 5,000 | 80 | 2007 | | 2025.04.14 | Àü¼¼ | ´ëÁÖÆÄÅ©ºô | 1 | 59.9988 | 17,500 | 0 | 2004 | | 2025.04.14 | Àü¼¼ | ÃÊ¿ù¿ª¸ð¾Æ¹Ì·¡µµÆÄÅ©Èú½º | 24 | 84.9191 | 33,000 | 0 | 2020 | | 2025.04.13 | ¿ù¼¼ | ¿ì¸²Çª¸¥¸¶À» | 15 | 59.98 | 3,000 | 70 | 1999 | | 2025.04.13 | ¿ù¼¼ | ÃÊ¿ù¿ªÇѶóºñ¹ßµð | 19 | 84.9396 | 3,000 | 140 | 2023 | | 2025.04.12 | Àü¼¼ | º®»êºí·ç¹Ö | 10 | 84.944 | 20,200 | 0 | 2004 | | 2025.04.12 | Àü¼¼ | ÃÊ¿ù¿ªÇѶóºñ¹ßµð | 16 | 62.6775 | 23,000 | 0 | 2023 | | 2025.04.12 | Àü¼¼ | ÃÊ¿ù¿ªÇѶóºñ¹ßµð | 11 | 75.3083 | 30,000 | 0 | 2023 | | 2025.04.11 | Àü¼¼ | ÃÊ¿ù¿ª¸ð¾Æ¹Ì·¡µµÆÄÅ©Èú½º | 14 | 74.9832 | 27,300 | 0 | 2020 | | 2025.04.10 | Àü¼¼ | ½Ö¿ë´õÇ÷¡Æ¼³Ñ±¤ÁÖ | 12 | 84.9908 | 30,500 | 0 | 2022 | | 2025.04.10 | Àü¼¼ | µµÆò¸®1Â÷¿ì¸²Ç»Àüºô | 1 | 84.573 | 17,500 | 0 | 2002 | | 2025.04.10 | ¿ù¼¼ | µµÆò¸®1Â÷¿ì¸²Ç»Àüºô | 6 | 84.573 | 13,000 | 23 | 2002 | | 2025.04.10 | Àü¼¼ | ÃÊ¿ù¿ª¸ð¾Æ¹Ì·¡µµÆÄÅ©Èú½º | 12 | 84.9191 | 32,000 | 0 | 2020 | | 2025.04.09 | ¸Å¸Å | ¾ð´öÀ§ÇϾáÁý(103µ¿) | 4 | 57.57 | 13,000 | | 2013 | | 2025.04.09 | Àü¼¼ | Èú½ºÅ×ÀÌÆ®ÃÊ¿ù¿ª1ºí·Ï | 14 | 74.9743 | 31,000 | 0 | 2024 | | 2025.04.09 | ¿ù¼¼ | ÃÊ¿ù¿ªÇѶóºñ¹ßµð | 19 | 84.8786 | 10,000 | 105 | 2023 | | 2025.04.08 | Àü¼¼ | ±¤ÁÖÃÊ¿ùµ¿±¤¸ð´×½ºÄ«ÀÌ | 9 | 84.9995 | 21,000 | 0 | 2005 | | 2025.04.08 | Àü¼¼ | ÃÊ¿ù¿ª¸ð¾Æ¹Ì·¡µµÆÄÅ©Èú½º | 7 | 74.9775 | 27,300 | 0 | 2020 | | 2025.04.08 | ¿ù¼¼ | ÃÊ¿ù¿ªÇѶóºñ¹ßµð | 4 | 75.3083 | 5,000 | 110 | 2023 | | 2025.04.07 | ¸Å¸Å | ¹é»êÀÚÀ̾È103µ¿ | 2 | 66.32 | 26,000 | | 2022 | | 2025.04.07 | Àü¼¼ | º®»êºí·ç¹Ö | 2 | 84.944 | 25,000 | 0 | 2004 | | 2025.04.07 | Àü¼¼ | ÃÊ¿ù¿ª¸ð¾Æ¹Ì·¡µµÆÄÅ©Èú½º | 16 | 84.9995 | 32,800 | 0 | 2020 | | 2025.04.07 | Àü¼¼ | ÃÊ¿ù¿ªÇѶóºñ¹ßµð | 1 | 75.3083 | 30,000 | 0 | 2023 | | 2025.04.07 | Àü¼¼ | ÃÊ¿ù·Ôµ¥³«Ãµ´ë2 | 11 | 74.71 | 29,000 | 0 | 2004 | | 2025.04.07 | ¸Å¸Å | ´Ùºñ³ª208µ¿ | 2 | 60.83 | 33,000 | | 2022 | | 2025.04.04 | Àü¼¼ | ÃÊ¿ù¿ªÇѶóºñ¹ßµð | 11 | 84.8786 | 29,400 | 0 | 2023 | | 2025.04.04 | ¿ù¼¼ | Èú½ºÅ×ÀÌÆ®ÃÊ¿ù¿ª1ºí·Ï | 2 | 84.9436 | 3,000 | 140 | 2024 | | 2025.04.04 | ¿ù¼¼ | ÃÊ¿ù¿ª¸ð¾Æ¹Ì·¡µµÆÄÅ©Èú½º | 22 | 84.9995 | 10,000 | 107 | 2020 | | 2025.04.03 | ¿ù¼¼ | ¿ì¸²Çª¸¥¸¶À» | 7 | 137.92 | 15,000 | 75 | 1999 | | 2025.04.03 | Àü¼¼ | µµÆò¸®1Â÷¿ì¸²Ç»Àüºô | 13 | 84.573 | 20,000 | 0 | 2002 | | 2025.04.03 | Àü¼¼ | ±¤ÁÖÃÊ¿ùµ¿±¤¸ð´×½ºÄ«ÀÌ | 12 | 84.9995 | 21,000 | 0 | 2005 | | 2025.04.02 | ¿ù¼¼ | ÄھƷçÇÞºû¸¶À» | 13 | 84.93 | 2,000 | 100 | 2000 | | 2025.04.02 | ¿ù¼¼ | ÄھƷçÇÞºû¸¶À» | 12 | 84.76 | 10,000 | 40 | 2000 | | 2025.04.02 | ¿ù¼¼ | ÄھƷçÇÞºû¸¶À» | 12 | 84.76 | 10,000 | 40 | 2000 | | 2025.04.02 | ¿ù¼¼ | ±¤ÁÖÃÊ¿ù±Ý°¾Æ¹Ì¿ò | 9 | 84.97 | 2,000 | 75 | 2004 | | 2025.04.01 | Àü¼¼ | ÃÊ¿ù¿ªÇѶóºñ¹ßµð | 15 | 75.7994 | 24,100 | 0 | 2023 | | 2025.04.01 | ¸Å¸Å | ¶óÆÄ¹Ì¿¡ | 2 | 66.4 | 37,000 | | 2021 | | 2025.02.28 | Àü¼¼ | û¸²ÇÏÀÓºôÁ¦103µ¿ | 1 | 73.85 | 17,500 | 0 | 2016 | | 2025.02.28 | Àü¼¼ | û¸²ÇÏÀÓºôÁ¦103µ¿ | 1 | 73.85 | 17,200 | 0 | 2016 | | 2025.02.28 | ¸Å¸Å | »ï¼ºÅ¸¿î(102µ¿) | 4 | 60.98 | 25,000 | | 2018 | | 2025.02.28 | ¿ù¼¼ | Çö´ëŸ¿îAµ¿ | 4 | 57.81 | 3,000 | 55 | 2020 | | 2025.02.28 | ¿ù¼¼ | MJÇϿ콺(104µ¿) | 3 | 53.2 | 3,000 | 50 | 2017 | | 2025.02.27 | ¿ù¼¼ | º¸À̽ººô | 4 | 18.47 | 500 | 38 | 2012 | | 2025.02.27 | ¿ù¼¼ | ´õÆú¶ó¸®½º2Â÷2µ¿ | 2 | 30.28 | 1,000 | 70 | 2018 | | 2025.02.27 | ¸Å¸Å | Á¤¿ìºô¶óAµ¿ | 3 | 46.95 | 6,900 | | 1994 | | 2025.02.26 | Àü¼¼ | ¶óÀÓÇϿ콺(202µ¿) | 3 | 48.78 | 12,800 | 0 | 2015 | | 2025.02.26 | ¸Å¸Å | ·Ôµ¥ºô¸®Áö(202µ¿) | 4 | 52.25 | 13,000 | | 2014 | | 2025.02.25 | ¿ù¼¼ | À§µåÆÓ¸®½º(102µ¿) | 1 | 56.92 | 1,000 | 65 | 2013 | | 2025.02.25 | ¸Å¸Å | ÇØ´çȸ¶À»Eµ¿ | 2 | 70.35 | 13,000 | | 2010 | | 2025.02.24 | Àü¼¼ | ¸í¼ºÇÏÀÌÃ÷(205µ¿) | 1 | 57.06 | 16,000 | 0 | 2017 | | 2025.02.24 | ¿ù¼¼ | ¿¡ÄÚÇÏÀÓ(3µ¿) | 3 | 21.6 | 500 | 35 | 2012 | | 2025.02.24 | ¸Å¸Å | ´õÇÁ¶óÀÓ108µ¿ | 1 | 72.45 | 22,000 | | 2018 | | 2025.02.22 | ¸Å¸Å | ¿õÁøºô¶ó(°¡µ¿) | 1 | 58.89 | 9,900 | | 1996 | | 2025.02.22 | ¿ù¼¼ | ´ëÇöÁÖÅÃ(³ªµ¿) | 1 | 54.46 | 1,000 | 55 | 1996 | | 2025.02.21 | ¿ù¼¼ | ¿ìÁÖÆç¸®½º | 2 | 74.7 | 2,500 | 70 | 2011 | | 2025.02.21 | ¿ù¼¼ | ¿ì¸®°¡Aµ¿ | 2 | 40.88 | 2,000 | 55 | 2015 | | 2025.02.21 | Àü¼¼ | º£¸£µð¿ò200¸®ºñ¿¡ | 3 | 56.04 | 14,000 | 0 | 2018 | | 2025.02.20 | ¿ù¼¼ | µå¸²ºô¶ó | 3 | 43.743 | 1,000 | 75 | 2013 | | 2025.02.20 | Àü¼¼ | µå¸²ÇϿ콺3Â÷(5µ¿) | 4 | 56.2 | 15,600 | 0 | 2016 | | 2025.02.20 | ¸Å¸Å | ÇØ´ãºô¸®Áö(Bµ¿) | 3 | 52.54 | 14,000 | | 2017 | | 2025.02.19 | ¿ù¼¼ | ´Ãº½Å¸¿î104µ¿ | 3 | 55.4 | 1,000 | 70 | 2008 | | 2025.02.19 | ¸Å¸Å | ·Ôµ¥ºô¸®Áö(202µ¿) | 1 | 53.31 | 12,000 | | 2014 | | 2025.02.19 | ¿ù¼¼ | ±×¸°ºô¶ó | 2 | 58.71 | 1,000 | 57 | 2012 | | 2025.02.18 | ¸Å¸Å | ¹é»êÀÚÀ̾È102µ¿ | 2 | 65.42 | 28,000 | | 2022 | | 2025.02.17 | ¸Å¸Å | µ¿¼ºô¸®Áö101µ¿ | 1 | 64.05 | 18,300 | | 2018 | | 2025.02.16 | ¿ù¼¼ | ¹ÌÁÖ¸Ç¼Ç | 2 | 84.75 | 2,000 | 60 | 1999 | | 2025.02.15 | ¿ù¼¼ | Å©·Î¹Ùºô(101µ¿) | 2 | 51.47 | 2,000 | 60 | 2014 | | 2025.02.15 | Àü¼¼ | º£½ºÆ®Å¸¿î(202µ¿) | 3 | 51.09 | 10,000 | 0 | 2014 | | 2025.02.15 | Àü¼¼ | º£½ºÆ®Å¸¿î(202µ¿) | 3 | 51.09 | 10,000 | 0 | 2014 | | 2025.02.15 | Àü¼¼ | º£½ºÆ®Å¸¿î(202µ¿) | 3 | 51.09 | 10,000 | 0 | 2014 | | 2025.02.13 | ¸Å¸Å | µå¸²ÇϿ콺(Aµ¿) | 3 | 56.2 | 15,000 | | 2014 | | 2025.02.13 | ¿ù¼¼ | µå¸²ÇϿ콺3Â÷(7µ¿) | 1 | 53.05 | 3,000 | 67 | 2017 | | 2025.02.13 | ¿ù¼¼ | µå¸²ÇϿ콺3Â÷(7µ¿) | 1 | 53.05 | 3,000 | 67 | 2017 | | 2025.02.12 | Àü¼¼ | Å©·Î¹Ùºô(102µ¿) | 3 | 52.2 | 22,000 | 0 | 2014 | | 2025.02.11 | ¿ù¼¼ | ·¹Áö´ø½º¿ø | 2 | 18.74 | 600 | 38 | 2018 | | 2025.02.11 | ¸Å¸Å | ±î»çÆç¸®½º(Bµ¿) | 3 | 64.44 | 20,000 | | 2016 | | 2025.02.10 | Àü¼¼ | ·°Å°¾ÆÆ®Èú103µ¿ | 4 | 57.09 | 13,000 | 0 | 2016 | | 2025.02.10 | Àü¼¼ | û¿ìŸ¿î(101µ¿) | 2 | 59.58 | 14,500 | 0 | 2012 | | 2025.02.10 | Àü¼¼ | »ï¼ºÅ¸¿î(206µ¿) | 4 | 56.24 | 25,000 | 0 | 2018 | | 2025.02.09 | Àü¼¼ | ±×·£µåÇÏÀÓ107µ¿ | 2 | 62.74 | 18,000 | 0 | 2023 | | 2025.02.08 | ¿ù¼¼ | ±×·£µåÇÏÀÓ104µ¿ | 3 | 69.86 | 1,500 | 90 | 2023 | | 2025.02.08 | ¿ù¼¼ | ¸í¼ººô | 4 | 40.89 | 2,000 | 50 | 2017 | | 2025.02.08 | Àü¼¼ | ´õÆú¶ó¸®½º2Â÷(3µ¿) | 1 | 52.49 | 16,000 | 0 | 2018 | | 2025.02.08 | ¿ù¼¼ | JWºôDµ¿Eµ¿ | 3 | 48.24 | 2,000 | 65 | 2020 | | 2025.02.07 | ¸Å¸Å | ´ÙÀÎ¾ÆÆ®Èú | 4 | 56.37 | 16,000 | | 2017 | | 2025.02.06 | ¿ù¼¼ | ¿õÁøºô¶ó(³ªµ¿) | 2 | 74.79 | 1,000 | 60 | 1996 | | 2025.02.06 | ¸Å¸Å | ¹é»êÀÚÀ̾È102µ¿ | 2 | 65.42 | 28,000 | | 2022 | | 2025.02.06 | ¿ù¼¼ | Çö´ë¹ë¸®Å¸¿î(102µ¿) | 1 | 50.29 | 3,000 | 55 | 2013 | | 2025.02.05 | ¸Å¸Å | ´ÙÀÎ¾ÆÆ®Èú | 2 | 56.49 | 13,500 | | 2017 | | 2025.02.05 | ¿ù¼¼ | ¿¡ÄÚÇÏÀÓ(3µ¿) | 4 | 20.16 | 500 | 35 | 2012 | | 2025.02.04 | ¸Å¸Å | û¿ìŸ¿î(101µ¿) | 4 | 59.58 | 18,000 | | 2012 | | 2025.02.04 | ¿ù¼¼ | ³ªºô·¹¶ó(402µ¿) | 1 | 58.43 | 2,000 | 85 | 2021 | | 2025.02.02 | ¿ù¼¼ | µå¸²ÇϿ콺3Â÷(3µ¿) | 1 | 76.37 | 17,000 | 6 | 2016 | | 2025.02.01 | Àü¼¼ | ´ÙÀÎ¾ÆÆ®Èú | 2 | 58.59 | 12,000 | 0 | 2017 | | 2025.01.31 | ¿ù¼¼ | ·°Å°ÇϿ콺(109µ¿) | 4 | 61.5 | 2,500 | 86 | 2023 | | 2025.01.31 | ¿ù¼¼ | Çö´ëº§¸®Å¸¿î(115µ¿) | 4 | 59.78 | 2,800 | 60 | 2015 | | 2025.01.30 | ¿ù¼¼ | »ï¼º±×¸°ºô1µ¿ | 4 | 55.3 | 500 | 50 | 2013 | | 2025.01.25 | Àü¼¼ | ¼¼ÁøÅ¸¿î(106µ¿) | 4 | 36.63 | 8,500 | 0 | 2014 | | 2025.01.25 | Àü¼¼ | ³ªÀÎÆÓ¸®½º | 2 | 50.75 | 14,000 | 0 | 2018 | | 2025.01.24 | ¸Å¸Å | ºñ¾ÆÆ®¸®½º(5µ¿) | 3 | 58.44 | 21,000 | | 2017 | | 2025.01.24 | ¿ù¼¼ | »ï¼ºÅ¸¿î(206µ¿) | 4 | 56.24 | 12,000 | 40 | 2018 | | 2025.01.24 | Àü¼¼ | µ¿½ÂÆÄÀκô | 2 | 45.825 | 12,200 | 0 | 2016 | | 2025.01.23 | ¿ù¼¼ | ¿¡ÄÚÇÏÀÓ(¥µ) | 3 | 21.78 | 500 | 35 | 2012 | | 2025.01.23 | ¿ù¼¼ | ¿¡ÄÚÇÏÀÓ(¥µ) | 3 | 21.78 | 500 | 36 | 2012 | | 2025.01.23 | ¿ù¼¼ | À屺ºô(CDµ¿) | 1 | 51.89 | 2,000 | 65 | 2013 | | 2025.01.22 | ¿ù¼¼ | ºñ¾ÆÆ®¸®½º(7µ¿) | 2 | 57.99 | 2,000 | 80 | 2016 | | 2025.01.22 | ¿ù¼¼ | ¼±±¤ºô¶ó(³ªµ¿) | 4 | 75.78 | 2,000 | 70 | 1996 | | 2025.01.22 | ¸Å¸Å | »ï¼º·Î¾â¸Ç¼Ç(Bµ¿) | 1 | 47.58 | 10,300 | | 2012 | | 2025.01.21 | ¸Å¸Å | ºñ¾ÆÆ®¸®½º(3µ¿) | 3 | 57.99 | 15,000 | | 2017 | | 2025.01.20 | ¿ù¼¼ | ÇÑ¿ïÀü¿øÅ¸¿î302µ¿ | 1 | 84.72 | 300 | 30 | 2011 | | 2025.01.19 | Àü¼¼ | ¿¬¼¼¾ÆÆ®ºô(Bµ¿) | 1 | 55 | 11,600 | 0 | 2014 | | 2025.01.18 | ¿ù¼¼ | ÃÊ¿ùÆÓ¸®½ºBµ¿ | 3 | 68.746 | 15,700 | 7 | 2011 | | 2025.01.18 | ¸Å¸Å | Ç®ÇϿ콺Á¦Bµ¿ | 2 | 50.505 | 20,000 | | 2016 | | 2025.01.18 | ¸Å¸Å | ¸ÞÁ¾(304µ¿) | 4 | 60.2 | 28,000 | | 2021 | | 2025.01.16 | ¸Å¸Å | ¾¾¿¤µå¸²C | 3 | 84.94 | 52,000 | | 2022 | | 2025.01.15 | ¸Å¸Å | ¹é»êÀÚÀ̾È104µ¿ | 1 | 60.42 | 28,000 | | 2022 | | 2025.01.13 | ¸Å¸Å | û¿ìŸ¿î(101µ¿) | 2 | 59.58 | 19,500 | | 2012 | | 2025.01.13 | Àü¼¼ | ºñ¾ÆÆ®¸®½º(5µ¿) | 4 | 59.88 | 17,000 | 0 | 2017 | | 2025.01.13 | ¸Å¸Å | ´ëÇöºô¶ó | 2 | 82.29 | 12,000 | | 1997 | | 2025.01.09 | ¿ù¼¼ | ¼¼ÁøÅ¸¿î(104µ¿) | 3 | 35.96 | 1,000 | 55 | 2014 | | 2025.01.09 | ¸Å¸Å | ¼±±¤ºô¶ó(³ªµ¿) | 4 | 75.78 | 8,000 | | 1996 | | 2025.01.07 | ¸Å¸Å | »ï¼º·Î¾â¸Ç¼Ç(Bµ¿) | 1 | 47.58 | 10,300 | | 2012 | | 2025.01.06 | Àü¼¼ | ¼¼ÁøÅ¸¿î(106µ¿) | 1 | 34.2 | 8,500 | 0 | 2014 | | 2025.01.06 | Àü¼¼ | ¼¼ÁøÅ¸¿î(106µ¿) | 1 | 34.2 | 8,500 | 0 | 2014 | | 2025.01.06 | Àü¼¼ | ±×¸°È¨Å¸¿îÁ¦205µ¿ | 4 | 58.565 | 14,000 | 0 | 2016 | | 2025.01.06 | Àü¼¼ | ±×¸°È¨Å¸¿îÁ¦205µ¿ | 4 | 58.565 | 14,000 | 0 | 2016 | | 2025.01.04 | Àü¼¼ | Å©·Î¹Ùºô(102µ¿) | 3 | 52.2 | 15,000 | 0 | 2014 | | 2025.01.04 | ¸Å¸Å | ·Ôµ¥ºô¸®Áö(202µ¿) | 3 | 53.18 | 12,500 | | 2014 | | 2025.01.01 | ¿ù¼¼ | JWºô | 4 | 45.82 | 2,000 | 70 | 2020 |
|
|
|
 |
ÀÓÂ÷³»¿ª |
[¹è´ç¿ä±¸Á¾±âÀÏ : 2025/09/15] |
|
|
| ÀÓÂ÷ÀÎ |
Á¡À¯°ü°è |
ÀüÀÔÀÏÀÚ |
È®Á¤ÀÏÀÚ |
¹è´ç¿ä±¸ÀÏ |
º¸Áõ±Ý/Â÷ÀÓ |
´ëÇ׿ä°Ç |
ºñ°í |
| ¸Å°¢±âÀÏ 7ÀÏÀü¿¡ ¸Å°¢¹°°Ç¸í¼¼¼°¡ °ø°íµÇ¿À´Ï È®ÀÎÇϽñ⠹ٶø´Ï´Ù. |
| ¿ìOO |
ÀüºÎ(¹æ3Ä) |
2024.07.10. |
2024.06.19. |
2025.9.11. |
20,000,000 [¿ù]700,000 |
X |
2024.07.19.ºÎÅÍ2026.07.19.±îÁö |
| ÃÖOO |
ÀüºÎ |
2022.3.25. |
2022.3.2. |
|
240,000,000
|
O |
|
| ¸Å°¢¹°°Ç¸í¼¼ ºñ°í |
ÃÖÁ¾¿î:ÁÖÅÃÀÓÂ÷±Çµî±â±ÇÀÚ·Î ÁÖÅÃÀÓÂ÷±Çµî±âÀÏÀº 2024.4.2.ÀÓ.
Çѱ¹ÁÖÅñÝÀ¶°ø»ç : °æ¸Å½Åûä±ÇÀÚ·Î ÀÓÂ÷ÀÎ ÃÖÁß¿îÀÇ ÀÓÂ÷º¸Áõ±Ý¹Ýȯä±Ç ¾ç¼öÀÎÀÓ(´ëÇ×·Â ¹× ¿ì¼±º¯Á¦±Ç ½Â°è) |
|
|
|
 |
Áö¿ªºÐ¼® |
|
|
|
|
| ÁöÇÏö |
|
Çб³ |
|
| °ü°ø¼ |
|
| ¹ý¿ø |
¼ö¿øÁö¹æ¹ý¿ø ¼º³²Áö¿ø (131-43)°æ±âµµ ¼º³²½Ã ¼öÁ¤±¸ »ê¼º´ë·Î 451 (´Ü´ëµ¿) ´ëÇ¥ : 031)737-1558, ¾ß°£ : 031)737-1120 ¼º³²½Ã, ±¤ÁÖ½Ã, Çϳ²½Ã |
| µî±â¼Ò |
¼ö¿øÁö¹æ¹ý¿ø ¼º³²Áö¿ø ±¤ÁÖµî±â¼Ò (´ëÇ¥:1544-0773, ÆÑ½º:(031)765-2388, °æ±âµµ ±¤Áֽà ÇàÁ¤Å¸¿î·Î 49-15 (¼ÛÁ¤µ¿ 346-4)) |
| ¼¼¹«¼ |
°æ±â±¤ÁÖ¼¼¹«¼ (´ëÇ¥:031-880-92, ÆÑ½º:031-769-0417, °æ±âµµ ±¤Áֽà ¹®È·Î 127) |
|
|
|
 |
¹ý¿ø ¹°°ÇÀÚ·á ¿ä¾à |
|
|
|
|
| ¼Ò¸êµÇÁö ¾Ê´Â µî±âºÎ±Ç¸® |
À»±¸ 4¹ø ÀÓÂ÷±Çµî±â(ÀÓ´ëÂ÷º¸Áõ±Ý 240,000,000¿ø, ÀüÀÔÀÏÀÚ 2022.3.25., È®Á¤ÀÏÀÚ 2022.3.2.)°¡ ÀÖÀ¸¹Ç·Î ¹è´ç¿¡¼ Àü¾× º¯Á¦µÇ
Áö ¾Æ´ÏÇϸé Àܾ×Àº ¸Å¼öÀο¡°Ô ÀμöµÉ ¼ö ÀÖÀ½ |
| ¼³Á¤µÈ °ÍÀ¸·Î º¸´Â Áö»ó±Ç |
ÇØ´ç»çÇ×¾øÀ½ |
| ¹ý¿øÀÚ·á Æ¯ÀÌ»çÇ× |
|
| ¿©ÀÇÁÖ°æ¸Å Á¶¾ð ÇѸ¶µð |
ÀÌ ºÎµ¿»êÀÇ ÀÔÂû¹ý¿øÀº ¼ö¿øÁö¹æ¹ý¿ø ¼º³²Áö¿øÀÔ´Ï´Ù.
ÀÔÂûÀÏÀº 2026-04-06ÀÔ´Ï´Ù.
ÀÔÂû½Ã°£Àº ~11:10ÀÔ´Ï´Ù. ÀÌ ¹ý¿ø¿¡´Â ¿ì¸®ÀºÇàÀÌ ÀÔÁ¡Çϰí ÀÖ½À´Ï´Ù.
|
¼±¼øÀ§ ÀÓÂ÷±Çµî±â°¡ µÇ¾î ÀÖ½À´Ï´Ù ´ëÇ×·ÂÀÌ ÀÖ´Â ¼±¼øÀ§ ÀÓÂ÷±Çµî±â ±Ç¸®ÀÚ°¡ ¹è´çÀ» Àü¾× ¹ÞÁö ¸øÇÒ °æ¿ì ³«ÂûÀÚ°¡ ÀÜ¿© º¸Áõ±ÝÀ» ÀμöÇØ¾ßÇÏ´Â °æ¿ìµµ ÀÖ½À´Ï´Ù. |
|
|
| Åë°è±â°£ |
³«Âû¹°°Ç¼ö |
Æò±Õ°¨Á¤°¡ |
Æò±Õ³«Âû°¡ |
³«Âû°¡À² |
À¯ÂûȽ¼ö |
| 3°³¿ù |
0°Ç |
0¿ø |
0¿ø |
0% |
0ȸ |
| 6°³¿ù |
1°Ç |
143,000,000¿ø |
80,561,200¿ø |
56% |
2ȸ |
| 12°³¿ù |
2°Ç |
230,000,000¿ø |
152,816,150¿ø |
64% |
1.5ȸ |
|
|
|
|
|
|
 |
|