|
|
| ¼ÒÀçÁö |
°æ±âµµ ¾È»ê½Ã ´Ü¿ø±¸ ¼±ºÎµ¿ 1126-4 ¿ùµåºô¶ó 4Ãþ402È£
|
|
| »ç°Ç¹øÈ£ |
2025 Ÿ°æ 833 |
¹°°Ç¹øÈ£ |
1
|
¹°°Ç¿ëµµ |
´Ù¼¼´ë,ºô¶ó |
| °¨Á¤Æò°¡¾× |
122,000,000¿ø |
°æ¸Å´ë»ó |
ÅäÁö ¹× °Ç¹°Àϰý ¸Å°¢ |
ÁøÇà»óÅ |
½Å°Ç |
| ÃÖÀúÀÔÂû°¡ |
(100%) 122,000,000¿ø
|
°Ç¹°¸éÀû |
50.60§³(15.30Æò) |
ÀÔÂû±âÀÏ |
2026.04.07(È) 10:30
(ÀÔÂû 12ÀÏÀü)
|
| ÀÔÂûº¸Áõ±Ý |
(10%) 12,200,000¿ø |
ÅäÁö¸éÀû |
25.19§³(7.62Æò)
|
À¯ÂûȽ¼ö |
0ȸ |
| ÀÔÂû¹ý¿ø |
¼ö¿øÁö¹æ¹ý¿ø ¾È»êÁö¿ø |
°æ¸Å¹æ¹ý |
|
¹°°ÇÁ¶È¸¼ö |
¿À´Ã: 6ȸ [´©Àû: 12ȸ]
|
| ¸»¼Ò±âÁØ | ÃÖ¼±¼øÀ§ ¼³Á¤ : 2022.02.15.¾Ð·ù ¼³Á¤
|
|
|
|
|
|
|
|
|
|
|
°æ¸Å´ë»ó ¸ñ·Ï
|
|
| ±¸ºÐ |
¸ñ·Ï |
ÁÖ¼Ò |
±¸Á¶/¿ëµµ/´ëÁö±Ç |
ºñ°í |
´ëÁö±Ç
|
1 |
¼±ºÎµ¿ 1126-4 |
248.6ºÐÀÇ 25.193 |
25.193§³ (7.62Æò)
|
°Ç¹°
|
1 |
¼±ºÎµ¿ 1126-4 |
4Ãþ402È£ ö±ÙÄÜÅ©¸®Æ®Á¶ |
50.595§³ (15.30Æò)
|
|
|
|
2026-04-07
ÁøÇà
|
(100%)
122,000,000¿ø
|
|
|
|
|
|
°¨Á¤Æò°¡¼ ¿ä¾à |
|
[À§Ä¡/ÁÖÀ§È¯°æ]
º»°ÇÀº °æ±âµµ ¾È»ê½Ã ´Ü¿ø±¸ ¼±ºÎµ¿ ¼ÒÀç ""¼Çؼ± ´Þ¹Ì¿ª"" ³²µ¿Ãø Àαٿ¡ À§Ä¡Çϸç ÁÖº¯Àº ±Ù¸°»ýȰ½Ã¼³, ´Ù¼¼´ëÁÖÅà µîÀÌ È¥ÀçÇÏ´Â ±âÁ¸ÁÖ°ÅÁö´ëÀÓ.
[±³Åë»óȲ]
º»°Ç±îÁö Â÷·®ÁøÃâÀÔÀÌ °¡´ÉÇϸç Àα٠³ë¼±¹ö½ºÁ¤·ùÀå ¹× ÁöÇÏö¿ª±îÁöÀÇ °Å¸® µîÀ» °í·Á½Ã ´ëÁß±³Åëȯ°æÀº º¸ÅëÀÓ.
[°Ç¹°±¸Á¶]
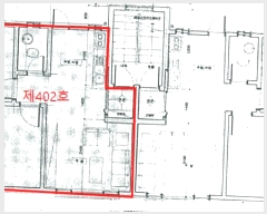
ö±ÙÄÜŪ¸®Æ®Á¶ Æò½º¶óºêÁöºØ 4Ãþ °Ç(»ç¿ë½ÂÀÎ: 2002.05.24)³»,
Á¦4Ãþ Á¦402È£·Î,
¿Üº®: µ¹ºÙÀÓ¸¶°¨ µî,
³»??: º®Áöµµ¹è ¹× ŸÀϸ¶°¨ µî,
âȣ: ÇÏÀ̼¦½Ãâȣ µî ÀÓ.
[ÀÌ¿ë»óÅÂ]
´Ù¼¼´ëÁÖÅÃ(¹æ2, ÁÖ¹æ ¹× °Å½Ç, ÈÀå½Ç)À¸·Î ÀÌ¿ëÁßÀÓ.
[¼³ºñ³»¿ª]
±âº»±Þ¹è¼ö ¹× À§»ý¼³ºñ, µµ½Ã°¡½º¼³ºñ µîÀ» ±¸ºñÇϰí ÀÖÀ½.
[ÅäÁöÇü»ó/ÀÌ¿ë»óÅÂ]
ÀÎÁ¢ÅäÁö¿Í µî°íÆòźÇÑ ¼¼ÀåÇüÀÇ ÅäÁö·Î ´Ù¼¼´ëÁÖÅðǺÎÁö·Î ÀÌ¿ëÁßÀÓ.
7)ÀÎÁ¢ µµ·Î»óŵî
º»°Ç µ¿ÃøÀ¸·Î ³ëÆø ¾à 6m ³»¿ÜÀÇ ¾Æ½ºÆÈÆ®Æ÷Àåµµ·Î¿¡ Á¢ÇÔ.
[ÅäÁöÀÌ¿ë°èȹ]
µµ½ÃÁö¿ª , Á¦1Á¾ÀϹÝÁÖ°ÅÁö¿ª , ½Ã°¡Áö°æ°üÁö±¸(ÀϹÝ) , ¼Ò·Î3·ù(Æø 8m ¹Ì¸¸)(Á¢ÇÕ)
°¡Ãà»çÀ°Á¦Çѱ¸¿ª£¼°¡ÃàºÐ´¢ÀÇ °ü¸® ¹× À̿뿡 °üÇÑ ¹ý·ü£¾, »ó´ëº¸È£±¸¿ª(»ý°¢À»Å°¿ì´ÂÀ¯Ä¡¿ø)£¼±³À°È¯°æ º¸È£¿¡ °üÇÑ ¹ý·ü£¾, ´ë±â°ü¸®±Ç¿ª£¼´ë±â°ü¸®±Ç¿ªÀÇ ´ë±âȯ°æ°³¼±¿¡ °üÇÑ Æ¯º°¹ý£¾, µµ½Ã±³ÅëÁ¤ºñÁö¿ª£¼µµ½Ã±³ÅëÁ¤ºñÃËÁø¹ý£¾, »ýȰ¼ÒÀ½Áøµ¿°ü¸®Áö¿ª£¼¼ÒÀ½Áøµ¿°ü¸®¹ý£¾, ¼ºÀå°ü¸®±Ç¿ª£¼¼öµµ±ÇÁ¤ºñ°èȹ¹ý£¾ ÀÓ.
[°øºÎ¿ÍÀÇ Â÷ÀÌ]
-
[Âü°í»çÇ×]
ÀÓ´ë°ü°è´Â ¹Ì»óÀÓ. |
|
|
°ÇÃ๰ÇöȲ |
|
|
|
| ¼ÒÀçÁö |
°æ±âµµ ¾È»ê½Ã ´Ü¿ø±¸ ¼±ºÎµ¿ 1126-4¹øÁö |
| ´ëÁö¸éÀû |
248.6§³(75.33Æò) |
¿¬¸éÀû |
541.98§³(164.24Æò) |
ÁÖ¿ëµµ |
°øµ¿ÁÖÅà |
| °ÇÃà¸éÀû |
147.25§³(44.62Æò) |
¿ëÀû·ü»êÁ¤¿¬¸éÀû |
541.98§³(164.24Æò) |
Âø°øÀÏÀÚ |
2002.05.19 |
| °ÇÆóÀ² |
59.23% |
¿ëÀû·ü |
218.01% |
»ç¿ë½ÂÀÎÀÏÀÚ |
2002.05.24 |
| Áö»óÃþ¼ö |
4Ãþ |
ÁöÇÏÃþ¼ö |
|
±¸Á¶ |
ö±ÙÄÜÅ©¸®Æ®±¸Á¶ |
°ÇÃ๰Ãþº°ÇöȲ [º¸±â]| Ãþº° | ±¸Á¶ | ¿ëµµ | ¸éÀû | | 1Ãþ | ö±ÙÄÜÅ©¸®Æ®±¸Á¶ | ´Ù¼¼´ëÁÖÅÃ(2) | 147.25§³ (44.62Æò) | | 2Ãþ | ö±ÙÄÜÅ©¸®Æ®±¸Á¶ | ´Ù¼¼´ëÁÖÅÃ(2) | 142.81§³ (43.28Æò) | | 3Ãþ | ö±ÙÄÜÅ©¸®Æ®±¸Á¶ | ´Ù¼¼´ëÁÖÅÃ(2) | 142.81§³ (43.28Æò) | | 4Ãþ | ö±ÙÄÜÅ©¸®Æ®±¸Á¶ | ´Ù¼¼´ëÁÖÅÃ(2) | 109.11§³ (33.06Æò) |
|
|
|
|
|
|
 |
ÀÓÂ÷³»¿ª |
[¹è´ç¿ä±¸Á¾±âÀÏ : 2025/11/24] |
|
|
| ÀÓÂ÷ÀÎ |
Á¡À¯°ü°è |
ÀüÀÔÀÏÀÚ |
È®Á¤ÀÏÀÚ |
¹è´ç¿ä±¸ÀÏ |
º¸Áõ±Ý/Â÷ÀÓ |
´ëÇ׿ä°Ç |
ºñ°í |
| ¸Å°¢±âÀÏ 7ÀÏÀü¿¡ ¸Å°¢¹°°Ç¸í¼¼¼°¡ °ø°íµÇ¿À´Ï È®ÀÎÇϽñ⠹ٶø´Ï´Ù. |
| ³ªOO |
402È£ |
2019.11.12. |
2019.10.22. |
2025.9.24. |
135,000,000
|
O |
2019.11.11.~ÇöÀç |
| ÀÓOO |
402È£ |
2019.11.25 |
¹Ì»ó |
|
¹Ì»ó [¿ù]¹Ì»ó |
O |
¹Ì»ó |
| ¸Å°¢¹°°Ç¸í¼¼ ºñ°í |
³ª¿¬¿ì:ÀÌ »ç°Ç °æ¸Å½Åûä±ÇÀÚ·Î 'Àü¼¼»ç±âÇÇÇØÀÚ Áö¿ø ¹× ÁְžÈÁ¤¿¡ °üÇÑ Æ¯º°¹ý'¿¡ µû¸¥ ±¹Åä±³ÅëºÎÀå°üÀÇ Àü¼¼»ç±â ÇÇÇØÀÚ °áÁ¤ ÀÖÀ½. |
|
|
|
 |
Áö¿ªºÐ¼® |
|
|
|
|
| ÁöÇÏö |
|
Çб³ |
|
| °ü°ø¼ |
|
| ¹ý¿ø |
¼ö¿øÁö¹æ¹ý¿ø ¾È»êÁö¿ø (140-54)°æ±âµµ ¾È»ê½Ã ´Ü¿ø±¸ ±¤´ö¼·Î 75 (°íÀܵ¿) ´ëÇ¥ : 031)481-1114, ¹Î¿ø : 031)481-1238, ¾ß°£ : 031)481-1112 ¾È»ê½Ã, ±¤¸í½Ã, ½ÃÈï½Ã |
| µî±â¼Ò |
¼ö¿øÁö¹æ¹ý¿ø ¾È»êÁö¿ø µî±â°ú (´ëÇ¥:1544-0773, ÆÑ½º:(031)481-1290~1292, °æ±âµµ ¾È»ê½Ã ´Ü¿ø±¸ ±¤´ö¼·Î 75 (°íÀܵ¿ 711)) |
| ¼¼¹«¼ |
¾È»ê¼¼¹«¼ (´ëÇ¥:031-412-32, ÆÑ½º:031-412-3268, °æ±âµµ ¾È»ê½Ã ´Ü¿ø±¸ ȶû·Î 350 (°íÀܵ¿ 517)) |
|
|
|
 |
¹ý¿ø ¹°°ÇÀÚ·á ¿ä¾à |
|
|
|
|
| ¼Ò¸êµÇÁö ¾Ê´Â µî±âºÎ±Ç¸® |
¸Å¼öÀο¡°Ô ´ëÇ×ÇÒ ¼ö ÀÖ´Â À»±¸ ¼øÀ§ 5¹ø ÀÓÂ÷±Çµî±â ÀÖÀ½. ¹è´ç¿¡¼ º¸Áõ±ÝÀÌ Àü¾× º¯Á¦µÇÁö ¾Æ´ÏÇÏ¸é ¸»¼ÒµÇÁö ¾ÊÀ½. |
| ¼³Á¤µÈ °ÍÀ¸·Î º¸´Â Áö»ó±Ç |
|
| ¹ý¿øÀÚ·á Æ¯ÀÌ»çÇ× |
[ÁÖ¿ä ¹®°Ç Á¢¼ö ³»¿ª]
|
[¸Å°¢¹°°Ç¸í¼¼¼ ºñ°í¶õ]
1. ¹è´ç¿¡¼ ÀÓÂ÷º¸Áõ±ÝÀÌ Àü¾× º¯Á¦µÇÁö ¾Æ´ÏÇϸé Àܾ×À» ¸Å¼öÀÎÀÌ ÀμöÇÔ
2. Àü¼¼»ç±âÇÇÇØÀÚ Áö¿ø ¹× ÁְžÈÁ¤¿¡ °üÇÑ Æ¯º°¹ý¿¡ µû¸¥ ÀÓÂ÷ÀÎ ¿ì¼±¸Å¼ö½Å°í¸¦ Çà»çÇÒ ¼ö ÀÖÀ½. |
[ºÎµ¿»ê ÇöȲÁ¶»ç¼ ºñ°í¶õ]
4Ãþ 2°¡±¸ |
|
| ¿©ÀÇÁÖ°æ¸Å Á¶¾ð ÇѸ¶µð |
ÀÌ ºÎµ¿»êÀÇ ÀÔÂû¹ý¿øÀº ¼ö¿øÁö¹æ¹ý¿ø ¾È»êÁö¿øÀÔ´Ï´Ù.
ÀÔÂûÀÏÀº 2026-04-07ÀÔ´Ï´Ù.
ÀÔÂû½Ã°£Àº ~11:00ÀÔ´Ï´Ù. ÀÌ ¹ý¿ø¿¡´Â ½ÅÇÑÀºÇàÀÌ ÀÔÁ¡Çϰí ÀÖ½À´Ï´Ù.
|
¼±¼øÀ§ ÀÓÂ÷±Çµî±â°¡ µÇ¾î ÀÖ½À´Ï´Ù ´ëÇ×·ÂÀÌ ÀÖ´Â ¼±¼øÀ§ ÀÓÂ÷±Çµî±â ±Ç¸®ÀÚ°¡ ¹è´çÀ» Àü¾× ¹ÞÁö ¸øÇÒ °æ¿ì ³«ÂûÀÚ°¡ ÀÜ¿© º¸Áõ±ÝÀ» ÀμöÇØ¾ßÇÏ´Â °æ¿ìµµ ÀÖ½À´Ï´Ù. |
|
|
| Åë°è±â°£ |
³«Âû¹°°Ç¼ö |
Æò±Õ°¨Á¤°¡ |
Æò±Õ³«Âû°¡ |
³«Âû°¡À² |
À¯ÂûȽ¼ö |
| 3°³¿ù |
11°Ç |
172,909,091¿ø |
111,179,438¿ø |
61% |
3.3ȸ |
| 6°³¿ù |
28°Ç |
165,778,571¿ø |
119,959,990¿ø |
71% |
3ȸ |
| 12°³¿ù |
51°Ç |
194,329,412¿ø |
135,751,701¿ø |
71% |
2.3ȸ |
|
|
|
|
|
|
 |
|