|
|
| ¼ÒÀçÁö |
°¿øÆ¯º°ÀÚÄ¡µµ ¿øÁֽà ÅÂÀ嵿 1836 ¹é¿î3Â÷¾ÆÆÄÆ® 304µ¿ 10Ãþ1006È£
|
|
| »ç°Ç¹øÈ£ |
2025 Ÿ°æ 20617 |
¹°°Ç¹øÈ£ |
1
|
¹°°Ç¿ëµµ |
¾ÆÆÄÆ® |
| °¨Á¤Æò°¡¾× |
64,000,000¿ø |
°æ¸Å´ë»ó |
ÅäÁö ¹× °Ç¹°Àϰý ¸Å°¢ |
ÁøÇà»óÅ |
À¯Âû |
| ÃÖÀúÀÔÂû°¡ |
(70%) 44,800,000¿ø
|
°Ç¹°¸éÀû |
49.29§³(14.91Æò) |
ÀÔÂû±âÀÏ |
2026.06.01(¿ù) 10:00
(¿À´ÃÀÔÂû)
|
| ÀÔÂûº¸Áõ±Ý |
(10%) 4,480,000¿ø |
ÅäÁö¸éÀû |
22.97§³(6.95Æò)
|
À¯ÂûȽ¼ö |
1ȸ |
| ÀÔÂû¹ý¿ø |
ÃáõÁö¹æ¹ý¿ø ¿øÁÖÁö¿ø |
°æ¸Å¹æ¹ý |
|
¹°°ÇÁ¶È¸¼ö |
¿À´Ã: 1ȸ [´©Àû: 213ȸ]
|
| ¸»¼Ò±âÁØ | ÃÖ¼±¼øÀ§ ¼³Á¤ : 2024.6.5.°¡¾Ð·ù ¼³Á¤
|
|
|
|
|
|
|
|
|
|
|
°æ¸Å´ë»ó ¸ñ·Ï
|
|
| ±¸ºÐ |
¸ñ·Ï |
ÁÖ¼Ò |
±¸Á¶/¿ëµµ/´ëÁö±Ç |
ºñ°í |
´ëÁö±Ç
|
1 |
ÅÂÀ嵿 1836 |
12774ºÐÀÇ 22.97135 |
22.97135§³ (6.95Æò)
|
°Ç¹°
|
1 |
ÅÂÀ嵿 1836 |
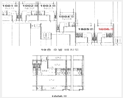
304µ¿ 10Ãþ1006È£ ö±ÙÄÜÅ©¸®Æ®Á¶ |
49.29§³ (14.91Æò)
|
|
|
|
2026-04-20
À¯Âû
|
(100%)
64,000,000¿ø
|
|
|
|
2026-06-01
ÁøÇà
|
(70%)
44,800,000¿ø
|
|
|
|
|
|
°¨Á¤Æò°¡¼ ¿ä¾à |
|
[À§Ä¡/ÁÖÀ§È¯°æ]
°¿øÆ¯º°ÀÚÄ¡µµ ¿øÁֽà ÅÂÀ嵿 ¼ÒÀç ""¿øÁÖÅç°ÔÀÌÆ®"" ºÏµ¿Ãø ±Ù°Å¸®¿¡ À§Ä¡Çϸç ÁÖÀ§´Â »ó¾÷, °ø¾÷Áö´ë·Î ȯ°æÀº º¸Åë.
[±³Åë»óȲ]
Â÷·®Á¢±ÙÀÌ °¡´ÉÇÏ¸ç ´ëÁß±³ÅëÀº º¸ÅëÀÓ.
[°Ç¹°±¸Á¶]
ö±ÙÄÜÅ©¸®Æ®º®½Ä±¸Á¶ °æ»ç½º¶óºêÁöºØ 12Ãþ °Ç¹°·Î¼,
¿Üº® : ÆäÀÎÆ®
³»º® : º®Áö ¹× ŸÀÏ
âȣ : »þ½Ãâȣ
[ÀÌ¿ë»óÅÂ]
¾ÆÆÄÆ®.
[¼³ºñ³»¿ª]
À§»ý¼³ºñ, ±Þ¹è¼ö¼³ºñ, ³¹æ¼³ºñ, ½Â°±â¼³ºñ
[ÅäÁöÇü»ó/ÀÌ¿ë»óÅÂ]
ºÎÁ¤Çü ÅäÁö·Î °ÇºÎÁö.
7)ÀÎÁ¢ µµ·Î»óŵî
´ÜÁö ÀÔ±¸°¡ ³²ÃøÀ¸·Î ¿Õº¹ 4Â÷¼± µµ·Î¿¡ Á¢ÇÔ.
[ÅäÁöÀÌ¿ë°èȹ]
ÀÚ¿¬³ìÁöÁö¿ª , ´ë·Î3·ù(Æø 25m~30m)(Á¢ÇÕ), °¡Ãà»çÀ°Á¦Çѱ¸¿ª(ÀüºÎÁ¦ÇÑ ¸ðµçÃàÁ¾Á¦ÇÑ)£¼°¡ÃàºÐ´¢ÀÇ °ü¸® ¹× À̿뿡 °üÇÑ ¹ý·ü£¾, ºñÇà¾ÈÀüÁ¦6±¸¿ª(Àü¼ú)£¼±º»ç±âÁö ¹× ±º»ç½Ã¼³ º¸È£¹ý£¾, ±º¿ëºñÇàÀå ¼ÒÀ½´ëÃ¥±¸¿ª Á¦3Á¾±¸¿ª(2021-12-29)£¼±º¿ëºñÇàÀå¤ý±º»ç°ÝÀå ¼ÒÀ½ ¹æÁö ¹× ÇÇÇØº¸»ó¿¡ °üÇÑ ¹ý·ü£¾
[°øºÎ¿ÍÀÇ Â÷ÀÌ]
ÇØ´ç»çÇ×¾øÀ½.
[Âü°í»çÇ×]
- |
|
|
°ÇÃ๰ÇöȲ |
|
|
|
| ¼ÒÀçÁö |
°¿øÆ¯º°ÀÚÄ¡µµ ¿øÁֽà ÅÂÀ嵿 1836¹øÁö |
| ´ëÁö¸éÀû |
|
¿¬¸éÀû |
11460§³(3472.73Æò) |
ÁÖ¿ëµµ |
°øµ¿ÁÖÅà |
| °ÇÃà¸éÀû |
1066.83§³(323.28Æò) |
¿ëÀû·ü»êÁ¤¿¬¸éÀû |
11460§³(3472.73Æò) |
Âø°øÀÏÀÚ |
1996.06.17 |
| °ÇÆóÀ² |
|
¿ëÀû·ü |
|
»ç¿ë½ÂÀÎÀÏÀÚ |
2000.09.08 |
| Áö»óÃþ¼ö |
12Ãþ |
ÁöÇÏÃþ¼ö |
|
±¸Á¶ |
ö±ÙÄÜÅ©¸®Æ®±¸Á¶ |
°ÇÃ๰Ãþº°ÇöȲ [º¸±â]| Ãþº° | ±¸Á¶ | ¿ëµµ | ¸éÀû | | 1Ãþ | ö±ÙÄÜÅ©¸®Æ®Á¶º®½Ä±¸Á¶ | ¾ÆÆÄÆ® | 407.96§³ (123.62Æò) | | 1Ãþ | ö±ÙÄÜÅ©¸®Æ®Á¶ | Àü±â½Ç,±â°è½Ç | 22.2§³ (6.73Æò) | | 1Ãþ | Á¶ÀûÁ¶ | °¡¹Ù³ª½Ç | 12§³ (3.64Æò) | | 1Ãþ | °æ·®Ã¶°ñ±¸Á¶ | ÀçȰ¿ëǰâ°í | 33§³ (10Æò) | | 1Ãþ | ö±ÙÄÜÅ©¸®Æ®Á¶º®½Ä±¸Á¶ | ¾ÆÆÄÆ® | 973.98§³ (295.15Æò) | | 2Ãþ | ö±ÙÄÜÅ©¸®Æ®Á¶º®½Ä±¸Á¶ | ¾ÆÆÄÆ® | 404.04§³ (122.44Æò) | | 2Ãþ | Á¶ÀûÁ¶ | ³ëÀ¯Àڽü³,µ¶¼½Ç | 261.9§³ (79.36Æò) | | 2Ãþ | Á¶ÀûÁ¶ | ³ëÀÎÁ¤,°ü¸®½Ç | 164.38§³ (49.81Æò) | | 2Ãþ | ö±ÙÄÜÅ©¸®Æ®Á¶º®½Ä±¸Á¶ | ¾ÆÆÄÆ® | 973.98§³ (295.15Æò) | | 3Ãþ | ö±ÙÄÜÅ©¸®Æ®Á¶º®½Ä±¸Á¶ | ¾ÆÆÄÆ® | 404.04§³ (122.44Æò) | | 3Ãþ | ö±ÙÄÜÅ©¸®Æ®Á¶º®½Ä±¸Á¶ | ¾ÆÆÄÆ® | 973.98§³ (295.15Æò) | | 4Ãþ | ö±ÙÄÜÅ©¸®Æ®Á¶º®½Ä±¸Á¶ | ¾ÆÆÄÆ® | 973.98§³ (295.15Æò) | | 4Ãþ | ö±ÙÄÜÅ©¸®Æ®Á¶º®½Ä±¸Á¶ | ¾ÆÆÄÆ® | 404.04§³ (122.44Æò) | | 5Ãþ | ö±ÙÄÜÅ©¸®Æ®Á¶º®½Ä±¸Á¶ | ¾ÆÆÄÆ® | 404.04§³ (122.44Æò) | | 5Ãþ | ö±ÙÄÜÅ©¸®Æ®Á¶º®½Ä±¸Á¶ | ¾ÆÆÄÆ® | 973.98§³ (295.15Æò) | | 6Ãþ | ö±ÙÄÜÅ©¸®Æ®Á¶º®½Ä±¸Á¶ | ¾ÆÆÄÆ® | 973.98§³ (295.15Æò) | | 6Ãþ | ö±ÙÄÜÅ©¸®Æ®Á¶º®½Ä±¸Á¶ | ¾ÆÆÄÆ® | 404.04§³ (122.44Æò) | | 7Ãþ | ö±ÙÄÜÅ©¸®Æ®Á¶º®½Ä±¸Á¶ | ¾ÆÆÄÆ® | 404.04§³ (122.44Æò) | | 7Ãþ | ö±ÙÄÜÅ©¸®Æ®Á¶º®½Ä±¸Á¶ | ¾ÆÆÄÆ® | 973.98§³ (295.15Æò) | | 8Ãþ | ö±ÙÄÜÅ©¸®Æ®Á¶º®½Ä±¸Á¶ | ¾ÆÆÄÆ® | 404.04§³ (122.44Æò) | | 8Ãþ | ö±ÙÄÜÅ©¸®Æ®Á¶º®½Ä±¸Á¶ | ¾ÆÆÄÆ® | 973.98§³ (295.15Æò) | | 9Ãþ | ö±ÙÄÜÅ©¸®Æ®Á¶º®½Ä±¸Á¶ | ¾ÆÆÄÆ® | 917.04§³ (277.89Æò) | | 9Ãþ | ö±ÙÄÜÅ©¸®Æ®Á¶º®½Ä±¸Á¶ | ¾ÆÆÄÆ® | 404.04§³ (122.44Æò) | | 10Ãþ | ö±ÙÄÜÅ©¸®Æ®Á¶º®½Ä±¸Á¶ | ¾ÆÆÄÆ® | 404.04§³ (122.44Æò) | | 10Ãþ | ö±ÙÄÜÅ©¸®Æ®Á¶º®½Ä±¸Á¶ | ¾ÆÆÄÆ® | 917.04§³ (277.89Æò) | | 11Ãþ | ö±ÙÄÜÅ©¸®Æ®Á¶º®½Ä±¸Á¶ | ¾ÆÆÄÆ® | 917.04§³ (277.89Æò) | | 11Ãþ | ö±ÙÄÜÅ©¸®Æ®Á¶º®½Ä±¸Á¶ | ¾ÆÆÄÆ® | 404.04§³ (122.44Æò) | | 12Ãþ | ö±ÙÄÜÅ©¸®Æ®Á¶º®½Ä±¸Á¶ | ¾ÆÆÄÆ® | 917.04§³ (277.89Æò) | | 12Ãþ | ö±ÙÄÜÅ©¸®Æ®Á¶º®½Ä±¸Á¶ | ¾ÆÆÄÆ® | 404.04§³ (122.44Æò) | | Áö1 | ö±ÙÄÜÅ©¸®Æ®Á¶ | ÁöÇÏÁÖÂ÷Àå | 8609.28§³ (2608.87Æò) |
|
|
|
|
|
|
 |
ÀÓÂ÷³»¿ª |
[¹è´ç¿ä±¸Á¾±âÀÏ : 2025/08/05] |
|
|
| ÀÓÂ÷ÀÎ |
Á¡À¯°ü°è |
ÀüÀÔÀÏÀÚ |
È®Á¤ÀÏÀÚ |
¹è´ç¿ä±¸ÀÏ |
º¸Áõ±Ý/Â÷ÀÓ |
´ëÇ׿ä°Ç |
ºñ°í |
| Á¶»çµÈ ÀÓÂ÷³»¿ªÀÌ ¾ø½À´Ï´Ù. |
|
|
|
¹é¿î3Â÷ ¾ÆÆÄÆ® °³¿ä |
|
|
|
| ¾ÆÆÄÆ®¸í |
°Ç¼³È¸»ç |
ÀÔÁֳ⵵ |
ÃѰ¡±¸¼ö |
ÃâÀÔ±¸Á¶ |
Àü¿ë¸éÀûºÐÆ÷ |
³¹æ¹æ½Ä |
°ü¸®»ç¹«¼Ò |
| ¹é¿î3Â÷¾ÆÆÄÆ® |
¹é¿îÁÖÅà |
2000-09-01 |
559°¡±¸(4°³µ¿) |
Æíº¹µµ½Ä |
40~49§³ |
°³º°/µµ½Ã°¡½º |
¢Ï 033)747-5580 |
|
|
|
 |
Áö¿ªºÐ¼® |
|
|
|
|
| ÁöÇÏö |
|
Çб³ |
|
| °ü°ø¼ |
|
| ¹ý¿ø |
ÃáõÁö¹æ¹ý¿ø ¿øÁÖÁö¿ø (264-78)°¿øµµ ¿øÁֽà ½Ãû·Î149 (¹«½Çµ¿) ´ëÇ¥ : 033)738-1000, ¾ß°£ : 033)738-1199 ¿øÁÖ½Ã, Ⱦ¼º±º |
| µî±â¼Ò |
ÃáõÁö¹æ¹ý¿ø ¿øÁÖÁö¿ø µî±â°ú (´ëÇ¥:1544-0773, ÆÑ½º:(033)743-5611, °¿øµµ ¿øÁֽà ½Ãû·Î 149 (¹«½Çµ¿ 1800)) |
| ¼¼¹«¼ |
¼¼¹«¼ (´ëÇ¥:, ÆÑ½º:, ) |
|
|
|
 |
¹ý¿ø ¹°°ÇÀÚ·á ¿ä¾à |
|
|
|
|
| ¼Ò¸êµÇÁö ¾Ê´Â µî±âºÎ±Ç¸® |
|
| ¼³Á¤µÈ °ÍÀ¸·Î º¸´Â Áö»ó±Ç |
|
| ¹ý¿øÀÚ·á Æ¯ÀÌ»çÇ× |
|
| ¿©ÀÇÁÖ°æ¸Å Á¶¾ð ÇѸ¶µð |
ÀÌ ºÎµ¿»êÀÇ ÀÔÂû¹ý¿øÀº ÃáõÁö¹æ¹ý¿ø ¿øÁÖÁö¿øÀÔ´Ï´Ù.
ÀÔÂûÀÏÀº 2026-06-01ÀÔ´Ï´Ù.
ÀÔÂû½Ã°£Àº ~11:20ÀÔ´Ï´Ù. ÀÌ ¹ý¿ø¿¡´Â NH³óÇùÀºÇàÀÌ ÀÔÁ¡Çϰí ÀÖ½À´Ï´Ù.
|
ÃëÇÏ ¶Ç´Â Ãë¼ÒµÉ °¡´É¼º ÀÖ½À´Ï´Ù
ÀÌ ¹°°ÇÀÇ °¨Á¤°¡°ÝÀº 64,000,000¿øÀÔ´Ï´Ù. °æ¸Å¸¦ ½ÅûÇÑ Ã¤±ÇÀÚ°¡ ¹è´ç ¹Þ¾Æ¾ß ÇÒ ±Ý¾×Àº 9,098,651¿ø À¸·Î °¨Á¤°¡°Ý ´ëºñ »ó´çÈ÷ ÀûÀº ±Ý¾×ÀÔ´Ï´Ù.
ÀÌ·± °æ¿ì, 乫°¡°¡ º¯Á¦ÇÏ¿© °æ¸Å¸¦ ÃëÇϽÃŰ°Å³ª °æ¸Å½Åûä±ÇÀÚ°¡ ¹è´ç¹ÞÀ» ±Ý¿øÀÌ ¾ø°ÔµÇ¾î À̸¥ ¹Ù "¹«À׿©¿¡ ÀÇÇÑ Ãë¼Ò"°¡ µÉ °¡´É¼ºÀÌ ÀÖ½À´Ï´Ù.
|
|
|
| Åë°è±â°£ |
³«Âû¹°°Ç¼ö |
Æò±Õ°¨Á¤°¡ |
Æò±Õ³«Âû°¡ |
³«Âû°¡À² |
À¯ÂûȽ¼ö |
| 3°³¿ù |
12°Ç |
166,583,333¿ø |
140,910,049¿ø |
79% |
1.8ȸ |
| 6°³¿ù |
36°Ç |
191,041,667¿ø |
156,891,133¿ø |
79% |
1.5ȸ |
| 12°³¿ù |
118°Ç |
199,108,475¿ø |
166,797,338¿ø |
80% |
1.3ȸ |
|
|
|
|
|
|
 |
|