|
|
| ¼ÒÀçÁö |
°¿øÆ¯º°ÀÚÄ¡µµ ¿øÁֽà ¹Ý°îµ¿ 1886-3 °ñµç½ºÄù¾î2Â÷ 1Ãþ107È£
|
|
| »ç°Ç¹øÈ£ |
2025 Ÿ°æ 20637 |
¹°°Ç¹øÈ£ |
1
|
¹°°Ç¿ëµµ |
»ó°¡,»ç¹«½Ç |
| °¨Á¤Æò°¡¾× |
1,175,000,000¿ø |
°æ¸Å´ë»ó |
ÅäÁö ¹× °Ç¹°Àϰý ¸Å°¢ |
ÁøÇà»óÅ |
½Å°Ç |
| ÃÖÀúÀÔÂû°¡ |
(100%) 1,175,000,000¿ø
|
°Ç¹°¸éÀû |
129.36§³(39.13Æò) |
ÀÔÂû±âÀÏ |
2026.04.20(¿ù) 10:00
(ÀÔÂû 13ÀÏÀü)
|
| ÀÔÂûº¸Áõ±Ý |
(10%) 117,500,000¿ø |
ÅäÁö¸éÀû |
39.84§³(12.05Æò)
|
À¯ÂûȽ¼ö |
0ȸ |
| ÀÔÂû¹ý¿ø |
ÃáõÁö¹æ¹ý¿ø ¿øÁÖÁö¿ø |
°æ¸Å¹æ¹ý |
|
¹°°ÇÁ¶È¸¼ö |
¿À´Ã: 4ȸ [´©Àû: 15ȸ]
|
| ¸»¼Ò±âÁØ | ÃÖ¼±¼øÀ§ ¼³Á¤ : 2016.6.29.±ÙÀú´ç±Ç ¼³Á¤
|
|
|
|
|
|
|
|
|
|
|
°æ¸Å´ë»ó ¸ñ·Ï
|
|
| ±¸ºÐ |
¸ñ·Ï |
ÁÖ¼Ò |
±¸Á¶/¿ëµµ/´ëÁö±Ç |
ºñ°í |
´ëÁö±Ç
|
1 |
¹Ý°îµ¿ 1886-3 |
1549ºÐÀÇ 39.84 |
39.84§³ (12.05Æò)
|
°Ç¹°
|
1 |
¹Ý°îµ¿ 1886-3 |
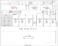
1Ãþ107È£ ö±ÙÄÜÅ©¸®Æ®±¸Á¶ |
129.36§³ (39.13Æò)
|
|
|
|
2026-04-20
ÁøÇà
|
(100%)
1,175,000,000¿ø
|
|
|
|
|
|
°¨Á¤Æò°¡¼ ¿ä¾à |
|
[À§Ä¡/ÁÖÀ§È¯°æ]
°¿øÆ¯º°ÀÚÄ¡µµ ¿øÁֽà ¹Ý°îµ¿ ¼ÒÀç ""°Ç°º¸Çè½É»çÆò°¡¿ø"" ºÏÃø ±Ù°Å¸®¿¡ À§Ä¡Çϸç ÁÖÀ§´Â °ø°ø±â°ü ¹× »ó¾÷Áö´ë·Î ȯ°æÀº º¸Åë.
[±³Åë»óȲ]
Â÷·®Á¢±ÙÀÌ °¡´ÉÇÏ¸ç ´ëÁß±³ÅëÀº º¸ÅëÀÓ.
[°Ç¹°±¸Á¶]
ö±ÙÄÜÅ©¸®Æ®±¸Á¶ (ö±Ù)ÄÜÅ©¸®Æ®ÁöºØ 8Ãþ °Ç¹°·Î¼,
¿Üº® : Ȱ¼®¸¶°¨
³»º® : ¸ôÅ»À§ÆäÀÎÆÃ
âȣ : »þ½Ãâȣ
[ÀÌ¿ë»óÅÂ]
±Ù¸°»ýȰ½Ã¼³(À½½ÄÁ¡).
[¼³ºñ³»¿ª]
À§»ý¼³ºñ, ±Þ¹è¼ö¼³ºñ, ³¹æ¼³ºñ, ½Â°±â¼³ºñ µî.
[ÅäÁöÇü»ó/ÀÌ¿ë»óÅÂ]
»ç´Ù¸®Çü ÅäÁö·Î »ó¾÷¿ë°ÇºÎÁö.
7)ÀÎÁ¢ µµ·Î»óŵî
³²ÃøÀ¸·Î ¿Õº¹ 4Â÷¼± µµ·Î¿¡ Á¢ÇÔ,
[ÅäÁöÀÌ¿ë°èȹ]
ÀϹݻó¾÷Áö¿ª , Áö±¸´ÜÀ§°èȹ±¸¿ª(Çõ½Åµµ½Ã) , Áß·Î2·ù(Æø 15m~20m)(Á¢ÇÕ), °¡Ãà»çÀ°Á¦Çѱ¸¿ª(ÀüºÎÁ¦ÇÑ ¸ðµçÃàÁ¾Á¦ÇÑ)£¼°¡ÃàºÐ´¢ÀÇ °ü¸® ¹× À̿뿡 °üÇÑ ¹ý·ü£¾, Çõ½Åµµ½Ã°³¹ß¿¹Á¤Áö±¸£¼Çõ½Åµµ½Ã Á¶¼º ¹× ¹ßÀü¿¡ °üÇÑ Æ¯º°¹ý£¾
[°øºÎ¿ÍÀÇ Â÷ÀÌ]
ÇØ´ç»çÇ×¾øÀ½.
[Âü°í»çÇ×]
- |
|
|
°ÇÃ๰ÇöȲ |
|
|
|
| ¼ÒÀçÁö |
°¿øÆ¯º°ÀÚÄ¡µµ ¿øÁֽà ¹Ý°îµ¿ 1886-3¹øÁö |
| ´ëÁö¸éÀû |
1549§³(469.39Æò) |
¿¬¸éÀû |
9218.83§³(2793.58Æò) |
ÁÖ¿ëµµ |
¾÷¹«½Ã¼³ |
| °ÇÃà¸éÀû |
1180.92§³(357.85Æò) |
¿ëÀû·ü»êÁ¤¿¬¸éÀû |
6571.73§³(1991.43Æò) |
Âø°øÀÏÀÚ |
2015.05.06 |
| °ÇÆóÀ² |
76.24% |
¿ëÀû·ü |
424.26% |
»ç¿ë½ÂÀÎÀÏÀÚ |
2016.06.24 |
| Áö»óÃþ¼ö |
8Ãþ |
ÁöÇÏÃþ¼ö |
3Ãþ |
±¸Á¶ |
ö±ÙÄÜÅ©¸®Æ®±¸Á¶ |
°ÇÃ๰Ãþº°ÇöȲ [º¸±â]| Ãþº° | ±¸Á¶ | ¿ëµµ | ¸éÀû | | 1Ãþ | ö±ÙÄÜÅ©¸®Æ®±¸Á¶ | Á¦1Á¾±Ù¸°»ýȰ½Ã¼³(¼Ò¸ÅÁ¡) | 649§³ (196.67Æò) | | 1Ãþ | ö±ÙÄÜÅ©¸®Æ®±¸Á¶ | Á¦2Á¾±Ù¸°»ýȰ½Ã¼³(ÀϹÝÀ½½ÄÁ¡) | 373.05§³ (113.05Æò) | | 2Ãþ | ö±ÙÄÜÅ©¸®Æ®±¸Á¶ | Á¦2Á¾±Ù¸°»ýȰ½Ã¼³(»ç¹«¼Ò) | 399.43§³ (121.04Æò) | | 2Ãþ | ö±ÙÄÜÅ©¸®Æ®±¸Á¶ | Á¦1Á¾±Ù¸°»ýȰ½Ã¼³(ÀÇ¿ø) | 762.84§³ (231.16Æò) | | 3Ãþ | ö±ÙÄÜÅ©¸®Æ®±¸Á¶ | Á¦2Á¾±Ù¸°»ýȰ½Ã¼³(Çпø) | 409.77§³ (124.17Æò) | | 3Ãþ | ö±ÙÄÜÅ©¸®Æ®±¸Á¶ | Á¦2Á¾±Ù¸°»ýȰ½Ã¼³(ÈÞ°ÔÀ½½ÄÁ¡) | 758.64§³ (229.89Æò) | | 4Ãþ | ö±ÙÄÜÅ©¸®Æ®±¸Á¶ | ¾÷¹«½Ã¼³(¿ÀÇǽºÅÚ 16È£) | 643.8§³ (195.09Æò) | | 5Ãþ | ö±ÙÄÜÅ©¸®Æ®±¸Á¶ | ¾÷¹«½Ã¼³(¿ÀÇǽºÅÚ 16È£) | 643.8§³ (195.09Æò) | | 6Ãþ | ö±ÙÄÜÅ©¸®Æ®±¸Á¶ | ¾÷¹«½Ã¼³(¿ÀÇǽºÅÚ 16È£) | 643.8§³ (195.09Æò) | | 7Ãþ | ö±ÙÄÜÅ©¸®Æ®±¸Á¶ | ¾÷¹«½Ã¼³(¿ÀÇǽºÅÚ 16È£) | 643.8§³ (195.09Æò) | | 8Ãþ | ö±ÙÄÜÅ©¸®Æ®±¸Á¶ | ¾÷¹«½Ã¼³(¿ÀÇǽºÅÚ 16È£) | 643.8§³ (195.09Æò) | | ¿Áž1Ãþ | ö±ÙÄÜÅ©¸®Æ®±¸Á¶ | ¾÷¹«½Ã¼³(¿ÀÇǽºÅÚ °è´Ü½Ç) | 43.2§³ (13.09Æò) | | Áö1Ãþ | ö±ÙÄÜÅ©¸®Æ®±¸Á¶ | ÁöÇÏÁÖÂ÷Àå | 1160.82§³ (351.76Æò) | | Áö2Ãþ | ö±ÙÄÜÅ©¸®Æ®±¸Á¶ | ÁöÇÏÁÖÂ÷Àå | 1153.06§³ (349.41Æò) | | Áö3Ãþ | ö±ÙÄÜÅ©¸®Æ®±¸Á¶ | ÁÖÂ÷Àå¹×Àü±â½Ç | 333.22§³ (100.98Æò) |
|
|
|
|
|
|
 |
ÀÓÂ÷³»¿ª |
[¹è´ç¿ä±¸Á¾±âÀÏ : 2025/08/18] |
|
|
| ÀÓÂ÷ÀÎ |
Á¡À¯°ü°è |
ÀüÀÔÀÏÀÚ |
È®Á¤ÀÏÀÚ |
¹è´ç¿ä±¸ÀÏ |
º¸Áõ±Ý/Â÷ÀÓ |
´ëÇ׿ä°Ç |
ºñ°í |
| ¸Å°¢±âÀÏ 7ÀÏÀü¿¡ ¸Å°¢¹°°Ç¸í¼¼¼°¡ °ø°íµÇ¿À´Ï È®ÀÎÇϽñ⠹ٶø´Ï´Ù. |
| ÇöOO |
ÀüºÎ |
2023.11.27 |
2023.11.27 |
|
30,000,000 [¿ù](º»ÀÎÁø¼ú)1,800,000¿ø(ÇöȲ¼)1,980,000¿ø |
X |
202311.27~ |
|
|
|
 |
Áö¿ªºÐ¼® |
|
|
|
|
| ÁöÇÏö |
|
Çб³ |
|
| °ü°ø¼ |
|
| ¹ý¿ø |
ÃáõÁö¹æ¹ý¿ø ¿øÁÖÁö¿ø (264-78)°¿øµµ ¿øÁֽà ½Ãû·Î149 (¹«½Çµ¿) ´ëÇ¥ : 033)738-1000, ¾ß°£ : 033)738-1199 ¿øÁÖ½Ã, Ⱦ¼º±º |
| µî±â¼Ò |
ÃáõÁö¹æ¹ý¿ø ¿øÁÖÁö¿ø µî±â°ú (´ëÇ¥:1544-0773, ÆÑ½º:(033)743-5611, °¿øµµ ¿øÁֽà ½Ãû·Î 149 (¹«½Çµ¿ 1800)) |
| ¼¼¹«¼ |
¼¼¹«¼ (´ëÇ¥:, ÆÑ½º:, ) |
|
|
|
 |
¹ý¿ø ¹°°ÇÀÚ·á ¿ä¾à |
|
|
|
|
| ¼Ò¸êµÇÁö ¾Ê´Â µî±âºÎ±Ç¸® |
|
| ¼³Á¤µÈ °ÍÀ¸·Î º¸´Â Áö»ó±Ç |
|
| ¹ý¿øÀÚ·á Æ¯ÀÌ»çÇ× |
[ÁÖ¿ä ¹®°Ç Á¢¼ö ³»¿ª]
[2026.03.13] ½Â°èÀÎ ÁÖOOO OOOOOOOOOOO(OOO OOOOOOO) ä±ÇÀÚº¯°æ½Å°í¼ Á¦Ãâ
|
|
| ¿©ÀÇÁÖ°æ¸Å Á¶¾ð ÇѸ¶µð |
ÀÌ ºÎµ¿»êÀÇ ÀÔÂû¹ý¿øÀº ÃáõÁö¹æ¹ý¿ø ¿øÁÖÁö¿øÀÔ´Ï´Ù.
ÀÔÂûÀÏÀº 2026-04-20ÀÔ´Ï´Ù.
ÀÔÂû½Ã°£Àº ~11:20ÀÔ´Ï´Ù. ÀÌ ¹ý¿ø¿¡´Â NH³óÇùÀºÇàÀÌ ÀÔÁ¡Çϰí ÀÖ½À´Ï´Ù.
|
|
|
| Åë°è±â°£ |
³«Âû¹°°Ç¼ö |
Æò±Õ°¨Á¤°¡ |
Æò±Õ³«Âû°¡ |
³«Âû°¡À² |
À¯ÂûȽ¼ö |
| 3°³¿ù |
17°Ç |
634,033,009¿ø |
422,259,506¿ø |
44% |
3.5ȸ |
| 6°³¿ù |
28°Ç |
515,717,129¿ø |
312,395,207¿ø |
48% |
3.3ȸ |
| 12°³¿ù |
36°Ç |
554,514,132¿ø |
317,340,575¿ø |
49% |
3.1ȸ |
|
|
|
|
|
|
 |
|