|
|
| ¼ÒÀçÁö |
°æ±âµµ ºÎõ½Ã ¼Ò»ç±¸ ¼Û³»µ¿ 600-1 ¾ÆÆçºô¸®Áö¿¡ÀÌ 101µ¿ 3Ãþ 302È£
|
|
| »ç°Ç¹øÈ£ |
2025 Ÿ°æ 32901 |
¹°°Ç¹øÈ£ |
1
|
¹°°Ç¿ëµµ |
´Ù¼¼´ë,ºô¶ó |
| °¨Á¤Æò°¡¾× |
217,000,000¿ø |
°æ¸Å´ë»ó |
ÅäÁö ¹× °Ç¹°Àϰý ¸Å°¢ |
ÁøÇà»óÅ |
½Å°Ç |
| ÃÖÀúÀÔÂû°¡ |
(100%) 217,000,000¿ø
|
°Ç¹°¸éÀû |
38.60§³(11.67Æò) |
ÀÔÂû±âÀÏ |
2026.04.22(¼ö) 10:00
(ÀÔÂû 13ÀÏÀü)
|
| ÀÔÂûº¸Áõ±Ý |
(10%) 21,700,000¿ø |
ÅäÁö¸éÀû |
27.04§³(8.18Æò)
|
À¯ÂûȽ¼ö |
0ȸ |
| ÀÔÂû¹ý¿ø |
ÀÎõÁö¹æ¹ý¿ø ºÎõÁö¿ø |
°æ¸Å¹æ¹ý |
|
¹°°ÇÁ¶È¸¼ö |
¿À´Ã: 3ȸ [´©Àû: 4ȸ]
|
| ¸»¼Ò±âÁØ | ÃÖ¼±¼øÀ§ ¼³Á¤ : 2023.04.14.¾Ð·ù ¼³Á¤
|
|
|
|
|
|
|
|
|
|
|
°æ¸Å´ë»ó ¸ñ·Ï
|
|
| ±¸ºÐ |
¸ñ·Ï |
ÁÖ¼Ò |
±¸Á¶/¿ëµµ/´ëÁö±Ç |
ºñ°í |
´ëÁö±Ç
|
1 |
¼Û³»µ¿ 600-1 |
425ºÐÀÇ 27.04 |
27.04§³ (8.18Æò)
|
°Ç¹°
|
1 |
¼Û³»µ¿ 600-1 |
101µ¿ 3Ãþ 302È£ ö±ÙÄÜÅ©¸®Æ®±¸Á¶ |
38.595§³ (11.67Æò)
|
|
|
|
2026-04-22
ÁøÇà
|
(100%)
217,000,000¿ø
|
|
|
|
|
|
°¨Á¤Æò°¡¼ ¿ä¾à |
|
[À§Ä¡/ÁÖÀ§È¯°æ]
ºÎõ½Ã ¼Ò»ç±¸ ¼Û³»µ¿ ¼ÒÀç ""ºÎõ°ø¾÷°íµîÇб³""µ¿Ãø Àαٿ¡ À§Ä¡ÇÏ´Â µµ½ÃÇü»ýȰÁÖÅà ""¾ÆÆçºô¸®Áö¿¡ÀÌ Á¦101µ¿"" Á¦3Ãþ Á¦302È£·Î¼ ÀαÙÀº ´Üµ¶ÁÖÅà ¹× ´Ù¼¼´ëÁÖÅà À§ÁÖÀÇ ÁÖÅÃÁö´ëÀÓ.
[±³Åë»óȲ]
°æÀα¹µµ°¡ ³²ÃøÀαٿ¡, °æÀÎÀüö ""ºÎõ¿ª"" ¹× ""Áßµ¿¿ª""ÀÌ ºÏµ¿Ãø ¹× ºÏ¼Ãø ±Ù°Å¸®¿¡ °¢°¢ À§Ä¡ÇÏ¸ç ½Ã³»¹ö½ºÁ¤·ùÀåÀÌ ÀÎÁ¢ÇÏ´Â µî ´ëÁß±³Åë»óȲ Æí¸®ÇÑ Áö¿ªÀÓ.
[°Ç¹°±¸Á¶]
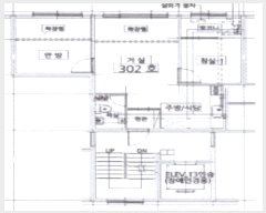
ö±ÙÄÜÅ©¸®Æ®±¸Á¶ 5Ãþ ±Ô¸ðÀÇ µµ½ÃÇü»ýȰÁÖÅà °Ç¹° ³» Á¦3Ãþ Á¦302È£·Î¼
¿Üº® : ÄÜÅ©¸®Æ® À§ ´Ü¿Àç µî ¸¶°¨
âȣ : ¼¨½ÃâȣÀÓ.
[ÀÌ¿ë»óÅÂ]
µµ½ÃÇü»ýȰÁÖÅÃÀ¸·Î ÀÌ¿ëÁßÀÓ.
[¼³ºñ³»¿ª]
ÀϹÝÀûÀÎ »óÇϼöµµ¼³ºñ ¹× À§»ý¼³ºñ °®Ãß°í ÀÖÀ½.
[ÅäÁöÇü»ó/ÀÌ¿ë»óÅÂ]
¿Ï°æ»çÁö´ë ³» Á¤¹æÇü ÅäÁö·Î¼ µµ½ÃÇü»ýȰÁÖÅà °Ç¹°ÀÇ ºÎÁö·Î ÀÌ¿ëÁßÀÓ.
7)ÀÎÁ¢ µµ·Î»óŵî
¼ÃøÀ¸·Î ¼Ò·Î¿¡ Á¢ÇÔ.
[ÅäÁöÀÌ¿ë°èȹ]
Á¦2Á¾ÀϹÝÁÖ°ÅÁö¿ª, °¡Ãà»çÀ°Á¦Çѱ¸¿ª(ÀüºÎÁ¦Çѱ¸¿ª)(°¡ÃàºÐ´¢ÀÇ ÀÌ¿ë ¹× °ü¸®¿¡ °üÇÑ ¹ý·ü), »ó´ëº¸È£±¸¿ª(±³À°È¯°æ º¸È£¿¡ °üÇÑ ¹ý·ü), °ú¹Ð¾ïÁ¦±Ç¿ª(¼öµµ±ÇÁ¤ºñ°èȹ¹ý) ³» ÅäÁöÀÓ.
[°øºÎ¿ÍÀÇ Â÷ÀÌ]
¾øÀ½.
[Âü°í»çÇ×]
ÀÓ´ëÂ÷°ü°è ¹Ì»óÀÓ. |
|
|
°ÇÃ๰ÇöȲ |
|
|
|
| ¼ÒÀçÁö |
°æ±âµµ ºÎõ½Ã ¼Ò»ç±¸ ¼Û³»µ¿ 600-1¹øÁö |
| ´ëÁö¸éÀû |
425§³(128.79Æò) |
¿¬¸éÀû |
682.81§³(206.91Æò) |
ÁÖ¿ëµµ |
°øµ¿ÁÖÅà |
| °ÇÃà¸éÀû |
219.66§³(66.56Æò) |
¿ëÀû·ü»êÁ¤¿¬¸éÀû |
682.81§³(206.91Æò) |
Âø°øÀÏÀÚ |
2019.07.22 |
| °ÇÆóÀ² |
51.68% |
¿ëÀû·ü |
160.66% |
»ç¿ë½ÂÀÎÀÏÀÚ |
2020.04.28 |
| Áö»óÃþ¼ö |
5Ãþ |
ÁöÇÏÃþ¼ö |
|
±¸Á¶ |
ö±ÙÄÜÅ©¸®Æ®±¸Á¶ |
°ÇÃ๰Ãþº°ÇöȲ [º¸±â]| Ãþº° | ±¸Á¶ | ¿ëµµ | ¸éÀû | | 1Ãþ | ö±ÙÄÜÅ©¸®Æ®±¸Á¶ | °è´Ü½Ç,ELEV. | 13.28§³ (4.02Æò) | | 1Ãþ | ö±ÙÄÜÅ©¸®Æ®±¸Á¶ | Á¦1Á¾±Ù¸°»ýȰ½Ã¼³(¼Ò¸ÅÁ¡) | 24.09§³ (7.3Æò) | | 2Ãþ | ö±ÙÄÜÅ©¸®Æ®±¸Á¶ | °øµ¿ÁÖÅÃ(µµ½ÃÇü»ýȰÁÖÅÃ(´ÜÁöÇü´Ù¼¼´ë- | 163.8§³ (49.64Æò) | | 3Ãþ | ö±ÙÄÜÅ©¸®Æ®±¸Á¶ | °øµ¿ÁÖÅÃ(µµ½ÃÇü»ýȰÁÖÅÃ(´ÜÁöÇü´Ù¼¼´ë- | 163.8§³ (49.64Æò) | | 4Ãþ | ö±ÙÄÜÅ©¸®Æ®±¸Á¶ | °øµ¿ÁÖÅÃ(µµ½ÃÇü»ýȰÁÖÅÃ(´ÜÁöÇü´Ù¼¼´ë- | 163.8§³ (49.64Æò) | | 5Ãþ | ö±ÙÄÜÅ©¸®Æ®±¸Á¶ | °øµ¿ÁÖÅÃ(µµ½ÃÇü»ýȰÁÖÅÃ(´ÜÁöÇü´Ù¼¼´ë- | 154.04§³ (46.68Æò) | | ¿Áž1Ãþ | ö±ÙÄÜÅ©¸®Æ®±¸Á¶ | ¿Áž(¿¬¸éÀûÁ¦¿Ü) | 15.71§³ (4.76Æò) | | ¿Áž2Ãþ | ö±ÙÄÜÅ©¸®Æ®±¸Á¶ | ¹°ÅÊÅ©½Ç(¿¬¸éÀûÁ¦¿Ü) | 21§³ (6.36Æò) |
|
|
|
|
|
|
 |
ÀÓÂ÷³»¿ª |
[¹è´ç¿ä±¸Á¾±âÀÏ : 2025/05/30] |
|
|
| ÀÓÂ÷ÀÎ |
Á¡À¯°ü°è |
ÀüÀÔÀÏÀÚ |
È®Á¤ÀÏÀÚ |
¹è´ç¿ä±¸ÀÏ |
º¸Áõ±Ý/Â÷ÀÓ |
´ëÇ׿ä°Ç |
ºñ°í |
| ¸Å°¢±âÀÏ 7ÀÏÀü¿¡ ¸Å°¢¹°°Ç¸í¼¼¼°¡ °ø°íµÇ¿À´Ï È®ÀÎÇϽñ⠹ٶø´Ï´Ù. |
| ˼OO |
ÀüºÎ |
2022.04.20. |
2022.03.29. |
|
232,000,000
|
O |
2022.04.20. |
| ÁÖOOOOOOOOOOOOOOO |
ÀüºÎ |
2022.04.20. |
2022.03.29. |
2025.5.22. |
232,000,000
|
O |
2022.04.20.~2024.04.05. |
| ¸Å°¢¹°°Ç¸í¼¼ ºñ°í |
ÀºÀç¹Î: ÁÖÅÃÀÓÂ÷±Çµî±â±Ç¸®Àڷμ ÁÖÅÃÀÓÂ÷±Çµî±âÀÏÀº 2023. 11. 16.ÀÓ
ÁÖÅõµ½Ãº¸Áõ°ø»ç(ÀÓÂ÷ÀÎ ÀºÀç¹Î): °æ¸Å½Åûä±ÇÀÚÀ̰í ÀÓÂ÷ÀÎ ÀºÀç¹ÎÀÇ ÀÓÂ÷º¸Áõ±Ý¹Ýȯä±Ç ¾ç¼öÀÎÀ¸·Î¼, º¸Áõ±Ý Àü¾×À» ¹è
´ç¹ÞÁö ¸øÇÏ´õ¶óµµ ÀÜÁ¸ ÀÓÂ÷º¸Áõ±Ý¹Ýȯä±ÇÀ» Æ÷±âÇϰí ÁÖÅÃÀÓÂ÷±Çµî±â ¸»¼Ò¿¡ µ¿ÀÇÇÑ´Ù´Â ÃëÁöÀÇ È®¾à¼¸¦ Á¦ÃâÇÔ |
|
|
|
 |
Áö¿ªºÐ¼® |
|
|
|
|
| ÁöÇÏö |
|
Çб³ |
|
| °ü°ø¼ |
|
| ¹ý¿ø |
ÀÎõÁö¹æ¹ý¿ø ºÎõÁö¿ø (146-02)°æ±âµµ ºÎõ½Ã ¿ø¹Ì±¸ »óÀÏ·Î 129(»óµ¿) ´ëÇ¥ : 032)320-1114, ¹Î¿ø : 032)320-1234 ºÎõ½Ã, ±èÆ÷½Ã |
| µî±â¼Ò |
ÀÎõÁö¹æ¹ý¿ø ºÎõÁö¿ø µî±â°ú (´ëÇ¥:1544-0773, ÆÑ½º:(032)320-1484, 320-1485, °æ±âµµ ºÎõ½Ã »óÀÏ·Î 129 (»óµ¿ 445-1)) |
| ¼¼¹«¼ |
¼¼¹«¼ (´ëÇ¥:, ÆÑ½º:, ) |
|
|
|
 |
¹ý¿ø ¹°°ÇÀÚ·á ¿ä¾à |
|
|
|
|
| ¼Ò¸êµÇÁö ¾Ê´Â µî±âºÎ±Ç¸® |
À»±¸ ¼øÀ§ 1¹ø ÁÖÅÃÀÓÂ÷±Çµî±â(´Ù¸¸ ÁÖÅõµ½Ãº¸Áõ°ø»çÀÇ ¸»¼Òµ¿ÀÇ È®¾à¼°¡ Á¦ÃâµÊ) |
| ¼³Á¤µÈ °ÍÀ¸·Î º¸´Â Áö»ó±Ç |
|
| ¹ý¿øÀÚ·á Æ¯ÀÌ»çÇ× |
|
| ¿©ÀÇÁÖ°æ¸Å Á¶¾ð ÇѸ¶µð |
ÀÌ ºÎµ¿»êÀÇ ÀÔÂû¹ý¿øÀº ÀÎõÁö¹æ¹ý¿ø ºÎõÁö¿øÀÔ´Ï´Ù.
ÀÔÂûÀÏÀº 2026-04-22ÀÔ´Ï´Ù.
ÀÔÂû½Ã°£Àº ~11:10ÀÔ´Ï´Ù. ÀÌ ¹ý¿ø¿¡´Â ½ÅÇÑÀºÇàÀÌ ÀÔÁ¡Çϰí ÀÖ½À´Ï´Ù.
|
¼±¼øÀ§ ÀÓÂ÷±Çµî±â°¡ µÇ¾î ÀÖ½À´Ï´Ù ´ëÇ×·ÂÀÌ ÀÖ´Â ¼±¼øÀ§ ÀÓÂ÷±Çµî±â ±Ç¸®ÀÚ°¡ ¹è´çÀ» Àü¾× ¹ÞÁö ¸øÇÒ °æ¿ì ³«ÂûÀÚ°¡ ÀÜ¿© º¸Áõ±ÝÀ» ÀμöÇØ¾ßÇÏ´Â °æ¿ìµµ ÀÖ½À´Ï´Ù. |
|
|
| Åë°è±â°£ |
³«Âû¹°°Ç¼ö |
Æò±Õ°¨Á¤°¡ |
Æò±Õ³«Âû°¡ |
³«Âû°¡À² |
À¯ÂûȽ¼ö |
| 3°³¿ù |
18°Ç |
199,666,667¿ø |
134,153,805¿ø |
67% |
1.7ȸ |
| 6°³¿ù |
40°Ç |
221,450,000¿ø |
152,137,693¿ø |
67% |
1.7ȸ |
| 12°³¿ù |
51°Ç |
221,300,000¿ø |
158,655,955¿ø |
70% |
1.5ȸ |
|
|
|
|
|
|
 |
|