|
|
| ¼ÒÀçÁö |
ÀÎõ±¤¿ª½Ã ¿¬¼ö±¸ µ¿Ãᵿ 1131-1 ¿¬¼ö¼Çر׶ûºí1´ÜÁö 104µ¿ 6Ãþ603È£
|
|
| »ç°Ç¹øÈ£ |
2025 Ÿ°æ 1107 |
¹°°Ç¹øÈ£ |
1
|
¹°°Ç¿ëµµ |
¾ÆÆÄÆ® |
| °¨Á¤Æò°¡¾× |
540,000,000¿ø |
°æ¸Å´ë»ó |
ÅäÁö ¹× °Ç¹°Àϰý ¸Å°¢ |
ÁøÇà»óÅ |
½Å°Ç |
| ÃÖÀúÀÔÂû°¡ |
(100%) 540,000,000¿ø
|
°Ç¹°¸éÀû |
84.98§³(25.71Æò) |
ÀÔÂû±âÀÏ |
2026.04.27(¿ù) 10:00
(ÀÔÂû 13ÀÏÀü)
|
| ÀÔÂûº¸Áõ±Ý |
(10%) 54,000,000¿ø |
ÅäÁö¸éÀû |
57.50§³(17.39Æò)
|
À¯ÂûȽ¼ö |
0ȸ |
| ÀÔÂû¹ý¿ø |
ÀÎõÁö¹æ¹ý¿ø |
°æ¸Å¹æ¹ý |
|
¹°°ÇÁ¶È¸¼ö |
¿À´Ã: 7ȸ [´©Àû: 31ȸ]
|
| ¸»¼Ò±âÁØ | ÃÖ¼±¼øÀ§ ¼³Á¤ : 2022.12.14. ±ÙÀú´ç±Ç ¼³Á¤
|
|
|
|
|
|
|
|
|
|
|
°æ¸Å´ë»ó ¸ñ·Ï
|
|
| ±¸ºÐ |
¸ñ·Ï |
ÁÖ¼Ò |
±¸Á¶/¿ëµµ/´ëÁö±Ç |
ºñ°í |
´ëÁö±Ç
|
1 |
µ¿Ãᵿ 1131-1 |
56056.2ºÐÀÇ 57.5013 |
57.5013§³ (17.39Æò)
|
°Ç¹°
|
1 |
µ¿Ãᵿ 1131-1 |
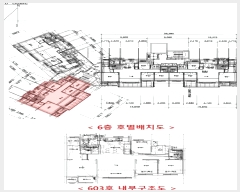
104µ¿ 6Ãþ603È£ ö±ÙÄÜÅ©¸®Æ®±¸Á¶ |
84.98§³ (25.71Æò)
|
|
|
|
2026-04-27
ÁøÇà
|
(100%)
540,000,000¿ø
|
|
|
|
|
|
°¨Á¤Æò°¡¼ ¿ä¾à |
|
[À§Ä¡/ÁÖÀ§È¯°æ]
º»°ÇÀº ÀÎõ±¤¿ª½Ã ¿¬¼ö±¸ µ¿Ãᵿ ¼ÒÀç ""ÀÎõµ¿ÃáÃʵîÇб³"" ¼Ãø Àαٿ¡ À§Ä¡Çϸç, ÁÖÀ§´Â ¾ÆÆÄÆ®, °øµ¿ÁÖÅà ¹× °¢Á¾ ±Ù¸°»ýȰ½Ã¼³ µîÀÌ È¥ÀçÇÏ´Â Áö¿ªÀÓ.
[±³Åë»óȲ]
Â÷·®ÀÇ Á¢±ÙÀÌ °¡´ÉÇϸç, º»°ÇÀÇ ³²µ¿Ãø ¿ø°Å¸®¿¡ ÁöÇÏö ÀÎõ1È£¼± ""µ¿ÃῪ"" ¹× Àα٠³ë¼± ¹ö½º Á¤·ùÀå µîÀÌ ¼ÒÀçÇÏ´Â ¹Ù, Àü¹ÝÀûÀÎ ´ëÁß±³Åë¿©°ÇÀº º¸ÅëÀÓ.
[°Ç¹°±¸Á¶]
ö±ÙÄÜÅ©¸®Æ®±¸Á¶ °æ»çÁöºØ 23Ãþ °Ç¹° ³» 6Ãþ 603È£·Î¼,
(»ç¿ë½ÂÀÎÀÏ : 2017.12.29)
¿Üº®: ¸ôÅ»À§ ÆäÀÎÆÃ ¹× ÀϺΠ¿ÜÀå¼®ÀçºÙÀÓ µî ¸¶°¨.
âȣ: »õ½Ãâȣ µîÀÓ.
[ÀÌ¿ë»óÅÂ]
¾ÆÆÄÆ®·Î ÀÌ¿ëÁßÀÓ.
[¼³ºñ³»¿ª]
±âº»ÀûÀÎ À§»ý ¹× ±Þ¹è¼ö¼³ºñ, ³¹æ¼³ºñ, µµ½Ã°¡½º¼³ºñ, ½Â°±â¼³ºñ µîÀÌ µÇ¾îÀÖÀ½.
[ÅäÁöÇü»ó/ÀÌ¿ë»óÅÂ]
»ç´Ù¸®ÇüÀÇ ÅäÁö·Î¼ ÁÖ°Å¿ë °ÇºÎÁö·Î ÀÌ¿ëÁßÀÓ.
7)ÀÎÁ¢ µµ·Î»óŵî
º»°ÇÀÇ µ¿ÃøÀ¸·Î ³ëÆø ¾à 15m ³»¿ÜÀÇ Æ÷Àåµµ·Î¿Í Á¢ÇÔ.
[ÅäÁöÀÌ¿ë°èȹ]
Á¦3Á¾ÀϹÝÁÖ°ÅÁö¿ª, Áö±¸´ÜÀ§°èȹ±¸¿ª(µ¿Ãá2Áö±¸´ÜÀ§°èȹ±¸¿ª), Áß·Î3·ù(Æø 12m~15m)(Á¢ÇÕ), »ó´ëº¸È£±¸¿ª£¼±³À°È¯°æ º¸È£¿¡ °üÇÑ ¹ý·ü£¾, »ó´ëº¸È£±¸¿ª(ÀÎõµ¿ºÎ±³À°Ã» Æò»ý±³À°°ú¹®ÀÇ(460-6240))£¼±³À°È¯°æ º¸È£¿¡ °üÇÑ ¹ý·ü£¾, °ú¹Ð¾ïÁ¦±Ç¿ª£¼¼öµµ±ÇÁ¤ºñ°èȹ¹ý£¾
[°øºÎ¿ÍÀÇ Â÷ÀÌ]
-
[Âü°í»çÇ×]
ÀÓ´ë°ü°è´Â ¹Ì»óÀÓ. |
|
|
°ÇÃ๰ÇöȲ |
|
|
|
| ¼ÒÀçÁö |
ÀÎõ±¤¿ª½Ã ¿¬¼ö±¸ µ¿Ãᵿ 1131-1¹øÁö |
| ´ëÁö¸éÀû |
|
¿¬¸éÀû |
8140.9§³(2466.94Æò) |
ÁÖ¿ëµµ |
°øµ¿ÁÖÅà |
| °ÇÃà¸éÀû |
567.3358§³(171.92Æò) |
¿ëÀû·ü»êÁ¤¿¬¸éÀû |
8117.5§³(2459.85Æò) |
Âø°øÀÏÀÚ |
2015.03.26 |
| °ÇÆóÀ² |
|
¿ëÀû·ü |
|
»ç¿ë½ÂÀÎÀÏÀÚ |
2017.12.29 |
| Áö»óÃþ¼ö |
23Ãþ |
ÁöÇÏÃþ¼ö |
1Ãþ |
±¸Á¶ |
ö±ÙÄÜÅ©¸®Æ®±¸Á¶ |
°ÇÃ๰Ãþº°ÇöȲ [º¸±â]| Ãþº° | ±¸Á¶ | ¿ëµµ | ¸éÀû | | 1Ãþ | ö±ÙÄÜÅ©¸®Æ®±¸Á¶ | ¾ÆÆÄÆ® | 512.7§³ (155.36Æò) | | 2Ãþ | ö±ÙÄÜÅ©¸®Æ®±¸Á¶ | ¾ÆÆÄÆ® | 443.9§³ (134.52Æò) | | 3Ãþ | ö±ÙÄÜÅ©¸®Æ®±¸Á¶ | ¾ÆÆÄÆ® | 443.9§³ (134.52Æò) | | 4Ãþ | ö±ÙÄÜÅ©¸®Æ®±¸Á¶ | ¾ÆÆÄÆ® | 443.9§³ (134.52Æò) | | 5Ãþ | ö±ÙÄÜÅ©¸®Æ®±¸Á¶ | ¾ÆÆÄÆ® | 461.19§³ (139.75Æò) | | 5Ãþ | ö±ÙÄÜÅ©¸®Æ®±¸Á¶ | ¾ÆÆÄÆ® | 443.9§³ (134.52Æò) | | 6Ãþ | ö±ÙÄÜÅ©¸®Æ®±¸Á¶ | ¾ÆÆÄÆ® | 443.9§³ (134.52Æò) | | 7Ãþ | ö±ÙÄÜÅ©¸®Æ®±¸Á¶ | ¾ÆÆÄÆ® | 443.9§³ (134.52Æò) | | 8Ãþ | ö±ÙÄÜÅ©¸®Æ®±¸Á¶ | ¾ÆÆÄÆ® | 461.19§³ (139.75Æò) | | 8Ãþ | ö±ÙÄÜÅ©¸®Æ®±¸Á¶ | ¾ÆÆÄÆ® | 443.9§³ (134.52Æò) | | 9Ãþ | ö±ÙÄÜÅ©¸®Æ®±¸Á¶ | ¾ÆÆÄÆ® | 443.9§³ (134.52Æò) | | 10Ãþ | ö±ÙÄÜÅ©¸®Æ®±¸Á¶ | ¾ÆÆÄÆ® | 443.9§³ (134.52Æò) | | 11Ãþ | ö±ÙÄÜÅ©¸®Æ®±¸Á¶ | ¾ÆÆÄÆ® | 443.9§³ (134.52Æò) | | 12Ãþ | ö±ÙÄÜÅ©¸®Æ®±¸Á¶ | ¾ÆÆÄÆ® | 443.9§³ (134.52Æò) | | 13Ãþ | ö±ÙÄÜÅ©¸®Æ®±¸Á¶ | ¾ÆÆÄÆ® | 443.9§³ (134.52Æò) | | 13Ãþ | ö±ÙÄÜÅ©¸®Æ®±¸Á¶ | ¾ÆÆÄÆ® | 461.19§³ (139.75Æò) | | 14Ãþ | ö±ÙÄÜÅ©¸®Æ®±¸Á¶ | ¾ÆÆÄÆ® | 443.9§³ (134.52Æò) | | 15Ãþ | ö±ÙÄÜÅ©¸®Æ®±¸Á¶ | ¾ÆÆÄÆ® | 443.9§³ (134.52Æò) | | 16Ãþ | ö±ÙÄÜÅ©¸®Æ®±¸Á¶ | ¾ÆÆÄÆ® | 443.9§³ (134.52Æò) | | 17Ãþ | ö±ÙÄÜÅ©¸®Æ®±¸Á¶ | ¾ÆÆÄÆ® | 443.9§³ (134.52Æò) | | 18Ãþ | ö±ÙÄÜÅ©¸®Æ®±¸Á¶ | ¾ÆÆÄÆ® | 443.9§³ (134.52Æò) | | 19Ãþ | ö±ÙÄÜÅ©¸®Æ®±¸Á¶ | ¾ÆÆÄÆ® | 443.9§³ (134.52Æò) | | 19Ãþ | ö±ÙÄÜÅ©¸®Æ®±¸Á¶ | ¾ÆÆÄÆ® | 461.19§³ (139.75Æò) | | 20Ãþ | ö±ÙÄÜÅ©¸®Æ®±¸Á¶ | ¾ÆÆÄÆ® | 443.9§³ (134.52Æò) | | 21Ãþ | ö±ÙÄÜÅ©¸®Æ®±¸Á¶ | ¾ÆÆÄÆ® | 443.9§³ (134.52Æò) | | 21Ãþ | ö±ÙÄÜÅ©¸®Æ®±¸Á¶ | ¾ÆÆÄÆ® | 461.19§³ (139.75Æò) | | 22Ãþ | ö±ÙÄÜÅ©¸®Æ®±¸Á¶ | ¾ÆÆÄÆ® | 443.9§³ (134.52Æò) | | 23Ãþ | ö±ÙÄÜÅ©¸®Æ®±¸Á¶ | ¾ÆÆÄÆ® | 461.19§³ (139.75Æò) | | 23Ãþ | ö±ÙÄÜÅ©¸®Æ®±¸Á¶ | ¾ÆÆÄÆ® | 443.9§³ (134.52Æò) | | Áö1Ãþ | ö±ÙÄÜÅ©¸®Æ®±¸Á¶ | °è´Ü½Ç | 36.88§³ (11.18Æò) |
|
|
|
|
|
|
|
|
|
¸éÀû(§³), ±Ý¾×(¸¸¿ø)
| °è¾àÀÏ | ±âÁØ | ¾ÆÆÄÆ®¸í | Ãþ | Àü¿ë¸éÀû | °Å·¡±Ý¾× | °ÇÃà³âµµ | | °Å·¡³»¿ªÀÌ ¾ø½À´Ï´Ù. |
| °è¾àÀÏ | ±âÁØ | ¾ÆÆÄÆ®¸í | Ãþ | Àü¿ë¸éÀû | º¸Áõ±Ý | ¿ù¼¼ | °ÇÃà³âµµ | | 2026.04.03 | ¿ù¼¼ | ¿¬¼ö¼Çر׶ûºí1´ÜÁö | 6 | 84.95 | 2,000 | 120 | 2017 | | 2026.04.03 | ¸Å¸Å | ¿¬¼ö¼Çر׶ûºí1´ÜÁö | 17 | 84.98 | 53,000 | | 2017 | | 2026.03.23 | ¸Å¸Å | ¿¬¼ö¼Çر׶ûºí1´ÜÁö | 23 | 84.98 | 53,200 | | 2017 | | 2026.03.23 | ¿ù¼¼ | ¿¬¼ö¼Çر׶ûºí1´ÜÁö | 18 | 84.95 | 500 | 60 | 2017 | | 2026.03.21 | ¸Å¸Å | ¿¬¼ö¼Çر׶ûºí1´ÜÁö | 14 | 84.95 | 53,500 | | 2017 | | 2026.03.21 | Àü¼¼ | ¿¬¼ö¼Çر׶ûºí1´ÜÁö | 17 | 70.77 | 25,000 | 0 | 2017 | | 2026.03.16 | ¿ù¼¼ | ¿¬¼ö¼Çر׶ûºí1´ÜÁö | 9 | 84.95 | 1,000 | 55 | 2017 | | 2026.03.15 | ¿ù¼¼ | ¿¬¼ö¼Çر׶ûºí1´ÜÁö | 16 | 84.95 | 500 | 59 | 2017 | | 2026.03.14 | Àü¼¼ | ¿¬¼ö¼Çر׶ûºí1´ÜÁö | 8 | 84.98 | 34,000 | 0 | 2017 | | 2026.02.21 | ¿ù¼¼ | ¿¬¼ö¼Çر׶ûºí1´ÜÁö | 22 | 84.95 | 500 | 60 | 2017 | | 2026.02.21 | ¿ù¼¼ | ¿¬¼ö¼Çر׶ûºí1´ÜÁö | 12 | 84.95 | 500 | 56 | 2017 | | 2026.02.19 | ¿ù¼¼ | ¿¬¼ö¼Çر׶ûºí1´ÜÁö | 14 | 84.95 | 500 | 55 | 2017 | | 2026.02.12 | Àü¼¼ | ¿¬¼ö¼Çر׶ûºí1´ÜÁö | 8 | 70.75 | 33,000 | 0 | 2017 | | 2026.02.10 | ¿ù¼¼ | ¿¬¼ö¼Çر׶ûºí1´ÜÁö | 20 | 70.77 | 6,000 | 90 | 2017 | | 2026.02.08 | ¸Å¸Å | ¿¬¼ö¼Çر׶ûºí1´ÜÁö | 11 | 84.98 | 51,500 | | 2017 | | 2026.02.07 | ¿ù¼¼ | ¿¬¼ö¼Çر׶ûºí1´ÜÁö | 6 | 70.77 | 10,000 | 85 | 2017 | | 2026.02.06 | Àü¼¼ | ¿¬¼ö¼Çر׶ûºí1´ÜÁö | 2 | 84.98 | 32,000 | 0 | 2017 | | 2026.01.20 | Àü¼¼ | ¿¬¼ö¼Çر׶ûºí1´ÜÁö | 12 | 70.77 | 31,000 | 0 | 2017 | | 2026.01.20 | ¿ù¼¼ | ¿¬¼ö¼Çر׶ûºí1´ÜÁö | 17 | 70.77 | 3,000 | 130 | 2017 | | 2026.01.20 | Àü¼¼ | ¿¬¼ö¼Çر׶ûºí1´ÜÁö | 4 | 84.98 | 32,000 | 0 | 2017 | | 2026.01.20 | Àü¼¼ | ¿¬¼ö¼Çر׶ûºí1´ÜÁö | 4 | 84.98 | 31,000 | 0 | 2017 | | 2026.01.20 | Àü¼¼ | ¿¬¼ö¼Çر׶ûºí1´ÜÁö | 4 | 84.98 | 32,000 | 0 | 2017 | | 2026.01.16 | Àü¼¼ | ¿¬¼ö¼Çر׶ûºí1´ÜÁö | 4 | 84.98 | 35,000 | 0 | 2017 | | 2026.01.12 | ¸Å¸Å | ¿¬¼ö¼Çر׶ûºí1´ÜÁö | 16 | 84.98 | 54,200 | | 2017 | | 2026.01.12 | ¸Å¸Å | ¿¬¼ö¼Çر׶ûºí1´ÜÁö | 9 | 70.75 | 45,000 | | 2017 | | 2026.01.09 | ¸Å¸Å | ¿¬¼ö¼Çر׶ûºí1´ÜÁö | 14 | 70.77 | 44,500 | | 2017 | | 2026.01.08 | Àü¼¼ | ¿¬¼ö¼Çر׶ûºí1´ÜÁö | 6 | 70.75 | 31,000 | 0 | 2017 | | 2026.01.05 | ¸Å¸Å | ¿¬¼ö¼Çر׶ûºí1´ÜÁö | 11 | 84.98 | 53,500 | | 2017 | | 2025.12.26 | ¿ù¼¼ | ¿¬¼ö¼Çر׶ûºí1´ÜÁö | 15 | 84.95 | 500 | 56 | 2017 | | 2025.12.16 | Àü¼¼ | ¿¬¼ö¼Çر׶ûºí1´ÜÁö | 20 | 84.98 | 38,000 | 0 | 2017 | | 2025.12.15 | ¿ù¼¼ | ¿¬¼ö¼Çر׶ûºí1´ÜÁö | 23 | 84.95 | 500 | 55 | 2017 | | 2025.11.29 | ¿ù¼¼ | ¿¬¼ö¼Çر׶ûºí1´ÜÁö | 17 | 84.95 | 500 | 57 | 2017 | | 2025.11.20 | ¸Å¸Å | ¿¬¼ö¼Çر׶ûºí1´ÜÁö | 12 | 84.98 | 50,000 | | 2017 | | 2025.11.15 | ¿ù¼¼ | ¿¬¼ö¼Çر׶ûºí1´ÜÁö | 7 | 70.75 | 3,000 | 130 | 2017 | | 2025.11.14 | Àü¼¼ | ¿¬¼ö¼Çر׶ûºí1´ÜÁö | 8 | 70.77 | 31,500 | 0 | 2017 | | 2025.11.13 | ¸Å¸Å | ¿¬¼ö¼Çر׶ûºí1´ÜÁö | 13 | 70.75 | 48,500 | | 2017 | | 2025.11.10 | ¿ù¼¼ | ¿¬¼ö¼Çر׶ûºí1´ÜÁö | 18 | 84.95 | 500 | 50 | 2017 | | 2025.11.09 | Àü¼¼ | ¿¬¼ö¼Çر׶ûºí1´ÜÁö | 13 | 70.75 | 30,000 | 0 | 2017 | | 2025.11.07 | ¸Å¸Å | ¿¬¼ö¼Çر׶ûºí1´ÜÁö | 21 | 84.98 | 52,500 | | 2017 | | 2025.11.06 | Àü¼¼ | ¿¬¼ö¼Çر׶ûºí1´ÜÁö | 5 | 70.75 | 32,000 | 0 | 2017 | | 2025.11.05 | ¸Å¸Å | ¿¬¼ö¼Çر׶ûºí1´ÜÁö | 15 | 84.98 | 52,500 | | 2017 | | 2025.11.01 | ¸Å¸Å | ¿¬¼ö¼Çر׶ûºí1´ÜÁö | 7 | 84.98 | 54,000 | | 2017 | | 2025.10.29 | ¿ù¼¼ | ¿¬¼ö¼Çر׶ûºí1´ÜÁö | 1 | 84.42 | 3,000 | 138 | 2017 | | 2025.10.28 | ¿ù¼¼ | ¿¬¼ö¼Çر׶ûºí1´ÜÁö | 17 | 84.95 | 500 | 57 | 2017 | | 2025.10.27 | ¸Å¸Å | ¿¬¼ö¼Çر׶ûºí1´ÜÁö | 13 | 70.75 | 47,800 | | 2017 | | 2025.10.26 | ¿ù¼¼ | ¿¬¼ö¼Çر׶ûºí1´ÜÁö | 6 | 84.95 | 500 | 54 | 2017 | | 2025.10.14 | ¸Å¸Å | ¿¬¼ö¼Çر׶ûºí1´ÜÁö | 5 | 70.77 | 45,000 | | 2017 | | 2025.09.25 | ¸Å¸Å | ¿¬¼ö¼Çر׶ûºí1´ÜÁö | 12 | 70.77 | 43,250 | | 2017 | | 2025.09.20 | Àü¼¼ | ¿¬¼ö¼Çر׶ûºí1´ÜÁö | 22 | 70.75 | 29,400 | 0 | 2017 | | 2025.09.18 | Àü¼¼ | ¿¬¼ö¼Çر׶ûºí1´ÜÁö | 13 | 84.95 | 30,000 | 0 | 2017 | | 2025.09.14 | Àü¼¼ | ¿¬¼ö¼Çر׶ûºí1´ÜÁö | 13 | 70.77 | 28,500 | 0 | 2017 | | 2025.09.13 | Àü¼¼ | ¿¬¼ö¼Çر׶ûºí1´ÜÁö | 10 | 70.75 | 28,600 | 0 | 2017 | | 2025.09.05 | ¸Å¸Å | ¿¬¼ö¼Çر׶ûºí1´ÜÁö | 5 | 70.77 | 44,800 | | 2017 | | 2025.09.02 | ¸Å¸Å | ¿¬¼ö¼Çر׶ûºí1´ÜÁö | 20 | 70.77 | 46,300 | | 2017 | | 2025.08.30 | ¸Å¸Å | ¿¬¼ö¼Çر׶ûºí1´ÜÁö | 1 | 84.84 | 50,800 | | 2017 | | 2025.08.28 | ¿ù¼¼ | ¿¬¼ö¼Çر׶ûºí1´ÜÁö | 17 | 84.95 | 500 | 57 | 2017 | | 2025.08.23 | Àü¼¼ | ¿¬¼ö¼Çر׶ûºí1´ÜÁö | 3 | 70.77 | 29,500 | 0 | 2017 | | 2025.08.22 | ¿ù¼¼ | ¿¬¼ö¼Çر׶ûºí1´ÜÁö | 16 | 84.95 | 500 | 57 | 2017 | | 2025.08.20 | ¿ù¼¼ | ¿¬¼ö¼Çر׶ûºí1´ÜÁö | 14 | 84.95 | 500 | 55 | 2017 | | 2025.08.09 | Àü¼¼ | ¿¬¼ö¼Çر׶ûºí1´ÜÁö | 15 | 70.77 | 28,900 | 0 | 2017 | | 2025.08.05 | ¿ù¼¼ | ¿¬¼ö¼Çر׶ûºí1´ÜÁö | 20 | 84.98 | 3,000 | 140 | 2017 | | 2025.08.05 | ¿ù¼¼ | ¿¬¼ö¼Çر׶ûºí1´ÜÁö | 15 | 84.95 | 500 | 55 | 2017 | | 2025.08.04 | ¿ù¼¼ | ¿¬¼ö¼Çر׶ûºí1´ÜÁö | 3 | 84.95 | 500 | 55 | 2017 | | 2025.08.02 | ¸Å¸Å | ¿¬¼ö¼Çر׶ûºí1´ÜÁö | 8 | 84.98 | 52,500 | | 2017 | | 2025.07.25 | ¸Å¸Å | ¿¬¼ö¼Çر׶ûºí1´ÜÁö | 10 | 84.95 | 54,000 | | 2017 | | 2025.07.25 | ¸Å¸Å | ¿¬¼ö¼Çر׶ûºí1´ÜÁö | 11 | 70.75 | 45,300 | | 2017 | | 2025.07.23 | ¸Å¸Å | ¿¬¼ö¼Çر׶ûºí1´ÜÁö | 7 | 70.75 | 44,800 | | 2017 | | 2025.07.19 | ¸Å¸Å | ¿¬¼ö¼Çر׶ûºí1´ÜÁö | 8 | 84.98 | 52,800 | | 2017 | | 2025.07.14 | ¸Å¸Å | ¿¬¼ö¼Çر׶ûºí1´ÜÁö | 12 | 84.98 | 54,000 | | 2017 | | 2025.07.12 | ¿ù¼¼ | ¿¬¼ö¼Çر׶ûºí1´ÜÁö | 6 | 84.95 | 500 | 55 | 2017 | | 2025.07.08 | Àü¼¼ | ¿¬¼ö¼Çر׶ûºí1´ÜÁö | 3 | 70.77 | 21,000 | 0 | 2017 | | 2025.07.08 | ¸Å¸Å | ¿¬¼ö¼Çر׶ûºí1´ÜÁö | 11 | 84.98 | 54,000 | | 2017 | | 2025.06.30 | ¿ù¼¼ | ¿¬¼ö¼Çر׶ûºí1´ÜÁö | 9 | 84.95 | 1,000 | 52 | 2017 | | 2025.06.27 | ¸Å¸Å | ¿¬¼ö¼Çر׶ûºí1´ÜÁö | 3 | 84.95 | 50,700 | | 2017 | | 2025.06.19 | ¿ù¼¼ | ¿¬¼ö¼Çر׶ûºí1´ÜÁö | 2 | 84.95 | 500 | 55 | 2017 | | 2025.06.19 | ¸Å¸Å | ¿¬¼ö¼Çر׶ûºí1´ÜÁö | 11 | 84.98 | 50,500 | | 2017 | | 2025.06.16 | ¸Å¸Å | ¿¬¼ö¼Çر׶ûºí1´ÜÁö | 11 | 70.77 | 44,000 | | 2017 | | 2025.06.12 | Àü¼¼ | ¿¬¼ö¼Çر׶ûºí1´ÜÁö | 10 | 70.75 | 30,000 | 0 | 2017 | | 2025.06.11 | Àü¼¼ | ¿¬¼ö¼Çر׶ûºí1´ÜÁö | 19 | 70.75 | 30,000 | 0 | 2017 | | 2025.06.11 | Àü¼¼ | ¿¬¼ö¼Çر׶ûºí1´ÜÁö | 19 | 70.75 | 30,000 | 0 | 2017 | | 2025.06.09 | Àü¼¼ | ¿¬¼ö¼Çر׶ûºí1´ÜÁö | 15 | 70.75 | 29,000 | 0 | 2017 | | 2025.06.09 | ¸Å¸Å | ¿¬¼ö¼Çر׶ûºí1´ÜÁö | 7 | 84.98 | 49,800 | | 2017 | | 2025.06.05 | ¸Å¸Å | ¿¬¼ö¼Çر׶ûºí1´ÜÁö | 13 | 70.75 | 44,000 | | 2017 | | 2025.06.04 | ¸Å¸Å | ¿¬¼ö¼Çر׶ûºí1´ÜÁö | 7 | 70.75 | 43,000 | | 2017 | | 2025.05.31 | ¿ù¼¼ | ¿¬¼ö¼Çر׶ûºí1´ÜÁö | 4 | 84.95 | 300 | 56 | 2017 | | 2025.05.31 | ¸Å¸Å | ¿¬¼ö¼Çر׶ûºí1´ÜÁö | 19 | 70.75 | 45,100 | | 2017 | | 2025.05.31 | ¸Å¸Å | ¿¬¼ö¼Çر׶ûºí1´ÜÁö | 19 | 70.75 | 45,100 | | 2017 | | 2025.05.30 | ¿ù¼¼ | ¿¬¼ö¼Çر׶ûºí1´ÜÁö | 20 | 84.95 | 500 | 55 | 2017 | | 2025.05.29 | ¸Å¸Å | ¿¬¼ö¼Çر׶ûºí1´ÜÁö | 17 | 70.75 | 45,700 | | 2017 | | 2025.05.27 | ¿ù¼¼ | ¿¬¼ö¼Çر׶ûºí1´ÜÁö | 7 | 84.95 | 500 | 53 | 2017 | | 2025.05.25 | Àü¼¼ | ¿¬¼ö¼Çر׶ûºí1´ÜÁö | 12 | 70.75 | 28,350 | 0 | 2017 | | 2025.05.21 | Àü¼¼ | ¿¬¼ö¼Çر׶ûºí1´ÜÁö | 2 | 70.75 | 16,000 | 0 | 2017 | | 2025.05.17 | ¸Å¸Å | ¿¬¼ö¼Çر׶ûºí1´ÜÁö | 21 | 70.77 | 45,000 | | 2017 | | 2025.05.12 | ¿ù¼¼ | ¿¬¼ö¼Çر׶ûºí1´ÜÁö | 15 | 84.95 | 500 | 55 | 2017 | | 2025.05.03 | Àü¼¼ | ¿¬¼ö¼Çر׶ûºí1´ÜÁö | 3 | 84.98 | 35,000 | 0 | 2017 | | 2025.04.30 | Àü¼¼ | ¿¬¼ö¼Çر׶ûºí1´ÜÁö | 7 | 70.75 | 30,000 | 0 | 2017 | | 2025.04.30 | Àü¼¼ | ¿¬¼ö¼Çر׶ûºí1´ÜÁö | 7 | 84.95 | 31,500 | 0 | 2017 | | 2025.04.29 | ¿ù¼¼ | ¿¬¼ö¼Çر׶ûºí1´ÜÁö | 20 | 84.95 | 500 | 55 | 2017 | | 2025.04.29 | ¸Å¸Å | ¿¬¼ö¼Çر׶ûºí1´ÜÁö | 14 | 70.75 | 35,000 | | 2017 | | 2025.04.14 | Àü¼¼ | ¿¬¼ö¼Çر׶ûºí1´ÜÁö | 1 | 105.68 | 40,000 | 0 | 2017 | | 2025.04.14 | Àü¼¼ | ¿¬¼ö¼Çر׶ûºí1´ÜÁö | 1 | 105.68 | 40,000 | 0 | 2017 | | 2025.04.01 | ¸Å¸Å | ¿¬¼ö¼Çر׶ûºí1´ÜÁö | 10 | 70.75 | 42,500 | | 2017 | | 2025.04.01 | ¿ù¼¼ | ¿¬¼ö¼Çر׶ûºí1´ÜÁö | 9 | 70.75 | 5,000 | 110 | 2017 | | 2025.03.31 | Àü¼¼ | ¿¬¼ö¼Çر׶ûºí1´ÜÁö | 3 | 84.95 | 7,350 | 0 | 2017 | | 2025.03.31 | ¸Å¸Å | ¿¬¼ö¼Çر׶ûºí1´ÜÁö | 18 | 70.75 | 44,500 | | 2017 | | 2025.03.29 | ¸Å¸Å | ¿¬¼ö¼Çر׶ûºí1´ÜÁö | 23 | 84.98 | 54,000 | | 2017 | | 2025.03.28 | ¿ù¼¼ | ¿¬¼ö¼Çر׶ûºí1´ÜÁö | 16 | 84.95 | 500 | 57 | 2017 | | 2025.03.26 | Àü¼¼ | ¿¬¼ö¼Çر׶ûºí1´ÜÁö | 6 | 70.75 | 30,000 | 0 | 2017 | | 2025.03.21 | ¿ù¼¼ | ¿¬¼ö¼Çر׶ûºí1´ÜÁö | 2 | 84.98 | 3,000 | 150 | 2017 | | 2025.03.20 | ¸Å¸Å | ¿¬¼ö¼Çر׶ûºí1´ÜÁö | 13 | 70.77 | 45,000 | | 2017 | | 2025.03.19 | Àü¼¼ | ¿¬¼ö¼Çر׶ûºí1´ÜÁö | 1 | 105.68 | 36,000 | 0 | 2017 | | 2025.03.08 | ¸Å¸Å | ¿¬¼ö¼Çر׶ûºí1´ÜÁö | 5 | 70.75 | 43,000 | | 2017 | | 2025.03.08 | ¸Å¸Å | ¿¬¼ö¼Çر׶ûºí1´ÜÁö | 8 | 70.75 | 44,000 | | 2017 | | 2025.02.28 | Àü¼¼ | ¿¬¼ö¼Çر׶ûºí1´ÜÁö | 1 | 84.84 | 33,000 | 0 | 2017 | | 2025.02.25 | ¿ù¼¼ | ¿¬¼ö¼Çر׶ûºí1´ÜÁö | 3 | 84.98 | 3,000 | 120 | 2017 | | 2025.02.21 | ¸Å¸Å | ¿¬¼ö¼Çر׶ûºí1´ÜÁö | 9 | 70.75 | 45,500 | | 2017 | | 2025.02.20 | ¿ù¼¼ | ¿¬¼ö¼Çر׶ûºí1´ÜÁö | 2 | 84.95 | 3,000 | 105 | 2017 | | 2025.02.17 | ¿ù¼¼ | ¿¬¼ö¼Çر׶ûºí1´ÜÁö | 17 | 84.95 | 500 | 55 | 2017 | | 2025.02.15 | ¿ù¼¼ | ¿¬¼ö¼Çر׶ûºí1´ÜÁö | 22 | 84.95 | 500 | 55 | 2017 | | 2025.02.15 | ¿ù¼¼ | ¿¬¼ö¼Çر׶ûºí1´ÜÁö | 16 | 84.95 | 500 | 55 | 2017 | | 2025.02.09 | ¸Å¸Å | ¿¬¼ö¼Çر׶ûºí1´ÜÁö | 9 | 84.98 | 52,000 | | 2017 | | 2025.02.03 | Àü¼¼ | ¿¬¼ö¼Çر׶ûºí1´ÜÁö | 4 | 70.77 | 28,000 | 0 | 2017 | | 2025.01.23 | ¸Å¸Å | ¿¬¼ö¼Çر׶ûºí1´ÜÁö | 8 | 70.75 | 45,500 | | 2017 | | 2025.01.23 | ¸Å¸Å | ¿¬¼ö¼Çر׶ûºí1´ÜÁö | 18 | 84.98 | 50,000 | | 2017 | | 2025.01.22 | Àü¼¼ | ¿¬¼ö¼Çر׶ûºí1´ÜÁö | 12 | 70.75 | 30,000 | 0 | 2017 | | 2025.01.05 | Àü¼¼ | ¿¬¼ö¼Çر׶ûºí1´ÜÁö | 21 | 84.95 | 33,000 | 0 | 2017 | | 2025.01.05 | Àü¼¼ | ¿¬¼ö¼Çر׶ûºí1´ÜÁö | 21 | 84.95 | 33,000 | 0 | 2017 |
|
|
|
 |
ÀÓÂ÷³»¿ª |
[¹è´ç¿ä±¸Á¾±âÀÏ : 2025/08/11] |
|
|
| ÀÓÂ÷ÀÎ |
Á¡À¯°ü°è |
ÀüÀÔÀÏÀÚ |
È®Á¤ÀÏÀÚ |
¹è´ç¿ä±¸ÀÏ |
º¸Áõ±Ý/Â÷ÀÓ |
´ëÇ׿ä°Ç |
ºñ°í |
| ¸Å°¢±âÀÏ 7ÀÏÀü¿¡ ¸Å°¢¹°°Ç¸í¼¼¼°¡ °ø°íµÇ¿À´Ï È®ÀÎÇϽñ⠹ٶø´Ï´Ù. |
| ¼ÛOO |
ÀüºÎ |
2025.5.14. |
|
2025.6.17. |
30,000,000 [¿ù]1,000,000 |
X |
2024.5.17.~ÇöÀç±îÁö |
|
|
|
 |
Áö¿ªºÐ¼® |
|
|
|
|
| ÁöÇÏö |
|
Çб³ |
|
| °ü°ø¼ |
|
| ¹ý¿ø |
ÀÎõÁö¹æ¹ý¿ø (222-20)ÀÎõ±¤¿ª½Ã ¹ÌÃßȦ±¸ ¼Ò¼º·Î 163¹ø±æ 17(ÇÐÀ͵¿) ´ëÇ¥ : 032)860-1113~4 Áß±¸, µ¿±¸, ³²±¸, ¿¬¼ö±¸, ³²µ¿±¸, ºÎÆò±¸, °è¾ç±¸, ¼±¸, ¿ËÁø±º, °È±º |
| µî±â¼Ò |
ÀÎõÁö¹æ¹ý¿ø º»¿ø µî±â±¹ (´ëÇ¥:1544-0773, ÆÑ½º:(032)620-9099, ÀÎõ±¤¿ª½Ã ¹ÌÃßȦ±¸ °æ¿ø´ë·Î 881(Á־ȵ¿ 983)) |
| ¼¼¹«¼ |
³²ÀÎõ¼¼¹«¼ (´ëÇ¥:032-460-52, ÆÑ½º:032-463-5778, ÀÎõ±¤¿ª½Ã ³²µ¿±¸ ÀÎÇÏ·Î 548 (±¸¿ùµ¿)) |
|
|
|
 |
¹ý¿ø ¹°°ÇÀÚ·á ¿ä¾à |
|
|
|
|
| ¼Ò¸êµÇÁö ¾Ê´Â µî±âºÎ±Ç¸® |
|
| ¼³Á¤µÈ °ÍÀ¸·Î º¸´Â Áö»ó±Ç |
|
| ¹ý¿øÀÚ·á Æ¯ÀÌ»çÇ× |
[ÁÖ¿ä ¹®°Ç Á¢¼ö ³»¿ª]
[2025.07.28] ä±ÇÀÚ À¯OOOOOOOOOOO OOOO (OOOOOOOO OOOO) ä±ÇÀÚº¯°æ½Å°í¼ Á¦Ãâ
|
[ºÎµ¿»ê ÇöȲÁ¶»ç¼ ºñ°í¶õ]
- º»°ÇÀº ÀÎõ µ¿ÃáÃʵîÇб³ |
|
| ¿©ÀÇÁÖ°æ¸Å Á¶¾ð ÇѸ¶µð |
ÀÌ ºÎµ¿»êÀÇ ÀÔÂû¹ý¿øÀº ÀÎõÁö¹æ¹ý¿øÀÔ´Ï´Ù.
ÀÔÂûÀÏÀº 2026-04-27ÀÔ´Ï´Ù.
ÀÔÂû½Ã°£Àº ~11:20ÀÔ´Ï´Ù. ÀÌ ¹ý¿ø¿¡´Â KB±¹¹ÎÀºÇàÀÌ ÀÔÁ¡Çϰí ÀÖ½À´Ï´Ù.
|
|
|
| Åë°è±â°£ |
³«Âû¹°°Ç¼ö |
Æò±Õ°¨Á¤°¡ |
Æò±Õ³«Âû°¡ |
³«Âû°¡À² |
À¯ÂûȽ¼ö |
| 3°³¿ù |
18°Ç |
375,722,222¿ø |
306,392,874¿ø |
81% |
1.2ȸ |
| 6°³¿ù |
35°Ç |
382,628,571¿ø |
312,578,017¿ø |
82% |
1.2ȸ |
| 12°³¿ù |
75°Ç |
375,493,333¿ø |
307,703,578¿ø |
82% |
1.1ȸ |
|
|
|
|
|
|
 |
|