|
|
| ¼ÒÀçÁö |
°æ±âµµ ³²¾çÁֽà Áø°ÇÀ¾ ¿ëÁ¤¸® 757-1 Áø°Ç¼¼¾Æ¾ÆÆÄÆ® 101µ¿ 1Ãþ105È£
|
|
| »ç°Ç¹øÈ£ |
2025 Ÿ°æ 71803 |
¹°°Ç¹øÈ£ |
1
|
¹°°Ç¿ëµµ |
¾ÆÆÄÆ® |
| °¨Á¤Æò°¡¾× |
203,000,000¿ø |
°æ¸Å´ë»ó |
ÅäÁö ¹× °Ç¹°Àϰý ¸Å°¢ |
ÁøÇà»óÅ |
½Å°Ç |
| ÃÖÀúÀÔÂû°¡ |
(100%) 203,000,000¿ø
|
°Ç¹°¸éÀû |
58.22§³(17.61Æò) |
ÀÔÂû±âÀÏ |
2026.05.07(¸ñ) 10:30
(ÀÔÂû 14ÀÏÀü)
|
| ÀÔÂûº¸Áõ±Ý |
(10%) 20,300,000¿ø |
ÅäÁö¸éÀû |
25.13§³(7.60Æò)
|
À¯ÂûȽ¼ö |
0ȸ |
| ÀÔÂû¹ý¿ø |
ÀÇÁ¤ºÎÁö¹æ¹ý¿ø ³²¾çÁÖÁö¿ø |
°æ¸Å¹æ¹ý |
|
¹°°ÇÁ¶È¸¼ö |
¿À´Ã: 15ȸ [´©Àû: 16ȸ]
|
| ¸»¼Ò±âÁØ | |
|
|
|
|
|
|
|
|
|
|
°æ¸Å´ë»ó ¸ñ·Ï
|
|
| ±¸ºÐ |
¸ñ·Ï |
ÁÖ¼Ò |
±¸Á¶/¿ëµµ/´ëÁö±Ç |
ºñ°í |
´ëÁö±Ç
|
1 |
¿ëÁ¤¸® 757-1 |
14324ºÐÀÇ 25.13 |
25.13§³ (7.60Æò)
|
°Ç¹°
|
1 |
¿ëÁ¤¸® 757-1 |
101µ¿ 1Ãþ105È£ ö±ÙÄÜÅ©¸®Æ®Á¶ |
58.22§³ (17.61Æò)
|
|
|
|
2026-05-07
ÁøÇà
|
(100%)
203,000,000¿ø
|
|
|
|
|
|
°¨Á¤Æò°¡¼ ¿ä¾à |
|
[À§Ä¡/ÁÖÀ§È¯°æ]
º»°ÇÀº °æ±âµµ ³²¾çÁֽà Áø°ÇÀ¾ ¿ëÁ¤¸® ¼ÒÀç ""Áø°ÇÃʵîÇб³"" ºÏ¼Ãø Àαٿ¡ À§Ä¡Çϸç, ÁÖÀ§
´Â ¾ÆÆÄÆ®´ÜÁö ¹× ±Ù¸°»ýȰ½Ã¼³, ´Üµ¶ÁÖÅà µîÀÌ È¥ÀçÇÏ´Â Áö¿ªÀÓ.
[±³Åë»óȲ]
º»°Ç±îÁö Â÷·®ÃâÀÔÀÌ ¿ëÀÌÇϸç, Àαٿ¡ ¹ö½ºÁ¤·ùÀåÀÌ ¼ÒÀçÇÏ´Â µî ±³Åë»óȲÀº ¹«³ÇÔ.
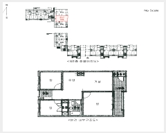
[°Ç¹°±¸Á¶]
ö±ÙÄÜÅ©¸®Æ®Á¶ Æò½½·¡ºêÁöºØ Áö»ó25Ãþ °Ç³» Á¦1Ãþ Á¦105È£·Î¼,
¿Üº®: ¸ôÅ»À§ ÆäÀÎÆ® ¸¶°¨ µî.
³»º®: º®Áöµµ¹è ¹× ŸÀϺÙÀÓ ¸¶°¨ µî(޹®Á¶»ç).
âȣ: ¼¦½Ã âȣ µî.
[ÀÌ¿ë»óÅÂ]
¾ÆÆÄÆ®·Î ÀÌ¿ëÁßÀÓ.
[¼³ºñ³»¿ª]
À§»ý ¹× ±Þ¹è¼ö¼³ºñ, ³¹æ¼³ºñ, ½Â°±â¼³ºñ, ¼ÒÈÀü¼³ºñ µîÀÌ µÇ¾î ÀÖÀ½.
[ÅäÁöÇü»ó/ÀÌ¿ë»óÅÂ]
ºÎÁ¤ÇüÀÇ ÅäÁö·Î¼, ¾ÆÆÄÆ® °ÇºÎÁö·Î ÀÌ¿ëÁßÀÓ.
7)ÀÎÁ¢ µµ·Î»óŵî
Á¦¹Ý Â÷·® ÃâÀÔÀÌ °¡´ÉÇÒ Á¤µµÀÇ µµ·Î±â¹Ý½Ã¼³À» °®Ãß¾úÀ½.
[ÅäÁöÀÌ¿ë°èȹ]
µµ½ÃÁö¿ª, Á¦3Á¾ÀϹÝÁÖ°ÅÁö¿ª, ¼Ò·Î2·ù(Æø 8m~10m)(±¹Áöµµ·Î)(Á¢ÇÕ), °¡Ãà»çÀ°Á¦Çѱ¸¿ª£¼°¡
ÃàºÐ´¢ÀÇ °ü¸® ¹× À̿뿡 °üÇÑ ¹ý·ü£¾, »ó´ëº¸È£±¸¿ª(2012-11-29)(Çѽű׸°À¯Ä¡¿ø(±¸¸®³²¾ç
ÁÖ±³À°Áö¿øÃ»¿¡ ¹®Àǹٶ÷))£¼±³À°È¯°æ º¸È£¿¡ °üÇÑ ¹ý·ü£¾, ¹èÃâ½Ã¼³¼³Ä¡Á¦ÇÑÁö¿ª£¼¹°È¯°æº¸Àü
¹ý£¾, ¼ºÀå°ü¸®±Ç¿ª£¼¼öµµ±ÇÁ¤ºñ°èȹ¹ý£¾, °øÀå¼³¸³½ÂÀÎÁö¿ª(¼öµµ¹ý½ÃÇà·É Á¦14Á¶ÀÇ3 1È£)£¼¼ö
µµ¹ý£¾ÀÓ.
[°øºÎ¿ÍÀÇ Â÷ÀÌ]
-.
[Âü°í»çÇ×]
ÀÓ´ë ¹Ì»óÀÓ. |
|
|
|
|
|
|
|
¸éÀû(§³), ±Ý¾×(¸¸¿ø)
| °è¾àÀÏ | ±âÁØ | ¾ÆÆÄÆ®¸í | Ãþ | Àü¿ë¸éÀû | °Å·¡±Ý¾× | °ÇÃà³âµµ | | °Å·¡³»¿ªÀÌ ¾ø½À´Ï´Ù. |
| °è¾àÀÏ | ±âÁØ | ¾ÆÆÄÆ®¸í | Ãþ | Àü¿ë¸éÀû | º¸Áõ±Ý | ¿ù¼¼ | °ÇÃà³âµµ | | 2026.04.09 | ¿ù¼¼ | ¼¼¾Æ | 16 | 84.57 | 3,000 | 60 | 1997 | | 2026.04.07 | Àü¼¼ | ¼¼¾Æ | 6 | 58.22 | 14,500 | 0 | 1997 | | 2026.03.28 | ¸Å¸Å | ¼¼¾Æ | 3 | 58.22 | 21,300 | | 1997 | | 2026.03.21 | Àü¼¼ | ¼¼¾Æ | 15 | 58.22 | 16,500 | 0 | 1997 | | 2026.03.19 | ¸Å¸Å | ¼¼¾Æ | 7 | 58.22 | 15,000 | | 1997 | | 2026.03.13 | ¸Å¸Å | ¼¼¾Æ | 12 | 84.57 | 27,000 | | 1997 | | 2026.03.09 | ¸Å¸Å | ¼¼¾Æ | 22 | 84.57 | 30,500 | | 1997 | | 2026.03.07 | Àü¼¼ | ¼¼¾Æ | 5 | 84.57 | 17,500 | 0 | 1997 | | 2026.03.07 | ¸Å¸Å | ¼¼¾Æ | 10 | 58.22 | 18,750 | | 1997 | | 2026.03.03 | Àü¼¼ | ¼¼¾Æ | 2 | 84.57 | 21,000 | 0 | 1997 | | 2026.02.17 | Àü¼¼ | ¼¼¾Æ | 4 | 58.22 | 15,000 | 0 | 1997 | | 2026.02.07 | ¸Å¸Å | ¼¼¾Æ | 21 | 58.22 | 17,600 | | 1997 | | 2026.02.06 | Àü¼¼ | ¼¼¾Æ | 9 | 58.22 | 16,000 | 0 | 1997 | | 2026.02.06 | Àü¼¼ | ¼¼¾Æ | 9 | 58.22 | 16,000 | 0 | 1997 | | 2026.02.02 | ¿ù¼¼ | ¼¼¾Æ | 11 | 58.22 | 2,000 | 65 | 1997 | | 2026.01.18 | ¸Å¸Å | ¼¼¾Æ | 10 | 58.22 | 18,500 | | 1997 | | 2026.01.17 | Àü¼¼ | ¼¼¾Æ | 14 | 84.57 | 23,000 | 0 | 1997 | | 2026.01.13 | ¸Å¸Å | ¼¼¾Æ | 9 | 58.22 | 9,000 | | 1997 | | 2025.12.20 | ¿ù¼¼ | ¼¼¾Æ | 1 | 84.57 | 3,000 | 80 | 1997 | | 2025.12.20 | ¿ù¼¼ | ¼¼¾Æ | 1 | 84.57 | 3,000 | 80 | 1997 | | 2025.12.16 | ¸Å¸Å | ¼¼¾Æ | 22 | 84.57 | 26,750 | | 1997 | | 2025.12.13 | ¸Å¸Å | ¼¼¾Æ | 10 | 58.22 | 19,000 | | 1997 | | 2025.11.09 | ¸Å¸Å | ¼¼¾Æ | 18 | 58.22 | 18,000 | | 1997 | | 2025.11.04 | ¿ù¼¼ | ¼¼¾Æ | 10 | 58.22 | 3,000 | 55 | 1997 | | 2025.11.03 | ¸Å¸Å | ¼¼¾Æ | 14 | 58.22 | 18,500 | | 1997 | | 2025.10.25 | ¿ù¼¼ | ¼¼¾Æ | 9 | 58.22 | 2,000 | 60 | 1997 | | 2025.09.19 | ¿ù¼¼ | ¼¼¾Æ | 8 | 84.57 | 3,000 | 60 | 1997 | | 2025.09.12 | ¸Å¸Å | ¼¼¾Æ | 10 | 84.57 | 27,500 | | 1997 | | 2025.09.04 | Àü¼¼ | ¼¼¾Æ | 22 | 58.22 | 15,300 | 0 | 1997 | | 2025.08.27 | ¸Å¸Å | ¼¼¾Æ | 17 | 58.22 | 21,000 | | 1997 | | 2025.08.23 | ¿ù¼¼ | ¼¼¾Æ | 13 | 58.22 | 5,000 | 45 | 1997 | | 2025.08.14 | Àü¼¼ | ¼¼¾Æ | 11 | 58.22 | 16,000 | 0 | 1997 | | 2025.08.13 | Àü¼¼ | ¼¼¾Æ | 4 | 58.22 | 16,500 | 0 | 1997 | | 2025.07.21 | ¸Å¸Å | ¼¼¾Æ | 3 | 84.41 | 25,200 | | 1997 | | 2025.07.20 | ¸Å¸Å | ¼¼¾Æ | 10 | 58.22 | 19,000 | | 1997 | | 2025.07.17 | ¿ù¼¼ | ¼¼¾Æ | 10 | 58.22 | 2,000 | 60 | 1997 | | 2025.07.17 | ¿ù¼¼ | ¼¼¾Æ | 10 | 58.22 | 2,000 | 60 | 1997 | | 2025.07.11 | ¸Å¸Å | ¼¼¾Æ | 21 | 84.57 | 26,500 | | 1997 | | 2025.06.06 | Àü¼¼ | ¼¼¾Æ | 22 | 84.57 | 20,000 | 0 | 1997 | | 2025.06.04 | ¸Å¸Å | ¼¼¾Æ | 7 | 58.22 | 18,800 | | 1997 | | 2025.06.04 | ¸Å¸Å | ¼¼¾Æ | 4 | 84.57 | 23,200 | | 1997 | | 2025.05.30 | ¿ù¼¼ | ¼¼¾Æ | 7 | 58.22 | 5,000 | 50 | 1997 | | 2025.05.24 | ¸Å¸Å | ¼¼¾Æ | 13 | 58.22 | 18,100 | | 1997 | | 2025.05.15 | ¿ù¼¼ | ¼¼¾Æ | 13 | 84.57 | 3,000 | 70 | 1997 | | 2025.04.22 | ¸Å¸Å | ¼¼¾Æ | 23 | 84.57 | 26,700 | | 1997 | | 2025.02.25 | Àü¼¼ | ¼¼¾Æ | 7 | 58.22 | 14,000 | 0 | 1997 | | 2025.02.19 | Àü¼¼ | ¼¼¾Æ | 5 | 84.57 | 21,000 | 0 | 1997 | | 2025.02.19 | Àü¼¼ | ¼¼¾Æ | 5 | 84.57 | 21,000 | 0 | 1997 | | 2025.02.12 | Àü¼¼ | ¼¼¾Æ | 5 | 58.22 | 13,500 | 0 | 1997 | | 2025.02.07 | Àü¼¼ | ¼¼¾Æ | 21 | 58.22 | 17,000 | 0 | 1997 | | 2025.01.21 | Àü¼¼ | ¼¼¾Æ | 8 | 84.57 | 20,000 | 0 | 1997 | | 2025.01.11 | ¸Å¸Å | ¼¼¾Æ | 8 | 58.22 | 20,000 | | 1997 |
|
|
|
 |
ÀÓÂ÷³»¿ª |
[¹è´ç¿ä±¸Á¾±âÀÏ : 2025/08/26] |
|
|
| ÀÓÂ÷ÀÎ |
Á¡À¯°ü°è |
ÀüÀÔÀÏÀÚ |
È®Á¤ÀÏÀÚ |
¹è´ç¿ä±¸ÀÏ |
º¸Áõ±Ý/Â÷ÀÓ |
´ëÇ׿ä°Ç |
ºñ°í |
| ¸Å°¢±âÀÏ 7ÀÏÀü¿¡ °ø°íµÇ¿À´Ï È®ÀÎÇϽñ⠹ٶø´Ï´Ù. |
|
|
|
¼¼¾Æ ¾ÆÆÄÆ® °³¿ä |
|
|
|
| ¾ÆÆÄÆ®¸í |
°Ç¼³È¸»ç |
ÀÔÁֳ⵵ |
ÃѰ¡±¸¼ö |
ÃâÀÔ±¸Á¶ |
Àü¿ë¸éÀûºÐÆ÷ |
³¹æ¹æ½Ä |
°ü¸®»ç¹«¼Ò |
| ¼¼¾Æ¾ÆÆÄÆ® |
¼¼¾Æ(ÁÖ) |
1997-07-01 |
440°¡±¸(2°³µ¿) |
Æíº¹µµ½Ä |
58~84§³ |
°³º°/µµ½Ã°¡½º |
¢Ï 031)573-9683 |
|
|
|
 |
Áö¿ªºÐ¼® |
|
|
|
|
| ÁöÇÏö |
|
Çб³ |
|
| °ü°ø¼ |
|
| ¹ý¿ø |
ÀÇÁ¤ºÎÁö¹æ¹ý¿ø ³²¾çÁÖÁö¿ø (122-49)°æ±âµµ ³²¾çÁֽà ´Ù»êÁß¾Ó·Î82¹ø¾È±æ 161(´Ù»êµ¿) ´ëÇ¥ : 031)869-4114 °¡Æò±º, ±¸¸®½Ã, ³²¾çÁֽà |
| µî±â¼Ò |
ÀÇÁ¤ºÎÁö¹æ¹ý¿ø º»¿ø ³²¾çÁÖµî±â¼Ò (´ëÇ¥:1544-0773, ÆÑ½º:(031)551-2010, °æ±âµµ ³²¾çÁֽà °æÃá·Î 514 (Áö±Ýµ¿ 158-4)) |
| ¼¼¹«¼ |
³²¾çÁÖ¼¼¹«¼ (´ëÇ¥:031-550-32, ÆÑ½º:031-566-1808, °æ±âµµ ±¸¸®½Ã ¾È°ñ·Î 36 (±³¹®µ¿)) |
|
|
|
 |
¹ý¿ø ¹°°ÇÀÚ·á ¿ä¾à |
|
|
|
|
| ¼Ò¸êµÇÁö ¾Ê´Â µî±âºÎ±Ç¸® |
|
| ¼³Á¤µÈ °ÍÀ¸·Î º¸´Â Áö»ó±Ç |
|
| ¹ý¿øÀÚ·á Æ¯ÀÌ»çÇ× |
[ÁÖ¿ä ¹®°Ç Á¢¼ö ³»¿ª]
|
[ºÎµ¿»ê ÇöȲÁ¶»ç¼ ºñ°í¶õ]
ÀÌ»ç°Ç ºÎµ¿ |
|
| ¿©ÀÇÁÖ°æ¸Å Á¶¾ð ÇѸ¶µð |
ÀÌ ºÎµ¿»êÀÇ ÀÔÂû¹ý¿øÀº ÀÇÁ¤ºÎÁö¹æ¹ý¿ø ³²¾çÁÖÁö¿øÀÔ´Ï´Ù.
ÀÔÂûÀÏÀº 2026-05-07ÀÔ´Ï´Ù.
ÀÔÂû½Ã°£Àº ~11:50ÀÔ´Ï´Ù. ÀÌ ¹ý¿ø¿¡´Â ½ÅÇÑÀºÇàÀÌ ÀÔÁ¡Çϰí ÀÖ½À´Ï´Ù.
|
|
|
| Åë°è±â°£ |
³«Âû¹°°Ç¼ö |
Æò±Õ°¨Á¤°¡ |
Æò±Õ³«Âû°¡ |
³«Âû°¡À² |
À¯ÂûȽ¼ö |
| 3°³¿ù |
63°Ç |
503,269,841¿ø |
432,843,421¿ø |
85% |
1ȸ |
| 6°³¿ù |
155°Ç |
467,645,161¿ø |
402,614,245¿ø |
85% |
1ȸ |
| 12°³¿ù |
322°Ç |
468,183,230¿ø |
400,890,428¿ø |
84% |
1.1ȸ |
|
|
|
|
|
|
 |
|