|
|
| ¼ÒÀçÁö |
ÀÎõ±¤¿ª½Ã ¼±¸ ¸¶Àüµ¿ 997-1 ÀÎõ°Ë´ÜÈú½ºÅ×ÀÌÆ®2Â÷ 208µ¿ 1Ãþ101È£
|
|
| »ç°Ç¹øÈ£ |
2025 Ÿ°æ 507804 Áߺ¹ 2025Ÿ°æ513016, |
¹°°Ç¹øÈ£ |
1
|
¹°°Ç¿ëµµ |
¾ÆÆÄÆ® |
| °¨Á¤Æò°¡¾× |
486,000,000¿ø |
°æ¸Å´ë»ó |
ÅäÁö ¹× °Ç¹°Àϰý ¸Å°¢ |
ÁøÇà»óÅ |
½Å°Ç |
| ÃÖÀúÀÔÂû°¡ |
(100%) 486,000,000¿ø
|
°Ç¹°¸éÀû |
123.16§³(37.26Æò) |
ÀÔÂû±âÀÏ |
2026.05.07(¸ñ) 10:00
(ÀÔÂû 14ÀÏÀü)
|
| ÀÔÂûº¸Áõ±Ý |
(10%) 48,600,000¿ø |
ÅäÁö¸éÀû |
63.66§³(19.26Æò)
|
À¯ÂûȽ¼ö |
0ȸ |
| ÀÔÂû¹ý¿ø |
ÀÎõÁö¹æ¹ý¿ø |
°æ¸Å¹æ¹ý |
|
¹°°ÇÁ¶È¸¼ö |
¿À´Ã: 22ȸ [´©Àû: 24ȸ]
|
| ¸»¼Ò±âÁØ | ÃÖ¼±¼øÀ§ ¼³Á¤ : 2015.05.20. ±ÙÀú´ç±Ç ¼³Á¤
|
|
|
|
|
|
|
|
|
|
|
°æ¸Å´ë»ó ¸ñ·Ï
|
|
| ±¸ºÐ |
¸ñ·Ï |
ÁÖ¼Ò |
±¸Á¶/¿ëµµ/´ëÁö±Ç |
ºñ°í |
´ëÁö±Ç
|
1 |
¸¶Àüµ¿ 997-1 |
21675.3ºÐÀÇ 63.66 |
63.66§³ (19.26Æò)
|
°Ç¹°
|
1 |
¸¶Àüµ¿ 997-1 |
208µ¿ 1Ãþ101È£ ö±ÙÄÜÅ©¸®Æ®±¸Á¶ |
123.158§³ (37.26Æò)
|
|
|
|
2026-05-07
ÁøÇà
|
(100%)
486,000,000¿ø
|
|
|
|
|
|
°¨Á¤Æò°¡¼ ¿ä¾à |
|
[À§Ä¡/ÁÖÀ§È¯°æ]
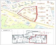
º»°ÇÀº ÀÎõ±¤¿ª½Ã ¼±¸ ¸¶Àüµ¿¼ÒÀç ¿ÏÁ¤ÃʵîÇб³ ºÏ¼ÃøÀαٿ¡ À§Ä¡Çϸç
ÁÖÀ§·Î´Â °øµ¿ÁÖÅà ¹× ´Üµ¶ÁÖÅÃ,±Ù¸°»ýȰ½Ã¼³ÀÌ È¥ÀçÇÔ.
[±³Åë»óȲ]
º»°Ç±îÁö Â÷·®ÃâÀÔ °¡´ÉÇϰí Àαٿ¡ ¹ö½ºÁ¤·ùÀå ¹× ÁöÇÏö¿ª(¿ÏÁ¤¿ª)ÀÌ ¼ÒÀçÇÏ¿©
±³Åë¿©°ÇÀº ¹«³ÇÔ.
[°Ç¹°±¸Á¶]
ö±ÙÄÜÅ©¸®Æ®±¸Á¶ °æ»çÁöºØ 15Ãþ °Ç¹° Áß 1Ãþ 101È£·Î¼
¿Üº®:¸ôÅ»À§ ÆäÀÎÆÃ¸¶°¨µî.
âȣ:ÇÏÀÌ»þ½Ãâȣ.
[ÀÌ¿ë»óÅÂ]
¾ÆÆÄÆ®·Î ÀÌ¿ëÁßÀÓ,
[¼³ºñ³»¿ª]
À§»ý¼³ºñ,³¹æ¼³ºñ,½Â°±â¼³ºñµîÀÌ µÇ¾îÀÖÀ½.
[ÅäÁöÇü»ó/ÀÌ¿ë»óÅÂ]
2ÇÊ ÀÏ´ÜÁöÀÇ ºÎÁ¤ÇüÅäÁö¸¦ ¾ÆÆÄÆ® °ÇºÎÁö·Î ÀÌ¿ëÁßÀÓ.
7)ÀÎÁ¢ µµ·Î»óŵî
´ÜÁö³»µµ·Î°¡ ¿Ü°û°øµµ¿¡ ¿¬°áµÊ.
[ÅäÁöÀÌ¿ë°èȹ]
±âÈ£1(¸¶Àüµ¿997-1)
Á¦3Á¾ÀϹÝÁÖ°ÅÁö¿ª(2013-05-27) , Áö±¸´ÜÀ§°èȹ±¸¿ª(°Ë´Ü2±¸È¹Á¤¸®) , ´ë·Î3·ù(Æø 25m~30m)(2013-05-27)(Á¢ÇÕ) , µµ½Ãöµµ(2024-03-11)(ÀúÃË) , Áß·Î2·ù(Æø 15m~20m)(2013-05-27)(Á¢ÇÕ)
°¡Ãà»çÀ°Á¦Çѱ¸¿ª(ÀÎõ±¤¿ª½Ã ¼±¸Á¶·Ê Á¦1749È£)£¼°¡ÃàºÐ´¢ÀÇ °ü¸® ¹× À̿뿡 °üÇÑ ¹ý·ü£¾, »ó´ëº¸È£±¸¿ª(2015-03-31)(¼ºÎ±³À°Áö¿øÃ»)£¼±³À°È¯°æ º¸È£¿¡ °üÇÑ ¹ý·ü£¾, »ó´ëº¸È£±¸¿ª(¼ºÎ±³À°Áö¿øÃ»)£¼±³À°È¯°æ º¸È£¿¡ °üÇÑ ¹ý·ü£¾, ¼ºÀå°ü¸®±Ç¿ª£¼¼öµµ±ÇÁ¤ºñ°èȹ¹ý£¾, öµµº¸È£Áö±¸£¼Ã¶µµ¾ÈÀü¹ý£¾
±âÈ£2(¸¶Àüµ¿997-2)
Á¦3Á¾ÀϹÝÁÖ°ÅÁö¿ª(2013-05-27) , Áö±¸´ÜÀ§°èȹ±¸¿ª(°Ë´Ü2±¸È¹Á¤¸®) , ´ë·Î3·ù(Æø 25m~30m)(2013-05-27)(Á¢ÇÕ) , Áß·Î2·ù(Æø 15m~20m)(2013-05-27)(Á¢ÇÕ)
°¡Ãà»çÀ°Á¦Çѱ¸¿ª(ÀÎõ±¤¿ª½Ã ¼±¸Á¶·Ê Á¦1749È£)£¼°¡ÃàºÐ´¢ÀÇ °ü¸® ¹× À̿뿡 °üÇÑ ¹ý·ü£¾, »ó´ëº¸È£±¸¿ª(2015-03-31)(¼ºÎ±³À°Áö¿øÃ»)£¼±³À°È¯°æ º¸È£¿¡ °üÇÑ ¹ý·ü£¾, »ó´ëº¸È£±¸¿ª(¼ºÎ±³À°Áö¿øÃ»)£¼±³À°È¯°æ º¸È£¿¡ °üÇÑ ¹ý·ü£¾, ¼ºÀå°ü¸®±Ç¿ª£¼¼öµµ±ÇÁ¤ºñ°èȹ¹ý£¾, öµµº¸È£Áö±¸£¼Ã¶µµ¾ÈÀü¹ý£¾
[°øºÎ¿ÍÀÇ Â÷ÀÌ]
º»°ÇÀº °øºÎ»ó ¸¶Àüµ¿997-1¿Ü 2ÇÊÁö»ó¿¡ ¼ÒÀçÇϳª 997-7¹øÁö´Â öµµ¿ëÁö·Î ºÐÇʵǾî
ÇöȲ 997-1,997-2 Áö»ó¿¡ ¼ÒÀçÇÔ.
[Âü°í»çÇ×]
ÀÓ´ë°ü°è:¹Ì»óÀÓ. |
|
|
°ÇÃ๰ÇöȲ |
|
|
|
| ¼ÒÀçÁö |
ÀÎõ±¤¿ª½Ã ¼±¸ ¸¶Àüµ¿ 997-1¹øÁö |
| ´ëÁö¸éÀû |
|
¿¬¸éÀû |
4398.698§³(1332.94Æò) |
ÁÖ¿ëµµ |
°øµ¿ÁÖÅà |
| °ÇÃà¸éÀû |
402.91§³(122.09Æò) |
¿ëÀû·ü»êÁ¤¿¬¸éÀû |
4398.698§³(1332.94Æò) |
Âø°øÀÏÀÚ |
2007.11.27 |
| °ÇÆóÀ² |
|
¿ëÀû·ü |
|
»ç¿ë½ÂÀÎÀÏÀÚ |
2010.03.25 |
| Áö»óÃþ¼ö |
15Ãþ |
ÁöÇÏÃþ¼ö |
|
±¸Á¶ |
ö±ÙÄÜÅ©¸®Æ®±¸Á¶ |
°ÇÃ๰Ãþº°ÇöȲ [º¸±â]| Ãþº° | ±¸Á¶ | ¿ëµµ | ¸éÀû | | 1Ãþ | ö±ÙÄÜÅ©¸®Æ®±¸Á¶ | °ü¸®»ç¹«¼Ò,MDF½Ç | 111.675§³ (33.84Æò) | | 1Ãþ | ö±ÙÄÜÅ©¸®Æ®±¸Á¶ | ¾ÆÆÄÆ® | 309.664§³ (93.84Æò) | | 1Ãþ | ö±ÙÄÜÅ©¸®Æ®±¸Á¶ | Á¦2Á¾±Ù¸°»ýȰ½Ã¼³ | 115.332§³ (34.95Æò) | | 1Ãþ | ö±ÙÄÜÅ©¸®Æ®±¸Á¶ | ¾ÆÆÄÆ® | 691.644§³ (209.59Æò) | | 2Ãþ | ö±ÙÄÜÅ©¸®Æ®±¸Á¶ | ¾ÆÆÄÆ® | 301.414§³ (91.34Æò) | | 3Ãþ | ö±ÙÄÜÅ©¸®Æ®±¸Á¶ | ¾ÆÆÄÆ® | 675.144§³ (204.59Æò) | | 3Ãþ | ö±ÙÄÜÅ©¸®Æ®±¸Á¶ | ¾ÆÆÄÆ® | 301.414§³ (91.34Æò) | | 4Ãþ | ö±ÙÄÜÅ©¸®Æ®±¸Á¶ | ¾ÆÆÄÆ® | 675.144§³ (204.59Æò) | | 4Ãþ | ö±ÙÄÜÅ©¸®Æ®±¸Á¶ | ¾ÆÆÄÆ® | 301.414§³ (91.34Æò) | | 5Ãþ | ö±ÙÄÜÅ©¸®Æ®±¸Á¶ | ¾ÆÆÄÆ® | 301.414§³ (91.34Æò) | | 5Ãþ | ö±ÙÄÜÅ©¸®Æ®±¸Á¶ | ¾ÆÆÄÆ® | 675.144§³ (204.59Æò) | | 6Ãþ | ö±ÙÄÜÅ©¸®Æ®±¸Á¶ | ¾ÆÆÄÆ® | 675.144§³ (204.59Æò) | | 6Ãþ | ö±ÙÄÜÅ©¸®Æ®±¸Á¶ | ¾ÆÆÄÆ® | 301.414§³ (91.34Æò) | | 7Ãþ | ö±ÙÄÜÅ©¸®Æ®±¸Á¶ | ¾ÆÆÄÆ® | 301.414§³ (91.34Æò) | | 7Ãþ | ö±ÙÄÜÅ©¸®Æ®±¸Á¶ | ¾ÆÆÄÆ® | 675.144§³ (204.59Æò) | | 8Ãþ | ö±ÙÄÜÅ©¸®Æ®±¸Á¶ | ¾ÆÆÄÆ® | 675.144§³ (204.59Æò) | | 8Ãþ | ö±ÙÄÜÅ©¸®Æ®±¸Á¶ | ¾ÆÆÄÆ® | 301.414§³ (91.34Æò) | | 9Ãþ | ö±ÙÄÜÅ©¸®Æ®±¸Á¶ | ¾ÆÆÄÆ® | 301.414§³ (91.34Æò) | | 10Ãþ | ö±ÙÄÜÅ©¸®Æ®±¸Á¶ | ¾ÆÆÄÆ® | 675.144§³ (204.59Æò) | | 10Ãþ | ö±ÙÄÜÅ©¸®Æ®±¸Á¶ | ¾ÆÆÄÆ® | 301.414§³ (91.34Æò) | | 11Ãþ | ö±ÙÄÜÅ©¸®Æ®±¸Á¶ | ¾ÆÆÄÆ® | 675.144§³ (204.59Æò) | | 11Ãþ | ö±ÙÄÜÅ©¸®Æ®±¸Á¶ | ¾ÆÆÄÆ® | 301.414§³ (91.34Æò) | | 12Ãþ | ö±ÙÄÜÅ©¸®Æ®±¸Á¶ | ¾ÆÆÄÆ® | 675.144§³ (204.59Æò) | | 12Ãþ | ö±ÙÄÜÅ©¸®Æ®±¸Á¶ | ¾ÆÆÄÆ® | 301.414§³ (91.34Æò) | | 13Ãþ | ö±ÙÄÜÅ©¸®Æ®±¸Á¶ | ¾ÆÆÄÆ® | 675.144§³ (204.59Æò) | | 13Ãþ | ö±ÙÄÜÅ©¸®Æ®±¸Á¶ | ¾ÆÆÄÆ® | 301.414§³ (91.34Æò) | | 14Ãþ | ö±ÙÄÜÅ©¸®Æ®±¸Á¶ | ¾ÆÆÄÆ® | 675.144§³ (204.59Æò) | | 14Ãþ | ö±ÙÄÜÅ©¸®Æ®±¸Á¶ | ¾ÆÆÄÆ® | 301.414§³ (91.34Æò) | | 15Ãþ | ö±ÙÄÜÅ©¸®Æ®±¸Á¶ | ¾ÆÆÄÆ® | 675.144§³ (204.59Æò) | | 15Ãþ | ö±ÙÄÜÅ©¸®Æ®±¸Á¶ | ¾ÆÆÄÆ® | 301.414§³ (91.34Æò) |
|
|
|
|
|
|
|
|
|
¸éÀû(§³), ±Ý¾×(¸¸¿ø)
| °è¾àÀÏ | ±âÁØ | ¾ÆÆÄÆ®¸í | Ãþ | Àü¿ë¸éÀû | °Å·¡±Ý¾× | °ÇÃà³âµµ | | °Å·¡³»¿ªÀÌ ¾ø½À´Ï´Ù. |
| °è¾àÀÏ | ±âÁØ | ¾ÆÆÄÆ®¸í | Ãþ | Àü¿ë¸éÀû | º¸Áõ±Ý | ¿ù¼¼ | °ÇÃà³âµµ | | 2026.03.10 | ¿ù¼¼ | °Ë´ÜÈú½ºÅ×ÀÌÆ®2Â÷ | 10 | 140.395 | 3,000 | 150 | 2010 | | 2026.02.28 | ¿ù¼¼ | °Ë´ÜÈú½ºÅ×ÀÌÆ®2Â÷ | 11 | 123.158 | 3,000 | 145 | 2010 | | 2026.02.26 | Àü¼¼ | °Ë´ÜÈú½ºÅ×ÀÌÆ®2Â÷ | 15 | 140.395 | 35,500 | 0 | 2010 | | 2026.02.07 | ¸Å¸Å | °Ë´ÜÈú½ºÅ×ÀÌÆ®2Â÷ | 8 | 123.158 | 47,750 | | 2010 | | 2026.01.28 | ¸Å¸Å | °Ë´ÜÈú½ºÅ×ÀÌÆ®2Â÷ | 14 | 140.395 | 50,000 | | 2010 | | 2026.01.22 | Àü¼¼ | °Ë´ÜÈú½ºÅ×ÀÌÆ®2Â÷ | 1 | 125.528 | 32,000 | 0 | 2010 | | 2026.01.17 | Àü¼¼ | °Ë´ÜÈú½ºÅ×ÀÌÆ®2Â÷ | 7 | 123.158 | 25,000 | 0 | 2010 | | 2026.01.02 | ¸Å¸Å | °Ë´ÜÈú½ºÅ×ÀÌÆ®2Â÷ | 10 | 140.395 | 49,000 | | 2010 | | 2025.12.02 | ¸Å¸Å | °Ë´ÜÈú½ºÅ×ÀÌÆ®2Â÷ | 4 | 123.158 | 43,000 | | 2010 | | 2025.11.22 | Àü¼¼ | °Ë´ÜÈú½ºÅ×ÀÌÆ®2Â÷ | 7 | 125.528 | 31,400 | 0 | 2010 | | 2025.11.08 | ¸Å¸Å | °Ë´ÜÈú½ºÅ×ÀÌÆ®2Â÷ | 12 | 123.158 | 44,000 | | 2010 | | 2025.11.01 | ¸Å¸Å | °Ë´ÜÈú½ºÅ×ÀÌÆ®2Â÷ | 3 | 123.158 | 41,500 | | 2010 | | 2025.10.20 | Àü¼¼ | °Ë´ÜÈú½ºÅ×ÀÌÆ®2Â÷ | 12 | 123.158 | 28,000 | 0 | 2010 | | 2025.10.14 | ¸Å¸Å | °Ë´ÜÈú½ºÅ×ÀÌÆ®2Â÷ | 13 | 123.158 | 45,500 | | 2010 | | 2025.10.11 | ¸Å¸Å | °Ë´ÜÈú½ºÅ×ÀÌÆ®2Â÷ | 14 | 140.395 | 51,000 | | 2010 | | 2025.09.25 | Àü¼¼ | °Ë´ÜÈú½ºÅ×ÀÌÆ®2Â÷ | 15 | 123.158 | 31,000 | 0 | 2010 | | 2025.09.15 | ¿ù¼¼ | °Ë´ÜÈú½ºÅ×ÀÌÆ®2Â÷ | 8 | 123.158 | 10,000 | 100 | 2010 | | 2025.09.06 | Àü¼¼ | °Ë´ÜÈú½ºÅ×ÀÌÆ®2Â÷ | 10 | 123.158 | 31,000 | 0 | 2010 | | 2025.09.04 | ¸Å¸Å | °Ë´ÜÈú½ºÅ×ÀÌÆ®2Â÷ | 3 | 123.158 | 42,500 | | 2010 | | 2025.09.02 | ¸Å¸Å | °Ë´ÜÈú½ºÅ×ÀÌÆ®2Â÷ | 6 | 123.158 | 45,500 | | 2010 | | 2025.08.16 | Àü¼¼ | °Ë´ÜÈú½ºÅ×ÀÌÆ®2Â÷ | 10 | 123.158 | 28,000 | 0 | 2010 | | 2025.07.28 | ¸Å¸Å | °Ë´ÜÈú½ºÅ×ÀÌÆ®2Â÷ | 9 | 123.158 | 43,000 | | 2010 | | 2025.06.25 | ¸Å¸Å | °Ë´ÜÈú½ºÅ×ÀÌÆ®2Â÷ | 11 | 125.528 | 43,200 | | 2010 | | 2025.06.07 | Àü¼¼ | °Ë´ÜÈú½ºÅ×ÀÌÆ®2Â÷ | 7 | 140.395 | 38,000 | 0 | 2010 | | 2025.06.07 | Àü¼¼ | °Ë´ÜÈú½ºÅ×ÀÌÆ®2Â÷ | 7 | 140.395 | 38,000 | 0 | 2010 | | 2025.05.26 | ¸Å¸Å | °Ë´ÜÈú½ºÅ×ÀÌÆ®2Â÷ | 9 | 140.395 | 47,500 | | 2010 | | 2025.05.20 | Àü¼¼ | °Ë´ÜÈú½ºÅ×ÀÌÆ®2Â÷ | 2 | 123.158 | 32,000 | 0 | 2010 | | 2025.05.20 | Àü¼¼ | °Ë´ÜÈú½ºÅ×ÀÌÆ®2Â÷ | 2 | 123.158 | 32,000 | 0 | 2010 | | 2025.05.12 | Àü¼¼ | °Ë´ÜÈú½ºÅ×ÀÌÆ®2Â÷ | 2 | 123.158 | 32,000 | 0 | 2010 | | 2025.04.23 | ¸Å¸Å | °Ë´ÜÈú½ºÅ×ÀÌÆ®2Â÷ | 10 | 123.158 | 46,500 | | 2010 | | 2025.04.21 | Àü¼¼ | °Ë´ÜÈú½ºÅ×ÀÌÆ®2Â÷ | 4 | 123.158 | 32,000 | 0 | 2010 | | 2025.04.19 | ¸Å¸Å | °Ë´ÜÈú½ºÅ×ÀÌÆ®2Â÷ | 15 | 123.158 | 48,250 | | 2010 | | 2025.04.11 | ¸Å¸Å | °Ë´ÜÈú½ºÅ×ÀÌÆ®2Â÷ | 1 | 123.158 | 40,000 | | 2010 | | 2025.03.22 | Àü¼¼ | °Ë´ÜÈú½ºÅ×ÀÌÆ®2Â÷ | 12 | 123.158 | 36,000 | 0 | 2010 | | 2025.03.03 | Àü¼¼ | °Ë´ÜÈú½ºÅ×ÀÌÆ®2Â÷ | 5 | 140.395 | 38,000 | 0 | 2010 | | 2025.02.12 | Àü¼¼ | °Ë´ÜÈú½ºÅ×ÀÌÆ®2Â÷ | 15 | 129.419 | 26,000 | 0 | 2010 | | 2025.01.13 | ¸Å¸Å | °Ë´ÜÈú½ºÅ×ÀÌÆ®2Â÷ | 14 | 140.395 | 53,000 | | 2010 |
|
|
|
 |
ÀÓÂ÷³»¿ª |
[¹è´ç¿ä±¸Á¾±âÀÏ : 2025/06/05] |
|
|
| ÀÓÂ÷ÀÎ |
Á¡À¯°ü°è |
ÀüÀÔÀÏÀÚ |
È®Á¤ÀÏÀÚ |
¹è´ç¿ä±¸ÀÏ |
º¸Áõ±Ý/Â÷ÀÓ |
´ëÇ׿ä°Ç |
ºñ°í |
| ¸Å°¢±âÀÏ 7ÀÏÀü¿¡ °ø°íµÇ¿À´Ï È®ÀÎÇϽñ⠹ٶø´Ï´Ù. |
|
|
|
 |
Áö¿ªºÐ¼® |
|
|
|
|
| ÁöÇÏö |
|
Çб³ |
|
| °ü°ø¼ |
|
| ¹ý¿ø |
ÀÎõÁö¹æ¹ý¿ø (222-20)ÀÎõ±¤¿ª½Ã ¹ÌÃßȦ±¸ ¼Ò¼º·Î 163¹ø±æ 17(ÇÐÀ͵¿) ´ëÇ¥ : 032)860-1113~4 Áß±¸, µ¿±¸, ³²±¸, ¿¬¼ö±¸, ³²µ¿±¸, ºÎÆò±¸, °è¾ç±¸, ¼±¸, ¿ËÁø±º, °È±º |
| µî±â¼Ò |
ÀÎõÁö¹æ¹ý¿ø º»¿ø µî±â±¹ (´ëÇ¥:1544-0773, ÆÑ½º:(032)620-9099, ÀÎõ±¤¿ª½Ã ¹ÌÃßȦ±¸ °æ¿ø´ë·Î 881(Á־ȵ¿ 983)) |
| ¼¼¹«¼ |
¼ÀÎõ¼¼¹«¼ (´ëÇ¥:032-560-52, ÆÑ½º:032-561-5777, ÀÎõ±¤¿ª½Ã ¼±¸ ¼°ù·Î369¹ø±æ 17 (¿¬Èñµ¿)) |
|
|
|
 |
¹ý¿ø ¹°°ÇÀÚ·á ¿ä¾à |
|
|
|
|
| ¼Ò¸êµÇÁö ¾Ê´Â µî±âºÎ±Ç¸® |
|
| ¼³Á¤µÈ °ÍÀ¸·Î º¸´Â Áö»ó±Ç |
|
| ¹ý¿øÀÚ·á Æ¯ÀÌ»çÇ× |
[ÁÖ¿ä ¹®°Ç Á¢¼ö ³»¿ª]
|
[¸Å°¢¹°°Ç¸í¼¼¼ ºñ°í¶õ]
º»°ÇÀº °øºÎ»ó ¸¶Àüµ¿997-1¿Ü 2ÇÊÁö»ó¿¡ ¼ÒÀçÇϳª 997-7¹øÁö´Â öµµ¿ëÁö·Î ºÐÇʵǾî ÇöȲ 997-1, 997-2 Áö»ó¿¡ ¼ÒÀçÇÔ.(°¨Á¤
Æò°¡¼ Âü°í) |
[ºÎµ¿»ê ÇöȲÁ¶»ç¼ ºñ°í¶õ]
º»°Ç ºÎµ¿»êÀº |
|
| ¿©ÀÇÁÖ°æ¸Å Á¶¾ð ÇѸ¶µð |
ÀÌ ºÎµ¿»êÀÇ ÀÔÂû¹ý¿øÀº ÀÎõÁö¹æ¹ý¿øÀÔ´Ï´Ù.
ÀÔÂûÀÏÀº 2026-05-07ÀÔ´Ï´Ù.
ÀÔÂû½Ã°£Àº ~11:20ÀÔ´Ï´Ù. ÀÌ ¹ý¿ø¿¡´Â KB±¹¹ÎÀºÇàÀÌ ÀÔÁ¡Çϰí ÀÖ½À´Ï´Ù.
|
ÃëÇÏ ¶Ç´Â Ãë¼ÒµÉ °¡´É¼ºÀº ÀÖÀ¸³ª ±×´ë·Î ÁøÇàµÉ °¡´É¼ºµµ ¸¹½À´Ï´Ù
¼±Çà°æ¸Å¸¦ ½ÅûÇÑ Ã¤±ÇÀÚ°¡ ¹è´ç ¹Þ¾Æ¾ß ÇÒ ±Ý¾×Àº 38,262,427¿øÀ¸·Î °¨Á¤°¡°Ý ´ëºñ »ó´çÈ÷ ÀûÀº ±Ý¾×À̼
°æ¸Å°¡ ÃëÇϵǰųª Ãë¼Ò µÉ °¡´É¼ºÀÌ ÀÖ½À´Ï´Ù. ±×·±µ¥ ÈÄÇà°æ¸Å »ç°Ç (Áߺ¹ 2025Ÿ°æ513016,)ÀÌ ÀÖ¾î¼ ÃëÇÏ,Ãë¼ÒµÇÁö ¾Ê°í ÁøÇàµÉ °¡´É¼ºµµ ¸¹½À´Ï´Ù.
|
|
|
| Åë°è±â°£ |
³«Âû¹°°Ç¼ö |
Æò±Õ°¨Á¤°¡ |
Æò±Õ³«Âû°¡ |
³«Âû°¡À² |
À¯ÂûȽ¼ö |
| 3°³¿ù |
39°Ç |
514,482,051¿ø |
432,332,160¿ø |
81% |
1.5ȸ |
| 6°³¿ù |
93°Ç |
438,008,602¿ø |
367,382,918¿ø |
80% |
1.3ȸ |
| 12°³¿ù |
197°Ç |
439,049,746¿ø |
378,537,635¿ø |
84% |
1.2ȸ |
|
|
|
|
|
|
 |
|