|
|
| ¼ÒÀçÁö |
Àü¶ó³²µµ ³ªÁֽà ºû°¡¶÷µ¿ 693-4 »ó»êºôµù 3Ãþ301È£
|
|
| »ç°Ç¹øÈ£ |
2025 Ÿ°æ 7364 |
¹°°Ç¹øÈ£ |
1
|
¹°°Ç¿ëµµ |
»ó°¡,»ç¹«½Ç |
| °¨Á¤Æò°¡¾× |
283,000,000¿ø |
°æ¸Å´ë»ó |
ÅäÁö ¹× °Ç¹°Àϰý ¸Å°¢ |
ÁøÇà»óÅ |
½Å°Ç |
| ÃÖÀúÀÔÂû°¡ |
(100%) 283,000,000¿ø
|
°Ç¹°¸éÀû |
168.23§³(50.89Æò) |
ÀÔÂû±âÀÏ |
2026.05.14(¸ñ) 09:55
(ÀÔÂû 14ÀÏÀü)
|
| ÀÔÂûº¸Áõ±Ý |
(10%) 28,300,000¿ø |
ÅäÁö¸éÀû |
95.74§³(28.96Æò)
|
À¯ÂûȽ¼ö |
0ȸ |
| ÀÔÂû¹ý¿ø |
±¤ÁÖÁö¹æ¹ý¿ø |
°æ¸Å¹æ¹ý |
|
¹°°ÇÁ¶È¸¼ö |
¿À´Ã: 18ȸ [´©Àû: 19ȸ]
|
| ¸»¼Ò±âÁØ | |
|
|
|
|
|
|
|
|
|
|
°æ¸Å´ë»ó ¸ñ·Ï
|
|
| ±¸ºÐ |
¸ñ·Ï |
ÁÖ¼Ò |
±¸Á¶/¿ëµµ/´ëÁö±Ç |
ºñ°í |
´ëÁö±Ç
|
1 |
ºû°¡¶÷µ¿ 693-4 |
714.6ºÐÀÇ 95.74 |
95.74§³ (28.96Æò)
|
°Ç¹°
|
1 |
ºû°¡¶÷µ¿ 693-4 |
3Ãþ301È£ ö±ÙÄÜÅ©¸®Æ®±¸Á¶ |
168.23§³ (50.89Æò)
|
|
|
|
2026-05-14
ÁøÇà
|
(100%)
283,000,000¿ø
|
|
|
|
|
|
°¨Á¤Æò°¡¼ ¿ä¾à |
|
[À§Ä¡/ÁÖÀ§È¯°æ]
º»°ÇÀº Àü¶ó³²µµ ³ªÁֽà ºû°¡¶÷µ¿ ¼ÒÀç 'ºû°¡¶÷ÁßÇб³' ºÏµ¿Ãø Àαٿ¡ À§Ä¡ÇÑ ºÎµ¿»ê(±¸ºÐ°Ç¹°)ÀÎ '»ó»êºôµù 3Ãþ 301È£'·Î¼ ÁÖº¯Àº ¾ÆÆÄÆ®´ÜÁö, ±³À°½Ã¼³, ±Ù¸°°ø¿ø, ±Ù¸°»ýȰ½Ã¼³ µîÀÌ È¥ÀçÇÏ´Â ¹Ì¼º¼÷»ó°¡Áö´ë·Î ÁÖÀ§È¯°æ ´ëü·Î º¸Åë½ÃµË´Ï´Ù.
[±³Åë»óȲ]
º»°Ç °Ç¹°±îÁö Â÷·®ÀÇ Á¢±ÙÀÌ °¡´ÉÇϸç, Àαٿ¡ ½Ã³»¹ö½ºÁ¤·ùÀå, ¹ö½ºÅ͹̳Î, °£¼±µµ·Î µîÀÌ ¼ÒÀçÇÏ´Â µî Á¦¹Ý ±³Åë»óȲ º¸Åë½ÃµË´Ï´Ù.
[°Ç¹°±¸Á¶]
º»°ÇÀº ö±ÙÄÜÅ©¸®Æ®±¸Á¶ (ö±Ù)ÄÜÅ©¸®Æ®ÁöºØ Áö»ó5Ãþ °Ç¹° ³» 3Ãþ 301È£·Î¼ ¡¤¿Üº® : ¼®ÀçºÙÀÓ, °ÈÀ¯¸® µî, ¡¤³»º® : ¸ôÅ»À§ ÆäÀÎÆÃ, ŸÀÏ, °ÈÀ¯¸® µî, ¡¤Ã¢È£ : »õ½Ãâȣ µî À¸·Î Ä¡Àå ¶Ç´Â ¸¶°¨ÇÏ¿´½À´Ï´Ù.
[ÀÌ¿ë»óÅÂ]
º»°ÇÀÇ °øºÎ»ó ¿ëµµ´Â ÀÇ¿øÀ̸ç, Á¶»ç½ÃÁ¡ ÇöÀç °ø½ÇÀÔ´Ï´Ù.
[¼³ºñ³»¿ª]
±âº»ÀûÀÎ Àü±â¼³ºñ, À§»ý¼³ºñ, ±Þ¡¤¹è¼ö¼³ºñ, µµ½Ã°¡½º¼³ºñ, ¼ÒÈÀü¼³ºñ, ÈÀçŽÁö¼³ºñ, ½ºÇÁ¸µÅ¬·¯ µîÀ» °®Ãß°í ÀÖÀ¸¸ç, ½Â°±â¼³ºñ´Â Á¶»ç½ÃÁ¡ ÇöÀç ¿îÇàÀÌ Áß´ÜµÈ »óÅÂÀÔ´Ï´Ù.
[ÅäÁöÇü»ó/ÀÌ¿ë»óÅÂ]
º»°Ç °ÇºÎÁö´Â ¼¼ÀåÇüÀÇ ÆòÁö·Î¼ °ÇºÎÁö(±Ù¸°»ýȰ½Ã¼³)·Î ÀÌ¿ëÁßÀÔ´Ï´Ù.
7)ÀÎÁ¢ µµ·Î»óŵî
º»°Ç °ÇºÎÁö´Â ³²ÃøÀ¸·Î ¿Õº¹4Â÷¼±, ºÏÃøÀ¸·Î ¿Õº¹3Â÷¼± ¾Æ½ºÄÜ Æ÷Àåµµ·Î¿¡ Á¢ÇÕ´Ï´Ù.
[ÅäÁöÀÌ¿ë°èȹ]
µµ½ÃÁö¿ª, ÁØÁÖ°ÅÁö¿ª, Áö±¸´ÜÀ§°èȹ±¸¿ª, ´ë·Î3·ù(Æø 25m~30m)(2016-04-07)(Á¢ÇÕ), Áß·Î2·ù(Æø 15m~20m)(2015-03-27)(Á¢ÇÕ), °¡Ãà»çÀ°Á¦Çѱ¸¿ª(¸ðµç°¡ÃàÁ¦Çѱ¸¿ª_ºû°¡¶÷µ¿1,500m)<°¡ÃàºÐ´¢ÀÇ °ü¸® ¹× À̿뿡 °üÇÑ ¹ý·ü>, Çõ½Åµµ½Ã°³¹ß¿¹Á¤Áö±¸<Çõ½Åµµ½Ã Á¶¼º ¹× ¹ßÀü¿¡ °üÇÑ Æ¯º°¹ý>
[°øºÎ¿ÍÀÇ Â÷ÀÌ]
--
[Âü°í»çÇ×]
-- |
|
|
°ÇÃ๰ÇöȲ |
|
|
|
| ¼ÒÀçÁö |
Àü¶ó³²µµ ³ªÁֽà ºû°¡¶÷µ¿ 693-4¹øÁö |
| ´ëÁö¸éÀû |
714.6§³(216.55Æò) |
¿¬¸éÀû |
1694.16§³(513.38Æò) |
ÁÖ¿ëµµ |
Á¦1Á¾±Ù¸°»ýȰ½Ã¼³ |
| °ÇÃà¸éÀû |
459.81§³(139.34Æò) |
¿ëÀû·ü»êÁ¤¿¬¸éÀû |
1694.16§³(513.38Æò) |
Âø°øÀÏÀÚ |
2016.05.25 |
| °ÇÆóÀ² |
64.35% |
¿ëÀû·ü |
237.08% |
»ç¿ë½ÂÀÎÀÏÀÚ |
2017.02.02 |
| Áö»óÃþ¼ö |
5Ãþ |
ÁöÇÏÃþ¼ö |
|
±¸Á¶ |
ö±ÙÄÜÅ©¸®Æ®±¸Á¶ |
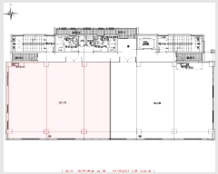
°ÇÃ๰Ãþº°ÇöȲ [º¸±â]| Ãþº° | ±¸Á¶ | ¿ëµµ | ¸éÀû | | 1Ãþ | ö±ÙÄÜÅ©¸®Æ®±¸Á¶ | ÀϹÝÀ½½ÄÁ¡ | 445.68§³ (135.05Æò) | | 2Ãþ | ö±ÙÄÜÅ©¸®Æ®±¸Á¶ | ÀÇ¿ø | 439.49§³ (133.18Æò) | | 3Ãþ | ö±ÙÄÜÅ©¸®Æ®±¸Á¶ | ÀÇ¿ø | 439.49§³ (133.18Æò) | | 4Ãþ | ö±ÙÄÜÅ©¸®Æ®±¸Á¶ | ÀÇ¿ø | 369.5§³ (111.97Æò) | | 5Ãþ | ö±ÙÄÜÅ©¸®Æ®±¸Á¶ | ¹°ÅÊÅ©½Ç | 92.71§³ (28.09Æò) |
|
|
|
|
|
|
 |
ÀÓÂ÷³»¿ª |
[¹è´ç¿ä±¸Á¾±âÀÏ : 2026/02/09] |
|
|
| ÀÓÂ÷ÀÎ |
Á¡À¯°ü°è |
ÀüÀÔÀÏÀÚ |
È®Á¤ÀÏÀÚ |
¹è´ç¿ä±¸ÀÏ |
º¸Áõ±Ý/Â÷ÀÓ |
´ëÇ׿ä°Ç |
ºñ°í |
| ¸Å°¢±âÀÏ 7ÀÏÀü¿¡ °ø°íµÇ¿À´Ï È®ÀÎÇϽñ⠹ٶø´Ï´Ù. |
|
|
|
 |
Áö¿ªºÐ¼® |
|
|
|
|
| ÁöÇÏö |
|
Çб³ |
|
| °ü°ø¼ |
|
| ¹ý¿ø |
±¤ÁÖÁö¹æ¹ý¿ø (614-41)±¤ÁÖ±¤¿ª½Ã µ¿±¸ Áعý·Î 7-12(Áö»ê2µ¿) ´ëÇ¥ : 062)239-1114 ±¤ÁÖ±¤¿ª½Ã, ³ªÁÖ½Ã, ȼø±º, À强±º, ´ã¾ç±º, °î¼º±º, ¿µ±¤±º |
| µî±â¼Ò |
±¤ÁÖÁö¹æ¹ý¿ø º»¿ø ³ªÁÖµî±â¼Ò (´ëÇ¥:1544-0773, ÆÑ½º:(061)332-6701, Àü³² ³ªÁֽà Àç½Å±æ 41 (¼Û¿ùµ¿ 1126)) |
| ¼¼¹«¼ |
³ªÁÖ¼¼¹«¼ (´ëÇ¥:061-330-02, ÆÑ½º:061-332-8570, Àü¶ó³²µµ ³ªÁֽà Àç½Å±æ 33 (¼Û¿ùµ¿)) |
|
|
|
 |
¹ý¿ø ¹°°ÇÀÚ·á ¿ä¾à |
|
|
|
|
| ¼Ò¸êµÇÁö ¾Ê´Â µî±âºÎ±Ç¸® |
|
| ¼³Á¤µÈ °ÍÀ¸·Î º¸´Â Áö»ó±Ç |
|
| ¹ý¿øÀÚ·á Æ¯ÀÌ»çÇ× |
|
| ¿©ÀÇÁÖ°æ¸Å Á¶¾ð ÇѸ¶µð |
ÀÌ ºÎµ¿»êÀÇ ÀÔÂû¹ý¿øÀº ±¤ÁÖÁö¹æ¹ý¿øÀÔ´Ï´Ù.
ÀÔÂûÀÏÀº 2026-05-14ÀÔ´Ï´Ù.
ÀÔÂû½Ã°£Àº ~11:10ÀÔ´Ï´Ù. ÀÌ ¹ý¿ø¿¡´Â ±¤ÁÖÀºÇà,½ÅÇÑÀºÇàÀÌ ÀÔÁ¡Çϰí ÀÖ½À´Ï´Ù.
|
|
|
| Åë°è±â°£ |
³«Âû¹°°Ç¼ö |
Æò±Õ°¨Á¤°¡ |
Æò±Õ³«Âû°¡ |
³«Âû°¡À² |
À¯ÂûȽ¼ö |
| 3°³¿ù |
11°Ç |
300,454,545¿ø |
117,798,244¿ø |
33% |
5.3ȸ |
| 6°³¿ù |
20°Ç |
277,131,663¿ø |
119,121,684¿ø |
42% |
4.3ȸ |
| 12°³¿ù |
28°Ç |
221,870,909¿ø |
104,884,845¿ø |
55% |
3.3ȸ |
|
|
|
|
|
|
 |
|