|
|
|
| ¹°°ÇÁ¤º¸ Çٽɺ¸±â |
Ȩ > °æ¸ÅÁ¾ÇÕ°Ë»ö > ¹°°ÇÁ¤º¸ Çٽɺ¸±â |
|
|
| 2024Ÿ°æ74008 °æ¸Å»ç°ÇÀÇ ¾ÆÆÄÆ® ¹°°Ç¿¡ °üÇÑ »ó¼¼ Á¤º¸ÀÔ´Ï´Ù. |
|
| ¼ÒÀçÁö |
±¤ÁÖ±¤¿ª½Ã ³²±¸ ȸÀç·Î1156¹ø±æ 13, 101µ¿ 14Ãþ1406È£ (ÁÖ¿ùµ¿,ÁÖ¿ùµ¿¸¶ÀÌ´Ù½ººô)
±¸)±¤ÁÖ±¤¿ª½Ã ³²±¸ ÁÖ¿ùµ¿ 543-9
|
|
| »ç°Ç¹øÈ£ |
2024 Ÿ°æ 74008 |
¹°°Ç¹øÈ£ |
1
|
¹°°Ç¿ëµµ |
¾ÆÆÄÆ® |
| °¨Á¤Æò°¡¾× |
114,000,000¿ø |
°æ¸Å´ë»ó |
ÅäÁö ¹× °Ç¹°Àϰý¸Å°¢ |
ÁøÇà»óÅ |
ÀçÁøÇà |
| ÃÖÀúÀÔÂû°¡ |
(9%) 10,710,573¿ø
|
°Ç¹°¸éÀû |
40.12§³(12.14Æò) |
ÀÔÂû±âÀÏ |
2026.05.13(¼ö) 10:00
(ÀÔÂû 48ÀÏÀü)
|
| ÀÔÂûº¸Áõ±Ý |
(10%) 1,071,057¿ø |
ÅäÁö¸éÀû |
19.79§³(5.99Æò)
|
À¯ÂûȽ¼ö |
10ȸ |
| ÀÔÂû¹ý¿ø |
±¤ÁÖÁö¹æ¹ý¿ø |
°æ¸Å¹æ¹ý |
ºÎµ¿»ê°Á¦°æ¸Å |
¹°°ÇÁ¶È¸¼ö |
¿À´Ã: 2ȸ [´©Àû: 1221ȸ]
|
| ¸»¼Ò±âÁØ | ÃÖ¼±¼øÀ§ ¼³Á¤ : 2024.06.20. °Á¦°æ¸Å°³½Ã ¼³Á¤ °áÁ¤
|
|
|
|
|
|
|
|
|
|
|
°æ¸Å´ë»ó ¸ñ·Ï
|
|
| ±¸ºÐ |
¸ñ·Ï |
ÁÖ¼Ò |
±¸Á¶/¿ëµµ/´ëÁö±Ç |
ºñ°í |
´ëÁö±Ç
|
1 |
ȸÀç·Î1156¹ø±æ 13 |
2028.0 ºÐÀÇ 19.7868 |
19.786§³ (5.99Æò)
|
°Ç¹°
|
1 |
ȸÀç·Î1156¹ø±æ 13 |
14Ãþ1406È£ (ÁÖ¿ùµ¿,ÁÖ¿ùµ¿¸¶ÀÌ´Ù½ººô) ö±ÙÄÜÅ©¸®Æ®º®½Ä±¸Á¶ |
40.119§³ (12.14Æò)
|
|
|
|
2024-11-06
À¯Âû
|
(100%)
114,000,000¿ø
|
|
|
|
2024-12-18
À¯Âû
|
(70%)
79,800,000¿ø
|
|
|
|
2025-02-05
À¯Âû
|
(56%)
63,840,000¿ø
|
|
|
|
2025-03-19
À¯Âû
|
(45%)
51,072,000¿ø
|
|
|
|
2025-04-30
À¯Âû
|
(36%)
40,857,600¿ø
|
|
|
|
2025-06-11
À¯Âû
|
(29%)
32,686,080¿ø
|
|
|
|
2025-07-23
À¯Âû
|
(23%)
26,148,864¿ø
|
|
|
|
2025-09-03
À¯Âû
|
(18%)
20,919,091¿ø
|
|
|
|
2025-11-26
À¯Âû
|
(15%)
16,735,272¿ø
|
|
|
|
2026-01-07
À¯Âû
|
(12%)
13,388,217¿ø
|
|
|
|
2026-02-11
³«Âû
|
(9%)
10,710,573¿ø
|
|
|
¦±¦¬> ³«Âû°¡
 |
|
|
|
|
2026-05-13
ÁøÇà
|
(9%)
10,710,573¿ø
|
|
|
|
|
|
°¨Á¤Æò°¡¼ ¿ä¾à |
|
[À§Ä¡/ÁÖÀ§È¯°æ] º»°ÇÀº ±¤ÁÖ±¤¿ª½Ã ³²±¸ ÁÖ¿ùµ¿ ¼ÒÀç "±Ý´çÁßÇб³" ³²Ãø Àαٿ¡ À§Ä¡ÇÑ "ÁÖ¿ùµ¿¸¶ÀÌ´Ù½ººô" 101µ¿ 14Ãþ 1406È£·Î¼ ÁÖº¯Àº ¾ÆÆÄÆ®´ÜÁö, ±Ù¸°»ýȰ½Ã¼³, ±Ù¸°°ø¿ø, ±³À°½Ã¼³ µîÀÌ È¥ÀçÇÏ´Â Áö´ë·Î ÁÖÀ§È¯°æ ´ëü·Î º¸Åë½ÃµË´Ï´Ù.
[±³Åë»óȲ] º»°Ç ´ÜÁö±îÁö Â÷·®ÀÇ Á¢±ÙÀÌ °¡´ÉÇϸç, Àαٿ¡ ½Ã³»¹ö½ºÁ¤·ùÀåÀÌ ¼ÒÀçÇÏ°í °£¼±µµ·Î°¡ Åë°úÇϰí ÀÖ´Â µî Á¦¹Ý ±³Åë»óȲ º¸Åë½ÃµË´Ï´Ù.
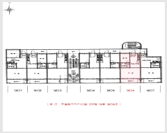
[°Ç¹°±¸Á¶] º»°ÇÀº ö±ÙÄÜÅ©¸®Æ® º®½Ä±¸Á¶ ½½·¡ºêÁöºØ ÁöÇÏ1Ãþ Áö»ó15Ãþ °Ç¹° ³» 14Ãþ 1406È£(º¹µµ½Ä, ³²Çâ)·Î¼¡¤¿Üº® : ¸ôÅ»À§ ÆäÀÎÆÃ µî,¡¤³»º® : º®Áö ¹× ŸÀÏ µî, ¡¤Ã¢È£ : »õ½Ãâȣ µîÀ¸·Î Ä¡Àå ¶Ç´Â ¸¶°¨ÇÏ¿´½À´Ï´Ù.
[ÀÌ¿ë»óÅÂ] º»°ÇÀº ¾ÆÆÄÆ®(ÁÖ°Å¿ë)À¸·Î ÀÌ¿ëÁßÀÔ´Ï´Ù.
[¼³ºñ³»¿ª] ±âº»ÀûÀÎ À§»ý ¹× ±Þ¹è¼ö¼³ºñ, ½Â°±â¼³ºñ, ÈÀç°æº¸ ¹× ¼ÒÈÀü, µµ½Ã°¡½º¼³ºñ, °³º°³¹æ¼³ºñ, µµ½Ã°¡½º µîÀ» °®Ãß°í ÀÖ½À´Ï´Ù.
[ÅäÁöÇü»ó/ÀÌ¿ë»óÅÂ] À¯»ç »ç´Ù¸®ÇüÀÇ ÅäÁö·Î¼ ¿Ï°æ»çÁö´ë ³»¿¡ À§Ä¡Çϳª, ´ëü·Î ÀÚüÆòź½ÃµÇ¸ç, ¾ÆÆÄÆ® ºÎÁö µîÀ¸·Î ÀÌ¿ëÁßÀÔ´Ï´Ù.
[µµ·Î»óÅÂ] º»°Ç ´ÜÁö ¼ÃøÀ¸·Î ÁÖÃâÀÔ±¸°¡ ¼ÒÀçÇϸç, Æø ¾à 10M ³»¿ÜÀÇ ¾Æ½ºÄÜ Æ÷Àåµµ·Î¿¡ Á¢ÇÕ´Ï´Ù.
[ÅäÁöÀÌ¿ë°èȹ] µµ½ÃÁö¿ª, Á¦3Á¾ÀϹÝÁÖ°ÅÁö¿ª, ¼Ò·Î1·ù(Æø 10m-12m)(Á¢ÇÕ), »ó´ëº¸È£±¸¿ª£¼±³À°È¯°æ º¸È£¿¡ °üÇÑ ¹ý·ü£¾
[°øºÎ¿ÍÀÇ Â÷ÀÌ] --
[Âü°í»çÇ×] ÀÓ´ë°ü°è ¹Ì»óÀÔ´Ï´Ù.
|
|
|
°ÇÃ๰ÇöȲ |
|
|
|
| ¼ÒÀçÁö |
±¤ÁÖ±¤¿ª½Ã ³²±¸ ÁÖ¿ùµ¿ 543-9¹øÁö |
| ´ëÁö¸éÀû |
2028§³(614.55Æò) |
¿¬¸éÀû |
7677.57§³(2326.54Æò) |
ÁÖ¿ëµµ |
°øµ¿ÁÖÅà |
| °ÇÃà¸éÀû |
453.41§³(137.4Æò) |
¿ëÀû·ü»êÁ¤¿¬¸éÀû |
5856.93§³(1774.83Æò) |
Âø°øÀÏÀÚ |
1999.04.01 |
| °ÇÆóÀ² |
22.36% |
¿ëÀû·ü |
288.8% |
»ç¿ë½ÂÀÎÀÏÀÚ |
1999.12.20 |
| Áö»óÃþ¼ö |
15Ãþ |
ÁöÇÏÃþ¼ö |
1Ãþ |
±¸Á¶ |
ö±ÙÄÜÅ©¸®Æ®±¸Á¶ |
|
|
|
|
 |
ÀÓÂ÷³»¿ª |
[¹è´ç¿ä±¸Á¾±âÀÏ : 2024/09/09] |
|
|
| ÀÓÂ÷ÀÎ |
Á¡À¯°ü°è |
ÀüÀÔÀÏÀÚ |
È®Á¤ÀÏÀÚ |
¹è´ç¿ä±¸ÀÏ |
º¸Áõ±Ý/Â÷ÀÓ |
´ëÇ׿ä°Ç |
ºñ°í |
| ±èOO |
ÀüºÎ |
2020.04.02. |
2020.02.21.,2022.03.16. |
2024.8.16. |
105,000,000
|
O |
2020.03.27.~2024.03.15. |
| ¸Å°¢¹°°Ç¸í¼¼ ºñ°í |
±èÇö°æ : ½Åûä±ÇÀÚ °â ÀÓÂ÷ÀÎ
- È®Á¤ÀÏÀÚ : 2020.02.21.(100,000,000¿ø), 2022.03.16.(Áõ¾×µÈ 5,000,000¿ø) |
|
|
|
 |
¹ý¿ø ¹°°ÇÀÚ·á ¿ä¾à |
|
|
|
|
| ¼Ò¸êµÇÁö ¾Ê´Â µî±âºÎ±Ç¸® |
- ¸Å¼öÀο¡°Ô ´ëÇ×ÇÒ ¼ö ÀÖ´Â À»±¸ ¼øÀ§
2020.04.02., È®Á¤ÀÏÀÚ 2020.02.21. ¹× 2022.03.16.), ¹è´ç¿¡¼ º¸Áõ±ÝÀÌ Àü¾× º¯Á¦µÇÁö ¾Æ´ÏÇϸé Àܾ×À» ¸Å¼öÀÎÀÌ ÀμöÇÔ. |
| ¼³Á¤µÈ °ÍÀ¸·Î º¸´Â Áö»ó±Ç |
|
| ¹ý¿øÀÚ·á Æ¯ÀÌ»çÇ× |
|
| ¿©ÀÇÁÖ°æ¸Å Á¶¾ð ÇѸ¶µð |
ÀÌ ºÎµ¿»êÀÇ ÀÔÂû¹ý¿øÀº ±¤ÁÖÁö¹æ¹ý¿øÀÔ´Ï´Ù.
ÀÔÂûÀÏÀº 2026-05-13ÀÔ´Ï´Ù.
ÀÔÂû½Ã°£Àº 10:00~11:10ÀÔ´Ï´Ù. ÀÌ ¹ý¿ø¿¡´Â ±¤ÁÖÀºÇà,½ÅÇÑÀºÇàÀÌ ÀÔÁ¡Çϰí ÀÖ½À´Ï´Ù.
|
|
|
| Åë°è±â°£ |
³«Âû¹°°Ç¼ö |
Æò±Õ°¨Á¤°¡ |
Æò±Õ³«Âû°¡ |
³«Âû°¡À² |
À¯ÂûȽ¼ö |
| 3°³¿ù |
17°Ç |
271,882,353¿ø |
219,053,392¿ø |
77% |
1.4ȸ |
| 6°³¿ù |
28°Ç |
261,328,571¿ø |
206,971,049¿ø |
76% |
1.4ȸ |
| 12°³¿ù |
60°Ç |
247,810,000¿ø |
197,016,443¿ø |
76% |
1.4ȸ |
|
|
|
|
|
|
|
 |
ÀαÙÁö¿ª ÃÖ±Ù ³«Âû»ç·Ê
|
|
|
 |
|
|
[¾È³»] Ȥ½Ã ÀÌ¿ëÀÌ ºÒÆíÇϽðųª »èÁ¦ÇÒ ³»¿ëÀÌ ÀÖ´Ù¸é ÃÖ´ëÇÑ ³ë·ÂÇØ¼ °³¼±ÇØ ³ª°¡µµ·Ï ÇϰڽÀ´Ï´Ù.
 |
|
ÀÌ »çÀÌÆ®¿¡¼ Á¦°øµÇ´Â ºÎµ¿»ê°æ¸Å ÀÚ·á´Â ¹ý¿ø °æ¸Å°è¿¡¼ ó¸®Çϰí ÀÖ´Â ½ÇÁ¦ ¹°°ÇÀÇ Á¤º¸¿Í ÀÏÄ¡ÇÏÁö ¾ÊÀ» ¼öµµ ÀÖ½À´Ï´Ù.
´ç»ç´Â º» ÀÚ·á¿¡ °üÇÏ¿© Á¤½Ä ÄÁ¼³ÆÃ ÀÇ·Ú°¡ ¾Æ´Ñ ÀÌ»ó ¾î¶°ÇÑ º¸Áõµµ ÇÏÁö ¾ÊÀ¸¸ç ¹ýÀû Ã¥ÀÓÀ» ÁöÁö ¾Ê½À´Ï´Ù.
ÀÔÂûÇϱâ Àü¿¡ ²Ä²ÄÈ÷ ¹ý¿ø¿¡ ºñÄ¡µÈ ¸Å°¢¹°°Ç¸í¼¼¼ ¹× ±âŸ °øºÎ¸¦ ÀçÈ®ÀÎÇϽðí ÀÔÂû¿¡ Âü°¡ÇÏ½Ã±æ ¹Ù¶ø´Ï´Ù. |
|
|
|
|
|