|
|
|
| ¹°°ÇÁ¤º¸ Çٽɺ¸±â |
Ȩ > °æ¸ÅÁ¾ÇÕ°Ë»ö > ¹°°ÇÁ¤º¸ Çٽɺ¸±â |
|
|
| 2024Ÿ°æ62140 °æ¸Å»ç°ÇÀÇ ´Ù¼¼´ë(ºô¶ó) ¹°°Ç¿¡ °üÇÑ »ó¼¼ Á¤º¸ÀÔ´Ï´Ù. |
|
| ¼ÒÀçÁö |
¼¿ïƯº°½Ã ÀºÆò±¸ ÀºÆò·Î12±æ 18-6, 5Ãþ502È£ (ÀÀ¾Ïµ¿,¼Öºû¿¤¸£ºô)
±¸)¼¿ïƯº°½Ã ÀºÆò±¸ ÀÀ¾Ïµ¿ 99-60
|
|
| »ç°Ç¹øÈ£ |
2024 Ÿ°æ 62140 |
¹°°Ç¹øÈ£ |
1
|
¹°°Ç¿ëµµ |
´Ù¼¼´ë(ºô¶ó) |
| °¨Á¤Æò°¡¾× |
214,000,000¿ø |
°æ¸Å´ë»ó |
ÅäÁö ¹× °Ç¹°Àϰý ¸Å°¢ |
ÁøÇà»óÅ |
À¯Âû |
| ÃÖÀúÀÔÂû°¡ |
(51%) 109,568,000¿ø
|
°Ç¹°¸éÀû |
31.61§³(9.56Æò) |
ÀÔÂû±âÀÏ |
2025.11.18(È) 10:00
(ÀÔÂû 2ÀÏÀü)
|
| ÀÔÂûº¸Áõ±Ý |
(10%) 10,956,800¿ø |
ÅäÁö¸éÀû |
19.78§³(5.98Æò)
|
À¯ÂûȽ¼ö |
3ȸ |
| ÀÔÂû¹ý¿ø |
¼¿ï¼ºÎÁö¹æ¹ý¿ø |
°æ¸Å¹æ¹ý |
ºÎµ¿»ê°Á¦°æ¸Å |
¹°°ÇÁ¶È¸¼ö |
¿À´Ã: ȸ [´©Àû: ȸ]
|
| ¸»¼Ò±âÁØ | ÃÖ¼±¼øÀ§ ¼³Á¤ : 2024.10.18. °Á¦°æ¸Å°³½Ã ¼³Á¤ °áÁ¤
|
|
|
|
|
|
|
|
|
|
|
°æ¸Å´ë»ó ¸ñ·Ï
|
|
| ±¸ºÐ |
¸ñ·Ï |
ÁÖ¼Ò |
±¸Á¶/¿ëµµ/´ëÁö±Ç |
ºñ°í |
´ëÁö±Ç
|
1 |
ÀÀ¾Ïµ¿ 99-60 |
378.8ºÐÀÇ 19.78 |
19.78§³ (5.98Æò)
|
°Ç¹°
|
1 |
ÀÀ¾Ïµ¿ 99-60 |
5Ãþ502È£ ö±ÙÄÜÅ©¸®Æ®±¸Á¶ |
31.61§³ (9.56Æò)
|
|
|
|
2025-07-29
À¯Âû
|
(100%)
214,000,000¿ø
|
|
|
|
2025-09-02
À¯Âû
|
(80%)
171,200,000¿ø
|
|
|
|
2025-10-14
À¯Âû
|
(64%)
136,960,000¿ø
|
|
|
|
2025-11-18
ÁøÇà
|
(51%)
109,568,000¿ø
|
|
|
|
|
|
°¨Á¤Æò°¡¼ ¿ä¾à |
|
[À§Ä¡/ÁÖÀ§È¯°æ]
º»°ÇÀº ¼¿ïƯº°½Ã ÀºÆò±¸ ÀÀ¾Ïµ¿ ¼ÒÀç "¿µ¶ôÁßÇб³" ºÏÃø Àαٿ¡ ¼ÒÀçÇÏ´Â ºÎµ¿»êÀ¸·Î, ÁÖ
À§´Â ´Ù¼¼´ëÁÖÅÃ, ¾ÆÆÄÆ®, ±Ù¸°»ýȰ½Ã¼³ µîÀÌ È¥ÀçÇÏ´Â ÁÖÅÃÁö´ë·Î¼ Á¦¹Ý ÁÖÀ§ ȯ°æÀº º¸Åë
ÀÎ ÆíÀÓ.
[±³Åë»óȲ]
º»°Ç±îÁö Â÷·®ÁøÀÔÀÌ °¡´ÉÇϸç, Àα٠¹× ±Ù°Å¸®¿¡ ³ë¼±¹ö½ºÁ¤·ùÀå, ÀÀ¾Ï¿ª(6È£¼±)ÀÌ À§Ä¡ÇÏ
´Â ¹Ù Á¤·ùÀå±îÁöÀÇ °Å¸® ¹× ¿îÇà»óÅ µîÀ¸·Î º¸¾Æ Á¦¹Ý ´ëÁß±³Åë»çÁ¤Àº º¸ÅëÀÎ ÆíÀÓ.
[°Ç¹°±¸Á¶]
ö±ÙÄÜÆ®¸®Æ®±¸Á¶ (ö±Ù)ÄÜÅ©¸®Æ®ÁöºØ 5Ãþ °Ç¹°³» 5Ãþ 502È£·Î¼,
¿Ü º® : ¼®ÀçºÙÀÓ ¸¶°¨ µî,
³» º® : º®Áö ¹× ÀϺΠŸÀÏ ¸¶°¨,
â È£ : ÇÏÀ̼¦½Ã âȣÀÓ.
[ÀÌ¿ë»óÅÂ]
´Ù¼¼´ëÁÖÅÃÀ¸·Î ÀÌ¿ëÁßÀ̸ç, »ó¼¼ÀÌ¿ë»óÅ´ ÈÄ÷ "°Ç¹°ÀÌ¿ë ¹× ÀÓ´ëÇöȲµµ" ÂüÁ¶¹Ù¶÷.
[¼³ºñ³»¿ª]
À§»ý¼³ºñ ¹× ±Þ¹è¼ö¼³ºñ, ½Â°±â ¼³ºñ, ³¹æ¼³ºñ µîÀÌ µÇ¾î ÀÖÀ½.
[ÅäÁöÇü»ó/ÀÌ¿ë»óÅÂ]
ÀÎÁ¢Áö ´ëºñ µî°íÆòźÇÑ ¼¼ÀåÇü ÅäÁö·Î¼, ÁÖ°Å¿ë °ÇºÎÁö·Î ÀÌ¿ëÁßÀÓ.
7)ÀÎÁ¢ µµ·Î»óŵî
º»°ÇÀº µ¿ÃøÀ¸·Î ³ëÆø ¾à 6m Æ÷Àåµµ·Î¿Í Á¢ÇÔ.
[ÅäÁöÀÌ¿ë°èȹ]
Á¦2Á¾ÀϹÝÁÖ°ÅÁö¿ª(7ÃþÀÌÇÏ), °¡Ãà»çÀ°Á¦Çѱ¸¿ª£¼°¡ÃàºÐ´¢ÀÇ °ü¸® ¹× À̿뿡 °üÇÑ ¹ý·ü£¾, ´ë
°ø¹æ¾îÇùÁ¶±¸¿ª(À§Å¹°íµµ:77-257m)£¼±º»ç±âÁö ¹× ±º»ç½Ã¼³ º¸È£¹ý£¾, °ú¹Ð¾ïÁ¦±Ç¿ª£¼¼öµµ±ÇÁ¤ºñ
°èȹ¹ý£¾ÀÓ.
[°øºÎ¿ÍÀÇ Â÷ÀÌ]
¾øÀ½.
[Âü°í»çÇ×]
¾øÀ½. |
|
|
°ÇÃ๰ÇöȲ |
|
|
|
| ¼ÒÀçÁö |
¼¿ïƯº°½Ã ÀºÆò±¸ ÀÀ¾Ïµ¿ 99-60¹øÁö |
| ´ëÁö¸éÀû |
378.6§³(114.73Æò) |
¿¬¸éÀû |
659.62§³(199.88Æò) |
ÁÖ¿ëµµ |
°øµ¿ÁÖÅà |
| °ÇÃà¸éÀû |
226.95§³(68.77Æò) |
¿ëÀû·ü»êÁ¤¿¬¸éÀû |
659.62§³(199.88Æò) |
Âø°øÀÏÀÚ |
2010.09.06 |
| °ÇÆóÀ² |
59.94% |
¿ëÀû·ü |
174.23% |
»ç¿ë½ÂÀÎÀÏÀÚ |
2011.01.11 |
| Áö»óÃþ¼ö |
5Ãþ |
ÁöÇÏÃþ¼ö |
|
±¸Á¶ |
ö±ÙÄÜÅ©¸®Æ®±¸Á¶ |
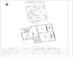
°ÇÃ๰Ãþº°ÇöȲ [º¸±â]| Ãþº° | ±¸Á¶ | ¿ëµµ | ¸éÀû | | 1Ãþ | ö±ÙÄÜÅ©¸®Æ®±¸Á¶ | °è´Ü½Ç | 9.6§³ (2.91Æò) | | 2Ãþ | ö±ÙÄÜÅ©¸®Æ®±¸Á¶ | ´Ù¼¼´ëÁÖÅÃ(3¼¼´ë) | 173.12§³ (52.46Æò) | | 3Ãþ | ö±ÙÄÜÅ©¸®Æ®±¸Á¶ | ´Ù¼¼´ëÁÖÅÃ(3¼¼´ë) | 173.12§³ (52.46Æò) | | 4Ãþ | ö±ÙÄÜÅ©¸®Æ®±¸Á¶ | ´Ù¼¼´ëÁÖÅÃ(3¼¼´ë) | 158.14§³ (47.92Æò) | | 5Ãþ | ö±ÙÄÜÅ©¸®Æ®±¸Á¶ | ´Ù¼¼´ëÁÖÅÃ(3¼¼´ë) | 145.64§³ (44.13Æò) | | ¿Áž1Ãþ | ö±ÙÄÜÅ©¸®Æ®±¸Á¶ | °è´Ü½Ç(¿¬¸éÀûÁ¦¿Ü) | 12§³ (3.64Æò) |
|
|
|
|
|
 |
ÀÓÂ÷³»¿ª |
[¹è´ç¿ä±¸Á¾±âÀÏ : 2024/12/31] |
|
|
| ÀÓÂ÷ÀÎ |
Á¡À¯°ü°è |
ÀüÀÔÀÏÀÚ |
È®Á¤ÀÏÀÚ |
¹è´ç¿ä±¸ÀÏ |
º¸Áõ±Ý/Â÷ÀÓ |
´ëÇ׿ä°Ç |
ºñ°í |
| Á¶»çµÈ ÀÓÂ÷³»¿ªÀÌ ¾ø½À´Ï´Ù. |
|
|
|
 |
¹ý¿ø ¹°°ÇÀÚ·á ¿ä¾à |
|
|
|
|
| ¼Ò¸êµÇÁö ¾Ê´Â µî±âºÎ±Ç¸® |
|
| ¼³Á¤µÈ °ÍÀ¸·Î º¸´Â Áö»ó±Ç |
|
| ¹ý¿øÀÚ·á Æ¯ÀÌ»çÇ× |
|
| ¿©ÀÇÁÖ°æ¸Å Á¶¾ð ÇѸ¶µð |
ÀÌ ºÎµ¿»êÀÇ ÀÔÂû¹ý¿øÀº ¼¿ï¼ºÎÁö¹æ¹ý¿øÀÔ´Ï´Ù.
ÀÔÂûÀÏÀº 2025-11-18ÀÔ´Ï´Ù.
ÀÔÂû½Ã°£Àº 11:00~11:10ÀÔ´Ï´Ù. ÀÌ ¹ý¿ø¿¡´Â ½ÅÇÑÀºÇàÀÌ ÀÔÁ¡Çϰí ÀÖ½À´Ï´Ù.
|
ÃëÇÏ ¶Ç´Â Ãë¼ÒµÉ °¡´É¼º ÀÖ½À´Ï´Ù
ÀÌ ¹°°ÇÀÇ °¨Á¤°¡°ÝÀº 214,000,000¿øÀÔ´Ï´Ù. °æ¸Å¸¦ ½ÅûÇÑ Ã¤±ÇÀÚ°¡ ¹è´ç ¹Þ¾Æ¾ß ÇÒ ±Ý¾×Àº 35,000,000¿ø À¸·Î °¨Á¤°¡°Ý ´ëºñ »ó´çÈ÷ ÀûÀº ±Ý¾×ÀÔ´Ï´Ù.
ÀÌ·± °æ¿ì, 乫°¡°¡ º¯Á¦ÇÏ¿© °æ¸Å¸¦ ÃëÇϽÃŰ°Å³ª °æ¸Å½Åûä±ÇÀÚ°¡ ¹è´ç¹ÞÀ» ±Ý¿øÀÌ ¾ø°ÔµÇ¾î À̸¥ ¹Ù "¹«À׿©¿¡ ÀÇÇÑ Ãë¼Ò"°¡ µÉ °¡´É¼ºÀÌ ÀÖ½À´Ï´Ù.
|
|
|
| Åë°è±â°£ |
³«Âû¹°°Ç¼ö |
Æò±Õ°¨Á¤°¡ |
Æò±Õ³«Âû°¡ |
³«Âû°¡À² |
À¯ÂûȽ¼ö |
| 3°³¿ù |
25°Ç |
262,628,150¿ø |
188,261,543¿ø |
72% |
3.9ȸ |
| 6°³¿ù |
92°Ç |
289,536,855¿ø |
207,298,074¿ø |
72% |
2.8ȸ |
| 12°³¿ù |
175°Ç |
282,366,469¿ø |
203,208,139¿ø |
72% |
2.9ȸ |
|
|
|
|
|
|
|
 |
ÀαÙÁö¿ª ÃÖ±Ù ³«Âû»ç·Ê
|
|
|
 |
|
|
[¾È³»] Ȥ½Ã ÀÌ¿ëÀÌ ºÒÆíÇϽðųª »èÁ¦ÇÒ ³»¿ëÀÌ ÀÖ´Ù¸é ÃÖ´ëÇÑ ³ë·ÂÇØ¼ °³¼±ÇØ ³ª°¡µµ·Ï ÇϰڽÀ´Ï´Ù.
 |
|
ÀÌ »çÀÌÆ®¿¡¼ Á¦°øµÇ´Â ºÎµ¿»ê°æ¸Å ÀÚ·á´Â ¹ý¿ø °æ¸Å°è¿¡¼ ó¸®Çϰí ÀÖ´Â ½ÇÁ¦ ¹°°ÇÀÇ Á¤º¸¿Í ÀÏÄ¡ÇÏÁö ¾ÊÀ» ¼öµµ ÀÖ½À´Ï´Ù.
´ç»ç´Â º» ÀÚ·á¿¡ °üÇÏ¿© Á¤½Ä ÄÁ¼³ÆÃ ÀÇ·Ú°¡ ¾Æ´Ñ ÀÌ»ó ¾î¶°ÇÑ º¸Áõµµ ÇÏÁö ¾ÊÀ¸¸ç ¹ýÀû Ã¥ÀÓÀ» ÁöÁö ¾Ê½À´Ï´Ù.
ÀÔÂûÇϱâ Àü¿¡ ²Ä²ÄÈ÷ ¹ý¿ø¿¡ ºñÄ¡µÈ ¸Å°¢¹°°Ç¸í¼¼¼ ¹× ±âŸ °øºÎ¸¦ ÀçÈ®ÀÎÇϽðí ÀÔÂû¿¡ Âü°¡ÇÏ½Ã±æ ¹Ù¶ø´Ï´Ù. |
|
|
|
|
|