|
|
|
| ¹°°ÇÁ¤º¸ Çٽɺ¸±â |
Ȩ > °æ¸ÅÁ¾ÇÕ°Ë»ö > ¹°°ÇÁ¤º¸ Çٽɺ¸±â |
|
|
| 2025Ÿ°æ50933 °æ¸Å»ç°ÇÀÇ ¾ÆÆÄÆ® ¹°°Ç¿¡ °üÇÑ »ó¼¼ Á¤º¸ÀÔ´Ï´Ù. |
|
| ¼ÒÀçÁö |
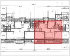
ÃæÃ»ºÏµµ ûÁֽà »ó´ç±¸ ±Ýõµ¿ 270 ÀåÀÚ¸¶À»Çö´ë¾ÆÆÄÆ® 203µ¿ 3Ãþ 301È£
|
|
| »ç°Ç¹øÈ£ |
2025 Ÿ°æ 50933 |
¹°°Ç¹øÈ£ |
1
|
¹°°Ç¿ëµµ |
¾ÆÆÄÆ® |
| °¨Á¤Æò°¡¾× |
227,000,000¿ø |
°æ¸Å´ë»ó |
ÅäÁö ¹× °Ç¹°Àϰý ¸Å°¢ |
ÁøÇà»óÅ |
À¯Âû |
| ÃÖÀúÀÔÂû°¡ |
(34%) 77,861,000¿ø
|
°Ç¹°¸éÀû |
84.89§³(25.68Æò) |
ÀÔÂû±âÀÏ |
2026.04.21(È) 10:00
(ÀÔÂû 15ÀÏÀü)
|
| ÀÔÂûº¸Áõ±Ý |
(10%) 7,786,100¿ø |
ÅäÁö¸éÀû |
48.86§³(14.78Æò)
|
À¯ÂûȽ¼ö |
3ȸ |
| ÀÔÂû¹ý¿ø |
ûÁÖÁö¹æ¹ý¿ø |
°æ¸Å¹æ¹ý |
ºÎµ¿»ê°Á¦°æ¸Å |
¹°°ÇÁ¶È¸¼ö |
¿À´Ã: 1ȸ [´©Àû: 1323ȸ]
|
| ¸»¼Ò±âÁØ | ÃÖ¼±¼øÀ§ ¼³Á¤ : 2020.04.24. °¡¾Ð·ù ¼³Á¤
|
|
|
|
|
|
|
|
|
|
|
°æ¸Å´ë»ó ¸ñ·Ï
|
|
| ±¸ºÐ |
¸ñ·Ï |
ÁÖ¼Ò |
±¸Á¶/¿ëµµ/´ëÁö±Ç |
ºñ°í |
´ëÁö±Ç
|
1 |
±Ýõµ¿ 270 |
30568.7ºÐÀÇ 48.8597 |
48.8597§³ (14.78Æò)
|
°Ç¹°
|
1 |
±Ýõµ¿ 270 |
203µ¿ 3Ãþ 301È£ ö±ÙÄÜÅ©¸®Æ®º®½ÄÁ¶ |
84.8943§³ (25.68Æò)
|
|
|
|
2025-08-12
À¯Âû
|
(100%)
227,000,000¿ø
|
|
|
|
2025-09-16
³«Âû
|
(70%)
158,900,000¿ø
|
|
|
|
|
|
2025-12-02
³«Âû
|
(70%)
158,900,000¿ø
|
|
|
¦±¦¬> ³«Âû°¡
 |
|
|
|
|
2026-02-10
À¯Âû
|
(70%)
158,900,000¿ø
|
|
|
|
2026-03-17
À¯Âû
|
(49%)
111,230,000¿ø
|
|
|
|
2026-04-21
ÁøÇà
|
(34%)
77,861,000¿ø
|
|
|
|
|
|
|
|
°ÇÃ๰ÇöȲ |
|
|
|
| ¼ÒÀçÁö |
ÃæÃ»ºÏµµ ûÁֽà »ó´ç±¸ ±Ýõµ¿ 270¹øÁö |
| ´ëÁö¸éÀû |
|
¿¬¸éÀû |
5492.844§³(1664.5Æò) |
ÁÖ¿ëµµ |
°øµ¿ÁÖÅà |
| °ÇÃà¸éÀû |
425.4148§³(128.91Æò) |
¿ëÀû·ü»êÁ¤¿¬¸éÀû |
5492.844§³(1664.5Æò) |
Âø°øÀÏÀÚ |
2000.05.12 |
| °ÇÆóÀ² |
|
¿ëÀû·ü |
|
»ç¿ë½ÂÀÎÀÏÀÚ |
2002.10.28 |
| Áö»óÃþ¼ö |
15Ãþ |
ÁöÇÏÃþ¼ö |
|
±¸Á¶ |
ö±ÙÄÜÅ©¸®Æ®±¸Á¶ |
°ÇÃ๰Ãþº°ÇöȲ [º¸±â]| Ãþº° | ±¸Á¶ | ¿ëµµ | ¸éÀû | | 1Ãþ | ö±ÙÄÜÅ©¸®Æ®º®½Ä±¸Á¶ | ¾ÆÆÄÆ® | 592.3845§³ (179.51Æò) | | 1Ãþ | ö±ÙÄÜÅ©¸®Æ®º®½Ä±¸Á¶ | ¾ÆÆÄÆ® | 376.3815§³ (114.06Æò) | | 1Ãþ | ö±ÙÄÜÅ©¸®Æ®¶ó¸à±¸Á¶ | ±Ù¸°»ýȰ½Ã¼³ | 217.48§³ (65.9Æò) | | 2Ãþ | ö±ÙÄÜÅ©¸®Æ®¶ó¸à±¸Á¶ | Á¦1Á¾±Ù¸°»ýȰ½Ã¼³(ÀåÀÇ»ç,ÃÑÆ÷ÆÇ¸Å¼Ò, | 220.6§³ (66.85Æò) | | 2Ãþ | ö±ÙÄÜÅ©¸®Æ®º®½Ä±¸Á¶ | ¾ÆÆÄÆ® | 653.136§³ (197.92Æò) | | 2Ãþ | ö±ÙÄÜÅ©¸®Æ®º®½Ä±¸Á¶ | ¾ÆÆÄÆ® | 655.4448§³ (198.62Æò) | | 3Ãþ | ö±ÙÄÜÅ©¸®Æ®º®½Ä±¸Á¶ | ¾ÆÆÄÆ® | 653.136§³ (197.92Æò) | | 3Ãþ | ö±ÙÄÜÅ©¸®Æ®º®½Ä±¸Á¶ | ¾ÆÆÄÆ® | 653.136§³ (197.92Æò) | | 4Ãþ | ö±ÙÄÜÅ©¸®Æ®º®½Ä±¸Á¶ | ¾ÆÆÄÆ® | 653.136§³ (197.92Æò) | | 4Ãþ | ö±ÙÄÜÅ©¸®Æ®º®½Ä±¸Á¶ | ¾ÆÆÄÆ® | 653.136§³ (197.92Æò) | | 5Ãþ | ö±ÙÄÜÅ©¸®Æ®º®½Ä±¸Á¶ | ¾ÆÆÄÆ® | 653.136§³ (197.92Æò) | | 5Ãþ | ö±ÙÄÜÅ©¸®Æ®º®½Ä±¸Á¶ | ¾ÆÆÄÆ® | 653.136§³ (197.92Æò) | | 6Ãþ | ö±ÙÄÜÅ©¸®Æ®º®½Ä±¸Á¶ | ¾ÆÆÄÆ® | 653.136§³ (197.92Æò) | | 6Ãþ | ö±ÙÄÜÅ©¸®Æ®º®½Ä±¸Á¶ | ¾ÆÆÄÆ® | 653.136§³ (197.92Æò) | | 7Ãþ | ö±ÙÄÜÅ©¸®Æ®º®½Ä±¸Á¶ | ¾ÆÆÄÆ® | 653.136§³ (197.92Æò) | | 7Ãþ | ö±ÙÄÜÅ©¸®Æ®º®½Ä±¸Á¶ | ¾ÆÆÄÆ® | 653.136§³ (197.92Æò) | | 8Ãþ | ö±ÙÄÜÅ©¸®Æ®º®½Ä±¸Á¶ | ¾ÆÆÄÆ® | 653.136§³ (197.92Æò) | | 8Ãþ | ö±ÙÄÜÅ©¸®Æ®º®½Ä±¸Á¶ | ¾ÆÆÄÆ® | 653.136§³ (197.92Æò) | | 9Ãþ | ö±ÙÄÜÅ©¸®Æ®º®½Ä±¸Á¶ | ¾ÆÆÄÆ® | 653.136§³ (197.92Æò) | | 9Ãþ | ö±ÙÄÜÅ©¸®Æ®º®½Ä±¸Á¶ | ¾ÆÆÄÆ® | 653.136§³ (197.92Æò) | | 10Ãþ | ö±ÙÄÜÅ©¸®Æ®º®½Ä±¸Á¶ | ¾ÆÆÄÆ® | 653.136§³ (197.92Æò) | | 10Ãþ | ö±ÙÄÜÅ©¸®Æ®º®½Ä±¸Á¶ | ¾ÆÆÄÆ® | 653.136§³ (197.92Æò) | | 11Ãþ | ö±ÙÄÜÅ©¸®Æ®º®½Ä±¸Á¶ | ¾ÆÆÄÆ® | 653.136§³ (197.92Æò) | | 11Ãþ | ö±ÙÄÜÅ©¸®Æ®º®½Ä±¸Á¶ | ¾ÆÆÄÆ® | 653.136§³ (197.92Æò) | | 12Ãþ | ö±ÙÄÜÅ©¸®Æ®º®½Ä±¸Á¶ | ¾ÆÆÄÆ® | 653.136§³ (197.92Æò) | | 12Ãþ | ö±ÙÄÜÅ©¸®Æ®º®½Ä±¸Á¶ | ¾ÆÆÄÆ® | 653.136§³ (197.92Æò) | | 13Ãþ | ö±ÙÄÜÅ©¸®Æ®º®½Ä±¸Á¶ | ¾ÆÆÄÆ® | 653.136§³ (197.92Æò) | | 13Ãþ | ö±ÙÄÜÅ©¸®Æ®º®½Ä±¸Á¶ | ¾ÆÆÄÆ® | 653.136§³ (197.92Æò) | | 14Ãþ | ö±ÙÄÜÅ©¸®Æ®º®½Ä±¸Á¶ | ¾ÆÆÄÆ® | 653.136§³ (197.92Æò) | | 15Ãþ | ö±ÙÄÜÅ©¸®Æ®º®½Ä±¸Á¶ | ¾ÆÆÄÆ® | 653.136§³ (197.92Æò) |
|
|
|
|
|
 |
ÀÓÂ÷³»¿ª |
[¹è´ç¿ä±¸Á¾±âÀÏ : 2025/06/12] |
|
|
| ÀÓÂ÷ÀÎ |
Á¡À¯°ü°è |
ÀüÀÔÀÏÀÚ |
È®Á¤ÀÏÀÚ |
¹è´ç¿ä±¸ÀÏ |
º¸Áõ±Ý/Â÷ÀÓ |
´ëÇ׿ä°Ç |
ºñ°í |
| ±èOO |
Àüü |
2020.02.03. |
2020.01.31. |
2025.5.22. |
1¾ï6õ¸¸¿ø
|
O |
2020.01.31.~ÇöÀç |
| ¸Å°¢¹°°Ç¸í¼¼ ºñ°í |
±èÁÖÀÏ:¸Å¼öÀο¡°Ô ´ëÇ×ÇÒ ¼ö ÀÖ´Â ÀÓÂ÷ÀÎÀ¸·Î ¹è´ç¿¡¼ º¸Áõ±ÝÀÌ Àü¾× º¯Á¦µÇÁö ¾Æ´ÏÇϸé Àܾ×À» ¸Å¼öÀÎÀÌ ÀμöÇÔ.
´Ü,
2025.
272,497,520¿ø)·Î¼ ¹è´çÀýÂ÷¿¡¼ È®Á¤ÀÏÀÚ ÀÓÂ÷ÀÎÀÇ Ã¤±Ç¿¡ ¿ì¼±ÇÔ
3. |
|
|
|
 |
¹ý¿ø ¹°°ÇÀÚ·á ¿ä¾à |
|
|
|
|
| ¼Ò¸êµÇÁö ¾Ê´Â µî±âºÎ±Ç¸® |
|
| ¼³Á¤µÈ °ÍÀ¸·Î º¸´Â Áö»ó±Ç |
|
| ¹ý¿øÀÚ·á Æ¯ÀÌ»çÇ× |
[ÁÖ¿ä ¹®°Ç Á¢¼ö ³»¿ª]
[2025.09.17] ÃÖ°í°¡¸Å¼ö½Å°íÀÎ ¸Å°¢ºÒÇã°¡½Åû¼ Á¦Ãâ
[2025.12.03] ÃÖ°í°¡¸Å¼ö½Å°íÀÎ ¸Å°¢ºÒÇã°¡½Åû¼ Á¦Ãâ
|
[¸Å°¢¹°°Ç¸í¼¼¼ ºñ°í¶õ]
Àç¸Å°¢ |
|
| ¿©ÀÇÁÖ°æ¸Å Á¶¾ð ÇѸ¶µð |
ÀÌ ºÎµ¿»êÀÇ ÀÔÂû¹ý¿øÀº ûÁÖÁö¹æ¹ý¿øÀÔ´Ï´Ù.
ÀÔÂûÀÏÀº 2026-04-21ÀÔ´Ï´Ù.
ÀÔÂû½Ã°£Àº 10:00~11:30ÀÔ´Ï´Ù. ÀÌ ¹ý¿ø¿¡´Â ½ÅÇÑÀºÇàÀÌ ÀÔÁ¡Çϰí ÀÖ½À´Ï´Ù.
|
|
|
| Åë°è±â°£ |
³«Âû¹°°Ç¼ö |
Æò±Õ°¨Á¤°¡ |
Æò±Õ³«Âû°¡ |
³«Âû°¡À² |
À¯ÂûȽ¼ö |
|
|
|
|
|
|
|
 |
ÀαÙÁö¿ª ÃÖ±Ù ³«Âû»ç·Ê
|
|
|
 |
|
|
[¾È³»] Ȥ½Ã ÀÌ¿ëÀÌ ºÒÆíÇϽðųª »èÁ¦ÇÒ ³»¿ëÀÌ ÀÖ´Ù¸é ÃÖ´ëÇÑ ³ë·ÂÇØ¼ °³¼±ÇØ ³ª°¡µµ·Ï ÇϰڽÀ´Ï´Ù.
 |
|
ÀÌ »çÀÌÆ®¿¡¼ Á¦°øµÇ´Â ºÎµ¿»ê°æ¸Å ÀÚ·á´Â ¹ý¿ø °æ¸Å°è¿¡¼ ó¸®Çϰí ÀÖ´Â ½ÇÁ¦ ¹°°ÇÀÇ Á¤º¸¿Í ÀÏÄ¡ÇÏÁö ¾ÊÀ» ¼öµµ ÀÖ½À´Ï´Ù.
´ç»ç´Â º» ÀÚ·á¿¡ °üÇÏ¿© Á¤½Ä ÄÁ¼³ÆÃ ÀÇ·Ú°¡ ¾Æ´Ñ ÀÌ»ó ¾î¶°ÇÑ º¸Áõµµ ÇÏÁö ¾ÊÀ¸¸ç ¹ýÀû Ã¥ÀÓÀ» ÁöÁö ¾Ê½À´Ï´Ù.
ÀÔÂûÇϱâ Àü¿¡ ²Ä²ÄÈ÷ ¹ý¿ø¿¡ ºñÄ¡µÈ ¸Å°¢¹°°Ç¸í¼¼¼ ¹× ±âŸ °øºÎ¸¦ ÀçÈ®ÀÎÇϽðí ÀÔÂû¿¡ Âü°¡ÇÏ½Ã±æ ¹Ù¶ø´Ï´Ù. |
|
|
|
|
|