|
|
|
| ¹°°ÇÁ¤º¸ Çٽɺ¸±â |
Ȩ > °æ¸ÅÁ¾ÇÕ°Ë»ö > ¹°°ÇÁ¤º¸ Çٽɺ¸±â |
|
|
| 2024Ÿ°æ63851 °æ¸Å»ç°ÇÀÇ ´Ù¼¼´ë(ºô¶ó) ¹°°Ç¿¡ °üÇÑ »ó¼¼ Á¤º¸ÀÔ´Ï´Ù. |
|
| ¼ÒÀçÁö |
¼¿ïƯº°½Ã ¼ºµ¿±¸ »ì°ùÀ̱æ 150, 101µ¿ 4Ãþ 401È£ (»ç±Ùµ¿,û°è´õÇÏÀÓ)
±¸)¼¿ïƯº°½Ã ¼ºµ¿±¸ »ç±Ùµ¿ 230-1
|
|
| »ç°Ç¹øÈ£ |
2024 Ÿ°æ 63851 |
¹°°Ç¹øÈ£ |
1
|
¹°°Ç¿ëµµ |
´Ù¼¼´ë(ºô¶ó) |
| °¨Á¤Æò°¡¾× |
231,000,000¿ø |
°æ¸Å´ë»ó |
ÅäÁö ¹× °Ç¹°Àϰý ¸Å°¢ |
ÁøÇà»óÅ |
À¯Âû |
| ÃÖÀúÀÔÂû°¡ |
(51%) 118,272,000¿ø
|
°Ç¹°¸éÀû |
24.83§³(7.51Æò) |
ÀÔÂû±âÀÏ |
2025.12.15(¿ù) 10:00
(ÀÔÂû 30ÀÏÀü)
|
| ÀÔÂûº¸Áõ±Ý |
(10%) 11,827,200¿ø |
ÅäÁö¸éÀû |
16.29§³(4.93Æò)
|
À¯ÂûȽ¼ö |
3ȸ |
| ÀÔÂû¹ý¿ø |
¼¿ïµ¿ºÎÁö¹æ¹ý¿ø |
°æ¸Å¹æ¹ý |
ºÎµ¿»ê°Á¦°æ¸Å |
¹°°ÇÁ¶È¸¼ö |
¿À´Ã: ȸ [´©Àû: ȸ]
|
| ¸»¼Ò±âÁØ | ÃÖ¼±¼øÀ§ ¼³Á¤ : 2024.11.08. °æ¸Å°³½Ã°áÁ¤ ¼³Á¤
|
|
|
|
|
|
|
|
|
|
|
°æ¸Å´ë»ó ¸ñ·Ï
|
|
| ±¸ºÐ |
¸ñ·Ï |
ÁÖ¼Ò |
±¸Á¶/¿ëµµ/´ëÁö±Ç |
ºñ°í |
´ëÁö±Ç
|
1 |
»ç±Ùµ¿ 230-1 |
564ºÐÀÇ 16.2944 |
16.2944§³ (4.93Æò)
|
°Ç¹°
|
1 |
»ç±Ùµ¿ 230-1 |
101µ¿ 4Ãþ 401È£ ö±ÙÄÜÅ©¸®Æ®±¸Á¶ |
24.83§³ (7.51Æò)
|
|
|
|
2025-08-18
À¯Âû
|
(100%)
231,000,000¿ø
|
|
|
|
2025-09-22
À¯Âû
|
(80%)
184,800,000¿ø
|
|
|
|
2025-11-10
À¯Âû
|
(64%)
147,840,000¿ø
|
|
|
|
2025-12-15
ÁøÇà
|
(51%)
118,272,000¿ø
|
|
|
|
|
|
°¨Á¤Æò°¡¼ ¿ä¾à |
|
[À§Ä¡/ÁÖÀ§È¯°æ]
´ë»ó¹°°ÇÀº ¼¿ïƯº°½Ã ¼ºµ¿±¸ »ç±Ùµ¿ ¼ÒÀç "»ç±ÙÃʵîÇб³" µ¿Ãø Àαٿ¡ À§Ä¡Çϸç,
º»°Ç ÀαÙÀº ´Üµ¶ÁÖÅÃ, ´Ù¼¼´ëÁÖÅÃ, ¾ÆÆÄÆ®´ÜÁö, ±Ù¸°»ýȰ½Ã¼³ ¹× °¢±ÞÇб³ µîÀÌ
¼ÒÀçÇÏ´Â ÁÖÅÃÁö´ë·Î¼ Á¦¹Ý ÁÖÀ§È¯°æÀº ¾çÈ£ÇÔ.
[±³Åë»óȲ]
º»°Ç±îÁö Â÷·®ÀÇ Áø¡¤ÃâÀÔÀÌ °¡´ÉÇϰí,
Àαٿ¡ ³ë¼±¹ö½ºÁ¤·ùÀå ¹× ¿ë´ä¿ª(ÁöÇÏö2È£¼±) µîÀÌ ¼ÒÀçÇÏ´Â µî Á¦¹Ý±³Åë»çÁ¤Àº ¾çÈ£ÇÔ.
[°Ç¹°±¸Á¶]
ö±ÙÄÜÅ©¸®Æ®±¸Á¶ (ö±Ù)ÄÜÅ©¸®Æ®ÁöºØ ÁöÇÏ 1Ãþ Áö»ó 7Ãþ °Ç¹° ³» Á¦4Ãþ Á¦401È£·Î¼,
¿Ü º® : ¼®ÀçºÙÀÓ ¸¶°¨ µî,
â È£ : ¼¦½Ãâȣ µîÀÓ.
[ÀÌ¿ë»óÅÂ]
´Ù¼¼´ëÁÖÅÃ(ÈÄ÷ "°Ç¹°°³È²µµ" ÂüÁ¶)À¸·Î ÀÌ¿ëÁßÀÓ.
[¼³ºñ³»¿ª]
E/V¼³ºñ, À§»ý¡¤±Þ¹è¼ö¼³ºñ, ¼ÒÈÀü¼³ºñ ¹× ³¹æ¼³ºñ µî ±âº»ÀûÀÎ ¼³ºñ°¡ ±¸ºñµÇ¾î ÀÖÀ½.
[ÅäÁöÇü»ó/ÀÌ¿ë»óÅÂ]
ºÎÁ¤Çü ÅäÁö·Î¼ ´Ù¼¼´ëÁÖÅà ¹× ±Ù¸°»ýȰ½Ã¼³ °ÇºÎÁö·Î ÀÌ¿ëÁßÀÓ.
7)ÀÎÁ¢ µµ·Î»óŵî
º»°Ç °Ç¹° ºÏµ¿ÃøÀ¸·Î ³ëÆø ¾à 20¹ÌÅÍ ³»¿ÜÀÇ Æ÷Àåµµ·Î¿¡ °¢°¢ Á¢ÇÔ.
[ÅäÁöÀÌ¿ë°èȹ]
µµ½ÃÁö¿ª, Á¦2Á¾ÀϹÝÁÖ°ÅÁö¿ª(7ÃþÀÌÇÏ), µµ·Î(Á¢ÇÕ),
±³À°È¯°æº¸È£±¸¿ª(ÃÖÁ¾È®ÀÎÀº ¼ºµ¿±³À°Ã»¿¡ ¹Ýµå½Ã È®Àοä¸Á)
£¼±³À°È¯°æ º¸È£¿¡ °üÇÑ ¹ý·ü£¾, Àý´ëº¸È£±¸¿ª(2021-05-14)
£¼±³À°È¯°æ º¸È£¿¡ °üÇÑ ¹ý·ü£¾, ´ë°ø¹æ¾îÇùÁ¶±¸¿ª(77-257m)
£¼±º»ç±âÁö ¹× ±º»ç½Ã¼³ º¸È£¹ý£¾, °ú¹Ð¾ïÁ¦±Ç¿ª£¼¼öµµ±ÇÁ¤ºñ°èȹ¹ý£¾
[°øºÎ¿ÍÀÇ Â÷ÀÌ]
-
[Âü°í»çÇ×]
- |
|
|
°ÇÃ๰ÇöȲ |
|
|
|
| ¼ÒÀçÁö |
¼¿ïƯº°½Ã ¼ºµ¿±¸ »ç±Ùµ¿ 230-1¹øÁö |
| ´ëÁö¸éÀû |
564§³(170.91Æò) |
¿¬¸éÀû |
1012§³(306.67Æò) |
ÁÖ¿ëµµ |
°øµ¿ÁÖÅà |
| °ÇÃà¸éÀû |
187.19§³(56.72Æò) |
¿ëÀû·ü»êÁ¤¿¬¸éÀû |
846.75§³(256.59Æò) |
Âø°øÀÏÀÚ |
2015.12.28 |
| °ÇÆóÀ² |
33.19% |
¿ëÀû·ü |
150.13% |
»ç¿ë½ÂÀÎÀÏÀÚ |
2019.06.05 |
| Áö»óÃþ¼ö |
7Ãþ |
ÁöÇÏÃþ¼ö |
1Ãþ |
±¸Á¶ |
ö±ÙÄÜÅ©¸®Æ®±¸Á¶ |
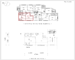
°ÇÃ๰Ãþº°ÇöȲ [º¸±â]| Ãþº° | ±¸Á¶ | ¿ëµµ | ¸éÀû | | 1Ãþ | ö±ÙÄÜÅ©¸®Æ®±¸Á¶ | ±â°è½ÄÁÖÂ÷Àå | 25.95§³ (7.86Æò) | | 1Ãþ | ö±ÙÄÜÅ©¸®Æ®±¸Á¶ | ¿¤¸®º£ÀÌÅÍ/Ȧ | 18.31§³ (5.55Æò) | | 2Ãþ | ö±ÙÄÜÅ©¸®Æ®±¸Á¶ | »ç¹«¼Ò | 180.44§³ (54.68Æò) | | 3Ãþ | ö±ÙÄÜÅ©¸®Æ®±¸Á¶ | ´Ù¼¼´ëÁÖÅÃ(4¼¼´ë) | 129.6§³ (39.27Æò) | | 4Ãþ | ö±ÙÄÜÅ©¸®Æ®±¸Á¶ | ´Ù¼¼´ëÁÖÅÃ(4¼¼´ë) | 129.6§³ (39.27Æò) | | 5Ãþ | ö±ÙÄÜÅ©¸®Æ®±¸Á¶ | ´Ù¼¼´ëÁÖÅÃ(4¼¼´ë) | 129.6§³ (39.27Æò) | | 6Ãþ | ö±ÙÄÜÅ©¸®Æ®±¸Á¶ | ´Ù¼¼´ëÁÖÅÃ(4¼¼´ë) | 129.6§³ (39.27Æò) | | 7Ãþ | ö±ÙÄÜÅ©¸®Æ®±¸Á¶ | ´Ù¼¼´ëÁÖÅÃ(4¼¼´ë) | 129.6§³ (39.27Æò) | | ¿Áž1Ãþ | ö±ÙÄÜÅ©¸®Æ®±¸Á¶ | °è´Ü½Ç(¿¬¸éÀûÁ¦¿Ü) | 13.3§³ (4.03Æò) | | Áö1Ãþ | ö±ÙÄÜÅ©¸®Æ®±¸Á¶ | ±â°è½ÄÁÖÂ÷Àå | 139.3§³ (42.21Æò) |
|
|
|
|
|
 |
ÀÓÂ÷³»¿ª |
[¹è´ç¿ä±¸Á¾±âÀÏ : 2025/02/03] |
|
|
| ÀÓÂ÷ÀÎ |
Á¡À¯°ü°è |
ÀüÀÔÀÏÀÚ |
È®Á¤ÀÏÀÚ |
¹è´ç¿ä±¸ÀÏ |
º¸Áõ±Ý/Â÷ÀÓ |
´ëÇ׿ä°Ç |
ºñ°í |
| ·ùOO |
401È£ |
2022.02.25 |
2022.02.25 |
|
230,000,000
|
O |
|
| ÁÖOOOOOOOOOOOO |
401È£ |
2022.02.25. |
2022.02.25. |
2024.11.7. |
230,000,000
|
O |
|
| ¸Å°¢¹°°Ç¸í¼¼ ºñ°í |
|
|
|
|
 |
¹ý¿ø ¹°°ÇÀÚ·á ¿ä¾à |
|
|
|
|
| ¼Ò¸êµÇÁö ¾Ê´Â µî±âºÎ±Ç¸® |
2024.02.29.Á¢¼ö Á¦34700È£·Î °æ·áµÈ À»±¸ 3¹ø ÁÖÅÃÀÓÂ÷±Çµî±â´Â ¹è´ç¿¡¼ º¸Áõ±Ý Àü¾× ¹è´ç¹ÞÁö ¾ÊÀ¸¸é Àܾ×À» ¸Å¼öÀÎÀÌ ÀÎ
¼öÇÔ |
| ¼³Á¤µÈ °ÍÀ¸·Î º¸´Â Áö»ó±Ç |
ÇØ´ç»çÇ×¾øÀ½ |
| ¹ý¿øÀÚ·á Æ¯ÀÌ»çÇ× |
|
| ¿©ÀÇÁÖ°æ¸Å Á¶¾ð ÇѸ¶µð |
ÀÌ ºÎµ¿»êÀÇ ÀÔÂû¹ý¿øÀº ¼¿ïµ¿ºÎÁö¹æ¹ý¿øÀÔ´Ï´Ù.
ÀÔÂûÀÏÀº 2025-12-15ÀÔ´Ï´Ù.
ÀÔÂû½Ã°£Àº 11:00~11:10ÀÔ´Ï´Ù. ÀÌ ¹ý¿ø¿¡´Â ½ÅÇÑÀºÇàÀÌ ÀÔÁ¡Çϰí ÀÖ½À´Ï´Ù.
|
¼±¼øÀ§ ÀÓÂ÷±Çµî±â°¡ µÇ¾î ÀÖ½À´Ï´Ù ´ëÇ×·ÂÀÌ ÀÖ´Â ¼±¼øÀ§ ÀÓÂ÷±Çµî±â ±Ç¸®ÀÚ°¡ ¹è´çÀ» Àü¾× ¹ÞÁö ¸øÇÒ °æ¿ì ³«ÂûÀÚ°¡ ÀÜ¿© º¸Áõ±ÝÀ» ÀμöÇØ¾ßÇÏ´Â °æ¿ìµµ ÀÖ½À´Ï´Ù. |
|
|
| Åë°è±â°£ |
³«Âû¹°°Ç¼ö |
Æò±Õ°¨Á¤°¡ |
Æò±Õ³«Âû°¡ |
³«Âû°¡À² |
À¯ÂûȽ¼ö |
| 3°³¿ù |
0°Ç |
0¿ø |
0¿ø |
0% |
0ȸ |
| 6°³¿ù |
0°Ç |
0¿ø |
0¿ø |
0% |
0ȸ |
| 12°³¿ù |
4°Ç |
291,500,000¿ø |
252,173,750¿ø |
87% |
2.3ȸ |
|
|
|
|
|
|
|
 |
ÀαÙÁö¿ª ÃÖ±Ù ³«Âû»ç·Ê
|
|
|
 |
|
|
[¾È³»] Ȥ½Ã ÀÌ¿ëÀÌ ºÒÆíÇϽðųª »èÁ¦ÇÒ ³»¿ëÀÌ ÀÖ´Ù¸é ÃÖ´ëÇÑ ³ë·ÂÇØ¼ °³¼±ÇØ ³ª°¡µµ·Ï ÇϰڽÀ´Ï´Ù.
 |
|
ÀÌ »çÀÌÆ®¿¡¼ Á¦°øµÇ´Â ºÎµ¿»ê°æ¸Å ÀÚ·á´Â ¹ý¿ø °æ¸Å°è¿¡¼ ó¸®Çϰí ÀÖ´Â ½ÇÁ¦ ¹°°ÇÀÇ Á¤º¸¿Í ÀÏÄ¡ÇÏÁö ¾ÊÀ» ¼öµµ ÀÖ½À´Ï´Ù.
´ç»ç´Â º» ÀÚ·á¿¡ °üÇÏ¿© Á¤½Ä ÄÁ¼³ÆÃ ÀÇ·Ú°¡ ¾Æ´Ñ ÀÌ»ó ¾î¶°ÇÑ º¸Áõµµ ÇÏÁö ¾ÊÀ¸¸ç ¹ýÀû Ã¥ÀÓÀ» ÁöÁö ¾Ê½À´Ï´Ù.
ÀÔÂûÇϱâ Àü¿¡ ²Ä²ÄÈ÷ ¹ý¿ø¿¡ ºñÄ¡µÈ ¸Å°¢¹°°Ç¸í¼¼¼ ¹× ±âŸ °øºÎ¸¦ ÀçÈ®ÀÎÇϽðí ÀÔÂû¿¡ Âü°¡ÇÏ½Ã±æ ¹Ù¶ø´Ï´Ù. |
|
|
|
|
|