|
|
|
| ¹°°ÇÁ¤º¸ Çٽɺ¸±â |
Ȩ > °æ¸ÅÁ¾ÇÕ°Ë»ö > ¹°°ÇÁ¤º¸ Çٽɺ¸±â |
|
|
| 2024Ÿ°æ69179 °æ¸Å»ç°ÇÀÇ ´Ù¼¼´ë(ºô¶ó) ¹°°Ç¿¡ °üÇÑ »ó¼¼ Á¤º¸ÀÔ´Ï´Ù. |
|
| ¼ÒÀçÁö |
°æ±âµµ ½ÃÈï½Ã ½ÃÈï´ë·Î1056¹ø±æ 4-8, ³ªµ¿ 4Ãþ401È£
±¸)°æ±âµµ ½ÃÈï½Ã ÀºÇൿ 327-48
|
|
| »ç°Ç¹øÈ£ |
2024 Ÿ°æ 69179 |
¹°°Ç¹øÈ£ |
1
|
¹°°Ç¿ëµµ |
´Ù¼¼´ë(ºô¶ó) |
| °¨Á¤Æò°¡¾× |
269,000,000¿ø |
°æ¸Å´ë»ó |
ÅäÁö ¹× °Ç¹°Àϰý ¸Å°¢ |
ÁøÇà»óÅ |
À¯Âû |
| ÃÖÀúÀÔÂû°¡ |
(100%) 269,000,000¿ø
|
°Ç¹°¸éÀû |
50.97§³(15.42Æò) |
ÀÔÂû±âÀÏ |
2026.03.05(¸ñ) 10:30
(ÀÔÂû 5ÀÏÀü)
|
| ÀÔÂûº¸Áõ±Ý |
(10%) 26,900,000¿ø |
ÅäÁö¸éÀû |
32.65§³(9.88Æò)
|
À¯ÂûȽ¼ö |
4ȸ |
| ÀÔÂû¹ý¿ø |
¼ö¿øÁö¹æ¹ý¿ø ¾È»êÁö¿ø |
°æ¸Å¹æ¹ý |
ºÎµ¿»ê°Á¦°æ¸Å |
¹°°ÇÁ¶È¸¼ö |
¿À´Ã: 4ȸ [´©Àû: 1255ȸ]
|
| ¸»¼Ò±âÁØ | ÃÖ¼±¼øÀ§ ¼³Á¤ : 2023.03.16. (¾Ð·ù) ¼³Á¤
|
|
|
|
|
|
|
|
|
|
|
°æ¸Å´ë»ó ¸ñ·Ï
|
|
| ±¸ºÐ |
¸ñ·Ï |
ÁÖ¼Ò |
±¸Á¶/¿ëµµ/´ëÁö±Ç |
ºñ°í |
´ëÁö±Ç
|
1 |
ÀºÇൿ 327-48 |
726ºÐÀÇ 32.65 |
32.65§³ (9.88Æò)
|
°Ç¹°
|
1 |
ÀºÇൿ 327-48 |
³ªµ¿ 4Ãþ401È£ ö±ÙÄÜÅ©¸®Æ®±¸Á¶ |
50.97§³ (15.42Æò)
|
|
|
|
2025-08-21
À¯Âû
|
(100%)
269,000,000¿ø
|
|
|
|
2025-09-25
À¯Âû
|
(70%)
188,300,000¿ø
|
|
|
|
2025-10-30
À¯Âû
|
(49%)
131,810,000¿ø
|
|
|
|
2025-12-11
À¯Âû
|
(34%)
92,267,000¿ø
|
|
|
|
2026-03-05
ÁøÇà
|
(100%)
269,000,000¿ø
|
|
|
|
|
|
°¨Á¤Æò°¡¼ ¿ä¾à |
|
[À§Ä¡/ÁÖÀ§È¯°æ]
º»°ÇÀº °æ±âµµ ½ÃÈï½Ã ÀºÇൿ ¼ÒÀç "½ÃÈï½ÅÀÏÃʵîÇб³" ³²µ¿Ãø Àαٿ¡ À§Ä¡Çϸç, ÁÖÀ§´Â ¾ÆÆÄÆ®, ´Ù¼¼´ëÁÖÅÃ, ´Üµ¶ÁÖÅÃ, ±Ù¸°»ýȰ½Ã¼³ µîÀÌ È¥ÀçÇÏ´Â Áö¿ªÀÓ.
[±³Åë»óȲ]
º»°Ç±îÁö Á¦¹ÝÂ÷·®ÀÇ ÁøÃâÀÔÀÌ °¡´ÉÇϰí, Àα٠¹× ±Ù°Å¸®¿¡ ³ë¼±¹ö½ºÁ¤·ùÀå ¹× ¼Çؼ± "½Åõ¿ª"ÀÌ ¼ÒÀçÇÏ¿© Á¢±Ù°Å¸® ¹× ¿îÇàºóµµ µîÀ¸·Î º¸¾Æ ´ëÁß±³ÅëÀÌ¿ë»çÁ¤Àº º¸ÅëÀÓ.
[°Ç¹°±¸Á¶]
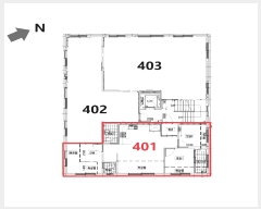
ö±ÙÄÜÅ©¸®Æ®±¸Á¶ (ö±Ù)ÄÜÅ©¸®Æ® ÁöºØ 5Ãþ °Ç³» 4Ãþ 401È£·Î¼,
¿Üº®: º®µ¹ ½×±â ¸¶°¨,
³»º®: º®Áöµµ¹è ¹× ÀϺΠŸÀÏ ¸¶°¨ µî,
âȣ: ÇÏÀÌ»þ½Ã âȣÀÓ.
[ÀÌ¿ë»óÅÂ]
´Ù¼¼´ëÁÖÅÃÀ¸·Î ÀÌ¿ë ÁßÀÓ.
[¼³ºñ³»¿ª]
À§»ý¼³ºñ ¹× ±Þ¹è¼ö¼³ºñ, ½Â°±â¼³ºñ, ³¹æ¼³ºñ µîÀÌ µÇ¾î ÀÖÀ½.
[ÅäÁöÇü»ó/ÀÌ¿ë»óÅÂ]
ÀÎÁ¢Áö ´ëºñ µî°íÆòźÇÑ ¼¼ÀåÇü ÅäÁö·Î¼, ÁÖ°Å¿ë °ÇºÎÁö·Î ÀÌ¿ë ÁßÀÓ.
7)ÀÎÁ¢ µµ·Î»óŵî
º»°Ç ºÏÃøÀ¸·Î ³ëÆø ¾à 6¹ÌÅÍ ³»¿ÜÀÇ Æ÷Àåµµ·Î¿¡ Á¢ÇÔ.
[ÅäÁöÀÌ¿ë°èȹ]
Á¦1Á¾ÀϹÝÁÖ°ÅÁö¿ª, ¼Ò·Î2·ù(Æø 8m-10m)(±¹Áöµµ·Î)(Á¢ÇÕ), ¼Ò·Î2·ù(Æø 8m-10m)(Á¢ÇÕ), Áß·Î3·ù(Æø 12m-15m)(Á¢ÇÕ) °¡Ãà»çÀ°Á¦Çѱ¸¿ª£¼°¡ÃàºÐ´¢ÀÇ °ü¸® ¹× À̿뿡 °üÇÑ ¹ý·ü£¾, »ó´ëº¸È£±¸¿ª(2013-07-18)£¼±³À°È¯°æ º¸È£¿¡ °üÇÑ ¹ý·ü£¾, °ú¹Ð¾ïÁ¦±Ç¿ª£¼¼öµµ±ÇÁ¤ºñ°èȹ¹ý£¾
[°øºÎ¿ÍÀÇ Â÷ÀÌ]
-
[Âü°í»çÇ×]
ÀÓ´ë°ü°è´Â ¹Ì»óÀÓ. |
|
|
°ÇÃ๰ÇöȲ |
|
|
|
| ¼ÒÀçÁö |
°æ±âµµ ½ÃÈï½Ã ÀºÇൿ 327-48¹øÁö |
| ´ëÁö¸éÀû |
726§³(220Æò) |
¿¬¸éÀû |
658.8§³(199.64Æò) |
ÁÖ¿ëµµ |
°øµ¿ÁÖÅà |
| °ÇÃà¸éÀû |
208.29§³(63.12Æò) |
¿ëÀû·ü»êÁ¤¿¬¸éÀû |
658.8§³(199.64Æò) |
Âø°øÀÏÀÚ |
2019.07.25 |
| °ÇÆóÀ² |
28.69% |
¿ëÀû·ü |
90.74% |
»ç¿ë½ÂÀÎÀÏÀÚ |
2021.01.25 |
| Áö»óÃþ¼ö |
5Ãþ |
ÁöÇÏÃþ¼ö |
|
±¸Á¶ |
ö±ÙÄÜÅ©¸®Æ®±¸Á¶ |
°ÇÃ๰Ãþº°ÇöȲ [º¸±â]| Ãþº° | ±¸Á¶ | ¿ëµµ | ¸éÀû | | 1Ãþ | ö±ÙÄÜÅ©¸®Æ®±¸Á¶ | °è´Ü½Ç | 18.41§³ (5.58Æò) | | 2Ãþ | ö±ÙÄÜÅ©¸®Æ®±¸Á¶ | µµ½ÃÇü»ýȰÁÖÅÃ[´ÜÁöÇü´Ù¼¼´ëÁÖÅÃ(3¼¼´ë | 159.23§³ (48.25Æò) | | 3Ãþ | ö±ÙÄÜÅ©¸®Æ®±¸Á¶ | µµ½ÃÇü»ýȰÁÖÅÃ[´ÜÁöÇü´Ù¼¼´ëÁÖÅÃ(3¼¼´ë | 159.23§³ (48.25Æò) | | 4Ãþ | ö±ÙÄÜÅ©¸®Æ®±¸Á¶ | µµ½ÃÇü»ýȰÁÖÅÃ[´ÜÁöÇü´Ù¼¼´ëÁÖÅÃ(3¼¼´ë | 159.23§³ (48.25Æò) | | 5Ãþ | ö±ÙÄÜÅ©¸®Æ®±¸Á¶ | µµ½ÃÇü»ýȰÁÖÅÃ[´ÜÁöÇü´Ù¼¼´ëÁÖÅÃ(3¼¼´ë | 162.7§³ (49.3Æò) |
|
|
|
|
|
 |
ÀÓÂ÷³»¿ª |
[¹è´ç¿ä±¸Á¾±âÀÏ : 2025/01/08] |
|
|
| ÀÓÂ÷ÀÎ |
Á¡À¯°ü°è |
ÀüÀÔÀÏÀÚ |
È®Á¤ÀÏÀÚ |
¹è´ç¿ä±¸ÀÏ |
º¸Áõ±Ý/Â÷ÀÓ |
´ëÇ׿ä°Ç |
ºñ°í |
| ÁöOO |
¹Ì»ó |
2024.10.22 |
¹Ì»ó |
|
¹Ì»ó [¿ù]¹Ì»ó |
X |
¹Ì»ó |
| ÁÖOOOOOOOOOOOOOOO |
ÀüÀ¯ºÎºÐÀüºÎ |
2021.10.18. |
2021.11.04. |
|
245,000,000
|
O |
2021.11.26.~ |
| ¸Å°¢¹°°Ç¸í¼¼ ºñ°í |
ÁÖÅõµ½Ãº¸Áõ°ø»ç(ÀÓÂ÷ÀÎ ¼Õ¸íÈñ):
¨ç°æ¸Å½Åûä±ÇÀڷμ `ÁÖÅÃÀÓ´ëÂ÷º¸È£¹ý` Á¦3Á¶ÀÇ 2 Á¦7Ç× Á¦9È£ÀÇ ¾ç¼öÀÎÀÓ
¨èÀÓÂ÷ÀÎ`¼Õ¸íÈñ`´Â ÁÖÅÃÀÓÂ÷±ÇÀڷμ ÁÖÅÃÀÓÂ÷±Çµî±âÀÏÀº 2024.01.11.ÀÓ |
|
|
|
 |
¹ý¿ø ¹°°ÇÀÚ·á ¿ä¾à |
|
|
|
|
| ¼Ò¸êµÇÁö ¾Ê´Â µî±âºÎ±Ç¸® |
|
| ¼³Á¤µÈ °ÍÀ¸·Î º¸´Â Áö»ó±Ç |
|
| ¹ý¿øÀÚ·á Æ¯ÀÌ»çÇ× |
[ÁÖ¿ä ¹®°Ç Á¢¼ö ³»¿ª]
|
[¸Å°¢¹°°Ç¸í¼¼¼ ºñ°í¶õ]
ÁÖÅõµ½Ãº¸Áõ°ø»ç(¾çµµÀü:ÀÓÂ÷ÀÎ ¼Õ¸íÈñ)·ÎºÎÅÍ ¡®ÀÓÂ÷º¸Áõ±Ý¿¡ ´ëÇÏ¿© ¿ì¼±º¯Á¦±Ç¸¸ ÁÖÀåÇÏ°í ´ëÇ×·ÂÀº Æ÷±âÇϸç, º¸Áõ±ÝÀü¾×À»
º¯Á¦¹ÞÁö ¸øÇÏ´õ¶óµµ ÀÓÂ÷±Çµî±â ¸»¼Ò¿¡ µ¿ÀÇÇÑ´Ù.¡¯´Â ³»¿ëÀÇ È®¾à¼°¡ 2026.01.14. Á¦ÃâµÊ |
[ºÎµ¿»ê ÇöȲÁ¶»ç¼ ºñ°í¶õ]
½ºÅ©¸°µµ¾î°¡ ¼³Ä¡µÈ ´Ù¼¼´ëÁÖÅÃÀ¸·Î °æºñ½Çµµ ¾ø°í µå³ªµå´Â Áֹεµ ¾ø¾î ¿ìÆíÇÔ¿¡ ¾È³»¹® ÅõÀÔÇÔ. |
|
| ¿©ÀÇÁÖ°æ¸Å Á¶¾ð ÇѸ¶µð |
ÀÌ ºÎµ¿»êÀÇ ÀÔÂû¹ý¿øÀº ¼ö¿øÁö¹æ¹ý¿ø ¾È»êÁö¿øÀÔ´Ï´Ù.
ÀÔÂûÀÏÀº 2026-03-05ÀÔ´Ï´Ù.
ÀÔÂû½Ã°£Àº 10:00~11:00ÀÔ´Ï´Ù. ÀÌ ¹ý¿ø¿¡´Â ½ÅÇÑÀºÇàÀÌ ÀÔÁ¡Çϰí ÀÖ½À´Ï´Ù.
|
¼±¼øÀ§ ÀÓÂ÷±Çµî±â°¡ µÇ¾î ÀÖ½À´Ï´Ù ´ëÇ×·ÂÀÌ ÀÖ´Â ¼±¼øÀ§ ÀÓÂ÷±Çµî±â ±Ç¸®ÀÚ°¡ ¹è´çÀ» Àü¾× ¹ÞÁö ¸øÇÒ °æ¿ì ³«ÂûÀÚ°¡ ÀÜ¿© º¸Áõ±ÝÀ» ÀμöÇØ¾ßÇÏ´Â °æ¿ìµµ ÀÖ½À´Ï´Ù. |
|
|
| Åë°è±â°£ |
³«Âû¹°°Ç¼ö |
Æò±Õ°¨Á¤°¡ |
Æò±Õ³«Âû°¡ |
³«Âû°¡À² |
À¯ÂûȽ¼ö |
|
|
|
|
|
|
|
 |
ÀαÙÁö¿ª ÃÖ±Ù ³«Âû»ç·Ê
|
|
|
 |
|
|
[¾È³»] Ȥ½Ã ÀÌ¿ëÀÌ ºÒÆíÇϽðųª »èÁ¦ÇÒ ³»¿ëÀÌ ÀÖ´Ù¸é ÃÖ´ëÇÑ ³ë·ÂÇØ¼ °³¼±ÇØ ³ª°¡µµ·Ï ÇϰڽÀ´Ï´Ù.
 |
|
ÀÌ »çÀÌÆ®¿¡¼ Á¦°øµÇ´Â ºÎµ¿»ê°æ¸Å ÀÚ·á´Â ¹ý¿ø °æ¸Å°è¿¡¼ ó¸®Çϰí ÀÖ´Â ½ÇÁ¦ ¹°°ÇÀÇ Á¤º¸¿Í ÀÏÄ¡ÇÏÁö ¾ÊÀ» ¼öµµ ÀÖ½À´Ï´Ù.
´ç»ç´Â º» ÀÚ·á¿¡ °üÇÏ¿© Á¤½Ä ÄÁ¼³ÆÃ ÀÇ·Ú°¡ ¾Æ´Ñ ÀÌ»ó ¾î¶°ÇÑ º¸Áõµµ ÇÏÁö ¾ÊÀ¸¸ç ¹ýÀû Ã¥ÀÓÀ» ÁöÁö ¾Ê½À´Ï´Ù.
ÀÔÂûÇϱâ Àü¿¡ ²Ä²ÄÈ÷ ¹ý¿ø¿¡ ºñÄ¡µÈ ¸Å°¢¹°°Ç¸í¼¼¼ ¹× ±âŸ °øºÎ¸¦ ÀçÈ®ÀÎÇϽðí ÀÔÂû¿¡ Âü°¡ÇÏ½Ã±æ ¹Ù¶ø´Ï´Ù. |
|
|
|
|
|