|
|
|
| ¹°°ÇÁ¤º¸ Çٽɺ¸±â |
Ȩ > °æ¸ÅÁ¾ÇÕ°Ë»ö > ¹°°ÇÁ¤º¸ Çٽɺ¸±â |
|
|
| 2025Ÿ°æ1590 °æ¸Å»ç°ÇÀÇ ±Ù¸°»ó°¡ ¹°°Ç¿¡ °üÇÑ »ó¼¼ Á¤º¸ÀÔ´Ï´Ù. |
|
| ¼ÒÀçÁö |
ÃæÃ»ºÏµµ ûÁֽà »ó´ç±¸ ¿ë¾Ïµ¿ 3085 ºÎ¼ºÅ¸¿ö 5Ãþ503È£
|
|
| »ç°Ç¹øÈ£ |
2025 Ÿ°æ 1590 |
¹°°Ç¹øÈ£ |
|
¹°°Ç¿ëµµ |
±Ù¸°»ó°¡ |
| °¨Á¤Æò°¡¾× |
1,984,000,000¿ø |
°æ¸Å´ë»ó |
ÅäÁö ¹× °Ç¹°Àϰý ¸Å°¢ |
ÁøÇà»óÅ |
À¯Âû |
| ÃÖÀúÀÔÂû°¡ |
(24%) 476,358,000¿ø
|
°Ç¹°¸éÀû |
363.66§³(110.01Æò) |
ÀÔÂû±âÀÏ |
2026.03.18(¼ö) 10:00
(ÀÔÂû 21ÀÏÀü)
|
| ÀÔÂûº¸Áõ±Ý |
(10%) 47,635,800¿ø |
ÅäÁö¸éÀû |
76.24§³(23.06Æò)
|
À¯ÂûȽ¼ö |
4ȸ |
| ÀÔÂû¹ý¿ø |
ûÁÖÁö¹æ¹ý¿ø |
°æ¸Å¹æ¹ý |
ºÎµ¿»êÀÓÀǰæ¸Å |
¹°°ÇÁ¶È¸¼ö |
¿À´Ã: 2ȸ [´©Àû: 1216ȸ]
|
| ¸»¼Ò±âÁØ | ÃÖ¼±¼øÀ§ ¼³Á¤ : 2022.5.24.±ÙÀú´ç±Ç ¼³Á¤
|
|
|
|
|
|
|
|
|
|
|
°æ¸Å´ë»ó ¸ñ·Ï
|
|
| ±¸ºÐ |
¸ñ·Ï |
ÁÖ¼Ò |
±¸Á¶/¿ëµµ/´ëÁö±Ç |
ºñ°í |
´ëÁö±Ç
|
3 |
¿ë¾Ïµ¿ 3085 |
1281ºÐÀÇ 22.4963 |
22.4963§³ (6.81Æò)
|
| 4 |
¿ë¾Ïµ¿ 3085 |
1281ºÐÀÇ 15.6222 |
15.6222§³ (4.73Æò)
|
| 5 |
¿ë¾Ïµ¿ 3085 |
1281ºÐÀÇ 15.6222 |
15.6222§³ (4.73Æò)
|
| 6 |
¿ë¾Ïµ¿ 3085 |
1281ºÐÀÇ 22.4963 |
22.4963§³ (6.81Æò)
|
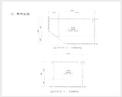
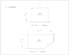
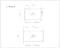
°Ç¹°
|
3 |
¿ë¾Ïµ¿ 3085 |
5Ãþ503È£ ö±ÙÄÜÅ©¸®Æ®±¸Á¶ |
107.31§³ (32.46Æò)
|
| 4 |
¿ë¾Ïµ¿ 3085 |
5Ãþ504È£ ö±ÙÄÜÅ©¸®Æ®±¸Á¶ |
74.52§³ (22.54Æò)
|
| 5 |
¿ë¾Ïµ¿ 3085 |
5Ãþ505È£ ö±ÙÄÜÅ©¸®Æ®±¸Á¶ |
74.52§³ (22.54Æò)
|
| 6 |
¿ë¾Ïµ¿ 3085 |
5Ãþ506È£ ö±ÙÄÜÅ©¸®Æ®±¸Á¶ |
107.31§³ (32.46Æò)
|
|
|
|
2025-09-24
À¯Âû
|
(100%)
1,984,000,000¿ø
|
|
|
|
2025-10-29
À¯Âû
|
(70%)
1,388,800,000¿ø
|
|
|
|
2025-12-03
º¯°æ
|
(49%)
972,160,000¿ø
|
|
|
|
2026-01-07
À¯Âû
|
(49%)
972,160,000¿ø
|
|
|
|
2026-02-11
À¯Âû
|
(34%)
680,512,000¿ø
|
|
|
|
2026-03-18
ÁøÇà
|
(24%)
476,358,000¿ø
|
|
|
|
|
|
|
|
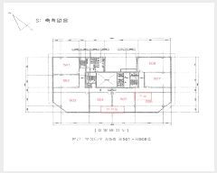
°ÇÃ๰ÇöȲ |
|
|
|
| ¼ÒÀçÁö |
ÃæÃ»ºÏµµ ûÁֽà »ó´ç±¸ ¿ë¾Ïµ¿ 3085¹øÁö |
| ´ëÁö¸éÀû |
1281§³(388.18Æò) |
¿¬¸éÀû |
10465.9§³(3171.48Æò) |
ÁÖ¿ëµµ |
Á¦2Á¾±Ù¸°»ýȰ½Ã¼³ |
| °ÇÃà¸éÀû |
1016.83§³(308.13Æò) |
¿ëÀû·ü»êÁ¤¿¬¸éÀû |
8368.07§³(2535.78Æò) |
Âø°øÀÏÀÚ |
2020.07.06 |
| °ÇÆóÀ² |
79.38% |
¿ëÀû·ü |
653.25% |
»ç¿ë½ÂÀÎÀÏÀÚ |
2021.11.24 |
| Áö»óÃþ¼ö |
10Ãþ |
ÁöÇÏÃþ¼ö |
2Ãþ |
±¸Á¶ |
ö±ÙÄÜÅ©¸®Æ®±¸Á¶ |
°ÇÃ๰Ãþº°ÇöȲ [º¸±â]| Ãþº° | ±¸Á¶ | ¿ëµµ | ¸éÀû | | 1Ãþ | ö±ÙÄÜÅ©¸®Æ®±¸Á¶ | Á¦2Á¾±Ù¸°»ýȰ½Ã¼³(û¼Ò³â°ÔÀÓÁ¦°ø¾÷¼Ò) | 70.05§³ (21.23Æò) | | 1Ãþ | ö±ÙÄÜÅ©¸®Æ®±¸Á¶ | Á¦2Á¾±Ù¸°»ýȰ½Ã¼³(ÈÞ°ÔÀ½½ÄÁ¡) | 737.81§³ (223.58Æò) | | 1Ãþ | ö±ÙÄÜÅ©¸®Æ®±¸Á¶ | ÁÖÂ÷·¥ÇÁ | 123.19§³ (37.33Æò) | | 2Ãþ | ö±ÙÄÜÅ©¸®Æ®±¸Á¶ | Á¦2Á¾±Ù¸°»ýȰ½Ã¼³(ÈÞ°ÔÀ½½ÄÁ¡) | 905.02§³ (274.25Æò) | | 3Ãþ | ö±ÙÄÜÅ©¸®Æ®±¸Á¶ | Á¦2Á¾±Ù¸°»ýȰ½Ã¼³(ÈÞ°ÔÀ½½ÄÁ¡) | 905.02§³ (274.25Æò) | | 4Ãþ | ö±ÙÄÜÅ©¸®Æ®±¸Á¶ | Á¦2Á¾±Ù¸°»ýȰ½Ã¼³(ÈÞ°ÔÀ½½ÄÁ¡) | 905.02§³ (274.25Æò) | | 5Ãþ | ö±ÙÄÜÅ©¸®Æ®±¸Á¶ | À§¶ô½Ã¼³(À¯ÈïÁÖÁ¡) | 905.02§³ (274.25Æò) | | 6Ãþ | ö±ÙÄÜÅ©¸®Æ®±¸Á¶ | À§¶ô½Ã¼³(À¯ÈïÁÖÁ¡), Á¦2Á¾±Ù¸°»ýȰ½Ã | 905.02§³ (274.25Æò) | | 7Ãþ | ö±ÙÄÜÅ©¸®Æ®±¸Á¶ | À§¶ô½Ã¼³(À¯ÈïÁÖÁ¡) | 797.71§³ (241.73Æò) | | 7Ãþ | ö±ÙÄÜÅ©¸®Æ®±¸Á¶ | Á¦2Á¾±Ù¸°»ýȰ½Ã¼³(»ç¹«¼Ò) | 107.31§³ (32.52Æò) | | 8Ãþ | ö±ÙÄÜÅ©¸®Æ®±¸Á¶ | ¼÷¹Ú½Ã¼³(ÀϹݼ÷¹Ú½Ã¼³) | 708.55§³ (214.71Æò) | | 9Ãþ | ö±ÙÄÜÅ©¸®Æ®±¸Á¶ | ¼÷¹Ú½Ã¼³(ÀϹݼ÷¹Ú½Ã¼³) | 707.57§³ (214.42Æò) | | 10Ãþ | ö±ÙÄÜÅ©¸®Æ®±¸Á¶ | ¼÷¹Ú½Ã¼³(ÀϹݼ÷¹Ú½Ã¼³) | 713.97§³ (216.35Æò) | | Áö1 | ö±ÙÄÜÅ©¸®Æ®±¸Á¶ | ÁöÇÏÁÖÂ÷Àå | 965.68§³ (292.63Æò) | | Áö2 | ö±ÙÄÜÅ©¸®Æ®±¸Á¶ | ÁöÇÏÁÖÂ÷Àå | 1008.96§³ (305.75Æò) |
|
|
|
|
|
 |
ÀÓÂ÷³»¿ª |
[¹è´ç¿ä±¸Á¾±âÀÏ : ] |
|
|
| ÀÓÂ÷ÀÎ |
Á¡À¯°ü°è |
ÀüÀÔÀÏÀÚ |
È®Á¤ÀÏÀÚ |
¹è´ç¿ä±¸ÀÏ |
º¸Áõ±Ý/Â÷ÀÓ |
´ëÇ׿ä°Ç |
ºñ°í |
| ±èOOOOOO |
3¹ø ~6¹ø¸ñ·ÏÀüü |
2022.04.25.(±èÇö½Ä µî·ÏÀÏÀÚ) |
|
|
8,000¸¸¿ø [¿ù]700¸¸¿ø |
O |
|
|
|
|
 |
¹ý¿ø ¹°°ÇÀÚ·á ¿ä¾à |
|
|
|
|
| ¼Ò¸êµÇÁö ¾Ê´Â µî±âºÎ±Ç¸® |
|
| ¼³Á¤µÈ °ÍÀ¸·Î º¸´Â Áö»ó±Ç |
|
| ¹ý¿øÀÚ·á Æ¯ÀÌ»çÇ× |
[ÁÖ¿ä ¹®°Ç Á¢¼ö ³»¿ª]
|
[¸Å°¢¹°°Ç¸í¼¼¼ ºñ°í¶õ]
-Àϰý¸Å°¢.
-°æ°èº® ¾øÀÌ ÀÏü·Î ÀÌ¿ëÁßÀÓ. |
|
| ¿©ÀÇÁÖ°æ¸Å Á¶¾ð ÇѸ¶µð |
ÀÌ ºÎµ¿»êÀÇ ÀÔÂû¹ý¿øÀº ûÁÖÁö¹æ¹ý¿øÀÔ´Ï´Ù.
ÀÔÂûÀÏÀº 2026-03-18ÀÔ´Ï´Ù.
ÀÔÂû½Ã°£Àº 10:00~11:30ÀÔ´Ï´Ù. ÀÌ ¹ý¿ø¿¡´Â ½ÅÇÑÀºÇàÀÌ ÀÔÁ¡Çϰí ÀÖ½À´Ï´Ù.
|
µ¿½Ã¹è´ç µÉ ¼ö ÀÖ½À´Ï´Ù. º» °ÇÀº ¿©·¯ °³ÀÇ ºÎµ¿»ê¿¡ Àú´ç±ÇÀÌ ¼³Á¤µÇ¾î ÀÖ´Â ºÎµ¿»êÀ» ºÐÇÒÇÏ¿© °æ¸Å°¡ ÁøÇà µÇ´Â ¹°°ÇÀÔ´Ï´Ù. ÀÌ·± °æ¿ì ÇϳªÀÇ »ç°Ç¹øÈ£¿¡ ¿©·¯ °³ÀÇ ¹°°Ç¹øÈ£¸¦ ºÙ¿© °æ¸Å¸¦ ÇÏ°Ô µÇ´Â µ¥, ³«Âû½ÃÁ¡ÀÌ ºü¸£´õ¶óµµ ¹è´çÀº ÃÖÈÄ¿¡ ³«ÂûµÈ ´Ù¸¥ ¹°°Ç°ú µ¿½Ã¿¡ ÀÌ·ç¾î Áú °¡´É¼ºÀÌ ÀÖ½À´Ï´Ù. |
|
|
| Åë°è±â°£ |
³«Âû¹°°Ç¼ö |
Æò±Õ°¨Á¤°¡ |
Æò±Õ³«Âû°¡ |
³«Âû°¡À² |
À¯ÂûȽ¼ö |
| 3°³¿ù |
4°Ç |
1,455,684,185¿ø |
629,443,150¿ø |
42% |
3ȸ |
| 6°³¿ù |
8°Ç |
1,253,057,266¿ø |
597,459,075¿ø |
50% |
2.8ȸ |
| 12°³¿ù |
8°Ç |
1,253,057,266¿ø |
597,459,075¿ø |
50% |
2.8ȸ |
|
|
|
|
|
|
|
 |
ÀαÙÁö¿ª ÃÖ±Ù ³«Âû»ç·Ê
|
|
|
 |
|
|
[¾È³»] Ȥ½Ã ÀÌ¿ëÀÌ ºÒÆíÇϽðųª »èÁ¦ÇÒ ³»¿ëÀÌ ÀÖ´Ù¸é ÃÖ´ëÇÑ ³ë·ÂÇØ¼ °³¼±ÇØ ³ª°¡µµ·Ï ÇϰڽÀ´Ï´Ù.
 |
|
ÀÌ »çÀÌÆ®¿¡¼ Á¦°øµÇ´Â ºÎµ¿»ê°æ¸Å ÀÚ·á´Â ¹ý¿ø °æ¸Å°è¿¡¼ ó¸®Çϰí ÀÖ´Â ½ÇÁ¦ ¹°°ÇÀÇ Á¤º¸¿Í ÀÏÄ¡ÇÏÁö ¾ÊÀ» ¼öµµ ÀÖ½À´Ï´Ù.
´ç»ç´Â º» ÀÚ·á¿¡ °üÇÏ¿© Á¤½Ä ÄÁ¼³ÆÃ ÀÇ·Ú°¡ ¾Æ´Ñ ÀÌ»ó ¾î¶°ÇÑ º¸Áõµµ ÇÏÁö ¾ÊÀ¸¸ç ¹ýÀû Ã¥ÀÓÀ» ÁöÁö ¾Ê½À´Ï´Ù.
ÀÔÂûÇϱâ Àü¿¡ ²Ä²ÄÈ÷ ¹ý¿ø¿¡ ºñÄ¡µÈ ¸Å°¢¹°°Ç¸í¼¼¼ ¹× ±âŸ °øºÎ¸¦ ÀçÈ®ÀÎÇϽðí ÀÔÂû¿¡ Âü°¡ÇÏ½Ã±æ ¹Ù¶ø´Ï´Ù. |
|
|
|
|
|