|
|
|
| ¹°°ÇÁ¤º¸ Çٽɺ¸±â |
Ȩ > °æ¸ÅÁ¾ÇÕ°Ë»ö > ¹°°ÇÁ¤º¸ Çٽɺ¸±â |
|
|
| 2024Ÿ°æ553222 °æ¸Å»ç°ÇÀÇ ¿ÀÇǽºÅÚ ¹°°Ç¿¡ °üÇÑ »ó¼¼ Á¤º¸ÀÔ´Ï´Ù. |
|
| ¼ÒÀçÁö |
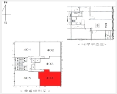
ÀÎõ±¤¿ª½Ã ³²µ¿±¸ °æÀηÎ653¹ø±æ 1, 4Ãþ404È£ (°£¼®µ¿,º£³×½Ã¾È)
±¸)ÀÎõ±¤¿ª½Ã ³²µ¿±¸ °£¼®µ¿ 216-1
|
|
| »ç°Ç¹øÈ£ |
2024 Ÿ°æ 553222 |
¹°°Ç¹øÈ£ |
1
|
¹°°Ç¿ëµµ |
¿ÀÇǽºÅÚ |
| °¨Á¤Æò°¡¾× |
171,000,000¿ø |
°æ¸Å´ë»ó |
ÅäÁö ¹× °Ç¹°Àϰý ¸Å°¢ |
ÁøÇà»óÅ |
À¯Âû |
| ÃÖÀúÀÔÂû°¡ |
(70%) 119,700,000¿ø
|
°Ç¹°¸éÀû |
58.69§³(17.75Æò) |
ÀÔÂû±âÀÏ |
2025.11.20(¸ñ) 10:00
(ÀÔÂû 3ÀÏÀü)
|
| ÀÔÂûº¸Áõ±Ý |
(10%) 11,970,000¿ø |
ÅäÁö¸éÀû |
9.68§³(2.93Æò)
|
À¯ÂûȽ¼ö |
1ȸ |
| ÀÔÂû¹ý¿ø |
ÀÎõÁö¹æ¹ý¿ø |
°æ¸Å¹æ¹ý |
ºÎµ¿»ê°Á¦°æ¸Å |
¹°°ÇÁ¶È¸¼ö |
¿À´Ã: ȸ [´©Àû: ȸ]
|
| ¸»¼Ò±âÁØ | ÃÖ¼±¼øÀ§ ¼³Á¤ : 2022.09.30. °¡¾Ð·ù ¼³Á¤
|
|
|
|
|
|
|
|
|
|
|
°æ¸Å´ë»ó ¸ñ·Ï
|
|
| ±¸ºÐ |
¸ñ·Ï |
ÁÖ¼Ò |
±¸Á¶/¿ëµµ/´ëÁö±Ç |
ºñ°í |
´ëÁö±Ç
|
1 |
°£¼®µ¿ 216-1 |
541.8ºÐÀÇ 9.6832 |
9.6832§³ (2.93Æò)
|
°Ç¹°
|
1 |
°£¼®µ¿ 216-1 |
4Ãþ404È£ ö±ÙÄÜÅ©¸®Æ®±¸Á¶ |
58.6931§³ (17.75Æò)
|
|
|
|
2025-10-13
À¯Âû
|
(100%)
171,000,000¿ø
|
|
|
|
2025-11-20
ÁøÇà
|
(70%)
119,700,000¿ø
|
|
|
|
|
|
°¨Á¤Æò°¡¼ ¿ä¾à |
|
[À§Ä¡/ÁÖÀ§È¯°æ]
º»°ÇÀº ÀÎõ±¤¿ª½Ã ³²µ¿±¸ °£¼®µ¿ ¼ÒÀç "°£¼®¿À°Å¸®¿ª" ºÏÃø Àαٿ¡ À§Ä¡Çϸç, ÁÖÀ§´Â ¿ÀÇǽºÅÚ ¹× ´Üµ¶ÁÖÅÃ, ´Ù¼¼´ëÁÖÅÃ, ¾ÆÆÄÆ®, ±Ù¸°»ýȰ½Ã¼³, ¾÷¹«½Ã¼³ µîÀÌ ¼ÒÀçÇÏ¿© Á¦¹Ý ÁÖÀ§È¯°æÀº º¸ÅëÀÓ.
[±³Åë»óȲ]
º»°Ç±îÁö Â÷·®Á¢±ÙÀÌ °¡´ÉÇϸç, Àαٿ¡ ¹ö½ºÁ¤·ùÀå ¹× ÁöÇÏö¿ª(ÀÎõ1È£¼± °£¼®¿À°Å¸®¿ª, 1È£¼± µ¿¾Ï¿ª)ÀÌ À§Ä¡ÇÏ¿© ´ëÁß±³Åë»óȲÀº º¸ÅëÀÓ.
[°Ç¹°±¸Á¶]
ö±ÙÄÜÅ©¸®Æ®±¸Á¶ (ö±Ù)ÄÜÅ©¸®Æ®ÁöºØ 15Ãþ °Ç¹° ³» Á¦4Ãþ Á¦404È£·Î¼
¿Üº® : ¸ôÅ» À§ ÆäÀÎÆ® ¸¶°¨ µî,
³»º® : º®Áö ¹× ÀϺΠŸÀÏ ¸¶°¨ µî,
âȣ : »õ½Ã âȣ µîÀÓ.
[ÀÌ¿ë»óÅÂ]
¿ÀÇǽºÅÚ·Î ÀÌ¿ëÁßÀÓ.
[¼³ºñ³»¿ª]
±Þ¡¤¹è¼ö¼³ºñ ¹× À§»ý¼³ºñ, °¡½º¼³ºñ, ½Â°±â¼³ºñ, ³¹æ¼³ºñ µîÀÌ µÇ¾îÀÖÀ½.
[ÅäÁöÇü»ó/ÀÌ¿ë»óÅÂ]
ÀÎÁ¢ÇÊÁö¿Í µî°íÆòźÇѰ¡ÀåÇü ÅäÁö·Î¼, µµ½ÃÇü»ýȰÁÖÅà °ÇºÎÁö·Î ÀÌ¿ëÁßÀÓ.
7)ÀÎÁ¢ µµ·Î»óŵî
º»°ÇÀº µ¿ÃøÀ¸·Î ³ëÆø ¾à 12m ³»¿Ü, ºÏÃøÀ¸·Î ³ëÆø ¾à 8m ³»¿Ü µµ·Î¿Í Á¢ÇÔ.
[ÅäÁöÀÌ¿ë°èȹ]
ÀϹݻó¾÷Áö¿ª, ¹æÈÁö±¸, ½Ã°¡Áö°æ°üÁö±¸(2023-12-18), °¡Ãà»çÀ°Á¦Çѱ¸¿ª(2013-03-08)((¹®ÀÇ:³²µ¿±¸È¯°æº¸Àü°ú 032-453-2343))£¼°¡ÃàºÐ´¢ÀÇ °ü¸® ¹× À̿뿡 °üÇÑ ¹ý·ü£¾, °ÇÃà¿ëµµÁö¿ª±âŸ(2019-01-18)(°ÇÃà¹ý Á¦46Á¶(°ÇÃ༱ÀÇ ÁöÁ¤)[°ÇÃà°ú ¹®ÀÇ:032-453-2770])£¼°ÇÃà¹ý£¾, »ó´ëº¸È£±¸¿ª(2020-08-11)(¹®ÀÇ: ÀÎõµ¿ºÎ±³À°Áö¿øÃ» Æò»ý±³À°°Ç°°ú 460-6087)£¼±³À°È¯°æ º¸È£¿¡ °üÇÑ ¹ý·ü£¾, »ó´ëº¸È£±¸¿ª(¹®ÀÇ: ÀÎõµ¿ºÎ±³À°Áö¿øÃ» Æò»ý±³À°°Ç°°ú 460-6086)£¼±³À°È¯°æ º¸È£¿¡ °üÇÑ ¹ý·ü£¾, °ú¹Ð¾ïÁ¦±Ç¿ª£¼¼öµµ±ÇÁ¤ºñ°èȹ¹ý£¾, öµµº¸È£Áö±¸(2014-07-14)(¹®ÀÇ:ã¼´ëÁß±³Åë°ú 440-3832)£¼Ã¶µµ¾ÈÀü¹ý£¾ÀÓ.
[°øºÎ¿ÍÀÇ Â÷ÀÌ]
¾øÀ½.
[Âü°í»çÇ×]
ÀÓ´ë°ü°è ¹Ì»óÀÓ. |
|
|
|
 |
ÀÓÂ÷³»¿ª |
[¹è´ç¿ä±¸Á¾±âÀÏ : 2024/11/14] |
|
|
| ÀÓÂ÷ÀÎ |
Á¡À¯°ü°è |
ÀüÀÔÀÏÀÚ |
È®Á¤ÀÏÀÚ |
¹è´ç¿ä±¸ÀÏ |
º¸Áõ±Ý/Â÷ÀÓ |
´ëÇ׿ä°Ç |
ºñ°í |
| ½ÅOO |
ÀüºÎ |
2021.03.10. |
2021.02.08. |
|
165,000,000
|
O |
|
| ÁÖOOOOOOOOOOOOOOOO |
ÀüºÎ |
2021.03.10. |
2021.02.08. |
2024.10.23. |
165,000,000
|
O |
|
| ¸Å°¢¹°°Ç¸í¼¼ ºñ°í |
|
|
|
|
 |
¹ý¿ø ¹°°ÇÀÚ·á ¿ä¾à |
|
|
|
|
| ¼Ò¸êµÇÁö ¾Ê´Â µî±âºÎ±Ç¸® |
À»±¸ ¼øÀ§ 5¹ø ÁÖÅÃÀÓÂ÷±Çµî±â(´Ù¸¸, ÁÖÅõµ½Ãº¸Áõ°ø»çÀÇ ¸»¼Òµ¿ÀÇ È®¾à¼°¡ Á¦Ãâ µÊ) |
| ¼³Á¤µÈ °ÍÀ¸·Î º¸´Â Áö»ó±Ç |
|
| ¹ý¿øÀÚ·á Æ¯ÀÌ»çÇ× |
[ÁÖ¿ä ¹®°Ç Á¢¼ö ³»¿ª]
|
[¸Å°¢¹°°Ç¸í¼¼¼ ºñ°í¶õ]
-¼¼´ëÃâÀÔ¹®¿¡ '´ÜÀü´Ü¼ö Å뺸 ¹× °ü¸®ºñ µ¶Ã˼'°¡ ºÎÂøµÇ¾î ÀÖÀ½ |
[ºÎµ¿»ê ÇöȲÁ¶»ç¼ ºñ°í¶õ]
- ¼¼´ëÃâÀÔ¹®¿¡ °ü¸®»ç¹«¼Ò¿¡¼ ºÎÂø |
|
| ¿©ÀÇÁÖ°æ¸Å Á¶¾ð ÇѸ¶µð |
ÀÌ ºÎµ¿»êÀÇ ÀÔÂû¹ý¿øÀº ÀÎõÁö¹æ¹ý¿øÀÔ´Ï´Ù.
ÀÔÂûÀÏÀº 2025-11-20ÀÔ´Ï´Ù.
ÀÔÂû½Ã°£Àº 10:20~11:20ÀÔ´Ï´Ù. ÀÌ ¹ý¿ø¿¡´Â KB±¹¹ÎÀºÇàÀÌ ÀÔÁ¡Çϰí ÀÖ½À´Ï´Ù.
|
¼±¼øÀ§ ÀÓÂ÷±Çµî±â°¡ µÇ¾î ÀÖ½À´Ï´Ù ´ëÇ×·ÂÀÌ ÀÖ´Â ¼±¼øÀ§ ÀÓÂ÷±Çµî±â ±Ç¸®ÀÚ°¡ ¹è´çÀ» Àü¾× ¹ÞÁö ¸øÇÒ °æ¿ì ³«ÂûÀÚ°¡ ÀÜ¿© º¸Áõ±ÝÀ» ÀμöÇØ¾ßÇÏ´Â °æ¿ìµµ ÀÖ½À´Ï´Ù. |
|
|
| Åë°è±â°£ |
³«Âû¹°°Ç¼ö |
Æò±Õ°¨Á¤°¡ |
Æò±Õ³«Âû°¡ |
³«Âû°¡À² |
À¯ÂûȽ¼ö |
| 3°³¿ù |
93°Ç |
200,806,452¿ø |
146,612,914¿ø |
73% |
1.4ȸ |
| 6°³¿ù |
156°Ç |
196,314,103¿ø |
142,307,249¿ø |
72% |
1.5ȸ |
| 12°³¿ù |
270°Ç |
208,403,704¿ø |
151,522,192¿ø |
73% |
1.6ȸ |
|
|
|
|
|
|
|
 |
ÀαÙÁö¿ª ÃÖ±Ù ³«Âû»ç·Ê
|
|
|
 |
|
|
[¾È³»] Ȥ½Ã ÀÌ¿ëÀÌ ºÒÆíÇϽðųª »èÁ¦ÇÒ ³»¿ëÀÌ ÀÖ´Ù¸é ÃÖ´ëÇÑ ³ë·ÂÇØ¼ °³¼±ÇØ ³ª°¡µµ·Ï ÇϰڽÀ´Ï´Ù.
 |
|
ÀÌ »çÀÌÆ®¿¡¼ Á¦°øµÇ´Â ºÎµ¿»ê°æ¸Å ÀÚ·á´Â ¹ý¿ø °æ¸Å°è¿¡¼ ó¸®Çϰí ÀÖ´Â ½ÇÁ¦ ¹°°ÇÀÇ Á¤º¸¿Í ÀÏÄ¡ÇÏÁö ¾ÊÀ» ¼öµµ ÀÖ½À´Ï´Ù.
´ç»ç´Â º» ÀÚ·á¿¡ °üÇÏ¿© Á¤½Ä ÄÁ¼³ÆÃ ÀÇ·Ú°¡ ¾Æ´Ñ ÀÌ»ó ¾î¶°ÇÑ º¸Áõµµ ÇÏÁö ¾ÊÀ¸¸ç ¹ýÀû Ã¥ÀÓÀ» ÁöÁö ¾Ê½À´Ï´Ù.
ÀÔÂûÇϱâ Àü¿¡ ²Ä²ÄÈ÷ ¹ý¿ø¿¡ ºñÄ¡µÈ ¸Å°¢¹°°Ç¸í¼¼¼ ¹× ±âŸ °øºÎ¸¦ ÀçÈ®ÀÎÇϽðí ÀÔÂû¿¡ Âü°¡ÇÏ½Ã±æ ¹Ù¶ø´Ï´Ù. |
|
|
|
|
|