|
|
|
| ¹°°ÇÁ¤º¸ Çٽɺ¸±â |
Ȩ > °æ¸ÅÁ¾ÇÕ°Ë»ö > ¹°°ÇÁ¤º¸ Çٽɺ¸±â |
|
|
| 2024Ÿ°æ55343 °æ¸Å»ç°ÇÀÇ ¾ÆÆÄÆ® ¹°°Ç¿¡ °üÇÑ »ó¼¼ Á¤º¸ÀÔ´Ï´Ù. |
|
| ¼ÒÀçÁö |
°¿øÆ¯º°ÀÚÄ¡µµ °¸ª½Ã Å伺·Î 51, 3Ãþ310È£ (È«Á¦µ¿,¿ì»ê¾ÆÆÄÆ®)
±¸)°¿øÆ¯º°ÀÚÄ¡µµ °¸ª½Ã È«Á¦µ¿ 122
|
|
| »ç°Ç¹øÈ£ |
2024 Ÿ°æ 55343 |
¹°°Ç¹øÈ£ |
1
|
¹°°Ç¿ëµµ |
¾ÆÆÄÆ® |
| °¨Á¤Æò°¡¾× |
120,000,000¿ø |
°æ¸Å´ë»ó |
ÅäÁö ¹× °Ç¹°Àϰý ¸Å°¢ |
ÁøÇà»óÅ |
À¯Âû |
| ÃÖÀúÀÔÂû°¡ |
(70%) 84,000,000¿ø
|
°Ç¹°¸éÀû |
59.92§³(18.12Æò) |
ÀÔÂû±âÀÏ |
2025.11.24(¿ù) 10:00
(ÀÔÂû 7ÀÏÀü)
|
| ÀÔÂûº¸Áõ±Ý |
(10%) 8,400,000¿ø |
ÅäÁö¸éÀû |
29.50§³(8.92Æò)
|
À¯ÂûȽ¼ö |
1ȸ |
| ÀÔÂû¹ý¿ø |
ÃáõÁö¹æ¹ý¿ø °¸ªÁö¿ø |
°æ¸Å¹æ¹ý |
ºÎµ¿»êÀÓÀǰæ¸Å |
¹°°ÇÁ¶È¸¼ö |
¿À´Ã: ȸ [´©Àû: ȸ]
|
| ¸»¼Ò±âÁØ | ÃÖ¼±¼øÀ§ ¼³Á¤ : 2018.05.25. ±ÙÀú´ç±Ç ¼³Á¤
|
|
|
|
|
|
|
|
|
|
|
°æ¸Å´ë»ó ¸ñ·Ï
|
|
| ±¸ºÐ |
¸ñ·Ï |
ÁÖ¼Ò |
±¸Á¶/¿ëµµ/´ëÁö±Ç |
ºñ°í |
´ëÁö±Ç
|
1 |
È«Á¦µ¿ 122 |
4717ºÐÀÇ 29.5 |
29.5§³ (8.92Æò)
|
°Ç¹°
|
1 |
È«Á¦µ¿ 122 |
3Ãþ310È£ ö±ÙÄÜÅ©¸®Æ®Á¶ |
59.915§³ (18.12Æò)
|
|
|
|
2025-10-20
À¯Âû
|
(100%)
120,000,000¿ø
|
|
|
|
2025-11-24
ÁøÇà
|
(70%)
84,000,000¿ø
|
|
|
|
|
|
°¨Á¤Æò°¡¼ ¿ä¾à |
|
[À§Ä¡/ÁÖÀ§È¯°æ]
º»°ÇÀº °¿øÆ¯º°ÀÚÄ¡µµ °¸ª½Ã È«Á¦µ¿ ¼ÒÀç "Å͹̳οÀ°Å¸®" ³²µ¿Ãø Àαٿ¡ À§Ä¡Çϸç, ÁÖÀ§´Â
¾ÆÆÄÆ® ´ÜÁö ¹× ±Ù¸°»ýȰ½Ã¼³, ÈĸéÀ¸·Î ´Üµ¶ÁÖÅÃ, ´Ù°¡±¸ÁÖÅà µîÀÌ ¼ÒÀçÇÏ´Â ÁÖÅÃÁö´ëÀÓ.
[±³Åë»óȲ]
º»°Ç±îÁö Â÷·®ÁøÀÔÀÌ °¡´ÉÇϸç, Àαٿ¡ ¹ö½ºÁ¤·ùÀåÀÌ ¼ÒÀçÇÏ´Â µî ´ëÁß±³ÅëÀÇ ÆíÀǼºÀº ´ëü
·Î º¸Åë½Ã µÊ.
[°Ç¹°±¸Á¶]
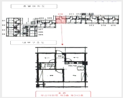
ö±ÙÄÜÅ©¸®Æ®Á¶ ½½·¡ºêÁöºØ 14Ãþ°Ç³», Á¦3Ãþ Á¦310È£·Î¼
¿Üº®: ¸ôÅ»À§ ÆäÀÎÆÃ ¸¶°¨.
³»º®: º®Áöµµ¹è ¹× ŸÀϺÙÀÓ ¸¶°¨ µî.
âȣ: ¼¦½ÃâȣÀÓ.
[ÀÌ¿ë»óÅÂ]
¾ÆÆÄÆ®·Î ÀÌ¿ëÁßÀÓ.
[¼³ºñ³»¿ª]
±âº»ÀûÀÎ À§»ý¼³ºñ ¹× ³¹æ¼³ºñ, ½Â°±â¼³ºñ µî µÇ¾îÀÖÀ½.
[ÅäÁöÇü»ó/ÀÌ¿ë»óÅÂ]
ºÎÁ¤ÇüÀÇ ÅäÁö·Î¼ ¾ÆÆÄÆ® ºÎÁö·Î ÀÌ¿ëÁßÀÓ.
7)ÀÎÁ¢ µµ·Î»óŵî
´ÜÁö³» µµ·Î¸¦ ÀÌ¿ëÇÏ¿© º»°Ç ³²Ãø Áß·Î¿Í ¿¬°èµÊ.
[ÅäÁöÀÌ¿ë°èȹ]
Á¦2Á¾ÀϹÝÁÖ°ÅÁö¿ª, ¼Ò·Î3·ù(±¹Áöµµ·Î(53))(Á¢ÇÔ), ¼Ò·Î3·ù(±¹Áöµµ·Î)(Á¢ÇÔ), Áß·Î3·ù(2017
-08-23)(³ë¼±Ãà¼Ò)(Á¢ÇÔ), °¡Ãà»çÀ°Á¦Çѱ¸¿ª(¸ðµçÃàÁ¾ »çÀ°Á¦Çѱ¸¿ª)£¼°¡ÃàºÐ´¢ÀÇ °ü¸® ¹× ÀÌ
¿ë¿¡ °üÇÑ ¹ý·ü£¾, ºñÇà¾ÈÀüÁ¦6±¸¿ª(Àü¼ú)£¼±º»ç±âÁö ¹× ±º»ç½Ã¼³ º¸È£¹ý£¾.
[°øºÎ¿ÍÀÇ Â÷ÀÌ]
¾ø À½.
[Âü°í»çÇ×]
ÀÓ´ë°ü°è´Â ¹Ì»óÀÓ. |
|
|
°ÇÃ๰ÇöȲ |
|
|
|
| ¼ÒÀçÁö |
°¿øÆ¯º°ÀÚÄ¡µµ °¸ª½Ã È«Á¦µ¿ 122¹øÁö |
| ´ëÁö¸éÀû |
4717§³(1429.39Æò) |
¿¬¸éÀû |
622.45§³(188.62Æò) |
ÁÖ¿ëµµ |
°øµ¿ÁÖÅà |
| °ÇÃà¸éÀû |
156.5§³(47.42Æò) |
¿ëÀû·ü»êÁ¤¿¬¸éÀû |
468.95§³(142.11Æò) |
Âø°øÀÏÀÚ |
1994.09.09 |
| °ÇÆóÀ² |
|
¿ëÀû·ü |
|
»ç¿ë½ÂÀÎÀÏÀÚ |
1997.06.12 |
| Áö»óÃþ¼ö |
3Ãþ |
ÁöÇÏÃþ¼ö |
1Ãþ |
±¸Á¶ |
ö±ÙÄÜÅ©¸®Æ®±¸Á¶ |
°ÇÃ๰Ãþº°ÇöȲ [º¸±â]| Ãþº° | ±¸Á¶ | ¿ëµµ | ¸éÀû | | 1Ãþ | ö±ÙÄÜÅ©¸®Æ®Á¶ | ¾ÆÆÄÆ®(15¼¼´ë) | 1003.625§³ (304.13Æò) | | 1Ãþ | ö±ÙÄÜÅ©¸®Æ®Á¶ | ¾ÆÆÄÆ®(15¼¼´ë) | 1003.625§³ (304.13Æò) | | 1Ãþ | ö±ÙÄÜÅ©¸®Æ®Á¶ | »ýȰÆíÀͽü³ | 156.5§³ (47.42Æò) | | 1Ãþ | ½Ã¸àÆ®ºí·°Á¶/Ä®¶ó°ÆÇ | °¡½ºÁ¤¾Ð½Ç | 27§³ (8.18Æò) | | 1Ãþ | ½Ã¸àÆ®ºí·°Á¶/Ä®¶ó°ÆÇ | °¡½ºÁ¤¾Ð½Ç | 27§³ (8.18Æò) | | 1Ãþ | ö±ÙÄÜÅ©¸®Æ®Á¶ | »ýȰÆíÀͽü³ | 156.5§³ (47.42Æò) | | 2Ãþ | ö±ÙÄÜÅ©¸®Æ®Á¶ | ¾ÆÆÄÆ®(15¼¼´ë) | 998.225§³ (302.49Æò) | | 2Ãþ | ö±ÙÄÜÅ©¸®Æ®Á¶ | »ýȰÆíÀͽü³ | 155.95§³ (47.26Æò) | | 2Ãþ | ö±ÙÄÜÅ©¸®Æ®Á¶ | »ýȰÆíÀͽü³ | 155.95§³ (47.26Æò) | | 2Ãþ | ö±ÙÄÜÅ©¸®Æ®Á¶ | ¾ÆÆÄÆ®(15¼¼´ë) | 998.225§³ (302.49Æò) | | 3Ãþ | ö±ÙÄÜÅ©¸®Æ®Á¶/½½¶óºê | »ýȰÆíÀͽü³ | 156.5§³ (47.42Æò) | | 3Ãþ | ö±ÙÄÜÅ©¸®Æ®Á¶ | ¾ÆÆÄÆ®(15¼¼´ë) | 998.225§³ (302.49Æò) | | 3Ãþ | ö±ÙÄÜÅ©¸®Æ®Á¶ | ¾ÆÆÄÆ®(15¼¼´ë) | 998.225§³ (302.49Æò) | | 3Ãþ | ö±ÙÄÜÅ©¸®Æ®Á¶/½½¶óºê | »ýȰÆíÀͽü³ | 156.5§³ (47.42Æò) | | 4Ãþ | ö±ÙÄÜÅ©¸®Æ®Á¶ | ¾ÆÆÄÆ®(15¼¼´ë) | 998.225§³ (302.49Æò) | | 4Ãþ | ö±ÙÄÜÅ©¸®Æ®Á¶ | ¾ÆÆÄÆ®(15¼¼´ë) | 998.225§³ (302.49Æò) | | 5Ãþ | ö±ÙÄÜÅ©¸®Æ®Á¶ | ¾ÆÆÄÆ®(15¼¼´ë) | 998.225§³ (302.49Æò) | | 5Ãþ | ö±ÙÄÜÅ©¸®Æ®Á¶ | ¾ÆÆÄÆ®(15¼¼´ë) | 998.225§³ (302.49Æò) | | 6Ãþ | ö±ÙÄÜÅ©¸®Æ®Á¶ | ¾ÆÆÄÆ®(14¼¼´ë) | 927.14§³ (280.95Æò) | | 6Ãþ | ö±ÙÄÜÅ©¸®Æ®Á¶ | ¾ÆÆÄÆ®(14¼¼´ë) | 927.14§³ (280.95Æò) | | 7Ãþ | ö±ÙÄÜÅ©¸®Æ®Á¶ | ¾ÆÆÄÆ®(14¼¼´ë) | 927.14§³ (280.95Æò) | | 7Ãþ | ö±ÙÄÜÅ©¸®Æ®Á¶ | ¾ÆÆÄÆ®(14¼¼´ë) | 927.14§³ (280.95Æò) | | 8Ãþ | ö±ÙÄÜÅ©¸®Æ®Á¶ | ¾ÆÆÄÆ®(14¼¼´ë) | 927.14§³ (280.95Æò) | | 8Ãþ | ö±ÙÄÜÅ©¸®Æ®Á¶ | ¾ÆÆÄÆ®(14¼¼´ë) | 927.14§³ (280.95Æò) | | 9Ãþ | ö±ÙÄÜÅ©¸®Æ®Á¶ | ¾ÆÆÄÆ®(14¼¼´ë) | 927.14§³ (280.95Æò) | | 9Ãþ | ö±ÙÄÜÅ©¸®Æ®Á¶ | ¾ÆÆÄÆ®(14¼¼´ë) | 927.14§³ (280.95Æò) | | 1-2Ãþ | ö±ÙÄÜÅ©¸®Æ®Á¶/½½¶óºê | °æºñ½Ç,°ü¸®½Ç,³ëÀÎÁ¤ | 85.37§³ (25.87Æò) | | 1-2Ãþ | ö±ÙÄÜÅ©¸®Æ®Á¶/½½¶óºê | °æºñ½Ç,°ü¸®½Ç,³ëÀÎÁ¤ | 85.37§³ (25.87Æò) | | 10Ãþ | ö±ÙÄÜÅ©¸®Æ®Á¶ | ¾ÆÆÄÆ®(14¼¼´ë) | 927.14§³ (280.95Æò) | | 10Ãþ | ö±ÙÄÜÅ©¸®Æ®Á¶ | ¾ÆÆÄÆ®(14¼¼´ë) | 927.14§³ (280.95Æò) | | 11Ãþ | ö±ÙÄÜÅ©¸®Æ®Á¶ | ¾ÆÆÄÆ®(13¼¼´ë) | 854.855§³ (259.05Æò) | | 11Ãþ | ö±ÙÄÜÅ©¸®Æ®Á¶ | ¾ÆÆÄÆ®(13¼¼´ë) | 854.855§³ (259.05Æò) | | 12Ãþ | ö±ÙÄÜÅ©¸®Æ®Á¶ | ¾ÆÆÄÆ®(10¼¼´ë) | 609.855§³ (184.8Æò) | | 12Ãþ | ö±ÙÄÜÅ©¸®Æ®Á¶ | ¾ÆÆÄÆ®(10¼¼´ë) | 609.855§³ (184.8Æò) | | 13Ãþ | ö±ÙÄÜÅ©¸®Æ®Á¶ | ¾ÆÆÄÆ®(7¼¼´ë) | 402.69§³ (122.03Æò) | | 13Ãþ | ö±ÙÄÜÅ©¸®Æ®Á¶ | ¾ÆÆÄÆ®(7¼¼´ë) | 402.69§³ (122.03Æò) | | 14Ãþ | ö±ÙÄÜÅ©¸®Æ®Á¶ | ¾ÆÆÄÆ®(7¼¼´ë) | 402.69§³ (122.03Æò) | | 14Ãþ | ö±ÙÄÜÅ©¸®Æ®Á¶ | ¾ÆÆÄÆ®(7¼¼´ë) | 402.69§³ (122.03Æò) | | Áö1 | ö±ÙÄÜÅ©¸®Æ®Á¶ | ÁÖÂ÷Àå | 2404.412§³ (728.61Æò) | | Áö1 | ö±ÙÄÜÅ©¸®Æ®Á¶ | »ýȰÆíÀͽü³ | 153.5§³ (46.52Æò) | | Áö1 | ö±ÙÄÜÅ©¸®Æ®Á¶ | ÁÖÂ÷Àå | 2404.412§³ (728.61Æò) | | Áö1 | ö±ÙÄÜÅ©¸®Æ®Á¶ | »ýȰÆíÀͽü³ | 153.5§³ (46.52Æò) |
|
|
|
|
|
 |
ÀÓÂ÷³»¿ª |
[¹è´ç¿ä±¸Á¾±âÀÏ : 2025/03/18] |
|
|
| ÀÓÂ÷ÀÎ |
Á¡À¯°ü°è |
ÀüÀÔÀÏÀÚ |
È®Á¤ÀÏÀÚ |
¹è´ç¿ä±¸ÀÏ |
º¸Áõ±Ý/Â÷ÀÓ |
´ëÇ׿ä°Ç |
ºñ°í |
| ÇÔOO |
ÀüºÎ(¹æ3Ä) |
2023.07.26. |
2023.07.26. |
2024.12.19. |
10,000,000 [¿ù]500,000 |
X |
|
|
|
|
 |
¹ý¿ø ¹°°ÇÀÚ·á ¿ä¾à |
|
|
|
|
| ¼Ò¸êµÇÁö ¾Ê´Â µî±âºÎ±Ç¸® |
|
| ¼³Á¤µÈ °ÍÀ¸·Î º¸´Â Áö»ó±Ç |
|
| ¹ý¿øÀÚ·á Æ¯ÀÌ»çÇ× |
[ÁÖ¿ä ¹®°Ç Á¢¼ö ³»¿ª]
|
[¸Å°¢¹°°Ç¸í¼¼¼ ºñ°í¶õ]
-ÅäÁö º°µµµî±â ÀÖÀ½(À»±¸ 1¹ø¿¡ 1997.5.16. ÁÖ½Äȸ»ç ±¹¹ÎÀºÇàÀ¸·ÎºÎÅÍ ±ÙÀú´ç±Ç¼³Á¤µî±â ÀÖÀ½. ÅäÁöº°µµµî±â´Â È¿·ÂÀÌ ¾ø´Ù
´Â ½Åûä±ÇÀÚÀÇ ¼¸éÁ¦Ãâ ÀÖÀ¸³ª ±¸Ã¼ÀûÀÎ ³»¿ëÀº º°µµ È®ÀοäÇÔ) |
[ºÎµ¿»ê ÇöȲÁ¶»ç¼ ºñ°í¶õ]
¼Ò Àç:°¸ª½Ã È«Á¦µ¿ È«Á¦µ¿ ÇàÁ¤º¹Áö¼¾Å¸ ºÏÃø Àαٿ¡ À§Ä¡ÇÔ |
|
| ¿©ÀÇÁÖ°æ¸Å Á¶¾ð ÇѸ¶µð |
ÀÌ ºÎµ¿»êÀÇ ÀÔÂû¹ý¿øÀº ÃáõÁö¹æ¹ý¿ø °¸ªÁö¿øÀÔ´Ï´Ù.
ÀÔÂûÀÏÀº 2025-11-24ÀÔ´Ï´Ù.
ÀÔÂû½Ã°£Àº 11:00~11:20ÀÔ´Ï´Ù. ÀÌ ¹ý¿ø¿¡´Â NH³óÇùÀºÇàÀÌ ÀÔÁ¡Çϰí ÀÖ½À´Ï´Ù.
|
ÅäÁöº°µµµî±â°¡ ÀÖ´Â ¹°°ÇÀÔ´Ï´Ù ÁýÇհǹ°¿¡¼ ÅäÁöµî±âºÎ¿¡ ÀÖ´Â Àú´ç±Ç µî ºÎ´ãÀ» ÇØ¼ÒÇÏÁö ¸øÇØ ±×´ë·Î ³²¾Æ ÀÖ´Â °æ¿ì¿¡ ÁýÇհǹ°µî±âºÎ»ó¿¡ ±× »ç½ÇÀ» °ø½ÃÇÏ´Â °æ¿ìÀÔ´Ï´Ù. ³«ÂûÀÚ°¡ ÀμöÇÏ´Â °æ¿ìµµ ÀÖ°í ÅäÁöºÎºÐÀÇ ¸Å°¢´ë±Ý¿¡¼ ¹è´çÀ» ¹Þ°í ¸»¼Ò°¡ µÇ´Â °æ¿ìµµ ÀÖ½À´Ï´Ù. ¸Å°¢¹°°Ç¸í¼¼¼¿Í ÅäÁöµî±âºÎÀÇ È®ÀÎÀÌ ²À ÇÊ¿äÇÕ´Ï´Ù. |
|
|
| Åë°è±â°£ |
³«Âû¹°°Ç¼ö |
Æò±Õ°¨Á¤°¡ |
Æò±Õ³«Âû°¡ |
³«Âû°¡À² |
À¯ÂûȽ¼ö |
| 3°³¿ù |
5°Ç |
212,400,000¿ø |
158,818,980¿ø |
73% |
1.4ȸ |
| 6°³¿ù |
11°Ç |
245,727,273¿ø |
194,347,128¿ø |
76% |
1.2ȸ |
| 12°³¿ù |
23°Ç |
272,956,522¿ø |
216,584,313¿ø |
78% |
1.2ȸ |
|
|
|
|
|
|
|
 |
ÀαÙÁö¿ª ÃÖ±Ù ³«Âû»ç·Ê
|
|
|
 |
|
|
[¾È³»] Ȥ½Ã ÀÌ¿ëÀÌ ºÒÆíÇϽðųª »èÁ¦ÇÒ ³»¿ëÀÌ ÀÖ´Ù¸é ÃÖ´ëÇÑ ³ë·ÂÇØ¼ °³¼±ÇØ ³ª°¡µµ·Ï ÇϰڽÀ´Ï´Ù.
 |
|
ÀÌ »çÀÌÆ®¿¡¼ Á¦°øµÇ´Â ºÎµ¿»ê°æ¸Å ÀÚ·á´Â ¹ý¿ø °æ¸Å°è¿¡¼ ó¸®Çϰí ÀÖ´Â ½ÇÁ¦ ¹°°ÇÀÇ Á¤º¸¿Í ÀÏÄ¡ÇÏÁö ¾ÊÀ» ¼öµµ ÀÖ½À´Ï´Ù.
´ç»ç´Â º» ÀÚ·á¿¡ °üÇÏ¿© Á¤½Ä ÄÁ¼³ÆÃ ÀÇ·Ú°¡ ¾Æ´Ñ ÀÌ»ó ¾î¶°ÇÑ º¸Áõµµ ÇÏÁö ¾ÊÀ¸¸ç ¹ýÀû Ã¥ÀÓÀ» ÁöÁö ¾Ê½À´Ï´Ù.
ÀÔÂûÇϱâ Àü¿¡ ²Ä²ÄÈ÷ ¹ý¿ø¿¡ ºñÄ¡µÈ ¸Å°¢¹°°Ç¸í¼¼¼ ¹× ±âŸ °øºÎ¸¦ ÀçÈ®ÀÎÇϽðí ÀÔÂû¿¡ Âü°¡ÇÏ½Ã±æ ¹Ù¶ø´Ï´Ù. |
|
|
|
|
|