|
|
|
| ¹°°ÇÁ¤º¸ Çٽɺ¸±â |
Ȩ > °æ¸ÅÁ¾ÇÕ°Ë»ö > ¹°°ÇÁ¤º¸ Çٽɺ¸±â |
|
|
| 2024Ÿ°æ110716 °æ¸Å»ç°ÇÀÇ ¿ÀÇǽºÅÚ ¹°°Ç¿¡ °üÇÑ »ó¼¼ Á¤º¸ÀÔ´Ï´Ù. |
|
| ¼ÒÀçÁö |
ºÎ»ê±¤¿ª½Ã »çÇϱ¸ µ¿¸Å·Î5¹ø±æ 20, 7Ãþ702È£ (Çϴܵ¿,´õŬ·¡½Ä½ÃƼ)
±¸)ºÎ»ê±¤¿ª½Ã »çÇϱ¸ Çϴܵ¿ 898-1
|
|
| »ç°Ç¹øÈ£ |
2024 Ÿ°æ 110716 |
¹°°Ç¹øÈ£ |
1
|
¹°°Ç¿ëµµ |
¿ÀÇǽºÅÚ |
| °¨Á¤Æò°¡¾× |
192,000,000¿ø |
°æ¸Å´ë»ó |
ÅäÁö ¹× °Ç¹°Àϰý ¸Å°¢ |
ÁøÇà»óÅ |
À¯Âû |
| ÃÖÀúÀÔÂû°¡ |
(70%) 134,400,000¿ø
|
°Ç¹°¸éÀû |
79.80§³(24.14Æò) |
ÀÔÂû±âÀÏ |
2025.11.27(¸ñ) 10:00
(ÀÔÂû 9ÀÏÀü)
|
| ÀÔÂûº¸Áõ±Ý |
(10%) 13,440,000¿ø |
ÅäÁö¸éÀû |
18.58§³(5.62Æò)
|
À¯ÂûȽ¼ö |
1ȸ |
| ÀÔÂû¹ý¿ø |
ºÎ»ê¼ºÎÁö¿ø |
°æ¸Å¹æ¹ý |
ºÎµ¿»êÀÓÀǰæ¸Å |
¹°°ÇÁ¶È¸¼ö |
¿À´Ã: ȸ [´©Àû: ȸ]
|
| ¸»¼Ò±âÁØ | ÃÖ¼±¼øÀ§ ¼³Á¤ : 2016. 04. 12. ±ÙÀú´ç ¼³Á¤
|
|
|
|
|
|
|
|
|
|
|
°æ¸Å´ë»ó ¸ñ·Ï
|
|
| ±¸ºÐ |
¸ñ·Ï |
ÁÖ¼Ò |
±¸Á¶/¿ëµµ/´ëÁö±Ç |
ºñ°í |
´ëÁö±Ç
|
1 |
Çϴܵ¿ 898-1 |
396.1ºÐÀÇ 18.5797 |
18.5797§³ (5.62Æò)
|
°Ç¹°
|
1 |
Çϴܵ¿ 898-1 |
7Ãþ 702È£ ö±ÙÄÜÅ©¸®Æ®±¸Á¶ |
79.8§³ (24.14Æò)
|
|
|
|
2025-10-23
À¯Âû
|
(100%)
192,000,000¿ø
|
|
|
|
2025-11-27
ÁøÇà
|
(70%)
134,400,000¿ø
|
|
|
|
|
|
°¨Á¤Æò°¡¼ ¿ä¾à |
|
[À§Ä¡/ÁÖÀ§È¯°æ]
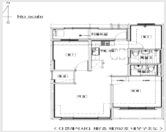
º»°ÇÀº ºÎ»ê±¤¿ª½Ã »çÇϱ¸ Çϴܵ¿ ¼ÒÀç "ÇÏ´ÜÃʵîÇб³" ³²¼Ãø Àαٿ¡ À§Ä¡ÇÏ´Â ´õŬ·¡½Ä½ÃƼ Á¦7Ãþ Á¦702È£·Î¼, ÁÖº¯Àº ¼Ò±Ô¸ð °øµ¿ÁÖÅà ¹× ´Üµ¶ÁÖÅà µîÀ¸·Î Çü¼ºµÇ¾î ÀÖ´Â ÁÖÅÃÁö´ë·Î¼, Á¦¹Ý ÁÖÀ§È¯°æ º¸ÅëÀÔ´Ï´Ù.
[±³Åë»óȲ]
º»°Ç±îÁö Â÷·®Á¢±Ù °¡´ÉÇϸç, Àαٿ¡ ½Ã³»¹ö½ºÁ¤·ùÀå ¹× ºÎ»êµµ½Ãöµµ1È£¼±(ÇÏ´Ü¿ª)ÀÌ ¼ÒÀçÇÏ´Â µî Á¦¹Ý ±³Åë»óȲÀº º¸ÅëÀÔ´Ï´Ù.
[°Ç¹°±¸Á¶]
ö±ÙÄÜÅ©¸®Æ®±¸Á¶ (ö±Ù)ÄÜÅ©¸®Æ®ÁöºØ Áö»ó13Ãþ °Ç¹°³» 7Ãþ 702È£·Î¼,
- ¿Ü º®: ¸ôÅ»À§ ÆäÀÎÆÃ¸¶°¨, Ä¡Àå¼®ºÙÀÓ µî,
- ³» º®: º®Áö¸¶°¨ µî,
- â È£: ¼¦½ÃâÀÔ´Ï´Ù.
[ÀÌ¿ë»óÅÂ]
ÁÖ°Å¿ë ¿ÀÇǽºÅÚ·Î ÀÌ¿ëÁßÀÔ´Ï´Ù.
[¼³ºñ³»¿ª]
À§»ý¼³ºñ, ±Þ¡¤¹è¼ö½Ã¼³ µîÀÌ µÇ¾î ÀÖ½À´Ï´Ù.
[ÅäÁöÇü»ó/ÀÌ¿ë»óÅÂ]
ÀÎÁ¢Áö´ëºñ ´ëü·Î µî°íÆòźÇÑ ¼¼ÀåÇüÀÇ ÅäÁö·Î¼, °øµ¿ÁÖÅà µîÀÇ ºÎÁö·Î ÀÌ¿ëÁßÀÔ´Ï´Ù.
7)ÀÎÁ¢ µµ·Î»óŵî
¼Ãø ¹× ºÏÃøÀ¸·Î ³ëÆø ¾à6mÀÇ Æ÷Àåµµ·Î¿Í °¢°¢ Á¢Çϰí ÀÖ½À´Ï´Ù.
[ÅäÁöÀÌ¿ë°èȹ]
ÁØÁÖ°ÅÁö¿ª, ¼Ò·Î3·ù(Æø 8m ¹Ì¸¸)(2024-07-03)(ÀϺα¸°£ ³ëÆø È®Àå(B=1m, L=20m))(Á¢ÇÕ), ¼Ò·Î3·ù(Æø 8m ¹Ì¸¸)(Á¢ÇÕ), ºñÇà¾ÈÀü±¸¿ª£¼±º»ç±âÁö ¹× ±º»ç½Ã¼³ º¸È£¹ý£¾, ¿ª»ç¹®Èȯ°æº¸Á¸Áö¿ª(2020-02-05)£¼¹®ÈÀ¯»êÀÇ º¸Á¸ ¹× Ȱ¿ë¿¡ °üÇÑ ¹ý·ü£¾ÀÔ´Ï´Ù.
[°øºÎ¿ÍÀÇ Â÷ÀÌ]
-
[Âü°í»çÇ×]
ÀÓ´ë°ü°è ¹Ì»óÀÌ¸ç ±âŸ»çÇ× ¾ø½À´Ï´Ù. |
|
|
°ÇÃ๰ÇöȲ |
|
|
|
| ¼ÒÀçÁö |
ºÎ»ê±¤¿ª½Ã »çÇϱ¸ Çϴܵ¿ 898-1¹øÁö |
| ´ëÁö¸éÀû |
396.1§³(120.03Æò) |
¿¬¸éÀû |
1977.73§³(599.31Æò) |
ÁÖ¿ëµµ |
¾÷¹«½Ã¼³ |
| °ÇÃà¸éÀû |
202.63§³(61.4Æò) |
¿ëÀû·ü»êÁ¤¿¬¸éÀû |
1977.73§³(599.31Æò) |
Âø°øÀÏÀÚ |
2014.11.20 |
| °ÇÆóÀ² |
51.16% |
¿ëÀû·ü |
499.3% |
»ç¿ë½ÂÀÎÀÏÀÚ |
2015.08.03 |
| Áö»óÃþ¼ö |
13Ãþ |
ÁöÇÏÃþ¼ö |
|
±¸Á¶ |
ö±ÙÄÜÅ©¸®Æ®±¸Á¶ |
°ÇÃ๰Ãþº°ÇöȲ [º¸±â]| Ãþº° | ±¸Á¶ | ¿ëµµ | ¸éÀû | | 1Ãþ | ö±ÙÄÜÅ©¸®Æ®±¸Á¶ | ¾÷¹«½Ã¼³(¿ÀÇǽºÅÚ(ÁÖÂ÷Àå, °ø¿ëÁÖÃâÀÔ | 28.94§³ (8.77Æò) | | 1Ãþ | ö±ÙÄÜÅ©¸®Æ®±¸Á¶ | ¾÷¹«½Ã¼³(¿ÀÇǽºÅÚ(ÁÖÂ÷Àå, °ø¿ëÁÖÃâÀÔ | 28.94§³ (8.77Æò) | | 2Ãþ | ö±ÙÄÜÅ©¸®Æ®±¸Á¶ | ¾÷¹«½Ã¼³(¿ÀÇǽºÅÚ(°ø¿ë°è´Ü, ¹°ÅÊÅ©½Ç | 60.71§³ (18.4Æò) | | 2Ãþ | ö±ÙÄÜÅ©¸®Æ®±¸Á¶ | ¾÷¹«½Ã¼³(¿ÀÇǽºÅÚ(°ø¿ë°è´Ü, ¹°ÅÊÅ©½Ç | 60.71§³ (18.4Æò) | | 3Ãþ | ö±ÙÄÜÅ©¸®Æ®±¸Á¶ | °øµ¿ÁÖÅÃ(´Ù¼¼´ëÁÖÅÃ) | 156.74§³ (47.5Æò) | | 3Ãþ | ö±ÙÄÜÅ©¸®Æ®±¸Á¶ | °øµ¿ÁÖÅÃ(´Ù¼¼´ëÁÖÅÃ) | 156.74§³ (47.5Æò) | | 4Ãþ | ö±ÙÄÜÅ©¸®Æ®±¸Á¶ | °øµ¿ÁÖÅÃ(´Ù¼¼´ëÁÖÅÃ) | 156.74§³ (47.5Æò) | | 4Ãþ | ö±ÙÄÜÅ©¸®Æ®±¸Á¶ | °øµ¿ÁÖÅÃ(´Ù¼¼´ëÁÖÅÃ) | 156.74§³ (47.5Æò) | | 5Ãþ | ö±ÙÄÜÅ©¸®Æ®±¸Á¶ | °øµ¿ÁÖÅÃ(´Ù¼¼´ëÁÖÅÃ) | 156.74§³ (47.5Æò) | | 5Ãþ | ö±ÙÄÜÅ©¸®Æ®±¸Á¶ | °øµ¿ÁÖÅÃ(´Ù¼¼´ëÁÖÅÃ) | 156.74§³ (47.5Æò) | | 6Ãþ | ö±ÙÄÜÅ©¸®Æ®±¸Á¶ | °øµ¿ÁÖÅÃ(´Ù¼¼´ëÁÖÅÃ) | 156.74§³ (47.5Æò) | | 6Ãþ | ö±ÙÄÜÅ©¸®Æ®±¸Á¶ | °øµ¿ÁÖÅÃ(´Ù¼¼´ëÁÖÅÃ) | 156.74§³ (47.5Æò) | | 7Ãþ | ö±ÙÄÜÅ©¸®Æ®±¸Á¶ | ¾÷¹«½Ã¼³(¿ÀÇǽºÅÚ) | 180.16§³ (54.59Æò) | | 7Ãþ | ö±ÙÄÜÅ©¸®Æ®±¸Á¶ | ¾÷¹«½Ã¼³(¿ÀÇǽºÅÚ) | 180.16§³ (54.59Æò) | | 8Ãþ | ö±ÙÄÜÅ©¸®Æ®±¸Á¶ | ¾÷¹«½Ã¼³(¿ÀÇǽºÅÚ) | 180.16§³ (54.59Æò) | | 8Ãþ | ö±ÙÄÜÅ©¸®Æ®±¸Á¶ | ¾÷¹«½Ã¼³(¿ÀÇǽºÅÚ) | 180.16§³ (54.59Æò) | | 9Ãþ | ö±ÙÄÜÅ©¸®Æ®±¸Á¶ | ¾÷¹«½Ã¼³(¿ÀÇǽºÅÚ) | 180.16§³ (54.59Æò) | | 9Ãþ | ö±ÙÄÜÅ©¸®Æ®±¸Á¶ | ¾÷¹«½Ã¼³(¿ÀÇǽºÅÚ) | 180.16§³ (54.59Æò) | | 10Ãþ | ö±ÙÄÜÅ©¸®Æ®±¸Á¶ | ¾÷¹«½Ã¼³(¿ÀÇǽºÅÚ) | 180.16§³ (54.59Æò) | | 10Ãþ | ö±ÙÄÜÅ©¸®Æ®±¸Á¶ | ¾÷¹«½Ã¼³(¿ÀÇǽºÅÚ) | 180.16§³ (54.59Æò) | | 11Ãþ | ö±ÙÄÜÅ©¸®Æ®±¸Á¶ | ¾÷¹«½Ã¼³(¿ÀÇǽºÅÚ) | 180.16§³ (54.59Æò) | | 11Ãþ | ö±ÙÄÜÅ©¸®Æ®±¸Á¶ | ¾÷¹«½Ã¼³(¿ÀÇǽºÅÚ) | 180.16§³ (54.59Æò) | | 12Ãþ | ö±ÙÄÜÅ©¸®Æ®±¸Á¶ | ¾÷¹«½Ã¼³(¿ÀÇǽºÅÚ) | 180.16§³ (54.59Æò) | | 12Ãþ | ö±ÙÄÜÅ©¸®Æ®±¸Á¶ | ¾÷¹«½Ã¼³(¿ÀÇǽºÅÚ) | 180.16§³ (54.59Æò) | | 13Ãþ | ö±ÙÄÜÅ©¸®Æ®±¸Á¶ | ¾÷¹«½Ã¼³(¿ÀÇǽºÅÚ) | 180.16§³ (54.59Æò) | | 13Ãþ | ö±ÙÄÜÅ©¸®Æ®±¸Á¶ | ¾÷¹«½Ã¼³(¿ÀÇǽºÅÚ) | 180.16§³ (54.59Æò) |
|
|
|
|
|
 |
ÀÓÂ÷³»¿ª |
[¹è´ç¿ä±¸Á¾±âÀÏ : 2024/12/30] |
|
|
| ÀÓÂ÷ÀÎ |
Á¡À¯°ü°è |
ÀüÀÔÀÏÀÚ |
È®Á¤ÀÏÀÚ |
¹è´ç¿ä±¸ÀÏ |
º¸Áõ±Ý/Â÷ÀÓ |
´ëÇ׿ä°Ç |
ºñ°í |
| Á¶»çµÈ ÀÓÂ÷³»¿ªÀÌ ¾ø½À´Ï´Ù. |
|
|
|
 |
¹ý¿ø ¹°°ÇÀÚ·á ¿ä¾à |
|
|
|
|
| ¼Ò¸êµÇÁö ¾Ê´Â µî±âºÎ±Ç¸® |
|
| ¼³Á¤µÈ °ÍÀ¸·Î º¸´Â Áö»ó±Ç |
|
| ¹ý¿øÀÚ·á Æ¯ÀÌ»çÇ× |
[ÁÖ¿ä ¹®°Ç Á¢¼ö ³»¿ª]
|
[¸Å°¢¹°°Ç¸í¼¼¼ ºñ°í¶õ]
-ÁÖ°Å¿ë ¿ÀÇǽºÅÚ·Î ÀÌ¿ëÁßÀÓ. |
|
| ¿©ÀÇÁÖ°æ¸Å Á¶¾ð ÇѸ¶µð |
ÀÌ ºÎµ¿»êÀÇ ÀÔÂû¹ý¿øÀº ºÎ»ê¼ºÎÁö¿øÀÔ´Ï´Ù.
ÀÔÂûÀÏÀº 2025-11-27ÀÔ´Ï´Ù.
ÀÔÂû½Ã°£Àº 11:00~11:20ÀÔ´Ï´Ù. ÀÌ ¹ý¿ø¿¡´Â ºÎ»êÀºÇàÀÌ ÀÔÁ¡Çϰí ÀÖ½À´Ï´Ù.
|
|
|
| Åë°è±â°£ |
³«Âû¹°°Ç¼ö |
Æò±Õ°¨Á¤°¡ |
Æò±Õ³«Âû°¡ |
³«Âû°¡À² |
À¯ÂûȽ¼ö |
| 3°³¿ù |
16°Ç |
82,062,500¿ø |
34,550,194¿ø |
38% |
4.9ȸ |
| 6°³¿ù |
22°Ç |
111,090,909¿ø |
58,401,228¿ø |
45% |
4.7ȸ |
| 12°³¿ù |
37°Ç |
140,648,649¿ø |
69,026,809¿ø |
44% |
5.8ȸ |
|
|
|
|
|
|
|
 |
ÀαÙÁö¿ª ÃÖ±Ù ³«Âû»ç·Ê
|
|
|
 |
|
|
[¾È³»] Ȥ½Ã ÀÌ¿ëÀÌ ºÒÆíÇϽðųª »èÁ¦ÇÒ ³»¿ëÀÌ ÀÖ´Ù¸é ÃÖ´ëÇÑ ³ë·ÂÇØ¼ °³¼±ÇØ ³ª°¡µµ·Ï ÇϰڽÀ´Ï´Ù.
 |
|
ÀÌ »çÀÌÆ®¿¡¼ Á¦°øµÇ´Â ºÎµ¿»ê°æ¸Å ÀÚ·á´Â ¹ý¿ø °æ¸Å°è¿¡¼ ó¸®Çϰí ÀÖ´Â ½ÇÁ¦ ¹°°ÇÀÇ Á¤º¸¿Í ÀÏÄ¡ÇÏÁö ¾ÊÀ» ¼öµµ ÀÖ½À´Ï´Ù.
´ç»ç´Â º» ÀÚ·á¿¡ °üÇÏ¿© Á¤½Ä ÄÁ¼³ÆÃ ÀÇ·Ú°¡ ¾Æ´Ñ ÀÌ»ó ¾î¶°ÇÑ º¸Áõµµ ÇÏÁö ¾ÊÀ¸¸ç ¹ýÀû Ã¥ÀÓÀ» ÁöÁö ¾Ê½À´Ï´Ù.
ÀÔÂûÇϱâ Àü¿¡ ²Ä²ÄÈ÷ ¹ý¿ø¿¡ ºñÄ¡µÈ ¸Å°¢¹°°Ç¸í¼¼¼ ¹× ±âŸ °øºÎ¸¦ ÀçÈ®ÀÎÇϽðí ÀÔÂû¿¡ Âü°¡ÇÏ½Ã±æ ¹Ù¶ø´Ï´Ù. |
|
|
|
|
|