|
|
|
| ¹°°ÇÁ¤º¸ Çٽɺ¸±â |
Ȩ > °æ¸ÅÁ¾ÇÕ°Ë»ö > ¹°°ÇÁ¤º¸ Çٽɺ¸±â |
|
|
| 2025Ÿ°æ51672 °æ¸Å»ç°ÇÀÇ ¿ÀÇǽºÅÚ ¹°°Ç¿¡ °üÇÑ »ó¼¼ Á¤º¸ÀÔ´Ï´Ù. |
|
| ¼ÒÀçÁö |
°æ±âµµ ±¤¸í½Ã ¼ÒÇϵ¿ 1343-2 ¼ÒÇ϶÷2 7Ãþ737È£
|
|
| »ç°Ç¹øÈ£ |
2025 Ÿ°æ 51672 |
¹°°Ç¹øÈ£ |
1
|
¹°°Ç¿ëµµ |
¿ÀÇǽºÅÚ |
| °¨Á¤Æò°¡¾× |
254,000,000¿ø |
°æ¸Å´ë»ó |
ÅäÁö ¹× °Ç¹°Àϰý ¸Å°¢ |
ÁøÇà»óÅ |
À¯Âû |
| ÃÖÀúÀÔÂû°¡ |
(34%) 87,122,000¿ø
|
°Ç¹°¸éÀû |
35.02§³(10.59Æò) |
ÀÔÂû±âÀÏ |
2026.03.05(¸ñ) 10:30
(ÀÔÂû 5ÀÏÀü)
|
| ÀÔÂûº¸Áõ±Ý |
(10%) 8,712,200¿ø |
ÅäÁö¸éÀû |
13.06§³(3.95Æò)
|
À¯ÂûȽ¼ö |
3ȸ |
| ÀÔÂû¹ý¿ø |
¼ö¿øÁö¹æ¹ý¿ø ¾È»êÁö¿ø |
°æ¸Å¹æ¹ý |
ºÎµ¿»ê°Á¦°æ¸Å |
¹°°ÇÁ¶È¸¼ö |
¿À´Ã: 2ȸ [´©Àû: 1243ȸ]
|
| ¸»¼Ò±âÁØ | ÃÖ¼±¼øÀ§ ¼³Á¤ : 2023.02.02. (¾Ð·ù) ¼³Á¤
|
|
|
|
|
|
|
|
|
|
|
°æ¸Å´ë»ó ¸ñ·Ï
|
|
| ±¸ºÐ |
¸ñ·Ï |
ÁÖ¼Ò |
±¸Á¶/¿ëµµ/´ëÁö±Ç |
ºñ°í |
´ëÁö±Ç
|
1 |
¼ÒÇϵ¿ 1343-2 |
2004.9ºÐÀÇ 13.056 |
13.056§³ (3.95Æò)
|
°Ç¹°
|
1 |
¼ÒÇϵ¿ 1343-2 |
7Ãþ737È£ ö±ÙÄÜÅ©¸®Æ®±¸Á¶ |
35.02§³ (10.59Æò)
|
|
|
|
2025-10-30
À¯Âû
|
(100%)
254,000,000¿ø
|
|
|
|
2025-12-11
À¯Âû
|
(70%)
177,800,000¿ø
|
|
|
|
2026-01-22
À¯Âû
|
(49%)
124,460,000¿ø
|
|
|
|
2026-03-05
ÁøÇà
|
(34%)
87,122,000¿ø
|
|
|
|
|
|
|
|
°ÇÃ๰ÇöȲ |
|
|
|
| ¼ÒÀçÁö |
°æ±âµµ ±¤¸í½Ã ¼ÒÇϵ¿ 1343-2¹øÁö |
| ´ëÁö¸éÀû |
2004.9§³(607.55Æò) |
¿¬¸éÀû |
14996.61§³(4544.43Æò) |
ÁÖ¿ëµµ |
¾÷¹«½Ã¼³ |
| °ÇÃà¸éÀû |
1389.42§³(421.04Æò) |
¿ëÀû·ü»êÁ¤¿¬¸éÀû |
8781.44§³(2661.04Æò) |
Âø°øÀÏÀÚ |
2015.12.07 |
| °ÇÆóÀ² |
69.3% |
¿ëÀû·ü |
438% |
»ç¿ë½ÂÀÎÀÏÀÚ |
2017.05.08 |
| Áö»óÃþ¼ö |
7Ãþ |
ÁöÇÏÃþ¼ö |
4Ãþ |
±¸Á¶ |
ö±ÙÄÜÅ©¸®Æ®±¸Á¶ |
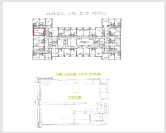
°ÇÃ๰Ãþº°ÇöȲ [º¸±â]| Ãþº° | ±¸Á¶ | ¿ëµµ | ¸éÀû | | 1Ãþ | ö±ÙÄÜÅ©¸®Æ®±¸Á¶ | (±Ù¸°»ýȰ½Ã¼³, ¿ÀÇǽºÅڷκñ) | 1039.82§³ (315.1Æò) | | 1Ãþ | ö±ÙÄÜÅ©¸®Æ®±¸Á¶ | (±Ù¸°»ýȰ½Ã¼³, ¿ÀÇǽºÅڷκñ) | 1039.82§³ (315.1Æò) | | 2Ãþ | ö±ÙÄÜÅ©¸®Æ®±¸Á¶ | (¾÷¹«½Ã¼³-¿ÀÇǽºÅÚ) | 1298.84§³ (393.59Æò) | | 2Ãþ | ö±ÙÄÜÅ©¸®Æ®±¸Á¶ | (¾÷¹«½Ã¼³-¿ÀÇǽºÅÚ) | 1298.84§³ (393.59Æò) | | 3Ãþ | ö±ÙÄÜÅ©¸®Æ®±¸Á¶ | (¾÷¹«½Ã¼³-¿ÀÇǽºÅÚ) | 1298.84§³ (393.59Æò) | | 3Ãþ | ö±ÙÄÜÅ©¸®Æ®±¸Á¶ | (¾÷¹«½Ã¼³-¿ÀÇǽºÅÚ) | 1298.84§³ (393.59Æò) | | 4Ãþ | ö±ÙÄÜÅ©¸®Æ®±¸Á¶ | (¾÷¹«½Ã¼³-¿ÀÇǽºÅÚ) | 1298.84§³ (393.59Æò) | | 4Ãþ | ö±ÙÄÜÅ©¸®Æ®±¸Á¶ | (¾÷¹«½Ã¼³-¿ÀÇǽºÅÚ) | 1298.84§³ (393.59Æò) | | 5Ãþ | ö±ÙÄÜÅ©¸®Æ®±¸Á¶ | (¾÷¹«½Ã¼³-¿ÀÇǽºÅÚ) | 1298.84§³ (393.59Æò) | | 5Ãþ | ö±ÙÄÜÅ©¸®Æ®±¸Á¶ | (¾÷¹«½Ã¼³-¿ÀÇǽºÅÚ) | 1298.84§³ (393.59Æò) | | 6Ãþ | ö±ÙÄÜÅ©¸®Æ®±¸Á¶ | (¾÷¹«½Ã¼³-¿ÀÇǽºÅÚ) | 1298.84§³ (393.59Æò) | | 6Ãþ | ö±ÙÄÜÅ©¸®Æ®±¸Á¶ | (¾÷¹«½Ã¼³-¿ÀÇǽºÅÚ) | 1298.84§³ (393.59Æò) | | 7Ãþ | ö±ÙÄÜÅ©¸®Æ®±¸Á¶ | (¾÷¹«½Ã¼³-¿ÀÇǽºÅÚ) | 1247.42§³ (378.01Æò) | | 7Ãþ | ö±ÙÄÜÅ©¸®Æ®±¸Á¶ | (¾÷¹«½Ã¼³-¿ÀÇǽºÅÚ) | 1247.42§³ (378.01Æò) | | ¿Áž1Ãþ | ö±ÙÄÜÅ©¸®Æ®±¸Á¶ | (°è´Ü½Ç ¹× ¿¤¸®º£ÀÌÅÍ ±â°è½Ç) | 100.65§³ (30.5Æò) | | ¿Áž1Ãþ | ö±ÙÄÜÅ©¸®Æ®±¸Á¶ | (°è´Ü½Ç ¹× ¿¤¸®º£ÀÌÅÍ ±â°è½Ç) | 100.65§³ (30.5Æò) | | Áö1Ãþ | ö±ÙÄÜÅ©¸®Æ®±¸Á¶ | (ÁÖÂ÷Àå) | 1634.87§³ (495.42Æò) | | Áö1Ãþ | ö±ÙÄÜÅ©¸®Æ®±¸Á¶ | (ÁÖÂ÷Àå) | 1634.87§³ (495.42Æò) | | Áö2Ãþ | ö±ÙÄÜÅ©¸®Æ®±¸Á¶ | (ÁÖÂ÷Àå) | 1587.73§³ (481.13Æò) | | Áö2Ãþ | ö±ÙÄÜÅ©¸®Æ®±¸Á¶ | (ÁÖÂ÷Àå) | 1587.73§³ (481.13Æò) | | Áö3Ãþ | ö±ÙÄÜÅ©¸®Æ®±¸Á¶ | (ÁÖÂ÷Àå, ±â°è½Ç, Àü±â½Ç, ¹ßÀü±â½Ç | 1327.59§³ (402.3Æò) | | Áö3Ãþ | ö±ÙÄÜÅ©¸®Æ®±¸Á¶ | (ÁÖÂ÷Àå, ±â°è½Ç, Àü±â½Ç, ¹ßÀü±â½Ç | 1327.59§³ (402.3Æò) | | Áö4Ãþ | ö±ÙÄÜÅ©¸®Æ®±¸Á¶ | (ÁÖÂ÷Àå) | 1664.98§³ (504.54Æò) | | Áö4Ãþ | ö±ÙÄÜÅ©¸®Æ®±¸Á¶ | (ÁÖÂ÷Àå) | 1664.98§³ (504.54Æò) |
|
|
|
|
|
 |
ÀÓÂ÷³»¿ª |
[¹è´ç¿ä±¸Á¾±âÀÏ : 2025/05/07] |
|
|
| ÀÓÂ÷ÀÎ |
Á¡À¯°ü°è |
ÀüÀÔÀÏÀÚ |
È®Á¤ÀÏÀÚ |
¹è´ç¿ä±¸ÀÏ |
º¸Áõ±Ý/Â÷ÀÓ |
´ëÇ׿ä°Ç |
ºñ°í |
| ÁÖOOOOOOOOOOOOOOO |
ÁÖÅÃÀüºÎ |
2022.02.10. |
2022.01.24. |
|
259,000,000
|
O |
2022.02.10.~ |
| ¸Å°¢¹°°Ç¸í¼¼ ºñ°í |
ÁÖÅõµ½Ãº¸Áõ°ø»ç(ÀÓÂ÷ÀÎ ¹ÚÁ¤ÈÆ):
¨ç°æ¸Å½Åûä±ÇÀڷμ `ÁÖÅÃÀÓ´ëÂ÷º¸È£¹ý` Á¦3Á¶ÀÇ 2 Á¦7Ç× Á¦9È£ÀÇ ¾ç¼öÀÎÀÓ
¨èÀÓÂ÷ÀÎ`¹ÚÁ¤ÈÆ`Àº ÁÖÅÃÀÓÂ÷±ÇÀڷμ ÁÖÅÃÀÓÂ÷±Çµî±âÀÏÀº 2024.03.08.ÀÓ
¨é¹è´ç¿ä±¸ÀÏÀÚ´Â °Á¦°æ¸Å½Åû¼ Á¢¼öÀÏÀ̰í, ±Ç¸®½Å°í ³»¿ë Áß `ÀÓ´ëÂ÷±â°£,º¸Áõ±Ý,ÀüÀԽŰíÀÏÀÚ`Àº °æ¸Å½Åû¼¿¡ ÷ºÎµÈ
`Àü¼¼°è¾à¼`µî¿¡ ±Ù°ÅÇÔ |
|
|
|
 |
¹ý¿ø ¹°°ÇÀÚ·á ¿ä¾à |
|
|
|
|
| ¼Ò¸êµÇÁö ¾Ê´Â µî±âºÎ±Ç¸® |
¸Å¼öÀο¡°Ô ´ëÇ×ÇÒ ¼ö ÀÖ´Â ÁÖÅÃÀÓÂ÷±ÇÀÚ(À»±¸3¹ø) ÀÖÀ½(ÀÓ´ëÂ÷º¸Áõ±Ý:259,000,000¿ø/ ÀüÀÔÀÏÀÚ:2022.02.10./ È®Á¤ÀÏÀÚ:2022.01.24.)
¹è´ç¿¡¼ º¸Áõ±ÝÀÌ Àü¾× º¯Á¦µÇÁö ¾Ê´Â °æ¿ì Àܾ×À» ¸Å¼öÀÎÀÌ ÀμöÇÏ¿©¾ß ÇÔ |
| ¼³Á¤µÈ °ÍÀ¸·Î º¸´Â Áö»ó±Ç |
|
| ¹ý¿øÀÚ·á Æ¯ÀÌ»çÇ× |
[ÁÖ¿ä ¹®°Ç Á¢¼ö ³»¿ª]
|
[¸Å°¢¹°°Ç¸í¼¼¼ ºñ°í¶õ]
2025.03.¿ùºÐ±îÁö °ø¿ëºÎºÐ¿¡ ´ëÇÑ °ü¸®ºñ 2,054,210¿øÀÌ ¹Ì³³µÇ¾ú´Ù´Â ½Å°í¼(÷ºÎÇÑ 2025.05.12.ÀÚ °ü¸®ºñ ¹Ì³³½Å°í¼ ÂüÁ¶
¿äÇÔ)°¡ Á¦ÃâµÇ¾î ÀÖÀ½ |
|
| ¿©ÀÇÁÖ°æ¸Å Á¶¾ð ÇѸ¶µð |
ÀÌ ºÎµ¿»êÀÇ ÀÔÂû¹ý¿øÀº ¼ö¿øÁö¹æ¹ý¿ø ¾È»êÁö¿øÀÔ´Ï´Ù.
ÀÔÂûÀÏÀº 2026-03-05ÀÔ´Ï´Ù.
ÀÔÂû½Ã°£Àº 10:00~11:00ÀÔ´Ï´Ù. ÀÌ ¹ý¿ø¿¡´Â ½ÅÇÑÀºÇàÀÌ ÀÔÁ¡Çϰí ÀÖ½À´Ï´Ù.
|
|
|
| Åë°è±â°£ |
³«Âû¹°°Ç¼ö |
Æò±Õ°¨Á¤°¡ |
Æò±Õ³«Âû°¡ |
³«Âû°¡À² |
À¯ÂûȽ¼ö |
|
|
|
|
|
|
|
 |
ÀαÙÁö¿ª ÃÖ±Ù ³«Âû»ç·Ê
|
|
|
 |
|
|
[¾È³»] Ȥ½Ã ÀÌ¿ëÀÌ ºÒÆíÇϽðųª »èÁ¦ÇÒ ³»¿ëÀÌ ÀÖ´Ù¸é ÃÖ´ëÇÑ ³ë·ÂÇØ¼ °³¼±ÇØ ³ª°¡µµ·Ï ÇϰڽÀ´Ï´Ù.
 |
|
ÀÌ »çÀÌÆ®¿¡¼ Á¦°øµÇ´Â ºÎµ¿»ê°æ¸Å ÀÚ·á´Â ¹ý¿ø °æ¸Å°è¿¡¼ ó¸®Çϰí ÀÖ´Â ½ÇÁ¦ ¹°°ÇÀÇ Á¤º¸¿Í ÀÏÄ¡ÇÏÁö ¾ÊÀ» ¼öµµ ÀÖ½À´Ï´Ù.
´ç»ç´Â º» ÀÚ·á¿¡ °üÇÏ¿© Á¤½Ä ÄÁ¼³ÆÃ ÀÇ·Ú°¡ ¾Æ´Ñ ÀÌ»ó ¾î¶°ÇÑ º¸Áõµµ ÇÏÁö ¾ÊÀ¸¸ç ¹ýÀû Ã¥ÀÓÀ» ÁöÁö ¾Ê½À´Ï´Ù.
ÀÔÂûÇϱâ Àü¿¡ ²Ä²ÄÈ÷ ¹ý¿ø¿¡ ºñÄ¡µÈ ¸Å°¢¹°°Ç¸í¼¼¼ ¹× ±âŸ °øºÎ¸¦ ÀçÈ®ÀÎÇϽðí ÀÔÂû¿¡ Âü°¡ÇÏ½Ã±æ ¹Ù¶ø´Ï´Ù. |
|
|
|
|
|