|
|
|
| ¹°°ÇÁ¤º¸ Çٽɺ¸±â |
Ȩ > °æ¸ÅÁ¾ÇÕ°Ë»ö > ¹°°ÇÁ¤º¸ Çٽɺ¸±â |
|
|
| 2024Ÿ°æ103666 °æ¸Å»ç°ÇÀÇ ´ä ¹°°Ç¿¡ °üÇÑ »ó¼¼ Á¤º¸ÀÔ´Ï´Ù. |
|
| ¼ÒÀçÁö |
°æ»óºÏµµ ¾Èµ¿½Ã ÀÏÁ÷¸é ±Í¹Ì¸® 1065-7
|
|
| »ç°Ç¹øÈ£ |
2024 Ÿ°æ 103666 |
¹°°Ç¹øÈ£ |
1
|
¹°°Ç¿ëµµ |
´ä |
| °¨Á¤Æò°¡¾× |
68,382,000¿ø |
°æ¸Å´ë»ó |
ÅäÁö¸Å°¢ |
ÁøÇà»óÅ |
À¯Âû |
| ÃÖÀúÀÔÂû°¡ |
(70%) 47,867,000¿ø
|
°Ç¹°¸éÀû |
|
ÀÔÂû±âÀÏ |
2025.12.08(¿ù) 10:00
(ÀÔÂû 23ÀÏÀü)
|
| ÀÔÂûº¸Áõ±Ý |
(10%) 4,786,700¿ø |
ÅäÁö¸éÀû |
2,079.00§³(628.90Æò)
|
À¯ÂûȽ¼ö |
1ȸ |
| ÀÔÂû¹ý¿ø |
´ë±¸Áö¹æ¹ý¿ø ¾Èµ¿Áö¿ø |
°æ¸Å¹æ¹ý |
ºÎµ¿»êÀÓÀǰæ¸Å |
¹°°ÇÁ¶È¸¼ö |
¿À´Ã: ȸ [´©Àû: ȸ]
|
| ¸»¼Ò±âÁØ | ÃÖ¼±¼øÀ§ ¼³Á¤ : 2022. 10. 14. ±ÙÀú´ç±Ç ¼³Á¤
|
|
|
|
|
|
|
|
|
|
|
°æ¸Å´ë»ó ¸ñ·Ï
|
|
| ±¸ºÐ |
¸ñ·Ï |
ÁÖ¼Ò |
±¸Á¶/¿ëµµ/´ëÁö±Ç |
ºñ°í |
ÅäÁö
|
1 |
±Í¹Ì¸® 1065-7 |
´ä |
2010§³ (608.03Æò) |
| 2 |
±Í¹Ì¸® 1065-8 |
´ä |
69§³ (20.87Æò) |
|
|
|
2025-11-03
À¯Âû
|
(100%)
68,382,000¿ø
|
|
|
|
2025-12-08
ÁøÇà
|
(70%)
47,867,000¿ø
|
|
|
|
|
|
°¨Á¤Æò°¡¼ ¿ä¾à |
|
[À§Ä¡/ÁÖÀ§È¯°æ]
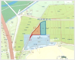
º»°ÇÀº °æ»óºÏµµ ¾Èµ¿½Ã ÀÏÁ÷¸é ±Í¹Ì¸® "¼ÒÀç "ÀÏÁ÷ÁßÇб³" ºÏÃø Àαٿ¡ À§Ä¡Çϸç ÁÖÀ§
´Â ³ó°æÁö, ³ó°¡ÁÖÅÃ, ÀÓ¾ß µîÀ¸·Î ÀÌ·ç¾îÁ® ÀÖÀ½.
[±³Åë»óȲ]
º»°Ç ÀαٱîÁö Â÷·®Á¢±Ù °¡´ÉÇÏ¸ç ³ó°æÁö·Î¼ÀÇ ±³Åë»çÁ¤Àº º¸ÅëÀÓ.
3)ÇüÅ ¹× ÀÌ¿ë»óÅÂ
°øÈ÷ ÀÚüÁö¹Ý ÆòźÇÑ ºÎÁ¤ÇüÀÇ ÅäÁö·Î¼ ´äÀ¸·Î ÀÌ¿ëÁßÀÓ.
4)ÀÎÁ¢ µµ·Î»óÅÂ
±âÈ£1) ¸ÍÁöÀÓ.
±âÈ£2) ¼Ãø ±¸°Å¸¦ °æÀ¯ÇÏ¿© Æø ¾à 2MÀÇ ³ó·Î¿Í ¿¬°áµÊ.
[ÅäÁöÀÌ¿ë°èȹ]
±âÈ£1) »ý»ê³ìÁöÁö¿ª, °¡Ãà»çÀ°Á¦Çѱ¸¿ª, »ó´ëº¸È£±¸¿ª, ³ó¾÷ÁøÈﱸ¿ª
±âÈ£2) Á¦1Á¾ÀϹÝÁÖ°ÅÁö¿ª, °¡Ãà»çÀ°Á¦Çѱ¸¿ª, »ó´ëº¸È£±¸¿ª, Àý´ëº¸È£±¸¿ªÀÓ.
6)Á¦½Ã¸ñ·Ï ¿ÜÀÇ ¹°°Ç
-
[°øºÎ¿ÍÀÇ Â÷ÀÌ]
-
[Âü°í»çÇ×]
ÀÓ´ë°ü°è µîÀº ¹Ì»óÀÓ. |
|
|
|
 |
ÀÓÂ÷³»¿ª |
[¹è´ç¿ä±¸Á¾±âÀÏ : 2024/12/30] |
|
|
| ÀÓÂ÷ÀÎ |
Á¡À¯°ü°è |
ÀüÀÔÀÏÀÚ |
È®Á¤ÀÏÀÚ |
¹è´ç¿ä±¸ÀÏ |
º¸Áõ±Ý/Â÷ÀÓ |
´ëÇ׿ä°Ç |
ºñ°í |
| Á¶»çµÈ ÀÓÂ÷³»¿ªÀÌ ¾ø½À´Ï´Ù. |
|
|
|
 |
¹ý¿ø ¹°°ÇÀÚ·á ¿ä¾à |
|
|
|
|
| ¼Ò¸êµÇÁö ¾Ê´Â µî±âºÎ±Ç¸® |
|
| ¼³Á¤µÈ °ÍÀ¸·Î º¸´Â Áö»ó±Ç |
|
| ¹ý¿øÀÚ·á Æ¯ÀÌ»çÇ× |
[ÁÖ¿ä ¹®°Ç Á¢¼ö ³»¿ª]
|
[¸Å°¢¹°°Ç¸í¼¼¼ ºñ°í¶õ]
Àϰý¸Å°¢. ¸ñ·Ï 1Àº ³óÁöÃëµæÀÚ°ÝÁõ¸í ¿äÇÔ(¹ÌÁ¦Ãâ½Ã ¸Å¼ö½Åûº¸Áõ±Ý ¹Ì¹Ýȯ). |
|
| ¿©ÀÇÁÖ°æ¸Å Á¶¾ð ÇѸ¶µð |
ÀÌ ºÎµ¿»êÀÇ ÀÔÂû¹ý¿øÀº ´ë±¸Áö¹æ¹ý¿ø ¾Èµ¿Áö¿øÀÔ´Ï´Ù.
ÀÔÂûÀÏÀº 2025-12-08ÀÔ´Ï´Ù.
ÀÔÂû½Ã°£Àº 10:15~11:10ÀÔ´Ï´Ù. ÀÌ ¹ý¿ø¿¡´Â ½ÅÇÑÀºÇàÀÌ ÀÔÁ¡Çϰí ÀÖ½À´Ï´Ù.
|
³óÁöÃëµæÀÚ°ÝÁõ¸í¿ø Á¦ÃâÀ» Á¶°ÇÀ¸·Î ÇÏ´Â ¹°°ÇÀÔ´Ï´Ù Àü, ´ä, °ú¼ö¿ø µî ³óÁöÀÌ¸é¼ ¸Å°¢¹°°Ç¸í¼¼¼¿¡ ³óÁöÃëµæÀÚ°ÝÁõ¸íÀÌ ÇÊ¿äÇÏ´Ù°í ¸í½Ã µÇ¾îÀÖ´Ù¸é
³«ÂûÀϷκÎÅÍ 7ÀÏ(¸Å°¢Çã°¡°áÁ¤ÀÏ Àü)±îÁö ³óÁöÃëµæÀÚ°ÝÁõ¸í¿øÀ» ÇØ´ç ½Ã.±¸.À¾¡¤¸é»ç¹«¼Ò¿¡¼ ¹ß±Þ¹Þ¾Æ °æ¸Å¹ý¿ø¿¡ Á¦ÃâÇÏ¿©¾ß ÇÕ´Ï´Ù.
¹ÌÁ¦Ãâ½Ã¿¡´Â ³«ÂûÀÌ ºÒÇã°¡µÇ°í ÀÔÂûº¸Áõ±ÝÀÌ ¸ô¼öµÉ ¼ö ÀÖ½À´Ï´Ù.
ÇØ´ç ³óÁö°¡ ºÒ¹ýÀü¿ë ¶Ç´Â ÇüÁúº¯°æÀÌ µÈ °æ¿ì ¿øÄ¢ÀûÀ¸·Î ³óÁöÃëµæÀÚ°ÝÁõ¸í¿øÀ» ¹ß±Þ¹ÞÀ» ¼ö ¾øÀ¸³ª
»çÈÄ Á¶°ÇºÎ·Î ¹ß±Þ¹ÞÀ» ¼öµµ ÀÖ½À´Ï´Ù. ³ó¾÷ÀÎÀÌ ¾Æ´Ï¾îµµ µÇ°í ¸Õ °Å¸®¿¡ °ÅÁÖÇϴ ŸÁöÀεµ ¹ß±ÞÀÌ °¡´ÉÇÕ´Ï´Ù.
³óÁö¹ý °³Á¤À¸·Î ³óÁöÃëµæÀÚ°ÝÁõ¸í ¹ß±ÞÁ¶°ÇÀÌ ±î´Ù·Î¿ö Á³À¸¹Ç·Î ÀÔÂûÀü¿¡ ¹ß±Þ °¡´É¿©ºÎ¸¦ È®ÀÎÇÏ´Â °ÍÀ» Ãßõµå¸³´Ï´Ù.
³óÁöÃëµæÀÚ°ÝÁõ¸í ¹ß±Þ½ÅûÀº ³ó¾÷°æ¿µ°èȹ¼¸¦ ÀÛ¼ºÇÏ¿©¾ß Çϰí Åë»ó ¹ß±Þ ¼Ò¿ä±â°£Àº 7ÀÏ(³óÁö½ÉÀÇÀ§¿øÈ¸ÀÇ ½ÉÀÇ ´ë»óÀÇ °æ¿ì 14ÀÏ)ÀÔ´Ï´Ù.
³óÁöÃëµæ¸éÀûÀÌ ¼¼´ë¿ø ÇÕ»ê 1,000§³¹Ì¸¸ÀÎ °æ¿ì¿¡´Â ÁÖ¸»Ã¼Ç迵³ó¸ñÀûÀ¸·Î ³óÁö¼ÒÀ¯°¡ °¡´ÉÇÕ´Ï´Ù. |
|
|
| Åë°è±â°£ |
³«Âû¹°°Ç¼ö |
Æò±Õ°¨Á¤°¡ |
Æò±Õ³«Âû°¡ |
³«Âû°¡À² |
À¯ÂûȽ¼ö |
| 3°³¿ù |
21°Ç |
126,527,464¿ø |
57,499,259¿ø |
49% |
3.4ȸ |
| 6°³¿ù |
28°Ç |
140,942,094¿ø |
56,589,301¿ø |
45% |
3.5ȸ |
| 12°³¿ù |
72°Ç |
123,136,426¿ø |
52,424,632¿ø |
49% |
2.9ȸ |
|
|
|
|
|
|
|
 |
ÀαÙÁö¿ª ÃÖ±Ù ³«Âû»ç·Ê
|
|
|
 |
|
|
[¾È³»] Ȥ½Ã ÀÌ¿ëÀÌ ºÒÆíÇϽðųª »èÁ¦ÇÒ ³»¿ëÀÌ ÀÖ´Ù¸é ÃÖ´ëÇÑ ³ë·ÂÇØ¼ °³¼±ÇØ ³ª°¡µµ·Ï ÇϰڽÀ´Ï´Ù.
 |
|
ÀÌ »çÀÌÆ®¿¡¼ Á¦°øµÇ´Â ºÎµ¿»ê°æ¸Å ÀÚ·á´Â ¹ý¿ø °æ¸Å°è¿¡¼ ó¸®Çϰí ÀÖ´Â ½ÇÁ¦ ¹°°ÇÀÇ Á¤º¸¿Í ÀÏÄ¡ÇÏÁö ¾ÊÀ» ¼öµµ ÀÖ½À´Ï´Ù.
´ç»ç´Â º» ÀÚ·á¿¡ °üÇÏ¿© Á¤½Ä ÄÁ¼³ÆÃ ÀÇ·Ú°¡ ¾Æ´Ñ ÀÌ»ó ¾î¶°ÇÑ º¸Áõµµ ÇÏÁö ¾ÊÀ¸¸ç ¹ýÀû Ã¥ÀÓÀ» ÁöÁö ¾Ê½À´Ï´Ù.
ÀÔÂûÇϱâ Àü¿¡ ²Ä²ÄÈ÷ ¹ý¿ø¿¡ ºñÄ¡µÈ ¸Å°¢¹°°Ç¸í¼¼¼ ¹× ±âŸ °øºÎ¸¦ ÀçÈ®ÀÎÇϽðí ÀÔÂû¿¡ Âü°¡ÇÏ½Ã±æ ¹Ù¶ø´Ï´Ù. |
|
|
|
|
|