|
|
|
| ¹°°ÇÁ¤º¸ Çٽɺ¸±â |
Ȩ > °æ¸ÅÁ¾ÇÕ°Ë»ö > ¹°°ÇÁ¤º¸ Çٽɺ¸±â |
|
|
| 2024Ÿ°æ2465 °æ¸Å»ç°ÇÀÇ ¾ÆÆÄÆ® ¹°°Ç¿¡ °üÇÑ »ó¼¼ Á¤º¸ÀÔ´Ï´Ù. |
|
| ¼ÒÀçÁö |
°æ»ó³²µµ ¾ç»ê½Ã ¾çÁÖ·Î 154, 121µ¿ 11Ãþ 1101È£ (Áߺε¿,´ëµ¿È²Å乿¾ÆÆÄÆ®)
±¸)°æ»ó³²µµ ¾ç»ê½Ã Áߺε¿ 696-1
|
|
| »ç°Ç¹øÈ£ |
2024 Ÿ°æ 2465 Áߺ¹ 2024Ÿ°æ2571, |
¹°°Ç¹øÈ£ |
1
|
¹°°Ç¿ëµµ |
¾ÆÆÄÆ® |
| °¨Á¤Æò°¡¾× |
390,000,000¿ø |
°æ¸Å´ë»ó |
ÅäÁö ¹× °Ç¹°Àϰý ¸Å°¢ |
ÁøÇà»óÅ |
À¯Âû |
| ÃÖÀúÀÔÂû°¡ |
(70%) 273,000,000¿ø
|
°Ç¹°¸éÀû |
117.63§³(35.58Æò) |
ÀÔÂû±âÀÏ |
2026.04.09(¸ñ) 10:00
(ÀÔÂû 28ÀÏÀü)
|
| ÀÔÂûº¸Áõ±Ý |
(10%) 27,300,000¿ø |
ÅäÁö¸éÀû |
75.28§³(22.77Æò)
|
À¯ÂûȽ¼ö |
3ȸ |
| ÀÔÂû¹ý¿ø |
¿ï»êÁö¹æ¹ý¿ø |
°æ¸Å¹æ¹ý |
ºÎµ¿»êÀÓÀǰæ¸Å |
¹°°ÇÁ¶È¸¼ö |
¿À´Ã: 1ȸ [´©Àû: 1422ȸ]
|
| ¸»¼Ò±âÁØ | ÃÖ¼±¼øÀ§ ¼³Á¤ : 2019.09.11.±ÙÀú´ç±Ç ¼³Á¤
|
|
|
|
|
|
|
|
|
|
|
°æ¸Å´ë»ó ¸ñ·Ï
|
|
| ±¸ºÐ |
¸ñ·Ï |
ÁÖ¼Ò |
±¸Á¶/¿ëµµ/´ëÁö±Ç |
ºñ°í |
´ëÁö±Ç
|
1 |
Áߺε¿ 696-1 |
74179.9 ºÐÀÇ 75.2846 |
75.2846§³ (22.77Æò)
|
°Ç¹°
|
1 |
Áߺε¿ 696-1 |
121µ¿ 11Ãþ 1101È£ ö±ÙÄÜÅ©¸®Æ®Á¶ |
117.63§³ (35.58Æò)
|
|
|
|
2025-11-05
À¯Âû
|
(100%)
390,000,000¿ø
|
|
|
|
2025-12-10
À¯Âû
|
(70%)
273,000,000¿ø
|
|
|
|
2026-01-21
º¯°æ
|
(49%)
191,100,000¿ø
|
|
|
|
2026-03-04
À¯Âû
|
(100%)
390,000,000¿ø
|
|
|
|
2026-04-09
ÁøÇà
|
(70%)
273,000,000¿ø
|
|
|
|
|
|
°¨Á¤Æò°¡¼ ¿ä¾à |
|
[À§Ä¡/ÁÖÀ§È¯°æ]
º»°ÇÀº °æ»ó³²µµ ¾ç»ê½Ã Áߺε¿ "ÁߺÎÃʵîÇб³" ºÏµ¿Ãø¿¡ À§Ä¡ÇÑ "´ëµ¿È²Å乿¾ÆÆÄÆ® 121µ¿ 11Ãþ 1101È£"·Î¼ ÁÖÀ§´Â ´ë±Ô¸ð¾ÆÆÄÆ®´ÜÁö ,°ø¿ø,Çб³¹× °¢Á¾±Ù¸°»ýȰ½Ã¼³ µîÀÌ È¥ÀçÇϰí ÀÖÀ½.
[±³Åë»óȲ]
º»°Ç ¾ÆÆÄÆ®´ÜÁö±îÁö Á¦¹ÝÂ÷·®Á¢±ÙÀÌ ¿ëÀÌÇϸç Àαٿ¡ ½Ã³»¹ö½ºÁ¤·ùÀå, ¾ç»ê¿ªÀÌ ¼ÒÀçÇÏ¿© ´ëÁß±³Åë»çÁ¤µµ ¹«³ÇÑ ÆíÀÓ.
[°Ç¹°±¸Á¶]
ö±ÙÄÜÅ©¸®Æ®Á¶ °æ»ç½½·¡ºêÁöºØ 20Ãþ°Ç(1999.12.22ÀÏ »ç¿ë½ÂÀÎ)Áß 11Ãþ 1101È£·Î¼
¿Üº®: ¸ôÅ»À§ ÆäÀÎÆ®
³»º®:º®Áöµµ¹è, ÀϺΟÀÏ
âȣ:¼¦½ÃâÀÓ.
[ÀÌ¿ë»óÅÂ]
¾ÆÆÄÆ®·Î ÀÌ¿ëÁßÀÓ.
[¼³ºñ³»¿ª]
À§»ý¹× ±Þ¹è¼ö¼³ºñ, µµ½Ã°¡½º¿¡ ÀÇÇÑ °³º°³¹æ¼³ºñ,½Â°±â¼³ºñ, ¼ÒÈÀü¼³ºñµîÀÌ ÀÖÀ½.
[ÅäÁöÇü»ó/ÀÌ¿ë»óÅÂ]
ºÎÁ¤ÇüÀ̳ª ÁÖÀ§¿Í µî°íÆòźÇÑ ¾ÆÆÄÆ®°ÇºÎÁö·Î ÀÌ¿ëÁßÀÓ.
7)ÀÎÁ¢ µµ·Î»óŵî
ÀαÙÀ¸·Î ¾ç»ê´ë·Î, ÁߺηÎ, ¾çÁַεîÀÌ ÀÖÀ¸¸ç ´ÜÁö³» °¡·Î¸Á »óÅ º¸ÅëÁ¤µµÀÓ.
[ÅäÁöÀÌ¿ë°èȹ]
Á¦3Á¾ÀϹÝÁÖ°ÅÁö¿ª, Á¦1Á¾Áö±¸´ÜÀ§°èȹ±¸¿ª, ¼Ò·Î2·ù(Æø8m-10m)(Á¢ÇÔ), Áß·Î1·ù(Æø20m-25m)(Á¢ÇÔ), °¡Ãà»çÀ°Á¦Çѱ¸¿ª , »ó´ëº¸È£±¸¿ª£¼±³À°È¯°æ º¸È£¿¡ °üÇÑ ¹ý·ü£¾ ,Àý´ëº¸È£±¸¿ª£¼±³À°È¯°æ º¸È£¿¡ °üÇÑ ¹ý·ü£¾
[°øºÎ¿ÍÀÇ Â÷ÀÌ]
¾ø À½.
[Âü°í»çÇ×]
°¡.ÀÓ´ë°ü°è ; ¹Ì»óÀÓ.
³ª. ±âŸ :¾øÀ½. |
|
|
°ÇÃ๰ÇöȲ |
|
|
|
| ¼ÒÀçÁö |
°æ»ó³²µµ ¾ç»ê½Ã Áߺε¿ 696-1¹øÁö |
| ´ëÁö¸éÀû |
74216§³(22489.7Æò) |
¿¬¸éÀû |
989.31§³(299.79Æò) |
ÁÖ¿ëµµ |
°øµ¿ÁÖÅà |
| °ÇÃà¸éÀû |
502.56§³(152.29Æò) |
¿ëÀû·ü»êÁ¤¿¬¸éÀû |
484.2§³(146.73Æò) |
Âø°øÀÏÀÚ |
1997.05.00 |
| °ÇÆóÀ² |
|
¿ëÀû·ü |
|
»ç¿ë½ÂÀÎÀÏÀÚ |
1999.12.22 |
| Áö»óÃþ¼ö |
1Ãþ |
ÁöÇÏÃþ¼ö |
1Ãþ |
±¸Á¶ |
ö±ÙÄÜÅ©¸®Æ®±¸Á¶ |
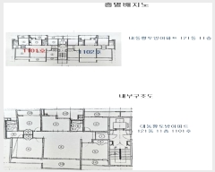
°ÇÃ๰Ãþº°ÇöȲ [º¸±â]| Ãþº° | ±¸Á¶ | ¿ëµµ | ¸éÀû | | 1Ãþ | ö±ÙÄÜÅ©¸®Æ®Á¶ | °øµ¿ÁÖÅÃ(¾ÆÆÄÆ®) | 266.9§³ (80.88Æò) | | 1Ãþ | ö±ÙÄÜÅ©¸®Æ®Á¶ | °øµ¿ÁÖÅÃ(¾ÆÆÄÆ®) | 266.9§³ (80.88Æò) | | 2Ãþ | ö±ÙÄÜÅ©¸®Æ®Á¶ | °øµ¿ÁÖÅÃ(¾ÆÆÄÆ®) | 264.66§³ (80.2Æò) | | 2Ãþ | ö±ÙÄÜÅ©¸®Æ®Á¶ | °øµ¿ÁÖÅÃ(¾ÆÆÄÆ®) | 264.66§³ (80.2Æò) | | 3Ãþ | ö±ÙÄÜÅ©¸®Æ®Á¶ | °øµ¿ÁÖÅÃ(¾ÆÆÄÆ®) | 264.66§³ (80.2Æò) | | 3Ãþ | ö±ÙÄÜÅ©¸®Æ®Á¶ | °øµ¿ÁÖÅÃ(¾ÆÆÄÆ®) | 264.66§³ (80.2Æò) | | 4Ãþ | ö±ÙÄÜÅ©¸®Æ®Á¶ | °øµ¿ÁÖÅÃ(¾ÆÆÄÆ®) | 262.7§³ (79.61Æò) | | 4Ãþ | ö±ÙÄÜÅ©¸®Æ®Á¶ | °øµ¿ÁÖÅÃ(¾ÆÆÄÆ®) | 262.7§³ (79.61Æò) | | 5Ãþ | ö±ÙÄÜÅ©¸®Æ®Á¶ | °øµ¿ÁÖÅÃ(¾ÆÆÄÆ®) | 262.7§³ (79.61Æò) | | 5Ãþ | ö±ÙÄÜÅ©¸®Æ®Á¶ | °øµ¿ÁÖÅÃ(¾ÆÆÄÆ®) | 262.7§³ (79.61Æò) | | 6Ãþ | ö±ÙÄÜÅ©¸®Æ®Á¶ | °øµ¿ÁÖÅÃ(¾ÆÆÄÆ®) | 262.7§³ (79.61Æò) | | 6Ãþ | ö±ÙÄÜÅ©¸®Æ®Á¶ | °øµ¿ÁÖÅÃ(¾ÆÆÄÆ®) | 262.7§³ (79.61Æò) | | 7Ãþ | ö±ÙÄÜÅ©¸®Æ®Á¶ | °øµ¿ÁÖÅÃ(¾ÆÆÄÆ®) | 262.7§³ (79.61Æò) | | 7Ãþ | ö±ÙÄÜÅ©¸®Æ®Á¶ | °øµ¿ÁÖÅÃ(¾ÆÆÄÆ®) | 262.7§³ (79.61Æò) | | 8Ãþ | ö±ÙÄÜÅ©¸®Æ®Á¶ | °øµ¿ÁÖÅÃ(¾ÆÆÄÆ®) | 262.7§³ (79.61Æò) | | 8Ãþ | ö±ÙÄÜÅ©¸®Æ®Á¶ | °øµ¿ÁÖÅÃ(¾ÆÆÄÆ®) | 262.7§³ (79.61Æò) | | 9Ãþ | ö±ÙÄÜÅ©¸®Æ®Á¶ | °øµ¿ÁÖÅÃ(¾ÆÆÄÆ®) | 262.7§³ (79.61Æò) | | 9Ãþ | ö±ÙÄÜÅ©¸®Æ®Á¶ | °øµ¿ÁÖÅÃ(¾ÆÆÄÆ®) | 262.7§³ (79.61Æò) | | 10Ãþ | ö±ÙÄÜÅ©¸®Æ®Á¶ | °øµ¿ÁÖÅÃ(¾ÆÆÄÆ®) | 262.7§³ (79.61Æò) | | 10Ãþ | ö±ÙÄÜÅ©¸®Æ®Á¶ | °øµ¿ÁÖÅÃ(¾ÆÆÄÆ®) | 262.7§³ (79.61Æò) | | 11Ãþ | ö±ÙÄÜÅ©¸®Æ®Á¶ | °øµ¿ÁÖÅÃ(¾ÆÆÄÆ®) | 262.7§³ (79.61Æò) | | 11Ãþ | ö±ÙÄÜÅ©¸®Æ®Á¶ | °øµ¿ÁÖÅÃ(¾ÆÆÄÆ®) | 262.7§³ (79.61Æò) | | 12Ãþ | ö±ÙÄÜÅ©¸®Æ®Á¶ | °øµ¿ÁÖÅÃ(¾ÆÆÄÆ®) | 262.7§³ (79.61Æò) | | 12Ãþ | ö±ÙÄÜÅ©¸®Æ®Á¶ | °øµ¿ÁÖÅÃ(¾ÆÆÄÆ®) | 262.7§³ (79.61Æò) | | 13Ãþ | ö±ÙÄÜÅ©¸®Æ®Á¶ | °øµ¿ÁÖÅÃ(¾ÆÆÄÆ®) | 262.7§³ (79.61Æò) | | 13Ãþ | ö±ÙÄÜÅ©¸®Æ®Á¶ | °øµ¿ÁÖÅÃ(¾ÆÆÄÆ®) | 262.7§³ (79.61Æò) | | 14Ãþ | ö±ÙÄÜÅ©¸®Æ®Á¶ | °øµ¿ÁÖÅÃ(¾ÆÆÄÆ®) | 262.7§³ (79.61Æò) | | 14Ãþ | ö±ÙÄÜÅ©¸®Æ®Á¶ | °øµ¿ÁÖÅÃ(¾ÆÆÄÆ®) | 262.7§³ (79.61Æò) | | 15Ãþ | ö±ÙÄÜÅ©¸®Æ®Á¶ | °øµ¿ÁÖÅÃ(¾ÆÆÄÆ®) | 262.7§³ (79.61Æò) | | 15Ãþ | ö±ÙÄÜÅ©¸®Æ®Á¶ | °øµ¿ÁÖÅÃ(¾ÆÆÄÆ®) | 262.7§³ (79.61Æò) | | 16Ãþ | ö±ÙÄÜÅ©¸®Æ®Á¶ | °øµ¿ÁÖÅÃ(¾ÆÆÄÆ®) | 262.7§³ (79.61Æò) | | 16Ãþ | ö±ÙÄÜÅ©¸®Æ®Á¶ | °øµ¿ÁÖÅÃ(¾ÆÆÄÆ®) | 262.7§³ (79.61Æò) | | 17Ãþ | ö±ÙÄÜÅ©¸®Æ®Á¶ | °øµ¿ÁÖÅÃ(¾ÆÆÄÆ®) | 262.7§³ (79.61Æò) | | 17Ãþ | ö±ÙÄÜÅ©¸®Æ®Á¶ | °øµ¿ÁÖÅÃ(¾ÆÆÄÆ®) | 262.7§³ (79.61Æò) | | 18Ãþ | ö±ÙÄÜÅ©¸®Æ®Á¶ | °øµ¿ÁÖÅÃ(¾ÆÆÄÆ®) | 262.7§³ (79.61Æò) | | 18Ãþ | ö±ÙÄÜÅ©¸®Æ®Á¶ | °øµ¿ÁÖÅÃ(¾ÆÆÄÆ®) | 262.7§³ (79.61Æò) | | 19Ãþ | ö±ÙÄÜÅ©¸®Æ®Á¶ | °øµ¿ÁÖÅÃ(¾ÆÆÄÆ®) | 262.7§³ (79.61Æò) | | 19Ãþ | ö±ÙÄÜÅ©¸®Æ®Á¶ | °øµ¿ÁÖÅÃ(¾ÆÆÄÆ®) | 262.7§³ (79.61Æò) | | 20Ãþ | ö±ÙÄÜÅ©¸®Æ®Á¶ | °øµ¿ÁÖÅÃ(¾ÆÆÄÆ®) | 262.7§³ (79.61Æò) | | 20Ãþ | ö±ÙÄÜÅ©¸®Æ®Á¶ | °øµ¿ÁÖÅÃ(¾ÆÆÄÆ®) | 262.7§³ (79.61Æò) |
|
|
|
|
|
 |
ÀÓÂ÷³»¿ª |
[¹è´ç¿ä±¸Á¾±âÀÏ : 2024/06/10] |
|
|
| ÀÓÂ÷ÀÎ |
Á¡À¯°ü°è |
ÀüÀÔÀÏÀÚ |
È®Á¤ÀÏÀÚ |
¹è´ç¿ä±¸ÀÏ |
º¸Áõ±Ý/Â÷ÀÓ |
´ëÇ׿ä°Ç |
ºñ°í |
| ±èOO |
|
2014.07.30. |
|
|
|
O |
|
| ¸Å°¢¹°°Ç¸í¼¼ ºñ°í |
±èÀºÃ¶:¼ÒÀ¯ÀÚ Á¤À±¾ÆÀÇ ¹è¿ìÀÚÀÓ. ±Ç¸®½Å°í¸¦ ÇÏÁö ¾Ê¾Æ ÀÓ´ëÂ÷°ü°è ºÒºÐ¸íÇÔ |
|
|
|
 |
¹ý¿ø ¹°°ÇÀÚ·á ¿ä¾à |
|
|
|
|
| ¼Ò¸êµÇÁö ¾Ê´Â µî±âºÎ±Ç¸® |
|
| ¼³Á¤µÈ °ÍÀ¸·Î º¸´Â Áö»ó±Ç |
|
| ¹ý¿øÀÚ·á Æ¯ÀÌ»çÇ× |
[ÁÖ¿ä ¹®°Ç Á¢¼ö ³»¿ª]
[2024.04.30] ä±ÇÀÚ ÁÖOOO OOOOO OOO OOOOOOOOOOOOOO OOOO ä±ÇÀÚº¯°æ½Å°í¼ Á¦Ãâ
[2026.01.09] ä±ÇÀÚ ¿¡OOOOOOOOOOOO OOOO ÀüÀÔ¼¼´ë°ü·Ã ä±ÇÀÚÀǰ߼ Á¦Ãâ
|
[ºÎµ¿»ê ÇöȲÁ¶»ç¼ ºñ°í¶õ]
º» °ÇÀº ¾ç»ê½Ã Áߺε¿ 696-1 ¼ÒÀç 121µ¿ 1101È£ °øµ¿ÁÖÅÃÀ¸·Î `´ëµ¿È²Å乿¾ÆÆÄÆ®`·Î ÅëĪÇÔ. |
|
| ¿©ÀÇÁÖ°æ¸Å Á¶¾ð ÇѸ¶µð |
ÀÌ ºÎµ¿»êÀÇ ÀÔÂû¹ý¿øÀº ¿ï»êÁö¹æ¹ý¿øÀÔ´Ï´Ù.
ÀÔÂûÀÏÀº 2026-04-09ÀÔ´Ï´Ù.
ÀÔÂû½Ã°£Àº 10:00~11:30ÀÔ´Ï´Ù. ÀÌ ¹ý¿ø¿¡´Â ½ÅÇÑÀºÇà,°æ³²ÀºÇàÀÌ ÀÔÁ¡Çϰí ÀÖ½À´Ï´Ù.
|
|
|
| Åë°è±â°£ |
³«Âû¹°°Ç¼ö |
Æò±Õ°¨Á¤°¡ |
Æò±Õ³«Âû°¡ |
³«Âû°¡À² |
À¯ÂûȽ¼ö |
|
|
|
|
|
|
|
 |
ÀαÙÁö¿ª ÃÖ±Ù ³«Âû»ç·Ê
|
|
|
 |
|
|
[¾È³»] Ȥ½Ã ÀÌ¿ëÀÌ ºÒÆíÇϽðųª »èÁ¦ÇÒ ³»¿ëÀÌ ÀÖ´Ù¸é ÃÖ´ëÇÑ ³ë·ÂÇØ¼ °³¼±ÇØ ³ª°¡µµ·Ï ÇϰڽÀ´Ï´Ù.
 |
|
ÀÌ »çÀÌÆ®¿¡¼ Á¦°øµÇ´Â ºÎµ¿»ê°æ¸Å ÀÚ·á´Â ¹ý¿ø °æ¸Å°è¿¡¼ ó¸®Çϰí ÀÖ´Â ½ÇÁ¦ ¹°°ÇÀÇ Á¤º¸¿Í ÀÏÄ¡ÇÏÁö ¾ÊÀ» ¼öµµ ÀÖ½À´Ï´Ù.
´ç»ç´Â º» ÀÚ·á¿¡ °üÇÏ¿© Á¤½Ä ÄÁ¼³ÆÃ ÀÇ·Ú°¡ ¾Æ´Ñ ÀÌ»ó ¾î¶°ÇÑ º¸Áõµµ ÇÏÁö ¾ÊÀ¸¸ç ¹ýÀû Ã¥ÀÓÀ» ÁöÁö ¾Ê½À´Ï´Ù.
ÀÔÂûÇϱâ Àü¿¡ ²Ä²ÄÈ÷ ¹ý¿ø¿¡ ºñÄ¡µÈ ¸Å°¢¹°°Ç¸í¼¼¼ ¹× ±âŸ °øºÎ¸¦ ÀçÈ®ÀÎÇϽðí ÀÔÂû¿¡ Âü°¡ÇÏ½Ã±æ ¹Ù¶ø´Ï´Ù. |
|
|
|
|
|