|
|
|
| ¹°°ÇÁ¤º¸ Çٽɺ¸±â |
Ȩ > °æ¸ÅÁ¾ÇÕ°Ë»ö > ¹°°ÇÁ¤º¸ Çٽɺ¸±â |
|
|
| 2024Ÿ°æ41623 °æ¸Å»ç°ÇÀÇ ¿ÀÇǽºÅÚ ¹°°Ç¿¡ °üÇÑ »ó¼¼ Á¤º¸ÀÔ´Ï´Ù. |
|
| ¼ÒÀçÁö |
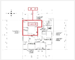
°æ±âµµ ºÎõ½Ã ¼Ò»ç±¸ °æÀηÎ169¹ø±æ 7-5, 14Ãþ1403È£ (¼Û³»µ¿,¿¡ÀÌÄ¡.ºñ¿¤¸²Ä³½½)
±¸)°æ±âµµ ºÎõ½Ã ¼Ò»ç±¸ ¼Û³»µ¿ 572-8
|
|
| »ç°Ç¹øÈ£ |
2024 Ÿ°æ 41623 |
¹°°Ç¹øÈ£ |
1
|
¹°°Ç¿ëµµ |
¿ÀÇǽºÅÚ |
| °¨Á¤Æò°¡¾× |
322,000,000¿ø |
°æ¸Å´ë»ó |
ÅäÁö ¹× °Ç¹°Àϰý ¸Å°¢ |
ÁøÇà»óÅ |
À¯Âû |
| ÃÖÀúÀÔÂû°¡ |
(17%) 54,118,000¿ø
|
°Ç¹°¸éÀû |
62.46§³(18.89Æò) |
ÀÔÂû±âÀÏ |
2026.05.21(¸ñ) 10:00
(ÀÔÂû 34ÀÏÀü)
|
| ÀÔÂûº¸Áõ±Ý |
(10%) 5,411,800¿ø |
ÅäÁö¸éÀû |
10.95§³(3.31Æò)
|
À¯ÂûȽ¼ö |
5ȸ |
| ÀÔÂû¹ý¿ø |
ÀÎõÁö¹æ¹ý¿ø ºÎõÁö¿ø |
°æ¸Å¹æ¹ý |
ºÎµ¿»ê°Á¦°æ¸Å |
¹°°ÇÁ¶È¸¼ö |
¿À´Ã: 3ȸ [´©Àû: 1419ȸ]
|
| ¸»¼Ò±âÁØ | ÃÖ¼±¼øÀ§ ¼³Á¤ : 2023. 1. 20. ¾Ð·ù ¼³Á¤
|
|
|
|
|
|
|
|
|
|
|
°æ¸Å´ë»ó ¸ñ·Ï
|
|
| ±¸ºÐ |
¸ñ·Ï |
ÁÖ¼Ò |
±¸Á¶/¿ëµµ/´ëÁö±Ç |
ºñ°í |
´ëÁö±Ç
|
1 |
¼Û³»µ¿ 572-8 |
322.1ºÐÀÇ 10.95 |
10.95§³ (3.31Æò)
|
°Ç¹°
|
1 |
¼Û³»µ¿ 572-8 |
14Ãþ1403È£ ö±ÙÄÜÅ©¸®Æ®±¸Á¶ |
62.46§³ (18.89Æò)
|
|
|
|
2025-11-06
À¯Âû
|
(100%)
322,000,000¿ø
|
|
|
|
2025-12-11
À¯Âû
|
(70%)
225,400,000¿ø
|
|
|
|
2026-01-27
À¯Âû
|
(49%)
157,780,000¿ø
|
|
|
|
2026-03-12
À¯Âû
|
(34%)
110,446,000¿ø
|
|
|
|
2026-04-14
À¯Âû
|
(24%)
77,312,000¿ø
|
|
|
|
2026-05-21
ÁøÇà
|
(17%)
54,118,000¿ø
|
|
|
|
|
|
°¨Á¤Æò°¡¼ ¿ä¾à |
|
[À§Ä¡/ÁÖÀ§È¯°æ]
º»°ÇÀº °æ±âµµ ºÎõ½Ã ¼Û³»µ¿ ¼ÒÀç, "³²ºÎõ¿ìü±¹" ºÏµ¿Ãø Àαٿ¡ À§Ä¡ÇÏ´Â ¾÷¹«½Ã¼³(¿ÀÇǽº
ÅÚ)·Î¼, ÁÖÀ§´Â ¾ÆÆÄÆ®¹× ´Ù¼¼´ëÁÖÆ½, ±Ù¸°»ýȰ½Ã¼³µîÀÌ È¥ÀçµÇ¾î ÀÖÀ¸¸ç ÁÖÀ§È¯°æÀº º¸Åë
ÀÓ.
[±³Åë»óȲ]
º»°Ç±îÁö Â÷·®Á¢±ÙÀÌ °¡´ÉÇϸç, Àαٿ¡ ³ë¼±¹ö½ºÁ¤·ùÀåÀÌ ¼ÒÀçÇÏ´Â µî Á¦¹Ý ±³Åë»óÇ×Àº
º¸ÅëÀÓ.
[°Ç¹°±¸Á¶]
ö±ÙÄÜÅ©¸®Æ®±¸Á¶ (ö±Ù)ÄÜÅ©¸®Æ®ÁöºØ 15Ãþ °Ç¹°³» Á¦14Ãþ Á¦1403È£·Î,
¿Üº® : ¸ôÅ»À§ ÆäÀÎÆÃ ¹× ÀϺΠ¹ÌÀå½ºÅæ ¸¶°¨ µî
³»º® : º®Áöµµ¹è ¹× ÀϺΠŸÀϸ¶°¨ µî
âȣ : ¼¦½Ã âȣ¸¶°¨ µîÀÓ.
[ÀÌ¿ë»óÅÂ]
¾÷¹«½Ã¼³(¿ÀÇǽºÅÚ)·Î ÀÌ¿ëÁßÀÓ.
[¼³ºñ³»¿ª]
±âº»ÀûÀÎ À§»ý¼³ºñ ¹× ±Þ.¹è¼ö¼³ºñ, ½Â°±â¼³ºñµîÀÌ µÇ¾îÀÖÀ½.
[ÅäÁöÇü»ó/ÀÌ¿ë»óÅÂ]
ÀÎÁ¢Áö ´ëºñ µî°íÆòźÇÑ À广ÇüÀÇ ÅäÁö·Î¼ ¾÷¹«½Ã¼³(¿ÀÇǽºÅÚ)·Î ÀÌ¿ëÁßÀÓ.
7)ÀÎÁ¢ µµ·Î»óŵî
º»°Ç ³²Ãø°ú ºÏÃøÀ¸·Î ¾à35m¿Í ¾à4m ³»¿ÜÀÇ µµ·Î¿¡ Á¢ÇÔ.
[ÅäÁöÀÌ¿ë°èȹ]
ÀϹݻó¾÷Áö¿ª, ¹æÈÁö±¸, ½Ã°¡Áö°æ°üÁö±¸(Áß½É), ´ë·Î1·ù(Æø 35m-40m)(Á¢ÇÕ) °ú¹Ð¾ïÁ¦±Ç¿ª£¼
¼öµµ±ÇÁ¤ºñ°èȹ¹ý£¾ °ÇÃà¹ý Á¦2Á¶Á¦1Ç×Á¦11È£³ª¸ñ¿¡ µû¸¥ µµ·Î(µµ·ÎÀÏºÎÆ÷ÇÔ) ÁßÁ¡°æ°ü°ü¸®±¸
¿ª
[°øºÎ¿ÍÀÇ Â÷ÀÌ]
¾ø À½.
[Âü°í»çÇ×]
ÀÓ´ë°ü°è´Â ¹Ì»óÀÓ. |
|
|
°ÇÃ๰ÇöȲ |
|
|
|
| ¼ÒÀçÁö |
°æ±âµµ ºÎõ½Ã ¼Ò»ç±¸ ¼Û³»µ¿ 572-8¹øÁö |
| ´ëÁö¸éÀû |
322.1§³(97.61Æò) |
¿¬¸éÀû |
3699.51§³(1121.06Æò) |
ÁÖ¿ëµµ |
¾÷¹«½Ã¼³ |
| °ÇÃà¸éÀû |
236.36§³(71.62Æò) |
¿ëÀû·ü»êÁ¤¿¬¸éÀû |
2537.53§³(768.95Æò) |
Âø°øÀÏÀÚ |
2020.04.17 |
| °ÇÆóÀ² |
73.38% |
¿ëÀû·ü |
787.81% |
»ç¿ë½ÂÀÎÀÏÀÚ |
2021.03.24 |
| Áö»óÃþ¼ö |
15Ãþ |
ÁöÇÏÃþ¼ö |
2Ãþ |
±¸Á¶ |
ö±ÙÄÜÅ©¸®Æ®±¸Á¶ |
°ÇÃ๰Ãþº°ÇöȲ [º¸±â]| Ãþº° | ±¸Á¶ | ¿ëµµ | ¸éÀû | | 1Ãþ | ö±ÙÄÜÅ©¸®Æ®±¸Á¶ | °è´Ü½Ç/Ȧ | 22.29§³ (6.75Æò) | | 1Ãþ | ö±ÙÄÜÅ©¸®Æ®±¸Á¶ | Á¦1Á¾±Ù¸°»ýȰ½Ã¼³(¼Ò¸ÅÁ¡) | 57.18§³ (17.33Æò) | | 1Ãþ | ö±ÙÄÜÅ©¸®Æ®±¸Á¶ | Á¶°æ/ÁÖÂ÷°ü¸®½Ç | 11.17§³ (3.38Æò) | | 1Ãþ | ö±ÙÄÜÅ©¸®Æ®±¸Á¶ | °è´Ü½Ç/Ȧ | 22.29§³ (6.75Æò) | | 1Ãþ | ö±ÙÄÜÅ©¸®Æ®±¸Á¶ | Ä«¸®ÇÁÆ® | 26.33§³ (7.98Æò) | | 1Ãþ | ö±ÙÄÜÅ©¸®Æ®±¸Á¶ | Ä«¸®ÇÁÆ® | 26.33§³ (7.98Æò) | | 1Ãþ | ö±ÙÄÜÅ©¸®Æ®±¸Á¶ | Á¶°æ/ÁÖÂ÷°ü¸®½Ç | 11.17§³ (3.38Æò) | | 1Ãþ | ö±ÙÄÜÅ©¸®Æ®±¸Á¶ | Á¦1Á¾±Ù¸°»ýȰ½Ã¼³(¼Ò¸ÅÁ¡) | 57.18§³ (17.33Æò) | | 2Ãþ | ö±ÙÄÜÅ©¸®Æ®±¸Á¶ | ÁÖÂ÷Àå | 124.68§³ (37.78Æò) | | 2Ãþ | ö±ÙÄÜÅ©¸®Æ®±¸Á¶ | °è´Ü½Ç/Ȧ | 22.29§³ (6.75Æò) | | 2Ãþ | ö±ÙÄÜÅ©¸®Æ®±¸Á¶ | Áֹΰøµ¿½Ã¼³ | 11.61§³ (3.52Æò) | | 2Ãþ | ö±ÙÄÜÅ©¸®Æ®±¸Á¶ | ÁÖÂ÷Àå | 124.68§³ (37.78Æò) | | 2Ãþ | ö±ÙÄÜÅ©¸®Æ®±¸Á¶ | Á¦1Á¾±Ù¸°»ýȰ½Ã¼³(¼Ò¸ÅÁ¡) | 59.76§³ (18.11Æò) | | 2Ãþ | ö±ÙÄÜÅ©¸®Æ®±¸Á¶ | Áֹΰøµ¿½Ã¼³ | 11.61§³ (3.52Æò) | | 2Ãþ | ö±ÙÄÜÅ©¸®Æ®±¸Á¶ | Á¦1Á¾±Ù¸°»ýȰ½Ã¼³(¼Ò¸ÅÁ¡) | 59.76§³ (18.11Æò) | | 2Ãþ | ö±ÙÄÜÅ©¸®Æ®±¸Á¶ | °è´Ü½Ç/Ȧ | 22.29§³ (6.75Æò) | | 3Ãþ | ö±ÙÄÜÅ©¸®Æ®±¸Á¶ | °è´Ü½Ç/Ȧ | 22.29§³ (6.75Æò) | | 3Ãþ | ö±ÙÄÜÅ©¸®Æ®±¸Á¶ | ÁÖÂ÷Àå | 196.05§³ (59.41Æò) | | 3Ãþ | ö±ÙÄÜÅ©¸®Æ®±¸Á¶ | ÁÖÂ÷Àå | 196.05§³ (59.41Æò) | | 3Ãþ | ö±ÙÄÜÅ©¸®Æ®±¸Á¶ | °è´Ü½Ç/Ȧ | 22.29§³ (6.75Æò) | | 4Ãþ | ö±ÙÄÜÅ©¸®Æ®±¸Á¶ | ÁÖÂ÷Àå | 196.05§³ (59.41Æò) | | 4Ãþ | ö±ÙÄÜÅ©¸®Æ®±¸Á¶ | °è´Ü½Ç/Ȧ | 22.29§³ (6.75Æò) | | 4Ãþ | ö±ÙÄÜÅ©¸®Æ®±¸Á¶ | °è´Ü½Ç/Ȧ | 22.29§³ (6.75Æò) | | 4Ãþ | ö±ÙÄÜÅ©¸®Æ®±¸Á¶ | ÁÖÂ÷Àå | 196.05§³ (59.41Æò) | | 5Ãþ | ö±ÙÄÜÅ©¸®Æ®±¸Á¶ | °è´Ü½Ç/Ȧ | 22.29§³ (6.75Æò) | | 5Ãþ | ö±ÙÄÜÅ©¸®Æ®±¸Á¶ | °è´Ü½Ç/Ȧ | 22.29§³ (6.75Æò) | | 5Ãþ | ö±ÙÄÜÅ©¸®Æ®±¸Á¶ | ÁÖÂ÷Àå | 196.05§³ (59.41Æò) | | 5Ãþ | ö±ÙÄÜÅ©¸®Æ®±¸Á¶ | ÁÖÂ÷Àå | 196.05§³ (59.41Æò) | | 6Ãþ | ö±ÙÄÜÅ©¸®Æ®±¸Á¶ | ¾÷¹«½Ã¼³(¿ÀÇǽºÅÚ) | 231.16§³ (70.05Æò) | | 6Ãþ | ö±ÙÄÜÅ©¸®Æ®±¸Á¶ | ¾÷¹«½Ã¼³(¿ÀÇǽºÅÚ) | 231.16§³ (70.05Æò) | | 7Ãþ | ö±ÙÄÜÅ©¸®Æ®±¸Á¶ | ¾÷¹«½Ã¼³(¿ÀÇǽºÅÚ) | 231.16§³ (70.05Æò) | | 7Ãþ | ö±ÙÄÜÅ©¸®Æ®±¸Á¶ | ¾÷¹«½Ã¼³(¿ÀÇǽºÅÚ) | 231.16§³ (70.05Æò) | | 8Ãþ | ö±ÙÄÜÅ©¸®Æ®±¸Á¶ | ¾÷¹«½Ã¼³(¿ÀÇǽºÅÚ) | 231.16§³ (70.05Æò) | | 8Ãþ | ö±ÙÄÜÅ©¸®Æ®±¸Á¶ | ¾÷¹«½Ã¼³(¿ÀÇǽºÅÚ) | 231.16§³ (70.05Æò) | | 9Ãþ | ö±ÙÄÜÅ©¸®Æ®±¸Á¶ | ¾÷¹«½Ã¼³(¿ÀÇǽºÅÚ) | 231.16§³ (70.05Æò) | | 9Ãþ | ö±ÙÄÜÅ©¸®Æ®±¸Á¶ | ¾÷¹«½Ã¼³(¿ÀÇǽºÅÚ) | 231.16§³ (70.05Æò) | | 10Ãþ | ö±ÙÄÜÅ©¸®Æ®±¸Á¶ | ¾÷¹«½Ã¼³(¿ÀÇǽºÅÚ) | 231.16§³ (70.05Æò) | | 10Ãþ | ö±ÙÄÜÅ©¸®Æ®±¸Á¶ | ¾÷¹«½Ã¼³(¿ÀÇǽºÅÚ) | 231.16§³ (70.05Æò) | | 11Ãþ | ö±ÙÄÜÅ©¸®Æ®±¸Á¶ | ¾÷¹«½Ã¼³(¿ÀÇǽºÅÚ) | 231.16§³ (70.05Æò) | | 11Ãþ | ö±ÙÄÜÅ©¸®Æ®±¸Á¶ | ¾÷¹«½Ã¼³(¿ÀÇǽºÅÚ) | 231.16§³ (70.05Æò) | | 12Ãþ | ö±ÙÄÜÅ©¸®Æ®±¸Á¶ | ¾÷¹«½Ã¼³(¿ÀÇǽºÅÚ) | 231.16§³ (70.05Æò) | | 12Ãþ | ö±ÙÄÜÅ©¸®Æ®±¸Á¶ | ¾÷¹«½Ã¼³(¿ÀÇǽºÅÚ) | 231.16§³ (70.05Æò) | | 13Ãþ | ö±ÙÄÜÅ©¸®Æ®±¸Á¶ | ¾÷¹«½Ã¼³(¿ÀÇǽºÅÚ) | 231.16§³ (70.05Æò) | | 13Ãþ | ö±ÙÄÜÅ©¸®Æ®±¸Á¶ | ¾÷¹«½Ã¼³(¿ÀÇǽºÅÚ) | 231.16§³ (70.05Æò) | | 14Ãþ | ö±ÙÄÜÅ©¸®Æ®±¸Á¶ | ¾÷¹«½Ã¼³(¿ÀÇǽºÅÚ) | 231.16§³ (70.05Æò) | | 14Ãþ | ö±ÙÄÜÅ©¸®Æ®±¸Á¶ | ¾÷¹«½Ã¼³(¿ÀÇǽºÅÚ) | 231.16§³ (70.05Æò) | | 15Ãþ | ö±ÙÄÜÅ©¸®Æ®±¸Á¶ | ¾÷¹«½Ã¼³(¿ÀÇǽºÅÚ) | 205.92§³ (62.4Æò) | | 15Ãþ | ö±ÙÄÜÅ©¸®Æ®±¸Á¶ | ¾÷¹«½Ã¼³(¿ÀÇǽºÅÚ) | 205.92§³ (62.4Æò) | | ¿Áž1Ãþ | ö±ÙÄÜÅ©¸®Æ®±¸Á¶ | ¿ÁžÃþ(¿¬¸éÀû Á¦¿Ü) | 20.05§³ (6.08Æò) | | ¿Áž1Ãþ | ö±ÙÄÜÅ©¸®Æ®±¸Á¶ | ¿ÁžÃþ(¿¬¸éÀû Á¦¿Ü) | 20.05§³ (6.08Æò) | | Áö1Ãþ | ö±ÙÄÜÅ©¸®Æ®±¸Á¶ | °è´Ü½Ç/Ȧ/Åë½Å½Ç/°¨½ÃÁ¦¾î¹Ý½Ç/ÈÓ·ë | 212.92§³ (64.52Æò) | | Áö1Ãþ | ö±ÙÄÜÅ©¸®Æ®±¸Á¶ | °è´Ü½Ç/Ȧ/Åë½Å½Ç/°¨½ÃÁ¦¾î¹Ý½Ç/ÈÓ·ë | 212.92§³ (64.52Æò) | | Áö2Ãþ | ö±ÙÄÜÅ©¸®Æ®±¸Á¶ | °è´Ü½Ç/Ȧ/ÆßÇÁ½Ç/À¯¾Ð½Ç/¹ßÀü±â½Ç/ÁÖ | 209.9§³ (63.61Æò) | | Áö2Ãþ | ö±ÙÄÜÅ©¸®Æ®±¸Á¶ | °è´Ü½Ç/Ȧ/ÆßÇÁ½Ç/À¯¾Ð½Ç/¹ßÀü±â½Ç/ÁÖ | 209.9§³ (63.61Æò) |
|
|
|
|
|
 |
ÀÓÂ÷³»¿ª |
[¹è´ç¿ä±¸Á¾±âÀÏ : 2024/09/11] |
|
|
| ÀÓÂ÷ÀÎ |
Á¡À¯°ü°è |
ÀüÀÔÀÏÀÚ |
È®Á¤ÀÏÀÚ |
¹è´ç¿ä±¸ÀÏ |
º¸Áõ±Ý/Â÷ÀÓ |
´ëÇ׿ä°Ç |
ºñ°í |
| ˱OO |
|
2022.06.01 |
|
|
|
O |
|
| ÀÌOO |
1403È£Àüü |
2021. 4. 29. |
2021. 4. 5. |
|
335,000,000
|
O |
2021.4.30.~ |
| ¸Å°¢¹°°Ç¸í¼¼ ºñ°í |
À±¼øÈñ:À̱ÝÂùÀÇ ¹è¿ìÀÚÀ̸ç, »ó°¡ÀÓ´ëÂ÷ÇöȲ¼¿¡ »ç¾÷ÀÚµî·Ï½ÅûÀÏÀº
335,000,000¿øÀ¸·Î ±âÀçµÇ¾î ÀÖÀ½.
À̱ÝÂù:°æ¸Å½Åû±ÇÀÚÀ̸ç, ¹è´ç¿ä±¸ÀÏÀÚ´Â °æ¸Å½ÅûÀÏÀÓ. |
|
|
|
 |
¹ý¿ø ¹°°ÇÀÚ·á ¿ä¾à |
|
|
|
|
| ¼Ò¸êµÇÁö ¾Ê´Â µî±âºÎ±Ç¸® |
À»±¸ 3¹ø ÁÖÅÃÀÓÂ÷±Çµî±â´Â Àü¾× º¯Á¦µÇÁö ¾Æ´ÏÇÏ¸é ¸»¼ÒµÇÁö ¾Æ´ÏÇÔ |
| ¼³Á¤µÈ °ÍÀ¸·Î º¸´Â Áö»ó±Ç |
|
| ¹ý¿øÀÚ·á Æ¯ÀÌ»çÇ× |
|
| ¿©ÀÇÁÖ°æ¸Å Á¶¾ð ÇѸ¶µð |
ÀÌ ºÎµ¿»êÀÇ ÀÔÂû¹ý¿øÀº ÀÎõÁö¹æ¹ý¿ø ºÎõÁö¿øÀÔ´Ï´Ù.
ÀÔÂûÀÏÀº 2026-05-21ÀÔ´Ï´Ù.
ÀÔÂû½Ã°£Àº 10:00~11:10ÀÔ´Ï´Ù. ÀÌ ¹ý¿ø¿¡´Â ½ÅÇÑÀºÇàÀÌ ÀÔÁ¡Çϰí ÀÖ½À´Ï´Ù.
|
¼±¼øÀ§ ÀÓÂ÷±Çµî±â°¡ µÇ¾î ÀÖ½À´Ï´Ù ´ëÇ×·ÂÀÌ ÀÖ´Â ¼±¼øÀ§ ÀÓÂ÷±Çµî±â ±Ç¸®ÀÚ°¡ ¹è´çÀ» Àü¾× ¹ÞÁö ¸øÇÒ °æ¿ì ³«ÂûÀÚ°¡ ÀÜ¿© º¸Áõ±ÝÀ» ÀμöÇØ¾ßÇÏ´Â °æ¿ìµµ ÀÖ½À´Ï´Ù. |
|
|
| Åë°è±â°£ |
³«Âû¹°°Ç¼ö |
Æò±Õ°¨Á¤°¡ |
Æò±Õ³«Âû°¡ |
³«Âû°¡À² |
À¯ÂûȽ¼ö |
| 3°³¿ù |
2°Ç |
191,500,000¿ø |
166,975,000¿ø |
91% |
1ȸ |
| 6°³¿ù |
11°Ç |
235,272,727¿ø |
172,687,255¿ø |
74% |
1.8ȸ |
| 12°³¿ù |
23°Ç |
257,217,391¿ø |
195,568,863¿ø |
76% |
2ȸ |
|
|
|
|
|
|
|
 |
ÀαÙÁö¿ª ÃÖ±Ù ³«Âû»ç·Ê
|
|
|
 |
|
|
[¾È³»] Ȥ½Ã ÀÌ¿ëÀÌ ºÒÆíÇϽðųª »èÁ¦ÇÒ ³»¿ëÀÌ ÀÖ´Ù¸é ÃÖ´ëÇÑ ³ë·ÂÇØ¼ °³¼±ÇØ ³ª°¡µµ·Ï ÇϰڽÀ´Ï´Ù.
 |
|
ÀÌ »çÀÌÆ®¿¡¼ Á¦°øµÇ´Â ºÎµ¿»ê°æ¸Å ÀÚ·á´Â ¹ý¿ø °æ¸Å°è¿¡¼ ó¸®Çϰí ÀÖ´Â ½ÇÁ¦ ¹°°ÇÀÇ Á¤º¸¿Í ÀÏÄ¡ÇÏÁö ¾ÊÀ» ¼öµµ ÀÖ½À´Ï´Ù.
´ç»ç´Â º» ÀÚ·á¿¡ °üÇÏ¿© Á¤½Ä ÄÁ¼³ÆÃ ÀÇ·Ú°¡ ¾Æ´Ñ ÀÌ»ó ¾î¶°ÇÑ º¸Áõµµ ÇÏÁö ¾ÊÀ¸¸ç ¹ýÀû Ã¥ÀÓÀ» ÁöÁö ¾Ê½À´Ï´Ù.
ÀÔÂûÇϱâ Àü¿¡ ²Ä²ÄÈ÷ ¹ý¿ø¿¡ ºñÄ¡µÈ ¸Å°¢¹°°Ç¸í¼¼¼ ¹× ±âŸ °øºÎ¸¦ ÀçÈ®ÀÎÇϽðí ÀÔÂû¿¡ Âü°¡ÇÏ½Ã±æ ¹Ù¶ø´Ï´Ù. |
|
|
|
|
|