|
|
|
| ¹°°ÇÁ¤º¸ Çٽɺ¸±â |
Ȩ > °æ¸ÅÁ¾ÇÕ°Ë»ö > ¹°°ÇÁ¤º¸ Çٽɺ¸±â |
|
|
| 2025Ÿ°æ9625 °æ¸Å»ç°ÇÀÇ ¿ÀÇǽºÅÚ ¹°°Ç¿¡ °üÇÑ »ó¼¼ Á¤º¸ÀÔ´Ï´Ù. |
|
|
Á¶È¸ ¿À´Ã: 1, Àüü: 42 |
|
 |
|
|
| ¼ÒÀçÁö |
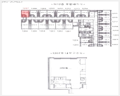
¼¿ïƯº°½Ã °¼±¸ ¸¶°îµ¿ 758-3 ¸¶°îÇ츮¿ò2Â÷ Á¦12Ãþ Á¦1207È£
|
|
| »ç°Ç¹øÈ£ |
2025 Ÿ°æ 9625 |
¹°°Ç¹øÈ£ |
1
|
¹°°Ç¿ëµµ |
¿ÀÇǽºÅÚ |
| °¨Á¤Æò°¡¾× |
171,000,000¿ø |
°æ¸Å´ë»ó |
ÅäÁö ¹× °Ç¹°Àϰý ¸Å°¢ |
ÁøÇà»óÅ |
½Å°Ç |
| ÃÖÀúÀÔÂû°¡ |
(100%) 171,000,000¿ø
|
°Ç¹°¸éÀû |
22.51§³(6.81Æò) |
ÀÔÂû±âÀÏ |
2025.11.11(È) 10:00
(ÀÔÂû 5ÀÏÀü)
|
| ÀÔÂûº¸Áõ±Ý |
(10%) 17,100,000¿ø |
ÅäÁö¸éÀû |
5.14§³(1.55Æò)
|
À¯ÂûȽ¼ö |
0ȸ |
| ÀÔÂû¹ý¿ø |
¼¿ï³²ºÎÁö¹æ¹ý¿ø |
°æ¸Å¹æ¹ý |
ºÎµ¿»ê°Á¦°æ¸Å |
¹°°ÇÁ¶È¸¼ö |
¿À´Ã: 1ȸ [´©Àû: 42ȸ]
|
| ¸»¼Ò±âÁØ | ÃÖ¼±¼øÀ§ ¼³Á¤ : 2025. 4. 16. °æ¸Å°³½Ã°á ¼³Á¤ Á¤
|
|
|
|
|
|
|
|
|
|
|
°æ¸Å´ë»ó ¸ñ·Ï
|
|
| ±¸ºÐ |
¸ñ·Ï |
ÁÖ¼Ò |
±¸Á¶/¿ëµµ/´ëÁö±Ç |
ºñ°í |
´ëÁö±Ç
|
1 |
¸¶°îµ¿ 758-3 |
1755.9ºÐÀÇ 5.1368 |
5.1368§³ (1.55Æò)
|
°Ç¹°
|
1 |
¸¶°îµ¿ 758-3 |
Á¦12Ãþ Á¦1207È£ ö±ÙÄÜÅ©¸®Æ®±¸Á¶ |
22.51§³ (6.81Æò)
|
|
|
|
2025-11-11
ÁøÇà
|
(100%)
171,000,000¿ø
|
|
|
|
|
|
°¨Á¤Æò°¡¼ ¿ä¾à |
|
[À§Ä¡/ÁÖÀ§È¯°æ]
º»°ÇÀº ¼¿ïƯº°½Ã °¼±¸ ¸¶°îµ¿ ¼ÒÀç ÁöÇÏö '¸¶°î³ª·ç¿ª' ºÏ¼Ãø Àαٿ¡ À§Ä¡Çϰí
ÀÖÀ¸¸ç, ºÎ±ÙÀº »ó¾÷¿ë°Ç¹°, ÁÖ»óº¹Çհǹ°, ¿ÀÇǽºÅÚ, ¾÷¹«¿ë°Ç¹° µîÀÌ È¥ÀçÇÏ´Â Áö¿ª
À¸·Î Á¦¹Ý ÁÖÀ§È¯°æ ¾çÈ£ÇÔ.
[±³Åë»óȲ]
º»°ÇÀ¸·Î Â÷·®ÃâÀÔ °¡´ÉÇϰí Àα٠µµ·Î¿¡ ³ë¼±¹ö½ºÁ¤·ùÀå ¹× ÁöÇÏö 9È£¼± ¸¶°î³ª·ç¿ªÀÌ
¼ÒÀçÇÏ´Â µî Á¦¹Ý ±³Åë¿©°Ç ¾çÈ£ÇÔ.
[°Ç¹°±¸Á¶]
ö±ÙÄÜÅ©¸®Æ®±¸Á¶ Æò½½¶óºêÁöºØ 14Ãþ °ÇÀ¸·Î
¿Üº® : ¼®ÀçÄ¡Àå ¸¶°¨ µî
³»º® : º®Áö ¹× ŸÀϸ¶°¨ µî
âȣ : »õ½Ãâȣ
[ÀÌ¿ë»óÅÂ]
¿ÀÇǽºÅÚ·Î ÀÌ¿ëÁßÀÓ.
[¼³ºñ³»¿ª]
±Þ¹è¼ö¼³ºñ, À§»ý¼³ºñ, ¼Ò¹æ¼³ºñ, Áö¿ª³¹æ¼³ºñ, ½Â°±â¼³ºñ, ÁÖÂ÷¼³ºñ µî
[ÅäÁöÇü»ó/ÀÌ¿ë»óÅÂ]
°¡ÀåÇüÀÇ ÆòÁö·Î ¾÷¹«½Ã¼³(¿ÀÇǽºÅÚ) °ÇºÎÁö·Î ÀÌ¿ëÁßÀÓ.
7)ÀÎÁ¢ µµ·Î»óŵî
º»°Ç ºÏÃø ¹× µ¿ÃøÀ¸·Î ³ëÆø ¾à 12mÀÇ µµ·Î¿¡ °¢°¢ Á¢Çϰí ÀÖÀ½.
[ÅäÁöÀÌ¿ë°èȹ]
µµ½ÃÁö¿ª, ÀϹݻó¾÷Áö¿ª, Áß¿ä½Ã¼³¹°º¸È£Áö±¸(°øÇ×), Áö±¸´ÜÀ§°èȹ±¸¿ª(¸¶°îµµ½Ã°³¹ß»ç¾÷),
Áß·Î3·ù(Æø 12m~15m)(Á¢ÇÕ) °¡Ãà»çÀ°Á¦Çѱ¸¿ª(Áö¿ª°æÁ¦°ú È®ÀÎ ¿ä¸Á)£¼°¡ÃàºÐ´¢ÀÇ °ü¸® ¹×
À̿뿡 °üÇÑ ¹ý·ü£¾, ¼öÆòÇ¥¸é±¸¿ª(¼öÆòÇ¥¸é)£¼°øÇ׽ü³¹ý£¾,
´ë°ø¹æ¾îÇùÁ¶±¸¿ª(À§Å¹°íµµ:77-257m)£¼±º»ç±âÁö ¹× ±º»ç½Ã¼³ º¸È£¹ý£¾,
µµ½Ã°³¹ß±¸¿ª£¼µµ½Ã°³¹ß¹ý£¾, °ú¹Ð¾ïÁ¦±Ç¿ª£¼¼öµµ±ÇÁ¤ºñ°èȹ¹ý£¾
ÁßÁ¡°æ°ü°ü¸®±¸¿ª(ÇѰº¯/¼¿ïƯº°½Ã°ø°í Á¦2016-2272È£(2016.11.24))
[°øºÎ¿ÍÀÇ Â÷ÀÌ]
¾ø À½.
[Âü°í»çÇ×]
¹Ì»óÀÓ.
º»°ÇÀÇ ³»ºÎ±¸Á¶ ¹× ÀÌ¿ë»óȲÀº Æó¹®ºÎÀç·Î ÀÎÇØ °ü·Ã°øºÎ»ó µîÀçµÈ ÇöȲµµ¸é µîÀ» ÅëÇØ
ÆÄ¾ÇÇÑ ¹Ù ÂüÀÛ¹Ù¶÷. |
|
|
°ÇÃ๰ÇöȲ |
|
|
|
| ¼ÒÀçÁö |
¼¿ïƯº°½Ã °¼±¸ ¸¶°îµ¿ 758-3¹øÁö |
| ´ëÁö¸éÀû |
1755.9§³(532.09Æò) |
¿¬¸éÀû |
17912.01§³(5427.88Æò) |
ÁÖ¿ëµµ |
¾÷¹«½Ã¼³ |
| °ÇÃà¸éÀû |
1014.91§³(307.55Æò) |
¿ëÀû·ü»êÁ¤¿¬¸éÀû |
10535.47§³(3192.57Æò) |
Âø°øÀÏÀÚ |
2014.03.26 |
| °ÇÆóÀ² |
57.8% |
¿ëÀû·ü |
600% |
»ç¿ë½ÂÀÎÀÏÀÚ |
2016.04.26 |
| Áö»óÃþ¼ö |
14Ãþ |
ÁöÇÏÃþ¼ö |
5Ãþ |
±¸Á¶ |
ö±ÙÄÜÅ©¸®Æ®±¸Á¶ |
°ÇÃ๰Ãþº°ÇöȲ [º¸±â]| Ãþº° | ±¸Á¶ | ¿ëµµ | ¸éÀû | | 1Ãþ | ö±ÙÄÜÅ©¸®Æ®±¸Á¶ | ±Ù¸°»ýȰ½Ã¼³ | 679.39§³ (205.88Æò) | | 2Ãþ | ö±ÙÄÜÅ©¸®Æ®±¸Á¶ | ¾÷¹«½Ã¼³(¿ÀÇǽºÅÚ) | 740.16§³ (224.29Æò) | | 3Ãþ | ö±ÙÄÜÅ©¸®Æ®±¸Á¶ | ¾÷¹«½Ã¼³(¿ÀÇǽºÅÚ) | 740.16§³ (224.29Æò) | | 4Ãþ | ö±ÙÄÜÅ©¸®Æ®±¸Á¶ | ¾÷¹«½Ã¼³(¿ÀÇǽºÅÚ) | 740.16§³ (224.29Æò) | | 5Ãþ | ö±ÙÄÜÅ©¸®Æ®±¸Á¶ | ¾÷¹«½Ã¼³(¿ÀÇǽºÅÚ) | 740.16§³ (224.29Æò) | | 6Ãþ | ö±ÙÄÜÅ©¸®Æ®±¸Á¶ | ¾÷¹«½Ã¼³(¿ÀÇǽºÅÚ) | 740.16§³ (224.29Æò) | | 7Ãþ | ö±ÙÄÜÅ©¸®Æ®±¸Á¶ | ¾÷¹«½Ã¼³(¿ÀÇǽºÅÚ) | 740.16§³ (224.29Æò) | | 8Ãþ | ö±ÙÄÜÅ©¸®Æ®±¸Á¶ | ¾÷¹«½Ã¼³(¿ÀÇǽºÅÚ) | 740.16§³ (224.29Æò) | | 9Ãþ | ö±ÙÄÜÅ©¸®Æ®±¸Á¶ | ¾÷¹«½Ã¼³(¿ÀÇǽºÅÚ) | 740.16§³ (224.29Æò) | | 10Ãþ | ö±ÙÄÜÅ©¸®Æ®±¸Á¶ | ¾÷¹«½Ã¼³(¿ÀÇǽºÅÚ) | 786.96§³ (238.47Æò) | | 11Ãþ | ö±ÙÄÜÅ©¸®Æ®±¸Á¶ | ¾÷¹«½Ã¼³(¿ÀÇǽºÅÚ) | 786.96§³ (238.47Æò) | | 12Ãþ | ö±ÙÄÜÅ©¸®Æ®±¸Á¶ | ¾÷¹«½Ã¼³(¿ÀÇǽºÅÚ) | 786.96§³ (238.47Æò) | | 13Ãþ | ö±ÙÄÜÅ©¸®Æ®±¸Á¶ | ¾÷¹«½Ã¼³(¿ÀÇǽºÅÚ) | 786.96§³ (238.47Æò) | | 14Ãþ | ö±ÙÄÜÅ©¸®Æ®±¸Á¶ | ¾÷¹«½Ã¼³(¿ÀÇǽºÅÚ) | 786.96§³ (238.47Æò) | | Áö1Ãþ | ö±ÙÄÜÅ©¸®Æ®±¸Á¶ | ÁÖÂ÷Àå | 1479.65§³ (448.38Æò) | | Áö2Ãþ | ö±ÙÄÜÅ©¸®Æ®±¸Á¶ | ÁÖÂ÷Àå | 1479.65§³ (448.38Æò) | | Áö3Ãþ | ö±ÙÄÜÅ©¸®Æ®±¸Á¶ | ÁÖÂ÷Àå | 1479.65§³ (448.38Æò) | | Áö4Ãþ | ö±ÙÄÜÅ©¸®Æ®±¸Á¶ | ÁÖÂ÷Àå | 1465.58§³ (444.12Æò) | | Áö5Ãþ | ö±ÙÄÜÅ©¸®Æ®±¸Á¶ | ±â°è,Àü±â½Ç ¹× ÁÖÂ÷Àå | 1472.01§³ (446.06Æò) |
|
|
|
|
|
 |
ÀÓÂ÷³»¿ª |
[¹è´ç¿ä±¸Á¾±âÀÏ : 2025/07/16] |
|
|
| ÀÓÂ÷ÀÎ |
Á¡À¯°ü°è |
ÀüÀÔÀÏÀÚ |
È®Á¤ÀÏÀÚ |
¹è´ç¿ä±¸ÀÏ |
º¸Áõ±Ý/Â÷ÀÓ |
´ëÇ׿ä°Ç |
ºñ°í |
| ±èOO |
ÀüºÎ |
2020.03.02 |
2020.01.23 |
|
173,000,000
|
O |
|
| ÁÖOOOOOOO |
ÀüºÎ |
2020.03.02 |
2020.01.23 |
2025.6.5. |
173,000,000
|
O |
|
| ¸Å°¢¹°°Ç¸í¼¼ ºñ°í |
|
|
|
|
 |
¹ý¿ø ¹°°ÇÀÚ·á ¿ä¾à |
|
|
|
|
| ¼Ò¸êµÇÁö ¾Ê´Â µî±âºÎ±Ç¸® |
|
| ¼³Á¤µÈ °ÍÀ¸·Î º¸´Â Áö»ó±Ç |
|
| ¹ý¿øÀÚ·á Æ¯ÀÌ»çÇ× |
[ÁÖ¿ä ¹®°Ç Á¢¼ö ³»¿ª]
|
[¸Å°¢¹°°Ç¸í¼¼¼ ºñ°í¶õ]
Ưº°¸Å°¢Á¶°Ç : ä±ÇÀÚ´Â ¸Å¼öÀο¡ ´ëÇØ ¹è´ç¹ÞÁö ¸øÇÏ´Â Àܾ׿¡ ´ëÇÑ ÀÓ´ëÂ÷º¸Áõ±Ý ¹Ýȯû±¸±ÇÀ» Æ÷±âÇϰí, ÀÓÂ÷±Çµî±â¸¦ ¸»
¼ÒÇÏ´Â °ÍÀ» Á¶°ÇÀ¸·Î ¸Å°¢ |
|
| ¿©ÀÇÁÖ°æ¸Å Á¶¾ð ÇѸ¶µð |
ÀÌ ºÎµ¿»êÀÇ ÀÔÂû¹ý¿øÀº ¼¿ï³²ºÎÁö¹æ¹ý¿øÀÔ´Ï´Ù.
ÀÔÂûÀÏÀº 2025-11-11ÀÔ´Ï´Ù.
ÀÔÂû½Ã°£Àº 11:00~11:20ÀÔ´Ï´Ù. ÀÌ ¹ý¿ø¿¡´Â ½ÅÇÑÀºÇàÀÌ ÀÔÁ¡Çϰí ÀÖ½À´Ï´Ù.
|
¼±¼øÀ§ ÀÓÂ÷±Çµî±â°¡ µÇ¾î ÀÖ½À´Ï´Ù ´ëÇ×·ÂÀÌ ÀÖ´Â ¼±¼øÀ§ ÀÓÂ÷±Çµî±â ±Ç¸®ÀÚ°¡ ¹è´çÀ» Àü¾× ¹ÞÁö ¸øÇÒ °æ¿ì ³«ÂûÀÚ°¡ ÀÜ¿© º¸Áõ±ÝÀ» ÀμöÇØ¾ßÇÏ´Â °æ¿ìµµ ÀÖ½À´Ï´Ù. |
|
|
| Åë°è±â°£ |
³«Âû¹°°Ç¼ö |
Æò±Õ°¨Á¤°¡ |
Æò±Õ³«Âû°¡ |
³«Âû°¡À² |
À¯ÂûȽ¼ö |
| 3°³¿ù |
156°Ç |
266,288,462¿ø |
222,295,486¿ø |
83% |
1.6ȸ |
| 6°³¿ù |
256°Ç |
265,929,688¿ø |
224,320,386¿ø |
84% |
1.5ȸ |
| 12°³¿ù |
373°Ç |
266,568,365¿ø |
222,784,598¿ø |
84% |
1.7ȸ |
|
|
|
|
|
|
|
 |
ÀαÙÁö¿ª ÃÖ±Ù ³«Âû»ç·Ê
|
|
|
 |
|
|
[¾È³»] Ȥ½Ã ÀÌ¿ëÀÌ ºÒÆíÇϽðųª »èÁ¦ÇÒ ³»¿ëÀÌ ÀÖ´Ù¸é ÃÖ´ëÇÑ ³ë·ÂÇØ¼ °³¼±ÇØ ³ª°¡µµ·Ï ÇϰڽÀ´Ï´Ù.
 |
|
ÀÌ »çÀÌÆ®¿¡¼ Á¦°øµÇ´Â ºÎµ¿»ê°æ¸Å ÀÚ·á´Â ¹ý¿ø °æ¸Å°è¿¡¼ ó¸®Çϰí ÀÖ´Â ½ÇÁ¦ ¹°°ÇÀÇ Á¤º¸¿Í ÀÏÄ¡ÇÏÁö ¾ÊÀ» ¼öµµ ÀÖ½À´Ï´Ù.
´ç»ç´Â º» ÀÚ·á¿¡ °üÇÏ¿© Á¤½Ä ÄÁ¼³ÆÃ ÀÇ·Ú°¡ ¾Æ´Ñ ÀÌ»ó ¾î¶°ÇÑ º¸Áõµµ ÇÏÁö ¾ÊÀ¸¸ç ¹ýÀû Ã¥ÀÓÀ» ÁöÁö ¾Ê½À´Ï´Ù.
ÀÔÂûÇϱâ Àü¿¡ ²Ä²ÄÈ÷ ¹ý¿ø¿¡ ºñÄ¡µÈ ¸Å°¢¹°°Ç¸í¼¼¼ ¹× ±âŸ °øºÎ¸¦ ÀçÈ®ÀÎÇϽðí ÀÔÂû¿¡ Âü°¡ÇÏ½Ã±æ ¹Ù¶ø´Ï´Ù. |
|
|
|
|
|