|
|
|
| ¹°°ÇÁ¤º¸ Çٽɺ¸±â |
Ȩ > °æ¸ÅÁ¾ÇÕ°Ë»ö > ¹°°ÇÁ¤º¸ Çٽɺ¸±â |
|
|
| 2025Ÿ°æ102944 °æ¸Å»ç°ÇÀÇ ´Ù¼¼´ë(ºô¶ó) ¹°°Ç¿¡ °üÇÑ »ó¼¼ Á¤º¸ÀÔ´Ï´Ù. |
|
| ¼ÒÀçÁö |
¼¿ïƯº°½Ã °ü¾Ç±¸ ½Å¸²µ¿ 1437-19 žç¿ÀÇǽºÅÚ 8Ãþ802È£
|
|
| »ç°Ç¹øÈ£ |
2025 Ÿ°æ 102944 |
¹°°Ç¹øÈ£ |
1
|
¹°°Ç¿ëµµ |
´Ù¼¼´ë(ºô¶ó) |
| °¨Á¤Æò°¡¾× |
193,000,000¿ø |
°æ¸Å´ë»ó |
ÅäÁö ¹× °Ç¹°Àϰý ¸Å°¢ |
ÁøÇà»óÅ |
½Å°Ç |
| ÃÖÀúÀÔÂû°¡ |
(100%) 193,000,000¿ø
|
°Ç¹°¸éÀû |
10.59§³(3.20Æò) |
ÀÔÂû±âÀÏ |
2025.11.18(È) 10:00
(ÀÔÂû 1ÀÏÀü)
|
| ÀÔÂûº¸Áõ±Ý |
(10%) 19,300,000¿ø |
ÅäÁö¸éÀû |
5.33§³(1.61Æò)
|
À¯ÂûȽ¼ö |
0ȸ |
| ÀÔÂû¹ý¿ø |
¼¿ïÁß¾ÓÁö¹æ¹ý¿ø |
°æ¸Å¹æ¹ý |
ºÎµ¿»ê°Á¦°æ¸Å |
¹°°ÇÁ¶È¸¼ö |
¿À´Ã: ȸ [´©Àû: ȸ]
|
| ¸»¼Ò±âÁØ | ÃÖ¼±¼øÀ§ ¼³Á¤ : 2023.01.27.¾Ð·ù ¼³Á¤
|
|
|
|
|
|
|
|
|
|
|
°æ¸Å´ë»ó ¸ñ·Ï
|
|
| ±¸ºÐ |
¸ñ·Ï |
ÁÖ¼Ò |
±¸Á¶/¿ëµµ/´ëÁö±Ç |
ºñ°í |
´ëÁö±Ç
|
1 |
½Å¸²µ¿ 1437-19 |
379.8ºÐÀÇ 5.333 |
5.333§³ (1.61Æò)
|
°Ç¹°
|
1 |
½Å¸²µ¿ 1437-19 |
8Ãþ802È£ ö±ÙÄÜÅ©¸®Æ®±¸Á¶ |
10.59§³ (3.20Æò)
|
|
|
|
2025-11-18
ÁøÇà
|
(100%)
193,000,000¿ø
|
|
|
|
|
|
°¨Á¤Æò°¡¼ ¿ä¾à |
|
[À§Ä¡/ÁÖÀ§È¯°æ]
º»°ÇÀº ¼¿ïƯº°½Ã °ü¾Ç±¸ ½Å¸²µ¿ ¼ÒÀç ""½Å¸²¿ª"" ºÏ¼Ãø Àαٿ¡ À§Ä¡Çϰí ÀÖÀ¸¸ç, ÁÖÀ§´Â ´Üµ¶ÁÖÅÃ, ´Ù¼¼´ëÁÖÅà ¹× ±Ù¸°»ýȰ½Ã¼³ÀÌ È¥ÀçÇϰí ÀÖÀ½.
[±³Åë»óȲ]
º»°Ç±îÁö Â÷·® Á¢±ÙÀÌ °¡´ÉÇϰí Àαٿ¡ ÁöÇÏö ½Å¸²¿ª ¹× ¹ö½ºÁ¤·ùÀåÀÌ ¼ÒÀçÇÏ´Â µî ´ëÁß±³Åë»óȲÀº º¸ÅëÀÓ.
[°Ç¹°±¸Á¶]
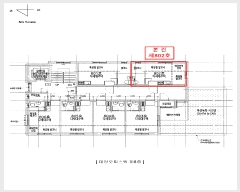
ö±ÙÄÜÅ©¸®Æ® Æò½º¶óºêÁöºØ ÁöÇÏ1Ãþ Áö»ó8Ãþ Áß 8Ãþ 802È£·Î¼,
¿Üº® : ¼®Àç ºÙÀÓ ¸¶°¨ µî,
âȣ : ¼¦½Ã âȣ µîÀÓ.
[ÀÌ¿ë»óÅÂ]
º»°ÇÀº ´Ù¼¼´ëÁÖÅÃÀ¸·Î ÀÌ¿ëÁßÀÓ.(ÈÄ÷:È£º°¹èÄ¡µµ ¹× ³»ºÎ±¸Á¶µµ Âü°í)
[¼³ºñ³»¿ª]
±âº»ÀûÀÎ À§»ý¼³ºñ, ±Þ¹è¼ö¼³ºñ, ³¹æ¼³ºñ µîÀÓ.
[ÅäÁöÇü»ó/ÀÌ¿ë»óÅÂ]
ÀÎÁ¢Áö ´ëºñ µî°í ÆòźÇÑ »ç´Ù¶óÇü ÅäÁö·Î °øµ¿ÁÖÅà ¿Ü2 °ÇºÎÁö·Î ÀÌ¿ëÁßÀÓ.
7)ÀÎÁ¢ µµ·Î»óŵî
º»°Ç ºÏÃøÀ¸·Î Æø ¾à 6¹ÌÅÍ ³»¿Ü Æ÷Àåµµ·Î¿Í Á¢Çϰí ÀÖÀ½.
[ÅäÁöÀÌ¿ë°èȹ]
ÁØÁÖ°ÅÁö¿ª, Áö±¸´ÜÀ§°èȹ±¸¿ª(2024-04-11), ¼Ò·Î3·ù(Æø 8m ¹Ì¸¸)(Á¢ÇÕ), °¡Ãà»çÀ°Á¦Çѱ¸¿ª£¼°¡ÃàºÐ´¢ÀÇ °ü¸® ¹× À̿뿡 °üÇÑ ¹ý·ü£¾, ´ë°ø¹æ¾îÇùÁ¶±¸¿ª(À§Å¹°íµµ:194m)£¼±º»ç±âÁö ¹× ±º»ç½Ã¼³ º¸È£¹ý£¾, °ú¹Ð¾ïÁ¦±Ç¿ª£¼¼öµµ±ÇÁ¤ºñ°èȹ¹ý£¾ÀÓ.
[°øºÎ¿ÍÀÇ Â÷ÀÌ]
-
[Âü°í»çÇ×]
- |
|
|
°ÇÃ๰ÇöȲ |
|
|
|
| ¼ÒÀçÁö |
¼¿ïƯº°½Ã °ü¾Ç±¸ ½Å¸²µ¿ 1437-19¹øÁö |
| ´ëÁö¸éÀû |
379.8§³(115.09Æò) |
¿¬¸éÀû |
1416.04§³(429.1Æò) |
ÁÖ¿ëµµ |
°øµ¿ÁÖÅà |
| °ÇÃà¸éÀû |
196.56§³(59.56Æò) |
¿ëÀû·ü»êÁ¤¿¬¸éÀû |
1138.08§³(344.87Æò) |
Âø°øÀÏÀÚ |
2020.03.09 |
| °ÇÆóÀ² |
51.75% |
¿ëÀû·ü |
299.65% |
»ç¿ë½ÂÀÎÀÏÀÚ |
2021.01.28 |
| Áö»óÃþ¼ö |
8Ãþ |
ÁöÇÏÃþ¼ö |
1Ãþ |
±¸Á¶ |
ö±ÙÄÜÅ©¸®Æ®±¸Á¶ |
°ÇÃ๰Ãþº°ÇöȲ [º¸±â]| Ãþº° | ±¸Á¶ | ¿ëµµ | ¸éÀû | | 1Ãþ | ö±ÙÄÜÅ©¸®Æ®±¸Á¶ | °è´Ü½Ç | 16.36§³ (4.96Æò) | | 1Ãþ | ö±ÙÄÜÅ©¸®Æ®±¸Á¶ | ±â°è½Ä ÁÖÂ÷Àå | 55.5§³ (16.82Æò) | | 1Ãþ | ö±ÙÄÜÅ©¸®Æ®±¸Á¶ | ÇÊ·ÎÆ¼ ÁÖÂ÷Àå/A.V | 124.7§³ (37.79Æò) | | 2Ãþ | ö±ÙÄÜÅ©¸®Æ®±¸Á¶ | »ç¹«¼Ò | 180.65§³ (54.74Æò) | | 2Ãþ | ö±ÙÄÜÅ©¸®Æ®±¸Á¶ | Åë½Å½Ç | 14.52§³ (4.4Æò) | | 3Ãþ | ö±ÙÄÜÅ©¸®Æ®±¸Á¶ | ¿ÀÇǽºÅÚ | 189.89§³ (57.54Æò) | | 4Ãþ | ö±ÙÄÜÅ©¸®Æ®±¸Á¶ | ¿ÀÇǽºÅÚ | 189.89§³ (57.54Æò) | | 5Ãþ | ö±ÙÄÜÅ©¸®Æ®±¸Á¶ | ´Ù¼¼´ëÁÖÅà | 143.26§³ (43.41Æò) | | 6Ãþ | ö±ÙÄÜÅ©¸®Æ®±¸Á¶ | ´Ù¼¼´ëÁÖÅà | 143.26§³ (43.41Æò) | | 7Ãþ | ö±ÙÄÜÅ©¸®Æ®±¸Á¶ | ´Ù¼¼´ëÁÖÅà | 142.83§³ (43.28Æò) | | 8Ãþ | ö±ÙÄÜÅ©¸®Æ®±¸Á¶ | ´Ù¼¼´ëÁÖÅà | 117.42§³ (35.58Æò) | | ¿Áž1Ãþ | ö±ÙÄÜÅ©¸®Æ®±¸Á¶ | °è´Ü½Ç | 12.04§³ (3.65Æò) | | Áö1 | ö±ÙÄÜÅ©¸®Æ®±¸Á¶ | ±â°è½Ä ÁÖÂ÷Àå | 149.88§³ (45.42Æò) | | Áö1 | ö±ÙÄÜÅ©¸®Æ®±¸Á¶ | °è´Ü½Ç | 9.24§³ (2.8Æò) | | Áö1 | ö±ÙÄÜÅ©¸®Æ®±¸Á¶ | ±â°è½Ç | 63.34§³ (19.19Æò) |
|
|
|
|
|
 |
ÀÓÂ÷³»¿ª |
[¹è´ç¿ä±¸Á¾±âÀÏ : 2025/07/31] |
|
|
| ÀÓÂ÷ÀÎ |
Á¡À¯°ü°è |
ÀüÀÔÀÏÀÚ |
È®Á¤ÀÏÀÚ |
¹è´ç¿ä±¸ÀÏ |
º¸Áõ±Ý/Â÷ÀÓ |
´ëÇ׿ä°Ç |
ºñ°í |
| COOOOOOOOO |
802È£ |
2024.12.20. |
|
|
|
X |
|
| ÁÖOOOOOOOOOOOO |
802È£ |
2021.08.20. |
2021.07.23. |
2025.7.31. |
229,000,000
|
O |
|
| ¸Å°¢¹°°Ç¸í¼¼ ºñ°í |
|
|
|
|
 |
¹ý¿ø ¹°°ÇÀÚ·á ¿ä¾à |
|
|
|
|
| ¼Ò¸êµÇÁö ¾Ê´Â µî±âºÎ±Ç¸® |
À»±¸ 1¹ø, 2023.8.31.Á¢¼ö Á¦129559È£ ÁÖÅÃÀÓÂ÷±Çµî±â(¹è´ç¿¡¼ º¸Áõ±Ý Àü¾×ÀÌ º¯Á¦µÇÁö ¾ÊÀ¸¸é Àܾ×ÀÇ ¹üÀ§¿¡¼ ¸»¼ÒµÇÁö ¾Ê
°í ¸Å¼öÀÎÀÌ ÀμöÇÔ) |
| ¼³Á¤µÈ °ÍÀ¸·Î º¸´Â Áö»ó±Ç |
|
| ¹ý¿øÀÚ·á Æ¯ÀÌ»çÇ× |
|
| ¿©ÀÇÁÖ°æ¸Å Á¶¾ð ÇѸ¶µð |
ÀÌ ºÎµ¿»êÀÇ ÀÔÂû¹ý¿øÀº ¼¿ïÁß¾ÓÁö¹æ¹ý¿øÀÔ´Ï´Ù.
ÀÔÂûÀÏÀº 2025-11-18ÀÔ´Ï´Ù.
ÀÔÂû½Ã°£Àº 11:00~11:00ÀÔ´Ï´Ù. ÀÌ ¹ý¿ø¿¡´Â ½ÅÇÑÀºÇàÀÌ ÀÔÁ¡Çϰí ÀÖ½À´Ï´Ù.
|
¼±¼øÀ§ ÀÓÂ÷±Çµî±â°¡ µÇ¾î ÀÖ½À´Ï´Ù ´ëÇ×·ÂÀÌ ÀÖ´Â ¼±¼øÀ§ ÀÓÂ÷±Çµî±â ±Ç¸®ÀÚ°¡ ¹è´çÀ» Àü¾× ¹ÞÁö ¸øÇÒ °æ¿ì ³«ÂûÀÚ°¡ ÀÜ¿© º¸Áõ±ÝÀ» ÀμöÇØ¾ßÇÏ´Â °æ¿ìµµ ÀÖ½À´Ï´Ù. |
|
|
| Åë°è±â°£ |
³«Âû¹°°Ç¼ö |
Æò±Õ°¨Á¤°¡ |
Æò±Õ³«Âû°¡ |
³«Âû°¡À² |
À¯ÂûȽ¼ö |
| 3°³¿ù |
9°Ç |
292,888,889¿ø |
227,559,406¿ø |
80% |
2.8ȸ |
| 6°³¿ù |
14°Ç |
258,642,857¿ø |
218,324,690¿ø |
85% |
2ȸ |
| 12°³¿ù |
15°Ç |
278,866,667¿ø |
233,743,044¿ø |
85% |
1.9ȸ |
|
|
|
|
|
|
|
 |
ÀαÙÁö¿ª ÃÖ±Ù ³«Âû»ç·Ê
|
|
|
 |
|
|
[¾È³»] Ȥ½Ã ÀÌ¿ëÀÌ ºÒÆíÇϽðųª »èÁ¦ÇÒ ³»¿ëÀÌ ÀÖ´Ù¸é ÃÖ´ëÇÑ ³ë·ÂÇØ¼ °³¼±ÇØ ³ª°¡µµ·Ï ÇϰڽÀ´Ï´Ù.
 |
|
ÀÌ »çÀÌÆ®¿¡¼ Á¦°øµÇ´Â ºÎµ¿»ê°æ¸Å ÀÚ·á´Â ¹ý¿ø °æ¸Å°è¿¡¼ ó¸®Çϰí ÀÖ´Â ½ÇÁ¦ ¹°°ÇÀÇ Á¤º¸¿Í ÀÏÄ¡ÇÏÁö ¾ÊÀ» ¼öµµ ÀÖ½À´Ï´Ù.
´ç»ç´Â º» ÀÚ·á¿¡ °üÇÏ¿© Á¤½Ä ÄÁ¼³ÆÃ ÀÇ·Ú°¡ ¾Æ´Ñ ÀÌ»ó ¾î¶°ÇÑ º¸Áõµµ ÇÏÁö ¾ÊÀ¸¸ç ¹ýÀû Ã¥ÀÓÀ» ÁöÁö ¾Ê½À´Ï´Ù.
ÀÔÂûÇϱâ Àü¿¡ ²Ä²ÄÈ÷ ¹ý¿ø¿¡ ºñÄ¡µÈ ¸Å°¢¹°°Ç¸í¼¼¼ ¹× ±âŸ °øºÎ¸¦ ÀçÈ®ÀÎÇϽðí ÀÔÂû¿¡ Âü°¡ÇÏ½Ã±æ ¹Ù¶ø´Ï´Ù. |
|
|
|
|
|