|
|
|
| ¹°°ÇÁ¤º¸ Çٽɺ¸±â |
Ȩ > °æ¸ÅÁ¾ÇÕ°Ë»ö > ¹°°ÇÁ¤º¸ Çٽɺ¸±â |
|
|
| 2024Ÿ°æ59326 °æ¸Å»ç°ÇÀÇ ´Ù¼¼´ë(ºô¶ó) ¹°°Ç¿¡ °üÇÑ »ó¼¼ Á¤º¸ÀÔ´Ï´Ù. |
|
| ¼ÒÀçÁö |
¼¿ïƯº°½Ã ¼ÛÆÄ±¸ ¾çÀç´ë·Î71±æ 27-14, 5Ãþ501È£ (¹æÀ̵¿,Á¤º¸ÆÓ¸®½º)
±¸)¼¿ïƯº°½Ã ¼ÛÆÄ±¸ ¹æÀ̵¿ 199-11
|
|
| »ç°Ç¹øÈ£ |
2024 Ÿ°æ 59326 |
¹°°Ç¹øÈ£ |
1
|
¹°°Ç¿ëµµ |
´Ù¼¼´ë(ºô¶ó) |
| °¨Á¤Æò°¡¾× |
373,094,000¿ø |
°æ¸Å´ë»ó |
ÅäÁö ¹× °Ç¹°Àϰý ¸Å°¢ |
ÁøÇà»óÅ |
½Å°Ç |
| ÃÖÀúÀÔÂû°¡ |
(100%) 373,094,000¿ø
|
°Ç¹°¸éÀû |
19.03§³(5.76Æò) |
ÀÔÂû±âÀÏ |
2025.12.01(¿ù) 10:00
(ÀÔÂû 13ÀÏÀü)
|
| ÀÔÂûº¸Áõ±Ý |
(10%) 37,309,400¿ø |
ÅäÁö¸éÀû |
13.62§³(4.12Æò)
|
À¯ÂûȽ¼ö |
0ȸ |
| ÀÔÂû¹ý¿ø |
¼¿ïµ¿ºÎÁö¹æ¹ý¿ø |
°æ¸Å¹æ¹ý |
ºÎµ¿»ê°Á¦°æ¸Å |
¹°°ÇÁ¶È¸¼ö |
¿À´Ã: ȸ [´©Àû: ȸ]
|
| ¸»¼Ò±âÁØ | ÃÖ¼±¼øÀ§ ¼³Á¤ : 2023.1.3.¾Ð·ù ¼³Á¤
|
|
|
|
|
|
|
|
|
|
|
°æ¸Å´ë»ó ¸ñ·Ï
|
|
| ±¸ºÐ |
¸ñ·Ï |
ÁÖ¼Ò |
±¸Á¶/¿ëµµ/´ëÁö±Ç |
ºñ°í |
´ëÁö±Ç
|
1 |
¹æÀ̵¿ 199-11 |
222ºÐÀÇ 13.62 |
13.62§³ (4.12Æò)
|
°Ç¹°
|
1 |
¹æÀ̵¿ 199-11 |
5Ãþ501È£ ö±ÙÄÜÅ©¸®Æ®±¸Á¶ |
19.03§³ (5.76Æò)
|
| Á¦½Ã¿Ü°Ç¹° |
1 |
¹æÀ̵¿ 199-11 |
ÁÖÅÃÀϺΠ|
36
§³(10.89Æò) |
| 1 |
¹æÀ̵¿ 199-11 |
¿Á»óÀϺΠ|
41
§³(12.40Æò) |
|
|
|
2025-12-01
ÁøÇà
|
(100%)
373,094,000¿ø
|
|
|
|
|
|
°¨Á¤Æò°¡¼ ¿ä¾à |
|
[À§Ä¡/ÁÖÀ§È¯°æ]
´ë»ó¹°°ÇÀº ¼¿ïƯº°½Ã ¼ÛÆÄ±¸ ¹æÀ̵¿ ¼ÒÀç "¹æÀÌ1µ¿Áֹμ¾ÅÍ" ³²¼Ãø¿¡ À§Ä¡Çϸç,
º»°Ç ÀαÙÀº ´Üµ¶ÁÖÅÃ, ´Ù°¡±¸ÁÖÅà ¹× ´Ù¼¼´ëÁÖÅà µîÀÌ ¼ÒÀçÇÏ´Â ÁÖÅÃÁö´ë·Î¼
Á¦¹Ý ÁÖÀ§È¯°æÀº ¾çÈ£ÇÔ.
[±³Åë»óȲ]
º»°Ç±îÁö Â÷·®ÀÇ Áø¡¤ÃâÀÔÀÌ °¡´ÉÇϰí,
Àαٿ¡ ³ë¼±¹ö½ºÁ¤·ùÀå ¹× ¹æÀÌ¿ª(ÁöÇÏö5È£¼±) µîÀÌ ¼ÒÀçÇÏ´Â µî Á¦¹Ý±³Åë»çÁ¤Àº ¾çÈ£ÇÔ.
[°Ç¹°±¸Á¶]
ö±ÙÄÜÅ©¸®Æ®±¸Á¶ (ö±Ù)ÄÜÅ©¸®Æ®ÁöºØ Áö»ó 5Ãþ °Ç¹° ³» Á¦5Ãþ Á¦501È£·Î¼,
¿Ü º® : ´ë¸®¼® ¹× ¼®Àç ¸¶°¨ µî,
³» º® : º®Áö ¹× ŸÀÏ ¸¶°¨ µî,
â È£ : ¼¦½Ãâȣ µîÀÓ.
[ÀÌ¿ë»óÅÂ]
´Ù¼¼´ëÁÖÅÃÀ¸·Î ÀÌ¿ëÁßÀÓ.
[¼³ºñ³»¿ª]
E/V¼³ºñ, À§»ý¡¤±Þ¹è¼ö¼³ºñ,
¼ÒÈÀü¼³ºñ ¹× ³¹æ¼³ºñ µî ±âº»ÀûÀÎ ¼³ºñ°¡ ±¸ºñµÇ¾î µÇ¾îÀÖÀ½.
[ÅäÁöÇü»ó/ÀÌ¿ë»óÅÂ]
¼¼ÀåÇü ÅäÁö·Î¼ ´Ù¼¼´ëÁÖÅà °ÇºÎÁö·Î ÀÌ¿ëÁßÀÓ.
7)ÀÎÁ¢ µµ·Î»óŵî
º»°Ç ³²µ¿ÃøÀ¸·Î ³ëÆø ¾à 6-8m³»¿ÜÀÇ Æ÷Àåµµ·Î¿¡ Á¢ÇÔ.
[ÅäÁöÀÌ¿ë°èȹ]
µµ½ÃÁö¿ª, Á¦2Á¾ÀϹÝÁÖ°ÅÁö¿ª(7ÃþÀÌÇÏ), µµ·Î(Á¢ÇÕ),
°¡Ãà»çÀ°Á¦Çѱ¸¿ª£¼°¡ÃàºÐ´¢ÀÇ °ü¸® ¹× À̿뿡 °üÇÑ ¹ý·ü£¾,
±³À°È¯°æº¸È£±¸¿ª£¼±³À°È¯°æ º¸È£¿¡ °üÇÑ ¹ý·ü£¾,
´ë°ø¹æ¾îÇùÁ¶±¸¿ª(À§Å¹°íµµ:77-257m)£¼±º»ç±âÁö ¹× ±º»ç½Ã¼³ º¸È£¹ý£¾,
ºñÇà¾ÈÀüÁ¦2±¸¿ª(Àü¼ú)(2013-09-30)£¼±º»ç±âÁö ¹× ±º»ç½Ã¼³ º¸È£¹ý£¾,
°ú¹Ð¾ïÁ¦±Ç¿ª£¼¼öµµ±ÇÁ¤ºñ°èȹ¹ý£¾, °øÀå¼³¸³½ÂÀÎÁö¿ª(2016-11-28)(2È£)£¼¼öµµ¹ý£¾
[°øºÎ¿ÍÀÇ Â÷ÀÌ]
À§¹Ý°ÇÃ๰·Î¼, Á¦½Ã¿Ü°Ç¹° ¤¡, ¤¤(ÈÄ÷ µµ¸é ÂüÁ¶)°¡ ¼ÒÀçÇϰí ÀÖÀ½.
[Âü°í»çÇ×]
º»°Ç ÇöÀå Á¶»ç½Ã °ÅÁÖÀÚ Å½¹®Á¶»ç°á°ú, ÀÓÂ÷ »ç¿ëÁßÀ¸·Î ´äº¯ ¹ÞÀ½. |
|
|
°ÇÃ๰ÇöȲ |
|
|
|
| ¼ÒÀçÁö |
¼¿ïƯº°½Ã ¼ÛÆÄ±¸ ¹æÀ̵¿ 199-11¹øÁö |
| ´ëÁö¸éÀû |
222§³(67.27Æò) |
¿¬¸éÀû |
422.64§³(128.07Æò) |
ÁÖ¿ëµµ |
°øµ¿ÁÖÅà |
| °ÇÃà¸éÀû |
132.24§³(40.07Æò) |
¿ëÀû·ü»êÁ¤¿¬¸éÀû |
422.64§³(128.07Æò) |
Âø°øÀÏÀÚ |
2019.10.14 |
| °ÇÆóÀ² |
59.57% |
¿ëÀû·ü |
190.38% |
»ç¿ë½ÂÀÎÀÏÀÚ |
2020.06.01 |
| Áö»óÃþ¼ö |
5Ãþ |
ÁöÇÏÃþ¼ö |
|
±¸Á¶ |
ö±ÙÄÜÅ©¸®Æ®±¸Á¶ |
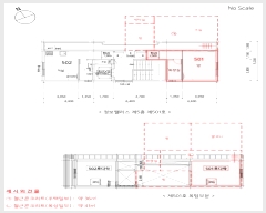
°ÇÃ๰Ãþº°ÇöȲ [º¸±â]| Ãþº° | ±¸Á¶ | ¿ëµµ | ¸éÀû | | 1Ãþ | ö±ÙÄÜÅ©¸®Æ®±¸Á¶ | °è´Ü½Ç | 24.16§³ (7.32Æò) | | 2Ãþ | ö±ÙÄÜÅ©¸®Æ®±¸Á¶ | ´Ù¼¼´ëÁÖÅÃ(2¼¼´ë) | 132.24§³ (40.07Æò) | | 3Ãþ | ö±ÙÄÜÅ©¸®Æ®±¸Á¶ | ´Ù¼¼´ëÁÖÅÃ(2¼¼´ë) | 132.24§³ (40.07Æò) | | 4Ãþ | ö±ÙÄÜÅ©¸®Æ®±¸Á¶ | ´Ù¼¼´ëÁÖÅÃ(2¼¼´ë) | 74.72§³ (22.64Æò) | | 5Ãþ | ö±ÙÄÜÅ©¸®Æ®±¸Á¶ | ´Ù¼¼´ëÁÖÅÃ(2¼¼´ë) | 59.28§³ (17.96Æò) | | ¿Áž1Ãþ | ö±ÙÄÜÅ©¸®Æ®±¸Á¶ | ´Ù¶ô(¿¬¸éÀûÁ¦¿Ü) | 27.4§³ (8.3Æò) |
|
|
|
|
|
 |
ÀÓÂ÷³»¿ª |
[¹è´ç¿ä±¸Á¾±âÀÏ : 2024/10/30] |
|
|
| ÀÓÂ÷ÀÎ |
Á¡À¯°ü°è |
ÀüÀÔÀÏÀÚ |
È®Á¤ÀÏÀÚ |
¹è´ç¿ä±¸ÀÏ |
º¸Áõ±Ý/Â÷ÀÓ |
´ëÇ׿ä°Ç |
ºñ°í |
| ¸Å°¢±âÀÏ 7ÀÏÀü¿¡ ¸Å°¢¹°°Ç¸í¼¼¼°¡ °ø°íµÇ¿À´Ï È®ÀÎÇϽñ⠹ٶø´Ï´Ù. |
| ±èOO |
501È£ |
2020.11.27 |
2020.11.25 |
2024.7.30 |
580,000,000
|
O |
|
| ¸Å°¢¹°°Ç¸í¼¼ ºñ°í |
|
|
|
|
 |
¹ý¿ø ¹°°ÇÀÚ·á ¿ä¾à |
|
|
|
|
| ¼Ò¸êµÇÁö ¾Ê´Â µî±âºÎ±Ç¸® |
¸Å¼öÀο¡°Ô
2020.11.27, È®Á¤ÀÏÀÚ 2020.11.25. / Áõ¾×µÈ ÀÓ´ëÂ÷º¸Áõ±Ý 80,000,000¿ø, ÀüÀÔÀÏ 2020.11.27, È®Á¤ÀÏÀÚ ¹Ì»ó). ¹è´ç¿¡¼ º¸Áõ±ÝÀÌ
Àü¾× º¯Á¦µÇÁö ¾Æ´ÏÇϸé Àܾ×À» ¸Å¼öÀÎÀÌ ÀμöÇÔ.
´ëÇ×ÇÒ |
| ¼³Á¤µÈ °ÍÀ¸·Î º¸´Â Áö»ó±Ç |
ÇØ´ç»çÇ×¾øÀ½ |
| ¹ý¿øÀÚ·á Æ¯ÀÌ»çÇ× |
[ÁÖ¿ä ¹®°Ç Á¢¼ö ³»¿ª]
|
[¸Å°¢¹°°Ç¸í¼¼¼ ºñ°í¶õ]
-Á¦½Ã¿Ü °Ç¹° Æ÷ÇÔ
-ÁÖÅðú-39236È£(2020.8.25)¿¡ ÀǰŠÀ§¹Ý°ÇÃ๰ Ç¥±â
[À§¹Ý³»¿ë: (501È£) ö±ÙÄÜÅ©¸®Æ®, ÁÖ°Å, 36§³. (501È£ ¿Á»ó) ö±ÙÄÜÅ©¸®Æ®, ÁÖ°Å, 41§³] |
|
| ¿©ÀÇÁÖ°æ¸Å Á¶¾ð ÇѸ¶µð |
ÀÌ ºÎµ¿»êÀÇ ÀÔÂû¹ý¿øÀº ¼¿ïµ¿ºÎÁö¹æ¹ý¿øÀÔ´Ï´Ù.
ÀÔÂûÀÏÀº 2025-12-01ÀÔ´Ï´Ù.
ÀÔÂû½Ã°£Àº 11:00~11:10ÀÔ´Ï´Ù. ÀÌ ¹ý¿ø¿¡´Â ½ÅÇÑÀºÇàÀÌ ÀÔÁ¡Çϰí ÀÖ½À´Ï´Ù.
|
Á¦½Ã¿Ü ¹°°ÇÀÌ Æ÷ÇԵǾî ÀÖ½À´Ï´Ù ¡®Á¦½Ã¿Ü ¹°°Ç¡¯Àº ÇØ´ç °øºÎ»ó¿¡´Â Á¸ÀçÇÏÁö ¾ÊÁö¸¸, ÇöÀå¿¡ Á¸Àç°¡ È®ÀεǴ ¿©·¯ ÇüÅÂÀÇ °Ç¹°, ±â°è±â±¸ µîÀ» ¸»ÇÕ´Ï´Ù. ÀÌµé ´ëºÎºÐÀº ¹«Çã°¡, ¹«½Å°íÀ̰ųª »ç¿ë½ÂÀÎÀ» ¹ÞÁö ¾ÊÀº °ÍÀÔ´Ï´Ù. ¡®Á¦½Ã¿Ü ¹°°Ç¡¯ÀÌ °æ¸Å´ë»ó¿¡ Æ÷ÇԵǾî ÀÖ´Ù¸é ³«ÂûÀÚÀÇ ¼ÒÀ¯±Ç Ãëµæ¿¡´Â ¾Æ¹«·± ¹®Á¦°¡ ¾ø½À´Ï´Ù. |
|
|
| Åë°è±â°£ |
³«Âû¹°°Ç¼ö |
Æò±Õ°¨Á¤°¡ |
Æò±Õ³«Âû°¡ |
³«Âû°¡À² |
À¯ÂûȽ¼ö |
| 3°³¿ù |
40°Ç |
591,681,395¿ø |
451,923,267¿ø |
79% |
1.8ȸ |
| 6°³¿ù |
53°Ç |
544,035,505¿ø |
429,183,876¿ø |
82% |
1.6ȸ |
| 12°³¿ù |
58°Ç |
526,153,134¿ø |
420,394,404¿ø |
83% |
1.6ȸ |
|
|
|
|
|
|
|
 |
ÀαÙÁö¿ª ÃÖ±Ù ³«Âû»ç·Ê
|
|
|
 |
|
|
[¾È³»] Ȥ½Ã ÀÌ¿ëÀÌ ºÒÆíÇϽðųª »èÁ¦ÇÒ ³»¿ëÀÌ ÀÖ´Ù¸é ÃÖ´ëÇÑ ³ë·ÂÇØ¼ °³¼±ÇØ ³ª°¡µµ·Ï ÇϰڽÀ´Ï´Ù.
 |
|
ÀÌ »çÀÌÆ®¿¡¼ Á¦°øµÇ´Â ºÎµ¿»ê°æ¸Å ÀÚ·á´Â ¹ý¿ø °æ¸Å°è¿¡¼ ó¸®Çϰí ÀÖ´Â ½ÇÁ¦ ¹°°ÇÀÇ Á¤º¸¿Í ÀÏÄ¡ÇÏÁö ¾ÊÀ» ¼öµµ ÀÖ½À´Ï´Ù.
´ç»ç´Â º» ÀÚ·á¿¡ °üÇÏ¿© Á¤½Ä ÄÁ¼³ÆÃ ÀÇ·Ú°¡ ¾Æ´Ñ ÀÌ»ó ¾î¶°ÇÑ º¸Áõµµ ÇÏÁö ¾ÊÀ¸¸ç ¹ýÀû Ã¥ÀÓÀ» ÁöÁö ¾Ê½À´Ï´Ù.
ÀÔÂûÇϱâ Àü¿¡ ²Ä²ÄÈ÷ ¹ý¿ø¿¡ ºñÄ¡µÈ ¸Å°¢¹°°Ç¸í¼¼¼ ¹× ±âŸ °øºÎ¸¦ ÀçÈ®ÀÎÇϽðí ÀÔÂû¿¡ Âü°¡ÇÏ½Ã±æ ¹Ù¶ø´Ï´Ù. |
|
|
|
|
|