|
|
|
| ¹°°ÇÁ¤º¸ Çٽɺ¸±â |
Ȩ > °æ¸ÅÁ¾ÇÕ°Ë»ö > ¹°°ÇÁ¤º¸ Çٽɺ¸±â |
|
|
| 2025Ÿ°æ8646 °æ¸Å»ç°ÇÀÇ ¿ÀÇǽºÅÚ ¹°°Ç¿¡ °üÇÑ »ó¼¼ Á¤º¸ÀÔ´Ï´Ù. |
|
| ¼ÒÀçÁö |
¼¿ïƯº°½Ã ±¸·Î±¸ ±¸·Îµ¿ 107-4 ºñÁîÆ®À§Æ®ºí·ç Á¦11Ãþ Á¦1106È£
|
|
| »ç°Ç¹øÈ£ |
2025 Ÿ°æ 8646 |
¹°°Ç¹øÈ£ |
1
|
¹°°Ç¿ëµµ |
¿ÀÇǽºÅÚ |
| °¨Á¤Æò°¡¾× |
118,000,000¿ø |
°æ¸Å´ë»ó |
ÅäÁö ¹× °Ç¹°Àϰý ¸Å°¢ |
ÁøÇà»óÅ |
À¯Âû |
| ÃÖÀúÀÔÂû°¡ |
(80%) 94,400,000¿ø
|
°Ç¹°¸éÀû |
18.67§³(5.65Æò) |
ÀÔÂû±âÀÏ |
2026.01.28(¼ö) 10:00
(ÀÔÂû 30ÀÏÀü)
|
| ÀÔÂûº¸Áõ±Ý |
(10%) 9,440,000¿ø |
ÅäÁö¸éÀû |
3.10§³(0.94Æò)
|
À¯ÂûȽ¼ö |
1ȸ |
| ÀÔÂû¹ý¿ø |
¼¿ï³²ºÎÁö¹æ¹ý¿ø |
°æ¸Å¹æ¹ý |
ºÎµ¿»ê°Á¦°æ¸Å |
¹°°ÇÁ¶È¸¼ö |
¿À´Ã: ȸ [´©Àû: ȸ]
|
| ¸»¼Ò±âÁØ | ÃÖ¼±¼øÀ§ ¼³Á¤ : 2023.07.31.¾Ð·ù ¼³Á¤
|
|
|
|
|
|
|
|
|
|
|
°æ¸Å´ë»ó ¸ñ·Ï
|
|
| ±¸ºÐ |
¸ñ·Ï |
ÁÖ¼Ò |
±¸Á¶/¿ëµµ/´ëÁö±Ç |
ºñ°í |
´ëÁö±Ç
|
1 |
±¸·Îµ¿ 107-4 |
704ºÐÀÇ 3.1 |
3.1§³ (0.94Æò)
|
°Ç¹°
|
1 |
±¸·Îµ¿ 107-4 |
Á¦11Ãþ Á¦1106È£ ö±ÙÄÜÅ©¸®Æ®±¸Á¶ |
18.67§³ (5.65Æò)
|
|
|
|
2025-12-03
À¯Âû
|
(100%)
118,000,000¿ø
|
|
|
|
2026-01-28
ÁøÇà
|
(80%)
94,400,000¿ø
|
|
|
|
|
|
°¨Á¤Æò°¡¼ ¿ä¾à |
|
[À§Ä¡/ÁÖÀ§È¯°æ]
º»°ÇÀº ¼¿ïƯº°½Ã ±¸·Î±¸ ±¸·Îµ¿ ¼ÒÀç ""±¸·Î°íµîÇб³"" µ¿Ãø Àαٿ¡ À§Ä¡Çϸç, ÁÖÀ§´Â ¿ÀÇǽºÅÚ, ¾ÆÆÄÆ®, ´Ù¼¼´ëÁÖÅÃ, ±Ù¸°»ýȰ½Ã¼³ µîÀÌ È¥ÀçÇÏ´Â Áö¿ªÀ¸·Î¼ Á¦¹ÝÁÖÀ§È¯°æÀº º¸Åë½ÃµË´Ï´Ù.
[±³Åë»óȲ]
º»°Ç±îÁö Â÷·®ÃâÀÔ °¡´ÉÇϸç, Àαٿ¡ ³ë¼±¹ö½ºÁ¤·ùÀå ¹× ÁöÇÏö 2, 7È£¼± ""´ë¸²¿ª""ÀÌ ¼ÒÀçÇÏ´Â µî ±³Åë»óȲÀº ´ëü·Î ¹«³ÇÕ´Ï´Ù.
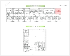
[°Ç¹°±¸Á¶]
ö±ÙÄÜÅ©¸®Æ®±¸Á¶ (ö±Ù)ÄÜÅ©¸®Æ®ÁöºØ ÁöÇÏ3Ãþ/Áö»ó19Ãþ °Ç¹° ³» Á¦11Ãþ Á¦1106È£·Î¼,
(»ç¿ë½ÂÀÎÀÏ : 2012.11.30)
¿Üº® : º¹ÇÕÆÇ³Ú, ¼®À縶°¨ µî,
³»º® : º®Áöµµ¹è ¹× ÀϺΠŸÀϺÙÀÓ ¸¶°¨ µî,
âȣ : ÇÏÀÌ»õ½Ã âȣ µîÀÔ´Ï´Ù.
[ÀÌ¿ë»óÅÂ]
¾÷¹«½Ã¼³(¿ÀÇǽºÅÚ)À¸·Î ÀÌ¿ëÁßÀÔ´Ï´Ù.
[¼³ºñ³»¿ª]
±âº»ÀûÀÎ À§»ý¼³ºñ ¹× ±Þ¹è¼ö¼³ºñ, ³Ã³¹æ¼³ºñ, ¼ÒÈÀü¼³ºñ, ½Â°±â¼³ºñ, µµ½Ã°¡½º¼³ºñ, ±â°è½ÄÁÖÂ÷¼³ºñ µîÀ» °®Ãß°í ÀÖ½À´Ï´Ù.
[ÅäÁöÇü»ó/ÀÌ¿ë»óÅÂ]
º»°ÇÀº ÀÎÁ¢Áö ´ëºñ µî°íÆòźÇÑ ¼¼ÀåÇü ÅäÁö·Î¼, ¾÷¹«½Ã¼³(¿ÀÇǽºÅÚ) ¹× °øµ¿ÁÖÅÃ(µµ½ÃÇü»ýȰÁÖÅà ¿ø·ëÇü) °ÇºÎÁö·Î ÀÌ¿ëÁßÀÔ´Ï´Ù.
7)ÀÎÁ¢ µµ·Î»óŵî
º»°Ç ³²¼ÃøÀ¸·Î ³ëÆø ¾à 15m ¹× ³²µ¿ÃøÀ¸·Î ³ëÆø ¾à 8m ³»¿ÜÀÇ Æ÷Àåµµ·Î¿Í °¢°¢ Á¢Çϸç, Æ÷Àå»óÅ µîÀº ¹«³ÇÕ´Ï´Ù.
[ÅäÁöÀÌ¿ë°èȹ]
µµ½ÃÁö¿ª, ÀϹݻó¾÷Áö¿ª(2003-09-02), µµ·Î(Á¢ÇÕ)
°¡·Î±¸¿ªº° ÃÖ°í³ôÀÌ Á¦ÇÑÁö¿ª(2015-08-27)£¼°ÇÃà¹ý£¾, Àå¾Ö¹°Á¦ÇÑÇ¥¸é±¸¿ª(ÁøÀÔÇ¥¸é)
£¼°øÇ׽ü³¹ý£¾, ±³À°È¯°æº¸È£±¸¿ª(³²ºÎ±³À°Ã»¿¡ ¹Ýµå½Ã È®Àοä¸Á)£¼±³À°È¯°æ º¸È£¿¡ °üÇÑ
¹ý·ü£¾, ´ë°ø¹æ¾îÇùÁ¶±¸¿ª(À§Å¹°íµµ:ÇØ¹ß165m(Áö¹Ý+°ÇÃà+¿Áž µî), À°±º¼öµµ¹æÀ§»ç·ÉºÎ
(02-524-3146)°üÇÒ)£¼±º»ç±âÁö ¹× ±º»ç½Ã¼³ º¸È£¹ý£¾, °ú¹Ð¾ïÁ¦±Ç¿ª£¼¼öµµ±ÇÁ¤ºñ°èȹ¹ý£¾
[°øºÎ¿ÍÀÇ Â÷ÀÌ]
ÇØ´ç ¾ø½À´Ï´Ù.
[Âü°í»çÇ×]
ÀÓ´ë°ü°è´Â ¹Ì»óÀÔ´Ï´Ù. |
|
|
°ÇÃ๰ÇöȲ |
|
|
|
| ¼ÒÀçÁö |
¼¿ïƯº°½Ã ±¸·Î±¸ ±¸·Îµ¿ 107-4¹øÁö |
| ´ëÁö¸éÀû |
704§³(213.33Æò) |
¿¬¸éÀû |
7787.77§³(2359.93Æò) |
ÁÖ¿ëµµ |
¾÷¹«½Ã¼³ |
| °ÇÃà¸éÀû |
413.96§³(125.44Æò) |
¿ëÀû·ü»êÁ¤¿¬¸éÀû |
6072.49§³(1840.15Æò) |
Âø°øÀÏÀÚ |
2011.06.01 |
| °ÇÆóÀ² |
58.8% |
¿ëÀû·ü |
862.57% |
»ç¿ë½ÂÀÎÀÏÀÚ |
2012.11.30 |
| Áö»óÃþ¼ö |
19Ãþ |
ÁöÇÏÃþ¼ö |
3Ãþ |
±¸Á¶ |
ö±ÙÄÜÅ©¸®Æ®±¸Á¶ |
°ÇÃ๰Ãþº°ÇöȲ [º¸±â]| Ãþº° | ±¸Á¶ | ¿ëµµ | ¸éÀû | | 1Ãþ | ö±ÙÄÜÅ©¸®Æ®±¸Á¶ | ·Îºñ,ÇÊ·ÎÆ¼(°ø°³°øÁö),ÁÖÂ÷Àå | 285.4§³ (86.48Æò) | | 2Ãþ | ö±ÙÄÜÅ©¸®Æ®±¸Á¶ | °øµ¿ÁÖÅÃ(µµ½ÃÇü»ýȰÁÖÅÃ-¿ø·ëÇü)-15 | 344.06§³ (104.26Æò) | | 3Ãþ | ö±ÙÄÜÅ©¸®Æ®±¸Á¶ | °øµ¿ÁÖÅÃ(µµ½ÃÇü»ýȰÁÖÅÃ-¿ø·ëÇü)-15 | 344.06§³ (104.26Æò) | | 4Ãþ | ö±ÙÄÜÅ©¸®Æ®±¸Á¶ | °øµ¿ÁÖÅÃ(µµ½ÃÇü»ýȰÁÖÅÃ-¿ø·ëÇü)-15 | 344.06§³ (104.26Æò) | | 5Ãþ | ö±ÙÄÜÅ©¸®Æ®±¸Á¶ | °øµ¿ÁÖÅÃ(µµ½ÃÇü»ýȰÁÖÅÃ-¿ø·ëÇü)-15 | 344.06§³ (104.26Æò) | | 6Ãþ | ö±ÙÄÜÅ©¸®Æ®±¸Á¶ | °øµ¿ÁÖÅÃ(µµ½ÃÇü»ýȰÁÖÅÃ-¿ø·ëÇü)-15 | 344.06§³ (104.26Æò) | | 7Ãþ | ö±ÙÄÜÅ©¸®Æ®±¸Á¶ | °øµ¿ÁÖÅÃ(µµ½ÃÇü»ýȰÁÖÅÃ-¿ø·ëÇü)-15 | 344.06§³ (104.26Æò) | | 8Ãþ | ö±ÙÄÜÅ©¸®Æ®±¸Á¶ | °øµ¿ÁÖÅÃ(µµ½ÃÇü»ýȰÁÖÅÃ-¿ø·ëÇü)-15 | 344.06§³ (104.26Æò) | | 9Ãþ | ö±ÙÄÜÅ©¸®Æ®±¸Á¶ | ¾÷¹«½Ã¼³(¿ÀÇǽºÅÚ)-15È£¼¼´ë | 399.99§³ (121.21Æò) | | 10Ãþ | ö±ÙÄÜÅ©¸®Æ®±¸Á¶ | ¾÷¹«½Ã¼³(¿ÀÇǽºÅÚ)-15È£¼¼´ë | 399.99§³ (121.21Æò) | | 11Ãþ | ö±ÙÄÜÅ©¸®Æ®±¸Á¶ | ¾÷¹«½Ã¼³(¿ÀÇǽºÅÚ)-15È£¼¼´ë | 399.99§³ (121.21Æò) | | 12Ãþ | ö±ÙÄÜÅ©¸®Æ®±¸Á¶ | ¾÷¹«½Ã¼³(¿ÀÇǽºÅÚ)-15È£¼¼´ë | 399.99§³ (121.21Æò) | | 13Ãþ | ö±ÙÄÜÅ©¸®Æ®±¸Á¶ | ¾÷¹«½Ã¼³(¿ÀÇǽºÅÚ)-15È£¼¼´ë | 399.99§³ (121.21Æò) | | 14Ãþ | ö±ÙÄÜÅ©¸®Æ®±¸Á¶ | ¾÷¹«½Ã¼³(¿ÀÇǽºÅÚ)-13È£¼¼´ë | 357.64§³ (108.38Æò) | | 15Ãþ | ö±ÙÄÜÅ©¸®Æ®±¸Á¶ | ¾÷¹«½Ã¼³(¿ÀÇǽºÅÚ)-13È£¼¼´ë | 338.92§³ (102.7Æò) | | 16Ãþ | ö±ÙÄÜÅ©¸®Æ®±¸Á¶ | ¾÷¹«½Ã¼³(¿ÀÇǽºÅÚ)-8È£¼¼´ë | 257.78§³ (78.12Æò) | | 17Ãþ | ö±ÙÄÜÅ©¸®Æ®±¸Á¶ | Áֹΰøµ¿½Ã¼³ | 52.2§³ (15.82Æò) | | 17Ãþ | ö±ÙÄÜÅ©¸®Æ®±¸Á¶ | ¾÷¹«½Ã¼³(¿ÀÇǽºÅÚ)-4È£¼¼´ë | 172.28§³ (52.21Æò) | | 18Ãþ | ö±ÙÄÜÅ©¸®Æ®±¸Á¶ | ¾÷¹«½Ã¼³(¿ÀÇǽºÅÚ)-4È£¼¼´ë | 145.77§³ (44.17Æò) | | 19Ãþ | ö±ÙÄÜÅ©¸®Æ®±¸Á¶ | ¾÷¹«½Ã¼³(¿ÀÇǽºÅÚ)-4È£¼¼´ë | 145.77§³ (44.17Æò) | | Áö1Ãþ | ö±ÙÄÜÅ©¸®Æ®±¸Á¶ | Á¦1Á¾±Ù¸°»ýȰ½Ã¼³(¼Ò¸ÅÁ¡) | 187.9§³ (56.94Æò) | | Áö1Ãþ | ö±ÙÄÜÅ©¸®Æ®±¸Á¶ | Àü±â/¹ßÀü±â½Ç,MDF/¹æÀç½Ç,ÆßÇÁ½Ç | 261.56§³ (79.26Æò) | | Áö2Ãþ | ö±ÙÄÜÅ©¸®Æ®±¸Á¶ | ±â°è½ÄÁÖÂ÷Àå,Á¤ÈÁ¶°ü¸®Ãþ | 609.71§³ (184.76Æò) | | Áö3Ãþ | ö±ÙÄÜÅ©¸®Æ®±¸Á¶ | ±â°è½ÄÁÖÂ÷Àå,°è´Ü½Ç | 564.47§³ (171.05Æò) |
|
|
|
|
|
 |
ÀÓÂ÷³»¿ª |
[¹è´ç¿ä±¸Á¾±âÀÏ : 2025/05/27] |
|
|
| ÀÓÂ÷ÀÎ |
Á¡À¯°ü°è |
ÀüÀÔÀÏÀÚ |
È®Á¤ÀÏÀÚ |
¹è´ç¿ä±¸ÀÏ |
º¸Áõ±Ý/Â÷ÀÓ |
´ëÇ׿ä°Ç |
ºñ°í |
| ˱OO |
ÀüºÎ |
2021.05.31. |
2021.05.31. |
2025.05.27. |
130,000,000
|
O |
2021.05.31.~ |
| ¸Å°¢¹°°Ç¸í¼¼ ºñ°í |
À±ÈñÁÖ:½Åûä±ÇÀÚÀ̸ç ÁÖÅÃÀÓÂ÷±Ç µî±âÀÏÀº 2024.09.23.ÀÓ. |
|
|
|
 |
¹ý¿ø ¹°°ÇÀÚ·á ¿ä¾à |
|
|
|
|
| ¼Ò¸êµÇÁö ¾Ê´Â µî±âºÎ±Ç¸® |
¸Å¼öÀο¡°Ô ´ëÇ×ÇÒ ¼ö ÀÖ´Â ÁÖÅÃÀÓÂ÷±Çµî±â ÀÖÀ½(¹è´ç¿¡¼ º¸Áõ±ÝÀÌ Àü¾× º¯Á¦µÇÁö ¾Æ´ÏÇϸé Àܾ×À» ¸Å¼öÀÎÀÌ ÀμöÇÔ) |
| ¼³Á¤µÈ °ÍÀ¸·Î º¸´Â Áö»ó±Ç |
|
| ¹ý¿øÀÚ·á Æ¯ÀÌ»çÇ× |
|
| ¿©ÀÇÁÖ°æ¸Å Á¶¾ð ÇѸ¶µð |
ÀÌ ºÎµ¿»êÀÇ ÀÔÂû¹ý¿øÀº ¼¿ï³²ºÎÁö¹æ¹ý¿øÀÔ´Ï´Ù.
ÀÔÂûÀÏÀº 2026-01-28ÀÔ´Ï´Ù.
ÀÔÂû½Ã°£Àº 11:00~11:20ÀÔ´Ï´Ù. ÀÌ ¹ý¿ø¿¡´Â ½ÅÇÑÀºÇàÀÌ ÀÔÁ¡Çϰí ÀÖ½À´Ï´Ù.
|
¼±¼øÀ§ ÀÓÂ÷±Çµî±â°¡ µÇ¾î ÀÖ½À´Ï´Ù ´ëÇ×·ÂÀÌ ÀÖ´Â ¼±¼øÀ§ ÀÓÂ÷±Çµî±â ±Ç¸®ÀÚ°¡ ¹è´çÀ» Àü¾× ¹ÞÁö ¸øÇÒ °æ¿ì ³«ÂûÀÚ°¡ ÀÜ¿© º¸Áõ±ÝÀ» ÀμöÇØ¾ßÇÏ´Â °æ¿ìµµ ÀÖ½À´Ï´Ù. |
|
|
| Åë°è±â°£ |
³«Âû¹°°Ç¼ö |
Æò±Õ°¨Á¤°¡ |
Æò±Õ³«Âû°¡ |
³«Âû°¡À² |
À¯ÂûȽ¼ö |
| 3°³¿ù |
4°Ç |
143,750,000¿ø |
118,928,750¿ø |
85% |
1.5ȸ |
| 6°³¿ù |
5°Ç |
177,600,000¿ø |
155,220,011¿ø |
87% |
1.4ȸ |
| 12°³¿ù |
5°Ç |
177,600,000¿ø |
155,220,011¿ø |
87% |
1.4ȸ |
|
|
|
|
|
|
|
 |
ÀαÙÁö¿ª ÃÖ±Ù ³«Âû»ç·Ê
|
|
|
 |
|
|
[¾È³»] Ȥ½Ã ÀÌ¿ëÀÌ ºÒÆíÇϽðųª »èÁ¦ÇÒ ³»¿ëÀÌ ÀÖ´Ù¸é ÃÖ´ëÇÑ ³ë·ÂÇØ¼ °³¼±ÇØ ³ª°¡µµ·Ï ÇϰڽÀ´Ï´Ù.
 |
|
ÀÌ »çÀÌÆ®¿¡¼ Á¦°øµÇ´Â ºÎµ¿»ê°æ¸Å ÀÚ·á´Â ¹ý¿ø °æ¸Å°è¿¡¼ ó¸®Çϰí ÀÖ´Â ½ÇÁ¦ ¹°°ÇÀÇ Á¤º¸¿Í ÀÏÄ¡ÇÏÁö ¾ÊÀ» ¼öµµ ÀÖ½À´Ï´Ù.
´ç»ç´Â º» ÀÚ·á¿¡ °üÇÏ¿© Á¤½Ä ÄÁ¼³ÆÃ ÀÇ·Ú°¡ ¾Æ´Ñ ÀÌ»ó ¾î¶°ÇÑ º¸Áõµµ ÇÏÁö ¾ÊÀ¸¸ç ¹ýÀû Ã¥ÀÓÀ» ÁöÁö ¾Ê½À´Ï´Ù.
ÀÔÂûÇϱâ Àü¿¡ ²Ä²ÄÈ÷ ¹ý¿ø¿¡ ºñÄ¡µÈ ¸Å°¢¹°°Ç¸í¼¼¼ ¹× ±âŸ °øºÎ¸¦ ÀçÈ®ÀÎÇϽðí ÀÔÂû¿¡ Âü°¡ÇÏ½Ã±æ ¹Ù¶ø´Ï´Ù. |
|
|
|
|
|