|
|
|
| ¹°°ÇÁ¤º¸ Çٽɺ¸±â |
Ȩ > °æ¸ÅÁ¾ÇÕ°Ë»ö > ¹°°ÇÁ¤º¸ Çٽɺ¸±â |
|
|
| 2024Ÿ°æ55466 °æ¸Å»ç°ÇÀÇ µµ½ÃÇü»ýȰÁÖÅà ¹°°Ç¿¡ °üÇÑ »ó¼¼ Á¤º¸ÀÔ´Ï´Ù. |
|
| ¼ÒÀçÁö |
°¿øÆ¯º°ÀÚÄ¡µµ »ïô½Ã ±Ù´ö¸é ¸Í¹æÇغ¯·Î 39, 101µ¿ 3Ãþ302È£ (»ïô±Ù´ö´õ½ºÅ×ÀÌ)
±¸)°¿øÆ¯º°ÀÚÄ¡µµ »ïô½Ã ±Ù´ö¸é ±³°¡¸® 389
|
|
| »ç°Ç¹øÈ£ |
2024 Ÿ°æ 55466 |
¹°°Ç¹øÈ£ |
1
|
¹°°Ç¿ëµµ |
µµ½ÃÇü»ýȰÁÖÅà |
| °¨Á¤Æò°¡¾× |
230,000,000¿ø |
°æ¸Å´ë»ó |
ÅäÁö ¹× °Ç¹°Àϰý ¸Å°¢ |
ÁøÇà»óÅ |
À¯Âû |
| ÃÖÀúÀÔÂû°¡ |
(49%) 112,700,000¿ø
|
°Ç¹°¸éÀû |
84.94§³(25.69Æò) |
ÀÔÂû±âÀÏ |
2026.03.16(¿ù) 10:00
(ÀÔÂû 10ÀÏÀü)
|
| ÀÔÂûº¸Áõ±Ý |
(10%) 11,270,000¿ø |
ÅäÁö¸éÀû |
103.88§³(31.42Æò)
|
À¯ÂûȽ¼ö |
2ȸ |
| ÀÔÂû¹ý¿ø |
ÃáõÁö¹æ¹ý¿ø °¸ªÁö¿ø |
°æ¸Å¹æ¹ý |
ºÎµ¿»ê°Á¦°æ¸Å |
¹°°ÇÁ¶È¸¼ö |
¿À´Ã: 1ȸ [´©Àû: 1181ȸ]
|
| ¸»¼Ò±âÁØ | ÃÖ¼±¼øÀ§ ¼³Á¤ : 2020.10.6.±ÙÀú´ç ¼³Á¤
|
|
|
|
|
|
|
|
|
|
|
°æ¸Å´ë»ó ¸ñ·Ï
|
|
| ±¸ºÐ |
¸ñ·Ï |
ÁÖ¼Ò |
±¸Á¶/¿ëµµ/´ëÁö±Ç |
ºñ°í |
´ëÁö±Ç
|
1 |
±³°¡¸® 389 |
4155ºÐÀÇ 103.875 |
103.875§³ (31.42Æò)
|
°Ç¹°
|
1 |
±³°¡¸® 389 |
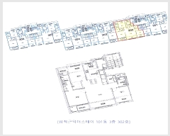
101µ¿ 3Ãþ302È£ ö±ÙÄÜÅ©¸®Æ®±¸Á¶ |
84.9387§³ (25.69Æò)
|
|
|
|
2025-12-15
À¯Âû
|
(100%)
230,000,000¿ø
|
|
|
|
2026-01-26
À¯Âû
|
(70%)
161,000,000¿ø
|
|
|
|
2026-03-16
ÁøÇà
|
(49%)
112,700,000¿ø
|
|
|
|
|
|
°¨Á¤Æò°¡¼ ¿ä¾à |
|
[À§Ä¡/ÁÖÀ§È¯°æ]
°¿øÆ¯º°ÀÚÄ¡µµ »ïô½Ã ±Ù´ö¸é ±³°¡¸® ¼ÒÀç "±Ù´öÁßÇб³" ³²µ¿Ãø Àαٿ¡ À§Ä¡Çϸç, ÁÖÀ§´Â
´Üµ¶ÁÖÅÃ, °øµ¿ÁÖÅÃ, °ø°ø±â°ü, ³ó°æÁö µîÀ¸·Î Çü¼ºµÈ ¸é¼ÒÀçÁö ³» ÁÖ°ÅÁö´ëÀÓ.
[±³Åë»óȲ]
º»°Ç±îÁö Á¦¹Ý Â÷·®ÃâÀÔ °¡´ÉÇϰí Àαٿ¡ ¹ö½ºÁ¤·ùÀåÀÌ ¼ÒÀçÇϳª ´ëÁß±³Åë»çÁ¤ ´Ù¼Ò ºÒÆíÇÔ.
[°Ç¹°±¸Á¶]
ö±ÙÄÜÅ©¸®Æ®±¸Á¶ ½½·¡ºêÁöºØ 5Ãþ °Ç ³» 3Ãþ 302È£·Î¼,
¿Üº® : Ä¡À庮µ¹ ºÙÀÓ.
³»º® : º®Áöµµ¹è ¹× ÀϺΠŸÀÏ ºÙÀÓ.
âȣ : PVC ¼¦½Ã ÀÌÁßâ.
[ÀÌ¿ë»óÅÂ]
µµ½ÃÇü»ýȰÁÖÅÃ(¹æ3, °Å½Ç, ÁÖ¹æ/½Ä´ç, ¿å½Ç2, ¹ßÄÚ´Ï µî)À¸·Î ÀÌ¿ë ÁßÀÓ.
[¼³ºñ³»¿ª]
À§»ý½Ã¼³ ¹× ±Þ¹è¼ö ½Ã¼³, ½Â°±â½Ã¼³, ½ºÇÁ¸µÄð·¯, ¿Á³»¼ÒÈÀü½Ã¼³, °³º° ³¹æ½Ã¼³ µî
µÇ¾î ÀÖÀ½.
[ÅäÁöÇü»ó/ÀÌ¿ë»óÅÂ]
ºÎÁ¤Çü ÅäÁö·Î¼ ÆòÁöÀ̸ç, µµ½ÃÇü»ýȰÁÖÅà °ÇºÎÁö·Î ÀÌ¿ë ÁßÀÓ.
7)ÀÎÁ¢ µµ·Î»óŵî
³²ÃøÀ¸·Î Æø ¾à 8M Æ÷Àåµµ·Î, ºÏµ¿ÃøÀ¸·Î Æø ¾à 6MÀÇ Æ÷Àåµµ·Î¿¡ Á¢ÇÔ.
[ÅäÁöÀÌ¿ë°èȹ]
Á¦2Á¾ ÀϹÝÁÖ°ÅÁö¿ª, ¼Ò·Î2·ù(Æø 8m-10m)(Á¢ÇÔ), ¿ª»ç¹®Èȯ°æº¸Á¸Áö¿ª(±³°¡¸®´ÀƼ³ª¹«).
[°øºÎ¿ÍÀÇ Â÷ÀÌ]
¾øÀ½.
[Âü°í»çÇ×]
ÀÓÂ÷ÀÎ Á¡À¯ ÁßÀÓ(º¸Áõ±Ý - 1.87¾ï¿ø).
ÀÓ´ëÂ÷°è¾àÀÏ : 2023. 5. 4ÀÏ, Á¡À¯°³½ÃÀÏ : 2023. 6. 8ÀÏ. |
|
|
°ÇÃ๰ÇöȲ |
|
|
|
| ¼ÒÀçÁö |
°¿øÆ¯º°ÀÚÄ¡µµ »ïô½Ã ±Ù´ö¸é ±³°¡¸® 389¹øÁö |
| ´ëÁö¸éÀû |
4155§³(1259.09Æò) |
¿¬¸éÀû |
867.92§³(263.01Æò) |
ÁÖ¿ëµµ |
°øµ¿ÁÖÅà |
| °ÇÃà¸éÀû |
276.845§³(83.89Æò) |
¿ëÀû·ü»êÁ¤¿¬¸éÀû |
867.92§³(263.01Æò) |
Âø°øÀÏÀÚ |
2019.12.30 |
| °ÇÆóÀ² |
6.66% |
¿ëÀû·ü |
20.89% |
»ç¿ë½ÂÀÎÀÏÀÚ |
2020.09.25 |
| Áö»óÃþ¼ö |
5Ãþ |
ÁöÇÏÃþ¼ö |
|
±¸Á¶ |
ö±ÙÄÜÅ©¸®Æ®±¸Á¶ |
°ÇÃ๰Ãþº°ÇöȲ [º¸±â]| Ãþº° | ±¸Á¶ | ¿ëµµ | ¸éÀû | | 1Ãþ | ö±ÙÄÜÅ©¸®Æ®±¸Á¶ | °è´Ü½Ç | 111.72§³ (33.85Æò) | | 2Ãþ | ö±ÙÄÜÅ©¸®Æ®±¸Á¶ | ´ÜÁöÇü¿¬¸³ÁÖÅà | 623.01§³ (188.79Æò) | | 3Ãþ | ö±ÙÄÜÅ©¸®Æ®±¸Á¶ | ´ÜÁöÇü¿¬¸³ÁÖÅà | 623.01§³ (188.79Æò) | | 4Ãþ | ö±ÙÄÜÅ©¸®Æ®±¸Á¶ | ´ÜÁöÇü¿¬¸³ÁÖÅà | 623.01§³ (188.79Æò) | | 5Ãþ | ö±ÙÄÜÅ©¸®Æ®±¸Á¶ | ´ÜÁöÇü¿¬¸³ÁÖÅà | 623.01§³ (188.79Æò) |
|
|
|
|
|
 |
ÀÓÂ÷³»¿ª |
[¹è´ç¿ä±¸Á¾±âÀÏ : 2025/03/27] |
|
|
| ÀÓÂ÷ÀÎ |
Á¡À¯°ü°è |
ÀüÀÔÀÏÀÚ |
È®Á¤ÀÏÀÚ |
¹è´ç¿ä±¸ÀÏ |
º¸Áõ±Ý/Â÷ÀÓ |
´ëÇ׿ä°Ç |
ºñ°í |
| ±èOO |
101µ¿302È£°Ç¹°ÀüºÎ |
2023.07.11 |
2023.09.15 |
2025.3.13. |
187,000,000
|
X |
2023.06.08~2024.03.29 |
| ¸Å°¢¹°°Ç¸í¼¼ ºñ°í |
±èµ¿Áø:ÀÌ »ç°Ç ½Åûä±ÇÀÚÀÎ ÁÖÅõµ½Ãº¸Áõ°ø»ç¿¡¼ ÀÓ´ëÂ÷º¸Áõ±Ý ´ëÀ§º¯Á¦ ÈÄ ÀÓÂ÷ÀÎ ÁöÀ§ ½Â°èÇÔ |
|
|
|
 |
¹ý¿ø ¹°°ÇÀÚ·á ¿ä¾à |
|
|
|
|
| ¼Ò¸êµÇÁö ¾Ê´Â µî±âºÎ±Ç¸® |
ÇØ´ç»çÇ×¾øÀ½ |
| ¼³Á¤µÈ °ÍÀ¸·Î º¸´Â Áö»ó±Ç |
ÇØ´ç»çÇ×¾øÀ½ |
| ¹ý¿øÀÚ·á Æ¯ÀÌ»çÇ× |
[ÁÖ¿ä ¹®°Ç Á¢¼ö ³»¿ª]
|
[¸Å°¢¹°°Ç¸í¼¼¼ ºñ°í¶õ]
-µµ½ÃÇü»ýȰÁÖÅÃ(´ÜÁöÇü ¿¬¸³ÁÖÅÃ)ÀÓ |
[ºÎµ¿»ê ÇöȲÁ¶»ç¼ ºñ°í¶õ]
¼ÒÀç : »ïô½Ã ±Ù´ö¸é ±³°¡¸® ±Ù´öÃʵîÇб³ ºÏµ¿Ãø Àαٿ¡ À§Ä¡ÇÔ.
ÇöȲ : º»°ÇÀº »ïô½Ã ±Ù´ö¸é ¸Í¹æÇغ¯·Î 39, »ï |
|
| ¿©ÀÇÁÖ°æ¸Å Á¶¾ð ÇѸ¶µð |
ÀÌ ºÎµ¿»êÀÇ ÀÔÂû¹ý¿øÀº ÃáõÁö¹æ¹ý¿ø °¸ªÁö¿øÀÔ´Ï´Ù.
ÀÔÂûÀÏÀº 2026-03-16ÀÔ´Ï´Ù.
ÀÔÂû½Ã°£Àº 10:00~11:20ÀÔ´Ï´Ù. ÀÌ ¹ý¿ø¿¡´Â NH³óÇùÀºÇàÀÌ ÀÔÁ¡Çϰí ÀÖ½À´Ï´Ù.
|
|
|
| Åë°è±â°£ |
³«Âû¹°°Ç¼ö |
Æò±Õ°¨Á¤°¡ |
Æò±Õ³«Âû°¡ |
³«Âû°¡À² |
À¯ÂûȽ¼ö |
|
|
|
|
|
|
|
 |
ÀαÙÁö¿ª ÃÖ±Ù ³«Âû»ç·Ê
|
|
|
 |
|
|
[¾È³»] Ȥ½Ã ÀÌ¿ëÀÌ ºÒÆíÇϽðųª »èÁ¦ÇÒ ³»¿ëÀÌ ÀÖ´Ù¸é ÃÖ´ëÇÑ ³ë·ÂÇØ¼ °³¼±ÇØ ³ª°¡µµ·Ï ÇϰڽÀ´Ï´Ù.
 |
|
ÀÌ »çÀÌÆ®¿¡¼ Á¦°øµÇ´Â ºÎµ¿»ê°æ¸Å ÀÚ·á´Â ¹ý¿ø °æ¸Å°è¿¡¼ ó¸®Çϰí ÀÖ´Â ½ÇÁ¦ ¹°°ÇÀÇ Á¤º¸¿Í ÀÏÄ¡ÇÏÁö ¾ÊÀ» ¼öµµ ÀÖ½À´Ï´Ù.
´ç»ç´Â º» ÀÚ·á¿¡ °üÇÏ¿© Á¤½Ä ÄÁ¼³ÆÃ ÀÇ·Ú°¡ ¾Æ´Ñ ÀÌ»ó ¾î¶°ÇÑ º¸Áõµµ ÇÏÁö ¾ÊÀ¸¸ç ¹ýÀû Ã¥ÀÓÀ» ÁöÁö ¾Ê½À´Ï´Ù.
ÀÔÂûÇϱâ Àü¿¡ ²Ä²ÄÈ÷ ¹ý¿ø¿¡ ºñÄ¡µÈ ¸Å°¢¹°°Ç¸í¼¼¼ ¹× ±âŸ °øºÎ¸¦ ÀçÈ®ÀÎÇϽðí ÀÔÂû¿¡ Âü°¡ÇÏ½Ã±æ ¹Ù¶ø´Ï´Ù. |
|
|
|
|
|