|
|
|
| ¹°°ÇÁ¤º¸ Çٽɺ¸±â |
Ȩ > °æ¸ÅÁ¾ÇÕ°Ë»ö > ¹°°ÇÁ¤º¸ Çٽɺ¸±â |
|
|
| 2025Ÿ°æ41277 °æ¸Å»ç°ÇÀÇ ´Ù°¡±¸ÁÖÅà ¹°°Ç¿¡ °üÇÑ »ó¼¼ Á¤º¸ÀÔ´Ï´Ù. |
|
| ¼ÒÀçÁö |
°æ±âµµ ÆòÅýà ¾ÈÁßÀ¾ ¾ÈÁ߸® 449-4
|
|
| »ç°Ç¹øÈ£ |
2025 Ÿ°æ 41277 |
¹°°Ç¹øÈ£ |
1
|
¹°°Ç¿ëµµ |
´Ù°¡±¸ÁÖÅà |
| °¨Á¤Æò°¡¾× |
2,213,830,380¿ø |
°æ¸Å´ë»ó |
ÅäÁö ¹× °Ç¹°Àϰý¸Å°¢ |
ÁøÇà»óÅ |
À¯Âû |
| ÃÖÀúÀÔÂû°¡ |
(70%) 1,549,681,260¿ø
|
°Ç¹°¸éÀû |
837.69§³(253.40Æò) |
ÀÔÂû±âÀÏ |
2026.02.23(¿ù) 10:00
(ÀÔÂû 62ÀÏÀü)
|
| ÀÔÂûº¸Áõ±Ý |
(10%) 154,968,126¿ø |
ÅäÁö¸éÀû |
393.90§³(119.15Æò)
|
À¯ÂûȽ¼ö |
1ȸ |
| ÀÔÂû¹ý¿ø |
¼ö¿øÁö¹æ¹ý¿ø ÆòÅÃÁö¿ø |
°æ¸Å¹æ¹ý |
ºÎµ¿»êÀÓÀǰæ¸Å |
¹°°ÇÁ¶È¸¼ö |
¿À´Ã: ȸ [´©Àû: ȸ]
|
| ¸»¼Ò±âÁØ | ÃÖ¼±¼øÀ§ ¼³Á¤ : ¸ñ·Ï1. 2021. 10. 15. ±Ù
Àú´ç±Ç, ¸ñ·Ï2. 2022. 10. ¼³Á¤ 12. ±ÙÀú´ç±Ç
|
|
|
|
|
|
|
|
|
|
|
°æ¸Å´ë»ó ¸ñ·Ï
|
|
| ±¸ºÐ |
¸ñ·Ï |
ÁÖ¼Ò |
±¸Á¶/¿ëµµ/´ëÁö±Ç |
ºñ°í |
ÅäÁö
|
1 |
¾ÈÁ߸® 449-4 |
´ë |
393.9§³ (119.15Æò) |
°Ç¹°
|
2 |
¾ÈÁ߸® 449-4 |
1Ãþ ±Ù¸°»ýȰ½Ã¼³ ö±ÙÄÜÅ©¸®Æ®±¸Á¶ |
67.77§³ (20.50Æò)
|
| 2 |
¾ÈÁ߸® 449-4 |
2Ãþ ÁÖÅà ö±ÙÄÜÅ©¸®Æ®±¸Á¶ |
214.72§³ (64.95Æò)
|
| 2 |
¾ÈÁ߸® 449-4 |
3Ãþ ÁÖÅà ö±ÙÄÜÅ©¸®Æ®±¸Á¶ |
214.72§³ (64.95Æò)
|
| 2 |
¾ÈÁ߸® 449-4 |
4Ãþ ÁÖÅà ö±ÙÄÜÅ©¸®Æ®±¸Á¶ |
198.91§³ (60.17Æò)
|
| 2 |
¾ÈÁ߸® 449-4 |
¿Áž1Ãþ ö±ÙÄÜÅ©¸®Æ®±¸Á¶ |
141.57§³ (42.82Æò)
|
|
|
|
2025-12-22
À¯Âû
|
(100%)
2,213,830,380¿ø
|
|
|
|
2026-02-23
ÁøÇà
|
(70%)
1,549,681,260¿ø
|
|
|
|
|
|
°¨Á¤Æò°¡¼ ¿ä¾à |
|
[À§Ä¡/ÁÖÀ§È¯°æ]
º»°ÇÀº °æ±âµµ ÆòÅýà ¾ÈÁßÀ¾ ¾ÈÁ߸® ¼ÒÀç '¾ÈÁßÀ¾ ÇàÁ¤º¹Áö¼¾ÅÍ' ³²µ¿Ãø Àαٿ¡ À§Ä¡Çϸç, ÁÖÀ§´Â ´Üµ¶ÁÖÅÃ, ´Ù¼¼´ëÁÖÅÃ, ±Ù¸°»ýȰ½Ã¼³, ³ó°æÁö µîÀÌ È¥ÀçÇÏ´Â Áö¿ªÀÓ.
[±³Åë»óȲ]
º»°Ç±îÁö Á¦¹Ý Â÷·®ÀÇ ÁøÃâÀÔÀÌ °¡´ÉÇϰí Àαٿ¡ ³ë¼±¹ö½ºÁ¤·ùÀåÀÌ ¼ÒÀçÇÏ´Â µî Á¦¹Ý ±³Åë»óȲÀº º¸ÅëÀÓ.
3)ÇüÅ ¹× ÀÌ¿ë»óÅÂ
ÀÎÁ¢µµ·Î ´ëºñ µî°íÆòźÇÑ ¼¼ÀåÇüÀÇ ÅäÁö·Î¼, ÁÖ»ó¿ë °ÇºÎÁö·Î ÀÌ¿ë ÁßÀÓ.
4)ÀÎÁ¢ µµ·Î»óÅÂ
º»°Ç ºÏµ¿ÃøÀ¸·Î Æø ¾à 20¹ÌÅÍ ³»¿ÜÀÇ µµ·Î, ³²¼ÃøÀ¸·Î Æø ¾à 10¹ÌÅÍ ³»¿ÜÀÇ µµ·Î¿Í Á¢Çϰí ÀÖÀ½.
[ÅäÁöÀÌ¿ë°èȹ]
Á¦1Á¾ÀϹÝÁÖ°ÅÁö¿ª, Áö±¸´ÜÀ§°èȹ±¸¿ª(¾ÈÁß¼Û´ãÁö±¸), ¼Ò·Î1·ù(Æø 10m~12m)(Á¢ÇÕ), Áß·Î1·ù(Æø 20m~25m)(Á¢ÇÕ) °¡Ãà»çÀ°Á¦Çѱ¸¿ª(2022-01-26)(ÀüºÎÁ¦Çѱ¸¿ª)£¼°¡ÃàºÐ´¢ÀÇ °ü¸® ¹× À̿뿡 °üÇÑ ¹ý·ü£¾
6)Á¦½Ã¸ñ·Ï ¿ÜÀÇ ¹°°Ç
-
[°øºÎ¿ÍÀÇ Â÷ÀÌ]
-
[Âü°í»çÇ×]
ÀÓ´ë°ü°è´Â ¹Ì»óÀÓ.
[°Ç¹°±¸Á¶]
º»°ÇÀº ö±ÙÄÜÅ©¸®Æ®±¸Á¶ ±âŸÁöºØ 4Ãþ °Ç¹°·Î¼,
(»ç¿ë½ÂÀÎÀÏ: 2022.10.05.)
¿Üº®: ¼®Àç ºÙÀÓ ¸¶°¨ µî,
³»º®: º®Áö ¹× ÀϺΠŸÀÏ ¸¶°¨ µî,
âȣ: ¼¦½Ãâȣ ÀÓ.
[ÀÌ¿ë»óÅÂ]
º»°ÇÀº ¼Ò¸ÅÁ¡(1Ãþ) ¹× ´Ù°¡±¸ÁÖÅÃ(2Ãþ, 3Ãþ, 4Ãþ)À¸·Î ÀÌ¿ë ÁßÀÓ.
[¼³ºñ³»¿ª]
À§»ý ±Þ, ¹è¼ö ¼³ºñ, µµ½Ã°¡½º¼³ºñ, ³¹æ¼³ºñ, ÈÀçŽÁö¼³ºñ, ½Â°±â ¼³ºñ µîÀÌ µÇ¾î ÀÖÀ½.
4)ºÎÇÕ¹° ¹× Á¾¹°
-
[°øºÎ¿ÍÀÇ Â÷ÀÌ]
-
[Âü°í»çÇ×]
ÀÓ´ë°ü°è´Â ¹Ì»óÀÓ. |
|
|
°ÇÃ๰ÇöȲ |
|
|
|
| ¼ÒÀçÁö |
°æ±âµµ ÆòÅýà ¾ÈÁßÀ¾ ¾ÈÁ߸® 449-4¹øÁö |
| ´ëÁö¸éÀû |
393.9§³(119.36Æò) |
¿¬¸éÀû |
696.12§³(210.95Æò) |
ÁÖ¿ëµµ |
Á¦1Á¾±Ù¸°»ýȰ½Ã¼³ |
| °ÇÃà¸éÀû |
235.62§³(71.4Æò) |
¿ëÀû·ü»êÁ¤¿¬¸éÀû |
696.12§³(210.95Æò) |
Âø°øÀÏÀÚ |
2022.02.25 |
| °ÇÆóÀ² |
59.82% |
¿ëÀû·ü |
176.73% |
»ç¿ë½ÂÀÎÀÏÀÚ |
2022.10.05 |
| Áö»óÃþ¼ö |
1Ãþ |
ÁöÇÏÃþ¼ö |
|
±¸Á¶ |
ö±ÙÄÜÅ©¸®Æ®±¸Á¶ |
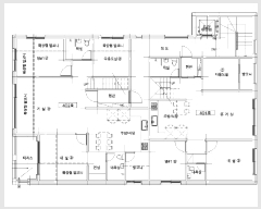
°ÇÃ๰Ãþº°ÇöȲ [º¸±â]| Ãþº° | ±¸Á¶ | ¿ëµµ | ¸éÀû | | 1Ãþ | ö±ÙÄÜÅ©¸®Æ®±¸Á¶ | ¼Ò¸ÅÁ¡ | 38.25§³ (11.59Æò) | | 1Ãþ | ö±ÙÄÜÅ©¸®Æ®±¸Á¶ | °è´Ü½Ç | 19.83§³ (6.01Æò) | | 1Ãþ | ö±ÙÄÜÅ©¸®Æ®±¸Á¶ | ¼Ò¸ÅÁ¡ | 9.69§³ (2.94Æò) | | 2Ãþ | ö±ÙÄÜÅ©¸®Æ®±¸Á¶ | 4°¡±¸ | 214.72§³ (65.07Æò) | | 3Ãþ | ö±ÙÄÜÅ©¸®Æ®±¸Á¶ | 4°¡±¸ | 214.72§³ (65.07Æò) | | 4Ãþ | ö±ÙÄÜÅ©¸®Æ®±¸Á¶ | 2°¡±¸ | 198.91§³ (60.28Æò) | | ¿Áž1Ãþ | ö±ÙÄÜÅ©¸®Æ®±¸Á¶ | ´Ù¶ô | 141.57§³ (42.9Æò) |
|
|
|
|
|
 |
ÀÓÂ÷³»¿ª |
[¹è´ç¿ä±¸Á¾±âÀÏ : 2025/05/07] |
|
|
| ÀÓÂ÷ÀÎ |
Á¡À¯°ü°è |
ÀüÀÔÀÏÀÚ |
È®Á¤ÀÏÀÚ |
¹è´ç¿ä±¸ÀÏ |
º¸Áõ±Ý/Â÷ÀÓ |
´ëÇ׿ä°Ç |
ºñ°í |
| COOOOOOOO |
203È£ |
2022.10.25 |
¹Ì»ó |
|
¹Ì»ó [¿ù]¹Ì»ó |
X |
¹Ì»ó |
| COOOOOOOOO |
203È£ |
2024.05.13 |
¹Ì»ó |
|
¹Ì»ó [¿ù]¹Ì»ó |
X |
¹Ì»ó |
| QOOOOOOOOOOO |
203È£ |
2022.10.25 |
¹Ì»ó |
|
¹Ì»ó [¿ù]¹Ì»ó |
X |
¹Ì»ó |
| QOOOOOOOOOO |
203È£ |
2022.10.25 |
¹Ì»ó |
|
¹Ì»ó [¿ù]¹Ì»ó |
X |
¹Ì»ó |
| QOOOOOOOOOOOOO |
203È£ |
2022.10.25. |
2022.10.17. |
2025.3.14. |
190,000,000
|
X |
2022.10.24.ºÎÅÍ2024.10.24.±îÁö |
| ±èOO |
304È£ |
2024.04.17. |
2024.04.17. |
2025.4.22. |
10,000,000 [¿ù]600,000 |
X |
2022.10.05.ºÎÅÍÇöÀç±îÁö |
| ±èOO |
303È£ |
2022.10.17. |
2022.10.14. |
2025.3.10. |
190,000,000
|
X |
2022.10.14.ºÎÅÍÇöÀç±îÁö |
| ±èOO |
301È£ |
2024.04.23 |
¹Ì»ó |
|
¹Ì»ó [¿ù]¹Ì»ó |
X |
¹Ì»ó |
| ±èOO |
302È£ |
2024.04.17 |
¹Ì»ó |
|
¹Ì»ó [¿ù]¹Ì»ó |
X |
¹Ì»ó |
| ¼¼OOOOOOOOO |
301È£ |
2024.04.23. |
2022.10.20. |
2025.4.22. |
10,000,000 [¿ù]1,000,000 |
X |
2023.07.12.ºÎÅÍÇöÀç±îÁö |
| ÀÌOO |
204È£ |
2024.04.23. |
2023.10.12. |
2025.3.10. |
30,000,000 [¿ù]350,000 |
X |
2023.10.10.ºÎÅÍÇöÀç±îÁö |
| ÀåOO |
202È£ |
2024.04.17 |
¹Ì»ó |
|
¹Ì»ó [¿ù]¹Ì»ó |
X |
¹Ì»ó |
| ÁÖOOOOOOO |
302È£/202È£ |
2024.04.17./2024.04.17. |
2023.10.12./2023.10.12. |
2024.4.22. |
5,000,000¿ø/5,000,000¿ø [¿ù]1,000,000¿ø/500,000¿ø |
X |
2023.10.05.ºÎÅÍ2024.04.04.±îÁö/2023.10.04.ºÎÅÍ2024.04.04.±îÁö |
| ÃÖOO |
101È£ |
¹Ì»ó |
¹Ì»ó |
|
10,000,000 [¿ù]1,000,000 |
X |
¹Ì»ó |
| ¸Å°¢¹°°Ç¸í¼¼ ºñ°í |
±è°¡½Ç:ÀÓ´ëÂ÷°è¾à¼»ó Â÷ÀÓÀº 650,000¿øÀÓ.
¼¼Àϱâ°è¼³ºñ ÁÖ½Äȸ»ç:Á÷¿ø ±èº´ÁÖ ÀüÀÔ.
ÁÖ½Äȸ»ç ´Ù°æ±â¾÷:Á÷¿ø ±è¼º±Õ(302È£), Àå°æÃ¶(202È£) °¢ ÀüÀÔ. |
|
|
|
 |
¹ý¿ø ¹°°ÇÀÚ·á ¿ä¾à |
|
|
|
|
| ¼Ò¸êµÇÁö ¾Ê´Â µî±âºÎ±Ç¸® |
|
| ¼³Á¤µÈ °ÍÀ¸·Î º¸´Â Áö»ó±Ç |
|
| ¹ý¿øÀÚ·á Æ¯ÀÌ»çÇ× |
[ÁÖ¿ä ¹®°Ç Á¢¼ö ³»¿ª]
|
[¸Å°¢¹°°Ç¸í¼¼¼ ºñ°í¶õ]
Àϰý¸Å°¢. |
[ºÎµ¿»ê ÇöȲÁ¶»ç¼ ºñ°í¶õ]
* ºÎµ¿»êÀÇ Ç¥½Ã»ó 4Ãþ ¼Ò¸ÅÁ¡À̶ó°í µÇ¾î ÀÖÀ¸³ª, ÇöȲÀº 1Ãþ¿¡ Á¡Æ÷°¡ 1°³ ÀÖ°í, ÁÖ°Å¿ëÀ¸·Î 2Ãþ¿¡ 4°³È£½Ç, 3Ãþ¿¡ 4°³È£½Ç, 4Ãþ¿¡ 2°³È£½ÇÀÌ ÀÖÀ½.
* °Ç¹°¿¡ `³ëÀ»`À̶ó°í Ç¥½ÃµÇ¾î ÀÖÀ½. |
|
| ¿©ÀÇÁÖ°æ¸Å Á¶¾ð ÇѸ¶µð |
ÀÌ ºÎµ¿»êÀÇ ÀÔÂû¹ý¿øÀº ¼ö¿øÁö¹æ¹ý¿ø ÆòÅÃÁö¿øÀÔ´Ï´Ù.
ÀÔÂûÀÏÀº 2026-02-23ÀÔ´Ï´Ù.
ÀÔÂû½Ã°£Àº 10:10~11:20ÀÔ´Ï´Ù. ÀÌ ¹ý¿ø¿¡´Â ½ÅÇÑÀºÇàÀÌ ÀÔÁ¡Çϰí ÀÖ½À´Ï´Ù.
|
|
|
| Åë°è±â°£ |
³«Âû¹°°Ç¼ö |
Æò±Õ°¨Á¤°¡ |
Æò±Õ³«Âû°¡ |
³«Âû°¡À² |
À¯ÂûȽ¼ö |
| 3°³¿ù |
10°Ç |
598,494,027¿ø |
365,779,644¿ø |
58% |
2.2ȸ |
| 6°³¿ù |
13°Ç |
583,805,331¿ø |
366,646,188¿ø |
60% |
2.2ȸ |
| 12°³¿ù |
15°Ç |
550,400,766¿ø |
349,553,363¿ø |
61% |
2.1ȸ |
|
|
|
|
|
|
|
 |
ÀαÙÁö¿ª ÃÖ±Ù ³«Âû»ç·Ê
|
|
|
 |
|
|
[¾È³»] Ȥ½Ã ÀÌ¿ëÀÌ ºÒÆíÇϽðųª »èÁ¦ÇÒ ³»¿ëÀÌ ÀÖ´Ù¸é ÃÖ´ëÇÑ ³ë·ÂÇØ¼ °³¼±ÇØ ³ª°¡µµ·Ï ÇϰڽÀ´Ï´Ù.
 |
|
ÀÌ »çÀÌÆ®¿¡¼ Á¦°øµÇ´Â ºÎµ¿»ê°æ¸Å ÀÚ·á´Â ¹ý¿ø °æ¸Å°è¿¡¼ ó¸®Çϰí ÀÖ´Â ½ÇÁ¦ ¹°°ÇÀÇ Á¤º¸¿Í ÀÏÄ¡ÇÏÁö ¾ÊÀ» ¼öµµ ÀÖ½À´Ï´Ù.
´ç»ç´Â º» ÀÚ·á¿¡ °üÇÏ¿© Á¤½Ä ÄÁ¼³ÆÃ ÀÇ·Ú°¡ ¾Æ´Ñ ÀÌ»ó ¾î¶°ÇÑ º¸Áõµµ ÇÏÁö ¾ÊÀ¸¸ç ¹ýÀû Ã¥ÀÓÀ» ÁöÁö ¾Ê½À´Ï´Ù.
ÀÔÂûÇϱâ Àü¿¡ ²Ä²ÄÈ÷ ¹ý¿ø¿¡ ºñÄ¡µÈ ¸Å°¢¹°°Ç¸í¼¼¼ ¹× ±âŸ °øºÎ¸¦ ÀçÈ®ÀÎÇϽðí ÀÔÂû¿¡ Âü°¡ÇÏ½Ã±æ ¹Ù¶ø´Ï´Ù. |
|
|
|
|
|