|
|
|
| ¹°°ÇÁ¤º¸ Çٽɺ¸±â |
Ȩ > °æ¸ÅÁ¾ÇÕ°Ë»ö > ¹°°ÇÁ¤º¸ Çٽɺ¸±â |
|
|
| 2025Ÿ°æ432 °æ¸Å»ç°ÇÀÇ ¿ÀÇǽºÅÚ ¹°°Ç¿¡ °üÇÑ »ó¼¼ Á¤º¸ÀÔ´Ï´Ù. |
|
| ¼ÒÀçÁö |
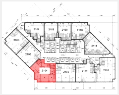
ºÎ»ê±¤¿ª½Ã ºÎ»êÁø±¸ ºÎÀüµ¿ 537-9 ´õ¼¥ ¼¾Æ®·²½ºÅ¸ À̵¿ 21Ãþ2104È£
|
|
| »ç°Ç¹øÈ£ |
2025 Ÿ°æ 432 |
¹°°Ç¹øÈ£ |
1
|
¹°°Ç¿ëµµ |
¿ÀÇǽºÅÚ |
| °¨Á¤Æò°¡¾× |
433,000,000¿ø |
°æ¸Å´ë»ó |
ÅäÁö ¹× °Ç¹°Àϰý ¸Å°¢ |
ÁøÇà»óÅ |
½Å°Ç |
| ÃÖÀúÀÔÂû°¡ |
(100%) 433,000,000¿ø
|
°Ç¹°¸éÀû |
118.36§³(35.80Æò) |
ÀÔÂû±âÀÏ |
2025.12.30(È) 10:00
(ÀÔÂû 3ÀÏÀü)
|
| ÀÔÂûº¸Áõ±Ý |
(10%) 43,300,000¿ø |
ÅäÁö¸éÀû |
14.18§³(4.29Æò)
|
À¯ÂûȽ¼ö |
0ȸ |
| ÀÔÂû¹ý¿ø |
ºÎ»êÁö¹æ¹ý¿ø |
°æ¸Å¹æ¹ý |
ºÎµ¿»êÀÓÀǰæ¸Å |
¹°°ÇÁ¶È¸¼ö |
¿À´Ã: ȸ [´©Àû: ȸ]
|
| ¸»¼Ò±âÁØ | ÃÖ¼±¼øÀ§ ¼³Á¤ : 202306.27. ±ÙÀú´ç±Ç ¼³Á¤
|
|
|
|
|
|
|
|
|
|
|
°æ¸Å´ë»ó ¸ñ·Ï
|
|
| ±¸ºÐ |
¸ñ·Ï |
ÁÖ¼Ò |
±¸Á¶/¿ëµµ/´ëÁö±Ç |
ºñ°í |
´ëÁö±Ç
|
1 |
ºÎÀüµ¿ 537-9 |
29642.8 ºÐÀÇ 14.183 |
14.183§³ (4.29Æò)
|
°Ç¹°
|
1 |
ºÎÀüµ¿ 537-9 |
À̵¿ 21Ãþ2104È£ ö±ÙÄÜÅ©¸®Æ®±¸Á¶ |
118.356§³ (35.80Æò)
|
|
|
|
2025-12-30
ÁøÇà
|
(100%)
433,000,000¿ø
|
|
|
|
|
|
°¨Á¤Æò°¡¼ ¿ä¾à |
|
[À§Ä¡/ÁÖÀ§È¯°æ]
º»°ÇÀº ºÎ»ê±¤¿ª½Ã ºÎ»êÁø±¸ ÀüÆ÷µ¿ ¼ÒÀç '°æ³²°ø¾÷°íµîÇб³' ³²¼Ãø Àαٿ¡ À§Ä¡Çϸç, ÁÖÀ§´Â °øµ¿ÁÖÅÃ, ±Ù¸°»ýȰ½Ã¼³ µîÀ¸·Î Çü¼º µÇ¾î ÀÖÀ¸¸ç, Á¦¹Ý ÀÔÁöÁ¶°Ç ¹× ÁÖÀ§È¯°æÀº º¸Åë½ÃµÊ.
[±³Åë»óȲ]
º»°Ç±îÁö Â÷·®Á¢±Ù °¡´ÉÇϰí Àαٿ¡ ½Ã³»¹ö½ºÁ¤·ùÀå ¹× µµ½ÃÁöÇÏöµµ'¹ü³»°ñ¿ª, ÀüÆ÷¿ª'ÀÌ ¼ÒÀçÇÏ´Â ¹Ù, Á¦¹Ý±³Åë »çÁ¤Àº º¸Åë½ÃµÊ.
[°Ç¹°±¸Á¶]
ö±ÙÄÜÅ©¸®Æ®±¸Á¶ ÆòÁöºØ ÁöÇÏ5Ãþ, Áö»ó47Ãþ °Ç¹° ³» 21Ãþ 2104È£ À¸·Î¼,
¿Ü º® : ¾Ë·ç¹Ì´½ º¹ÇÕÆÇ³Ú ¹× ¼®Àç ¸¶°¨ µî
â È£ : ¼¦½Ãâȣ µî ÀÓ.
³»ºÎ ¹× ³»ºÎ ¸¶°¨Àç´Â ÀÌÇØ°ü°èÀÎÀÇ ºÎÀç·Î Á¶»çÇÏÁö ¸øÇÏ¿´À½.
[ÀÌ¿ë»óÅÂ]
¾÷¹«½Ã¼³(¿ÀÇǽºÅÚ)·Î ÀÌ¿ëÁßÀÓ.
[¼³ºñ³»¿ª]
±Þ¼ö ¹× ¹è¼ö¼³ºñ, À§»ý¼³ºñ, ½Â°±â¼³ºñ, ÈÀç°æº¸±â, ÈÀçŽÁö¼³ºñ, ¼ÒÈÀü¼³ºñ, °øµ¿Çö°ü¹®, µµ½Ã°¡½º °ø±Þ¼³ºñ, Áß¾Ó³¹æ(¿º´ÇÕ)¼³ºñ µîÀÌ µÇ¾îÀÖÀ½.
[ÅäÁöÇü»ó/ÀÌ¿ë»óÅÂ]
ÀÎÁ¢Áö¿Í µî°í ÆòźÇÑ °¡·ÎÀÚ¹æÇü ÅäÁö·Î¼, ¾÷¹«½Ã¼³(¿ÀÇǽºÅÚ) ¹× °øµ¿ÁÖÅÃ(´Ù¼¼´ëÁÖÅÃ) °ÇºÎÁö·Î ÀÌ¿ëÁßÀÓ.
7)ÀÎÁ¢ µµ·Î»óŵî
4¸éÀ¸·Î Áß·Î ¶Ç´À ¼Ò·Î¿¡ Á¢ÇÔ.
[ÅäÁöÀÌ¿ë°èȹ]
ÀϹݻó¾÷Áö¿ª, ¹æÈÁö±¸, Á¦1Á¾Áö±¸´ÜÀ§°èȹ±¸¿ª, ¼Ò·Î1·ù(Æø 10m~12m)(Á¢ÇÕ), Áß·Î1·ù(Æø 20m~25m)(Á¢ÇÕ), Áß·Î2·ù(Æø 15m~20m)(Á¢ÇÕ), Áß·Î3·ù(Æø 12m~15m)(Á¢ÇÕ), »ó´ëº¸È£±¸¿ª£¼±³À°È¯°æ º¸È£¿¡ °üÇÑ ¹ý·ü£¾ÀÓ.
[°øºÎ¿ÍÀÇ Â÷ÀÌ]
-
[Âü°í»çÇ×]
ÀÓ´ë°ü°è : ¹Ì»óÀÓ.
±âŸ»çÇ× : ¾øÀ½. |
|
|
°ÇÃ๰ÇöȲ |
|
|
|
| ¼ÒÀçÁö |
ºÎ»ê±¤¿ª½Ã ºÎ»êÁø±¸ ºÎÀüµ¿ 537-9¹øÁö |
| ´ëÁö¸éÀû |
|
¿¬¸éÀû |
36763.724§³(11140.52Æò) |
ÁÖ¿ëµµ |
ÆÇ¸Å½Ã¼³ |
| °ÇÃà¸éÀû |
|
¿ëÀû·ü»êÁ¤¿¬¸éÀû |
8325.471§³(2522.87Æò) |
Âø°øÀÏÀÚ |
2006.05.11 |
| °ÇÆóÀ² |
|
¿ëÀû·ü |
|
»ç¿ë½ÂÀÎÀÏÀÚ |
2011.06.17 |
| Áö»óÃþ¼ö |
3Ãþ |
ÁöÇÏÃþ¼ö |
5Ãþ |
±¸Á¶ |
ö±ÙÄÜÅ©¸®Æ®±¸Á¶ |
°ÇÃ๰Ãþº°ÇöȲ [º¸±â]| Ãþº° | ±¸Á¶ | ¿ëµµ | ¸éÀû | | 2Ãþ | ö±ÙÄÜÅ©¸®Æ®±¸Á¶ | °è´Ü½Ç,ELEV,·Îºñ,¿ÜºÎ¼ÅƲELEV | 513.891§³ (155.72Æò) | | 4Ãþ | ö±ÙÄÜÅ©¸®Æ®±¸Á¶ | °øµ¿ÁÖÅÃ(¾ÆÆÄÆ®) | 1139.387§³ (345.27Æò) | | 6Ãþ | ö±ÙÄÜÅ©¸®Æ®±¸Á¶ | °øµ¿ÁÖÅÃ(¾ÆÆÄÆ®) | 1139.387§³ (345.27Æò) | | 6Ãþ | ö±ÙÄÜÅ©¸®Æ®±¸Á¶ | °øµ¿ÁÖÅÃ(¾ÆÆÄÆ®) | 1321.162§³ (400.35Æò) | | 7Ãþ | ö±ÙÄÜÅ©¸®Æ®±¸Á¶ | °øµ¿ÁÖÅÃ(¾ÆÆÄÆ®) | 1321.162§³ (400.35Æò) | | 7Ãþ | ö±ÙÄÜÅ©¸®Æ®±¸Á¶ | °øµ¿ÁÖÅÃ(¾ÆÆÄÆ®) | 1139.387§³ (345.27Æò) | | 8Ãþ | ö±ÙÄÜÅ©¸®Æ®±¸Á¶ | °øµ¿ÁÖÅÃ(¾ÆÆÄÆ®) | 1139.387§³ (345.27Æò) | | 10Ãþ | ö±ÙÄÜÅ©¸®Æ®±¸Á¶ | °øµ¿ÁÖÅÃ(¾ÆÆÄÆ®) | 1139.387§³ (345.27Æò) | | 15Ãþ | ö±ÙÄÜÅ©¸®Æ®±¸Á¶ | °øµ¿ÁÖÅÃ(¾ÆÆÄÆ®) | 1321.162§³ (400.35Æò) | | 17Ãþ | ö±ÙÄÜÅ©¸®Æ®±¸Á¶ | °øµ¿ÁÖÅÃ(¾ÆÆÄÆ®) | 1139.387§³ (345.27Æò) | | 18Ãþ | ö±ÙÄÜÅ©¸®Æ®±¸Á¶ | °øµ¿ÁÖÅÃ(¾ÆÆÄÆ®) | 1139.387§³ (345.27Æò) | | 19Ãþ | ö±ÙÄÜÅ©¸®Æ®±¸Á¶ | °øµ¿ÁÖÅÃ(¾ÆÆÄÆ®) | 1321.162§³ (400.35Æò) | | 20Ãþ | ö±ÙÄÜÅ©¸®Æ®±¸Á¶ | °øµ¿ÁÖÅÃ(¾ÆÆÄÆ®) | 1139.387§³ (345.27Æò) | | 21Ãþ | ö±ÙÄÜÅ©¸®Æ®±¸Á¶ | °øµ¿ÁÖÅÃ(¾ÆÆÄÆ®) | 1139.387§³ (345.27Æò) | | 22Ãþ | ö±ÙÄÜÅ©¸®Æ®±¸Á¶ | °øµ¿ÁÖÅÃ(¾ÆÆÄÆ®) | 1139.387§³ (345.27Æò) | | 23Ãþ | ö±ÙÄÜÅ©¸®Æ®±¸Á¶ | °øµ¿ÁÖÅÃ(¾ÆÆÄÆ®) | 1321.162§³ (400.35Æò) | | 23Ãþ | ö±ÙÄÜÅ©¸®Æ®±¸Á¶ | °øµ¿ÁÖÅÃ(¾ÆÆÄÆ®) | 1139.387§³ (345.27Æò) | | 24Ãþ | ö±ÙÄÜÅ©¸®Æ®±¸Á¶ | °øµ¿ÁÖÅÃ(¾ÆÆÄÆ®) | 1139.387§³ (345.27Æò) | | 27Ãþ | ö±ÙÄÜÅ©¸®Æ®±¸Á¶ | °øµ¿ÁÖÅÃ(¾ÆÆÄÆ®) | 1139.387§³ (345.27Æò) | | 28Ãþ | ö±ÙÄÜÅ©¸®Æ®±¸Á¶ | ÁÖ¹ÎÈްԽü³,º¹µµ | 643.349§³ (194.95Æò) | | 29Ãþ | ö±ÙÄÜÅ©¸®Æ®±¸Á¶ | °øµ¿ÁÖÅÃ(¾ÆÆÄÆ®) | 1129.575§³ (342.3Æò) | | 30Ãþ | ö±ÙÄÜÅ©¸®Æ®±¸Á¶ | °øµ¿ÁÖÅÃ(¾ÆÆÄÆ®) | 1129.575§³ (342.3Æò) | | 33Ãþ | ö±ÙÄÜÅ©¸®Æ®±¸Á¶ | °øµ¿ÁÖÅÃ(¾ÆÆÄÆ®) | 1163.151§³ (352.47Æò) | | 36Ãþ | ö±ÙÄÜÅ©¸®Æ®±¸Á¶ | °øµ¿ÁÖÅÃ(¾ÆÆÄÆ®) | 1357.767§³ (411.44Æò) | | 37Ãþ | ö±ÙÄÜÅ©¸®Æ®±¸Á¶ | °øµ¿ÁÖÅÃ(¾ÆÆÄÆ®) | 1163.151§³ (352.47Æò) | | 39Ãþ | ö±ÙÄÜÅ©¸®Æ®±¸Á¶ | °øµ¿ÁÖÅÃ(¾ÆÆÄÆ®) | 1163.151§³ (352.47Æò) | | 40Ãþ | ö±ÙÄÜÅ©¸®Æ®±¸Á¶ | °øµ¿ÁÖÅÃ(¾ÆÆÄÆ®) | 1163.151§³ (352.47Æò) | | 45Ãþ | ö±ÙÄÜÅ©¸®Æ®±¸Á¶ | °øµ¿ÁÖÅÃ(¾ÆÆÄÆ®) | 887.637§³ (268.98Æò) | | 47Ãþ | ö±ÙÄÜÅ©¸®Æ®±¸Á¶ | °øµ¿ÁÖÅÃ(¾ÆÆÄÆ®) | 887.637§³ (268.98Æò) | | Áö5Ãþ | ö±ÙÄÜÅ©¸®Æ®±¸Á¶ | ±â°è½Ç | 464.525§³ (140.77Æò) |
|
|
|
|
|
 |
ÀÓÂ÷³»¿ª |
[¹è´ç¿ä±¸Á¾±âÀÏ : 2025/04/21] |
|
|
| ÀÓÂ÷ÀÎ |
Á¡À¯°ü°è |
ÀüÀÔÀÏÀÚ |
È®Á¤ÀÏÀÚ |
¹è´ç¿ä±¸ÀÏ |
º¸Áõ±Ý/Â÷ÀÓ |
´ëÇ׿ä°Ç |
ºñ°í |
| Á¶»çµÈ ÀÓÂ÷³»¿ªÀÌ ¾ø½À´Ï´Ù. |
|
|
|
 |
¹ý¿ø ¹°°ÇÀÚ·á ¿ä¾à |
|
|
|
|
| ¼Ò¸êµÇÁö ¾Ê´Â µî±âºÎ±Ç¸® |
|
| ¼³Á¤µÈ °ÍÀ¸·Î º¸´Â Áö»ó±Ç |
|
| ¹ý¿øÀÚ·á Æ¯ÀÌ»çÇ× |
|
| ¿©ÀÇÁÖ°æ¸Å Á¶¾ð ÇѸ¶µð |
ÀÌ ºÎµ¿»êÀÇ ÀÔÂû¹ý¿øÀº ºÎ»êÁö¹æ¹ý¿øÀÔ´Ï´Ù.
ÀÔÂûÀÏÀº 2025-12-30ÀÔ´Ï´Ù.
ÀÔÂû½Ã°£Àº 11:00~11:20ÀÔ´Ï´Ù. ÀÌ ¹ý¿ø¿¡´Â ½ÅÇÑÀºÇà,ºÎ»êÀºÇàÀÌ ÀÔÁ¡Çϰí ÀÖ½À´Ï´Ù.
|
|
|
| Åë°è±â°£ |
³«Âû¹°°Ç¼ö |
Æò±Õ°¨Á¤°¡ |
Æò±Õ³«Âû°¡ |
³«Âû°¡À² |
À¯ÂûȽ¼ö |
| 3°³¿ù |
8°Ç |
224,750,000¿ø |
147,949,438¿ø |
67% |
1.8ȸ |
| 6°³¿ù |
13°Ç |
234,000,000¿ø |
169,933,885¿ø |
73% |
1.5ȸ |
| 12°³¿ù |
17°Ç |
265,269,501¿ø |
191,015,776¿ø |
73% |
1.5ȸ |
|
|
|
|
|
|
|
 |
ÀαÙÁö¿ª ÃÖ±Ù ³«Âû»ç·Ê
|
|
|
 |
|
|
[¾È³»] Ȥ½Ã ÀÌ¿ëÀÌ ºÒÆíÇϽðųª »èÁ¦ÇÒ ³»¿ëÀÌ ÀÖ´Ù¸é ÃÖ´ëÇÑ ³ë·ÂÇØ¼ °³¼±ÇØ ³ª°¡µµ·Ï ÇϰڽÀ´Ï´Ù.
 |
|
ÀÌ »çÀÌÆ®¿¡¼ Á¦°øµÇ´Â ºÎµ¿»ê°æ¸Å ÀÚ·á´Â ¹ý¿ø °æ¸Å°è¿¡¼ ó¸®Çϰí ÀÖ´Â ½ÇÁ¦ ¹°°ÇÀÇ Á¤º¸¿Í ÀÏÄ¡ÇÏÁö ¾ÊÀ» ¼öµµ ÀÖ½À´Ï´Ù.
´ç»ç´Â º» ÀÚ·á¿¡ °üÇÏ¿© Á¤½Ä ÄÁ¼³ÆÃ ÀÇ·Ú°¡ ¾Æ´Ñ ÀÌ»ó ¾î¶°ÇÑ º¸Áõµµ ÇÏÁö ¾ÊÀ¸¸ç ¹ýÀû Ã¥ÀÓÀ» ÁöÁö ¾Ê½À´Ï´Ù.
ÀÔÂûÇϱâ Àü¿¡ ²Ä²ÄÈ÷ ¹ý¿ø¿¡ ºñÄ¡µÈ ¸Å°¢¹°°Ç¸í¼¼¼ ¹× ±âŸ °øºÎ¸¦ ÀçÈ®ÀÎÇϽðí ÀÔÂû¿¡ Âü°¡ÇÏ½Ã±æ ¹Ù¶ø´Ï´Ù. |
|
|
|
|
|