|
|
|
| ¹°°ÇÁ¤º¸ Çٽɺ¸±â |
Ȩ > °æ¸ÅÁ¾ÇÕ°Ë»ö > ¹°°ÇÁ¤º¸ Çٽɺ¸±â |
|
|
| 2025Ÿ°æ1002 °æ¸Å»ç°ÇÀÇ ±Ù¸°»ó°¡ ¹°°Ç¿¡ °üÇÑ »ó¼¼ Á¤º¸ÀÔ´Ï´Ù. |
|
| ¼ÒÀçÁö |
°æ»ó³²µµ ¾ç»ê½Ã Áߺε¿ 162-2 ÁøÈï¿¡ÀÌ¿ø 1Ãþ101È£
|
|
| »ç°Ç¹øÈ£ |
2025 Ÿ°æ 1002 |
¹°°Ç¹øÈ£ |
1
|
¹°°Ç¿ëµµ |
±Ù¸°»ó°¡ |
| °¨Á¤Æò°¡¾× |
228,000,000¿ø |
°æ¸Å´ë»ó |
ÅäÁö ¹× °Ç¹°Àϰý ¸Å°¢ |
ÁøÇà»óÅ |
À¯Âû |
| ÃÖÀúÀÔÂû°¡ |
(70%) 159,600,000¿ø
|
°Ç¹°¸éÀû |
88.37§³(26.73Æò) |
ÀÔÂû±âÀÏ |
2026.03.05(¸ñ) 10:00
|
| ÀÔÂûº¸Áõ±Ý |
(10%) 15,960,000¿ø |
ÅäÁö¸éÀû |
30.89§³(9.34Æò)
|
À¯ÂûȽ¼ö |
1ȸ |
| ÀÔÂû¹ý¿ø |
¿ï»êÁö¹æ¹ý¿ø |
°æ¸Å¹æ¹ý |
ºÎµ¿»êÀÓÀǰæ¸Å |
¹°°ÇÁ¶È¸¼ö |
¿À´Ã: 2ȸ [´©Àû: 1140ȸ]
|
| ¸»¼Ò±âÁØ | ÃÖ¼±¼øÀ§ ¼³Á¤ : 2023.3.22.±ÙÀú´ç±Ç ¼³Á¤
|
|
|
|
|
|
|
|
|
|
|
°æ¸Å´ë»ó ¸ñ·Ï
|
|
| ±¸ºÐ |
¸ñ·Ï |
ÁÖ¼Ò |
±¸Á¶/¿ëµµ/´ëÁö±Ç |
ºñ°í |
´ëÁö±Ç
|
1 |
Áߺε¿ 162-2 |
887 ºÐÀÇ 30.8911 |
30.8911§³ (9.34Æò)
|
°Ç¹°
|
1 |
Áߺε¿ 162-2 |
1Ãþ101È£ ö±ÙÄÜÅ©¸®Æ®±¸Á¶ |
88.37§³ (26.73Æò)
|
|
|
|
2026-01-28
À¯Âû
|
(100%)
228,000,000¿ø
|
|
|
|
2026-03-05
ÁøÇà
|
(70%)
159,600,000¿ø
|
|
|
|
|
|
°¨Á¤Æò°¡¼ ¿ä¾à |
|
[À§Ä¡/ÁÖÀ§È¯°æ]
º»°ÇÀº °æ»ó³²µµ ¾ç»ê½Ã Áߺε¿ ¼ÒÀç ""³²ºÎ½ÃÀå"" ºÏµ¿Ãø Àαٿ¡ À§Ä¡ÇÏ´Â ÁøÈï¿¡ÀÌ¿ø Á¦1Ãþ Á¦101È£ ·Î¼ ,ºÎ±ÙÀÏ´ë´Â ¾ÆÆÄÆ®,ÁÖÅÃ,±Ù¸°»ýȰ½Ã¼³ µîÀÌ È¥ÀçÇØ ÀÖÀ¸¸ç,ÁÖÀ§È¯°æ º¸Åë½ÃµÊ.
[±³Åë»óȲ]
º»°Ç±îÁö Â÷·®ÃâÀÔ °¡´ÉÇϸç, Á¦¹Ý ±³Åë»çÁ¤Àº º¸Åë½ÃµÊ.
[°Ç¹°±¸Á¶]
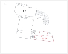
ö±ÙÄÜÅ©¸®Æ®±¸Á¶ ½º¶óºêÁöºØ 8Ãþ °Ç¹° Áß 1Ãþ 101È£·Î¼,
¿Üº® : Ȱ¼® ¹× ¸ôÅ»À§ÆäÀÎÆÃ ¸¶°¨ µî.
³»º® : ÆäÀÎÆÃ µî ¸¶°¨ÀÓ.
âȣ ; ¼¦½ÃâÀÓ.
[ÀÌ¿ë»óÅÂ]
±Ù¸°»ýȰ½Ã¼³ÀÓ.
[¼³ºñ³»¿ª]
À§»ý¼³ºñ, ±Þ.¹è¼ö½Ã¼³ µîÀÌ µÇ¾î ÀÖÀ½.
[ÅäÁöÇü»ó/ÀÌ¿ë»óÅÂ]
ºÎÁ¤ÇüÀÇ ÅäÁö·Î °øµ¿ÁÖÅà ¹× ±Ù¸°»ýȰ½Ã¼³ ºÎÁöÀÓ.
7)ÀÎÁ¢ µµ·Î»óŵî
ÁÖº¯ °¡·Î¸Á »óÅ µîÀº º¸ÅëÁ¤µµÀÓ.
[ÅäÁöÀÌ¿ë°èȹ]
ÀϹݻó¾÷Áö¿ª, ¼Ò·Î2·ù(Æø 8m~10m)(Á¢ÇÔ),
°¡Ãà»çÀ°Á¦Çѱ¸¿ª(¸ðµçÃàÁ¾ Á¦Çѱ¸¿ª)£¼°¡ÃàºÐ´¢ÀÇ °ü¸® ¹× À̿뿡 °üÇÑ ¹ý·ü£¾,
°¡·Î±¸¿ªº° ÃÖ°í³ôÀÌ Á¦Çѱ¸¿ª£¼°ÇÃà¹ý£¾,¿ª»ç¹®Èȯ°æº¸Á¸Áö¿ª£¼¹®ÈÀ¯»êÀÇ º¸Á¸ ¹× Ȱ¿ë¿¡ °üÇÑ ¹ý·ü£¾.
[°øºÎ¿ÍÀÇ Â÷ÀÌ]
¾øÀ½.
[Âü°í»çÇ×]
ÀÓ´ë°ü°è ¹Ì»óÀÓ. |
|
|
°ÇÃ๰ÇöȲ |
|
|
|
| ¼ÒÀçÁö |
°æ»ó³²µµ ¾ç»ê½Ã Áߺε¿ 162-2¹øÁö |
| ´ëÁö¸éÀû |
869§³(263.33Æò) |
¿¬¸éÀû |
4074.58§³(1234.72Æò) |
ÁÖ¿ëµµ |
Á¦1Á¾±Ù¸°»ýȰ½Ã¼³ |
| °ÇÃà¸éÀû |
550.08§³(166.69Æò) |
¿ëÀû·ü»êÁ¤¿¬¸éÀû |
2946.55§³(892.89Æò) |
Âø°øÀÏÀÚ |
2003.09.10 |
| °ÇÆóÀ² |
63.3% |
¿ëÀû·ü |
339.07% |
»ç¿ë½ÂÀÎÀÏÀÚ |
2008.06.09 |
| Áö»óÃþ¼ö |
8Ãþ |
ÁöÇÏÃþ¼ö |
2Ãþ |
±¸Á¶ |
ö±ÙÄÜÅ©¸®Æ®±¸Á¶ |
°ÇÃ๰Ãþº°ÇöȲ [º¸±â]| Ãþº° | ±¸Á¶ | ¿ëµµ | ¸éÀû | | 1 | ö±ÙÄÜÅ©¸®Æ®±¸Á¶ | Á¦1,2Á¾±Ù¸°»ýȰ½Ã¼³ | 504.89§³ (153Æò) | | 2 | ö±ÙÄÜÅ©¸®Æ®±¸Á¶ | Á¦1,2Á¾±Ù¸°»ýȰ½Ã¼³,¾÷¹«½Ã¼³ | 545.56§³ (165.32Æò) | | 3 | ö±ÙÄÜÅ©¸®Æ®±¸Á¶ | ¾ÆÆÄÆ® | 363.57§³ (110.17Æò) | | 4 | ö±ÙÄÜÅ©¸®Æ®±¸Á¶ | ¾ÆÆÄÆ® | 363.57§³ (110.17Æò) | | 5 | ö±ÙÄÜÅ©¸®Æ®±¸Á¶ | ¾ÆÆÄÆ® | 359.7§³ (109Æò) | | 6 | ö±ÙÄÜÅ©¸®Æ®±¸Á¶ | ¾ÆÆÄÆ® | 286.15§³ (86.71Æò) | | 7 | ö±ÙÄÜÅ©¸®Æ®±¸Á¶ | ¾ÆÆÄÆ® | 268.42§³ (81.34Æò) | | 8 | ö±ÙÄÜÅ©¸®Æ®±¸Á¶ | ¾ÆÆÄÆ® | 254.69§³ (77.18Æò) | | Áö1 | ö±ÙÄÜÅ©¸®Æ®±¸Á¶ | °è´Ü½Ç,E.V,Àü±â½Ç,ÁÖÂ÷Àå | 528.33§³ (160.1Æò) | | Áö2 | ö±ÙÄÜÅ©¸®Æ®±¸Á¶ | °è´Ü½Ç,E.V,Àü±â½Ç,ÁÖÂ÷Àå | 599.7§³ (181.73Æò) |
|
|
|
|
|
 |
ÀÓÂ÷³»¿ª |
[¹è´ç¿ä±¸Á¾±âÀÏ : 2025/06/13] |
|
|
| ÀÓÂ÷ÀÎ |
Á¡À¯°ü°è |
ÀüÀÔÀÏÀÚ |
È®Á¤ÀÏÀÚ |
¹è´ç¿ä±¸ÀÏ |
º¸Áõ±Ý/Â÷ÀÓ |
´ëÇ׿ä°Ç |
ºñ°í |
| ÁÖOOOOOOO |
101È£ |
|
|
2025.4.22. |
5,000,000 [¿ù]900,000 |
X |
|
|
|
|
 |
¹ý¿ø ¹°°ÇÀÚ·á ¿ä¾à |
|
|
|
|
| ¼Ò¸êµÇÁö ¾Ê´Â µî±âºÎ±Ç¸® |
|
| ¼³Á¤µÈ °ÍÀ¸·Î º¸´Â Áö»ó±Ç |
|
| ¹ý¿øÀÚ·á Æ¯ÀÌ»çÇ× |
[ÁÖ¿ä ¹®°Ç Á¢¼ö ³»¿ª]
|
[ºÎµ¿»ê ÇöȲÁ¶»ç¼ ºñ°í¶õ]
º»°Ç ºÎµ¿»êÀº ¾ç»ê Áߺε¿ |
|
| ¿©ÀÇÁÖ°æ¸Å Á¶¾ð ÇѸ¶µð |
ÀÌ ºÎµ¿»êÀÇ ÀÔÂû¹ý¿øÀº ¿ï»êÁö¹æ¹ý¿øÀÔ´Ï´Ù.
ÀÔÂûÀÏÀº 2026-03-05ÀÔ´Ï´Ù.
ÀÔÂû½Ã°£Àº 10:00~11:30ÀÔ´Ï´Ù. ÀÌ ¹ý¿ø¿¡´Â ½ÅÇÑÀºÇà,°æ³²ÀºÇàÀÌ ÀÔÁ¡Çϰí ÀÖ½À´Ï´Ù.
|
|
|
| Åë°è±â°£ |
³«Âû¹°°Ç¼ö |
Æò±Õ°¨Á¤°¡ |
Æò±Õ³«Âû°¡ |
³«Âû°¡À² |
À¯ÂûȽ¼ö |
|
|
|
|
|
|
|
 |
ÀαÙÁö¿ª ÃÖ±Ù ³«Âû»ç·Ê
|
|
|
 |
|
|
[¾È³»] Ȥ½Ã ÀÌ¿ëÀÌ ºÒÆíÇϽðųª »èÁ¦ÇÒ ³»¿ëÀÌ ÀÖ´Ù¸é ÃÖ´ëÇÑ ³ë·ÂÇØ¼ °³¼±ÇØ ³ª°¡µµ·Ï ÇϰڽÀ´Ï´Ù.
 |
|
ÀÌ »çÀÌÆ®¿¡¼ Á¦°øµÇ´Â ºÎµ¿»ê°æ¸Å ÀÚ·á´Â ¹ý¿ø °æ¸Å°è¿¡¼ ó¸®Çϰí ÀÖ´Â ½ÇÁ¦ ¹°°ÇÀÇ Á¤º¸¿Í ÀÏÄ¡ÇÏÁö ¾ÊÀ» ¼öµµ ÀÖ½À´Ï´Ù.
´ç»ç´Â º» ÀÚ·á¿¡ °üÇÏ¿© Á¤½Ä ÄÁ¼³ÆÃ ÀÇ·Ú°¡ ¾Æ´Ñ ÀÌ»ó ¾î¶°ÇÑ º¸Áõµµ ÇÏÁö ¾ÊÀ¸¸ç ¹ýÀû Ã¥ÀÓÀ» ÁöÁö ¾Ê½À´Ï´Ù.
ÀÔÂûÇϱâ Àü¿¡ ²Ä²ÄÈ÷ ¹ý¿ø¿¡ ºñÄ¡µÈ ¸Å°¢¹°°Ç¸í¼¼¼ ¹× ±âŸ °øºÎ¸¦ ÀçÈ®ÀÎÇϽðí ÀÔÂû¿¡ Âü°¡ÇÏ½Ã±æ ¹Ù¶ø´Ï´Ù. |
|
|
|
|
|