|
|
|
| ¹°°ÇÁ¤º¸ Çٽɺ¸±â |
Ȩ > °æ¸ÅÁ¾ÇÕ°Ë»ö > ¹°°ÇÁ¤º¸ Çٽɺ¸±â |
|
|
| 2025Ÿ°æ731 °æ¸Å»ç°ÇÀÇ ¿ÀÇǽºÅÚ ¹°°Ç¿¡ °üÇÑ »ó¼¼ Á¤º¸ÀÔ´Ï´Ù. |
|
| ¼ÒÀçÁö |
°æ±âµµ ¾È¾ç½Ã µ¿¾È±¸ È£°èµ¿ 949-3 Çö´ëÁ¦¿ì½ºÅ¸¿ö 11Ãþ1108È£
|
|
| »ç°Ç¹øÈ£ |
2025 Ÿ°æ 731 |
¹°°Ç¹øÈ£ |
1
|
¹°°Ç¿ëµµ |
¿ÀÇǽºÅÚ |
| °¨Á¤Æò°¡¾× |
470,000,000¿ø |
°æ¸Å´ë»ó |
ÅäÁö ¹× °Ç¹°Àϰý ¸Å°¢ |
ÁøÇà»óÅ |
À¯Âû |
| ÃÖÀúÀÔÂû°¡ |
(80%) 376,000,000¿ø
|
°Ç¹°¸éÀû |
68.25§³(20.65Æò) |
ÀÔÂû±âÀÏ |
2026.03.10(È) 10:00
(ÀÔÂû 14ÀÏÀü)
|
| ÀÔÂûº¸Áõ±Ý |
(10%) 37,600,000¿ø |
ÅäÁö¸éÀû |
12.70§³(3.84Æò)
|
À¯ÂûȽ¼ö |
1ȸ |
| ÀÔÂû¹ý¿ø |
¼ö¿øÁö¹æ¹ý¿ø ¾È¾çÁö¿ø |
°æ¸Å¹æ¹ý |
ºÎµ¿»ê°Á¦°æ¸Å |
¹°°ÇÁ¶È¸¼ö |
¿À´Ã: 1ȸ [´©Àû: 1063ȸ]
|
| ¸»¼Ò±âÁØ | |
|
|
|
|
|
|
|
|
|
|
°æ¸Å´ë»ó ¸ñ·Ï
|
|
| ±¸ºÐ |
¸ñ·Ï |
ÁÖ¼Ò |
±¸Á¶/¿ëµµ/´ëÁö±Ç |
ºñ°í |
´ëÁö±Ç
|
1 |
È£°èµ¿ 949-3 |
1239.6ºÐÀÇ 12.7 |
12.7§³ (3.84Æò)
|
°Ç¹°
|
1 |
È£°èµ¿ 949-3 |
11Ãþ1108È£ ö±ÙÄÜÅ©¸®Æ®±¸Á¶ |
68.25§³ (20.65Æò)
|
|
|
|
2026-02-03
À¯Âû
|
(100%)
470,000,000¿ø
|
|
|
|
2026-03-10
ÁøÇà
|
(80%)
376,000,000¿ø
|
|
|
|
|
|
°¨Á¤Æò°¡¼ ¿ä¾à |
|
[À§Ä¡/ÁÖÀ§È¯°æ]
º»°ÇÀº °æ±âµµ ¾È¾ç½Ã µ¿¾È±¸ È£°èµ¿ ¼ÒÀç ""È£°è1µ¿ ÇàÁ¤º¹Áö¼¾ÅÍ"" ºÏ¼Ãø Àαٿ¡ À§Ä¡È÷¸ç, ÁÖº¯Àº ¾ÆÆÄÆ®, ¿ÀÇǽºÅÚ, ±Ù¸°»ýȰ½Ã¼³ µîÀÌ È¥ÀçÇÏ´Â ÀϹݻó¾÷Áö¿ªÀÓ.
[±³Åë»óȲ]
º»°Ç±îÁö Â÷·®ÃâÀÔ °¡´ÉÇϰí, Àαٿ¡ ³ë¼±¹ö½ºÁ¤·ùÀåÀÌ ¼ÒÀçÇÏ¿© ´ëÁß±³Åë»çÁ¤Àº ¹«³½Ã µÊ.
[°Ç¹°±¸Á¶]
ö±ÙÄÜÅ©¸®Æ®±¸Á¶ Æò½½¶óºêÁöºØ ÁöÇÏ5Ãþ, Áö»ó14Ãþ Áß 11Ãþ 1108È£·Î¼,
¿Üº® : ³ëÃâÄÜÅ©¸®Æ®À§ Ȱ¼®ÆÇºÙÀÓ ¸¶°¨
³»º® : º®Áöµµ¹è ¹× ŸÀϺÙÀÓ ¸¶°¨ µî
âȣ : »õ½Ã ÀÌÁßâȣÀÓ.
[ÀÌ¿ë»óÅÂ]
ÁýÇÕ°ÇÃ๰´ëÀå»ó ¿ëµµ´Â ¾÷¹«½Ã¼³(¿ÀÇǽºÅÚ)À̳ª, ÁÖ°Å¿ë ¿ÀÇǽºÅÚ·Î ÀÌ¿ëÁßÀÎ °ÍÀ¸·Î ޹®Á¶»çµÇ¾ú´Â ¹Ù, °æ¸Å ÁøÇà½Ã Âü°íÇϽñ⠹ٶ÷.
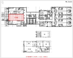
* Èĸé ""¹èÄ¡µµ ¹× ³»ºÎ±¸Á¶µµ"" ÂüÁ¶.
[¼³ºñ³»¿ª]
À§»ý ¹× ±Þ¹è¼ö¼³ºñ, °³º°³¹æ¼³ºñ, ½Â°±â¼³ºñ, ¼Ò¹æ¼³ºñ µîÀÌ µÇ¾î ÀÖÀ½.
[ÅäÁöÇü»ó/ÀÌ¿ë»óÅÂ]
ÀÎÁ¢ÅäÁö ¹× µµ·Î ´ëºñ µî°íÆòźÇÑ ¼¼ÀåÇüÀÇ ÅäÁö·Î¼, ±Ù¸°»ýȰ½Ã¼³ ¹× ¿ÀÇǽºÅÚ °ÇºÎÁö·Î ÀÌ¿ëÁßÀÓ.
7)ÀÎÁ¢ µµ·Î»óŵî
µ¿ÃøÀ¸·Î´Â ±¤´ë·Î, ¼ÃøÀ¸·Î´Â Á߷ο¡ °¢°¢ Á¢ÇÔ.
[ÅäÁöÀÌ¿ë°èȹ]
µµ½ÃÁö¿ª, ÀϹݻó¾÷Áö¿ª, ½Ã°¡Áö°æ°üÁö±¸, ±¤·Î2·ù(Æø 50m~70m)(Á¢ÇÕ), Áß·Î3·ù
(Æø 12m~15m)(Á¢ÇÕ), ´ë±â°ü¸®±Ç¿ª£¼´ë±â°ü¸®±Ç¿ªÀÇ ´ë±âȯ°æ°³¼±¿¡ °üÇÑ Æ¯º°¹ý£¾,
±³Åë±âŸ¿ëµµÁö¿ªÁö±¸¹ÌºÐ·ù(´ëµµ½Ã±Ç)£¼µµ·Î¹ý£¾, µµ½Ã±³ÅëÁ¤ºñÁö¿ª£¼µµ½Ã±³ÅëÁ¤
ºñÃËÁø¹ý£¾, °ú¹Ð¾ïÁ¦±Ç¿ª£¼¼öµµ±ÇÁ¤ºñ°èȹ¹ý£¾ÀÓ.
[°øºÎ¿ÍÀÇ Â÷ÀÌ]
ÇØ´ç»çÇ× ¾øÀ½.
[Âü°í»çÇ×]
- ÀÓ´ë°ü°è ¹Ì»óÀÓ.
- º»°ÇÀÇ ³»ºÎ±¸Á¶ È®ÀÎÀº ÀÌÇØ°ü°èÀÎ ºÎÀç·Î ÀÎÇÏ¿© ÁýÇÕ°ÇÃ๰´ëÀå»ó °ÇÃ๰ÇöȲµµ ¹×
Àα٠ÁÖ¹ÎÀ¸·Î ºÎÅÍ Å½¹®Á¶»ç µî¿¡ ÀÇÇÏ¿´´Â ¹Ù, °æ¸Å ÁøÇà½Ã Âü°íÇϽñ⠹ٶ÷. |
|
|
°ÇÃ๰ÇöȲ |
|
|
|
| ¼ÒÀçÁö |
°æ±âµµ ¾È¾ç½Ã µ¿¾È±¸ È£°èµ¿ 949-3¹øÁö |
| ´ëÁö¸éÀû |
1239.6§³(375.64Æò) |
¿¬¸éÀû |
14881.26§³(4509.47Æò) |
ÁÖ¿ëµµ |
¾÷¹«½Ã¼³ |
| °ÇÃà¸éÀû |
905.2§³(274.3Æò) |
¿ëÀû·ü»êÁ¤¿¬¸éÀû |
9915.61§³(3004.73Æò) |
Âø°øÀÏÀÚ |
2020.02.17 |
| °ÇÆóÀ² |
73.02% |
¿ëÀû·ü |
799.9% |
»ç¿ë½ÂÀÎÀÏÀÚ |
2022.04.29 |
| Áö»óÃþ¼ö |
14Ãþ |
ÁöÇÏÃþ¼ö |
5Ãþ |
±¸Á¶ |
ö±ÙÄÜÅ©¸®Æ®±¸Á¶ |
°ÇÃ๰Ãþº°ÇöȲ [º¸±â]| Ãþº° | ±¸Á¶ | ¿ëµµ | ¸éÀû | | 1Ãþ | ö±ÙÄÜÅ©¸®Æ®±¸Á¶ | ±â°è½ÄÁÖÂ÷Àå | 51.83§³ (15.71Æò) | | 1Ãþ | ö±ÙÄÜÅ©¸®Æ®±¸Á¶ | °æºñ½Ç | 7.29§³ (2.21Æò) | | 1Ãþ | ö±ÙÄÜÅ©¸®Æ®±¸Á¶ | ±Ù¸°»ýȰ½Ã¼³ | 422.69§³ (128.09Æò) | | 2Ãþ | ö±ÙÄÜÅ©¸®Æ®±¸Á¶ | ±Ù¸°»ýȰ½Ã¼³ | 831.78§³ (252.05Æò) | | 3Ãþ | ö±ÙÄÜÅ©¸®Æ®±¸Á¶ | ±Ù¸°»ýȰ½Ã¼³ | 831.78§³ (252.05Æò) | | 4Ãþ | ö±ÙÄÜÅ©¸®Æ®±¸Á¶ | ±Ù¸°»ýȰ½Ã¼³ | 773.97§³ (234.54Æò) | | 4Ãþ | ö±ÙÄÜÅ©¸®Æ®±¸Á¶ | °ü¸®»ç¹«¼Ò,MDF½Ç | 57.81§³ (17.52Æò) | | 5Ãþ | ö±ÙÄÜÅ©¸®Æ®±¸Á¶ | ¾÷¹«½Ã¼³(¿ÀÇǽºÅÚ) | 718.45§³ (217.71Æò) | | 6Ãþ | ö±ÙÄÜÅ©¸®Æ®±¸Á¶ | ¾÷¹«½Ã¼³(¿ÀÇǽºÅÚ) | 718.45§³ (217.71Æò) | | 7Ãþ | ö±ÙÄÜÅ©¸®Æ®±¸Á¶ | ¾÷¹«½Ã¼³(¿ÀÇǽºÅÚ) | 718.45§³ (217.71Æò) | | 8Ãþ | ö±ÙÄÜÅ©¸®Æ®±¸Á¶ | ¾÷¹«½Ã¼³(¿ÀÇǽºÅÚ) | 718.45§³ (217.71Æò) | | 9Ãþ | ö±ÙÄÜÅ©¸®Æ®±¸Á¶ | ¾÷¹«½Ã¼³(¿ÀÇǽºÅÚ) | 718.45§³ (217.71Æò) | | 10Ãþ | ö±ÙÄÜÅ©¸®Æ®±¸Á¶ | ¾÷¹«½Ã¼³(¿ÀÇǽºÅÚ) | 718.45§³ (217.71Æò) | | 11Ãþ | ö±ÙÄÜÅ©¸®Æ®±¸Á¶ | ¾÷¹«½Ã¼³(¿ÀÇǽºÅÚ) | 718.45§³ (217.71Æò) | | 12Ãþ | ö±ÙÄÜÅ©¸®Æ®±¸Á¶ | ¾÷¹«½Ã¼³(¿ÀÇǽºÅÚ) | 718.45§³ (217.71Æò) | | 13Ãþ | ö±ÙÄÜÅ©¸®Æ®±¸Á¶ | ¾÷¹«½Ã¼³(¿ÀÇǽºÅÚ) | 718.45§³ (217.71Æò) | | 14Ãþ | ö±ÙÄÜÅ©¸®Æ®±¸Á¶ | ¾÷¹«½Ã¼³(¿ÀÇǽºÅÚ) | 524.24§³ (158.86Æò) | | ¿Áž1Ãþ | ö±ÙÄÜÅ©¸®Æ®±¸Á¶ | °è´Ü½Ç,±â°è½Ç(¿¬¸éÀûÁ¦¿Ü) | 16.5§³ (5Æò) | | ¿Áž2Ãþ | ö±ÙÄÜÅ©¸®Æ®±¸Á¶ | °è´Ü½Ç(¿¬¸éÀûÁ¦¿Ü) | 48.9§³ (14.82Æò) | | Áö1Ãþ | ö±ÙÄÜÅ©¸®Æ®±¸Á¶ | ÁöÇÏÁÖÂ÷Àå | 920.71§³ (279Æò) | | Áö1Ãþ | ö±ÙÄÜÅ©¸®Æ®±¸Á¶ | ÈÓ·ë,¹æÀç½Ç | 54.47§³ (16.51Æò) | | Áö2Ãþ | ö±ÙÄÜÅ©¸®Æ®±¸Á¶ | ÁöÇÏÁÖÂ÷Àå | 989.49§³ (299.85Æò) | | Áö3Ãþ | ö±ÙÄÜÅ©¸®Æ®±¸Á¶ | ÁöÇÏÁÖÂ÷Àå | 989.49§³ (299.85Æò) | | Áö4Ãþ | ö±ÙÄÜÅ©¸®Æ®±¸Á¶ | ÁöÇÏÁÖÂ÷Àå | 964.18§³ (292.18Æò) | | Áö4Ãþ | ö±ÙÄÜÅ©¸®Æ®±¸Á¶ | ÈÓ·ë | 25.31§³ (7.67Æò) | | Áö5Ãþ | ö±ÙÄÜÅ©¸®Æ®±¸Á¶ | ÁöÇÏÁÖÂ÷Àå | 588.4§³ (178.3Æò) | | Áö5Ãþ | ö±ÙÄÜÅ©¸®Æ®±¸Á¶ | Àü±â½Ç,¹ßÀü±â½Ç,ÆßÇÁ½Ç,ÈÓ·ë,Á¤ÈÁ¶Áß | 381.77§³ (115.69Æò) |
|
|
|
|
|
 |
ÀÓÂ÷³»¿ª |
[¹è´ç¿ä±¸Á¾±âÀÏ : 2025/08/08] |
|
|
| ÀÓÂ÷ÀÎ |
Á¡À¯°ü°è |
ÀüÀÔÀÏÀÚ |
È®Á¤ÀÏÀÚ |
¹è´ç¿ä±¸ÀÏ |
º¸Áõ±Ý/Â÷ÀÓ |
´ëÇ׿ä°Ç |
ºñ°í |
| ÀÌOO |
1108È£ |
2022.08.08 |
2022.08.08 |
|
380,000,000
|
O |
2022.08.09 |
| ¸Å°¢¹°°Ç¸í¼¼ ºñ°í |
ÀÌÁø¼ö:°æ¸Å½Åûä±ÇÀÚÀÓ |
|
|
|
 |
¹ý¿ø ¹°°ÇÀÚ·á ¿ä¾à |
|
|
|
|
| ¼Ò¸êµÇÁö ¾Ê´Â µî±âºÎ±Ç¸® |
¡°¸Å¼öÀο¡°Ô ´ëÇ×ÇÒ ¼ö ÀÖ´Â À»±¸ ¼øÀ§ 2¹ø ÀÓÂ÷±Çµî±â(2024.10.10. µî±â) ÀÖÀ½(ÀÓ´ëÂ÷º¸Áõ±Ý 380,000,000¿ø, ÀüÀÔÀÏ 2022.8.8.
È®Á¤ÀÏÀÚ 2022.8.8.). ¹è´ç¿¡¼ º¸Áõ±ÝÀÌ Àü¾× º¯Á¦µÇÁö ¾Æ´ÏÇϸé Àܾ×À» ¸Å¼öÀÎÀÌ ÀμöÇÔ" |
| ¼³Á¤µÈ °ÍÀ¸·Î º¸´Â Áö»ó±Ç |
|
| ¹ý¿øÀÚ·á Æ¯ÀÌ»çÇ× |
|
| ¿©ÀÇÁÖ°æ¸Å Á¶¾ð ÇѸ¶µð |
ÀÌ ºÎµ¿»êÀÇ ÀÔÂû¹ý¿øÀº ¼ö¿øÁö¹æ¹ý¿ø ¾È¾çÁö¿øÀÔ´Ï´Ù.
ÀÔÂûÀÏÀº 2026-03-10ÀÔ´Ï´Ù.
ÀÔÂû½Ã°£Àº 10:00~11:00ÀÔ´Ï´Ù. ÀÌ ¹ý¿ø¿¡´Â ½ÅÇÑÀºÇàÀÌ ÀÔÁ¡Çϰí ÀÖ½À´Ï´Ù.
|
¼±¼øÀ§ ÀÓÂ÷±Çµî±â°¡ µÇ¾î ÀÖ½À´Ï´Ù ´ëÇ×·ÂÀÌ ÀÖ´Â ¼±¼øÀ§ ÀÓÂ÷±Çµî±â ±Ç¸®ÀÚ°¡ ¹è´çÀ» Àü¾× ¹ÞÁö ¸øÇÒ °æ¿ì ³«ÂûÀÚ°¡ ÀÜ¿© º¸Áõ±ÝÀ» ÀμöÇØ¾ßÇÏ´Â °æ¿ìµµ ÀÖ½À´Ï´Ù. |
|
|
| Åë°è±â°£ |
³«Âû¹°°Ç¼ö |
Æò±Õ°¨Á¤°¡ |
Æò±Õ³«Âû°¡ |
³«Âû°¡À² |
À¯ÂûȽ¼ö |
|
|
|
|
|
|
|
 |
ÀαÙÁö¿ª ÃÖ±Ù ³«Âû»ç·Ê
|
|
|
 |
|
|
[¾È³»] Ȥ½Ã ÀÌ¿ëÀÌ ºÒÆíÇϽðųª »èÁ¦ÇÒ ³»¿ëÀÌ ÀÖ´Ù¸é ÃÖ´ëÇÑ ³ë·ÂÇØ¼ °³¼±ÇØ ³ª°¡µµ·Ï ÇϰڽÀ´Ï´Ù.
 |
|
ÀÌ »çÀÌÆ®¿¡¼ Á¦°øµÇ´Â ºÎµ¿»ê°æ¸Å ÀÚ·á´Â ¹ý¿ø °æ¸Å°è¿¡¼ ó¸®Çϰí ÀÖ´Â ½ÇÁ¦ ¹°°ÇÀÇ Á¤º¸¿Í ÀÏÄ¡ÇÏÁö ¾ÊÀ» ¼öµµ ÀÖ½À´Ï´Ù.
´ç»ç´Â º» ÀÚ·á¿¡ °üÇÏ¿© Á¤½Ä ÄÁ¼³ÆÃ ÀÇ·Ú°¡ ¾Æ´Ñ ÀÌ»ó ¾î¶°ÇÑ º¸Áõµµ ÇÏÁö ¾ÊÀ¸¸ç ¹ýÀû Ã¥ÀÓÀ» ÁöÁö ¾Ê½À´Ï´Ù.
ÀÔÂûÇϱâ Àü¿¡ ²Ä²ÄÈ÷ ¹ý¿ø¿¡ ºñÄ¡µÈ ¸Å°¢¹°°Ç¸í¼¼¼ ¹× ±âŸ °øºÎ¸¦ ÀçÈ®ÀÎÇϽðí ÀÔÂû¿¡ Âü°¡ÇÏ½Ã±æ ¹Ù¶ø´Ï´Ù. |
|
|
|
|
|