|
|
|
| ¹°°ÇÁ¤º¸ Çٽɺ¸±â |
Ȩ > °æ¸ÅÁ¾ÇÕ°Ë»ö > ¹°°ÇÁ¤º¸ Çٽɺ¸±â |
|
|
| 2025Ÿ°æ10164 °æ¸Å»ç°ÇÀÇ ¿ÀÇǽºÅÚ ¹°°Ç¿¡ °üÇÑ »ó¼¼ Á¤º¸ÀÔ´Ï´Ù. |
|
| ¼ÒÀçÁö |
¼¿ïƯº°½Ã ±Ýõ±¸ µ¶»êµ¿ 1023-4 ¸í¼ºÆÓ¸®½º Á¦9Ãþ Á¦904È£
|
|
| »ç°Ç¹øÈ£ |
2025 Ÿ°æ 10164 |
¹°°Ç¹øÈ£ |
1
|
¹°°Ç¿ëµµ |
¿ÀÇǽºÅÚ |
| °¨Á¤Æò°¡¾× |
315,000,000¿ø |
°æ¸Å´ë»ó |
ÅäÁö ¹× °Ç¹°Àϰý ¸Å°¢ |
ÁøÇà»óÅ |
À¯Âû |
| ÃÖÀúÀÔÂû°¡ |
(80%) 252,000,000¿ø
|
°Ç¹°¸éÀû |
45.41§³(13.74Æò) |
ÀÔÂû±âÀÏ |
2026.03.26(¸ñ) 10:00
(ÀÔÂû 32ÀÏÀü)
|
| ÀÔÂûº¸Áõ±Ý |
(10%) 25,200,000¿ø |
ÅäÁö¸éÀû |
20.39§³(6.17Æò)
|
À¯ÂûȽ¼ö |
1ȸ |
| ÀÔÂû¹ý¿ø |
¼¿ï³²ºÎÁö¹æ¹ý¿ø |
°æ¸Å¹æ¹ý |
ºÎµ¿»ê°Á¦°æ¸Å |
¹°°ÇÁ¶È¸¼ö |
¿À´Ã: 1ȸ [´©Àû: 1079ȸ]
|
| ¸»¼Ò±âÁØ | ÃÖ¼±¼øÀ§ ¼³Á¤ : 2022.6.23. ¾Ð·ù ¼³Á¤
|
|
|
|
|
|
|
|
|
|
|
°æ¸Å´ë»ó ¸ñ·Ï
|
|
| ±¸ºÐ |
¸ñ·Ï |
ÁÖ¼Ò |
±¸Á¶/¿ëµµ/´ëÁö±Ç |
ºñ°í |
´ëÁö±Ç
|
1 |
µ¶»êµ¿ 1023-4 |
617ºÐÀÇ 20.39 |
20.39§³ (6.17Æò)
|
°Ç¹°
|
1 |
µ¶»êµ¿ 1023-4 |
Á¦9Ãþ Á¦904È£ ö±ÙÄÜÅ©¸®Æ®±¸Á¶ |
45.41§³ (13.74Æò)
|
|
|
|
2026-02-05
À¯Âû
|
(100%)
315,000,000¿ø
|
|
|
|
2026-03-26
ÁøÇà
|
(80%)
252,000,000¿ø
|
|
|
|
|
|
°¨Á¤Æò°¡¼ ¿ä¾à |
|
[À§Ä¡/ÁÖÀ§È¯°æ]
´ë»ó¹°°ÇÀº ¼¿ïƯº°½Ã ±Ýõ±¸ µ¶»êµ¿ ¼ÒÀç ""µ¶»ê4µ¿Áֹμ¾ÅÍ"" ¼Ãø Àαٿ¡ ¼ÒÀçÇϸç, ÁÖÀ§´Â ´Ù¼¼´ëÁÖÅÃ, ´Ù°¡±¸ÁÖÅÃ, ±Ù¸°»ýȰ½Ã¼³ µîÀÌ ¼ÒÀçÇÏ´Â ÁÖ°ÅÁö´ë·Î¼ Á¦¹Ý ¿©°ÇÀº º¸Åë½ÃµÊ.
[±³Åë»óȲ]
´ë»ó¹°°Ç±îÁö Â÷·®ÃâÀÔÀÌ ¿ëÀÌÇϸç Àαٿ¡ ³ë¼± ¹ö½ºÁ¤·ùÀåÀÌ ¼ÒÀçÇÏ´Â ¹Ù, Á¦¹Ý ±³Åë¿©°ÇÀº º¸ÅëÀÓ.
[°Ç¹°±¸Á¶]
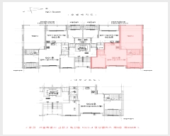
ö±ÙÄÜÅ©¸®Æ®±¸Á¶ ö±ÙÄÜÅ©¸®Æ®ÁöºØ ÁöÇÏ1Ãþ/Áö»ó9Ãþ ³» Á¦9Ãþ Á¦904È£·Î¼,
¿Üº®: ¼®ÀçºÙÀÓ ¸¶°¨ µî,
³»º®: ³»ºÎ ÀÎÅ׸®¾î ¸¶°¨ µî,
âȣ: ¼¦½Ãâȣ ¸¶°¨ µîÀÓ.
[ÀÌ¿ë»óÅÂ]
¿ÀÇǽºÅÚ(¹æ2, °Å½Ç °â ÁÖ¹æ, ¿å½Ç1, º£¶õ´Ù µî)·Î ÀÌ¿ëÁßÀÓ.
[¼³ºñ³»¿ª]
±âº»ÀûÀÎ À§»ý¡¤±Þ¹è¼ö ¼³ºñ, ½Â°±â µîÀÇ ¼³ºñ°¡ µÇ¾îÀÖÀ½.
[ÅäÁöÇü»ó/ÀÌ¿ë»óÅÂ]
-
7)ÀÎÁ¢ µµ·Î»óŵî
-
[ÅäÁöÀÌ¿ë°èȹ]
µµ½ÃÁö¿ª, Á¦3Á¾ÀϹÝÁÖ°ÅÁö¿ª, µµ·Î(Á¢ÇÕ) °¡Ãà»çÀ°Á¦Çѱ¸¿ª£¼°¡ÃàºÐ´¢ÀÇ °ü¸® ¹× À̿뿡 °üÇÑ ¹ý·ü£¾, Àå¾Ö¹°Á¦ÇÑÇ¥¸é±¸¿ª(ÁøÀÔÇ¥¸é±¸¿ª)£¼°øÇ׽ü³¹ý£¾, ±³À°È¯°æº¸È£±¸¿ª(¼¿ï½Ã³²ºÎ±³À°Áö¿øÃ»¿¡ ¹Ýµå½Ã È®ÀÎ ¿ä¸Á)£¼±³À°È¯°æ º¸È£¿¡ °üÇÑ ¹ý·ü£¾, »ó´ëº¸È£±¸¿ª(2017-12-19)(¼¿ïƯº°½Ã³²ºÎ±³À°Áö¿øÃ»¿¡ ¹Ýµå½Ã È®Àοä¸Á)£¼±³À°È¯°æ º¸È£¿¡ °üÇÑ ¹ý·ü£¾, ´ë°ø¹æ¾îÇùÁ¶±¸¿ª(À§Å¹°íµµ:ÇØ¹ß194m(Áö¹Ý+°ÇÃà+¿Áž µî),À°±º¼öµµ¹æÀ§»ç·ÉºÎ(02-524-3313)°üÇÒ)£¼±º»ç±âÁö ¹× ±º»ç½Ã¼³ º¸È£¹ý£¾, °ú¹Ð¾ïÁ¦±Ç¿ª£¼¼öµµ±ÇÁ¤ºñ°èȹ¹ý£¾ ÁßÁ¡°æ°ü°ü¸®±¸¿ª(2016-11-24)(ÁÖ¿ä»ê ÁÖº¯)
[°øºÎ¿ÍÀÇ Â÷ÀÌ]
-
[Âü°í»çÇ×]
ÀÓ´ë¹Ì»óÀÓ. |
|
|
°ÇÃ๰ÇöȲ |
|
|
|
| ¼ÒÀçÁö |
¼¿ïƯº°½Ã ±Ýõ±¸ µ¶»êµ¿ 1023-4¹øÁö |
| ´ëÁö¸éÀû |
617§³(186.97Æò) |
¿¬¸éÀû |
1621.25§³(491.29Æò) |
ÁÖ¿ëµµ |
°øµ¿ÁÖÅà |
| °ÇÃà¸éÀû |
248.44§³(75.28Æò) |
¿ëÀû·ü»êÁ¤¿¬¸éÀû |
1540.36§³(466.78Æò) |
Âø°øÀÏÀÚ |
2017.12.13 |
| °ÇÆóÀ² |
40.27% |
¿ëÀû·ü |
249.65% |
»ç¿ë½ÂÀÎÀÏÀÚ |
2018.08.16 |
| Áö»óÃþ¼ö |
9Ãþ |
ÁöÇÏÃþ¼ö |
1Ãþ |
±¸Á¶ |
ö±ÙÄÜÅ©¸®Æ®±¸Á¶ |
°ÇÃ๰Ãþº°ÇöȲ [º¸±â]| Ãþº° | ±¸Á¶ | ¿ëµµ | ¸éÀû | | 1Ãþ | ö±ÙÄÜÅ©¸®Æ®±¸Á¶ | Á¦1Á¾±Ù¸°»ýȰ½Ã¼³(¼Ò¸ÅÁ¡) | 55.18§³ (16.72Æò) | | 1Ãþ | ö±ÙÄÜÅ©¸®Æ®±¸Á¶ | ÇÊ·ÎÆ¼-ÁÖÂ÷Àå(¿¬¸éÀû Á¦¿Ü) | 122.9§³ (37.24Æò) | | 2Ãþ | ö±ÙÄÜÅ©¸®Æ®±¸Á¶ | Á¦1Á¾±Ù¸°»ýȰ½Ã¼³(ÀÇ¿ø) | 229.72§³ (69.61Æò) | | 3Ãþ | ö±ÙÄÜÅ©¸®Æ®±¸Á¶ | µµ½ÃÇü»ýȰÁÖÅÃ-´ÜÁöÇü´Ù¼¼´ë(4¼¼´ë) | 161.58§³ (48.96Æò) | | 4Ãþ | ö±ÙÄÜÅ©¸®Æ®±¸Á¶ | µµ½ÃÇü»ýȰÁÖÅÃ-´ÜÁöÇü´Ù¼¼´ë(4¼¼´ë) | 160.46§³ (48.62Æò) | | 5Ãþ | ö±ÙÄÜÅ©¸®Æ®±¸Á¶ | µµ½ÃÇü»ýȰÁÖÅÃ-´ÜÁöÇü´Ù¼¼´ë(4¼¼´ë) | 160.46§³ (48.62Æò) | | 6Ãþ | ö±ÙÄÜÅ©¸®Æ®±¸Á¶ | µµ½ÃÇü»ýȰÁÖÅÃ-´ÜÁöÇü´Ù¼¼´ë(4¼¼´ë) | 160.46§³ (48.62Æò) | | 7Ãþ | ö±ÙÄÜÅ©¸®Æ®±¸Á¶ | ¿ÀÇǽºÅÚ(4È£) | 223.6§³ (67.76Æò) | | 8Ãþ | ö±ÙÄÜÅ©¸®Æ®±¸Á¶ | ¿ÀÇǽºÅÚ(4È£) | 223.6§³ (67.76Æò) | | 9Ãþ | ö±ÙÄÜÅ©¸®Æ®±¸Á¶ | ¿ÀÇǽºÅÚ(4È£) | 165.3§³ (50.09Æò) | | ¿Áž1Ãþ | ö±ÙÄÜÅ©¸®Æ®±¸Á¶ | °è´Ü½Ç/½Â°±âO.H(¿¬¸éÀû Á¦¿Ü) | 17.4§³ (5.27Æò) | | Áö1Ãþ | ö±ÙÄÜÅ©¸®Æ®±¸Á¶ | Á¤ÈÁ¶/Àú¼öÁ¶(¿¬¸éÀû Á¦¿Ü) | 33.44§³ (10.13Æò) | | Áö1Ãþ | ö±ÙÄÜÅ©¸®Æ®±¸Á¶ | ±â°è½Ç/Àü±â½Ç | 80.89§³ (24.51Æò) |
|
|
|
|
|
 |
ÀÓÂ÷³»¿ª |
[¹è´ç¿ä±¸Á¾±âÀÏ : 2025/09/02] |
|
|
| ÀÓÂ÷ÀÎ |
Á¡À¯°ü°è |
ÀüÀÔÀÏÀÚ |
È®Á¤ÀÏÀÚ |
¹è´ç¿ä±¸ÀÏ |
º¸Áõ±Ý/Â÷ÀÓ |
´ëÇ׿ä°Ç |
ºñ°í |
| ÁÖOOOOOOO |
ÀüºÎ |
2022.01.21. |
2022.11.05. |
2025.9.2. |
312,000,000
|
O |
2022.01.21.~2024.01.20. |
| ȫOO |
ÀüºÎ |
2022.01.21. |
2022.11.05. |
|
312,000,000
|
O |
2022.01.21.~ |
| ¸Å°¢¹°°Ç¸í¼¼ ºñ°í |
ÁÖÅõµ½Ãº¸Áõ°ø»ç:ÀÌ »ç°Ç ½Åûä±ÇÀÚ·Î ÁÖÅÃÀÓÂ÷±ÇÀÚ È«¿µÁÖÀÇ ÁöÀ§¸¦ ½Â°èÇÏ¿© ±Ç¸®½Å°í ¹× ¹è´ç¿ä±¸ÇÔ |
|
|
|
 |
¹ý¿ø ¹°°ÇÀÚ·á ¿ä¾à |
|
|
|
|
| ¼Ò¸êµÇÁö ¾Ê´Â µî±âºÎ±Ç¸® |
|
| ¼³Á¤µÈ °ÍÀ¸·Î º¸´Â Áö»ó±Ç |
|
| ¹ý¿øÀÚ·á Æ¯ÀÌ»çÇ× |
[ÁÖ¿ä ¹®°Ç Á¢¼ö ³»¿ª]
|
[¸Å°¢¹°°Ç¸í¼¼¼ ºñ°í¶õ]
Ưº°¸Å°¢Á¶°Ç : ÁÖÅõµ½Ã°ø»ç´Â ¸Å¼öÀο¡ ´ëÇØ ¹è´ç¹ÞÁö ¸øÇÏ´Â Àܾ׿¡ ´ëÇÑ ÀÓ´ëÂ÷º¸Áõ±Ý ¹Ýȯû±¸±ÇÀ» Æ÷±âÇϰí, ÀÓÂ÷±Çµî±â
¸¦ ¸»¼ÒÇÏ´Â °ÍÀ» Á¶°ÇÀ¸·Î ¸Å°¢ |
|
| ¿©ÀÇÁÖ°æ¸Å Á¶¾ð ÇѸ¶µð |
ÀÌ ºÎµ¿»êÀÇ ÀÔÂû¹ý¿øÀº ¼¿ï³²ºÎÁö¹æ¹ý¿øÀÔ´Ï´Ù.
ÀÔÂûÀÏÀº 2026-03-26ÀÔ´Ï´Ù.
ÀÔÂû½Ã°£Àº 10:00~11:20ÀÔ´Ï´Ù. ÀÌ ¹ý¿ø¿¡´Â ½ÅÇÑÀºÇàÀÌ ÀÔÁ¡Çϰí ÀÖ½À´Ï´Ù.
|
¼±¼øÀ§ ÀÓÂ÷±Çµî±â°¡ µÇ¾î ÀÖ½À´Ï´Ù ´ëÇ×·ÂÀÌ ÀÖ´Â ¼±¼øÀ§ ÀÓÂ÷±Çµî±â ±Ç¸®ÀÚ°¡ ¹è´çÀ» Àü¾× ¹ÞÁö ¸øÇÒ °æ¿ì ³«ÂûÀÚ°¡ ÀÜ¿© º¸Áõ±ÝÀ» ÀμöÇØ¾ßÇÏ´Â °æ¿ìµµ ÀÖ½À´Ï´Ù. |
|
|
| Åë°è±â°£ |
³«Âû¹°°Ç¼ö |
Æò±Õ°¨Á¤°¡ |
Æò±Õ³«Âû°¡ |
³«Âû°¡À² |
À¯ÂûȽ¼ö |
| 3°³¿ù |
43°Ç |
255,860,465¿ø |
219,656,261¿ø |
86% |
1.4ȸ |
| 6°³¿ù |
86°Ç |
236,895,349¿ø |
201,069,016¿ø |
85% |
1.5ȸ |
| 12°³¿ù |
137°Ç |
228,149,448¿ø |
194,967,669¿ø |
86% |
1.5ȸ |
|
|
|
|
|
|
|
 |
ÀαÙÁö¿ª ÃÖ±Ù ³«Âû»ç·Ê
|
|
|
 |
|
|
[¾È³»] Ȥ½Ã ÀÌ¿ëÀÌ ºÒÆíÇϽðųª »èÁ¦ÇÒ ³»¿ëÀÌ ÀÖ´Ù¸é ÃÖ´ëÇÑ ³ë·ÂÇØ¼ °³¼±ÇØ ³ª°¡µµ·Ï ÇϰڽÀ´Ï´Ù.
 |
|
ÀÌ »çÀÌÆ®¿¡¼ Á¦°øµÇ´Â ºÎµ¿»ê°æ¸Å ÀÚ·á´Â ¹ý¿ø °æ¸Å°è¿¡¼ ó¸®Çϰí ÀÖ´Â ½ÇÁ¦ ¹°°ÇÀÇ Á¤º¸¿Í ÀÏÄ¡ÇÏÁö ¾ÊÀ» ¼öµµ ÀÖ½À´Ï´Ù.
´ç»ç´Â º» ÀÚ·á¿¡ °üÇÏ¿© Á¤½Ä ÄÁ¼³ÆÃ ÀÇ·Ú°¡ ¾Æ´Ñ ÀÌ»ó ¾î¶°ÇÑ º¸Áõµµ ÇÏÁö ¾ÊÀ¸¸ç ¹ýÀû Ã¥ÀÓÀ» ÁöÁö ¾Ê½À´Ï´Ù.
ÀÔÂûÇϱâ Àü¿¡ ²Ä²ÄÈ÷ ¹ý¿ø¿¡ ºñÄ¡µÈ ¸Å°¢¹°°Ç¸í¼¼¼ ¹× ±âŸ °øºÎ¸¦ ÀçÈ®ÀÎÇϽðí ÀÔÂû¿¡ Âü°¡ÇÏ½Ã±æ ¹Ù¶ø´Ï´Ù. |
|
|
|
|
|