|
|
|
| ¹°°ÇÁ¤º¸ Çٽɺ¸±â |
Ȩ > °æ¸ÅÁ¾ÇÕ°Ë»ö > ¹°°ÇÁ¤º¸ Çٽɺ¸±â |
|
|
| 2025Ÿ°æ340 °æ¸Å»ç°ÇÀÇ ´Ù¼¼´ë(ºô¶ó) ¹°°Ç¿¡ °üÇÑ »ó¼¼ Á¤º¸ÀÔ´Ï´Ù. |
|
| ¼ÒÀçÁö |
°æ±âµµ ¼ö¿ø½Ã ±Ç¼±±¸ Æòµ¿·Î58¹ø±æ 42, 101µ¿ 2Ãþ201È£ (Æòµ¿,±¤¸íÁÖÅÃ)
±¸)°æ±âµµ ¼ö¿ø½Ã ±Ç¼±±¸ Æòµ¿ 47-23
|
|
| »ç°Ç¹øÈ£ |
2025 Ÿ°æ 340 |
¹°°Ç¹øÈ£ |
1
|
¹°°Ç¿ëµµ |
´Ù¼¼´ë(ºô¶ó) |
| °¨Á¤Æò°¡¾× |
365,000,000¿ø |
°æ¸Å´ë»ó |
ÅäÁö ¹× °Ç¹°Àϰý ¸Å°¢ |
ÁøÇà»óÅ |
À¯Âû |
| ÃÖÀúÀÔÂû°¡ |
(49%) 178,850,000¿ø
|
°Ç¹°¸éÀû |
71.80§³(21.72Æò) |
ÀÔÂû±âÀÏ |
2026.04.21(È) 10:00
(ÀÔÂû 22ÀÏÀü)
|
| ÀÔÂûº¸Áõ±Ý |
(10%) 17,885,000¿ø |
ÅäÁö¸éÀû |
48.62§³(14.71Æò)
|
À¯ÂûȽ¼ö |
2ȸ |
| ÀÔÂû¹ý¿ø |
¼ö¿øÁö¹æ¹ý¿ø |
°æ¸Å¹æ¹ý |
ºÎµ¿»êÀÓÀǰæ¸Å |
¹°°ÇÁ¶È¸¼ö |
¿À´Ã: 2ȸ [´©Àû: 1144ȸ]
|
| ¸»¼Ò±âÁØ | ÃÖ¼±¼øÀ§ ¼³Á¤ : 2023.5.2. ±ÙÀú´ç ¼³Á¤
|
|
|
|
|
|
|
|
|
|
|
°æ¸Å´ë»ó ¸ñ·Ï
|
|
| ±¸ºÐ |
¸ñ·Ï |
ÁÖ¼Ò |
±¸Á¶/¿ëµµ/´ëÁö±Ç |
ºñ°í |
´ëÁö±Ç
|
1 |
Æòµ¿ 47-14 |
797ºÐÀÇ 48.624 |
48.624§³ (14.71Æò)
|
°Ç¹°
|
1 |
Æòµ¿ 47-14 |
101µ¿ 2Ãþ201È£ ö±ÙÄÜÅ©¸®Æ®±¸Á¶ |
71.8§³ (21.72Æò)
|
|
|
|
2026-02-09
À¯Âû
|
(100%)
365,000,000¿ø
|
|
|
|
2026-03-20
À¯Âû
|
(70%)
255,500,000¿ø
|
|
|
|
2026-04-21
ÁøÇà
|
(49%)
178,850,000¿ø
|
|
|
|
|
|
°¨Á¤Æò°¡¼ ¿ä¾à |
|
[À§Ä¡/ÁÖÀ§È¯°æ]
º»°ÇÀº °æ±âµµ ¼ö¿ø½Ã ±Ç¼±±¸ Æòµ¿ ¼ÒÀç "Æòµ¿º¹Áö¼¾ÅÍ" ³²Ãø ±Ù°Å¸®¿¡ À§Ä¡Çϸç,ÁÖÀ§´Â
´Üµ¶(´Ù°¡±¸)ÁÖÅà ¹× ´Ù¼¼´ëÁÖÅÃ, ±Ù¸°»ýȰ½Ã¼³, ±Ù¸°°ø¿ø µîÀÌ È¥ÀçÇÏ´Â Áö¿ªÀ¸·Î¼ Á¦¹Ý
ÁÖÀ§È¯°æÀº º¸Åë½Ã µË´Ï´Ù.
[±³Åë»óȲ]
º»°Ç±îÁö Â÷·®ÀÇ ÁøÃâÀÔÀÌ °¡´ÉÇϸç, Àαٹö½ºÁ¤·ùÀå±îÁöÀÇ °Å¸® ¹× ¿îÇàºóµµ µîÀ» °í·ÁÇÒ
¶§ Á¦¹Ý ±³Åë»óȲÀº º¸Åë½Ã µË´Ï´Ù.
[°Ç¹°±¸Á¶]
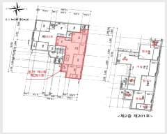
ö±ÙÄÜÅ©¸®Æ®±¸Á¶ (ö±Ù)ÄÜÅ©¸®Æ®ÁöºØ Áö»ó 5Ãþ °Ç(»ç¿ë½ÂÀÎÀÏ: 2023.04.14)³»
Á¦2Ãþ Á¦201È£·Î,
¿Üº®: ¼®ÀçºÙÀÓ ¸¶°¨ µî
³»º®: º®Áöµµ¹è ¹× ÀϺΠŸÀϺÙÀÓ ¸¶°¨ µî(ÇöÀåÁ¶»ç½Ã Æó¹®ºÎÀç·Î Åë»óÀûÀÎ ´Ù¼¼´ëÁÖÅà ³»º®À» ±âÁØÀ¸·Î Ç¥±â ÇÕ´Ï´Ù.)
âȣ: ¼¨½Ãâȣ µî ÀÔ´Ï´Ù.
[ÀÌ¿ë»óÅÂ]
°øµ¿ÁÖÅÃ(´Ù¼¼´ëÁÖÅÃ)À¸·Î ÀÌ¿ë ÁßÀÔ´Ï´Ù.
[¼³ºñ³»¿ª]
À§»ý ¹× ±Þ,¹è¼ö¼³ºñ, µµ½Ã°¡½º¿¡ ÀÇÇÑ °³º°³¹æ¼³ºñ, ÈÀçŽÁö µîÀÇ ¼Ò¹æ¼³ºñ, ½Â°±â¼³ºñ
µîÀ» °®Ãß¾ú½À´Ï´Ù.
[ÅäÁöÇü»ó/ÀÌ¿ë»óÅÂ]
ÀÎÁ¢µµ·Î ´ëºñ µî°íÆòźÇÑ »ç´Ù¸®Çü ÅäÁö·Î¼, "°øµ¿ÁÖÅÃ(´Ù¼¼´ëÁÖÅÃ)"°ÇºÎÁö·Î ÀÌ¿ë Áß
ÀÔ´Ï´Ù.
7)ÀÎÁ¢ µµ·Î»óŵî
¼ÃøÀ¸·Î ³ëÆø ¾à 12¹ÌÅÍ ³»¿ÜÀÇ ¾Æ½ºÆÈÆ® Æ÷Àåµµ·Î¿¡ Á¢ÇÕ´Ï´Ù.
[ÅäÁöÀÌ¿ë°èȹ]
µµ½ÃÁö¿ª, Á¦1Á¾ÀϹÝÁÖ°ÅÁö¿ª, Áß·Î3·ù(Æø 12m-15m)(Á¢ÇÕ), °¡Ãà»çÀ°Á¦Çѱ¸¿ª£¼°¡ÃàºÐ´¢ÀÇ
°ü¸® ¹× À̿뿡 °üÇÑ ¹ý·ü£¾, ºñÇà¾ÈÀüÁ¦2±¸¿ª(Àü¼ú)£¼±º»ç±âÁö ¹× ±º»ç½Ã¼³ º¸È£¹ý£¾,
±º¿ëºñÇàÀå ¼ÒÀ½´ëÃ¥±¸¿ª Á¦1Á¾±¸¿ª£¼±º¿ëºñÇàÀå¤ý±º»ç°ÝÀå ¼ÒÀ½ ¹æÁö ¹× ÇÇÇØº¸»ó¿¡ °üÇÑ
¹ý·ü£¾, Á¤ºñ±¸¿ª£¼µµ½Ã ¹× ÁÖ°Åȯ°æÁ¤ºñ¹ý£¾, µµ½Ã±³ÅëÁ¤ºñÁö¿ª£¼µµ½Ã±³ÅëÁ¤ºñÃËÁø¹ý£¾,
°ú¹Ð¾ïÁ¦±Ç¿ª£¼¼öµµ±ÇÁ¤ºñ°èȹ¹ý£¾ÀÔ´Ï´Ù.
[°øºÎ¿ÍÀÇ Â÷ÀÌ]
¾ø½À´Ï´Ù.
[Âü°í»çÇ×]
ÀÓ´ë°ü°è´Â ¹Ì»óÀÔ´Ï´Ù. |
|
|
°ÇÃ๰ÇöȲ |
|
|
|
| ¼ÒÀçÁö |
°æ±âµµ ¼ö¿ø½Ã ±Ç¼±±¸ Æòµ¿ 47-14¹øÁö |
| ´ëÁö¸éÀû |
797§³(241.52Æò) |
¿¬¸éÀû |
659.92§³(199.98Æò) |
ÁÖ¿ëµµ |
°øµ¿ÁÖÅà |
| °ÇÃà¸éÀû |
196.23§³(59.46Æò) |
¿ëÀû·ü»êÁ¤¿¬¸éÀû |
659.92§³(199.98Æò) |
Âø°øÀÏÀÚ |
2022.06.13 |
| °ÇÆóÀ² |
24.62% |
¿ëÀû·ü |
82.8% |
»ç¿ë½ÂÀÎÀÏÀÚ |
2023.04.14 |
| Áö»óÃþ¼ö |
5Ãþ |
ÁöÇÏÃþ¼ö |
|
±¸Á¶ |
ö±ÙÄÜÅ©¸®Æ®±¸Á¶ |
°ÇÃ๰Ãþº°ÇöȲ [º¸±â]| Ãþº° | ±¸Á¶ | ¿ëµµ | ¸éÀû | | 1Ãþ | ö±ÙÄÜÅ©¸®Æ®±¸Á¶ | °è´Ü½Ç,ELEV | 11.76§³ (3.56Æò) | | 2Ãþ | ö±ÙÄÜÅ©¸®Æ®±¸Á¶ | °øµ¿ÁÖÅÃ(´Ù¼¼´ëÁÖÅÃ(2¼¼´ë)) | 162§³ (49.09Æò) | | 3Ãþ | ö±ÙÄÜÅ©¸®Æ®±¸Á¶ | °øµ¿ÁÖÅÃ(´Ù¼¼´ëÁÖÅÃ(2¼¼´ë)) | 162§³ (49.09Æò) | | 4Ãþ | ö±ÙÄÜÅ©¸®Æ®±¸Á¶ | °øµ¿ÁÖÅÃ(´Ù¼¼´ëÁÖÅÃ(2¼¼´ë)) | 162§³ (49.09Æò) | | 5Ãþ | ö±ÙÄÜÅ©¸®Æ®±¸Á¶ | °øµ¿ÁÖÅÃ(´Ù¼¼´ëÁÖÅÃ(2¼¼´ë)) | 162§³ (49.09Æò) |
|
|
|
|
|
 |
ÀÓÂ÷³»¿ª |
[¹è´ç¿ä±¸Á¾±âÀÏ : 2025/03/28] |
|
|
| ÀÓÂ÷ÀÎ |
Á¡À¯°ü°è |
ÀüÀÔÀÏÀÚ |
È®Á¤ÀÏÀÚ |
¹è´ç¿ä±¸ÀÏ |
º¸Áõ±Ý/Â÷ÀÓ |
´ëÇ׿ä°Ç |
ºñ°í |
| ȫOO |
201È£ |
2023.6.8. |
2023.5.12. |
2025.2.26. |
125,000,000 [¿ù]660,000 |
X |
2023.6.8.~2025.4.24. |
|
|
|
 |
¹ý¿ø ¹°°ÇÀÚ·á ¿ä¾à |
|
|
|
|
| ¼Ò¸êµÇÁö ¾Ê´Â µî±âºÎ±Ç¸® |
|
| ¼³Á¤µÈ °ÍÀ¸·Î º¸´Â Áö»ó±Ç |
|
| ¹ý¿øÀÚ·á Æ¯ÀÌ»çÇ× |
[ÁÖ¿ä ¹®°Ç Á¢¼ö ³»¿ª]
[2025.11.27] ä±ÇÀÚ ÄÉOOOOOOOO OOOO(OOOOOOOOOOOO) ä±ÇÀÚº¯°æ½Å°í¼ Á¦Ãâ
|
[ºÎµ¿»ê ÇöȲÁ¶»ç¼ ºñ°í¶õ]
ÇØ´ç ºÎµ¿»êÀÇ ÇöȲÀº ¿Ü |
|
| ¿©ÀÇÁÖ°æ¸Å Á¶¾ð ÇѸ¶µð |
ÀÌ ºÎµ¿»êÀÇ ÀÔÂû¹ý¿øÀº ¼ö¿øÁö¹æ¹ý¿øÀÔ´Ï´Ù.
ÀÔÂûÀÏÀº 2026-04-21ÀÔ´Ï´Ù.
ÀÔÂû½Ã°£Àº 10:00~11:10ÀÔ´Ï´Ù. ÀÌ ¹ý¿ø¿¡´Â KB±¹¹ÎÀºÇàÀÌ ÀÔÁ¡Çϰí ÀÖ½À´Ï´Ù.
|
|
|
| Åë°è±â°£ |
³«Âû¹°°Ç¼ö |
Æò±Õ°¨Á¤°¡ |
Æò±Õ³«Âû°¡ |
³«Âû°¡À² |
À¯ÂûȽ¼ö |
|
|
|
|
|
|
|
 |
ÀαÙÁö¿ª ÃÖ±Ù ³«Âû»ç·Ê
|
|
|
 |
|
|
[¾È³»] Ȥ½Ã ÀÌ¿ëÀÌ ºÒÆíÇϽðųª »èÁ¦ÇÒ ³»¿ëÀÌ ÀÖ´Ù¸é ÃÖ´ëÇÑ ³ë·ÂÇØ¼ °³¼±ÇØ ³ª°¡µµ·Ï ÇϰڽÀ´Ï´Ù.
 |
|
ÀÌ »çÀÌÆ®¿¡¼ Á¦°øµÇ´Â ºÎµ¿»ê°æ¸Å ÀÚ·á´Â ¹ý¿ø °æ¸Å°è¿¡¼ ó¸®Çϰí ÀÖ´Â ½ÇÁ¦ ¹°°ÇÀÇ Á¤º¸¿Í ÀÏÄ¡ÇÏÁö ¾ÊÀ» ¼öµµ ÀÖ½À´Ï´Ù.
´ç»ç´Â º» ÀÚ·á¿¡ °üÇÏ¿© Á¤½Ä ÄÁ¼³ÆÃ ÀÇ·Ú°¡ ¾Æ´Ñ ÀÌ»ó ¾î¶°ÇÑ º¸Áõµµ ÇÏÁö ¾ÊÀ¸¸ç ¹ýÀû Ã¥ÀÓÀ» ÁöÁö ¾Ê½À´Ï´Ù.
ÀÔÂûÇϱâ Àü¿¡ ²Ä²ÄÈ÷ ¹ý¿ø¿¡ ºñÄ¡µÈ ¸Å°¢¹°°Ç¸í¼¼¼ ¹× ±âŸ °øºÎ¸¦ ÀçÈ®ÀÎÇϽðí ÀÔÂû¿¡ Âü°¡ÇÏ½Ã±æ ¹Ù¶ø´Ï´Ù. |
|
|
|
|
|