|
|
|
| ¹°°ÇÁ¤º¸ Çٽɺ¸±â |
Ȩ > °æ¸ÅÁ¾ÇÕ°Ë»ö > ¹°°ÇÁ¤º¸ Çٽɺ¸±â |
|
|
| 2025Ÿ°æ491 °æ¸Å»ç°ÇÀÇ ´Ù¼¼´ë(ºô¶ó) ¹°°Ç¿¡ °üÇÑ »ó¼¼ Á¤º¸ÀÔ´Ï´Ù. |
|
| ¼ÒÀçÁö |
°æ±âµµ ¾È»ê½Ã »ó·Ï±¸ ºÎ°îµ¿ 607-11 ºÎÀÚ¸í°¡ 5Ãþ501È£
|
|
| »ç°Ç¹øÈ£ |
2025 Ÿ°æ 491 |
¹°°Ç¹øÈ£ |
1
|
¹°°Ç¿ëµµ |
´Ù¼¼´ë(ºô¶ó) |
| °¨Á¤Æò°¡¾× |
146,000,000¿ø |
°æ¸Å´ë»ó |
ÅäÁö ¹× °Ç¹°Àϰý ¸Å°¢ |
ÁøÇà»óÅ |
À¯Âû |
| ÃÖÀúÀÔÂû°¡ |
(70%) 102,200,000¿ø
|
°Ç¹°¸éÀû |
56.86§³(17.20Æò) |
ÀÔÂû±âÀÏ |
2026.04.14(È) 10:30
(ÀÔÂû 13ÀÏÀü)
|
| ÀÔÂûº¸Áõ±Ý |
(10%) 10,220,000¿ø |
ÅäÁö¸éÀû |
29.08§³(8.80Æò)
|
À¯ÂûȽ¼ö |
1ȸ |
| ÀÔÂû¹ý¿ø |
¼ö¿øÁö¹æ¹ý¿ø ¾È»êÁö¿ø |
°æ¸Å¹æ¹ý |
ºÎµ¿»ê°Á¦°æ¸Å |
¹°°ÇÁ¶È¸¼ö |
¿À´Ã: 2ȸ [´©Àû: 169ȸ]
|
| ¸»¼Ò±âÁØ | ÃÖ¼±¼øÀ§ ¼³Á¤ : 2023. 5. 18. °¡¾Ð·ù ¼³Á¤
|
|
|
|
|
|
|
|
|
|
|
°æ¸Å´ë»ó ¸ñ·Ï
|
|
| ±¸ºÐ |
¸ñ·Ï |
ÁÖ¼Ò |
±¸Á¶/¿ëµµ/´ëÁö±Ç |
ºñ°í |
´ëÁö±Ç
|
1 |
ºÎ°îµ¿ 607-11 |
276.9ºÐÀÇ 29.083 |
29.083§³ (8.80Æò)
|
°Ç¹°
|
1 |
ºÎ°îµ¿ 607-11 |
5Ãþ501È£ ö±ÙÄÜÅ©¸®Æ®±¸Á¶ |
56.86§³ (17.20Æò)
|
|
|
|
2026-03-03
À¯Âû
|
(100%)
146,000,000¿ø
|
|
|
|
2026-04-14
ÁøÇà
|
(70%)
102,200,000¿ø
|
|
|
|
|
|
°¨Á¤Æò°¡¼ ¿ä¾à |
|
[À§Ä¡/ÁÖÀ§È¯°æ]
º»°ÇÀº °æ±âµµ ¾È»ê½Ã »ó·Ï±¸ ºÎ°îµ¿ ¼ÒÀç""ºÎ°îÁßÇб³""ºÏµ¿Ãø Àαٿ¡ À§Ä¡Çϸç, ÁÖÀ§´Â ´Ù
¼¼´ëÁÖÅÃ, ´Ù°¡±¸ÁÖÅÃ, ±Ù¸°»ýȰ½Ã¼³, °ø¿ø ¹× Çб³ µîÀÌ ¼ÒÀçÇÏ´Â Áö¿ªÀ¸·Î ÁÖÀ§È¯°æÀº º¸
ÅëÀÓ.
[±³Åë»óȲ]
º»°ÇÁÖÅñîÁö Â÷·®Á¢±ÙÀÌ °¡´ÉÇϰí, Àαٿ¡ ³ë¼±¹ö½ºÁ¤·ùÀåÀÌ ¼ÒÀçÇÏ´Â µî ±³Åë»óȲÀº º¸Åë
ÀÓ.
[°Ç¹°±¸Á¶]
ö±ÙÄÜÅ©¸®Æ®±¸Á¶ Æò½º¶óºêÁöºØ 5Ãþ °Ç¹° ³» 5Ãþ 501È£·Î¼
¿Üº® : ¼®ÀçºÙÀÓ ¸¶°¨ µî.
³»º® : º®Áö ¹× ÀϺΠŸÀϸ¶°¨ µî.
âȣ : ¼¦½Ã âȣ µî.
[ÀÌ¿ë»óÅÂ]
´Ù¼¼´ëÁÖÅÃ(ÈÄ÷ ""³»ºÎ±¸Á¶µµ"" ÂüÁ¶)À¸·Î ÀÌ¿ë ÁßÀÓ.
[¼³ºñ³»¿ª]
±âº»ÀûÀÎ À§»ý¼³ºñ ¹× ±Þ.¹è¼ö¼³ºñ, µµ½Ã°¡½º, °³º°³¹æ¼³ºñ µî µÇ¾î ÀÖÀ½.
[ÅäÁöÇü»ó/ÀÌ¿ë»óÅÂ]
¼¼ÀåÇü ÆòÁö·Î ´Ù¼¼´ëÁÖÅà °ÇºÎÁö·Î ÀÌ¿ë ÁßÀÓ.
7)ÀÎÁ¢ µµ·Î»óŵî
º»°Ç ³²ÃøÀ¸·Î 15¹ÌÅÍ ³»¿ÜÀÇ Æ÷Àåµµ·Î¿¡ Á¢ÇÔ.
[ÅäÁöÀÌ¿ë°èȹ]
µµ½ÃÁö¿ª, Á¦2Á¾ÀϹÝÁÖ°ÅÁö¿ª, ½Ã°¡Áö°æ°üÁö±¸(ÀϹÝ), ¼Ò·Î3·ù(Æø8m¹Ì¸¸)(Á¢ÇÕ), Áß·Î2·ù
(Æø15m~20m)(±¹Áöµµ·Î)(Á¢ÇÕ), °¡Ãà»çÀ°Á¦Çѱ¸¿ª, »ó´ëº¸È£±¸¿ª(¾È»êºÎ°îÁßÇб³), ´ë±â°ü
¸®±Ç¿ª, µµ½Ã±³ÅëÁ¤ºñÁö¿ª, »ýȰ¼ÒÀ½Áøµ¿°ü¸®Áö¿ª, ¼ºÀå°ü¸®±Ç¿ªÀÓ.
[°øºÎ¿ÍÀÇ Â÷ÀÌ]
¾øÀ½.
[Âü°í»çÇ×]
ÀÓ´ë°ü°è ¹Ì»óÀÓ. |
|
|
°ÇÃ๰ÇöȲ |
|
|
|
| ¼ÒÀçÁö |
°æ±âµµ ¾È»ê½Ã »ó·Ï±¸ ºÎ°îµ¿ 607-11¹øÁö |
| ´ëÁö¸éÀû |
276.9§³(83.91Æò) |
¿¬¸éÀû |
610.21§³(184.91Æò) |
ÁÖ¿ëµµ |
°øµ¿ÁÖÅà |
| °ÇÃà¸éÀû |
164.58§³(49.87Æò) |
¿ëÀû·ü»êÁ¤¿¬¸éÀû |
610.21§³(184.91Æò) |
Âø°øÀÏÀÚ |
2013.06.21 |
| °ÇÆóÀ² |
59.44% |
¿ëÀû·ü |
220.37% |
»ç¿ë½ÂÀÎÀÏÀÚ |
2013.09.24 |
| Áö»óÃþ¼ö |
5Ãþ |
ÁöÇÏÃþ¼ö |
|
±¸Á¶ |
ö±ÙÄÜÅ©¸®Æ®±¸Á¶ |
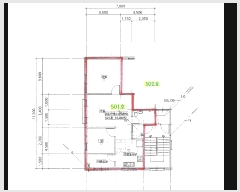
°ÇÃ๰Ãþº°ÇöȲ [º¸±â]| Ãþº° | ±¸Á¶ | ¿ëµµ | ¸éÀû | | 1Ãþ | ö±ÙÄÜÅ©¸®Æ®±¸Á¶ | °è´Ü½Ç | 20.25§³ (6.14Æò) | | 2Ãþ | ö±ÙÄÜÅ©¸®Æ®±¸Á¶ | ´Ù¼¼´ëÁÖÅÃ(2¼¼´ë) | 164.58§³ (49.87Æò) | | 3Ãþ | ö±ÙÄÜÅ©¸®Æ®±¸Á¶ | ´Ù¼¼´ëÁÖÅÃ(2¼¼´ë) | 164.58§³ (49.87Æò) | | 4Ãþ | ö±ÙÄÜÅ©¸®Æ®±¸Á¶ | ´Ù¼¼´ëÁÖÅÃ(2¼¼´ë) | 137.68§³ (41.72Æò) | | 5Ãþ | ö±ÙÄÜÅ©¸®Æ®±¸Á¶ | ´Ù¼¼´ëÁÖÅÃ(2¼¼´ë) | 123.12§³ (37.31Æò) |
|
|
|
|
|
 |
ÀÓÂ÷³»¿ª |
[¹è´ç¿ä±¸Á¾±âÀÏ : 2025/05/26] |
|
|
| ÀÓÂ÷ÀÎ |
Á¡À¯°ü°è |
ÀüÀÔÀÏÀÚ |
È®Á¤ÀÏÀÚ |
¹è´ç¿ä±¸ÀÏ |
º¸Áõ±Ý/Â÷ÀÓ |
´ëÇ׿ä°Ç |
ºñ°í |
| õOO |
501È£ÀüºÎ |
2020.08.21. |
2020.08.21. |
2025.3.24. |
145,000,000
|
O |
2020.09.07.~ ÇöÀç |
|
|
|
 |
¹ý¿ø ¹°°ÇÀÚ·á ¿ä¾à |
|
|
|
|
| ¼Ò¸êµÇÁö ¾Ê´Â µî±âºÎ±Ç¸® |
¸Å¼öÀο¡°Ô ´ëÇ×ÇÒ ¼ö ÀÖ´Â À»±¸ ¼øÀ§ 8¹ø ÀÓÂ÷±Çµî±â(2023.11.23. µî±â) ÀÖÀ½(ÀÓ´ëÂ÷º¸Áõ±Ý 145,000,000¿ø, ÀüÀÔÀÏ 2020.8.21.,
È®Á¤ÀÏÀÚ 2020.8.21.). ¹è´ç¿¡¼ º¸Áõ±ÝÀÌ Àü¾× º¯Á¦µÇÁö ¾Æ´ÏÇϸé Àܾ×À» ¸Å¼öÀÎÀÌ ÀμöÇÔ. |
| ¼³Á¤µÈ °ÍÀ¸·Î º¸´Â Áö»ó±Ç |
|
| ¹ý¿øÀÚ·á Æ¯ÀÌ»çÇ× |
[ÁÖ¿ä ¹®°Ç Á¢¼ö ³»¿ª]
|
[¸Å°¢¹°°Ç¸í¼¼¼ ºñ°í¶õ]
Àü¼¼»ç±âÇÇÇØÀÚ Áö¿ø ¹× ÁְžÈÁ¤¿¡ °üÇÑ Æ¯º°¹ý Á¦20Á¶ Á¦1Ç׿¡ ÀÇÇØ Àü¼¼»ç±âÇÇÇØÀÚ°¡ ¿ì¼±¸Å¼ö±ÇÀ» Çà»çÇÒ ¼ö ÀÖÀ½. |
[ºÎµ¿»ê ÇöȲÁ¶»ç¼ ºñ°í¶õ]
Ãþ2°¡±¸ |
|
| ¿©ÀÇÁÖ°æ¸Å Á¶¾ð ÇѸ¶µð |
ÀÌ ºÎµ¿»êÀÇ ÀÔÂû¹ý¿øÀº ¼ö¿øÁö¹æ¹ý¿ø ¾È»êÁö¿øÀÔ´Ï´Ù.
ÀÔÂûÀÏÀº 2026-04-14ÀÔ´Ï´Ù.
ÀÔÂû½Ã°£Àº 10:00~11:00ÀÔ´Ï´Ù. ÀÌ ¹ý¿ø¿¡´Â ½ÅÇÑÀºÇàÀÌ ÀÔÁ¡Çϰí ÀÖ½À´Ï´Ù.
|
¼±¼øÀ§ ÀÓÂ÷±Çµî±â°¡ µÇ¾î ÀÖ½À´Ï´Ù ´ëÇ×·ÂÀÌ ÀÖ´Â ¼±¼øÀ§ ÀÓÂ÷±Çµî±â ±Ç¸®ÀÚ°¡ ¹è´çÀ» Àü¾× ¹ÞÁö ¸øÇÒ °æ¿ì ³«ÂûÀÚ°¡ ÀÜ¿© º¸Áõ±ÝÀ» ÀμöÇØ¾ßÇÏ´Â °æ¿ìµµ ÀÖ½À´Ï´Ù. |
|
|
| Åë°è±â°£ |
³«Âû¹°°Ç¼ö |
Æò±Õ°¨Á¤°¡ |
Æò±Õ³«Âû°¡ |
³«Âû°¡À² |
À¯ÂûȽ¼ö |
| 3°³¿ù |
24°Ç |
154,391,667¿ø |
92,813,250¿ø |
63% |
2.5ȸ |
| 6°³¿ù |
44°Ç |
170,989,091¿ø |
108,740,817¿ø |
65% |
2.2ȸ |
| 12°³¿ù |
98°Ç |
159,670,306¿ø |
108,217,824¿ø |
68% |
1.8ȸ |
|
|
|
|
|
|
|
 |
ÀαÙÁö¿ª ÃÖ±Ù ³«Âû»ç·Ê
|
|
|
 |
|
|
[¾È³»] Ȥ½Ã ÀÌ¿ëÀÌ ºÒÆíÇϽðųª »èÁ¦ÇÒ ³»¿ëÀÌ ÀÖ´Ù¸é ÃÖ´ëÇÑ ³ë·ÂÇØ¼ °³¼±ÇØ ³ª°¡µµ·Ï ÇϰڽÀ´Ï´Ù.
 |
|
ÀÌ »çÀÌÆ®¿¡¼ Á¦°øµÇ´Â ºÎµ¿»ê°æ¸Å ÀÚ·á´Â ¹ý¿ø °æ¸Å°è¿¡¼ ó¸®Çϰí ÀÖ´Â ½ÇÁ¦ ¹°°ÇÀÇ Á¤º¸¿Í ÀÏÄ¡ÇÏÁö ¾ÊÀ» ¼öµµ ÀÖ½À´Ï´Ù.
´ç»ç´Â º» ÀÚ·á¿¡ °üÇÏ¿© Á¤½Ä ÄÁ¼³ÆÃ ÀÇ·Ú°¡ ¾Æ´Ñ ÀÌ»ó ¾î¶°ÇÑ º¸Áõµµ ÇÏÁö ¾ÊÀ¸¸ç ¹ýÀû Ã¥ÀÓÀ» ÁöÁö ¾Ê½À´Ï´Ù.
ÀÔÂûÇϱâ Àü¿¡ ²Ä²ÄÈ÷ ¹ý¿ø¿¡ ºñÄ¡µÈ ¸Å°¢¹°°Ç¸í¼¼¼ ¹× ±âŸ °øºÎ¸¦ ÀçÈ®ÀÎÇϽðí ÀÔÂû¿¡ Âü°¡ÇÏ½Ã±æ ¹Ù¶ø´Ï´Ù. |
|
|
|
|
|