|
|
|
| ¹°°ÇÁ¤º¸ Çٽɺ¸±â |
Ȩ > °æ¸ÅÁ¾ÇÕ°Ë»ö > ¹°°ÇÁ¤º¸ Çٽɺ¸±â |
|
|
| 2024Ÿ°æ103242 °æ¸Å»ç°ÇÀÇ ¾ÆÆÄÆ® ¹°°Ç¿¡ °üÇÑ »ó¼¼ Á¤º¸ÀÔ´Ï´Ù. |
|
| ¼ÒÀçÁö |
°æ±âµµ ¼ö¿ø½Ã Àå¾È±¸ °æ¼ö´ë·Î976¹ø±æ 22, 148µ¿ 3Ãþ301È£ (Á¶¿øµ¿,¼ö¿øÇÑÀÏ¾ÆÆÄÆ®)
±¸)°æ±âµµ ¼ö¿ø½Ã Àå¾È±¸ Á¶¿øµ¿ 881
|
|
| »ç°Ç¹øÈ£ |
2024 Ÿ°æ 103242 |
¹°°Ç¹øÈ£ |
1
|
¹°°Ç¿ëµµ |
¾ÆÆÄÆ® |
| °¨Á¤Æò°¡¾× |
422,000,000¿ø |
°æ¸Å´ë»ó |
ÅäÁö ¹× °Ç¹°Àϰý ¸Å°¢ |
ÁøÇà»óÅ |
½Å°Ç |
| ÃÖÀúÀÔÂû°¡ |
(100%) 422,000,000¿ø
|
°Ç¹°¸éÀû |
59.84§³(18.10Æò) |
ÀÔÂû±âÀÏ |
2026.03.30(¿ù) 10:00
(ÀÔÂû 13ÀÏÀü)
|
| ÀÔÂûº¸Áõ±Ý |
(10%) 42,200,000¿ø |
ÅäÁö¸éÀû |
24.79§³(7.50Æò)
|
À¯ÂûȽ¼ö |
0ȸ |
| ÀÔÂû¹ý¿ø |
¼ö¿øÁö¹æ¹ý¿ø |
°æ¸Å¹æ¹ý |
ºÎµ¿»êÀÓÀǰæ¸Å |
¹°°ÇÁ¶È¸¼ö |
¿À´Ã: 1ȸ [´©Àû: 4ȸ]
|
| ¸»¼Ò±âÁØ | ÃÖ¼±¼øÀ§ ¼³Á¤ : 2015.7.14. ±ÙÀú´ç±Ç ¼³Á¤
|
|
|
|
|
|
|
|
|
|
|
°æ¸Å´ë»ó ¸ñ·Ï
|
|
| ±¸ºÐ |
¸ñ·Ï |
ÁÖ¼Ò |
±¸Á¶/¿ëµµ/´ëÁö±Ç |
ºñ°í |
´ëÁö±Ç
|
1 |
Á¶¿øµ¿ 881 |
191659.9ºÐÀÇ 24.7862 |
24.7862§³ (7.50Æò)
|
°Ç¹°
|
1 |
Á¶¿øµ¿ 881 |
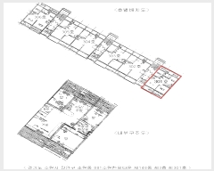
148µ¿ 3Ãþ301È£ ö±ÙÄÜÅ©¸®Æ® º®½Ä±¸Á¶ |
59.842§³ (18.10Æò)
|
|
|
|
2026-03-30
ÁøÇà
|
(100%)
422,000,000¿ø
|
|
|
|
|
|
°¨Á¤Æò°¡¼ ¿ä¾à |
|
[À§Ä¡/ÁÖÀ§È¯°æ]
º»°ÇÀº °æ±âµµ ¼ö¿ø½Ã Àå¾È±¸ Á¶¿øµ¿ ¼ÒÀç "Àå¾È±¸Ã»" ºÏµ¿Ãø Àαٿ¡ À§Ä¡ÇÏ´Â ºÎµ¿»ê(±¸ºÐ°Ç¹°)·Î¼, ÁÖÀ§´Â ¾ÆÆÄÆ®´ÜÁö, °ü°ø¼, Çб³, ±Ù¸°»ýȰ½Ã¼³ µîÀÌ ¼ÒÀçÇÏ´Â Áö¿ªÀÓ.
[±³Åë»óȲ]
º»°Ç±îÁö Â÷·®Á¢±ÙÀÌ °¡´ÉÇϰí, Àαٿ¡ ³ë¼±¹ö½º Á¤·ùÀåÀÌ ¼ÒÀçÇÏ´Â µî ´ëÁß±³Åë¿©°ÇÀº º¸Åë½Ã µÊ.
[°Ç¹°±¸Á¶]
ö±ÙÄÜÅ©¸®Æ®º®½Ä±¸Á¶ ¹Ú°øÁöºØ 23Ãþ °ÇÁß Á¦3Ãþ Á¦301·Î¼,
(»ç¿ë½ÂÀÎÀÏ: 1999.08.27)
¿Üº®: ½Ã¸àÆ®¸ôÅ»À§ ÆäÀÌÆÃ¸¶°¨ µî,
³»º®: º®Áö¸¶°¨ µî,
âȣ: ¼¦½Ã µîÀÓ.
[ÀÌ¿ë»óÅÂ]
º°Ã· "³»ºÎ±¸Á¶µµ" ÂüÁ¶.
[¼³ºñ³»¿ª]
Àü±â½Ã¼³, ±Þ¡¤¹è¼ö¼³ºñ, À§»ý¼³ºñ, ½Â°±â µîÀÌ ±¸ºñµÇ¾î ÀÖÀ½.
[ÅäÁöÇü»ó/ÀÌ¿ë»óÅÂ]
ºÎÁ¤Çü ÅäÁö·Î¼ °øµ¿ÁÖÅà °ÇºÎÁö·Î ÀÌ¿ë ÁßÀÓ.
7)ÀÎÁ¢ µµ·Î»óŵî
º»°Ç ³²µ¿ÃøÀ¸·Î ³ëÆø ¾à 40m³»¿ÜÀÇ µµ·Î, º»°Ç ºÏÂÊÀ¸·Î ³ëÆø ¾à25m³»¿ÜÀÇ µµ·Î µî°ú Á¢Çϰí, ´ÜÁö³» µµ·Î °³¼³µÇ¾î ÀÖÀ½.
[ÅäÁöÀÌ¿ë°èȹ]
µµ½ÃÁö¿ª , Á¦3Á¾ÀϹÝÁÖ°ÅÁö¿ª , ¼Ò·Î2·ù(Æø 8m-10m)(ÀúÃË) , ¼Ò·Î3·ù(Æø 8m ¹Ì¸¸)(Á¢ÇÕ) , Áß·Î1·ù(Æø 20m-25m)(Á¢ÇÕ) , °¡Ãà»çÀ°Á¦Çѱ¸¿ª£¼°¡ÃàºÐ´¢ÀÇ °ü¸® ¹× À̿뿡 °üÇÑ ¹ý·ü£¾, »ó´ëº¸È£±¸¿ª(°æ±â°úÇаíµîÇб³(¼ö¿ø±³À°Áö¿øÃ»¹®ÀÇ))£¼±³À°È¯°æ º¸È£¿¡ °üÇÑ ¹ý·ü£¾, »ó´ëº¸È£±¸¿ª(¼Û¿øÃʵîÇб³(¼ö¿ø±³À°Áö¿øÃ»¹®ÀÇ))£¼±³À°È¯°æ º¸È£¿¡ °üÇÑ ¹ý·ü£¾, »ó´ëº¸È£±¸¿ª(¼ö¼ºÃʵîÇб³(¼ö¿ø±³À°Áö¿øÃ»¹®ÀÇ))£¼±³À°È¯°æ º¸È£¿¡ °üÇÑ ¹ý·ü£¾, »ó´ëº¸È£±¸¿ª(¼öÀÏ¿©ÀÚÁßÇб³(¼ö¿ø±³À°Áö¿øÃ»¹®ÀÇ))£¼±³À°È¯°æ º¸È£¿¡ °üÇÑ ¹ý·ü£¾, »ó´ëº¸È£±¸¿ª(Á¶¿ø°íµîÇб³(¼ö¿ø±³À°Áö¿øÃ»¹®ÀÇ))£¼±³À°È¯°æ º¸È£¿¡ °üÇÑ ¹ý·ü£¾, »ó´ëº¸È£±¸¿ª(Á¶ÀºÀ¯Ä¡¿ø(¼ö¿ø±³À°Áö¿øÃ»¹®ÀÇ))£¼±³À°È¯°æ º¸È£¿¡ °üÇÑ ¹ý·ü£¾, »ó´ëº¸È£±¸¿ª(ÇÑÀÏÃʵîÇб³(¼ö¿ø±³À°Áö¿øÃ»¹®ÀÇ))£¼±³À°È¯°æ º¸È£¿¡ °üÇÑ ¹ý·ü£¾, Àý´ëº¸È£±¸¿ª(¼Û¿øÃʵîÇб³(¼ö¿ø±³À°Áö¿øÃ»¹®ÀÇ))£¼±³À°È¯°æ º¸È£¿¡ °üÇÑ ¹ý·ü£¾, Àý´ëº¸È£±¸¿ª(Á¶ÀºÀ¯Ä¡¿ø(¼ö¿ø±³À°Áö¿øÃ»¹®ÀÇ))£¼±³À°È¯°æ º¸È£¿¡ °üÇÑ ¹ý·ü£¾, Àý´ëº¸È£±¸¿ª(ÇÑÀÏÃʵîÇб³(¼ö¿ø±³À°Áö¿øÃ»¹®ÀÇ))£¼±³À°È¯°æ º¸È£¿¡ °üÇÑ ¹ý·ü£¾, µµ½Ã±³ÅëÁ¤ºñÁö¿ª£¼µµ½Ã±³ÅëÁ¤ºñÃËÁø¹ý£¾, °ú¹Ð¾ïÁ¦±Ç¿ª£¼¼öµµ±ÇÁ¤ºñ°èȹ¹ý£¾ÀÓ.
[°øºÎ¿ÍÀÇ Â÷ÀÌ]
--.
[Âü°í»çÇ×]
ÀÓ´ëÂ÷ °ü°è´Â ¹Ì»óÀÓ. |
|
|
°ÇÃ๰ÇöȲ |
|
|
|
| ¼ÒÀçÁö |
°æ±âµµ ¼ö¿ø½Ã Àå¾È±¸ Á¶¿øµ¿ 881¹øÁö |
| ´ëÁö¸éÀû |
|
¿¬¸éÀû |
5232.32§³(1585.55Æò) |
ÁÖ¿ëµµ |
°øµ¿ÁÖÅà |
| °ÇÃà¸éÀû |
338.98§³(102.72Æò) |
¿ëÀû·ü»êÁ¤¿¬¸éÀû |
4956.6§³(1502Æò) |
Âø°øÀÏÀÚ |
1996.06.12 |
| °ÇÆóÀ² |
|
¿ëÀû·ü |
|
»ç¿ë½ÂÀÎÀÏÀÚ |
1999.08.27 |
| Áö»óÃþ¼ö |
18Ãþ |
ÁöÇÏÃþ¼ö |
1Ãþ |
±¸Á¶ |
ö±ÙÄÜÅ©¸®Æ®±¸Á¶ |
|
|
|
|
 |
ÀÓÂ÷³»¿ª |
[¹è´ç¿ä±¸Á¾±âÀÏ : 2025/03/10] |
|
|
| ÀÓÂ÷ÀÎ |
Á¡À¯°ü°è |
ÀüÀÔÀÏÀÚ |
È®Á¤ÀÏÀÚ |
¹è´ç¿ä±¸ÀÏ |
º¸Áõ±Ý/Â÷ÀÓ |
´ëÇ׿ä°Ç |
ºñ°í |
| ¸Å°¢±âÀÏ 7ÀÏÀü¿¡ °ø°íµÇ¿À´Ï È®ÀÎÇϽñ⠹ٶø´Ï´Ù. |
|
|
|
 |
¹ý¿ø ¹°°ÇÀÚ·á ¿ä¾à |
|
|
|
|
| ¼Ò¸êµÇÁö ¾Ê´Â µî±âºÎ±Ç¸® |
|
| ¼³Á¤µÈ °ÍÀ¸·Î º¸´Â Áö»ó±Ç |
|
| ¹ý¿øÀÚ·á Æ¯ÀÌ»çÇ× |
[ÁÖ¿ä ¹®°Ç Á¢¼ö ³»¿ª]
[2026.01.08] ä±ÇÀÚ ÇÑOOOOOOO ¼ÓÇà½Åû¼ Á¦Ãâ
|
[ºÎµ¿»ê ÇöȲÁ¶»ç¼ ºñ°í¶õ]
ÇØ´ç ºÎµ¿»êÀÇ ÇöȲÀº ¿Ü°ü»ó °øºÎÀÇ ³»¿ë°ú ÀÏÄ¡ÇÏ´Â °ÍÀ¸·Î º¸ÀÓ. |
|
| ¿©ÀÇÁÖ°æ¸Å Á¶¾ð ÇѸ¶µð |
ÀÌ ºÎµ¿»êÀÇ ÀÔÂû¹ý¿øÀº ¼ö¿øÁö¹æ¹ý¿øÀÔ´Ï´Ù.
ÀÔÂûÀÏÀº 2026-03-30ÀÔ´Ï´Ù.
ÀÔÂû½Ã°£Àº 10:00~11:10ÀÔ´Ï´Ù. ÀÌ ¹ý¿ø¿¡´Â KB±¹¹ÎÀºÇàÀÌ ÀÔÁ¡Çϰí ÀÖ½À´Ï´Ù.
|
|
|
| Åë°è±â°£ |
³«Âû¹°°Ç¼ö |
Æò±Õ°¨Á¤°¡ |
Æò±Õ³«Âû°¡ |
³«Âû°¡À² |
À¯ÂûȽ¼ö |
| 3°³¿ù |
8°Ç |
657,250,000¿ø |
602,962,548¿ø |
92% |
0.9ȸ |
| 6°³¿ù |
18°Ç |
527,911,111¿ø |
472,342,387¿ø |
88% |
1.1ȸ |
| 12°³¿ù |
36°Ç |
525,011,111¿ø |
470,701,713¿ø |
90% |
1ȸ |
|
|
|
|
|
|
|
 |
ÀαÙÁö¿ª ÃÖ±Ù ³«Âû»ç·Ê
|
|
|
 |
|
|
[¾È³»] Ȥ½Ã ÀÌ¿ëÀÌ ºÒÆíÇϽðųª »èÁ¦ÇÒ ³»¿ëÀÌ ÀÖ´Ù¸é ÃÖ´ëÇÑ ³ë·ÂÇØ¼ °³¼±ÇØ ³ª°¡µµ·Ï ÇϰڽÀ´Ï´Ù.
 |
|
ÀÌ »çÀÌÆ®¿¡¼ Á¦°øµÇ´Â ºÎµ¿»ê°æ¸Å ÀÚ·á´Â ¹ý¿ø °æ¸Å°è¿¡¼ ó¸®Çϰí ÀÖ´Â ½ÇÁ¦ ¹°°ÇÀÇ Á¤º¸¿Í ÀÏÄ¡ÇÏÁö ¾ÊÀ» ¼öµµ ÀÖ½À´Ï´Ù.
´ç»ç´Â º» ÀÚ·á¿¡ °üÇÏ¿© Á¤½Ä ÄÁ¼³ÆÃ ÀÇ·Ú°¡ ¾Æ´Ñ ÀÌ»ó ¾î¶°ÇÑ º¸Áõµµ ÇÏÁö ¾ÊÀ¸¸ç ¹ýÀû Ã¥ÀÓÀ» ÁöÁö ¾Ê½À´Ï´Ù.
ÀÔÂûÇϱâ Àü¿¡ ²Ä²ÄÈ÷ ¹ý¿ø¿¡ ºñÄ¡µÈ ¸Å°¢¹°°Ç¸í¼¼¼ ¹× ±âŸ °øºÎ¸¦ ÀçÈ®ÀÎÇϽðí ÀÔÂû¿¡ Âü°¡ÇÏ½Ã±æ ¹Ù¶ø´Ï´Ù. |
|
|
|
|
|