|
|
|
| ¹°°ÇÁ¤º¸ Çٽɺ¸±â |
Ȩ > °æ¸ÅÁ¾ÇÕ°Ë»ö > ¹°°ÇÁ¤º¸ Çٽɺ¸±â |
|
|
| 2025Ÿ°æ34302 °æ¸Å»ç°ÇÀÇ ÀÓ¾ß ¹°°Ç¿¡ °üÇÑ »ó¼¼ Á¤º¸ÀÔ´Ï´Ù. |
|
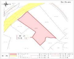
| ¼ÒÀçÁö |
Àü¶ó³²µµ ´ã¾ç±º ´ã¾çÀ¾ ¸¸¼º¸® 200
|
|
| »ç°Ç¹øÈ£ |
2025 Ÿ°æ 34302 |
¹°°Ç¹øÈ£ |
1
|
¹°°Ç¿ëµµ |
ÀÓ¾ß |
| °¨Á¤Æò°¡¾× |
1,055,436,000¿ø |
°æ¸Å´ë»ó |
ÅäÁö¸Å°¢ |
ÁøÇà»óÅ |
½Å°Ç |
| ÃÖÀúÀÔÂû°¡ |
(100%) 1,055,436,000¿ø
|
°Ç¹°¸éÀû |
|
ÀÔÂû±âÀÏ |
2026.04.07(È) 10:00
(ÀÔÂû 7ÀÏÀü)
|
| ÀÔÂûº¸Áõ±Ý |
(10%) 105,543,600¿ø |
ÅäÁö¸éÀû |
3,372.00§³(1,020.03Æò)
|
À¯ÂûȽ¼ö |
0ȸ |
| ÀÔÂû¹ý¿ø |
±¤ÁÖÁö¹æ¹ý¿ø |
°æ¸Å¹æ¹ý |
ºÎµ¿»êÀÓÀǰæ¸Å |
¹°°ÇÁ¶È¸¼ö |
¿À´Ã: 1ȸ [´©Àû: 19ȸ]
|
| ¸»¼Ò±âÁØ | ÃÖ¼±¼øÀ§ ¼³Á¤ : 2022.12.26.±ÙÀú´ç±Ç ¼³Á¤
|
|
|
|
|
|
|
|
|
|
|
°æ¸Å´ë»ó ¸ñ·Ï
|
|
| ±¸ºÐ |
¸ñ·Ï |
ÁÖ¼Ò |
±¸Á¶/¿ëµµ/´ëÁö±Ç |
ºñ°í |
ÅäÁö
|
1 |
¸¸¼º¸® 200 |
ÀÓ¾ß |
3372§³ (1,020.03Æò) |
|
|
|
2026-04-07
ÁøÇà
|
(100%)
1,055,436,000¿ø
|
|
|
|
|
|
°¨Á¤Æò°¡¼ ¿ä¾à |
|
[À§Ä¡/ÁÖÀ§È¯°æ]
º»°ÇÀº Àü¶ó³²µµ ´ã¾ç±º ´ã¾çÀ¾ ¸¸¼º¸® ¼ÒÀç "¸¸¼ºÈ¸Àü±³Â÷·Î" ºÏµ¿Ãø Àαٿ¡ À§Ä¡Çϸç, ÁÖÀ§´Â ÀÚ¿¬¸², ³ó°¡ÁÖÅÃ, ±Ù¸°»ýȰ½Ã¼³ µîÀÌ ¼ÒÀçÇÏ´Â ½Ã°¡ÁöÁÖº¯ ¾ß»êÁö´ëÀÓ.
[±³Åë»óȲ]
º»°Ç±îÁö Â÷·®ÀÇ ÁøÃâÀÔÀÌ °¡´ÉÇϸç, ³²¼Ãø Àαٿ¡ ¹ö½ºÁ¤·ùÀåÀÌ ¼ÒÀçÇÏ´Â µî Á¦¹Ý±³Åë»çÁ¤Àº º¸ÅëÀÓ.
3)ÇüÅ ¹× ÀÌ¿ë»óÅÂ
º»°ÇÀº ºÎÁ¤Çü ¿Ï°æ»ç·Î¼ ÅäÁöÀÓ¾ß ¹× ÀϺΠÀâÁ¾Áö·Î ÀÌ¿ë ÁßÀÓ.
4)ÀÎÁ¢ µµ·Î»óÅÂ
º»°ÇÀº ºÏ¼ÃøÀ¸·Î 4Â÷¼± ¾Æ½ºÆÈÆ® Æ÷Àåµµ·Î¿¡ Á¢ÇÔ.
[ÅäÁöÀÌ¿ë°èȹ]
ÀÚ¿¬³ìÁöÁö¿ª, °¡Ãà»çÀ°Á¦Çѱ¸¿ª((¸ðµç°¡Ãà)Á¦ÇÑÁö¿ª)<°¡ÃàºÐ´¢ÀÇ °ü¸® ¹× À̿뿡 °üÇÑ ¹ý·ü>, °¡Ãà»çÀ°Á¦Çѱ¸¿ª((¸ðµç°¡Ãà)Á¦ÇÑÁö¿ª_300m)<°¡ÃàºÐ´¢ÀÇ °ü¸® ¹× À̿뿡 °üÇÑ ¹ý·ü>, Áغ¸Àü»êÁö<»êÁö°ü¸®¹ý>, °³¹ßÃËÁøÁö±¸<Áö¿ª±ÕÇü°³¹ß ¹× Áö¹æÁß¼Ò±â¾÷ À°¼º¿¡ °üÇÑ ¹ý·ü>, ÁßÁ¡°æ°ü°ü¸®±¸¿ª(´ã¾çÀ¾ ÀÚ¿¬Çü ÁßÁ¡°æ°ü°ü¸®±¸¿ª),ÁßÁ¡°æ°ü°ü¸®±¸¿ª(´ã¾çÀ¾ ÁÖº¯ Á¶¸Á°¡·ÎÇü ÁßÁ¡°æ°ü°ü¸®±¸¿ª)ÀÓ.
6)Á¦½Ã¸ñ·Ï ¿ÜÀÇ ¹°°Ç
¾ø À½.
[°øºÎ¿ÍÀÇ Â÷ÀÌ]
¾ø À½.
[Âü°í»çÇ×]
- ÀÓ´ë°ü°è: ¹Ì»óÀÓ - ±âŸ: º»°Ç Áö»ó¿¡ ¼ÒÀçÇÏ´Â ÀÔ¸ñ µîÀº ÀÓÁö¿Í ÀÏü·Î °Å·¡µÇ´Â °üÇàÀ» °í·ÁÇÏ¿© ÀÓÁö¿¡ Æ÷ÇÔÇÏ¿© Æò°¡ÇÏ¿´À½. |
|
|
|
 |
ÀÓÂ÷³»¿ª |
[¹è´ç¿ä±¸Á¾±âÀÏ : 2026/01/26] |
|
|
| ÀÓÂ÷ÀÎ |
Á¡À¯°ü°è |
ÀüÀÔÀÏÀÚ |
È®Á¤ÀÏÀÚ |
¹è´ç¿ä±¸ÀÏ |
º¸Áõ±Ý/Â÷ÀÓ |
´ëÇ׿ä°Ç |
ºñ°í |
| ¸Å°¢±âÀÏ 7ÀÏÀü¿¡ ¸Å°¢¹°°Ç¸í¼¼¼°¡ °ø°íµÇ¿À´Ï È®ÀÎÇϽñ⠹ٶø´Ï´Ù. |
| ÁÖOOOOOOO |
ÀüºÎ |
|
|
2026.1.23. |
25,000,000
|
X |
2020.03.29~2028.04.05 |
| ¸Å°¢¹°°Ç¸í¼¼ ºñ°í |
ÁÖ½Äȸ»ç ¼¾Æ°Ç¼³:ÀÓÂ÷ÀÎ °â À¯Ä¡±ÇÀÚ·Î ÅäÁö¿¡ ´ëÇÑ ÀÓ´ëÂ÷·Î °øÀ¯ÀÚ À±Á¤Áø°ú ÀÓ´ëÂ÷°è¾à ü°áÇÔ |
|
|
|
 |
¹ý¿ø ¹°°ÇÀÚ·á ¿ä¾à |
|
|
|
|
| ¼Ò¸êµÇÁö ¾Ê´Â µî±âºÎ±Ç¸® |
|
| ¼³Á¤µÈ °ÍÀ¸·Î º¸´Â Áö»ó±Ç |
|
| ¹ý¿øÀÚ·á Æ¯ÀÌ»çÇ× |
[ÁÖ¿ä ¹®°Ç Á¢¼ö ³»¿ª]
[2026.01.23] À¯Ä¡±ÇÀÚ ÁÖOOO OOOO À¯Ä¡±Ç¿¡ ÀÇÇÑ ±Ç¸® ½Å°í¼ Á¦Ãâ
[2026.01.23] À¯Ä¡±ÇÀÚ ÁÖOOO OOOO ¼Û´ÞÀå¼Ò½Å°í¼ Á¦Ãâ
|
[¸Å°¢¹°°Ç¸í¼¼¼ ºñ°í¶õ]
ÀϺΠÁö»ó¿¡ À̵¿°¡´ÉÇÑ ÄÁÅ×ÀÌ³Ê ¸Å°¢ Á¦¿Ü
º»°Ç ÅäÁö °øºÎ»ó Áö¸ñÀº ÀÓ¾ßÀ̳ª ÇöȲÀº ÀÓ¾ß ¹× ÀϺΠÀâÁ¾Áö·Î ÀÌ¿ëÁßÀÓ
°¨Á¤Æò°¡¼ µî¿¡ ÀÇÇÏ¸é º»°Ç ÅäÁö Áß ÀϺΠÅäÁöÆòÅºÈ °ø»ç·Î °Ç¼³ °ø»ç ÀÚÀç°¡ ÀûÄ¡µÇ¾î ÀÖ°í, ÄÁÅ×ÀÌ³Ê ¹Ú½º°¡ ¼ÒÀçÇÔ
2026. 1. 23.ÀÚ ÁÖ½Äȸ»ç ¼¾Æ°Ç¼³·ÎºÎÅÍ º»°Ç ¸Å°¢ºÎµ¿»ê¿¡ ´ëÇØ °ø»ç´ë±Ý ±Ý 31,000,000¿øÀÇ À¯Ä¡±Ç½Å°í¼°¡ Á¦ÃâµÇ¾úÀ¸³ª,
±× ¼º¸³ ¿©ºÎ´Â ºÒºÐ¸íÇÔ |
|
| ¿©ÀÇÁÖ°æ¸Å Á¶¾ð ÇѸ¶µð |
ÀÌ ºÎµ¿»êÀÇ ÀÔÂû¹ý¿øÀº ±¤ÁÖÁö¹æ¹ý¿øÀÔ´Ï´Ù.
ÀÔÂûÀÏÀº 2026-04-07ÀÔ´Ï´Ù.
ÀÔÂû½Ã°£Àº 10:00~11:10ÀÔ´Ï´Ù. ÀÌ ¹ý¿ø¿¡´Â ±¤ÁÖÀºÇà,½ÅÇÑÀºÇàÀÌ ÀÔÁ¡Çϰí ÀÖ½À´Ï´Ù.
|
À¯Ä¡±Ç½Å°í°¡ ÀÖ´Â ¹°°ÇÀÔ´Ï´Ù À¯Ä¡±ÇÀ̶õ ŸÀÎÀÇ ºÎµ¿»êÀ» Á¡À¯Çϰí ÀÖ´Â ÀÚ°¡ ±× ºÎµ¿»ê¿¡ °üÇÏ¿© »ý±ä (°ø»ç´ë±Ý)ä±ÇÀÌ ÀÖ´Â °æ¿ì ±× ä±ÇÀ» º¯Á¦¹ÞÀ» ¶§±îÁö ºÎµ¿»êÀÇ Àεµ¸¦ °ÅÀýÇϰí À¯Ä¡ÇÒ ¼ö ÀÖ´Â ±Ç¸®ÀÔ´Ï´Ù. ÁøÁ¤ÇÑ À¯Ä¡±ÇÀº ³«Âû·Î ¸»¼ÒµÇÁö ¾Ê°í ³«ÂûÀÚ°¡ ±× ºÎ´ãÀ» ÀμöÇÕ´Ï´Ù. ±×·±µ¥, À¯Ä¡±ÇÀº °ß·Ã¼º, ÇǴ㺸ä±Ç, º¯Á¦±â, Á¡À¯ µî ±× ¼º¸³ ¹× Á¸¼Ó¿ä°ÇÀÌ ¸Å¿ì ¾ö°ÝÇÏ¿© ½ÇÁ¦ À¯Ä¡±ÇÀÌ ¼º¸³ÇÏ´Â °æ¿ì´Â ±ØÈ÷ µå¹´´Ï´Ù. |
ÀÔÂû(¸Å°¢)¿Ü ¹°°ÇÀÌ Æ÷ÇԵǾî ÀÖ½À´Ï´Ù ÀÔÂû(¸Å°¢)¿¡¼ Á¦¿ÜµÇ´Â ¹°°ÇÀÌ ÀÖ´Ù´Â ÀǹÌÀÔ´Ï´Ù. ŸÀÎÀÌ ¼³Ä¡ÇÑ °Ç¹° ¶Ç´Â À̵¿ÀÌ ¿ëÀÌÇÑ ÄÁÅ×À̳Ê, ±â°è±â±¸ µîÀ» ¸»ÇÕ´Ï´Ù. ÀÌ¿¡ ÇØ´çÇÏ´Â ¹°°ÇÀº ³«ÂûÀÚ¿¡°Ô ¼ÒÀ¯±ÇÀÌ ³Ñ¾î¿ÀÁö ¾Ê½À´Ï´Ù. |
|
|
| Åë°è±â°£ |
³«Âû¹°°Ç¼ö |
Æò±Õ°¨Á¤°¡ |
Æò±Õ³«Âû°¡ |
³«Âû°¡À² |
À¯ÂûȽ¼ö |
| 3°³¿ù |
3°Ç |
812,167,013¿ø |
251,536,667¿ø |
39% |
4.3ȸ |
| 6°³¿ù |
14°Ç |
340,463,846¿ø |
141,732,640¿ø |
53% |
2.8ȸ |
| 12°³¿ù |
25°Ç |
244,396,762¿ø |
101,270,899¿ø |
51% |
3.3ȸ |
|
|
|
|
|
|
|
 |
ÀαÙÁö¿ª ÃÖ±Ù ³«Âû»ç·Ê
|
|
|
 |
|
|
[¾È³»] Ȥ½Ã ÀÌ¿ëÀÌ ºÒÆíÇϽðųª »èÁ¦ÇÒ ³»¿ëÀÌ ÀÖ´Ù¸é ÃÖ´ëÇÑ ³ë·ÂÇØ¼ °³¼±ÇØ ³ª°¡µµ·Ï ÇϰڽÀ´Ï´Ù.
 |
|
ÀÌ »çÀÌÆ®¿¡¼ Á¦°øµÇ´Â ºÎµ¿»ê°æ¸Å ÀÚ·á´Â ¹ý¿ø °æ¸Å°è¿¡¼ ó¸®Çϰí ÀÖ´Â ½ÇÁ¦ ¹°°ÇÀÇ Á¤º¸¿Í ÀÏÄ¡ÇÏÁö ¾ÊÀ» ¼öµµ ÀÖ½À´Ï´Ù.
´ç»ç´Â º» ÀÚ·á¿¡ °üÇÏ¿© Á¤½Ä ÄÁ¼³ÆÃ ÀÇ·Ú°¡ ¾Æ´Ñ ÀÌ»ó ¾î¶°ÇÑ º¸Áõµµ ÇÏÁö ¾ÊÀ¸¸ç ¹ýÀû Ã¥ÀÓÀ» ÁöÁö ¾Ê½À´Ï´Ù.
ÀÔÂûÇϱâ Àü¿¡ ²Ä²ÄÈ÷ ¹ý¿ø¿¡ ºñÄ¡µÈ ¸Å°¢¹°°Ç¸í¼¼¼ ¹× ±âŸ °øºÎ¸¦ ÀçÈ®ÀÎÇϽðí ÀÔÂû¿¡ Âü°¡ÇÏ½Ã±æ ¹Ù¶ø´Ï´Ù. |
|
|
|
|
|