|
|
|
| ¹°°ÇÁ¤º¸ Çٽɺ¸±â |
Ȩ > °æ¸ÅÁ¾ÇÕ°Ë»ö > ¹°°ÇÁ¤º¸ Çٽɺ¸±â |
|
|
| 2025Ÿ°æ52434 °æ¸Å»ç°ÇÀÇ ´Ù¼¼´ë(ºô¶ó) ¹°°Ç¿¡ °üÇÑ »ó¼¼ Á¤º¸ÀÔ´Ï´Ù. |
|
| ¼ÒÀçÁö |
°æ±âµµ ¾È»ê½Ã »ó·Ï±¸ º»¿Àµ¿ 845-1 3Ãþ301È£
|
|
| »ç°Ç¹øÈ£ |
2025 Ÿ°æ 52434 |
¹°°Ç¹øÈ£ |
1
|
¹°°Ç¿ëµµ |
´Ù¼¼´ë(ºô¶ó) |
| °¨Á¤Æò°¡¾× |
213,000,000¿ø |
°æ¸Å´ë»ó |
ÅäÁö ¹× °Ç¹°Àϰý ¸Å°¢ |
ÁøÇà»óÅ |
½Å°Ç |
| ÃÖÀúÀÔÂû°¡ |
(100%) 213,000,000¿ø
|
°Ç¹°¸éÀû |
71.00§³(21.48Æò) |
ÀÔÂû±âÀÏ |
2026.04.16(¸ñ) 10:30
(ÀÔÂû 10ÀÏÀü)
|
| ÀÔÂûº¸Áõ±Ý |
(10%) 21,300,000¿ø |
ÅäÁö¸éÀû |
32.51§³(9.84Æò)
|
À¯ÂûȽ¼ö |
0ȸ |
| ÀÔÂû¹ý¿ø |
¼ö¿øÁö¹æ¹ý¿ø ¾È»êÁö¿ø |
°æ¸Å¹æ¹ý |
ºÎµ¿»ê°Á¦°æ¸Å |
¹°°ÇÁ¶È¸¼ö |
¿À´Ã: 2ȸ [´©Àû: 44ȸ]
|
| ¸»¼Ò±âÁØ | ÃÖ¼±¼øÀ§ ¼³Á¤ : 2021.09.24. (°¡¾Ð·ù) ¼³Á¤
|
|
|
|
|
|
|
|
|
|
|
°æ¸Å´ë»ó ¸ñ·Ï
|
|
| ±¸ºÐ |
¸ñ·Ï |
ÁÖ¼Ò |
±¸Á¶/¿ëµµ/´ëÁö±Ç |
ºñ°í |
´ëÁö±Ç
|
1 |
º»¿Àµ¿ 845-1 |
260.1ºÐÀÇ 32.5125 |
32.5125§³ (9.84Æò)
|
°Ç¹°
|
1 |
º»¿Àµ¿ 845-1 |
3Ãþ301È£ ö±ÙÄÜÅ©¸®Æ®±¸Á¶ |
70.995§³ (21.48Æò)
|
| Á¦½Ã¿Ü°Ç¹° |
1 |
º»¿Àµ¿ 845-1 |
â°í |
1.5
§³(0.45Æò) Æ÷ÇÔ |
|
|
|
2026-04-16
ÁøÇà
|
(100%)
213,000,000¿ø
|
|
|
|
|
|
°¨Á¤Æò°¡¼ ¿ä¾à |
|
[À§Ä¡/ÁÖÀ§È¯°æ]
º»°ÇÀº °æ±âµµ ¾È»ê½Ã »ó·Ï±¸ º»¿Àµ¿ ¼ÒÀç ""¹Ý¿ù°ø¿ø"" ºÏÃø Àαٿ¡ À§Ä¡Çϸç, ÁÖÀ§´Â ´Ù¼¼´ëÁÖÅÃ, ±Ù¸°»ýȰ½Ã¼³, ´Üµ¶ÁÖÅà µîÀÌ È¥ÀçÇÏ´Â ÁÖÅÃÁö´ë·Î ÁÖÀ§È¯°æÀº º¸ÅëÀÓ.
[±³Åë»óȲ]
º»°Ç °Ç¹°±îÁö Â÷·®À» ÅëÇÑ Áø¡¤ÃâÀÔÀÌ °¡´ÉÇϸç, Àαٿ¡ ³ë¼±¹ö½ºÁ¤·ùÀåÀÌ ¼ÒÀçÇÏ´Â µî Á¦¹Ý ±³Åë»çÁ¤Àº º¸ÅëÀÓ.
[°Ç¹°±¸Á¶]
ö±ÙÄÜÅ©¸®Æ®±¸Á¶ (ö±Ù)ÄÜÅ©¸®Æ®ÁöºØ 5Ãþ°Ç ³» Á¦3Ãþ Á¦301È£(»ç¿ë½ÂÀÎÀÏ : 2014.09.22)·Î¼
¿Üº® : ¼®Àç ºÙÀÓ µî ¸¶°¨,
³»º® : º®Áöµµ¹è, ÀϺΠŸÀϺÙÀÓ ¸¶°¨,
âȣ : ÇÃ¶ó½ºÆ½¼¦½Ã 2ÁßâȣÀÓ.
[ÀÌ¿ë»óÅÂ]
""´Ù¼¼´ëÁÖÅÃ(¹æ3, °Å½Ç, ÁÖ¹æ, ¿å½Ç2, ´Ù¿ëµµ½Ç, Çö°ü µî)""À¸·Î ÀÌ¿ëÁßÀÓ.
[¼³ºñ³»¿ª]
±âº»ÀûÀÎ À§»ý ¹× ±Þ¹è¼ö¼³ºñ, °³º°³¹æ¼³ºñ µîÀÌ °®Ãß¾îÁ® ÀÖÀ½.
[ÅäÁöÇü»ó/ÀÌ¿ë»óÅÂ]
ÀÎÁ¢µµ·Î ¹× ÀÎÁ¢ÅäÁö¿Í µî°íÆòźÇÑ ""¼¼ÀåÇü""ÀÇ ÅäÁö·Î ""´Ù¼¼´ëÁÖÅà °ÇºÎÁö""·Î ÀÌ¿ëÁßÀÓ.
7)ÀÎÁ¢ µµ·Î»óŵî
ºÏ¼ÃøÀ¸·Î ³ëÆø ¾à6¹ÌÅÍÀÇ Æ÷Àåµµ·Î¿Í Á¢Çϰí ÀÖÀ½.
[ÅäÁöÀÌ¿ë°èȹ]
µµ½ÃÁö¿ª, Á¦2Á¾ÀϹÝÁÖ°ÅÁö¿ª, ½Ã°¡Áö°æ°üÁö±¸(ÀϹÝ), ¼Ò·Î3·ù(Æø 8m ¹Ì¸¸)(Á¢ÇÕ) °¡Ãà»çÀ°Á¦Çѱ¸¿ª£¼°¡ÃàºÐ´¢ÀÇ °ü¸® ¹× À̿뿡 °üÇÑ ¹ý·ü£¾, ´ë±â°ü¸®±Ç¿ª£¼´ë±â°ü¸®±Ç¿ªÀÇ ´ë±âȯ°æ°³¼±¿¡ °üÇÑ Æ¯º°¹ý£¾, µµ½Ã±³ÅëÁ¤ºñÁö¿ª£¼µµ½Ã±³ÅëÁ¤ºñÃËÁø¹ý£¾, »ýȰ¼ÒÀ½Áøµ¿°ü¸®Áö¿ª£¼¼ÒÀ½Áøµ¿°ü¸®¹ý£¾, ¼ºÀå°ü¸®±Ç¿ª£¼¼öµµ±ÇÁ¤ºñ°èȹ¹ý£¾
[°øºÎ¿ÍÀÇ Â÷ÀÌ]
ÇØ´ç»çÇ× ¾øÀ½.
[Âü°í»çÇ×]
±âŸ ÀÓ´ë°ü°è´Â ¹Ì»óÀÓ. |
|
|
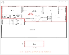
°ÇÃ๰ÇöȲ |
|
|
|
| ¼ÒÀçÁö |
°æ±âµµ ¾È»ê½Ã »ó·Ï±¸ º»¿Àµ¿ 845-1¹øÁö |
| ´ëÁö¸éÀû |
260.1§³(78.82Æò) |
¿¬¸éÀû |
628.17§³(190.35Æò) |
ÁÖ¿ëµµ |
°øµ¿ÁÖÅà |
| °ÇÃà¸éÀû |
153.6§³(46.55Æò) |
¿ëÀû·ü»êÁ¤¿¬¸éÀû |
628.17§³(190.35Æò) |
Âø°øÀÏÀÚ |
2014.04.08 |
| °ÇÆóÀ² |
59.05% |
¿ëÀû·ü |
241.51% |
»ç¿ë½ÂÀÎÀÏÀÚ |
2014.09.22 |
| Áö»óÃþ¼ö |
5Ãþ |
ÁöÇÏÃþ¼ö |
|
±¸Á¶ |
ö±ÙÄÜÅ©¸®Æ®±¸Á¶ |
°ÇÃ๰Ãþº°ÇöȲ [º¸±â]| Ãþº° | ±¸Á¶ | ¿ëµµ | ¸éÀû | | 1Ãþ | ö±ÙÄÜÅ©¸®Æ®±¸Á¶ | °è´Ü½Ç | 13.77§³ (4.17Æò) | | 2Ãþ | ö±ÙÄÜÅ©¸®Æ®±¸Á¶ | ´Ù¼¼´ëÁÖÅÃ(2¼¼´ë) | 153.6§³ (46.55Æò) | | 3Ãþ | ö±ÙÄÜÅ©¸®Æ®±¸Á¶ | ´Ù¼¼´ëÁÖÅÃ(2¼¼´ë) | 153.6§³ (46.55Æò) | | 4Ãþ | ö±ÙÄÜÅ©¸®Æ®±¸Á¶ | ´Ù¼¼´ëÁÖÅÃ(2¼¼´ë) | 153.6§³ (46.55Æò) | | 5Ãþ | ö±ÙÄÜÅ©¸®Æ®±¸Á¶ | ´Ù¼¼´ëÁÖÅÃ(2¼¼´ë) | 153.6§³ (46.55Æò) |
|
|
|
|
|
 |
ÀÓÂ÷³»¿ª |
[¹è´ç¿ä±¸Á¾±âÀÏ : 2025/08/11] |
|
|
| ÀÓÂ÷ÀÎ |
Á¡À¯°ü°è |
ÀüÀÔÀÏÀÚ |
È®Á¤ÀÏÀÚ |
¹è´ç¿ä±¸ÀÏ |
º¸Áõ±Ý/Â÷ÀÓ |
´ëÇ׿ä°Ç |
ºñ°í |
| ¸Å°¢±âÀÏ 7ÀÏÀü¿¡ ¸Å°¢¹°°Ç¸í¼¼¼°¡ °ø°íµÇ¿À´Ï È®ÀÎÇϽñ⠹ٶø´Ï´Ù. |
| ÁÖOOOOOOOOOOOOOOO |
Á¦301È£ÀüºÎ |
2021.02.17. |
2021.01.12. |
2025.05.20. |
204,000,000
|
O |
2021.02.17.~2023.02.16. |
| ¸Å°¢¹°°Ç¸í¼¼ ºñ°í |
ÁÖÅõµ½Ãº¸Áõ°ø»ç(ÀÓÂ÷ÀÎ À̼öºó):
¨ç°æ¸Å½Åûä±ÇÀڷμ `ÁÖÅÃÀÓ´ëÂ÷º¸È£¹ý` Á¦3Á¶ÀÇ 2 Á¦7Ç× Á¦9È£ÀÇ ¾ç¼öÀÎÀÓ
¨èÀÓÂ÷ÀÎ`À̼öºó`Àº ÁÖÅÃÀÓÂ÷±ÇÀڷμ ÁÖÅÃÀÓÂ÷±Çµî±âÀÏÀº 2023.01.09.ÀÓ
¨é¹è´ç¿ä±¸ÀÏÀÚ´Â °æ¸Å½Åû¼ Á¢¼öÀÏÀ̰í, ±Ç¸®½Å°í ³»¿ë Áß `ÀÓ´ëÂ÷±â°£,º¸Áõ±Ý,ÀüÀԽŰíÀÏÀÚ`µîÀº °æ¸Å½Åû¼¿¡ ÷ºÎµÈ
`Àü¼¼°è¾à¼`µî¿¡ ±Ù°ÅÇÔ |
|
|
|
 |
¹ý¿ø ¹°°ÇÀÚ·á ¿ä¾à |
|
|
|
|
| ¼Ò¸êµÇÁö ¾Ê´Â µî±âºÎ±Ç¸® |
¸Å¼öÀο¡°Ô ´ëÇ×ÇÒ ¼ö ÀÖ´Â ÁÖÅÃÀÓÂ÷±ÇÀÚ(À»±¸6¹ø) ÀÖÀ½(ÀÓ´ëÂ÷º¸Áõ±Ý:204,000,000¿ø/ ÀüÀÔÀÏÀÚ:2021.02.17./ È®Á¤ÀÏÀÚ:2021 .01.12.)
¹è´ç¿¡¼ º¸Áõ±ÝÀÌ Àü¾× º¯Á¦µÇÁö ¾Ê´Â °æ¿ì Àܾ×À» ¸Å¼öÀÎÀÌ ÀμöÇÏ¿©¾ß ÇÔ |
| ¼³Á¤µÈ °ÍÀ¸·Î º¸´Â Áö»ó±Ç |
|
| ¹ý¿øÀÚ·á Æ¯ÀÌ»çÇ× |
[ÁÖ¿ä ¹®°Ç Á¢¼ö ³»¿ª]
|
[¸Å°¢¹°°Ç¸í¼¼¼ ºñ°í¶õ]
¨çÁ¦½Ã¿Ü °Ç¹°`1Ãþ ¼ÒÀç â°í(Á¶¸³½Ä ÆÇ³ÚÁ¶ 1.5§³)`Æ÷ÇÔ
¨èÁ¦½Ã¿Ü °Ç¹°Àº ´Üµ¶È¿¿ë°¡Ä¡ ¾ø¾î º» °Ç¹°¿¡ Æ÷ÇÔÇÏ¿© Æò°¡µÊ |
[ºÎµ¿»ê ÇöȲÁ¶»ç¼ ºñ°í¶õ]
¿Þ |
|
| ¿©ÀÇÁÖ°æ¸Å Á¶¾ð ÇѸ¶µð |
ÀÌ ºÎµ¿»êÀÇ ÀÔÂû¹ý¿øÀº ¼ö¿øÁö¹æ¹ý¿ø ¾È»êÁö¿øÀÔ´Ï´Ù.
ÀÔÂûÀÏÀº 2026-04-16ÀÔ´Ï´Ù.
ÀÔÂû½Ã°£Àº 10:00~11:00ÀÔ´Ï´Ù. ÀÌ ¹ý¿ø¿¡´Â ½ÅÇÑÀºÇàÀÌ ÀÔÁ¡Çϰí ÀÖ½À´Ï´Ù.
|
Á¦½Ã¿Ü ¹°°ÇÀÌ Æ÷ÇԵǾî ÀÖ½À´Ï´Ù ¡®Á¦½Ã¿Ü ¹°°Ç¡¯Àº ÇØ´ç °øºÎ»ó¿¡´Â Á¸ÀçÇÏÁö ¾ÊÁö¸¸, ÇöÀå¿¡ Á¸Àç°¡ È®ÀεǴ ¿©·¯ ÇüÅÂÀÇ °Ç¹°, ±â°è±â±¸ µîÀ» ¸»ÇÕ´Ï´Ù. ÀÌµé ´ëºÎºÐÀº ¹«Çã°¡, ¹«½Å°íÀ̰ųª »ç¿ë½ÂÀÎÀ» ¹ÞÁö ¾ÊÀº °ÍÀÔ´Ï´Ù. ¡®Á¦½Ã¿Ü ¹°°Ç¡¯ÀÌ °æ¸Å´ë»ó¿¡ Æ÷ÇԵǾî ÀÖ´Ù¸é ³«ÂûÀÚÀÇ ¼ÒÀ¯±Ç Ãëµæ¿¡´Â ¾Æ¹«·± ¹®Á¦°¡ ¾ø½À´Ï´Ù. |
|
|
| Åë°è±â°£ |
³«Âû¹°°Ç¼ö |
Æò±Õ°¨Á¤°¡ |
Æò±Õ³«Âû°¡ |
³«Âû°¡À² |
À¯ÂûȽ¼ö |
| 3°³¿ù |
43°Ç |
155,335,814¿ø |
92,173,159¿ø |
60% |
3.6ȸ |
| 6°³¿ù |
69°Ç |
156,426,667¿ø |
100,236,172¿ø |
64% |
3.4ȸ |
| 12°³¿ù |
140°Ç |
155,269,032¿ø |
98,103,826¿ø |
63% |
3.1ȸ |
|
|
|
|
|
|
|
 |
ÀαÙÁö¿ª ÃÖ±Ù ³«Âû»ç·Ê
|
|
|
 |
|
|
[¾È³»] Ȥ½Ã ÀÌ¿ëÀÌ ºÒÆíÇϽðųª »èÁ¦ÇÒ ³»¿ëÀÌ ÀÖ´Ù¸é ÃÖ´ëÇÑ ³ë·ÂÇØ¼ °³¼±ÇØ ³ª°¡µµ·Ï ÇϰڽÀ´Ï´Ù.
 |
|
ÀÌ »çÀÌÆ®¿¡¼ Á¦°øµÇ´Â ºÎµ¿»ê°æ¸Å ÀÚ·á´Â ¹ý¿ø °æ¸Å°è¿¡¼ ó¸®Çϰí ÀÖ´Â ½ÇÁ¦ ¹°°ÇÀÇ Á¤º¸¿Í ÀÏÄ¡ÇÏÁö ¾ÊÀ» ¼öµµ ÀÖ½À´Ï´Ù.
´ç»ç´Â º» ÀÚ·á¿¡ °üÇÏ¿© Á¤½Ä ÄÁ¼³ÆÃ ÀÇ·Ú°¡ ¾Æ´Ñ ÀÌ»ó ¾î¶°ÇÑ º¸Áõµµ ÇÏÁö ¾ÊÀ¸¸ç ¹ýÀû Ã¥ÀÓÀ» ÁöÁö ¾Ê½À´Ï´Ù.
ÀÔÂûÇϱâ Àü¿¡ ²Ä²ÄÈ÷ ¹ý¿ø¿¡ ºñÄ¡µÈ ¸Å°¢¹°°Ç¸í¼¼¼ ¹× ±âŸ °øºÎ¸¦ ÀçÈ®ÀÎÇϽðí ÀÔÂû¿¡ Âü°¡ÇÏ½Ã±æ ¹Ù¶ø´Ï´Ù. |
|
|
|
|
|